| Обозначение: |  ГОСТ 21.608-2014 |
| Статус: | заменён |
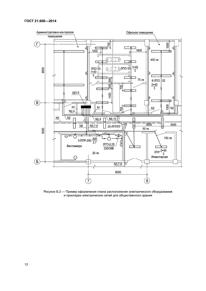
| Название рус.: | Система проектной документации для строительства. Правила выполнения рабочей документации внутреннего электрического освещения |
| Дата актуализации текста: | 01.06.2021 |
| Дата актуализации описания: | 01.07.2023 |
| Дата регистрации: | 14.11.2014 |
| Дата издания: | 24.11.2020 |
| Дата введения: | 01.07.2015 |
| Дата окончания срока действия: | 01.01.2022 |
| Взамен: | ГОСТ 21.608-84 |
| Заменяющий: | ГОСТ 21.608-2020 |
| Нормативные ссылки: | ГОСТ Р 21.1101-2013; ГОСТ 2.301; ГОСТ 2.302; ГОСТ 2.702; ГОСТ 21.101; ГОСТ 21.110; ГОСТ 21.114; ГОСТ 21.614; ГОСТ 21.210-2014 |
| Область применения: | Настоящий стандарт устанавливает состав и правила оформления рабочей документации внутренних сетей электрического освещения помещений зданий и сооружений различного назначения |
| Приложение №1: | Поправка к ГОСТ 21.608-2014 |
|