| Обозначение: |  ГОСТ 27215-2013 |
| Статус: | действующий |
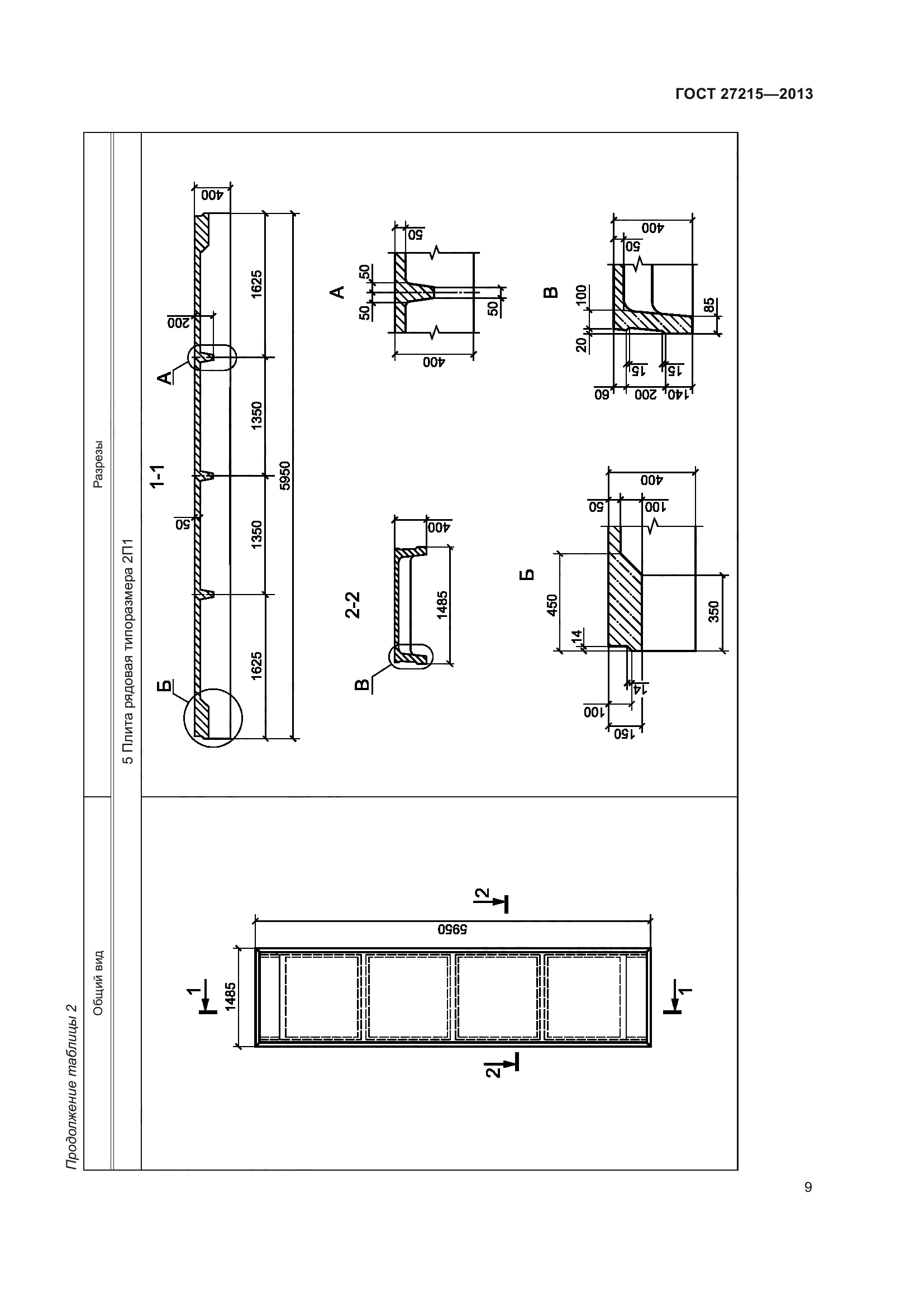
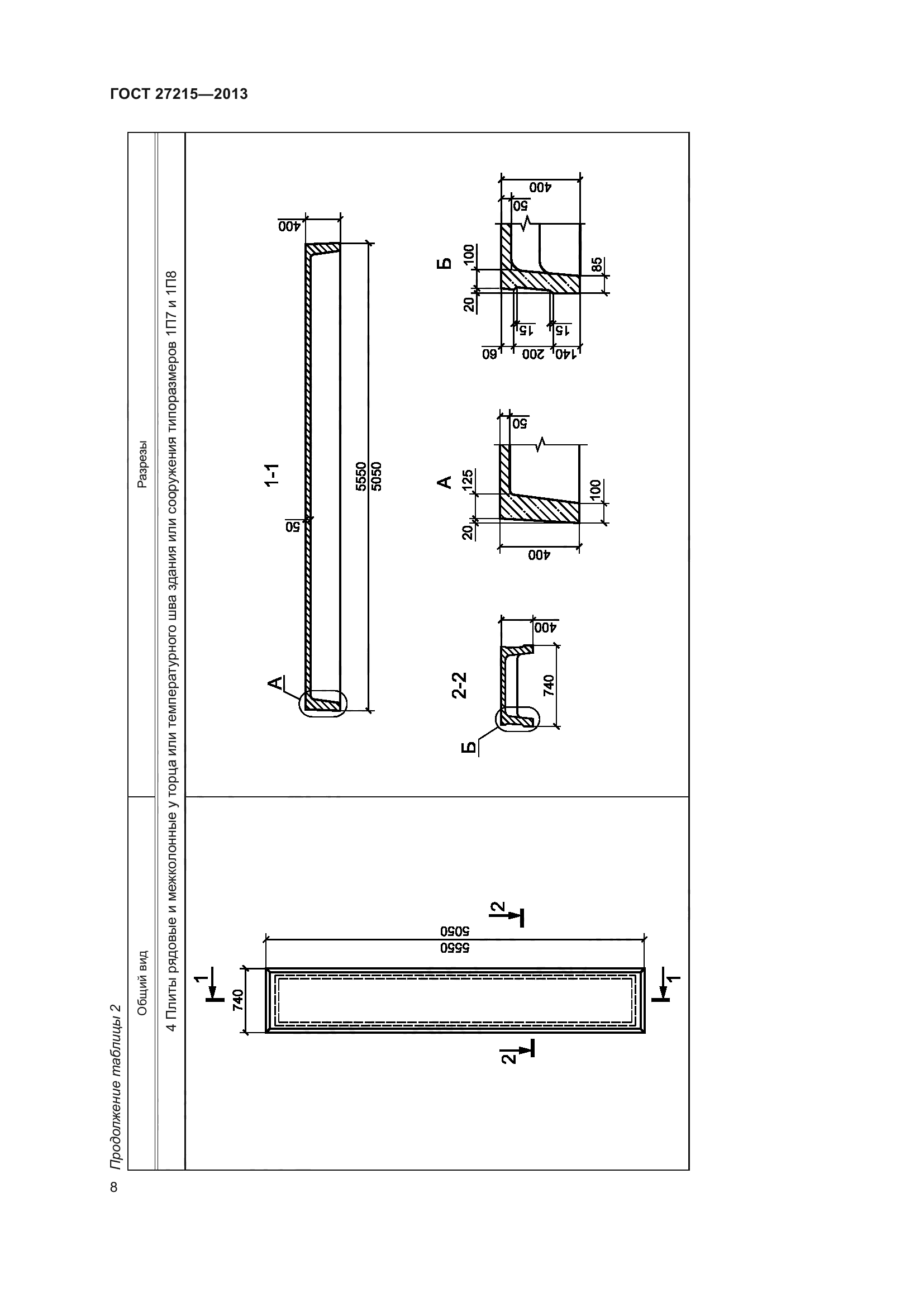
| Название рус.: | Плиты перекрытий железобетонные ребристые высотой 400 мм для промышленных зданий и сооружений. Технические условия |
| Дата актуализации текста: | 01.01.2026 |
| Дата актуализации описания: | 01.12.2024 |
| Дата регистрации: | 14.11.2013 |
| Дата издания: | 09.12.2019 |
| Дата введения: | 01.01.2015 |
| Взамен: | ГОСТ 27215-87 |
| Нормативные ссылки: | ГОСТ 5781; ГОСТ 6727; ГОСТ 7348; ГОСТ 8829; ГОСТ 10060; ГОСТ 10180; ГОСТ 10181; ГОСТ 10922; ГОСТ 12730.0; ГОСТ 12730.1; ГОСТ 12730.5; ГОСТ 13015; ГОСТ 13840; ГОСТ 16504; ГОСТ 17623; ГОСТ 17624; ГОСТ 17625; ГОСТ 18105; ГОСТ 22362; ГОСТ 22690; ГОСТ 22904; ГОСТ 23858; ГОСТ 25820; ГОСТ 26134; ГОСТ 26633; ГОСТ 32499-2013; ГОСТ 34028; ГОСТ Р 57997-2017; ГОСТ 535; ГОСТ 7473; ГОСТ 14098; ГОСТ 23009; ГОСТ 24297; ГОСТ 31384 |
| Область применения: | Настоящий стандарт устанавливает технические требования, методы контроля, правила приемки, транспортирования и хранения железобетонных предварительно напряженных ребристых плит высотой 400 мм из тяжелого или конструкционного легкого бетона. Плиты применяют для перекрытий многоэтажных каркасных производственных зданий промышленных предприятий и сооружений различного назначения с шагом несущих конструкций 6 м |
| Приложение №1: | Изменение к ГОСТ 27215-2013. Поправка к изменению |
| Приложение №2: | Изменение №1 к ГОСТ 27215-2013 |
| Приложение №3: | Поправка к ГОСТ 27215-2013 |
|