| Обозначение: |  ГОСТ 32522-2013 |
| Статус: | действующий |
| Название рус.: | Мешки тканые полипропиленовые. Общие технические условия. |
| Дата актуализации текста: | 01.01.2021 |
| Дата актуализации описания: | 01.07.2023 |
| Дата регистрации: | 05.11.2013 |
| Дата издания: | 26.08.2019 |
| Дата введения: | 01.07.2014 |
| Нормативные ссылки: | ГОСТ 9.708; ГОСТ 12.1.004; ГОСТ 12.1.010; ГОСТ 12.2.003; ГОСТ 12.2.061; ГОСТ 12.3.030; ГОСТ 12.4.011; ГОСТ 427; ГОСТ 5530; ГОСТ 10178; ГОСТ 10354; ГОСТ 14192; ГОСТ 17308; ГОСТ 17811; ГОСТ 18106; ГОСТ 18425; ГОСТ 19360; ГОСТ 20477; ГОСТ 26319; ГОСТ 26663; ГОСТ 26996; ГОСТ 29104.3; ГОСТ 29104.4; ГОСТ 30090 |
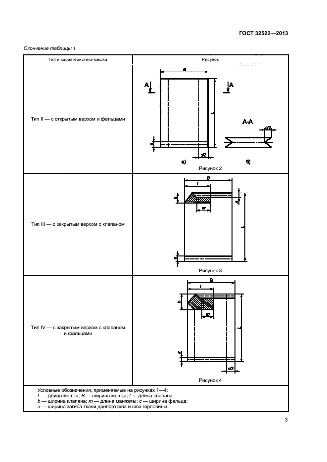
| Область применения: | Настоящий стандарт распространяется на тканые полипропиленовые мешки, предназначенные для упаковывания, транспортирования и хранения пищевой и технической продукции массой до 50 кг. Мешки, предназначенные для упаковывания, транспортирования и хранения опасных грузов, должны соответствовать требованиям ГОСТ 26319 |
|