| Обозначение: |  ГОСТ Р ИСО 12500-1-2009 |
| Статус: | действующий |
| Название рус.: | Фильтры сжатого воздуха. Методы испытаний. Часть 1. Масла в виде аэрозолей |
| Название англ.: | Filters for compressed air. Test methods. Part 1. Oil aerosols |
| Дата актуализации текста: | 10.06.2020 |
| Дата актуализации описания: | 01.07.2023 |
| Дата издания: | 19.06.2019 |
| Дата введения: | 01.12.2010 |
| Код ОКП: | 415000 |
| Аутентичен стандартам: | ISO 12500-1:2007 |
| Нормативные ссылки: | ISO 1219-1;ISO 2602;ISO 2854;ISO 3649:1980;ISO 5598;ISO 7000;ISO 7183;ISO 8573-1:2001;ISO 8573-2;ISO 14644-3:2005 |
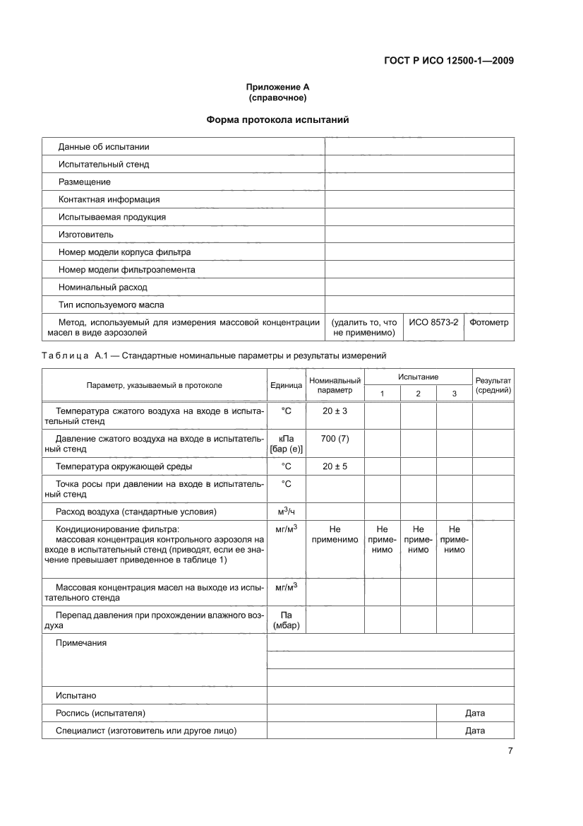
| Область применения: | В настоящем стандарте установлен метод испытаний и описан испытательный стенд, необходимые для проведения испытаний коалесцентных фильтров, используемых в системах, где циркулирует сжатый воздух, для определения эффективности удаления ими масел в виде аэрозолей. В настоящем стандарте приведен метод определения таких характеристик фильтра как перепад давления и эффективность удаления масел в виде аэрозолей. В соответствии с методом испытаний, установленным настоящим стандартом, характеристику коалесцентного фильтра выражают через массовую концентрацию масел в виде аэрозолей в миллиграммах на кубический метр, вычисленную по результатам, полученным при стандартных номинальных параметрах испытательного стенда |
|