| Обозначение: |  ГОСТ 25116-82 |
| Статус: | не действует в РФ |
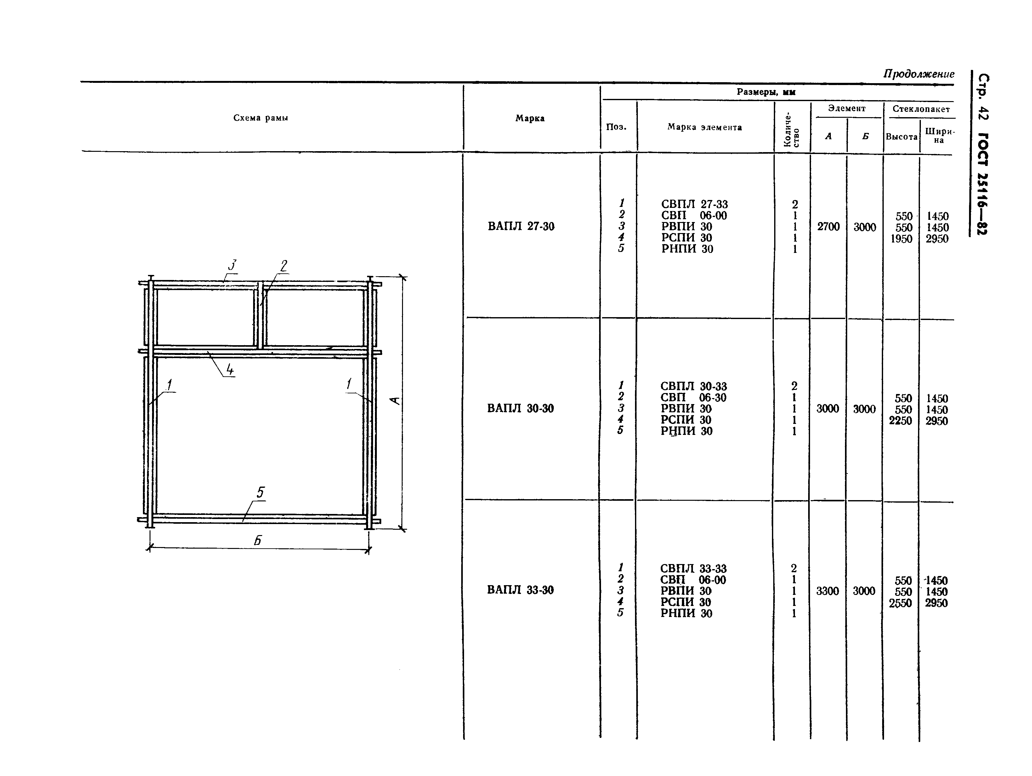
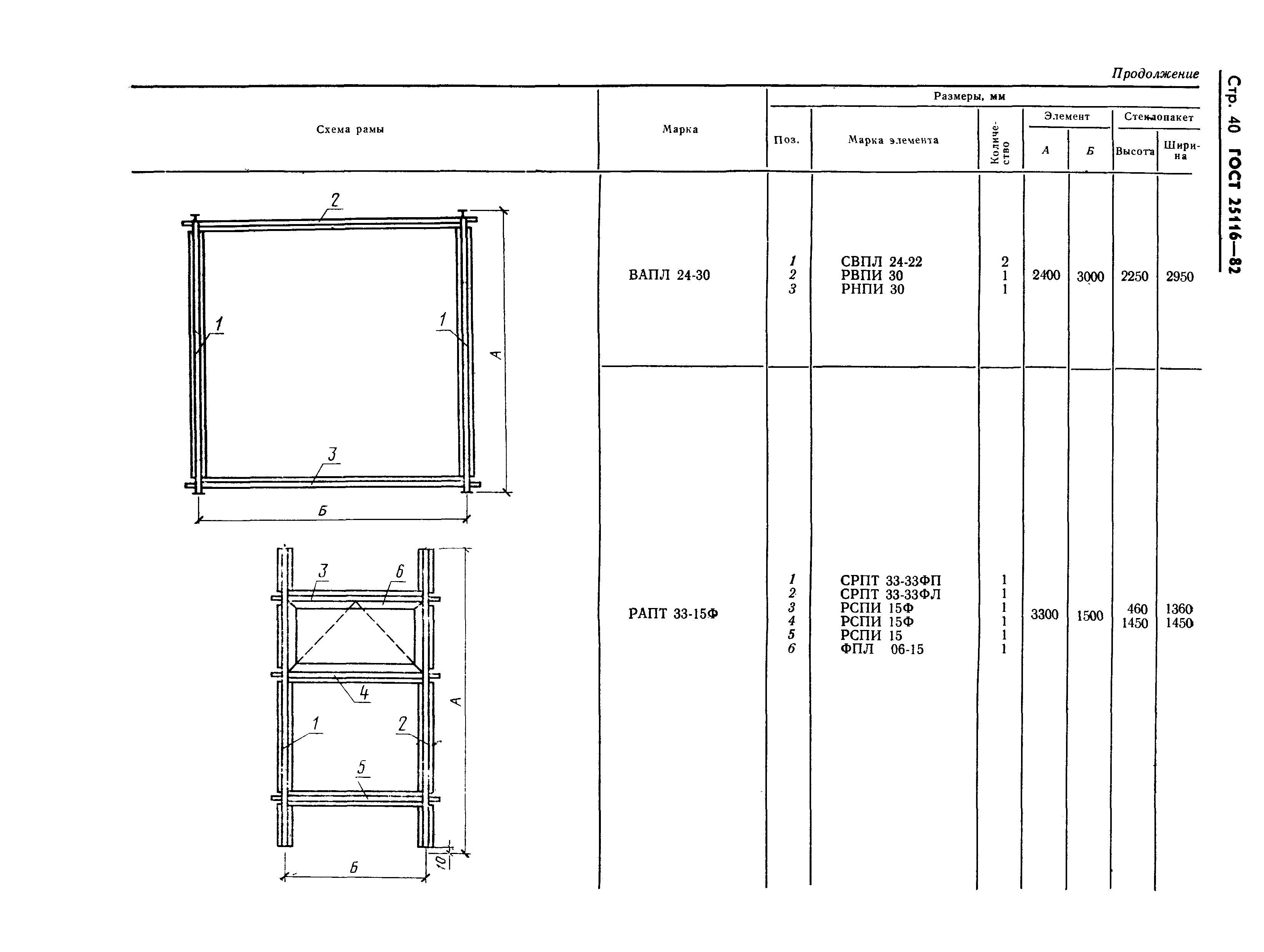
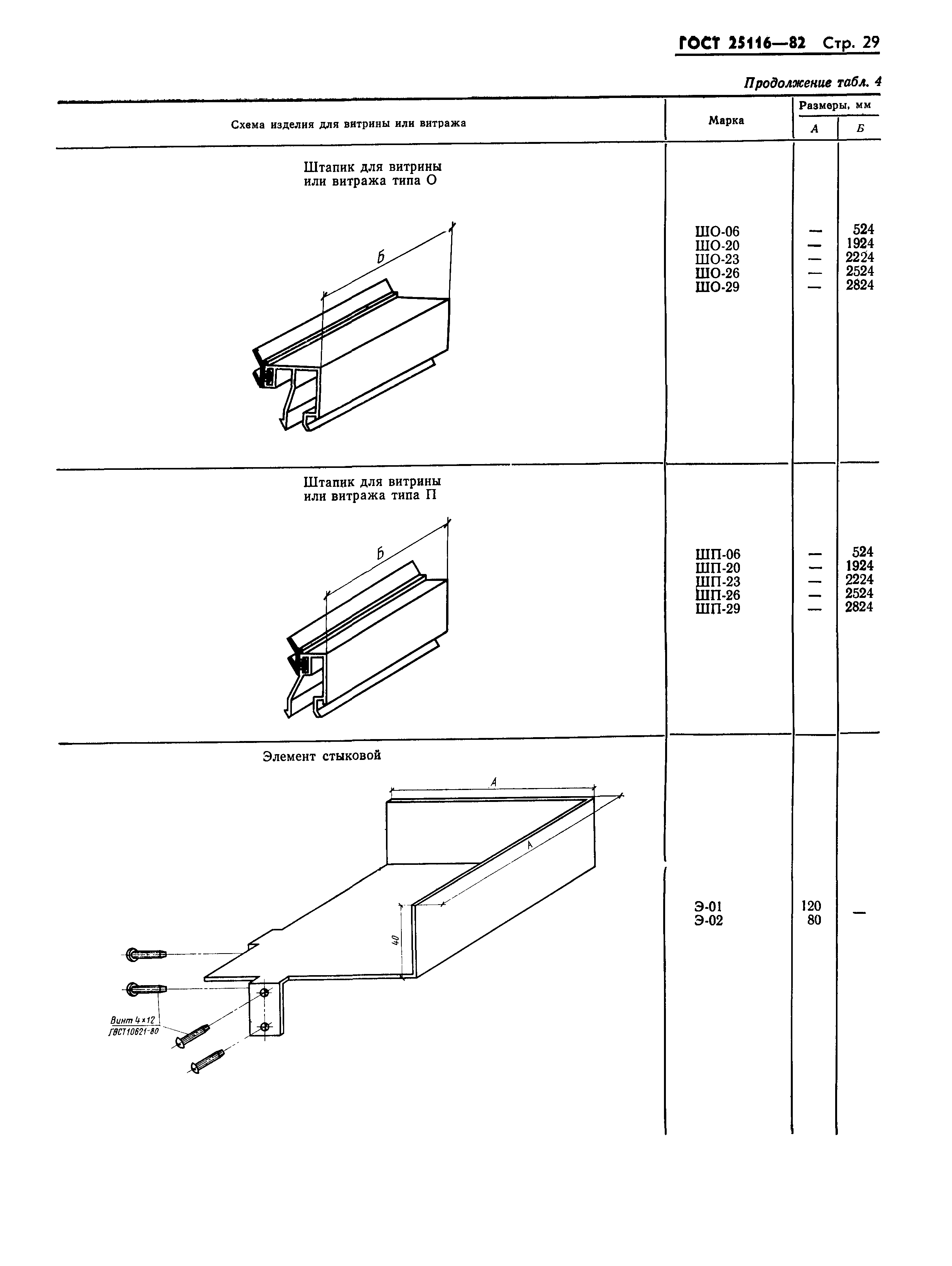
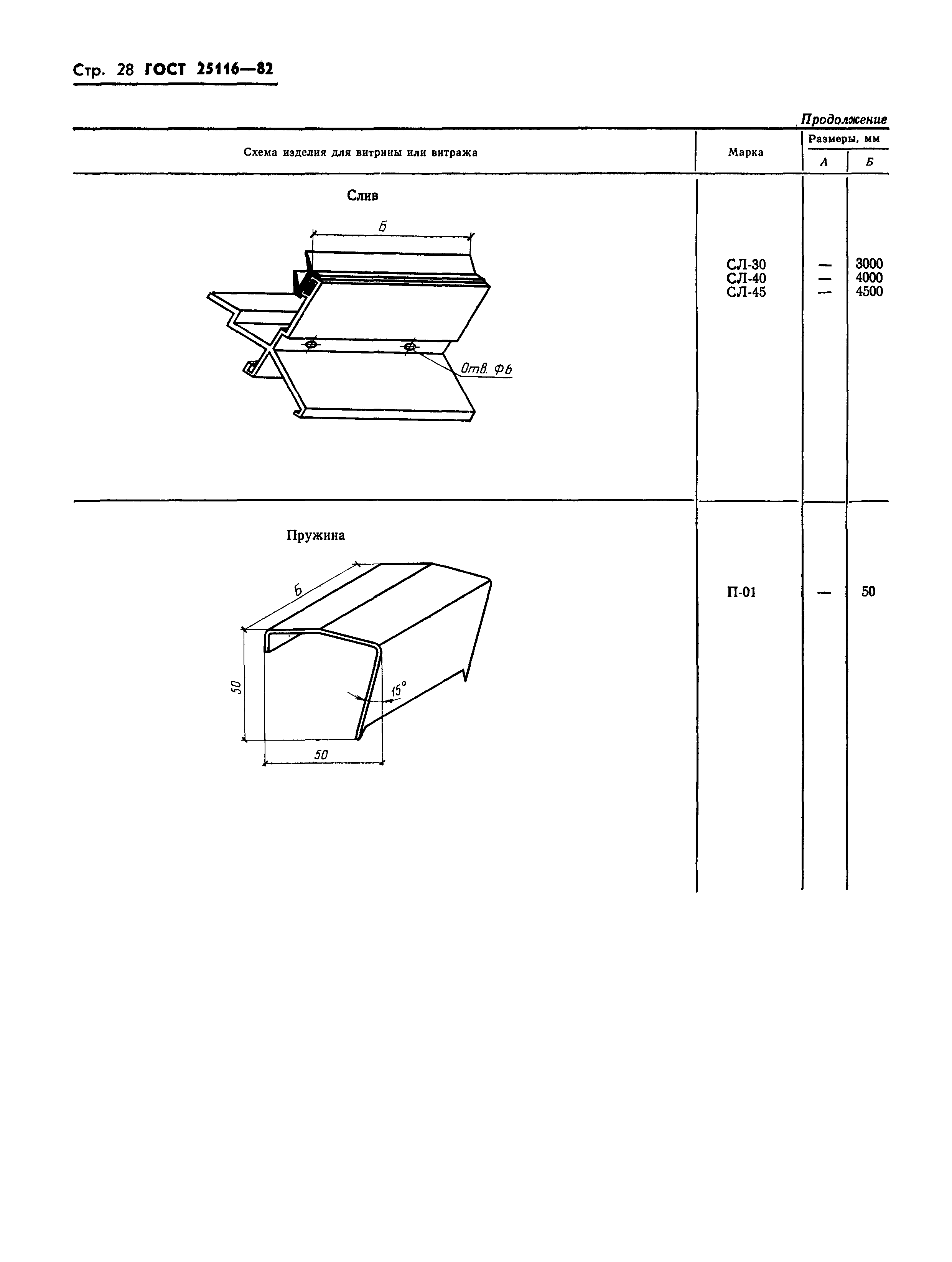
| Название рус.: | Витрины и витражи из алюминиевых сплавов. Типы, конструкции и размеры |
| Название англ.: | Aluminium shop-windowes. Types, construction and dimensions |
| Дата актуализации текста: | 06.04.2015 |
| Дата актуализации описания: | 01.07.2023 |
| Дата издания: | 25.10.1982 |
| Дата введения: | 01.01.1984 |
| Дата окончания срока действия: | 01.07.1995 |
| Код ОКП: | 527130 |
| Нормативные ссылки: | ГОСТ 7380-77; ГОСТ 13454-77; ГОСТ 21519-76 |
| Список изменений: | №0 от 01.07.1995 (рег. 07.04.1995) «Поправка к изменению» №1 от 01.07.1988 (рег. 20.01.1988) «Срок действия продлен» |
|