| Обозначение: |  ГОСТ 21.603-80 |
| Статус: | не действует в РФ |
| Название рус.: | Система проектной документации для строительства. Связь и сигнализация. Рабочие чертежи |
| Название англ.: | System of building design documents. Communication and signaling. Working drawings |
| Дата актуализации текста: | 06.04.2015 |
| Дата актуализации описания: | 01.07.2023 |
| Дата издания: | 29.06.1981 |
| Дата введения: | 01.07.1981 |
| Дата окончания срока действия: | 01.11.2000 |
| На территории РФ пользоваться: | ГОСТ Р 21.1703-2000 |
| Нормативные ссылки: | ГОСТ 21.109-80 |
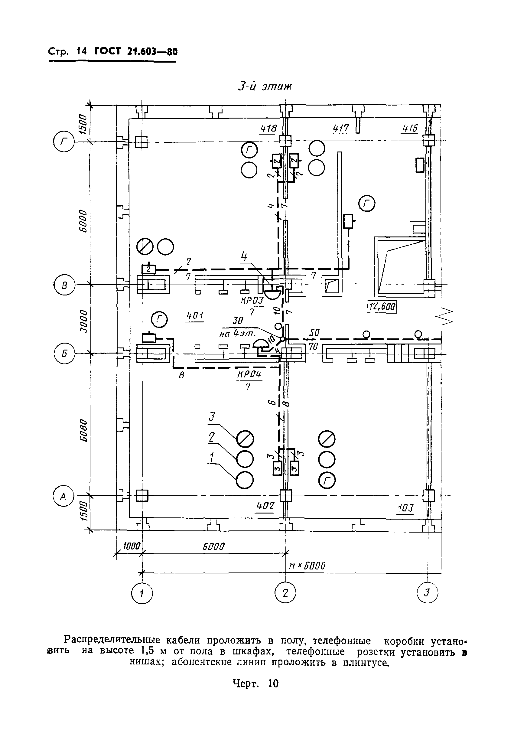
| Область применения: | Настоящий стандарт устанавливает состав и правила оформления рабочих чертежей и сигнализации для предприятий, зданий и сооружений всех отраслей промышленности и народного хозяйства |
| Список изменений: | №0 от 01.11.2000 (рег. 24.08.2000) «Поправка к изменению» |
|