| Обозначение: |  ГОСТ 21.510-83 |
| Статус: | не действует в РФ |
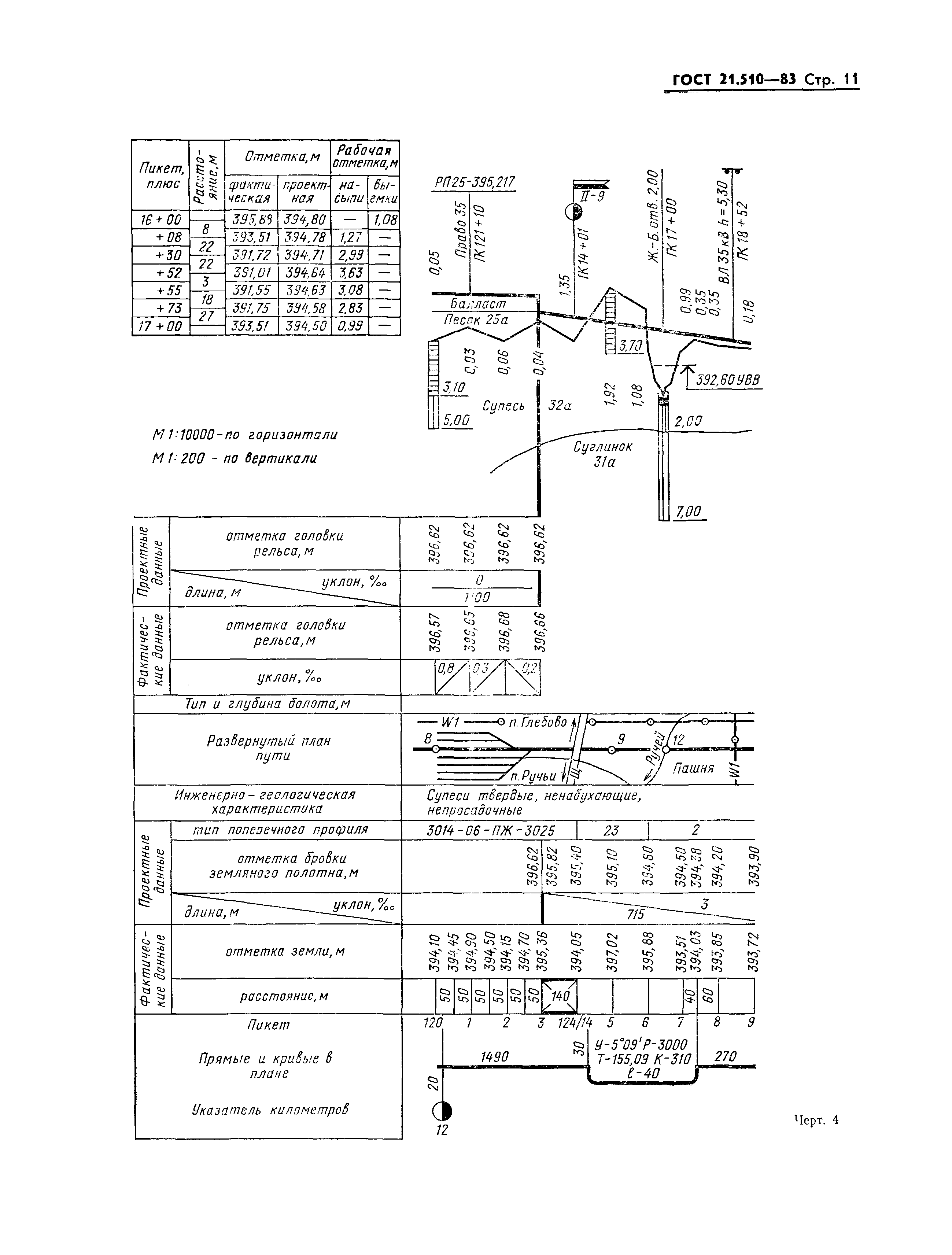
| Название рус.: | Система проектной документации для строительства. Пути железнодорожные. Рабочие чертежи |
| Название англ.: | System of design for construction. Railway tracks. Working drawings |
| Дата актуализации текста: | 06.04.2015 |
| Дата актуализации описания: | 01.07.2023 |
| Дата издания: | 24.11.1983 |
| Дата введения: | 01.01.1984 |
| Дата окончания срока действия: | 01.01.1997 |
| На территории РФ пользоваться: | ГОСТ 21.702-2013 |
| Нормативные ссылки: | ГОСТ 2.303-68; ГОСТ 21.102-79 |
| Область применения: | Настоящий стандарт устанавливает состав и правила оформления рабочих чертежей новых и реконструируемых железнодорожных путей |
| Список изменений: | №0 от 01.01.1997 (рег. 28.07.1996) «Поправка к изменению» №1 от 01.01.1986 (рег. 31.01.1985) «Срок действия продлен» №1 от 01.01.1986 (рег. 12.12.1984) «Срок действия продлен» |
|