Скачать ГОСТ 17729-93 Изделия текстильно-галантерейные. Кружева, кружевные, гардинные и тюлевые полотна, гипюр, шитье. Метод определения изменения линейных размеров после мокрой обработкиДата актуализации: 01.06.2025 ГОСТ 17729-93
Изделия текстильно-галантерейные. Кружева, кружевные, гардинные и тюлевые полотна, гипюр, шитье. Метод определения изменения линейных размеров после мокрой обработки
| Обозначение: |  ГОСТ 17729-93 |
| Статус: | заменён |
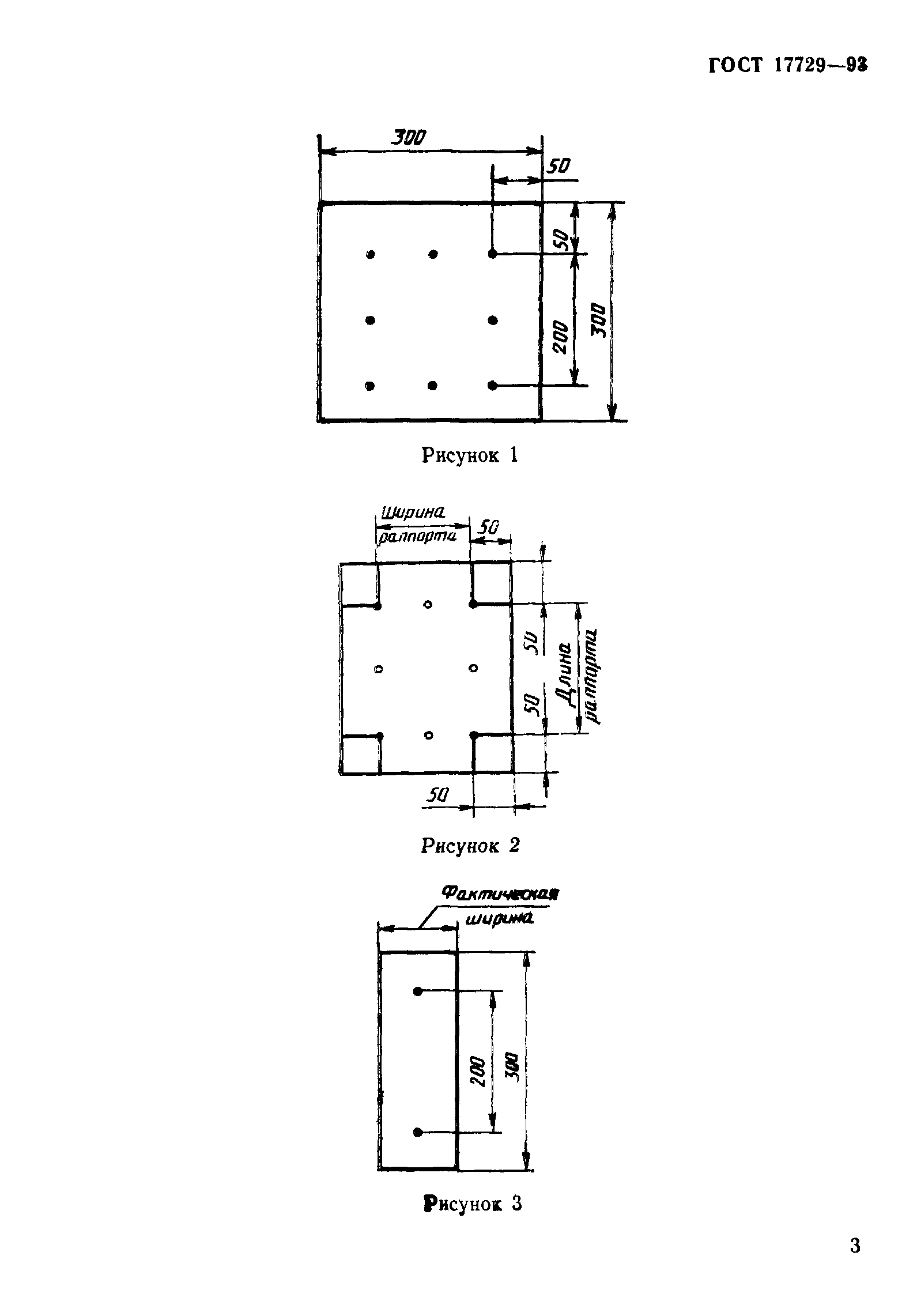
| Название рус.: | Изделия текстильно-галантерейные. Кружева, кружевные, гардинные и тюлевые полотна, гипюр, шитье. Метод определения изменения линейных размеров после мокрой обработки | | Название англ.: | Smallwares. Laces, lace, curtain and curtain lace cloths, guipure, embroidery. Method of determining change in linear dimensions after wet treatments | | Дата актуализации текста: | 06.04.2015 | | Дата актуализации описания: | 01.07.2023 | | Дата регистрации: | 15.04.1994 | | Дата издания: | 04.04.1995 | | Дата введения: | 01.01.1996 | | Дата окончания срока действия: | 01.01.2002 | | Код ОКП: | 815500;815600 | | Взамен: | ГОСТ 17729-72 | | Заменяющий: | ГОСТ 30157.0-95 | | Нормативные ссылки: | ГОСТ 307-81; ГОСТ 427-75 ; ГОСТ 8844-75; ГОСТ 10681-75; ГОСТ 16218.0-93; ГОСТ 20566-75; ГОСТ 24104-88; ГОСТ 29298-92 | | Область применения: | Настоящий стандарт распространяется на кружева, кружевные, гардинные и тюлевые полотна, гипюр, шитье, вырабатываемые из хлопчатобумажной пряжи, химических волокон, смешанной пряжи, комплексных и текстурированных химических нитей и устанавливает метод определения изменения линейных размеров после мокрой обработки | |
        
|