| Обозначение: |  ГОСТ 11214-86 |
| Статус: | заменён |
| Название рус.: | Окна и балконные двери деревянные с двойным остекленением для жилых и общественных зданий. Типы, конструкция и размеры |
| Название англ.: | Wooden windows and balcony doors for dwellings and public buildings |
| Дата актуализации текста: | 06.04.2015 |
| Дата актуализации описания: | 01.01.2021 |
| Дата издания: | 01.06.1988 |
| Дата введения: | 01.01.1987 |
| Дата окончания срока действия: | 01.03.2004 |
| Код ОКП: | 536131 |
| Взамен: | ГОСТ 11214-78 |
| Заменяющий: | ГОСТ 11214-2003 |
| Нормативные ссылки: | ГОСТ 111-78 |
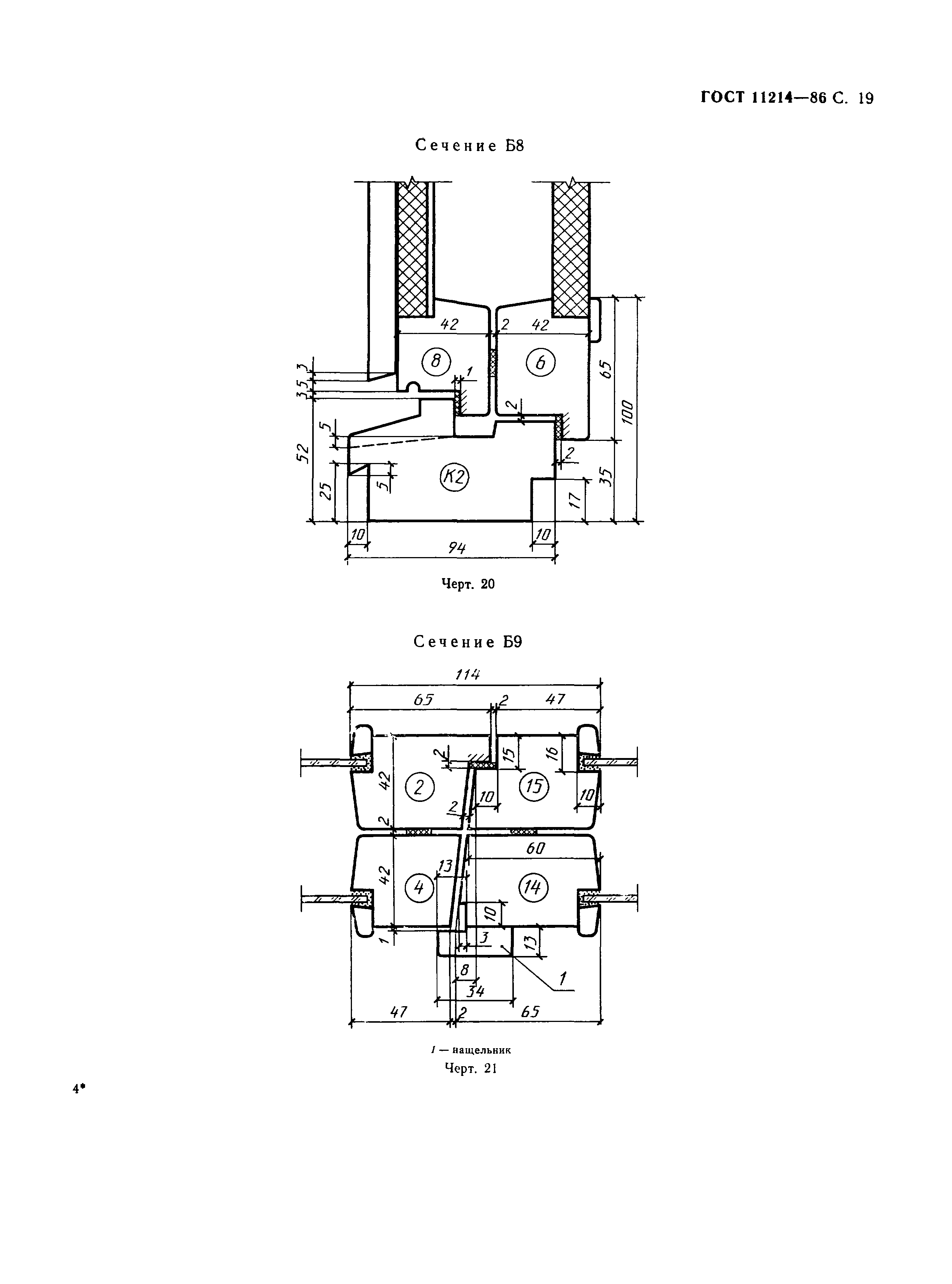
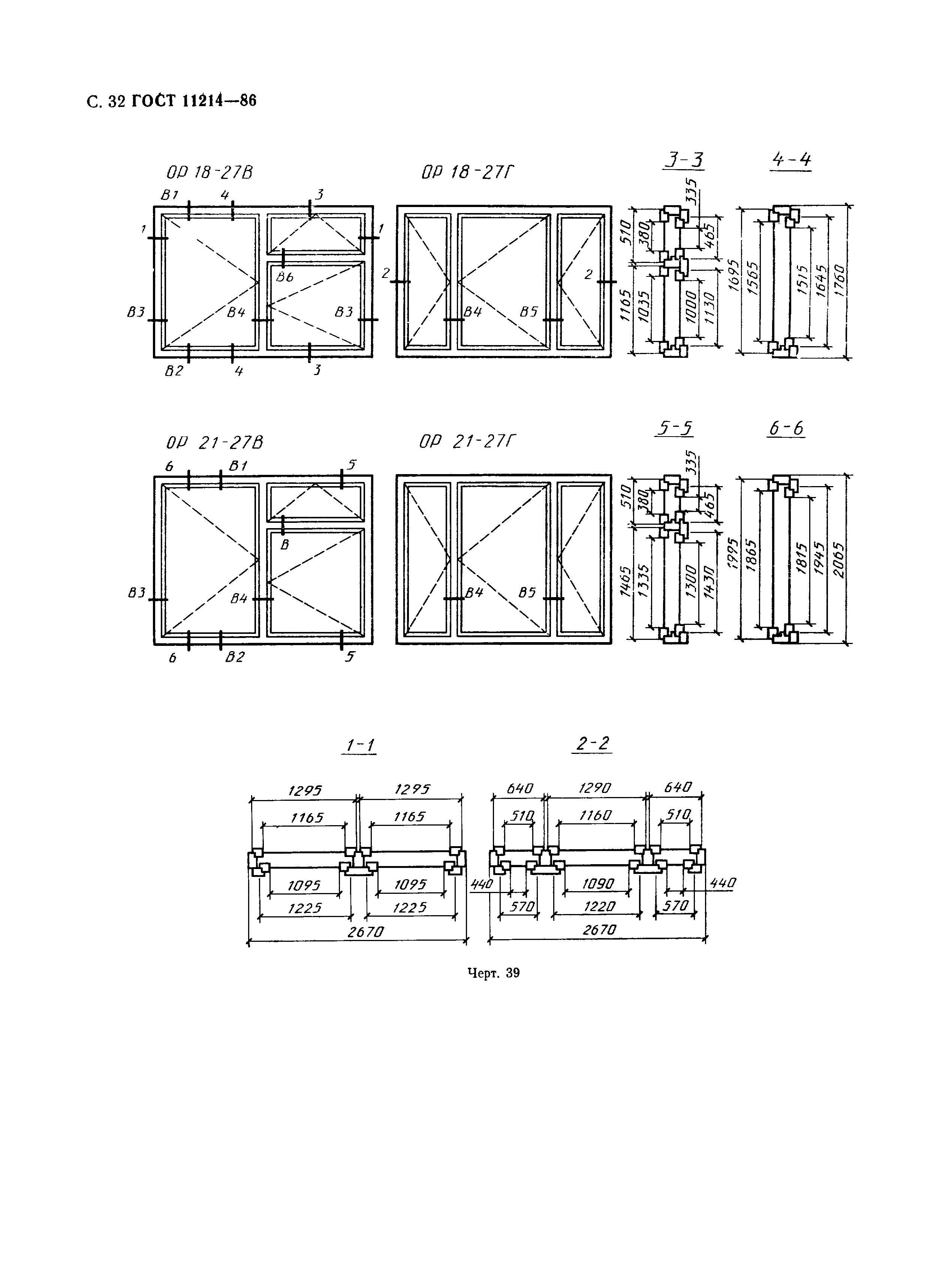
| Область применения: | Настоящий стандарт распространяется на деревянные окна и балконные двери с двойным остекленением, предназначаемые для жилых и общественных зданий, а также для вспомогательных зданий и помещений предприятий различных отраслей народного хозяйства |
|