| Обозначение: |  ГОСТ 28051-89 |
| Статус: | действующий |
| Название рус.: | Протяжки с навертным хвостовиком для шлицевых отверстий с эвольвентным профилем диаметром от 70 до 130 мм модулем от 3 до 5 мм с центрированием по наружному диаметру двухпроходные. Конструкция |
| Название англ.: | Broaches with diameter from 70 to 130 mm for slitting holes with involute profile with round tail and centring at outside diameter with modul from 3 to 5 mm. Construction |
| Дата актуализации текста: | 06.04.2015 |
| Дата актуализации описания: | 01.07.2023 |
| Дата издания: | 03.10.1989 |
| Дата введения: | 01.07.1990 |
| Код ОКП: | 392330 |
| Нормативные ссылки: | ГОСТ 2475-62; ГОСТ 4044-70; ГОСТ 6033-80; ГОСТ 6767-79; ГОСТ 14034-74; ГОСТ 20365-74 |
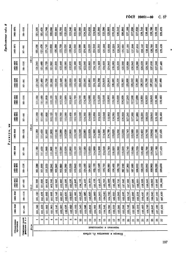
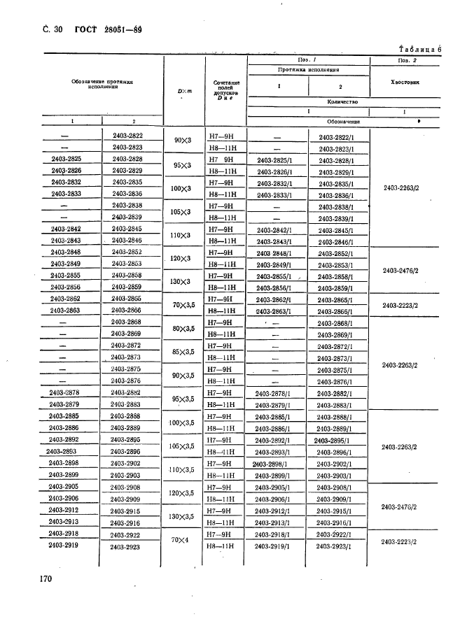
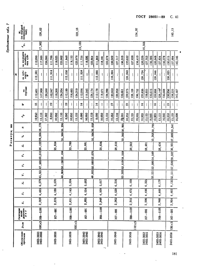
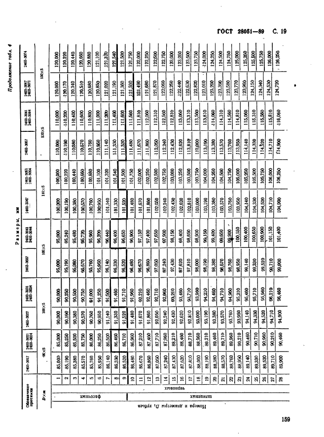
| Область применения: | Настоящий стандарт распространяется на двухпроходные протяжки универсального назначения с навертным хвостовиком диаметром D от 70 до 130 мм модулем m от 3 до 5 мм, предназначенные для обработки шлицевых втулок с эвольвентным профилем по ГОСТ 6033 с центрированием по наружному диаметру |
|