Скачать ГОСТ 8713-79 Сварка под флюсом. Соединения сварные. Основные типы, конструктивные элементы и размерыДата актуализации: 01.06.2025
| ||||||||||||||||||||||||||||||||||
| Обозначение: | ![]() ГОСТ 8713-79 |
| Статус: | действующий |
| Название рус.: | Сварка под флюсом. Соединения сварные. Основные типы, конструктивные элементы и размеры |
| Название англ.: | Flux welding. Welded joints. Main types design elements and dimensions |
| Дата актуализации текста: | 06.04.2015 |
| Дата актуализации описания: | 01.07.2023 |
| Дата издания: | 01.01.2007 |
| Дата введения: | 01.01.1981 |
| Код ОКП: | 060200 |
| Взамен: | ГОСТ 8713-70 |
| Нормативные ссылки: | ГОСТ 11969-93; ГОСТ 16037-80 |
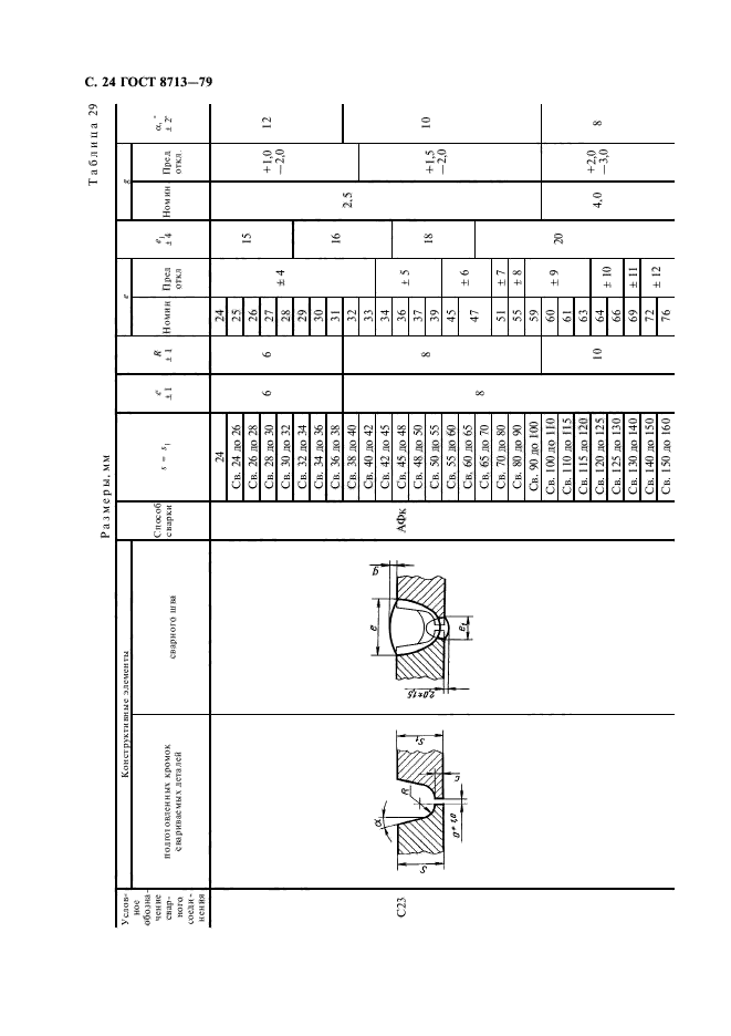
| Область применения: | Настоящий стандарт распространяется на соединения из сталей, а также сплавов на железоникелевой и никелевой основах, выполняемых сваркой под флюсом, и устанавливает основные типы, конструктивные элементы и размеры сварных соединений. Стандарт не распространяется на сварные соединения стальных трубопроводов по ГОСТ 16037 |
| Список изменений: | №0 от 01.06.2007 (рег. 01.06.2007) «Дата введения перенесена» №1 от 01.01.1987 (рег. 26.08.1986) «Срок действия продлен» №2 от 01.03.1989 (рег. 03.01.1989) «Срок действия продлен» №3 от 01.01.1991 (рег. 02.07.1990) «Срок действия продлен» |
| Приложение №1: | Поправка к ГОСТ 8713-79 |









































| Обозначение: | Поправка к ГОСТ 8713-79 |
| Дата введения: | 01.06.2007 |
