ПРАВИТЕЛЬСТВО МОСКВЫ

МОСКОМАРХИТЕКТУРА

 

ПОСОБИЕ
к МГСН 4.05-95

ШКОЛЫ-ИНТЕРНАТЫ
ДЛЯ ДЕТЕЙ-ИНВАЛИДОВ

Москва - 1996

 

 

ПРЕДИСЛОВИЕ

1. РАЗРАБОТАНО МНИИП объектов культуры, отдыха, спорта и здравоохранения Москомархитектуры (канд. арх. Тхор Э.А. инженеры Герасина Л.А., Тихомирова И.Б.)

2. ПОДГОТОВЛЕНО к изданию Архитектурно-техническим Управлением Москомархитектуры (архитектор Шалов Л.А., инженер Щипанов Ю.Б.)

3. СОГЛАСОВАНО с Комитетом образования г. Москвы, Управлением архитектурного совета и согласования проектов Москомархитектуры, Мосгосэкспертизой, Комитетом социальной защиты населения г. Москвы

4. УТВЕРЖДЕНЫ указанием Москомархитектуры от 22.11.96 № 17.

 

СОДЕРЖАНИЕ

Общие положения. 1

2. Концептуальные положения проектирования школ-интернатов для детей-инвалидов. 2

3. Общие требования. 5

3.1. Функциональные требования. 6

3.2. Эргонометрические требования. 7

3.3. Требования к устройствам и приспособлениям.. 8

4. Требования к помещениям проживания. 20

5. Требования к помещениям учебно-профессиональной подготовки. 31

6. Требования к помещениям медицинского обслуживания. 59

7. Требования к помещениям культурно-массового обслуживания. 89

8. Требования к помещениям питания. 95

Приложение Лечебно-игровые площадки. 98

ОБЩИЕ ПОЛОЖЕНИЯ

1. Настоящее Пособие разработано в развитие и дополнение МГСН 4.05-85 «Школы-инернаты для детей-инвалидов».

2. В Пособии на основе МГСН 4.05-95 даны развернутые рекомендации по проектированию школ-интернатов для детей-инвалидов. Текст рекомендаций снабжен функциональными и планировочными схемами участков, зданий и помещений школ-интернатов, а также схемами оборудования помещений и размещения приспособлений, облегчающих условия обучения и воспитания детей-инвалидов, а также оздоровления и ухода за ними.

3. В Пособии приведены требования к проектированию школ-интернатов следующего назначения:

- для умственно отсталых детей;

- для слепых и слабовидящих детей;

- для глухих и слабослышащих детей;

- для детей с нарушениями опорно-двигательного аппарата;

- для детей больных сколиозом;

- для детей с недостатками речи.

2. КОНЦЕПТУАЛЬНЫЕ ПОЛОЖЕНИЯ ПРОЕКТИРОВАНИЯ ШКОЛ-ИНТЕРНАТОВ ДЛЯ ДЕТЕЙ-ИНВАЛИДОВ

Школы-интернаты входят в систему учебно-воспитательных учреждений, занимая место между домами-интернатами для детей-инвалидов и общеобразовательными учреждениями для практически здоровых детей.

На современном этапе развития общественного сознания, характеризующимся формированием отношения к инвалидам как к равноправным и полноценным членам общества, главной задачей в области проектирования для них является создание безбарьерной среды, начиная с детского возраста, а также качественно новых учебно-воспитательных комплексов и зданий, учитывающих выработанные мировым сообществом требования доступности для инвалидов городских зданий, сооружений и комплексов.

Зарубежный опыт, а также практика последних лет отдельных городов России и СНГ показали, что главным результатом педагогического и оздоровительного процессов в школах-интернатах должны стать социальная и трудовая адаптация ребенка с аномальным развитием, приобретение им бытовых навыков, приспособленность к жизни, профессиональная ориентация. Это даст ребенку-инвалиду возможность адаптироваться в обществе, не быть для него обузой в будущем.

Сложившаяся система учреждений для инвалидов не учитывает разнообразия индивидуальных потребностей детей и подростков инвалидов, она заставляет их «вписываться» в ее крайне ограниченные возможности. С учетом этого основная задача настоящего документа - развитие нормативно-методической базы для проектирования и строительства школ-интернатов для детей-инвалидов, более полно соответствующих современным требованиям к организации и осуществлению процессов воспитания, оздоровления, обучения в этих учреждениях.

В Пособии разработаны как общие требования к проектированию школ-интернатов для детей-инвалидов, так и специфические требования для каждого из шести типов учреждений, представленных в настоящем документе (см. раздел 1 п. 3).

Школы-интернаты для детей-инвалидов проектируются универсальными - для пребывания детей, живущих в семьях, и для проживания детей-сирот. Соответственно, учреждения могут работать в режиме круглогодичного (включая каникулы) пребывания, недельного (с уходом домой на выходные дни) и дневного пребывания (с ежедневным уходом домой). Соотношение детей, находящихся на различных режимах пребывания, определяется в каждом конкретном случае заданием на проектирование.

Одной из наиболее важных проблем организации пребывания детей в школах-интернатах является проблема формирования детской группы. Пребывание большого числа детей в учреждении в течение длительного времени создает в коллективах детей с недостатками умственного и физического развития, наиболее уязвимых в нервно-психическом плане, социологическое и психологическое напряжение, а также ряд других проблем.

Медиками и психологами выявлено, что эффективность действия воспитательных и адаптационных процессов в группах детей выше, чем эффективность тех же процессов применительно к отдельному ребенку. При этом важно определить оптимальную численность первичной организованной детской группы, которая бы создала благоприятные условия для процессов, происходящих в учреждении. В психологии существует понятие филицитации (облегчения протекания различных групповых процессов), которое в последнее время широко учитывается в терапии и педагогике, в частности при определении количественного состава детских групп в интернате.

На основании исследований, проведенных врачами, социологами, психологами и педагогами, а также данных натурных обследований и данных зарубежной практики, определено, что для групп-классов детей школьного возраста оптимальная численность колеблется от 8 до 12 человек в зависимости от вида заболевания, а для дошкольного отделения (см. МГСН 4.05-95 п. 3.2, примечание 1) наиболее оптимальной считается группа из 6 - 8 чел.

Далее такие группы могут объединяться в более крупные (секции, отделения), величина которых зависит от вида заболевания и возраста детей.

Существенное значение имеет учет эмоциональных и психодвигательных потребностей ребенка. Удовлетворение эмоционально-двигательной активности детей (с учетом вида заболевания) - необходимое условие эффективности обучения и воспитания и зависит от организации среды пребывания в здании и на территории.

Помещения проживания детей должны обеспечивать обстановку, приближенную к семейной, что особенно необходимо детям-сиротам и детям из неблагополучных семей. В этой связи предусматривается организация учебно-жилых ячеек, рассчитанных на проживание и проведение учебных и игровых занятий, что благоприятно сказывается на психике детей и помогает сплачиванию коллектива. Вместимость спальных комнат для детей школьного возраста сокращена до 3 - 4 мест, при каждой спальной комнате предусматривается санитарный узел.

В составе школ-интернатов для детей-инвалидов предусматриваются учебно-воспитательные помещения, куда кроме собственно учебных помещений входят помещения для профессиональной подготовки и социальной адаптации. Состав учеников в группах формируется по возрастному принципу, а для детей старшего школьного возраста еще и по профессиональным склонностям.

Таким образом, учебно-образовательный процесс является частью непрерывного процесса воспитания детей и подростков с недостатками умственного и физического развития, с главным упором на их социальную адаптацию, приобретение профессиональных навыков. На учебно-образовательный процесс в учреждениях для детей-инвалидов оказывают существенное влияние современные направления в педагогике, которые можно сформулировать следующим образом:

- отказ от авторитарного метода преподавания, ликвидация условного барьера, по разные стороны которого находятся учитель и ученики;

- переход от игры, свободного товарищеского общения между учителем и учениками к совместной работе по овладению знаниями, профессией;

- отношение к каждому ребенку или подростку, как к личности, оказание максимальной помощи в раскрытии его индивидуальных возможностей;

- стремление сделать учебно-образовательный процесс интересным, увлекательным занятием, предоставление ученику права выбора интересующих его предметов и отказ от предметов, не соответствующих его склонностям.

Учебно-образовательный процесс строится с учетом индивидуальных возможностей детей. В школах-интернатах различных типов есть одаренные дети, и есть дети, которые с трудом за время учебы овладевают грамотой. В то же время такие дети успешно осваивают навыки отдельных ремесел - шитье, вышивание, плетение и т.п. Есть дети, которые за время пребывания в школе-интернате овладевают знаниями и профессией и в то же время в силу своих индивидуальных психических особенностей не способны к социальной адаптации в обществе. Все это учитывается при разработке индивидуальных программ учебно-образовательного процесса.

Оздоровление ориентировано на общее физическое развитие детей, закаливание, повышение способности детского организма противостоять вредному влиянию окружающей среды. Комплексная программа оздоровления детей-инвалидов включает следующие положения:

- отказ от казарменных условий проживания;

- смягчение жестокости общей зарегулированности режима дня, предоставление возможности группам и отдельным детям и подросткам проводить свободное время в зависимости от индивидуальных интересов и потребностей;

- проведение мероприятий профилактического закаливания, привитие привычек здорового образа жизни;

- проведение максимального числа занятий на свежем воздухе.

Состав медицинских кабинетов ориентирован как на оказание детям и подросткам текущей медицинской помощи, так и на их медицинскую реабилитацию. При этом учитывается специфика методов лечения детей с различными видами инвалидности. Для оздоровительных и профилактических мероприятий предусматриваются зал лечебной физкультуры, бассейн и др.

В состав помещений культурно-массового обслуживания включаются зрительный зал со сценой и кинопроекционной, фойе - выставочный зал, кружковые помещения.

В состав обслуживающих помещений также входят административно-хозяйственные помещения, кухня, буфет или столовая персонала.

В составе школ-интернатов могут размещаться школы подготовки кадров для работы в данной отрасли. Для этого в группе административных помещений предусматриваются один - два класса-аудитории для проведения занятий, кабинет заведующего, комната педагогов с помещением для учебных пособий.

Таким образом, в состав школ-интернатов входят следующие основные группы помещений:

- помещения проживания детей;

- помещения учебно-профессиональной подготовки и социальной адаптации;

- помещения обслуживания (включающие помещения культурно-массового, медицинского, административно-бытового обслуживания, помещения обеспечивающие питание детей и персонала);

- изолятор, приемно-карантинное отделение;

- хозяйственные помещения.

В соответствии с требованиями СНиП 2.08.02-89* «Общественные здания и сооружения» школы-интернаты (за исключением школ для слепых и слабовидящих детей) проектируются с учетом доступности для инвалидов-колясочников. При этом в специализированных учреждениях для инвалидов с поражением опорно-двигательного аппарата число колясочников составляет - 20 - 30 %, а в остальных учреждениях - 2 - 3 %. Наличие инвалидов-колясочников учитывается при проектировании как всего здания (ширины коридоров, проходов, наличие специальных лифтов), так и отдельных помещений (место для стоянки коляски, возможность ее разворота, специальные приспособления для инвалидов и т.п.).

Таким образом, с точки зрения обеспечения обслуживания инвалидов-колясочников школы-интернаты можно разделить на следующие типы:

1. Специализированные школы-интернаты для детей с поражением опорно-двигательного аппарата, в которых все помещения, включая классные комнаты, рассчитываются на инвалидов-колясочников.

2. Школы-интернаты для слепых и слабовидящих детей, помещения которых, за исключением служебно-административных, лифтов, мест общего пользования, коммуникаций и т.п., не рассчитываются на инвалидов-колясочников.

3. Остальные типы школ-интернатов, в которых все помещения, за исключением 85 - 90 % спальных комнат, рассчитываются на инвалидов-колясочников.

Общий концептуальный подход к проектированию самих зданий школ-интернатов и отдельных групп помещений ориентирован на создание детям и подросткам с недостатками умственного и физического развития комфортной среды обитания, максимально исключающей физические и нервные перегрузки. Содействие этому процессу - одно из условий организации пространства и оборудования помещений.

Большое значение имеет для детей приближение к природе, связь с ландшафтом, особенно тех помещений, где ребенок в основном проводит дневное время. Поэтому применение малоэтажной павильонной или блочной системы застройки является условием правильной функциональной организации архитектурного пространства для данного типа учреждения.

Настоящее Пособие разработано в помощь проектировщикам школ-интернатов для детей-инвалидов.

При этом в Пособии рассматриваются вопросы, которые не нашли отражения в существующих нормативных документах:

- планировка помещений, учитывающая специфику отдельных видов инвалидности, а также потребности инвалидов-колясочников;

- планировка помещений, новых для данного типа учреждения;

- планировка помещений, учитывающая новые функциональные требования к обслуживанию инвалидов.

Помещения, не являющиеся специфическими для данного типа учреждений, например, административно-бытовые помещения, производственные помещения кухни, подсобные помещения и т.п., в Пособии не рассматриваются и проектируются в соответствии с требованиями действующих норм к аналогичного типа помещениям.

3. ОБЩИЕ ТРЕБОВАНИЯ

Общие требования к проектированию школ-интернатов, учитывающие потребности детей-инвалидов, разделены на три основные группы:

- функциональные требования;

- эргонометрические требования;

- требования к устройствам и приспособлениям.

3.1. Функциональные требования

Функциональные требования - это требования к функционально-планировочной организации здания и к функциональному зонированию территории. Для детских учреждений требование необходимой изоляции отдельных групп детей - одно из самых важных. Наиболее жесткие требования обособления предъявляются к спальным помещениям (помещениям проживания), в частности их не допускается проектировать проходными.

Существенным элементом функционального зонирования и функциональной взаимосвязи отдельных групп помещений школ-интернатов являются так называемые «нейтральные зоны» - планировочные элементы здания, не принадлежащие ни к одной основной функциональной группе помещений. Как правило, в нейтральной зоне располагаются горизонтальные и вертикальные коммуникационные развязки - вестибюли, холлы, лестницы, пандусы, лифты.

На Рис. 3.1 приводится принципиальная схема функциональной взаимосвязи отдельных групп помещений школы-интерната для детей-инвалидов, все группы помещений которой достаточно изолированы и одновременно удобно связаны между собой через нейтральную зону. На практике обеспечить всем группам помещений необходимую обособленность достаточно сложно. Поэтому допустимо некоторые группы помещений, исключая спальные, предусматривать проходными. Наиболее безболезненно для нормального функционирования учреждения проходными могут быть административно-бытовые, медицинские помещения и помещения учебно-профессиональной подготовки.

На Рис. 3.2 приводятся примеры некоторых возможных объемно-планировочных решений школ-интернатов для детей-инвалидов, в которых связь по первому этажу предусматривается через коридоры административно-бытовых и медицинских помещений.

В рамках приведенных примеров возможно решение, когда связывающий отдельные группы коридор остается незастроенным, а административно-бытовые помещения выносятся в отдельный блок или даже в отдельный корпус. С функциональной точки зрения это решение более чистое. Но это менее рациональный прием, поскольку значительно усложняется конфигурация здания, удлиняются функциональные связи и увеличивается стоимость строительства и эксплуатации.

Приведенные на Рис. 3.2. схемы иллюстрируют некоторые примеры возможных объемно-планировочных решений в рамках технологических требований. Возможны принципиально другие решения с соблюдением необходимых требований технологии.

Функциональное зонирование территории детских учреждений имеет свою специфику. Согласно МГСН 4.05-95 (п. 4.2) на территории школы-интерната для детей-инвалидов должны быть выделены следующие основные зоны:

- зона проживания и обучения с расположенными в ней игровыми площадками, теневыми навесами, спортивными площадками;

- зона обслуживания с площадкой при кухне;

- зона изолятора, приемного и карантинного отделений;

- зона огорода, ягодника, живого уголка;

- хозяйственная зона.

На основании требований МГСН 4.05-95 расчетный показатель площади участков (п. 4.1) составляет 140 - 160 м2 на одного ребенка при вместимости менее 160 мест и 120 - 140 м2 на 1 место при вместимости свыше 160 мест. Таким образом, для учреждений вместимостью 150 - 160 мест, наиболее распространенных в практике проектирования, общая площадь участка составит 2,2 - 2,4 га.

Как показывает практика, подобрать участок такого размера в московских условиях довольно затруднительно. Поэтому, допустимо использовать следующие возможности уменьшения территории:

- сокращение площади на 15 - 20 % (Примечание к п. 4.1 МГСН 4.05-95);

- сокращение общей вместимости учреждения; при этом возможно разделение учреждений на 2 типа: учреждений, приближенных к месту проживания (для приходящих детей), и учреждений, вынесенных за пределы города (для детей-сирот);

- повышение этажности здания до четырех в соответствии с п. 3.6 (Примечание);

- максимально возможное использование подземного пространства для хозяйственно-административных помещений.

Важный вопрос - размещение игровых групповых площадок с теневыми навесами. Учитывая, что численность детей в группах относительно небольшая (6 - 8 человек для дошкольников и 8 - 12 для школьников), игровые площадки в целях экономии территории целесообразно блокировать (на 2 - 4 группы). При этом количество площадок зависит от конкретного возрастного состава детей школы-интерната. Группы для дошкольников должны быть обеспечены площадками полностью; игровые площадки для детей школьного возраста могут обеспечивать только 40 - 50 % этого контингента учеников.

Изолятор и приемно-карантинное отделение предпочтительно располагать в отдельном корпусе со своей зоной участка, обеспеченной удобным подъездом. Этот корпус должен быть по возможности отдален от спальных помещений и игровых площадок и удобно связан с кухней.

Площадка при кухне может быть совмещена с хозяйственной зоной, входить в ее состав.

В состав сооружений рекомендуется включать аэросолярий, который должен быть размещен в окружении зелени и ориентирован на юг или восток.

Кроме групповых игровых площадок на участке рекомендуется предусматривать общую лечебно-игровую площадку, в которой наряду с игровыми элементами, в зависимости от профиля учреждения могут размещаться устройства, имеющие лечебное назначение (см. Приложение).

В зоне огорода-ягодника, живого уголка возможно предусматривать теплицы.

На участок предусматривают два въезда - главный и хозяйственный. При этом подъезд к приемно-карантинному отделению и изолятору может быть предусмотрен как с главного, так и с хозяйственного въезда. При приемно-карантинном отделении следует предусмотреть возможность кратковременной стоянки и разворота автомашины. Длительная стоянка автотранспорта предусматривается в хозяйственной зоне, в которой могут располагаться гараж, мойка и т.п.

Для требуемого противопожарными нормативами объезда вокруг здания не обязательно использовать дороги с твердым покрытием. Такой объезд может быть предусмотрен через газоны, а также через участки с гравийным покрытием.

На Рис. 3.3 приведены примеры возможных планировочных решений территории школы-интерната для детей-инвалидов.

3.2. Эргонометрические требования

Эргонометрические требования обуславливают размеры пространства, необходимого для функционирования детей-инвалидов, в том числе и колясочников. Сюда относятся ширина проходов, коридоров, дверных проемов, лестниц, пандусов, необходимые размеры разворотов, поворотов и т.п., которые определяют основные габариты помещений, а также специфические требования к организации пространства для разных категорий инвалидов. При разработке требований учитывались усредненные габариты детей-инвалидов и используемых ими средств передвижения (Рис. 3.4 - 3.6, 3.8), а также отечественный и зарубежный опыт по проектированию отдельных элементов пространства.

Для инвалидов-колясочников, кроме обеспечения прямого прохода, необходимо предусматривать места разворота колясок на 180°. Для дошкольников диаметр поворотного круга принимается 120 см, для детей школьного возраста - 140 см.

Необходимые условия для обеспечения передвижения инвалидов-колясочников следует соблюдать при проектировании поворотов в коридорах, пандусов, лифтов (Рис. 3.7).

Пандус и лифт являются единственными средствами обеспечения вертикальных связей (между этажами) для инвалидов-колясочников. Пандус имеет преимущества перед лифтом в том, что им инвалиды-колясочники могут пользоваться независимо от дежурного персонала, который обязателен при лифтах в детских учреждениях. Между тем, как показывает опыт строительства, в двухэтажных зданиях пандус стоит в 5 - 8 раз дороже лифта, а в трехэтажных - 7 - 10 раз.

В специализированных учреждениях для детей с поражением опорно-двигательного аппарата, где большое количество колясочников, пандус предусматривается обязательно. В учреждениях остальных типов устройство пандуса определяется заданием на проектирование.

3.3. Требования к устройствам и приспособлениям

Специальные устройства и приспособления предназначены для обеспечения инвалидам возможности передвижения в пространстве, а также пользования приборами и оборудованием. Из этого типа устройств и приспособлений важное значение имеют средства, служащие для подъема и эвакуации инвалидов, в том числе и на случай пожара - это пандусы, микроподъемники, тобогганы (Рис. 3.10 - 3.13).

В учреждениях для слепых и слабовидящих детей очень важное значение имеют пространственные ориентиры, заключающиеся в устройстве участков с измененной поверхностью пола у входов в спальные помещения, в помещения учебно-профессиональной подготовки, в лестничные клетки, кабинеты, залы и т.п. Такая же измененная поверхность пола должна быть предусмотрена при устройстве лестниц - окантовка ступеней, площадок. При этом важно, чтобы соблюдалась единая методика размещения ориентиров по отношению к проемам дверей. Например, рельефный участок во всех случаях со стороны открывания, должен быть шире полотна двери на 10 см с каждой стороны и отстоять на 10 см от открывающегося полотна (Рис. 3.9). Со стороны, противоположной открыванию двери, рельефный участок должен иметь несколько другую структуру и по ширине должен совпадать с рельефным участком со стороны открывания, а по глубине быть равным половине ширины дверного проема. Ребенок привыкает к системе размещения ориентиров по отношению к дверям и легко ими пользуется.

В спальных помещениях, классах, игровых, т.е. помещениях, где ребенок живет, учится, рельефные ориентиры внутри помещений предусматривать необязательно, поскольку слепые привыкают к этим помещениям и умеют ими пользоваться по памяти. Со стороны коридоров рельефные ориентиры следует предусматривать при входах во все помещения.

Необходимым условием проектирования помещений для слепых и слабовидящих детей является устройство смотровых окон со стороны коридора практически во все помещения проживания, учебы, профессиональной подготовки и т.п. для возможности постоянного наблюдения персонала за слепыми детьми. Смотровые окна можно не предусматривать в тех помещениях, где дети не остаются одни, например, в кабинетах врачей, лечебных и процедурных кабинетах и т.п.

РИС. 3.1. СХЕМА ФУНКЦИОНАЛЬНОЙ ВЗАИМОСВЯЗИ ОТДЕЛЬНЫХ ГРУПП ПОМЕЩЕНИЙ ШКОЛЫ-ИНТЕРНАТА ДЛЯ ДЕТЕЙ-ИНВАЛИДОВ

ЭКСПЛИКАЦИЯ ПОМЕЩЕНИЙ

1. Главный вестибюль; 2. Обеденный зал; 3. Фойе; 4. Зрительный зал; 5. Кружковые помещения; 6. Спортивный зал; 7. Бассейн; 8. Жилые помещения для старших школьников; 9. Учебно-жилые помещения для дошкольников и младших школьников; 10. Кухня; 11. Административно-бытовые, медицинские помещения (1 этаж); 12. Помещения учебно-профессиональной подготовки (2, 3 этажи)

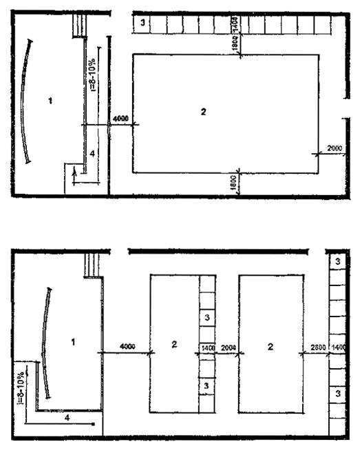
РИС. 3.2. ПРИМЕРЫ ОБЪЕМНО-ПЛАНИРОВОЧНЫХ РЕШЕНИЙ ШКОЛ-ИНТЕРНАТОВ ДЛЯ ДЕТЕЙ-ИНВАЛИДОВ

ЭКСПЛИКАЦИЯ

1. Главный въезд; 2. Хозяйственный въезд; 3. Главный корпус; 4. Игровые площадки для дошкольников; 5. Игровые площадки для школьников; 6. Физкультурно-спортивные площадки; 7. Лечебно-игровая площадка; 8. Приемно-карантинное отделение; 9. Аэросолярий; 10. Живой уголок; 11. Хозяйственная площадка; 12. Теплицы

РИС. 3.3. ПРИМЕРЫ ПЛАНИРОВОЧНЫХ РЕШЕНИЙ ТЕРРИТОРИИ ШКОЛЫ-ИНТЕРНАТА ДЛЯ ДЕТЕЙ-ИНВАЛИДОВ

РИС. 3.4. НЕОБХОДИМЫЕ ГАБАРИТЫ КОММУНИКАЦИЙ, УСТРОЙСТВ И СРЕДСТВ ПЕРЕДВИЖЕНИЯ ИНВАЛИДОВ

I - самоуправляемая коляска; II - коляска, рассчитанная на сопровождение взрослого

РИС. 3.5. ГАБАРИТЫ КОЛЯСОК, ПРИМЕНЯЕМЫХ ДЛЯ ПЕРЕДВИЖЕНИЯ ДОШКОЛЬНИКОВ

РИС. 3.6. ГАБАРИТЫ КОЛЯСОК, ПРИМЕНЯЕМЫХ ДЛЯ ПЕРЕДВИЖЕНИЯ ШКОЛЬНИКОВ

РИС. 3.7. ГАБАРИТНЫЕ СХЕМЫ ПАНДУСОВ, ПОВОРОТОВ В КОРИДОРАХ, ОТКРЫВАНИЯ ДВЕРЕЙ, ЛИФТОВЫХ ПЛОЩАДОК, ЛИФТОВЫХ ДВЕРЕЙ

глухие с тяжелым нарушением речи, умственно отсталые слабовидящие

слепые

с поражением опорно-двигательного аппарата

без дополнительной опоры

с одной дополнительной опорой

с двумя дополнительными опорами

а = 0,46 м

С = 0,28 м

а1 = 0,82 м

С1 = 0,72 м

а2 = 0,75 м

С2 = 0,40 м

а3 = 0,65 м

С3 = 0,50 м

а4 = 0,9 м

С4 = 0,50 м

РИС. 3.8. ПЛОЩАДИ, ЗАНИМАЕМЫЕ ДЕТЬМИ-ИНВАЛИДАМИ С РАЗЛИЧНЫМИ ЗАБОЛЕВАНИЯМИ (ПО ДАННЫМ В.К. СТЕПАНОВА)

РИС. 3.9. СХЕМА РАЗМЕЩЕНИЯ ОРИЕНТИРОВ С ИМЕННОЙ ПОВЕРХНОСТЬЮ ПОЛА (ДЛЯ СЛЕПЫХ И СЛАБОВИДЯЩИХ ДЕТЕЙ)

1. Применение дополнительного пандуса; 2. Устройство микролифта

РИС. 3.10. ВАРИАНТЫ УСТРОЙСТВ ДЛЯ ПОДЪЕМА ИНВАЛИДА КОЛЯСОЧНИКА НА УРОВЕНЬ НУЛЕВОЙ ОТМЕТКИ

РИС. 3.11. ПРИМЕРЫ УСТРОЙСТВА ВХОДНЫХ ЛЕСТНИЦ И ПАНДУСОВ, РАССЧИТАННЫХ НА ИНВАЛИДОВ

I - Стационарный тобогган; II - Приставной тобогган; III - Откидной тобогган, обеспечивающий эвакуацию людей из лоджии-отстойника

РИС. 3.12. ТИПЫ ТОБОГГАНОВ, ИСПОЛЬЗУЕМЫХ ДЛЯ ЭВАКУАЦИИ НА СЛУЧАЙ ПОЖАРА

РИС. 3.13. СХЕМЫ ТОБОГГАНОВ

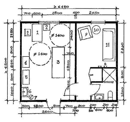
4. ТРЕБОВАНИЯ К ПОМЕЩЕНИЯМ ПРОЖИВАНИЯ

Согласно МГСН 4.02-94 «Дома-интернаты для детей-инвалидов» предусматривается два основных планировочных типа помещений проживания:

1 - по типу дошкольных учреждений, когда раздевальная, групповая, спальная и туалетная образуют единый блок помещений,

2 - по типу коридорной системы, когда спальные с другими помещениями жилой ячейки связаны через коридор.

Главный принцип организации проживания в школах-интернатах - отход от укоренившейся казарменной системы и максимальное приближение жилой ячейки в целом и отдельных ее помещений к организации проживания по семейному принципу независимо от планировочного типа помещений проживания. При этом должны быть созданы условия для наиболее полного вовлечения во все процессы, происходящие в жилой ячейке (прием пищи, игры, отдых, учеба, развлечения) персонала - учителей, воспитателей, нянь.

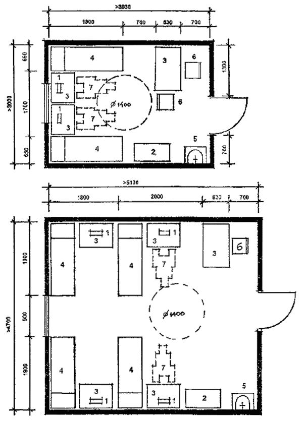
Жилые помещения, проектируемые по типу детского сада, как показала практика, также удобны и для младших школьников. В предлагаемых на Рис. 4.1 - 4.3 планировочных схемах учтены потребности инвалидов-колясочников: предусмотрены необходимые габариты проходов, возможности разворотов и др. При этом размер разворотного круга принимается для детей-дошкольников - 1,2 м.

В спальных помещениях, рассчитанных на группу дошкольников, следует соблюдать необходимые санитарно-гигиенические требования - отказ от спаренных кроватей, возможность проходов и разворотов для инвалидов-колясочников т.п. (Рис. 4.1).

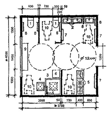
Групповая комната - помещение многофункционального назначения, предназначенная для приема пищи, учебы, игр. Для того, чтобы помещение могло работать во всех режимах в отечественной практике традиционно используется мебель, пригодная для всех вышеприведенных функций. Это легкие передвижные столики, служащие для приема пищи, учебных занятий, настольных игр.

Несмотря на то, что обучение дошкольников занимает в течение дня всего 1 - 2 часа, требование к организации процесса обучения является определяющим в планировке этого помещения. Задача его рационального проектирования осложняется еще и тем, что групповая комната является связующим звеном между раздевальной, спальной, туалетной и буфетной комнатами.

На Рис. 4.2, 4.3 приводятся возможные варианты планировки групповой комнаты, разработанные с учетом приведенных выше положений. При этом все двери, ведущие в групповую, сосредоточены в одной зоне, которая на время проведения учебных занятий служит местом прохода и возможного разворота инвалидов-колясочников, а на время игр служит местом для подвижных игр.

Возможность обслуживания инвалидов-колясочников предопределяет особенности организации (планировочной) санитарных узлов для дошкольников. Необходимость предусматривать проходы, развороты для колясок, возможность подхода колясочников к санитарным приборам, устройства поворотного кресла при душевой - главные условия проектирования туалетных для дошкольных групп (Рис. 4.4).

Соблюдение требований прохода и разворота инвалидных колясок должны учитываться при проектировании раздевальных (Рис. 4.5).

При проектировании помещений проживания для слепых и слабовидящих дошкольников, в условиях отсутствия инвалидов-колясочников, проходы должны быть рассчитаны 90 см в расчете на одностороннее движение и 120 см в расчете на движение навстречу друг другу.

Во всех помещениях для дошкольников, несмотря на то, что они практически почти не остаются одни, должны быть также предусмотрены смотровые окна. Это делается для того, чтобы дети с самого раннего возраста привыкали к тому, что они всегда находятся под наблюдением.

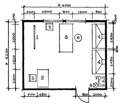
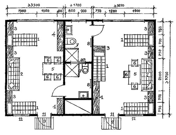
Проектирование спальных помещений для школьников по типу коридорной системы - наиболее традиционный планировочный прием для школ-интернатов.

Новое - это сокращение вместимости спальных комнат для детей-инвалидов (2 - 4 места), а также возможность предусматривать санитарные узлы при каждой спальной комнате. На Рис. 4.6 - 4.7 приводятся примеры проектирования спальных комнат, а на Рис. 4.8 санитарных узлов при них с учетом потребностей инвалидов-колясочников. При разработке планировочных схем спальных комнат должна преследоваться цель создания уютной, семейной обстановки жилой комнаты. Необходимость устройства смотровых окон в спальных комнатах для слепых и слабовидящих детей обуславливает особый подход к проектированию этих помещений (Рис. 4.9).

ЭКСПЛИКАЦИЯ ОБОРУДОВАНИЯ

1. Кровать; 1а. Кровать, предназначенная для инвалида-колясочника; 2. Инвалидная коляска; 3. Стул для воспитателя

РИС. 4.1. ПРИМЕРЫ ПЛАНИРОВКИ СПАЛЬНЫХ КОМНАТ ДЛЯ ДОШКОЛЬНИКОВ

I - Расстановка оборудования для проведения учебных занятий; II - Расстановка оборудования при использовании помещения как столовой и игровой

ЭКСПЛИКАЦИЯ ОБОРУДОВАНИЯ

1. Стол ученический; 2. Стол ученический для инвалида-колясочника; 3. Стул детский; 4. Стол учителя; 5. Стул учителя; 7. Шкаф-стеллаж; 8. Телевизор; 9. Живой уголок; 10. Кинопроекционный аппарат; 11. Инвалидная коляска

РИС. 4.2. ВАРИАНТ ПЛАНИРОВКИ ГРУППОВОЙ КОМНАТЫ СПАЛЬНОЙ ЯЧЕЙКИ ДЛЯ ДОШКОЛЬНИКОВ

I - Расстановка оборудования для проведения учебных занятий II - Расстановка оборудования при использовании помещения как столовой и игровой

ЭКСПЛИКАЦИЯ ОБОРУДОВАНИЯ

1. Стол ученический; 2. Стол ученический для инвалида-колясочника; 3. Стул детский; 4. Стол учителя; 5. Стул учителя; 6. Доска ученическая; 7. Шкаф-стеллаж; 8. Телевизор; 9. Живой уголок; 10. Кинопроекционный аппарат; 11. Инвалидная коляска

РИС. 4.3. ВАРИАНТ ПЛАНИРОВКИ ГРУППОВОЙ КОМНАТЫ ДЛЯ ДОШКОЛЬНИКОВ

ЭКСПЛИКАЦИЯ ОБОРУДОВАНИЯ

1. Унитаз детский; 2. Умывальник детский; 3. Душевой поддон; 4. Поворотное кресло; 5. Ногомойка; 6. Банкетка; 7. Вешалка для полотенец; 8. Поручни-держатели; 9. Шкаф хозяйственный; 10. Инвалидная коляска

РИС. 4.4. ПЛАНИРОВОЧНЫЕ СХЕМЫ САНИТАРНЫХ УЗЛОВ ДЛЯ ДОШКОЛЬНЫХ ГРУПП

ЭКСПЛИКАЦИЯ ОБОРУДОВАНИЯ

1. Индивидуальный шкаф для одежды и обуви; 2. Индивидуальный шкаф для инвалида; 3. Сушильный шкаф; 4. Инвалидная коляска; 5. Скамья для одевания; 6. Зеркало; 7. Шкаф персонала; 8. Открытая вешалка с крючками и полкой для головных уборов; 9. Корзина для зонтов и палок; 10. Границы рабочих зон

1 - раздевальная на 8 мест в помещениях проживания проектируемых по типу коридорной системы; 2 - раздевальная на 8 мест в групповой ячейке, проектируемой по типу дошкольных учреждений

РИС. 4.5. ПРИМЕРЫ ПЛАНИРОВКИ РАЗДЕВАЛЬНЫХ С УЧЕТОМ ПОТРЕБНОСТИ ИНВАЛИДОВ-КОЛЯСОЧНИКОВ

ЭКСПЛИКАЦИЯ ОБОРУДОВАНИЯ

1. Кровать; 2. Диван; 3. Тумбочка; 4. Комбинированный шкаф; 5. Стол; 6. Стул; 7. Кресло; 8. Торшер; 9. Банкетка; 10. Инвалидная коляска

РИС. 4.6. ПЛАНИРОВОЧНЫЕ СХЕМЫ СПАЛЬНЫХ КОМНАТ НА 2 И 3 МЕСТА ДЛЯ ШКОЛЬНИКОВ

ЭКСПЛИКАЦИЯ ОБОРУДОВАНИЯ

1. Кровать; 2. Диван; 3. Тумбочка; 4. Комбинированный шкаф; 5. Стол; 6. Стул; 7. Кресло; 8. Торшер; 9. Банкетка; 10. инвалидная коляска

РИС. 4.7. ПЛАНИРОВОЧНЫЕ СХЕМЫ СПАЛЬНЫХ КОМНАТ НА 3 И 4 МЕСТА ДЛЯ ШКОЛЬНИКОВ

ЭКСПЛИКАЦИЯ ОБОРУДОВАНИЯ

1. Ванна; 2. Унитаз; 3. Душевой поддон; 4. Умывальник; 5. Инвалидная коляска; 6. Поворотное кресло

I - Уборная с умывальником; II - Санитарный узел при спальной комнате, вариант с душем; III - Санитарный узел при спальной комнате, вариант с ванной

РИС. 4.8. ПЛАНИРОВОЧНЫЕ СХЕМЫ САНИТАРНЫХ УЗЛОВ ДЛЯ ШКОЛЬНИКОВ

ЭКСПЛИКАЦИЯ ОБОРУДОВАНИЯ

1. Кровать; 2. Диван; 3. Тумбочка; 4. Комбинированный шкаф; 5. Стол; 6. Стул; 7. Экран; 8. Вешалка; 9. Ориентир с измененной структурой пола; 10. Фрамуга верхнего света; 11. Остекленная дверь; 12. Смотровое окно

РИС. 4.9. ПЛАНИРОВОЧНАЯ СХЕМА СПАЛЬНЫХ КОМНАТ НА 3 И 4 МЕСТА С САНИТАРНЫМИ УЗЛАМИ ДЛЯ СЛЕПЫХ И СЛАБОВИДЯЩИХ ДЕТЕЙ ШКОЛЬНОГО ВОЗРАСТА

5. ТРЕБОВАНИЯ К ПОМЕЩЕНИЯМ УЧЕБНО-ПРОФЕССИОНАЛЬНОЙ ПОДГОТОВКИ

Помещения учебно-профессиональной подготовки в школах-интернатах являются основной базой для обеспечения главной функции этих учреждений - социальной реабилитации и адаптации детей-инвалидов.

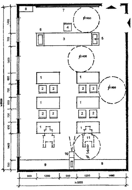
В школах-интернатах обычные учебные занятия происходят в классах, закрепленных за каждой группой, в привычном, психологически обжитом помещении, где у каждого ученика есть его собственное место. В таких классах по рекомендации психологов и педагогов (за исключением школ-интернатов для детей, больных сколиозом) предусматривается зона психологической разгрузки с кушеткой, креслом, небольшой шведской стенкой, где уставший от занятий ребенок может полежать, посидеть в кресле или размяться на шведской стенке.

Кабинетная система предусмотрена только для специализированных занятий - уроков физики, химии, биологии, обучения компьютерной техники, машинописи и т.п.

На Рис. 5.1 приводится пример планировки класса на 10 чел. (в том числе 2 инвалида-колясочника) с зоной психологической разгрузки для умственно отсталых детей, детей с недостатками речи и с заболеваниями опорно-двигательного аппарата. При этом для детей с заболеваниями опорно-двигательного аппарата разработан вариант в расчете на 1 место для стоячего ребенка, 1 место для ребенка, пристегнутого ремнями, и 1 лежачее место (Рис. 5.2).

Требования к проектированию классов для детей, больных сколиозом, обусловлены тем, что дети занимаются лежа на кушетках (Рис. 5.3), а для глухих и слабослышащих детей тем, что дети должны быть расположены так, чтобы хорошо видеть артикуляцию педагога (Рис. 5.4).

Особый подход к проектированию учебных помещений для слепых обусловлен необходимостью предусматривать для них столы больших размеров, чем для остальных детей (из-за увеличения размера книг), смотровые окна, а также отсутствием инвалидов-колясочников. С учетом этого на Рис. 5.5, 5.6 приводятся схемы планировки классов для слепых и слабовидящих детей на 8 и 10 чел. с зоной психологической разгрузки.

На Рис. 5.7 - 5.11 представлены планировочные схемы специализированных кабинетов физики (он же химии), биологии с живым уголком, компьютерного класса, классов черчения и обучения машинописи. Кабинет физики и химии может быть совмещен в одном помещении, но при этом лаборантские должны быть раздельными и запроектированы по нормативам общеобразовательных школ.

Для обучения слепых и слабовидящих детей (Рис. 5.12 - 5.14) разработаны специальные планировочные схемы кабинетов физики и химии, биологии, компьютерного класса.

Планировочные схемы библиотеки с читальным залом, абонементом и открытым доступом к книгам разработаны в двух вариантах: для слепых и слабовидящих детей и для детей с другими видами заболеваний (Рис. 5.15, 5.16)

Библиотека, классы рисунка и музыкальных занятий (Рис. 5.17, 5.18) могут быть предусмотрены как в составе учебных помещений, так и в составе помещений культурно-массового обслуживания.

Для обучения детей-инвалидов домоведению - умению подобрать продукты, изготовить из них определенные блюда, накрыть и сервировать стол, принять гостей, а также бытовым навыкам и т.п. в составе школ-интернатов предусматриваются обычная одно - двухкомнатная квартира для освоения бытовых навыков и кабинет социальной адаптации (он же кулинарный класс). В кабинете социальной адаптации могут проводиться дни рождения, праздники с приглашений гостей. Кабинет состоит из рабочей зоны (кухни) и представительной, где стоят столы со стульями, проводятся танцы и игры. Обе зоны разделены стойкой - рабочим столом для разделки продуктов и подготовки блюд к подаче на стол.

Предложения по расстановке оборудования в представительной зоне разработаны для двух вариантов размещения детей и их голой - на 11 и 21 место. Комбинированная стенка рассчитана на хранение столовой посуды, белья, музыкальной техники, видеотехники, кассет, дисков и т.п. (Рис. 5.19).

Примыкающая к кабинету социальной адаптации кладовая - инвентарная служит для хранения запасов белья и посуды, мебели т.п.

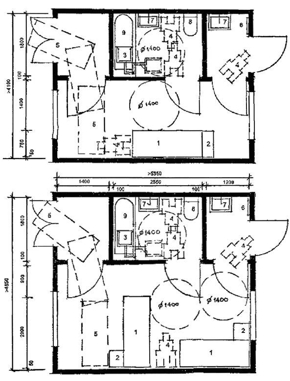
Вариант планировки кабинета социальной адаптации для слепых и слабовидящих детей представлен на Рис. 5.20.

В состав помещений школ-интернатов для слепых и слабовидящих детей обязательно должны быть включены специальные кабинеты социальной адаптации: кабинет-зал пространственной ориентации для освоения навыков ориентирования на местности в различных условиях, а также кабинет интервенции для проведения групповых занятий с дошкольниками в присутствии родителей. Помещение, в котором слепые и слабовидящие дети раннего возраста осваивают первичные навыки жизни зрения, отделено от комнаты, где размещаются родители, остекленной стеной. Наблюдая за учебным процессом, родители сами обучаются работе с детьми в домашних условиях (Рис. 5.21, 5.22).

Для обеспечения освоения детьми различных ремесел в школах-интернатах предусматриваются мастерские, набор которых определяется заданием на проектирование.

На Рис. 5.23 - 5.27 приведены примеры планировок производственных мастерских для наиболее распространенных видов деятельности (за исключением учреждений для слепых и слабовидящих детей).

Швейная мастерская, кроме ее основной специализации, может быть использована для занятий различными видами рукоделия (вязания, вышивания, художественной аппликации).

Столярная мастерская может быть, кроме того, использована для художественной резьбы по дереву.

Для слепых и слабовидящих детей предусматривается одна производственная мастерская универсального использования (Рис. 5.28).

ЭКСПЛИКАЦИЯ ОБОРУДОВАНИЯ

1. Стол ученический; 2. Стул ученический; 3. Стол учителя; 4. Стул учителя; 5. Стол ученический для инвалида-колясочника; 6. Инвалидная коляска; 7. Доска; 8. Шведская стенка; 9. Кресло; 10. Кинопроекционный аппарат; 11. Табурет; 12. Тумбочка; 13. Кушетка; 14. Экран; 15. Умывальник; 16. Комбинированный шкаф

РИС. 5.1. ПЛАНИРОВОЧНАЯ СХЕМА КЛАССА НА 10 ЧЕЛ. С ЗОНОЙ ПСИХОЛОГИЧЕСКОЙ РАЗГРУЗКИ

ЭКСПЛИКАЦИЯ ОБОРУДОВАНИЯ

1. Стол ученический; 2. Стул ученический; 3. Стол учителя; 4. Стул учителя; 5. Стол ученический для инвалида-колясочника; 6. Инвалидная коляска; 7. Доска; 8. Шведская стенка; 9. Комбинированный шкаф; 10. Кинопроекционный аппарат; 11. Табурет; 12. Тумбочка; 13. Кушетка; 14. Экран; 15. Умывальник; 16. Кушетка для лежачего ученика; 17. Стол с опорой для стоячего ученика; 18. Кресло для ученика, пристегивающегося ремнями

РИС. 5.2. ПЛАНИРОВОЧНАЯ СХЕМА КЛАССА НА 10 ДЕТЕЙ С ЗАБОЛЕВАНИЯМИ ОПОРНО-ДВИГАТЕЛЬНОГО АППАРАТА С ЗОНОЙ ПСИХОЛОГИЧЕСКОЙ РАЗГРУЗКИ (ВАРИАНТ В РАСЧЕТЕ НА 1 МЕСТО ДЛЯ СТОЯЧЕГО РЕБЕНКА, 1 МЕСТО ДЛЯ РЕБЕНКА, ПРИСТЕГИВАЮЩЕГОСЯ РЕМНЯМИ, 1 МЕСТО ДЛЯ ЛЕЖАЧЕГО БОЛЬНОГО И ОДНОГО ИНВАЛИДА-КОЛЯСОЧНИКА)

ЭКСПЛИКАЦИЯ ОБОРУДОВАНИЯ

1. Кушетка; 2. Стол учителя; 3. Стул учителя; 4. Доска; 5. Шкаф-стеллаж комбинированный; 6. Умывальник; 7. Тумбочка; 8. Диван; 9. Кресло

РИС. 5.3. ПЛАНИРОВОЧНАЯ СХЕМА КЛАССА НА 10 ЧЕЛОВЕК (ДЛЯ ДЕТЕЙ, БОЛЬНЫХ СКОЛИОЗОМ)

ЭКСПЛИКАЦИЯ ОБОРУДОВАНИЯ

1. Стол ученический; 2. Стул ученический; 3. Стол учителя; 4. Стул учителя; 5. Усилитель; 6. Доска; 7. Умывальник; 8. Шкаф-стеллаж комбинированный; 9. Табурет; 10. Стол для индивидуальных занятий и настольных игр

РИС. 5.4. ПЛАНИРОВОЧНАЯ СХЕМА КЛАССА НА 8 МЕСТ (ДЛЯ ГЛУХИХ И СЛАБОСЛЫШАЩИХ ДЕТЕЙ)

ЭКСПЛИКАЦИЯ ОБОРУДОВАНИЯ

1. Стол ученический; 2. Стул ученический; 3. Стол учителя; 4. Стул учителя; 5. Доска; 6. Шведская стенка; 7. Тумбочка; 8. Диван; 9. Умывальник; 10. Шкаф-стеллаж комбинированный; 11. Ориентир с измененной фактурой пола; 12. Смотровое окно

РИС. 5.5. ПЛАНИРОВОЧНАЯ СХЕМА КЛАССА НА 8 ЧЕЛОВЕК С ЗОНОЙ ПСИХОЛОГИЧЕСКОЙ РАЗГРУЗКИ (ДЛЯ СЛЕПЫХ И СЛАБОВИДЯЩИХ ДЕТЕЙ)

ЭКСПЛИКАЦИЯ ОБОРУДОВАНИЯ

1. Стол ученический; 2. Стул ученический; 3. Стол учителя; 4. Стул учителя; 5. Доска; 6. Шведская стенка; 7. Тумбочка; 8. Диван; 9. Умывальник; 10. Шкаф-стеллаж комбинированный; 11. Ориентир с измененной фактурой пола; 12. Смотровое окно

РИС. 5.6. ПЛАНИРОВОЧНАЯ СХЕМА КЛАССА НА 10 ЧЕЛОВЕК С ЗОНОЙ ПСИХОЛОГИЧЕСКОЙ РАЗГРУЗКИ (ДЛЯ СЛЕПЫХ И СЛАБОВИДЯЩИХ ДЕТЕЙ)

ЭКСПЛИКАЦИЯ ОБОРУДОВАНИЯ

1. Стол ученический лабораторный; 2. Стул ученический; 3. Стол демонстрационный; 4. Стул учительский; 5. Мойка; 6. Бак для мусора; 7. Доска-экран; 8. Распределительный щиток; 9. Шкаф-стеллаж; 10. Кинопроекционный аппарат; 11. Инвалидная коляска

РИС. 5.7. ПЛАНИРОВОЧНАЯ СХЕМА КАБИНЕТА ФИЗИКИ, ХИМИИ НА 10 ЧЕЛОВЕК

ЭКСПЛИКАЦИЯ ОБОРУДОВАНИЯ

1. Стол ученический лабораторный; 2. Стул ученический; 3. Стол демонстрационный; 4. Стул учительский; 5. Мойка; 6. Бак для мусора; 7. Доска-экран; 8. Шкаф стеллаж; 9. Низкий стеллаж на уровне подоконника для размещения аквариума, ящиков с растениями, клеток с птицами и животными; 10. Кинопроекционный аппарат; 11. Инвалидная коляска

РИС. 5.8. ПЛАНИРОВОЧНАЯ СХЕМА КАБИНЕТА БИОЛОГИИ НА 10 ЧЕЛОВЕК

ЭКСПЛИКАЦИЯ ОБОРУДОВАНИЯ

1. Стол ученический; 2. Стул ученический; 3. Стол ученический для инвалида-колясочника; 4. Стол учительский; 5. Стул учительский; 6. Стол для сервера (центрального процессора); 7. Стол для ученического компьютера (терминала); 8. Доска; 9. Полки подвесные; 10. Инвалидная коляска

РИС. 5.9. ПЛАНИРОВОЧНАЯ СХЕМА КОМПЬЮТЕРНОГО КЛАССА НА 8 ЧЕЛОВЕК

ЭКСПЛИКАЦИЯ ОБОРУДОВАНИЯ

1. Стол учителя; 2. Стул учителя; 3. Чертежный стол; 4. Стул ученический; 5. Шкаф-стеллаж комбинированный для бумаги, чертежных принадлежи остей, готовых чертежей; 6. Умывальник; 7. Доска; 8. Инвалидная коляска

РИС. 5.10. ПЛАНИРОВОЧНАЯ СХЕМА КЛАССА ЧЕРЧЕНИЯ

ЭКСПЛИКАЦИЯ ОБОРУДОВАНИЯ

1. Стол учителя; 2. Стул учителя; 3. Стол ученический; 4. Стул ученический; 5. Шкаф-стеллаж; 6. Умывальник; 7. Доска; 8. Инвалидная коляска

РИС. 5.11. ПЛАНИРОВОЧНАЯ СХЕМА КЛАССА МАШИНОПИСИ НА 8 ЧЕЛОВЕК

ЭКСПЛИКАЦИЯ ОБОРУДОВАНИЯ

1. Стол ученический лабораторный; 2. Стул ученический; 3. Стол демонстрационный; 4. Стул учительский; 5. Мойка; 6. Бак для мусора; 7. Доска; 8. Распределительный щиток; 9. Шкаф-стеллаж; 10. Ориентир с измененной фактурой пола; 11. Смотровое окно

РИС. 5.12. ПЛАНИРОВОЧНАЯ СХЕМА КАБИНЕТА ФИЗИКИ (ХИМИИ) НА 12 ЧЕЛОВЕК (ДЛЯ СЛЕПЫХ И СЛАБОВИДЯЩИХ ДЕТЕЙ)

ЭКСПЛИКАЦИЯ ОБОРУДОВАНИЯ

1. Стол ученический лабораторный; 2. Стул ученический; 3. Стол демонстрационный; 4. Стул учительский; 5. Мойка; 6. Бак для мусора; 7. Доска; 8. Шкаф-стеллаж; 9. Низкий стеллаж на уровне подоконника для размещения аквариума, ящиков с растениями, клеток с птицами и животными; 10. Ориентир с измененной фактурой пола; 11. Смотровое окно

РИС. 5.13. ПЛАНИРОВОЧНАЯ СХЕМА КАБИНЕТА БИОЛОГИИ НА 12 ЧЕЛОВЕК (ДЛЯ СЛЕПЫХ И СЛАБОВИДЯЩИХ ДЕТЕЙ)

ЭКСПЛИКАЦИЯ ОБОРУДОВАНИЯ

1. Стол ученический; 2. Поворотное кресло, ученическое; 3. Стул учительский; 4. Стол учительский; 5. Стол для сервера (центрального процессора); 6. Стол для ученического компьютера (терминала); 7. Шкаф-стеллаж комбинированный; 8. Ориентир с измененной фактурой пола; 9. Смотровое окно

РИС. 5.14. ПЛАНИРОВОЧНАЯ СХЕМА КОМПЬЮТЕРНОГО КЛАССА НА 6 ЧЕЛОВЕК (ДЛЯ СЛЕПЫХ И СЛАБОВИДЯЩИХ ДЕТЕЙ)

ЭКСПЛИКАЦИЯ ОБОРУДОВАНИЯ

1. Шкаф для открытого хранения книг; 2. Стол для занятий; 3. Стул; 4. Стол для абонементного обслуживания; 5. Табурет; 6. Полки подвесные; 7. Ориентир с измененной; фактурой пола; 8. Умывальник; 9. Смотровое окно

РИС. 5.15. ПЛАНИРОВОЧНАЯ СХЕМА БИБЛИОТЕКИ С ОТКРЫТЫМ ДОСТУПОМ К КНИГАМ И ЧИТАЛЬНЫМ ЗАЛОМ (ДЛЯ СЛЕПЫХ И СЛАБОВИДЯЩИХ ДЕТЕЙ)

ЭКСПЛИКАЦИЯ ОБОРУДОВАНИЯ

1. Шкаф для открытого хранения книг; 2. Стол для занятий 2а. Стол для занятий инвалида-колясочника; 3. Стул; 4. Стол для абонементного обслуживания; 5. Табурет; 6. Полки подвесные; 7. Инвалидная коляска

РИС. 5.16. ПРИМЕР ПЛАНИРОВКИ БИБЛИОТЕКИ С ОТКРЫТЫМ ДОСТУПОМ К КНИГАМ И ЧИТАЛЬНЫМ ЗАЛОМ

ЭКСПЛИКАЦИЯ ОБОРУДОВАНИЯ

1. Шкаф-стеллаж для рисунков, моделей, реквизита; 2. Мольберт; 2а. Специальный мольберт для инвалида-колясочника; 3. Помост для моделей и натурщиков; 4. Кресло отдыха натурщиков; 5. Ширма; 6. Вешалка с зеркалом; 7. Стол преподавателя; 8. Стул; 9. Выставка рисунков и картин; 10. Инвалидная коляска; 11. Умывальник

РИС. 5.17. ПРИМЕР ПЛАНИРОВКИ КАБИНЕТА РИСУНКА

ЭКСПЛИКАЦИЯ ОБОРУДОВАНИЯ

1. Стул; 2. Пюпитр; 2а. Специальный пюпитр для инвалида-колясочника; 3. Помост для руководителя; 4. Пианино; 5. Табурет винтовой; 6. Шкаф музыкальных инструментов, нот и т.п.; 7. Инвалидная коляска

РИС. 5.18. ПРИМЕР ПЛАНИРОВКИ КАБИНЕТА МУЗЫКАЛЬНЫХ ЗАНЯТИЙ

ЭКСПЛИКАЦИЯ ОБОРУДОВАНИЯ

1. Стол обеденный; 1а. Стол резервный; 2. Стул; 3. Инвалидная коляска; 4. Комбинированная стенка; 5. Холодильник; 6. Мойка; 7. Плита; 8. Стол-шкаф кухонный; 9. Сервировочная стойка, разделочный стол-шкаф; 10. Табурет

РИС. 5.19. ПЛАНИРОВОЧНАЯ СХЕМА КАБИНЕТА СОЦИАЛЬНО-БЫТОВОЙ АДАПТАЦИИ, КОМНАТА ДЛЯ ПРИЕМА ГОСТЕЙ НА 11 И 21 ПОСАДОЧНОЕ МЕСТО

ЭКСПЛИКАЦИЯ ОБОРУДОВАНИЯ

1. Стол-шкаф кухонный; 2. Плита; 3. Мойка; 4. Холодильник; 5. Кухонный шкаф-колонка; 6. Разделочный стол; 7. Комбинированная стенка; 8. Обеденный стол; 9. Стул; 10. Табурет; 11. Смотровое окно; 12. Ориентир с измененной структурой пола

РИС. 5.20. ПЛАНИРОВОЧНАЯ СХЕМА КАБИНЕТА СОЦИАЛЬНОЙ АДАПТАЦИИ (ДЛЯ СЛЕПЫХ И СЛАБОВИДЯЩИХ ДЕТЕЙ)

ЭКСПЛИКАЦИЯ ОБОРУДОВАНИЯ

1. Перекресток; 2. Элементы тротуара; 3. Скамья; 4. Столб; 5. Лестница-горка; 6. Площадка с элементами рельефа; 7. Искусственный газон; 8. Искусственное дерево; 9. Садовая скамья; 10. Туннель; 11. Стенд для работы с дверными ручками, кранами и т.п.

РИС. 5.21. ЗАЛ ПРОСТРАНСТВЕННОГО ОРИЕНТИРОВАНИЯ (ДЛЯ СЛЕПЫХ И СЛАБОВИДЯЩИХ ДЕТЕЙ)

ЭКСПЛИКАЦИЯ ОБОРУДОВАНИЯ

1. Диван; 2. Кресло; 3. Стул; 4. Детский стул; 5. Журнальный стол; 6. Стол преподавателя; 7. Детский стол; 8. Лестница-горка; 9. Площадка с элементами рельефа; 10. Элемент тротуара; 11. Столб; 12. Умывальник; 13. Остекленная стена

РИС. 5.22. КАБИНЕТ ИНТЕРВЕНЦИИ ДЛЯ ГРУППОВЫХ ЗАНЯТИЙ (ДЛЯ РАННЕЙ ПОМОЩИ СЕМЬЯМ СО СЛЕПЫМИ И СЛАБОВИДЯЩИМИ ДЕТЬМИ)

ЭКСПЛИКАЦИЯ ОБОРУДОВАНИЯ

1. Швейная машина; 2. Табурет регулируемый; 3. Стол раскроечный; 4. Гладильный стол; 5. Гладильный стол; 6. Рабочий стол; 7. Умывальник керамический; 8. Письменный стол мастера

РИС. 5.23. ПРИМЕР ПЛАНИРОВКИ ШВЕЙНОЙ МАСТЕРСКОЙ

ЭКСПЛИКАЦИЯ ОБОРУДОВАНИЯ

1. Стол рабочий; 2. Табурет регулируемый; 3. Проволочно-швейный аппарат; 4. Стол-зонт с электроклееваркой; 5. Письменный стол мастера; 6. Стул; 7. Умывальник керамический; 8. Инвалидная коляска

РИС. 5.24. ПРИМЕР ПЛАНИРОВКИ КАРТОНАЖНОЙ МАСТЕРСКОЙ

ЭКСПЛИКАЦИЯ ОБОРУДОВАНИЯ

1. Верстак столярный; 2. Табурет регулируемый; 3. Стол-зонт; 4. Умывальник керамический; 5. Письменный стол мастера; 6. Стул; 7. Дисковая электропила; 8. Станок токарный по дереву; 9. Инвалидная коляска

РИС. 5.25. ПРИМЕР ПЛАНИРОВКИ СТОЛЯРНОЙ МАСТЕРСКОЙ

ЭКСПЛИКАЦИЯ ОБОРУДОВАНИЯ

1. Стол обувщика; 2. Табурет регулируемый; 3. Машина для пристрочки подошв; 4. Машина для отделочных операций; 5. Пресс для приклеивания подошв; 6. Машина для приклеивания каблуков к женской обуви; 7. Шарошечно-полировальный станок; 8. Верстак слесарный с машиной для обрезки подошв; 9. Швейная машина со столом; 10. Письменный стол мастера; 11. Стул; 12. Умывальник керамический; 13. Инвалидная коляска

РИС. 5.26. ПРИМЕР ПЛАНИРОВКИ ОБУВНОЙ МАСТЕРСКОЙ

ЭКСПЛИКАЦИЯ ОБОРУДОВАНИЯ

1. Стол рабочий; 2. Стол ремонта телерадиоаппаратуры; 3. Табурет регулируемый; 4. Стол-зонт; 5. Письменный стол мастера; 6. Стул; 7. Умывальник керамический; 8. Инвалидная коляска

РИС. 5.27. ПРИМЕР ПЛАНИРОВКИ МАСТЕРСКОЙ ПО РЕМОНТУ АППАРАТУРЫ И БЫТОВОЙ ТЕХНИКИ

ЭКСПЛИКАЦИЯ ОБОРУДОВАНИЯ

1. Рабочий стол; 2. Табурет; 3. Стол мастера; 4. Стенка-шкаф; 5. Умывальник; 6. Стул; 7. Ориентир с измененной структурой пола; 8. Смотровое окно

РИС. 5.28. ПРИМЕР ПЛАНИРОВКИ УНИВЕРСАЛЬНОЙ МАСТЕРСКОЙ (ДЛЯ СЛЕПЫХ И СЛАБОВИДЯЩИХ ДЕТЕЙ)

6. ТРЕБОВАНИЯ К ПОМЕЩЕНИЯМ МЕДИЦИНСКОГО ОБСЛУЖИВАНИЯ

Помещения медицинского обслуживания предназначены как для текущей врачебной помощи, так и для медицинской реабилитации инвалидов.

Примеры планировки даны для специфических помещений медицинского обслуживания инвалидов. Остальные помещения проектируются по действующим нормативам для лечебно-профилактических учреждений.

Габариты мебели и оборудования приводятся ориентировочно в связи с большим разнообразием типов применяемых в практике приборов, устройств и т.п. аналогичного названия.

Разработка планировочных схем должна учитывать:

- технологические требования к размещению оборудования (расстояния между приборами, между приборами и стенами и т.п.);

- необходимость обслуживания инвалидов-колясочников (подъезды, проезды, повороты);

- специфику обслуживания инвалидов с различными видами заболеваний.

Часть помещений медицинского обслуживания предназначается для всех типов школ-интернатов. Это - кабинеты врачей, процедурные, кабинеты консультативного приема, психоневролога, логопеда, гинеколога, стоматологический кабинет, ингаляторий (Рис. 6.1 - 6.17).

Кроме них имеются специфические лечебные кабинеты для обслуживания детей с определенными видами заболеваний. К ним относятся кабинеты тифлопедогогов в учреждениях для слепых и слабовидящих; кабинеты логопедов в учреждениях для умственно-отсталых детей, детей с недостатками речи и больных сколиозом; кабинеты индивидуальной работы для глухих и слабослышащих детей (Рис. 6.18). Характерно, что часть таких кабинетов приближена к инвалидам, т.е. расположена в составе учебно-жилых ячеек. В учреждениях для глухих детей и детей с недостатками речи все медицинские кабинеты специфического обслуживания включаются в состав учебно-жилых ячеек, а в состав блока медицинского обслуживания входят только кабинеты, общие для всех типов заболеваний.

Особую специфику имеет лечебно-восстановительное лечение детей с заболеваниями опорно-двигательного аппарата (Рис. 6.19 - 6.25), а также детей, больных сколиозом (Рис. 6.26 - 6.27). Кроме того, для детей, больных сколиозом, обходимы помещения специального ортопедического обслуживания, представляющие собой группу особым образом функционально связанных помещений (Рис. 6.28). Для таких специфических помещений, как слепочная, шорная, корсетно-слесарная разработаны примеры планировочных решений (Рис. 6.29 - 6.31).

Расширенный блок специальных кабинетов составляют помещения медицинского обслуживания учреждений для слепых и слабовидящих детей. Это кабинет офтальмолога длиной не менее 25 м, кабинет развития остаточного зрения и др. (Рис. 6.32 - 6.34).

Планировочные схемы всех медицинских кабинетов, за исключением кабинетов, предназначенных только для слепых и слабовидящих детей, разработаны с учетом обслуживания инвалидов-колясочников. При этом для кабинетов обслуживающих только дошкольников, необходимые размеры поворотного круга для инвалидов-колясочников приняты - 1,2 м, для кабинетов, которые предназначены для всех возрастов детей - 1,4 м.

В том случае, когда общие для всех типов учреждений планировочные схемы медицинских кабинетов разработаны в расчете на инвалидов-колясочников, эти же планировки могут быть приняты и для учреждений для слепых и слабовидящих детей. Хотя в этих учреждениях нет инвалидов-колясочников, зато для слепых с палочками требуется уширенные проходы, которые примерно соответствуют требованиям к проходам для проезда колясок.

На Рис. 6.35 разработаны примеры планировки мельцеровских боксов на 1 и 2 места с учетом обслуживания инвалидов-колясочников и возможностью эвакуации на каталке.

ЭКСПЛИКАЦИЯ ОБОРУДОВАНИЯ

1. Стол врача однотумбовый; 2. Кушетка смотровая; 3. Инвалидная коляска; 4. Шкаф врача; 5. Стул; 6. Умывальник керамический; 7. Весы медицинские; 8. Ростомер

РИС. 6.1. КАБИНЕТ ВРАЧА (ПЕДИАТРА ТЕРАПЕВТА ПСИХОНЕВРОЛОГА)

ЭКСПЛИКАЦИЯ ОБОРУДОВАНИЯ

1. Стол медсестры; 2. Кушетка смотровая; 3. Стул; 4. Стол палатный; 5. Холодильник бытовой; 6. Шкаф медицинский; 7. Столик инструментальный; 8. Бачок для отходов; 9. Умывальник керамический; 10. Инвалидная коляска

РИС. 6.2. ПРОЦЕДУРНАЯ

ЭКСПЛИКАЦИЯ ОБОРУДОВАНИЯ

1. Стол врача; 2. Стул; 3. Таблица; 4. Кушетка смотровая; 5. Столик инструментальный; 6. Шкаф медицинский; 7. Холодильник бытовой; 8. Умывальник керамический; 9. Стол палатный; 10. Офтальмоскоп; 11. Табурет; 12. Периметр настольный с регистрирующим устройством; 13. Бачок для отходов; 14. Инвалидная коляска

РИС. 6.3. КАБИНЕТ КОНСУЛЬТАТИВНОГО ПРИЕМА С ТЕМНОЙ КОМНАТОЙ

ЭКСПЛИКАЦИЯ ОБОРУДОВАНИЯ

1. Стол врача; 2. Стул детский; 3. Шкаф медицинский; 4. Кушетка смотровая; 5. Умывальник керамический; 6. Стол детский; 7. Зеркало; 8. Инвалидная коляска; 9. Стул

РИС. 6.4. КАБИНЕТ ВРАЧА ЛОГОПЕДА ДЛЯ ДОШКОЛЬНИКОВ

ЭКСПЛИКАЦИЯ ОБОРУДОВАНИЯ

1. Стол врача; 2. Стул; 3. Шкаф медицинский; 4. Кушетка смотровая; 5. Умывальник керамический; 6. Стол палатный; 7. Зеркало; 8. Стеллаж библиотечный; 9. Инвалидная коляска

РИС. 6.5. КАБИНЕТ ЛОГОПЕДА ДЛЯ ШКОЛЬНИКОВ

ЭКСПЛИКАЦИЯ ОБОРУДОВАНИЯ

1. Кресло гинекологическое; 2. Столик инструментальный; 3. Светильник однорефлекторный, передвижной; 4. Стул винтовой; 5. Стол врача; 6. Стул; 7. Смотровая кушетка; 8. Шкаф медицинский; 9. Бачок для отходов; 10. Инвалидная коляска; 11. Умывальник керамический

РИС. 6.6. КАБИНЕТ ГИНЕКОЛОГА УРОЛОГА

ЭКСПЛИКАЦИЯ ОБОРУДОВАНИЯ

1. Кресло стоматологическое; 2. Установка стоматологическая универсальная; 3. Столик стоматологический; 4. Стул стоматологический; 5. Стол врача; 6. Шкаф медицинский одностворчатый; 7. Столик инструментальный; 8. Стул; 9. Плевательница; 10. Бачок для отходов (педальный); 11. Инвалидная коляска; 12. Умывальник

РИС. 6.7. КАБИНЕТ СТОМАТОЛОГА

ЭКСПЛИКАЦИЯ ОБОРУДОВАНИЯ

1. Стационарная ингаляционная установка; 1а. Стационарная ингаляционная установка, рассчитанная на пользование инвалидом-колясочником; 2. Винтовой табурет; 3. Умывальник; 4. Экран; 5. Инвалидная коляска

РИС. 6.8. ИНГАЛЯТОРИЙ НА 3 МЕСТА

ЭКСПЛИКАЦИЯ ОБОРУДОВАНИЯ

1. Аппарат для проведения электросна; 2. Шкаф медицинский; 3. Стол; 4. Кровать для сна; 5. Умывальник керамический; 6. Стул; 7. Инвалидная коляска

РИС. 6.9. КАБИНЕТ ЛЕЧЕНИЯ ЭЛЕКТРОСНОМ

ЭКСПЛИКАЦИЯ ОБОРУДОВАНИЯ

1. Стол врача; 2. Стул; 3. Специализированный стол для мануальной терапии; 4. Столик инструментальной; 5. Шкаф медицинский; 6. Умывальник; 7. Бачок для отходов; 8. Вешалка; 9. Кресло; 10. Журнальный столик; 11. Диван

РИС. 6.10. КАБИНЕТ МАНУАЛЬНОЙ ТЕРАПИИ С КОМНАТОЙ ОТДЫХА И САНИТАРНОЙ КАБИНОЙ

ЭКСПЛИКАЦИЯ ОБОРУДОВАНИЯ

1. Условная зона расстановки оборудования для механотерапии; 2. Стол медицинской сестры; 3. Стул; 4. Шкаф для хранения салфеток, полотенец и пр.; 5. Инвалидная коляска; 6. Умывальник

РИС. 6.11. КАБИНЕТ МЕХАНОТЕРАПИИ

ЭКСПЛИКАЦИЯ ОБОРУДОВАНИЯ

1. Стол для массажа; 2. Шторы; 3. Санитарный Узел; 4. Шкаф для простыней; 5. Кушетка-диван; 6. Журнальный столик; 7. Кресло; 8. Вешалка

РИС. 6.12. ФРАГМЕНТ РАЗМЕЩЕНИЯ ОБОРУДОВАНИЯ В КАБИНЕТЕ ДЛЯ МАССАЖА С КОМНАТОЙ ОТДЫХА ДЛЯ МАССАЖИСТОВ

ЭКСПЛИКАЦИЯ ОБОРУДОВАНИЯ

1. Ванна подводного массажа; 2. Аппарат для подводного массажа; 3. Подъемник для помещения больного в ванну; 4. Банкетка; 5. Вешалка на 2 крючка; 6. Полотенцесушитель; 7. Умывальник керамический; 8. Ведро педальное; 9. Инвалидная коляска

РИС. 6.13. КАБИНЕТ ПОДВОДНОГО МАССАЖА

ЭКСПЛИКАЦИЯ ОБОРУДОВАНИЯ

1. Пульт управления; 2. Душ циркулярный; 3. Душ дождевой; 4. Душ восходящий; 5. Душ шарко; 6. Откидные поручни; 7. Инвалидная коляска; 8. Умывальник

РИС. 6.14. КАБИНЕТ ГИДРОПАТИИ

ЭКСПЛИКАЦИЯ ОБОРУДОВАНИЯ

1. Ванна керамическая ангобированная; 2. Душ; 3. Поворотное кресло; 4. Подъемник для помещения больного в ванну; 5. Инвалидная коляска

РИС. 6.15. ФРАГМЕНТЫ ВАННОГО ЗАЛА КАБИНЕТА ВОДОЛЕЧЕНИЯ

ЭКСПЛИКАЦИЯ ОБОРУДОВАНИЯ

1. Ванна; 2. Подвесное кресло; 3. Трос или балка; 4. Инвалидная коляска

РИС. 6.16. ПЛАНИРОВОЧНЫЕ СХЕМЫ ВАННЫХ ЗАЛОВ НА 4 И 6 ВАНН

ЭКСПЛИКАЦИЯ ОБОРУДОВАНИЯ

1. Кушетка смотровая; 2. Стол для переносной аппаратуры; 3. Стул; 4. Инвалидная коляска;

А, Б - Для приема процедур лежа; В - Для приема процедур сидя

РИС. 6.17. ФРАГМЕНТЫ РАЗМЕЩЕНИЯ ОБОРУДОВАНИЯ В КАБИНЕТАХ ЭЛЕКТРОСВЕТОЛЕЧЕНИЯ

ЭКСПЛИКАЦИЯ ОБОРУДОВАНИЯ

1. Стеллаж; 2. Стол; 3. Стул; 4. Зеркало; 5. Стол методиста; 6. Умывальник

РИС. 6.18. КАБИНЕТ ИНДИВИДУАЛЬНЫХ СЛУХОВЫХ ЗАНЯТИЙ (ДЛЯ ГЛУХИХ И СЛАБОСЛЫШАЩИХ ДЕТЕЙ)

ЭКСПЛИКАЦИЯ ОБОРУДОВАНИЯ

1. Кушетка смотровая; 2. Тумбочка прикроватная; 3. Стол медсестры; 4. Стул; 5. Инвалидная коляска; 6. Умывальник

РИС. 6.19. КАБИНЕТ ОЗОКЕРИТА, ПАРАФИНОЛЕЧЕНИЯ И ГОРЯЧЕГО УКУТЫВАНИЯ (ДЛЯ ДЕТЕЙ С НАРУШЕНИЯМИ ОПОРНО-ДВИГАТЕЛЬНОГО АППАРАТА И БОЛЬНЫХ СКОЛИОЗОМ)

ЭКСПЛИКАЦИЯ ОБОРУДОВАНИЯ

1. Кушетка смотровая; 2. Стол палатный; 3. Стул; 4. Шкаф медицинский; 5. Умывальник керамический; 6. Шкаф вытяжной; 7. Холодильник; 8. Инструментальный столик; 9. Инвалидная коляска

РИС. 6.20. АМИНОЗИНОВЫЙ КАБИНЕТ (ДЛЯ ДЕТЕЙ С НАРУШЕНИЯМИ ОПОРНО-ДВИГАТЕЛЬНОГО АППАРАТА)

ЭКСПЛИКАЦИЯ ОБОРУДОВАНИЯ

1. Стол врача; 2. Стул; 3. Стол для гипсования; 4. Инструментальный столик; 5. Смотровая кушетка; 6. Медицинский шкаф; 7. Умывальник; 8. Прибор для антропометрии; 9. Инвалидная коляска

РИС. 6.21. КАБИНЕТ ОРТОПЕДА

ЭКСПЛИКАЦИЯ ОБОРУДОВАНИЯ

1. Кресло стоматологическое; 2. Установка стоматологическая; 3. Столик стоматологический; 4. Стул стоматологический; 5. Шкаф медицинский; 6. Столик инструментальный; 7. Рабочий стол; 8. Умывальник; 9. Плевательница; 10. Инвалидная коляска; 11. Бачок для отходов; 12. Стол врача; 13. Стул

РИС. 6.22. КАБИНЕТ ОРТОДОНТА

ЭКСПЛИКАЦИЯ ОБОРУДОВАНИЯ

1. Шведская стенка; 2. Мат для занятий лежа; 3. Корзина для мячей и игрушек; 4. Умывальник; 5. Стол методиста; 6. Стул

РИС. 6.23. ЗАЛ ДЛЯ ИНДИВИДУАЛЬНЫХ ЗАНЯТИЙ НА 1 - 3 УЧАЩИХСЯ (ДЛЯ ДЕТЕЙ С НАРУШЕНИЯМИ ОПОРНО-ДВИГАТЕЛЬНОГО АППАРАТА)

ЭКСПЛИКАЦИЯ ОБОРУДОВАНИЯ

1. Сухой бассейн; 2. Батут (переносной); 3. Мячи (Д 450 - 950); 4. Место складирования мячей; 5. Стол методиста; 6. Стул; 7. Шведская стенка

РИС. 6.24. ЗАЛ ЛФК - ТРЕНАЖЕРНЫЙ ЗАЛ (ДЛЯ ДЕТЕЙ С НАРУШЕНИЯМИ ОПОРНО-ДВИГАТЕЛЬНОГО АППАРАТА)

ЭКСПЛИКАЦИЯ ОБОРУДОВАНИЯ

1. Дорожка следования; 2. Гибкая лестница; 3. Туннель (разной высоты); 4. Предметы для развития ориентации (столб, пирамида, куб и т.п.); 5. Угловая скамейка; 6. Стол методиста; 7. Стул

РИС. 6.25. ЗАЛ ПРОСТРАНСТВЕННОЙ ОРИЕНТАЦИИ (ДЛЯ ДЕТЕЙ С НАРУШЕНИЯМИ ОПОРНО-ДВИГАТЕЛЬНОГО АППАРАТА)

ЭКСПЛИКАЦИЯ ОБОРУДОВАНИЯ

1. Кушетка; 2. Стол для прибора рефлексотерапии; 3. Стол врача; 4. Стул; 5. Шкаф медицинский; 6. Умывальник; 7. Вешалка

РИС. 6.26. ПРИМЕРЫ ПЛАНИРОВКИ КАБИНЕТА РЕФЛЕКСОТЕРАПИИ НА 3 И НА 2 КУШЕТКИ

ЭКСПЛИКАЦИЯ ОБОРУДОВАНИЯ

1. Стол методиста; 2. Стул; 3. Шведская стенка; 4. Банкетка; 5. Зеркало; 6. Места для занятий лежа; 7. Крючки для одежды; 8. Скамья для переодевания; 9. Шкаф методиста; 10. Шкаф для инвентаря

РИС. 6.27. ПРИМЕРЫ ПЛАНИРОВКИ КАБИНЕТА ЛФК С РАЗДЕВАЛЬНОЙ

РИС. 6.28. ВЗАИМОСВЯЗЬ ПОМЕЩЕНИЙ ОРТОПЕДИЧЕСКОГО БЛОКА (В ШКОЛАХ-ИНТЕРНАТАХ ДЛЯ ДЕТЕЙ, БОЛЬНЫХ СКОЛИОЗОМ)

ЭКСПЛИКАЦИЯ ОБОРУДОВАНИЯ

1. Станина (качели) для снятия мерки; 2. Стол мастера; 3. Рабочий стол; 4. Вытяжной шкаф; 5. Стул; 6. Табурет; 7. Умывальник; 8. Бачок для отходов

РИС. 6.29. СЛЕПОЧНАЯ (ИЗГОТОВЛЕНИЕ КРОВАТОК)

ЭКСПЛИКАЦИЯ ОБОРУДОВАНИЯ

1. Шкаф; 2. Стул; 3. Рабочий стол; 4. Табурет; 5. Швейная машинка; 6. Стол мастера; 7. Умывальник; 8. Бачок для отходов

РИС. 6.30. ШОРНАЯ МАСТЕРСКАЯ

ЭКСПЛИКАЦИЯ ОБОРУДОВАНИЯ

1. Слесарный стал; 2. Стул; 3. Табурет; 4. Стол мастера; 5. Умывальник; 6. Бачок для отходов; 7. Шкаф

РИС. 6.31. КОРСЕТНО-СЛЕСАРНАЯ МАСТЕРСКАЯ

ЭКСПЛИКАЦИЯ ОБОРУДОВАНИЯ

1. Стол врача; 2. Стул; 3. Медицинский шкаф; 4. Умывальник; 5. Инструментальный столик; 6. Кушетка смотровая; 7. Офтальмоскоп; 8. Прибор для определения поля зрения; 9. Прибор для лечения косоглазия; 10. Таблица определения остроты зрения

РИС. 6.32. КАБИНЕТ ОФТАЛЬМОЛОГА (ДЛЯ СЛЕПЫХ И СЛАБО ВИДЯЩИХ ДЕТЕЙ)

ЭКСПЛИКАЦИЯ ОБОРУДОВАНИЯ

1. Шкафная стенка; 2. Прибор для исследования глазного дна; 3. Стол преподавателя; 4. Стол ученический для компьютера; 5. Стол для принтера; 6. Ученический стол для занятий (рисунок, чтение); 7. Стол для телевизора; 8. Стол для мозаики; 9. Копировальный стол с подсветкой; 10. Стул учителя; 11. Стул ученический; 12. Табурет; 13. Ориентир с измененной фактурой пола; 14. Смотровое окно; 15. Умывальник

РИС. 6.33. КАБИНЕТ РАЗВИТИЯ ОСТАТОЧНОГО ЗРЕНИЯ ДЛЯ СЛЕПЫХ И СЛАБОВИДЯЩИХ ДЕТЕЙ (ВАРИАНТ I)

ЭКСПЛИКАЦИЯ ОБОРУДОВАНИЯ

1. Шкафная стенка; 2. Прибор для исследования глазного дна; 3. Стол преподавателя; 4. Стол ученический для компьютера; 5. Стол для принтера; 6. Ученический стол для занятий (рисунок, чтение); 7. Стол для телевизора; 8. Стол для мозаики; 9. Копировальный стол с подсветкой; 10. Стул учителя; 11. Стул ученический; 12. Табурет; 13. Ориентир с измененной фактурой пола; 14. Смотровое окно; 15. Умывальник

РИС. 6.34. КАБИНЕТ РАЗВИТИЯ ОСТАТОЧНОГО ЗРЕНИЯ ДЛЯ СЛЕПЫХ И СЛАБОВИДЯЩИХ ДЕТЕЙ (ВАРИАНТ II)

ЭКСПЛИКАЦИЯ ОБОРУДОВАНИЯ

1. Кровать; 2. Тумбочка; 3. Поворотное кресло для инвалида; 4. Инвалидная коляска; 5. Каталка для эвакуации лежачего больного; 6. Вешалка для сменных халатов; 7. Умывальник; 8. Унитаз; 9. Ванна

РИС. 6.35. ПРИМЕРЫ ПЛАНИРОВКИ МЕЛЬЦЕРОВСКИХ БОКСОВ НА 1 И НА 2 МЕСТА

7. ТРЕБОВАНИЯ К ПОМЕЩЕНИЯМ КУЛЬТУРНО-МАССОВОГО ОБСЛУЖИВАНИЯ

В состав помещений культурно-массового обслуживания всех типов школ-интернатов для детей-инвалидов, как правило, входят актовый зал с эстрадой, фойе и вспомогательные помещения, кружковые помещения, спортивный зал, бассейн.

Актовый зал предусматривается с учетом расстановки мест для обычных ходячих зрителей и для инвалидов-колясочников (Рис. 7.1). Количество мест, которые следует предусматривать для инвалидов-колясочников, определяется заданием на проектирование.

Примеры планировки кружковых помещений (живописи и рисунка, музыкальных занятий) приведены в разделе 5 «Требования к помещениям учебно-профессиональной подготовки» (Рис. 5.17, 5.18). Состав кружковых комнат определяется заданием на проектирование в зависимости от профиля учреждения и местных условий.

Планировочные особенности раздевальных при спортивном зале и бассейне, учитывающие функционирование инвалидов-колясочников, приведены на Рис. 7.2 (пунктиром указана рабочая зона).

На Рис. 7.3 - 7.5 приведены примеры приспособлений и оборудования применяемых для облегчения входа инвалидов в бассейн.

ЭКСПЛИКАЦИЯ

1. Сцена; 2. Места для ходячих зрителей; 3. Места размещения инвалидов-колясочников; 4. Пандус

РИС. 7.1. ВАРИАНТЫ РАЗМЕЩЕНИЯ МЕСТ В ЗРИТЕЛЬНОМ ЗАЛЕ

ЭКСПЛИКАЦИЯ ОБОРУДОВАНИЯ

1. Скамья с открытой вешалкой и местом для обуви; 2. Инвалидная коляска (индивидуальная); 2а. Инвалидная коляска (закрепленная за бассейном); 3. Окно для наблюдений; 3а. Окно для наблюдений, выдача чистых полотенец; 4. Бачок для грязного белья; 5. Слив; 6. Унитаз; 7. Умывальник; 8. Душевая кабина обычная; 9. Душевая кабина с учетом возможности пользования инвалидом-колясочником; 10. Трап; 11. Подвесное кресло для инвалида-колясочника; 12. Трос или балка; 13. Поворотное кресло для инвалида-колясочника;

I. Раздевальная при бассейне с санитарным узлом, душевой и комнатой хранения предметов уборки; II. Вариант планировки душевой и комнаты хранения предметов уборки в расчете на перемещение инвалида-колясочника при помощи подвесного кресла; III. Раздевальная при спортивном зале с санитарными узлами и душевой

РИС. 7.2. ПРИМЕРЫ ПЛАНИРОВКИ РАЗДЕВАЛЬНЫХ И ДУШЕВЫХ ПРИ БАССЕЙНЕ И СПОРТИВНОМ ЗАЛЕ

1. ОБЩИЙ ВИД ПЛАВАТЕЛЬНОГО БАССЕЙНА С ПОДЪЕМНЫМИ УСТРОЙСТВАМИ И ПАНДУСОМ ДЛЯ ОПУСКАНИЯ В ВОДУ

2. СХЕМЫ РАЗРЕЗОВ БОРТА БАССЕЙНА ВЫСОТОЙ НА УРОВНЕ СИДЕНИЯ КОЛЯСКИ

с сидением для пересаживания инвалида в воду

с пандусом для опускания инвалида в воду

РИС. 7.3. ПРИМЕРЫ ОБОРУДОВАНИЯ ПЛАВАТЕЛЬНОГО БАССЕЙНА, РАССЧИТАННОГО НА ИНВАЛИДОВ

1. СТАЦИОНАРНЫЕ ПОДЪЕМНИКИ

лебедочного типа

рычаговые

2. ПРИСПОСОБЛЕНИЯ ВХОДА В БАССЕЙН С ВЫСОТОЙ БОРТА НА УРОВНЕ ПОЛА

с пандусом

с лестницей

3. ПРИСПОСОБЛЕНИЯ ВХОДА В БАССЕЙН С ВЫСОТОЙ БОРТА НА УРОВНЕ КОЛЯСКИ

без пандуса

с пандусом

РИС. 7.4. ПРИМЕРЫ РАЗЛИЧНЫХ ПРИСПОСОБЛЕНИЙ ДЛЯ ВХОДА ИНВАЛИДОВ В БАССЕЙН

1 - Лежачий подъемник

2 - Сидячий подъемник

РИС. 7.5. ПРИМЕРЫ ПРИСПОСОБЛЕНИЙ, ИСПОЛЬЗУЕМЫХ ДЛЯ ИНВАЛИДОВ В ПЛАВАТЕЛЬНЫХ БАССЕЙНАХ

8. ТРЕБОВАНИЯ К ПОМЕЩЕНИЯМ ПИТАНИЯ

В состав помещений питания входят обеденные залы и производственные помещения кухни.

Обеденные залы могут размещаться как в составе помещений проживания куда пища доставляется в бачках или термосах, так и непосредственно при блоке кухонных помещений. Обеденные залы для школьников, за исключением больных сколиозом, слепых и слабовидящих, независимо от того, где они располагаются, в составе жилых помещений или при кухне, проектируются с учетом обслуживания инвалидов-колясочников на основе принципов организации обеденных мест приведенных на Рис. 8.1.

Организация обеденных мест в столовых для детей, больных сколиозом, а также слепых и слабовидящих, принимается в соответствии со схемами, приведенными на Рис. 8.2.

Для дошкольников обеденные места располагаются на площади групповой комнаты и проектируются в соответствии с планировочными схемами, приведенными в разделе 4 «Требования к помещениям проживания» (Рис. 4.2, 4.3).

Производственные помещения кухни проектируются в соответствии с требованиями норм по проектированию предприятий общественного питания.

ЭКСПЛИКАЦИЯ ОБОРУДОВАНИЯ

1. Стол; 2. Стул; 3. Инвалидная коляска

РИС. 8.1. ПРИМЕРЫ ОРГАНИЗАЦИИ ОБЕДЕННЫХ МЕСТ В СТОЛОВЫХ

ПРИМЕЧАНИЕ: размеры и обозначения в скобках относятся к школам-интернатам для слепых и слабовидящих детей

ЭКСПЛИКАЦИЯ ОБОРУДОВАНИЯ

1. Стол; 2. Табурет (стул)

РИС. 8.2. ОРГАНИЗАЦИЯ ОБЕДЕННЫХ МЕСТ В СТОЛОВЫХ ДЛЯ ДЕТЕЙ БОЛЬНЫХ СКОЛИОЗОМ И СЛЕПЫХ И СЛАБОВИДЯЩИХ ДЕТЕЙ

ПРИЛОЖЕНИЕ:

ЛЕЧЕБНО-ИГРОВЫЕ ПЛОЩАДКИ

РИС. 1. ЛЕЧЕБНО-ИГРОВЫЕ ПЛОЩАДКИ ДЛЯ ДЕТЕЙ С ЗАБОЛЕВАНИЯМИ ОПОРНО-ДВИГАТЕЛЬНОГО АППАРАТА (ПО РЕКОМЕНДАЦИЯМ ЦНИИЭП УЧЕБНЫХ ЗДАНИЙ):

I. ГИМНАСТИЧЕСКАЯ ПЛОЩАДКА: 1 - бревно на грунте; 2 - бревно на стойках; 3 - доска на грунте; 4 - скамья; 5 - наклонная лестница; 6 - наклонная доска; 7 - брусья; 8 - перекладина; 9 - рукоход; 10 - шесты; 11 - кольца; 12 - ориентиры на грунте для построения детей; 13 - шведские стенки; 14 - вертикальные гимнастические лестницы; 15 - доска с планочками

II. ЛЕЧЕБНО-ГИМНАСТИЧЕСКАЯ ПЛОЩАДКА: 1 - вертикальные гимнастические лестницы; 2 - дорожка для дифференцирования движений; 3 - шведские стенки; 4 - скамья; 5 - наклонная лестница; 6 - наклонная доска; 7 - циклотренажер; 8 - качающаяся плоскость; 9 - батут; 10 - различные виды подъемов; 11 - ориентиры на грунте для построения детей; 12 - дорожки из различных покрытий; 13 - валиковые дорожки; 14 - волнистая доска; 15 - доска «елочка»; 16 - следоступ; 17 - дорожка с разделителем; 18 - велотренажер

РИС. 2. ЛЕЧЕБНО-ИГРОВЫЕ ПЛОЩАДКИ ДЛЯ ДЕТЕЙ С НАРУШЕНИЯМИ СЛУХА И ЗРЕНИЯ (ПО РЕКОМЕНДАЦИЯМ ЦНИИЭП УЧЕБНЫХ ЗДАНИЙ):

I. ДЛЯ ГЛУХИХ И СЛАБОСЛЫШАЩИХ ДЕТЕЙ: 1 - бревно на стойках; 2 - скамья; 3 - наклонная лестница; 4 - наклонная доска; 5 - бум; 6 - брусья; 7 - перекладина; 8 - рукоход; 9 - подъемник со страховкой; 10 - доска для укрепления пресса; 11 - шесты; 12 - кольца; 13 - ориентиры на грунте для построения детей; 14 - шведские стенки; 15 - различные виды подъемов; 16 - фиксированная штанга; 17 - силовой балансир ножной; 18 - силовой балансир ручной

II. ДЛЯ СЛЕПЫХ И СЛАБОВИДЯЩИХ ДЕТЕЙ: 1 - бревно на грунте; 2 - бревно на стойках; 3 - доска на грунте; 4 - циклотренажер; 5 - наклонная лестница; 6 - наклонная доска; 7 - шагоход; 8 - следоступ; 9 - волнистая доска; 10 - доска «елочка»; 11 - ребристая доска; 12 - велотренажер; 13 - дорожки из различных покрытий; 14 - дорожки из щитов; 15 - дорожка из дощечек; 16 - звуковые ориентиры; 17 - вертикальные гимнастические лестницы

РИС. 3. ЛЕЧЕБНО-ИГРОВЫЕ ПЛОЩАДКИ ДЛЯ ГЛУХИХ И СЛАБОСЛЫШАЩИХ ДЕТЕЙ (ПО РЕКОМЕНДАЦИЯМ ЦНИИЭП УЧЕБНЫХ ЗДАНИЙ):

I. ДЛЯ ДЕТЕЙ ДОШКОЛЬНОГО И МЛАДШЕГО ШКОЛЬНОГО ВОЗРАСТА: 1 - карусель; 2 - кольцеброс; 3 - качели шинные; 4 - песочница; 5 - система обручей для проползания; 6 - макет корабля; 7 - качалки на пружинах; 8 - навес; 9 - доска с планочками; 10 - односкатная горка; 11 - скамья; 12 - одноярусный лабиринт алфавитный; 13 - вкопанные шины; 14 - наклонная лестница

II. ДЛЯ ДЕТЕЙ СРЕДНЕГО И СТАРШЕГО ШКОЛЬНОГО ВОЗРАСТА: 1 - пергола; 2 - игровой стол; 3 - качели шинные; 4 - качалки-балансиры; 5 - качалки с «зонтиками»; 6 - качалки-лодочки; 7 - стол-тир; 8 - стационарный мост; 9 - многоскатная горка; 10 - односкатная горка; 11 - качели-подъемники; 12 - петлевой подъемник; 13 - массив для лазания; 14 - кольцеброс; 15 - скамья; 16 - двухъярусный лабиринт; 17 - различные подъемы; 18 - «бегущие» бараны