Система нормативных документов в строительстве

СВОД ПРАВИЛ ПО ПРОЕКТИРОВАНИЮ И СТРОИТЕЛЬСТВУ

 

АРХИТЕКТУРНО-ПЛАНИРОВОЧНЫЕ
РЕШЕНИЯ МНОГОКВАРТИРНЫХ
ЖИЛЫХ ЗДАНИЙ

СП 31-107-2004

 

Москва 2005

 

 

ПРЕДИСЛОВИЕ

1 РАЗРАБОТАН Федеральным Государственным унитарным предприятием - Центром методологии нормирования и стандартизации в строительстве (ФГУП ЦНС), МНИИТЭП, ОАО «ЦНИИЭПжилища» с участием коллектива специалистов ведущих научно-исследовательских и проектных организаций

ВНЕСЕН Управлением технического нормирования, стандартизации и сертификации в строительстве и ЖКХ Госстроя России

2 ОДОБРЕН И РЕКОМЕНДОВАН к применению в качестве нормативного документа Системы нормативных документов в строительстве Госстроем России (письмо № ЛБ-131/9 от 28.04.2004)

3 УТВЕРЖДЕН И ВВЕДЕН В ДЕЙСТВИЕ с 1 февраля 2005 г. приказом ФГУП ЦНС № 03 от 12 мая 2004 г.

4 ВВЕДЕН ВПЕРВЫЕ

СОДЕРЖАНИЕ

ВВЕДЕНИЕ.. 2

1 Область применения. 3

2 Нормативные ссылки. 3

3 Термины и определения. 3

4 Жилое здание. 3

4.1 Объемно-планировочная структура основных типов многоквартирных жилых зданий. 3

4.2 Приемы блокировки. 7

4.3 Энергосберегающие объемно-планировочные решения. 7

4.4 Шумозащищенные жилые здания. 8

4.5 Объемно-планировочные решения, обеспечивающие нормируемую инсоляцию и повышение плотности застройки. 10

4.6 Региональные особенности объемно-планировочных решений жилых зданий. 10

5 Планировочные элементы жилых зданий. 13

5.1 Входная группа помещений. 13

5.2 Эвакуационные пути, лестничные клетки и лестницы.. 15

5.3 Лифтовые узлы и планировочные приемы размещения мусорокамеры и мусоропровода. 17

5.4 Объемно-планировочные приемы, обеспечивающие защиту от почвенных газов и выхлопных газов автостоянок. 21

6 Квартиры.. 21

6.1 Минимальные площади и габариты помещений квартир. 21

6.2 Дополнительные помещения квартир. 25

6.3 Допустимая трансформация квартир. 27

6.4 Региональные особенности проектирования квартир. 28

7 Помещения общественного назначения. 29

7.1 Помещения общественного назначения, встроенные и встроенно-пристроенные в многоквартирные жилые здания. 29

7.2 Помещения для индивидуальной трудовой деятельности в составе квартир. 31

Приложение А (справочное). Перечень нормативных документов. 31

Приложение Б (справочное). Термины и определения. 32

Приложение В (рекомендуемое). Номенклатура учреждений и предприятий общественного  назначения, встроенных в жилые здания. 34

Приложение Г (рекомендуемое). Расчет вертикального транспорта (лифтов) 39

Приложение Д (рекомендуемое). Рекомендуемые правила подсчета объема, общей площади  жилого многоквартирного здания, площади квартир. 42

Приложение Е. Иллюстрации. 43

 

ВВЕДЕНИЕ

Данный Свод правил содержит положения по различным вопросам, возникающим при проектировании многоквартирных жилых зданий, в том числе по пожарной безопасности и безопасности при пользовании, по обеспечению санитарно-эпидемиологических требований и требований энергоэффективности и др.

Соблюдение правил, установленных в настоящем документе, при проектировании и строительстве домов поможет обеспечить выполнение требований СНиП 31-01-2003 «Здания жилые многоквартирные».

В разработке настоящего Свода правил приняли участие: С.Н. Нерсесов, канд. техн. наук, Л.С. Экслер (ФГУП ЦНС); Л.А. Викторова, канд. архит. (ФГУ ФЦС); С.И. Яхкинд, канд. архит., И.С. Генкина, канд. архит., Л.В. Петрова, канд. архит., Б.Ю. Брандербург, канд. архит., Л.И. Конова, канд. архит. (ГУП МНИИТЭП), С.М. Ройтбурд (ТК 209 «Лифты, строительные подъемники и эскалаторы»); Ю.Г. Граник, д-р. техн. наук (ОАО «ЦНИИЭПжилища»).

 

СП 31-107-2004

СВОД ПРАВИЛ ПО ПРОЕКТИРОВАНИЮ И СТРОИТЕЛЬСТВУ

АРХИТЕКТУРНО-ПЛАНИРОВОЧНЫЕ РЕШЕНИЯ
МНОГОКВАРТИРНЫХ ЖИЛЫХ ЗДАНИЙ

Architectural and planning designs of apartment buildings

Дата введения 2005-02-01

1 Область применения

Настоящий Свод правил распространяется на проектирование вновь возводимых и реконструируемых многоквартирных жилых зданий (кроме жилых зданий, проектируемых согласно требованиям СНиП 31-02).

2 Нормативные ссылки

Перечень нормативных документов, на которые даны ссылки в настоящем Своде правил, приведен в приложении А.

При исключении из числа действующих нормативных документов, на которые дается ссылка в настоящем Своде правил, следует руководствоваться нормами, введенными взамен исключенных.

3 Термины и определения

В настоящем Своде правил использованы термины, определения которых даны в СНиП 31-01, СНиП 31-02, СНиП 21-01 и других нормативных документах. Дополнительные термины, употребляемые в настоящем документе, приведены в приложении Б.

4 Жилое здание

4.1 Объемно-планировочная структура основных типов многоквартирных жилых зданий

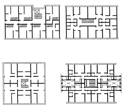
4.1.1 Многосекционные жилые здания формируются путем блокировки нескольких секций, являющихся элементами объемно-планировочной структуры здания. Секции проектируют рядовыми и поворотными, в том числе с торцевыми окончаниями или без них (приложение Е, рисунок Е.1).

Рядовые секции (в том числе с торцевыми окончаниями) по форме плана могут быть прямолинейными или со сдвигом в плане, а также сложной формы (в том числе криволинейной, Т-образной и т.д.).

Поворотные секции (в том числе угловые) позволяют проектировать здание с развитием:

1) в двух направлениях (секции с углами поворота на 90°, 135° и др. - угловые секции);

2) в трех направлениях ( секции с углами поворота на 90°, 120° и др.).

Угловые секции имеют следующие разновидности:

- с размещением лестничной клетки (или лестнично-лифтового узла) в центральной части секции с ориентацией на внутреннюю (или внешнюю) сторону секции;

- с размещением лестничной клетки (или лестнично-лифтового узла во внутреннем (или внешнем) углу секции;

- с ориентацией лестничной клетки и лифтового узла на противоположные стороны секции.

4.1.2 По условиям ориентации по сторонам света и обеспечения инсоляции квартир секции многосекционных жилых зданий проектируются:

- универсальной (неограниченной) ориентации;

- частично ограниченной ориентации (широтные);

- ограниченной ориентации (меридиональные).

Рекомендуемые варианты решений по количеству квартир и уровней в квартирах секций различной ориентации даны в таблице 4.1.

Таблица 4.1

Классификация секции по ориентации

Количество квартир

Количество уровней в квартире

Универсальная (неограниченная)

1; 2
4 - 8

1
2 - 3

Частично ограниченная (широтная)

3 - 7

1 - 2

Ограниченная (меридиональная)

5 - 8
(до 16*)

1 - 2

* Указано максимальное количество при плане со сдвижкой

4.1.3 Односекционные жилые здания различаются по форме плана (приложение Е, рисунок Е.2):

- с компактным планом - квадратной, прямоугольной, круглой или эллипсовидной конфигурации;

- с расчлененным планом - Т-образной, трехлучевой, крестообразной и другой конфигурации.

Односекционные жилые здания позволяют максимально использовать периметр наружных стен для светового фронта квартир, включать наибольшее число квартир с двухсторонней (в том числе угловой) ориентацией, обеспеченных сквозным или угловым проветриванием.

Односекционные здания проектируют с одно-, двухуровневыми, иногда трехуровневыми квартирами, количество квартир на этаже в зависимости от принятого варианта планировочного решения может составлять от 1 до 10.

4.1.4 Жилые здания коридорного типа могут иметь двухстороннее и одностороннее размещение квартир вдоль общего внеквартирного коридора (приложение Е, рисунок Е.3).

Форма плана коридорных жилых зданий: протяженная - с коридорами, соединяющими лестнично-лифтовые узлы (или лестничные клетки), или компактная - с коридором, имеющим, как правило, круговой обход вокруг лифтового узла.

Рекомендуемые варианты решений коридорных жилых зданий с различными планировочными структурами по количеству квартир и уровней в квартирах, а также в зависимости от ориентации жилого здания даны в таблице 4.2.

При одностороннем размещении одноуровневых квартир в коридорных жилых зданиях освещение передних, кухонь, санитарных узлов и других подсобных помещений осуществляется вторым светом через остекленный коридор.

Ориентация квартир на две стороны горизонта обеспечивает сквозное (или угловое) проветривание.

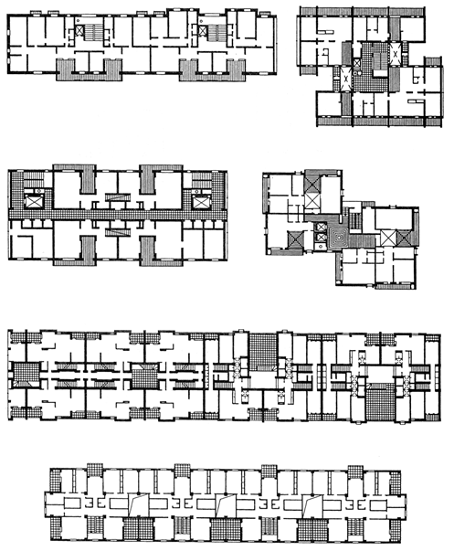
4.1.5 Жилые здания галерейного типа проектируются с входами в квартиры с галерей, ведущих к лестнично-лифтовым узлам (лестничным клеткам или открытым лестницам) (приложение Е, рисунок Е.4).

Рекомендуемые варианты решений жилых зданий галерейного типа с различными планировочными структурами по количеству квартир и уровней в квартирах, а также в зависимости от ориентации жилого здания даны в таблице 4.3.

Таблица 4.2

Расположение квартир по отношению к общему внеквартирному коридору

Расположение общего внеквартирного коридора в планировочной структуре здания

Количество уровней в квартире

Ориентация жилого здания коридорного типа

универсальная

широтная

меридиональная

Двухстороннее размещение квартир

Посередине дома

1

+

1 - 2*

+

2 - 3*

+

+

Поэтажно, со смещением от середины

1

+

1 - 2*

+

2 - 3*

+

Одностороннее размещение квартир

По одну сторону дома

1

+

1 - 2*

+

2 - 3*

+

Поэтажно, на различных сторонах дома

1

+

1 - 2*

+

2 - 3*

+

* С квартирами, ориентированными на две стороны горизонта.

4.1.6 Выбор типа жилого здания определяется градостроительными условиями его размещения, а также требованиями энергосбережения. Набор типов квартир в секционных, коридорных и галерейных жилых зданиях, строящихся в конкретных регионах, определяется с учетом демографических условий, а также ресурсообеспеченности жилищного строительства.

4.1.7 Квартиры для инвалидов, пользующихся для передвижения колясками, не рекомендуется проектировать в жилых зданиях, в планировочных решениях которых имеются перепады уровней между выходами из лестничных клеток и входами в квартиры. При необходимости применения таких планировочных решений ширину лестниц следует предусматривать с учетом возможности размещения подъемника, перемещаемого наклонно вдоль лестничного марша.

В квартирах, имеющих два уровня, жилые помещения для инвалида-колясочника следует проектировать на уровне входа в квартиру.

4.1.8 В зданиях секционного, коридорного и галерейного типов может быть устроен выход из квартир первого этажа на придомовую территорию, если в пределах этой территории предусмотрены приквартирные участки.

Площадь придомовой территории, в том числе размеры приквартирных участков, определяется в соответствии со СНиП 2.07.01, а также с учетом региональных особенностей.

Приквартирный участок может быть организован вдоль всего фронта квартиры или отдельных ее помещений.

Приквартирные участки не рекомендуется размещать в местах ввода коммуникаций в жилое здание или над местами транзитного прохода коммуникаций.

4.1.9 Блокированный тип многоквартирного жилого дома может иметь объемно-планировочные решения, при которых:

- один или несколько уровней одной квартиры располагаются над помещениями другой квартиры;

- автономные жилые блоки имеют общие входы, вспомогательные помещения, чердаки, подполья, шахты коммуникаций, а также инженерные системы.

Блокированные дома, автономные жилые блоки (квартиры) которых не имеют помещений, расположенных над помещениями других жилых блоков (квартир), общих входов, вспомогательных помещений, чердаков, подполий, шахт коммуникаций и при этом имеют самостоятельные системы отопления и вентиляции, а также индивидуальные вводы и подключения к внешним сетям централизованных инженерных систем, проектируются по СНиП 31-02.

4.1.10 Блокированный тип многоквартирного жилого дома проектируется с непосредственными выходами на приквартирный участок из каждой квартиры, в том числе при расположении ее выше первого этажа.

Размеры приквартирых участков для квартир блокированных жилых домов определяются заданием на проектирование по местным условиям с учетом демографической структуры населения.

В блокированном многоквартирном жилом доме, как правило, предусматривается развитая номенклатура подсобных и дополнительных помещений квартир, в том числе автостоянки, непосредственно связанные с квартирами.

Блокированные жилые дома могут проектироваться с квартирами различной формы плана (прямоугольной, Г-образной, Т-образной, криволинейной), в том числе позволяющей устройство внутренних двориков.

Квартиры, проектируемые в блокированных жилых домах, как правило, имеют параметры жилища повышенного уровня комфорта.

Таблица 4.3

Варианты расположения галереи в планировочном решении зданий галерейного типа

Количество уровней в квартире

Ориентация жилого здания галерейного типа

универсальная

широтная

меридиональная

С одной стороны

1

+

1 - 2*

+

2 - 3*

+

Поэтажно с различных сторон

1

+

1 - 2*

+

2 - 3*

+

* С квартирами, ориентированными на две стороны горизонта.

4.1.11 Смешанные типы жилых зданий (коридорно-секционных, секционно-блокированных, галерейно-блокированных и т.п.) имеют сложную планировочную структуру, составленную из объемно-планировочных элементов, характерных для различных типов жилых зданий (приложение Е, рисунок Е.5).

Применение смешанных типов жилых зданий определяется градостроительными условиями их размещения и требованиями энергосбережения.

Коридорно-секционный тип жилого здания объединяет планировочные структуры домов секционного и коридорного типов. Планировка коридорно-секционного здания позволяет сокращать количество лифтовых или лестнично-лифтовых узлов, обеспечивая проходы к ним по коридорному этажу, который может располагаться через несколько этажей по высоте дома (от двух до четырех). При этом промежуточные этажи имеют секционную структуру, а вертикальные коммуникации - лифтовые или лестнично-лифтовые узлы - могут быть включены в основной объем дома или размещаться на относе от него.

Для входа в квартиры, расположенные на секционных этажах, проектируют дополнительные лестничные клетки, соединяющие уровни коридорных и секционных этажей.

Секционно-блокированный тип жилого здания представляет собой планировочную структуру, в которой первые один или два этажа включают квартиры, имеющие входы с придомовой территории, а выше располагаются квартиры, объединяемые в секции. Входы в квартиры, располагаемые в секционных этажах, осуществляются по лестничным клеткам или посредством лестнично-лифтовых узлов, в которые допускается также устраивать входы из квартир блокированной части жилого дома этого типа.

Галерейно-блокированный тип жилого здания имеет планировочную структуру, в которой первые один или два этажа включают квартиры, имеющие входы с придомовой территории, а выше располагаются галерейные этажи.

Входы в квартиры, располагаемые на галерейных этажах, осуществляются по открытым лестницам, лестничным клеткам или посредством лестнично-лифтовых узлов, в которые допускается также устраивать входы из квартир блокированной части жилого дома этого типа

4.2 Приемы блокировки

4.2.1 Варианты секций для многосекционных жилых зданий включают (приложение Е, рисунок Е.6):

- секции с торцом слева или справа - для односторонней блокировки;

- рядовые секции или поворотные с углами поворота в 90°, 135° и другими - для двухсторонней блокировки;

- поворотные секции - для трех- или четырехсторонней блокировки.

Многосекционные жилые здания проектируются с линейной блокировкой или с формированием углов поворота.

Формирование углов поворота многосекционных жилых зданий может осуществляться за счет применения:

- секций с квартирами, имеющими комнаты непрямоугольных очертаний, расположенными в местах блокировки и формирующих угол поворота;

- секций с изломом в плане внешнего контура стен при непрямоугольных очертаниях комнат в квартирах, не расположенных в месте блокировки;

- секций с изломом контура наружных стен лестничной клетки или лестнично-лифтового узла;

- секций с изломом в плане контура наружных стен при непрямоугольных очертаниях комнат в квартирах, не расположенных в месте блокировки;

- секций с окончаниями, позволяющими присоединять секции в одном и более направлениях с поворотом под прямым и другими углами;

- секций со специальными окончаниями, обеспечивающими поворот на 90°, формируемый за счет сочетания во внешнем углу помещений квартир различных секций;

- секций с дополнительными поворотными элементами-вставками, включающими летние помещения, кладовые, жилые комнаты и т.д.

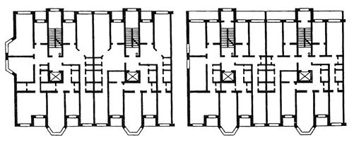
4.2.2 В коридорных и галерейных типах жилых зданий в качестве поворотных объемно-планировочных элементов блокировки могут быть

использованы лестнично-лифтовые узлы. При этом в части объема коридорного здания (приложение Е, рисунок Е.7), имеющего широтную ориентацию с центрально расположенным общим внеквартирным коридором, рекомендуется применять двухуровневые квартиры, ориентированные на противоположные стороны.

4.2.3 Для блокированных типов жилых домов применяются следующие варианты блокировки квартир (приложение Е, рисунок Е.7):

- линейная блокировка (в том числе зеркальная) - однорядная при неограниченной ориентации и двухрядная при ограниченной ориентации;

- блокировка со сдвигом квартир в плане (в одну или в разные стороны, а также зеркальная) - однорядная и двухрядная;

- блокировка в виде сложных структур, в том числе сетчатых.

Блокировка квартир может осуществляться по вертикали, при этом квартиры верхнего уровня имеют вход с придомовой территории через свою обособленную лестничную клетку или лестницу.

4.3 Энергосберегающие объемно-планировочные решения

4.3.1 Энергосберегающие объемно-планировочные решения жилых зданий обеспечиваются:

- сокращением площади поверхности наружных стен за счет уменьшения изрезанности объема здания;

- увеличением ширины корпуса с учетом нормативных требований по освещенности помещений (приложение Е, рисунок Е.8);

- увеличением протяженности здания с учетом градостроительных ситуаций;

- увеличением суммарной площади квартир на этаже с учетом противопожарных требований;

- применением планировочных элементов, способствующих повышению теплоэффективности жилого дома (в том числе использование незадымляемых лестничных клеток типов Н2 или Н3 и обычной лестничной клетки типа Л2 с верхним освещением).

4.3.2 Обеспечение энергоэффективности многосекционных жилых зданий за счет увеличения выхода площади на этаже секции рекомендуется осуществлять (приложение Е, рисунок Е.9):

- в жилых домах с прямыми рядовыми или поворотными секциями - за счет увеличения ширины секции на торце;

- в жилых домах с широтными Т-образными секциями - за счет увеличения количества квартир на этаже до 6-8;

- в угловых секциях (с углом поворота на 90°) - за счет размещения по наружному световому фронту максимального количества квартир.

4.3.3 В жилых зданиях (секционного, коридорного, коридорно-секционного и галерейного типов) государственного и муниципального жилищных фондов увеличение выхода суммарной площади жилья на этаже, обеспечивающей повышение их энергоэффективности, может быть достигнуто:

- в широтных зданиях - за счет применения квартир с большим числом комнат, а также за счет увеличения количества квартир на этаже секции;

- в протяженных меридиональных домах (в том числе со сдвижкой в плане) - за счет увеличения количества квартир на этаже и уменьшения удельного периметра наружных стен.

4.4 Шумозащищенные жилые здания

4.4.1 Снижение шума в жилых домах может осуществляться путем применения:

- специальной шумозащищенной планировки с преимущественной ориентацией на магистральную улицу подсобных и дополнительных помещений квартир, общих комнат 3-комнат-ных квартир, а также внеквартирных помещений;

- конструктивных средств шумозащиты наружных ограждающих конструкций;

- окон и балконных дверей с повышенными звукоизолирующими свойствами;

- технических средств шумозащиты, в том числе клапанов-глушителей и др., при обеспечении нормативного воздухообмена в квартире.

4.4.2 При размещении жилых зданий на территории с повышенным уровнем транспортного шума вблизи транспортных магистралей шумозащищенные жилые здания проектируют (приложение Е, рисунок Е.10):

- с обычной планировкой и конструктивно-техническими средствами шумозащиты;

- со специальной шумозащищенной планировкой;

- со специальной шумозащищенной планировкой и конструктивно-техническими средствами шумозащиты.

При размещении шумозащищенных жилых зданий рекомендуется применять частично ограниченную или ограниченную ориентацию для застройки южной, восточной и западной сторон магистральных улиц и универсальную ориентацию - для застройки любой из сторон магистральных улиц.

Для магистральных улиц, имеющих отклонение от меридиана (или параллели), выбор типа шумозащищенного здания в зависимости от условий его постановки по сторонам света осуществляется с учетом обеспечения квартир нормативной инсоляцией.

По характеру защиты жилых помещений от транспортного шума планировочно шумозащищенные жилые здания могут проектироваться:

- с полной планировочной шумозащитой жилых помещений, при которой окна всех спален и общих комнат (гостиных) ориентированы в сторону акустической тени;

- с неполной планировочной шумозащитой жилых помещений, при которой на магистральную улицу с повышенным уровнем шума ориентированы окна общих комнат (гостиных) квартир с числом жилых комнат 3 и более, а окна спален во всех типах квартир и общих комнат 1 - 2-комнатных квартир - в сторону акустической тени.

4.4.3 При застройке территорий с обычным рельефом и распространении транспортного шума с магистральной улицы, расположенной на уровне жилой застройки, но не выше защищаемой территории, планировочно шумозащищенные жилые здания проектируются со следующими объемно-планировочными характеристиками:

- с конфигурацией плана - П-, С-образной, а также близкой к ним, в том числе О-образной и усложненной (при обосновании акустическими расчетами);

- с протяженностью фронта жилого здания: вдоль магистральной улицы - от 100 м и более, а объемов, расположенных перпендикулярно к улице, - от 30 м и более;

- высотой - не менее 20 м; меньшая высота допускается при обосновании акустическими расчетами.

В случаях размещения жилых зданий на территории со значительным рельефом, а также расположения транспортной магистрали ниже защищаемой территории высота шумозащищенного здания уточняется расчетами, исходя из условий распространения звука.

4.4.4 В планировочно шумозащищенных жилых зданиях на сторону магистральных улиц с повышенным уровнем транспортного шума могут быть ориентированы следующие помещения:

- общая комната (гостиная) в квартирах с числом жилых комнат 3 и более;

- подсобные помещения квартир;

- летние помещения квартир, в том числе остекленные;

- внеквартирные помещения, в том числе: коридоры, холлы, лестничные клетки, лифтовые холлы, помещения системы мусороудаления, хозяйственные кладовые и внеквартирные летние помещения (лоджии, балконы и террасы).

В квартирах, расположенных в жилых зданиях, не входящих в состав муниципального и государственного жилищных фондов, на сторону магистральных улиц с повышенным уровнем транспортного шума допускается ориентировать вышеперечисленные помещения, а также окна дополнительных помещений.

4.4.5 При застройке северной стороны магистральной улицы следует применять планировочно шумозащищенные жилые здания универсальной ориентации коридорно-секционной, коридорной или секционной структуры с центральным коридором и квартирами, расположенными в двух уровнях, или секционной структуры с двумя одноуровневыми квартирами на этаже секции, ориентированными на две стороны горизонта.

4.4.6 В шумозащищенных жилых зданиях следует применять:

- конструкции наружных стен с индексами звукоизоляции не ниже нормируемых;

- окна с эффективным остеклением, обеспечивающим в закрытом положении снижение транспортного шума на величину 28 - 39 дБА, в том числе с раздельным двойным остеклением, с тройным остеклением (раздельно-спаренные со стеклопакетом и стеклом или с двухкамерным стеклопакетом).

4.4.7 При застройке магистральных улиц жилыми зданиями с обычной планировочной структурой для обеспечения требований СН 2.2.4/2.1.8.562 и СНиП 23-03 по защите жилища от транспортного шума следует применять конструктивные средства (шумозащитные окна и балконные двери), а также технические устройства (вентиляционные клапаны-глушители и др.).

4.4.8 Применяемые технические устройства должны обеспечивать снижение проникающего шума в жилые помещения до нормативных значений при работе данных устройств в режиме проветривания или при других способах подачи воздуха в помещения, применяемых с целью достижения нормативного воздухообмена.

4.5 Объемно-планировочные решения, обеспечивающие нормируемую инсоляцию и повышение плотности застройки

4.5.1 Обеспечение в жилище нормируемой инсоляции при проектировании застройки повышенной плотности (в том числе в условиях реконструкции) осуществляется за счет:

- оптимальной постановки объемов жилых зданий при обеспечении нормируемых расстояний между взаимозатеняющими фасадами (приложение Е, рисунок Е.11);

- оптимального подбора жилых зданий и секций по ориентации (широтной, меридиональной, универсальной);

- размещения помещений общественного назначения в нижних двух (в крупных и крупнейших городах - трех) этажах, попадающих в тень.

4.5.2 В условиях высокоплотной застройки и в зависимости от градостроительных условий рекомендуется применять:

- различные приемы блокировки жилых зданий и секций (секции со сдвигом в плане, поворотные вставки и др.);

- жилые здания и секции с размещением лестничных клеток или лестнично-лифтовых узлов во внутреннем затеняемом углу застройки;

- ширококорпусные жилые здания и секции;

- ориентированные жилые здания;

- сочетание в плане выступающих и заглубленных элементов зданий (в том числе секций) с учетом нормируемой инсоляции жилых комнат;

- размещение в затеняемых зонах дома нежилых помещений, не требующих инсоляции;

- надстройку мансардными этажами;

- размещение вдоль магистральных улиц с повышенным уровнем шума планировочно шумозащищенных жилых зданий.

4.5.3 Многоэтажные ориентированные жилые здания рекомендуется проектировать: односекционными, многосекционными, коридорными (или галерейными), секционно-коридорными (или секционно-галерейными).

Эти жилые здания рекомендуется проектировать различной конфигурации (плана и объема): Т-образной; V-образной; ступенчатой, с развитием в трех и четырех направлениях и др. (приложение Е, рисунок Е.12).

4.5.4 Для уменьшения затенения помещений квартиры рекомендуется применять следующие приемы размещения летних помещений (лоджий, балконов, веранд):

- со смещением относительно оконного проема жилой комнаты;

- с расположением перед неглубоким помещением;

- с расположением перед помещением, не требующим инсоляции (кухней, передней), а также перед жилой комнатой при условии нормируемой обеспеченности инсоляцией остальных жилых комнат квартиры.

4.5.5 Для улучшения условий инсоляции жилых помещений в мансардных этажах (и верхних этажах с наклонными наружными конструкциями) целесообразно размещать оконные проемы в наклонных плоскостях кровли и ограждающих наружных стеновых конструкций.

4.6 Региональные особенности объемно-планировочных решений жилых зданий

4.6.1 На территориях I климатического района (кроме климатического подрайона IB) применяются следующие типы жилых зданий: секционный, коридорный и коридорно-секционный.

4.6.2 Для защиты от неблагоприятных климатических условий I района (кроме подрайона IB) многоквартирные жилые здания проектируются:

- с компактным объемом, по возможности с обтекаемой формой, во избежание снегозаносов (в климатических подрайонах IБ и IГ с пурговыми условиями - при выпадении снега, сопровождаемого ветром 5 м/с и более);

- с широким корпусом при минимальной удельной площади периметра наружных стен;

- с глухими торцевыми фасадами с наветренной стороны здания;

- с минимальным количеством входов в здание и двойными тамбурами при входах;

- с проветриваемым подпольем (в условиях вечной мерзлоты);

- с закрытыми отапливаемыми лестницами.

При этом в особо суровых условиях рекомендуется проектировать криптоклиматические комплексы (согласно рисунку 3 СНиП 23-01).

4.6.3 Для уменьшения теплопотерь рекомендуется проектировать жилые здания большой протяженности высотой 9 этажей и более, в том числе жилые здания меридиональной ориентации с 6 - 12 квартирами на этаже секции, а также здания с применением широтных секций с числом квартир на этаже 4 и более.

4.6.4 Для повышения тепловой эффективности жилых зданий рекомендуется применять планировочные решения с широким корпусом, имеющим лестничную клетку типа Л2 с верхним освещением (согласно 6.35 и 6.39 СНиП 21-01), а в 4-этажных жилых зданиях, как правило, и лифтовой узел, примыкающий к этой лестничной клетке (если лифт в 4-этажном здании предусмотрен заданием на проектирование).

4.6.5 На территориях климатических подрайонов IБ, IГ, IIА и IIГ для создания ветрозащитной жилой застройки следует применять жилые здания секционного, коридорного, коридорно-секционного типов с ветрозащитными планировочными решениями.

4.6.6 Допускается использовать жилые здания указанных типов с обычными планировочными решениями, располагая их с подветренной стороны жилых зданий, выполненных с ветрозащитными мероприятиями.

При этом в жилых зданиях с обычными планировочными решениями наветренные фасады должны иметь минимальные по площади оконные проемы при обеспечении нормативных требований по инсоляции и освещенности, а на благоприятных по ветровому режиму фасадах для улучшения условий инсоляции помещений рекомендуется проектировать эркеры с асимметричной формой плана.

4.6.7 На территориях климатических подрайонов IA, IБ, IГ и IД входы в жилые здания должны быть утеплены, а на территориях IБ и IГ, кроме того, защищены от ветра и снегозаносов. При этом рекомендуется заглублять их в объем жилого здания, а входные двери предусматривать самозакрывающимися. На территориях климатических подрайонов IБ и IГ рекомендуется проектировать входы в жилые здания с двух сторон, со сквозным проходом, с проходом к лестничной клетке (или лестнично-лифтовому узлу) через тамбур и вестибюль (для снижения инфильтрации холодного воздуха).

4.6.8 На территориях климатических подрайонов IA, IБ, IГ и IД в жилых зданиях высотой 4 этажа и более следует исключить совмещенные кровли, предусматривая утепленные (или отапливаемые) чердачные помещения.

4.6.9 На территориях климатических подрайонов IA и IД с особо морозными условиями в целях защиты от низких температур следует проектировать крытые отапливаемые переходы от жилых зданий к зданиям повседневного общественного обслуживания (детским дошкольным и общеобразовательным учреждениям, предприятиям розничной торговли повседневного спроса).

На территориях климатических подрайонов IБ и IГ с пурговыми условиями во избежание образования наледей следует проектировать между жилыми и общественными зданиями крытые неотапливаемые вентилируемые переходы.

4.6.10 На территориях климатического подрайона IB, II и III климатических районов рекомендуется проектировать многоквартирные жилые здания секционного, коридорного, коридорно-секционного и блокированных типов, а также смешанных типов - секционно-блокированного, коридорно-блокированного с учетом требований разделов 4.3 и 4.5 данного Свода правил.

Допускается проектировать галерейные жилые здания при условии устройства между ними перекрытого внутреннего двора.

4.6.11 На территориях климатических подрайонов IVБ и IVГ рекомендуется проектировать многоквартирные жилые здания следующих типов: секционные, коридорные, галерейные (кроме территорий с пыльными бурями), блокированные (2 - 3 - этажные с приквартирными двориками в плотной застройке), а также смешанных типов. Рекомендуется, при необходимости, проектировать жилые здания с шумозащищенными планировочными структурами и ветрозащитными решениями.

При этом следует обеспечивать микроклимат жилища путем сквозного или углового проветривания помещений квартир, применения кондиционирования воздуха, элементов солнцезащиты, в том числе устройств вертикального озеленения, и т.д.

4.6.12 На территориях климатического подрайона ГУБ с повышенной влажностью воздуха жилую застройку следует проектировать, обеспечивая ее интенсивное проветривание. При этом рекомендуется предусматривать постановку жилых зданий, обеспечивающую максимальную аэрацию придомовой территории, а также формирование открытых рекреационных пространств.

Рекомендуется применять:

- галерейные и секционно-галерейные жилые здания с узким корпусом, как правило около 10 м, обеспечивающим малую тепловую инерцию (приложение Е, рисунок Е.13);

- лестничные клетки типов Л1 и Л2 с решетчатыми ограждениями;

- незастроенные (частично или полностью) первые этажи;

- ветрозащитные экраны, козырьки, свесы крыш, отмостки из светлых материалов, сплошной фронт лоджий или балконов с раскрываемым (трансформируемым) остеклением для влагозащиты наветренных фасадов;

- солнцезащитные устройства, в том числе солнцезащитные экраны на относе, скомпонованные с летними помещениями, располагаемыми вдоль одного или двух фасадов;

- наружные стены, расположенные между лоджией, ориентированной на наветренную сторону, и примыкающим помещением, с балконными дверями, имеющими две и более раскрываемые или раздвигаемые створки (приложение Е, рисунок Е.14).

4.6.13 На территориях климатического подрайона IVГ со скоростью ветра до 2 м/с без пыльных бурь рекомендуется применять многоквартирные жилые здания:

- секционного, коридорного и коридорно-секционного типов этажностью, как правило, до 9 этажей - с лоджиями, расположенными со смещением по отношению к оконному проему, и с шахтами для аэрации;

- с открытыми пространствами общего пользования на промежуточных этажах в многоэтажных жилых зданиях;

- блокированные 2 - 3 - этажные жилые дома с внутренними двориками.

4.6.14 На территориях климатического подрайона IVГ со скоростями ветра 2 - 5 м/с рекомендуется применять жилые здания:

- галерейного типа с лоджиями, в том числе используемыми в качестве затеняющих элементов;

- со сквозным проветриванием квартир, обеспечиваемым за счет устройства дверных проемов или раздвижных перегородок между помещениями, ориентированными на противоположные фасады дома;

- с регулируемыми солнцезащитными устройствами различных типов в зависимости от ориентации фасадов;

- с летними помещениями, оборудованными раскрываемым остеклением;

- с открытыми пространствами общего пользования, расположенными в пределах промежуточных этажей или фрагментов этих этажей;

- с вентилируемым чердаком (в том числе техническим);

- с устройством мест для сушки белья для группы квартир - в помещении вентилируемого чердака или в отдельном помещении, примыкающем к лестничной клетке;

- с эксплуатируемыми кровлями, защищенными от перегрева навесами различных типов, элементами озеленения и др.

4.6.15 На территориях климатического подрайона IVГ со скоростью ветра более 5 м/с и высокой запыленностью воздуха жилую застройку следует защищать от преобладающих ветров и пыльных бурь, формируя замкнутый периметр из протяженных жилых зданий, а при отдельно стоящих жилых зданиях - формировать замкнутые дворы.

В зависимости от ориентации жилых зданий по отношению к преобладающим ветрам в зданиях периметральной застройки или в отдельно стоящих зданиях с замкнутыми дворами рекомендуется использовать обычные или пыле- и ветрозащитные планировочные решения.

В этом подрайоне рекомендуется применять жилые здания с широким корпусом (как правило, порядка 18 м) с горизонтально-вертикальной схемой проветривания двухсторонне ориентированных квартир и лестничных клеток.

5 Планировочные элементы жилых зданий

5.1 Входная группа помещений

5.1.1 Входная группа и минимально необходимый состав помещений при ней принимаются в зависимости от региональных особенностей района строительства и уровня комфорта проживания, определяемых заданием на проектирование.

5.1.2 Входную группу помещений многоквартирных жилых зданий (кроме блокированных) рекомендуется проектировать, включая:

- тамбур (одинарный или двойной в зависимости от климатического района строительства);

- вестибюльную зону;

- помещения для дежурного по подъезду. В реконструируемых жилых зданиях вестибюльную зону допускается не предусматривать.

По заданию на проектирование в составе входной группы предусматриваются помещения колясочных (для хранения детских и уличных кресел-колясок).

Планировка входной группы должна обеспечивать доступность жилища для маломобильных групп населения с учетом установленных в СНиП 35-01 требований (к устройству пандусов при входах, входных площадок, к параметрам тамбуров, подъемников в вестибюльной зоне и т.п.).

При новом строительстве рекомендуется также применение лифтов с остановкой кабины на уровне пола вестибюля.

Входная площадка перед входом в жилое здание должна быть оборудована навесом и водоотводом. С учетом местных климатических условий рекомендуется предусматривать подогрев этой площадки и пандусов при входе.

5.1.3 Планировочные решения тамбуров многоквартирных жилых зданий следует предусматривать с учетом климатических условий района строительства и этажности жилых зданий в соответствии с правилами, установленными в СНиП 31-01.

5.1.4 Помещения вестибюля в многоквартирных жилых зданиях (кроме блокированных) могут быть:

- встроенными (или встроенно-пристроенными) и пристроенными;

- размещаемыми в отдельном объеме;

- размещаемыми в пространстве частично незастроенного первого этажа.

Расположение вестибюля может быть различным в плане жилого здания и взаимосвязано с размещением лифтов. Применяются варианты размещения вестибюля по отношению к узлу вертикальных коммуникаций в смежной с лестнично-лифтовым узлом (ЛЛУ) конструктивно-планировочной ячейке или в противоположной ему.

5.1.5 Помещение для дежурного по подъезду (или помещение охраны) следует располагать таким образом, чтобы из него был обеспечен визуальный обзор двери, ведущей из тамбура в вестибюль жилого здания (при отсутствии вестибюля - обзор проходов к лифтам и лестничной клетке). Возможно устройство видеонаблюдения для наружного обзора входа в жилое здание и прилегающей территории.

В помещении дежурного по подъезду следует предусматривать телефонную связь с помещениями объединенной диспетчерской службы (ОДС), переговорную связь через домофон, а по заданию на проектирование - также с квартирами.

В составе помещений для дежурного по подъезду следует предусматривать рабочее помещение площадью не менее 3,5 м2 и санузел, оборудованный раковиной и унитазом. Вход в санузел устраивается из рабочего помещения. Размещение спального места в помещении для дежурного по подъезду не допускается.

Помещение для дежурного по подъезду должно быть выгорожено конструкциями из материалов группы НГ и оборудовано автономным пожарным извещателем, а в зданиях высотой более 28 м - автоматической пожарной сигнализацией.

5.1.6 На первом этаже рекомендуется предусматривать кладовую для хранения уборочного инвентаря, оборудованную раковиной. Располагать кладовую рекомендуется смежно с помещением дежурного по подъезду, допускается ее размещение в цокольном или подвальном этаже с устройством входа снаружи.

5.1.7 В многоквартирных жилых зданиях (кроме блокированных) абонентские шкафы рекомендуется размещать:

- при наличии лифтов - в вестибюлях, лифтовых холлах или проходах к лифтам;

- при отсутствии лифтов - в вестибюлях, на основной или промежуточной лестничной площадке первого этажа и в проходах к лестницам.

При размещении почтовых абонентских шкафов следует руководствоваться их габаритами, при этом должны быть обеспечены нормативные параметры проходов.

В вестибюлях с большой площадью остекления, с художественной отделкой или облицовкой стен ценными материалами абонентские шкафы допускается устанавливать на полу.

5.1.8 Абонентские шкафы навешивают непосредственно на стены или устанавливают в нишах на высоте не менее 0,6 м от пола. Как правило, шкафы не следует навешивать на стены, примыкающие к жилым помещениям квартир. Места установки абонентских шкафов должны быть освещены.

Индивидуальные абонентские шкафы в блокированных жилых домах рекомендуется устанавливать рядом со входами в квартиры или на приквартирные участки, а объединенные абонентские шкафы - на границе участков.

5.1.9 В первом, цокольном или подвальном этажах многоквартирных жилых зданий могут устраиваться внеквартирные хозяйственные кладовые для жильцов дома, число их определяется в задании на проектирование. Ширина коридоров перед ними должна быть не менее 1,1 м.

В помещениях внеквартирных хозяйственных кладовых рекомендуется предусматривать систему спринклерного пожаротушения или другие системы противопожарной защиты по согласованию с местными отделами государственного пожарного надзора. Расход воды для расчета спринклерных систем - 1,8 л/с.

Для системы спринклерного пожаротушения (при гарантированном нормативном давлении воды) рекомендуются: присоединение трубопроводов спринклерных систем к хозяйственно-питьевому водопроводу без установки контрольно-сигнального клапана; установка спринклерных головок в каждой хозяйственной кладовой; установка в местах подключения спринклерной системы к хозяйственно-питьевому водопроводу запорного устройства, опломбированного в открытом положении; установка в отсеках этажа датчиков сигнализации в помещение ОДС; зазор между ограждениями соседних кладовых размером 0,05 - 0,1 м.

5.1.10  В блокированных жилых домах, расположенных по красной линии улицы, уровень пола квартир рекомендуется делать выше тротуара (или осевой линии проезда при отсутствии тротуара) на высоте не менее 0,5 м. Определение конкретного уровня пола зависит от величины снежного покрова района строительства.

При этом рекомендуется делать два входа в квартиру (кроме жилых зданий, расположенных в климатическом подрайоне IB): основной, ведущий в переднюю, и второй - в хозяйственную зону. При основном входе в квартиру жилых домов, проектируемых в I и II климатических районах, размер тамбура рекомендуется принимать не менее 1,65´1,65 м (при проходе с поворотом), а в условиях температур самой холодной пятидневки ниже минус 35 °С - выполнять двойным. В районах с высоким уровнем снегового покрова рекомендуется открывать двери тамбура внутрь помещения. Крыльцо должно иметь площадку размером не менее 1,2´1,2 м с местом для детской коляски и скамьи, а также лестницу шириной не менее 1 м. Над крыльцом, включая ступени, необходимо устраивать навес.

5.2 Эвакуационные пути, лестничные клетки и лестницы

5.2.1 Пути эвакуации в жилых зданиях проектируются исходя из определенных граничных параметров в соответствии со СНиП 21-01 и СНиП 31-01.

К минимально нормируемым параметрам относятся:

- ширина внеквартирных коридоров, составляющая: при длине коридора до 40 м - 1,4 м; свыше 40 м - 1,6 м;

- ширина галереи - 1,2 м;

- ширина марша внеквартирных лестниц, ведущих на жилые этажи зданий секционного типа (и смешанного типа - секционно-блокированного), - 1,05 м;

- ширина марша внеквартирных лестниц, ведущих на жилые этажи зданий коридорного и галерейного типов, а также смешанных типов - секционно-коридорного, галерейно-секционного, галерейно-блокированного и коридорно-блокированного - 1,2 м.

5.2.2 При выборе типов и количества лестничных клеток (и лестниц) для домов секционного, коридорного и галерейного типов следует учитывать ограничения, связанные с величиной суммарной общей площади квартир на этаже и высотой расположения верхнего этажа жилого здания, с учетом требований СНиП 31-01 и СНиП 21-01.

Выбор типов лестничных клеток для коридорно-секционных жилых домов следует осуществлять:

- для секционных структур - с учетом суммарной общей площади квартир на этаже секции, а также высоты расположения верхнего секционного этажа;

- для коридорных структур - с учетом суммарной общей площади квартир на этаже, а также высоты расположения верхнего коридорного этажа.

При выборе типов лестничных клеток для жилых зданий следует учитывать также требования энергосбережения, повышения экономической эффективности принимаемых решений, безопасности проживания.

5.2.3 В многоквартирных жилых зданиях в качестве эвакуационных путей следует применять:

обычные лестничные клетки, в том числе (приложение Е, рисунок Е.15):

- типа Л1 - с остекленными или открытыми световыми проемами в наружных стенах на каждом этаже;

- типа Л2 - с верхним естественным освещением через остекленные или открываемые проемы в покрытии с учетом требований 6.35 и 6.39* СНиП 21-01;

незадымляемые лестничные клетки, в том числе (приложение Е, рисунок Е.16):

- типа H1 - с входом в лестничную клетку с этажа через наружную воздушную зону по открытым переходам (при обеспечении незадымляемости перехода через воздушную зону);

- типа Н2 - с подпором воздуха в лестничную клетку при пожаре;

- типа Н3 - с входом в лестничную клетку с этажа через тамбур-шлюз с подпором воздуха (постоянным или при пожаре).

5.2.4 Лестничная клетка типа Л1 применяется в жилых зданиях высотой до 28 м. Она характеризуется наличием на каждом этаже остекленных (или открытых) проемов в наружных стенах площадью не менее 1,2 м2.

5.2.5 Лестничная клетка типа Л2 применяется в жилых зданиях высотой, как правило, не более 9 м. Допускается ее применение в жилых зданиях высотой до 12м. Она характеризуется наличием в покрытии остекленных (или открытых) проемов площадью не менее 4 м2 или световых фонарей.

В лестничных клетках типа Л2 следует предусматривать просветы между маршами шириной не менее 0,7 м или световую шахту на всю высоту лестницы площадью горизонтального сечения не менее 2 м2. Для удаления дыма в случае возникновения пожара следует предусматривать открывающиеся створки (фрамуги) в остекленных световых проемах в покрытии или световом фонаре. Открывание створок может осуществляться вручную (при высоте здания до 9 м) и дистанционными устройствами (при высоте до 12 м).

В жилых зданиях высотой до 12 м с лестничной клеткой Л2 следует предусматривать в квартирах автоматическую пожарную сигнализацию, а из квартир, располагаемых выше 4 м, также аварийный выход в соответствии с 6.20* СНиП 21-01.

Лестничная клетка типа Л2, как правило, выполняется в центре плана секции или одно-секционного жилого здания, при этом в ее объеме могут размещаться двух-, трех- и четырехмаршевые лестницы. При двух- и четырехмаршевых лестницах входы в квартиры могут устраиваться с обеих площадок - с поэтажной и промежуточной, при трехмаршевой - с одной лестничной площадки.

5.2.6 Незадымляемую лестничную клетку типа H1 следует проектировать в жилых зданиях при высоте расположения верхнего этажа более 28 м. Данный тип лестничной клетки характеризуется устройством входа в нее через тамбур из поэтажного коридора или холла через наружную воздушную зону по балкону, лоджии, открытому переходу, галерее. Ширина прохода по воздушной зоне должна быть не менее 1,2 м, ширина прохода к воздушной зоне - не менее 1,1 м с возможностью беспрепятственной транспортировки носилок с лежащим на них человеком.

Лестничную клетку типа H1 допускается располагать во внутренних углах жилых зданий, при этом следует обеспечивать незадымляемость воздушной зоны с учетом требований 6.37 СНиП 21-01, в том числе обеспечивая расстояние между дверными проемами лестничной клетки и ближайшим окном - не менее 2 м, а ширину простенка между дверными проемами в наружной воздушной зоне - не менее 2 м.

Требование устройства тамбуров при всех выходах из здания распространяется и на выходы из незадымляемых лестничных клеток в уровне первого этажа. Выходы из лестничных клеток и поэтажных коридоров или холлов в воздушную зону на других этажах следует также осуществлять через тамбуры.

5.2.7 Незадымляемые лестничные клетки типов Н2 и Н3 допускается проектировать в крупных и крупнейших городах (с учетом требований СНиП 31-01) при высоте расположения верхнего этажа более 28 м и до 50 м включительно. Данные типы лестничных клеток допускаются и при меньшей высоте расположения верхнего этажа жилого здания.

Проход к незадымляемой лестничной клетке типа Н2 следует осуществлять через тамбур (или коридор), допускается проход через лифтовой холл при применении в лифтах противопожарных дверей с EI 30.

Незадымляемые лестничные клетки типа Н2 характеризуются устройством подпора воздуха при пожаре непосредственно в лестничную клетку. Такие лестничные клетки целесообразно разделять по вертикали на отсеки через 7 - 8 этажей для сокращения объема, в котором следует создавать подпор.

Подпор воздуха в отсеках обеспечивается подачей воздуха в верхние зоны отсеков. Величина подпора воздуха должна составлять не менее 20 Па на нижнем этаже отсека при одной открытой двери.

Незадымляемые лестничные клетки типа Н3 характеризуются устройством подпора воздуха при пожаре в тамбур-шлюз перед лестничной клеткой.

5.2.8 Аварийный выход является обязательным в секционных жилых зданиях для каждой квартиры с высотой расположения этажа 15 м и более.

Допускается предусматривать в квартирах в пределах этажа различные варианты аварийных выходов, в том числе:

- выход из квартиры на балкон или лоджию (в том числе остекленные) с зоной безопасности в виде простенка между остекленными проемами или остекленным проемом и торцом летнего помещения;

- выход из квартиры на переход шириной не менее 0,6 м, ведущий в смежную секцию;

- выход из квартиры (коридора или лифтового холла) на балкон или лоджию, оборудованную наружной лестницей, поэтажно соединяющей балконы или лоджии.

Зона безопасности - это место в виде глухого простенка между остекленными проемами или остекленным проемом и торцом летнего помещения, предназначенное для нахождения людей при пожаре. Такие простенки должны выполняться из негорючих материалов и иметь ширину от остекленного проема до негорючей преграды (торца лоджии или балкона) не менее 1,2 м или между остекленными проемами в пределах квартиры - не менее 1,6 м.

5.2.9 Наружная лестница 3-го типа выполняется шириной не менее 0,7 м и с уклоном 1:1. При этом она может быть одномаршевая или двухмаршевая различной конфигурации, опираться на столбы или консоли и может примыкать к открытым помещениям для сушки белья и т.п.

5.2.10 Внутриквартирную лестницу в блокированных домах и квартирах в двух и более уровнях в других типах жилых зданий рекомендуется устраивать в передней или коридоре, допускается - в общей комнате.

Лестничную площадку второго этажа целесообразно увеличивать и при наличии естественного освещения организовать в виде холла.

Параметры внутриквартирной лестницы должны рассчитываться по формуле

2b+a = 60 - 64 см,

где а - размер проступи;

b - размер подступенка;

величина 60 - 64 см - размер среднего шага человека.

Минимальная ширина марша может быть принята равной 0,9 м. Высота прохода по лестничным маршам до низа выступающих конструкций должна быть не менее 2 м.

5.2.11 Аварийные выходы на кровлю следует проектировать согласно требованиям СНиП 21-01.

5.3 Лифтовые узлы и планировочные приемы размещения мусорокамеры и мусоропровода

5.3.1 Минимальное число лифтов рассчитывается с учетом этажности и суммарной площади квартир на этаже по СНиП 31-01 и приложению Г данного документа.

Минимально нормируемая ширина лифтового холла принимается в зависимости от количества, размещения и грузоподъемности лифтов согласно СНиП 31-01, при этом компоновка лифтов может быть одно- или двухрядной.

5.3.2 Группу лифтов надлежит оснащать системой группового управления. С этой целью на каждом этаже устанавливается один вызывной кнопочный пост на группу лифтов. На вызов система группового управления направляет один из лифтов группы, что обеспечивает минимальное время ожидания и исключает движение на один вызов нескольких лифтов. Лифты следует устанавливать так, чтобы выходы из них были расположены, как правило, в общем лифтовом холле. За ширину лифтового холла принимается расстояние от двери кабины до противоположной стены холла при однорядной компоновке или между дверями кабин противолежащих лифтов при двухрядной компоновке. При этом необходимо предусматривать возможность беспрепятственного прохода в кабину лифта носилок и крупногабаритных грузов.

5.3.3 В зданиях общежитий коридорного и галерейного типов возможно устанавливать пассажирские лифты, предназначенные для общественных зданий.

По заданию на проектирование возможна установка лифтов в блокированных жилых домах.

5.3.4 Все пассажирские лифты должны подключаться к диспетчерскому пункту контроля. В жилом здании (группе жилых зданий) должно быть предусмотрено помещение для установки диспетчерского оборудования. Между диспетчерской, кабинами и машинными отделениями лифтов должна быть обеспечена громкоговорящая или телефонная связь. Целесообразно объединение диспетчерской лифтов с диспетчерскими пунктами другого инженерного оборудования зданий.

5.3.5 Размещение лифтов в плане жилого здания связано с его объемно-планировочным решением. Компоновка лифтов обусловливается этажностью, суммарной площадью квартир и схемой плана жилого здания. Применяются следующие схемы компоновки узлов вертикальных коммуникаций: компактная, с островным положением лифтовой группы и рассредоточенная.

5.3.6 Компактная схема вертикальных коммуникаций характеризуется смежным расположением лестничной клетки и лифтов и применяется в многосекционных жилых зданиях, в том числе с трехлучевой формой плана, возможна в жилых зданиях односекционных с Z-образной формой плана, а также коридорного и коридорно-секционного типов.

Для односекционных зданий характерна, как правило, компоновка узла вертикальных коммуникаций с островным расположением лифтовой группы в геометрическом центре здания, при этом вокруг нее, как правило, устраивается коридор, ведущий к лестничным клеткам типов Л1, Н2, Н3 или к воздушной зоне лестничной клетки типа H1.

Рассредоточенная схема расположения вертикальных коммуникаций применяется в коридорных жилых зданиях. При этой схеме, как правило, лифтовая группа размещается в центре жилого здания на пересечении коридоров, а лестничные клетки - отдельно от нее. Данная схема расположения узлов вертикальных коммуникаций применяется также в жилых зданиях с Т-образной или трехлучевой формой плана.

Рассредоточенная схема вертикальных коммуникаций может применяться в секционно-коридорных и секционно-галерейных жилых зданиях с обслуживанием нескольких секций одной группой лифтов.

5.3.7 В галерейных жилых зданиях возможно большее разнообразие в компоновке узлов вертикальных коммуникаций. Это обусловлено тем, что группы лифтов могут примыкать к внеквартирным галереям на любом их отрезке. При этом в жилых зданиях для IV климатического района лифты могут размещаться за пределами отапливаемого объема.

5.3.8 Жилые здания могут быть оборудованы лифтами, как имеющими машинные помещения, так и без машинных помещений. При оборудовании зданий пассажирскими лифтами с машинными помещениями эти помещения предпочтительно располагать на уровне чердака или верхнего технического этажа. Расположение машинного помещения на уровне верхнего жилого этажа нежелательно, так как при таком расположении уровень комфортности обслуживания населения этих этажей будет ниже, чем у населения других этажей. При этом необходимо иметь в виду, что должны быть обеспечены пути перемещения людей, крупногабаритных грузов (мебели, пианино и т.п.), а также больного на носилках скорой помощи с этажа верхней остановки до этажа расположения машинных помещений.

Машинные помещения лифтов допустимо располагать внизу на уровне приямка лифта. Однако такое расположение машинного помещения электрических пассажирских лифтов не предусмотрено ГОСТ 5746 и является нестандартным. При расположении машинных помещений в уровне верхнего заселенного и мансардного этажей для обеспечения акустического комфорта в квартирах рекомендуются:

- отделение машинного помещения от квартир общими внеквартирными коридорами;

- примыкание к машинному помещению подсобных или дополнительных помещений квартир (внутриквартирных коридоров, гардеробных и др.).

5.3.9 В жилых зданиях секционного, коридорного или галерейного типов с одноуровневыми квартирами остановки лифтов могут быть запроектированы в следующих вариантах:

- на уровне пола каждого этажа;

- на уровне пола промежуточной лестничной площадки между этажами.

При наличии в жилом здании мансардного этажа с одноуровневыми квартирами допускается предусматривать последнюю остановку лифта (лифтов):

- на промежуточной лестничной площадке;

- на уровне пола нижележащего этажа.

В жилых домах с 2 - 3 - уровневыми квартирами остановки лифтов могут выполняться как через этаж, так и на каждом этаже.

В новом строительстве рекомендуется в жилых зданиях предусматривать уровень остановки лифтов (кроме первого этажа) в одном уровне с входами в квартиры. При реконструкции жилых зданий допускается располагать уровень остановки лифта смещенным по высоте к уровню входов в квартиры*, при этом размеры промежуточной площадки должны позволять загрузить в лифт больного на носилках скорой медицинской помощи.

__________

* Это планировочное решение не рекомендуется при необходимости проектирования в жилом здании квартир для инвалидов-колясочников.

5.3.10 В зависимости от принятой в районе строительства системы мусороудаления жилые здания могут проектироваться с мусоропроводами или без них. Мусоропроводы следует проектировать с учетом требований СНиП 31-01 и СП 31-108.

Расстояние от двери квартиры до ближайшего загрузочного клапана мусоропровода не должно превышать 25 м.

При расположении в верхних этажах жилого здания многоуровневых квартир за расчетную отметку, определяющую оборудование домов мусоропроводами, следует принимать отметку входа в квартиру.

5.3.11 Загрузочные клапаны мусоропроводов в многоквартирных жилых домах (кроме блокированных) допускается располагать в следующих вариантах (приложение Е, рисунок Е.17):

- в специальных выделенных или открытых поэтажных помещениях на жилых этажах (кроме первого этажа) рядом с лифтами;

- в лестнично-лифтовом узле смежно с лифтовым холлом или общим внеквартирным коридором исходя из конкретного планировочного решения, удобства подхода и освещенности;

- на промежуточной или на поэтажной лестничной площадке лестницы типа Л1 (в том числе в неотапливаемых - в IV и III климатических районах) в жилых зданиях с отметкой пола верхнего этажа менее 28 м;

- в неотапливаемых соединительных переходах на лестницу типа Л1 в жилых зданиях с отметкой пола верхнего этажа менее 28 м в IV и III климатических районах.

Устанавливать мусоропровод в незадымляемых лестничных клетках не допускается.

5.3.12 Мусоросборную камеру следует размещать под стволом мусоропровода для непосредственной загрузки мусора из ствола в контейнеры, а также с учетом удобного подъезда мусоровозного транспорта.

Размеры и планировку камеры следует принимать с учетом размещения и обслуживания стандартных контейнеров-мусоросборников и установки санитарно-технического оборудования. Высота от пола мусорокамеры до нижней части шибера должна составлять не менее 1,25 и не более 1,4 м. Для перемещения контейнера устраивается пандус с уклоном не более 8 %.

Ограждающие конструкции мусоросборной камеры должны быть дымо- и воздухонепроницаемыми. Над входом в мусоросборную камеру предусматривается козырек.

5.3.13 Мусоросборную камеру не допускается располагать под жилыми комнатами или смежно с ними. Ее следует проектировать с самостоятельным выходом, изолированным от входа в жилое здание глухой стеной (экраном), и выделять противопожарными перегородками и перекрытием с пределом огнестойкости не менее REI 60 и классом пожарной опасности К0 по СНиП 21-01.

В I климатическом районе и климатическом подрайоне IIA мусоросборную камеру следует оснащать шлюзовым входом с габаритами, позволяющими разместить расчетное число контейнеров и оборудование для вытяжной вентиляции.

Пол мусоросборной камеры должен быть водонепроницаемым. Отметка пола должна превышать уровень тротуара или примыкающей к ней проезжей части дороги на 0,06 - 0,08 м. Допускается размещение камер на другом уровне при обеспечении механизации подъема и перемещения контейнера к месту подъезда мусоровозного транспорта.

Мусоросборная камера должна иметь освещение, подводку холодной и горячей воды, а также канализацию.

Расчетную температуру в мусоросборной камере следует принимать 5 °С.

5.3.14 В жилых зданиях секционного и коридорного типов по заданию на проектирование допускается предусматривать другие варианты систем мусороудаления, в том числе устройство пневматической системы для сбора и удаления мусора.

Для жилых зданий, не оборудованных мусоропроводом, следует предусматривать камеру или хозяйственные помещения для накопления и временного хранения мусора, которые могут быть встроенными, пристроенными или отдельно расположенными.

5.3.15 Для 2 - 3 - этажных жилых зданий секционного и коридорного типов, не оборудованных мусоропроводом, для сбора и хранения мусора с учетом норм сбора бытовых отходов на данной территории следует предусматривать специально оборудованную (крытую или открытую) площадку на территории застройки.

5.3.16 В блокированных жилых домах допускается централизованное мусороудаление. Его тип, максимальная отметка пола этажа, с которого оно предусматривается, и другие параметры следует принимать по заданию на проектирование. При отсутствии централизованного мусороудаления сбор мусора выполняется на специально выделенных площадках.

5.4 Объемно-планировочные приемы, обеспечивающие защиту от почвенных газов и выхлопных газов автостоянок

5.4.1 Для ограничения облучения населения от источников ионизирующего излучения до принятия решения о строительстве жилого здания на участке необходимо выполнить замеры по состоянию гамма-фона и уровню радиоактивного излучения на этом участке, выполненных в соответствии с требованиями НРБ 99.

При уровнях гамма-фона и радиоактивного излучения на участке выше нормируемых значений строительство жилого здания не допускается.

5.4.2 Комплекс мер по радонозащите следует предусматривать при наличии радона на отведенном под застройку земельном участке.

В перечень мероприятий, ограничивающих проникновение радона в квартиры из технического подполья (технического подземного или цокольного этажа) жилого здания и направленных на нейтрализацию этого газа, а также исключающих пути его поступления, входят интенсивное проветривание подполья и тщательная герметизация щелей и стыков конструкций, а также другие мероприятия согласно таблице 5.1.

Таблица 5.1 - Мероприятия, ограничивающие проникновение радона в жилые помещения


п.п.

Мероприятие

Эффективность

1

Герметизация перекрытия между подвальным или цокольным первым этажом*

Снижение поступления радиации от грунта

2

Воздухообмен в квартирах с кратностью 0,5 м3

Обеспечение нормативного уровня содержания радона

3

Покрытие внутренней поверхности стен слоем краски на эпоксидной основе

Уменьшение поступления радона от стен в 10 раз

4

Оклейка внутренней поверхности стен обоями

Замедление скорости поступления радона на 30 %

* В зависимости от технических условий - герметизация перекрытий со второго по пятый этажи.

5.4.3 При устройстве под многоквартирными жилыми зданиями (кроме блокированных) автостоянок следует предусматривать мероприятия в соответствии с требованиями 5.5 СНиП 21-02 по изоляции вышележащих жилых этажей от выхлопных газов, в том числе:

- устройство въездов (выездов) вне зон окон жилых комнат;

- устройство козырьков над въездами;

- отделение жилой части от автостоянки этажом с нежилыми помещениями, в том числе техническим этажом;

- устройство козырька по всему периметру технического этажа шириной не менее 1 м при размещении под жилым зданием открытой автостоянки.

6 Квартиры

6.1 Минимальные площади и габариты помещений квартир

6.1.1 При проектировании квартир площади и габариты отдельных помещений устанавливаются исходя из возможности удобного размещения необходимого набора мебели, оборудования и санитарно-гигиенических приборов.

6.1.2 Типы квартир, предоставляемых гражданам с учетом нормы предоставления площади жилья по договору социального найма в зданиях государственного и муниципального жилищных фондов, площади этих квартир, количество комнат в них рекомендуется принимать при строительстве в городской застройке согласно таблице 5.1 СНиП 31-01, при строительстве в сельской местности - по таблице 6.1 данного Свода правил.

Число комнат и площадь квартир для конкретных регионов уточняются органом местного самоуправления с учетом демографических требований, достигнутого уровня обеспеченности населения жилищем и ресурсообеспеченности жилищного строительства (приложение Е, рисунок Е.23).

При проектировании квартир в двух уровнях их площадь увеличивается на 6 м2 для размещения внутриквартирных лестниц.

6.1.3 Для квартир, проектируемых в жилых зданиях других жилищных фондов, площадь квартир и количество жилых комнат определяются заданием на проектирование, при этом нижние пределы площади квартир рекомендуется принимать не менее указанных в таблице 5.1 СНиП 31-01 при строительстве в городе и в таблице 6.1 данного Свода правил при строительстве в сельской местности.

6.1.4 Планировочные решения квартир выбираются с учетом климатических, национально-бытовых и демографических условий. При этом следует обеспечить наличие в квартире зон необходимых бытовых процессов - сна, общесемейного отдыха, занятий; обеденной, хозяйственной и др.

6.1.5 Общую комнату, как правило, желательно расположить рядом с передней или кухней. Общая комната может пространственно объединяться дверями с широким проемом или раздвижными перегородками с холлом, столовой или кухней.

Проектирование общей комнаты (гостиной) рекомендуется осуществлять с учетом размещения следующих функциональных зон, предназначенных для дневного пребывания семьи и приема гостей (приложение Е, рисунок Е.18):

- общения и отдыха (в том числе с наличием места для аудио- и видеоинформации);

- хозяйственных работ и размещения вещей бытового назначения общего пользования;

- эпизодического приема пищи;

- индивидуальных, профессиональных или любительских занятий членов семьи.

В жилых зданиях государственного и муниципального жилищных фондов общие комнаты (гостиные) в квартирах с числом жилых комнат 4 и менее следует проектировать непроходными.

6.1.6 Площадь общей комнаты (гостиной) определяется с учетом возможности размещения вышеперечисленных зон, а также расстановки минимального набора мебели и устройства проходов. В однокомнатной квартире площадь общей комнаты должна быть не менее 14 м2; в квартирах с числом жилых комнат две и более - не менее 16 м2.

6.1.7 Проектирование спален рекомендуется с учетом размещения следующих функциональных зон (приложение Е, рисунок Е.19):

- сна, хранения одежды и белья, вещей бытового назначения;

- индивидуальных, профессиональных и любительских занятий членов семьи.

В квартирах, расположенных в двух уровнях, спальни рекомендуется размещать в основном на втором этаже. В квартирах с четырьмя и более жилыми комнатами рекомендуется располагать на первом этаже одну или две спальни для маломобильных членов семьи.

Для каждого члена семьи предусматривается спальное место с габаритами не менее 2´0,8 м. В спальнях, кроме супружеской, может быть размещено не более двух спальных мест. В спальне супругов допускается предусматривать спальное место для ребенка в возрасте до трех лет.

Таблица 6.1 - Типы квартир для сельской местности

Количество жилых комнат

1

2

3

4

5

6

Площадь квартиры, м2

38-44

50-60

66-76

77-89

94-104

106-116

6.1.8 Площади спален квартир жилых зданий государственного и муниципального жилищных фондов определяются с учетом возможности размещения вышеперечисленных зон, а также расстановки минимального набора мебели и устройства проходов. Они должны быть не менее 8 м2 и 10 м2 (соответственно, для одного или для двух человек), а при размещении в мансардном этаже - не менее 7 м2 (при общей комнате площадью не менее 16 м2).

Для квартир, проектируемых в жилых зданиях других форм владения, площади спален определяются заданием на проектирование, но рекомендуются не менее указанных.

6.1.9 Для квартир, проектируемых согласно требованиям таблицы 5.1 СНиП 31-01 и таблицы 6.1 настоящего Свода правил, ширина жилых комнат в новом строительстве должна быть не менее, м: общей комнаты (гостиной) - 3,2; спальни - 2,4.

В квартирах реконструируемых и модернизируемых жилых домов ширина жилых комнат допускается, не менее, м: общей комнаты (гостиной) - 2,8; одной из спален - 2,25.

Для квартир, проектируемых в жилых зданиях других форм владения, указанные размеры могут приниматься в качестве рекомендуемых.

6.1.10 В квартире следует предусматривать обеденную зону исходя из численного состава семьи. Эта зона может располагаться в кухне или кухне-столовой, в общей комнате или в столовой. При размещении обеденной зоны вне кухни и при отсутствии непосредственной связи ее с кухней нужно предусматривать дополнительную обеденную зону в кухне на два-три посадочных места.

Кухни в зависимости от размера и степени их оснащенности, а также численного состава семьи проектируются трех типов (приложение Е, рисунок Е.20):

- кухня - помещение с зоной, предназначенной для приготовления пищи, и обеденной зоной для эпизодического приема пищи членами семьи;

- кухня-ниша - помещение (или его часть) без обеденной зоны, предназначенное для приготовления пищи, оборудованное электроплитой и обеспеченное приточно-вытяжной вентиляцией с механическим побуждением;

- кухня-столовая - помещение с зоной приготовления пищи и с обеденной зоной для приема пищи всеми членами семьи одновременно.

В зависимости от планировочной организации кухни, состава и габаритов оборудования рабочий фронт приготовления пищи может быть:

- однорядным с размещением у одной из стен;

- угловым с размещением у двух смежных стен;

- двухрядным с размещением у двух противоположных стен;

- П-образным.

6.1.11 Площадь кухни с учетом возможности размещения вышеперечисленных зон, а также расстановки минимального набора мебели и устройства проходов должна быть: в однокомнатных квартирах - не менее 5 м2 (в том числе кухни-ниши); в квартирах с числом жилых комнат две и более - не менее 8 м2 (в мансардном этаже - 7 м2), площадь обеденной (кухонной) зоны в кухне-столовой - не менее 6 м2.

6.1.12 При расстановке мебели в функциональных зонах помещений квартиры рекомендуется предусматривать:

- ширину прохода вдоль кровати и другого спального места не менее 0,5 м с устройством проходов вдоль каждой из кроватей, поставленных смежно изголовьем к стене;

- расстояние от наружной стены со световыми проемами до торца спального места не менее 0,5 м, до его продольной стороны - не менее 0,7 м (примыкание спального места к окну не рекомендуется);

- расстояние от окна до предметов мебели, как правило, не менее 0,1 м, от дверного проема - 0,1 м, а при наличии около него выключателя (или розетки) - 0,25 м;

- ширину прохода между стационарной мебелью соседних зон - не менее 0,5 м;

- размещение рабочего стола не далее 1 м от окна с направлением дневного света прямо или слева;

- размещение в зоне общесемейного отдыха телевизора на расстоянии от мест сидения, как правило, 2,5 - 3 м с предельным углом наблюдения не более 30°;

- расстояние между сиденьями дивана, кресел и между журнальным столом не менее 0,3 м, сзади и по бокам кресел - не менее 0,2 м;

- размеры стола в обеденной зоне из расчета не менее 0,6 м по фронту на одно посадочное место, расстояние между краем стола и стеной или другим оборудованием - не менее 0,6 м при одном стуле в ряду, 0,7 м - при двух стульях, 0,8 м - при трех и более стульях;

- ширину прохода перед фронтом кухонного оборудования - не менее 1 м;

- ширину прохода вдоль шкафов, тумб и другой мебели с распашными дверцами и выдвижными ящиками - не менее 0,7 м, перед шкафами с раздвижными дверцами - не менее 0,5 м.

6.1.13 Ширину подсобных помещений следует предусматривать не менее: кухни при однорядном размещении оборудования - 1,9 м; при двухрядном (или угловом) - 2,3 м; внутриквартирных коридоров, ведущих в жилые комнаты, - 1 м; остальных коридоров - 0,85 м; передней - 1,4 м; ванной комнаты - 1,5 м; совмещенного санузла - 1,7 м; уборной - 0,8 м (глубина при открывании дверей наружу не менее 1,2 м, внутрь - 1,5 м).

6.1.14 Кроме обязательного согласно СНиП 31-01 оснащения санитарно-гигиенических помещений квартир (приложение Е, рисунок Е.21), в ванной комнате или в совмещенном санитарном узле рекомендуется предусматривать место для размещения стиральной машины.

Допускается открывание дверей внутрь ванной комнаты и совмещенного санузла, если глубина помещения или расстояние от дверного проема до санитарно-технического оборудования, расположенного напротив, составляет не менее 1,2 м (в чистоте).

6.1.15 По заданию на проектирование в составе дополнительного оборудования санитарно-гигиенических помещений допускается предусматривать установку биде, сушильных машин, гидромассажных ванн, душевых кабин и другого оборудования, а также предусматривать душевую, оборудованную душевым поддоном или душевой кабиной.

6.1.16 Спальни следует проектировать непроходными.

При этом допускается вход из этих помещений:

- в кладовую (или гардеробную);

- в кухню и уборную в квартирах для инвалидов (с учетом требований СНиП 35-01);

- в ванную комнату, совмещенный санузел или душевую при наличии в квартире уборной (или совмещенного санузла) со входом в это помещение из коридора, холла или передней.

6.1.17 Площадь кладовых и (или) встроенных шкафов определяется заданием на проектирование, при этом рекомендуется предусматривать встроенные шкафы площадью не менее: в 1- и 2-комнатных квартирах - 0,6 м2; в 3-, 4- и 5-комнатных - 1 м2; в 6-комнатных - 1,5 м2.

При отсутствии в квартире площади для кладовых (или встроенных шкафов) рекомендуется кладовые устраивать в пространстве над коридорами, на высоте не ниже 2,1 м от пола.

Допускается устройство в кухнях под оконным проемом холодного шкафа.

Суммарную протяженность фронта встроенных и отдельно стоящих шкафов для платья и белья глубиной 0,6 м рекомендуется принимать из расчета не менее 0,8 м на одного человека. Шкаф для верхней сезонной одежды целесообразно оборудовать в передней (при сохранении свободной ширины передней не менее 1,4 м).

6.1.18 В помещении с наклонными ограждающими конструкциями (в том числе в мансардных этажах) пригодной для использования является площадь с высотой от пола до наклонного потолка от 1,6 м при углах наклона к горизонту от 30° до 45°; от 1,9 м - при углах наклона к горизонту от 45° и более. При этом высота менее 2,5 м может быть не более чем на 50 % площади помещения.

Площади частей помещений, имеющие высоту менее 1,6 м при углах наклона к горизонту 45° и более (или 1,9 м - при углах наклона к горизонту от 30° до 45°), рекомендуется использовать для размещения хозяйственных емкостей.

6.1.19 При остеклении открытых помещений - балконов или лоджий - рекомендуется:

- располагать конструктивные элементы остекления на расстоянии от уровня пола летнего помещения на высоте, как правило, 1 м (в свету) и более, а выше - не менее чем через 1,2 м; по ширине - на расстоянии не менее 0,7 м;

- обеспечивать нормативные требования по естественному освещению помещений квартиры согласно СНиП 23-05;

- предусматривать раскрываемое остекление балконов и лоджий.

Ограждения летних помещений допускаются глухими (полностью или частично) или решетчатыми с устройством водоотвода с поверхности пола.

При устройстве глухого ограждения рекомендуется опускать его с наружной стороны ниже уровня пола летнего помещения с зазором или устанавливать вплотную к плите, предусматривая сток воды с выводом ее через отверстия в глухих ограждениях.

При решетчатых ограждениях в целях безопасности расстояние между элементами следует предусматривать не более 0,12 м.

6.2 Дополнительные помещения квартир

6.2.1 В квартирах жилых зданий по заданию на проектирование могут предусматриваться дополнительные жилые и подсобные помещения: игровая, детская, столовая, кабинет, библиотека, гардеробные, комната для тренажеров, биллиардная, постирочная, сауна и др. (приложение Е, рисунок Е.24).

6.2.2 Постирочную рекомендуется размещать вблизи зон расположения инженерных коммуникаций (сетей канализации и водопровода), как правило, рядом с санитарно-гигиеническими помещениями или кухней. Помещение рекомендуется оборудовать мойкой.

6.2.3 Помещение гардеробной рекомендуется располагать, как правило, с входом в нее из спальни. Ширину помещения рекомендуется предусматривать не менее 1,2 м.

Гардеробная может располагаться между спальнями и санитарным узлом и быть проходной, а также - при передней.

6.2.4 При расположении сауны в помещении, примыкающем к наружной стене, вентиляция, как правило, обеспечивается отдельным вертикальным каналом с естественным побуждением (с притоком из смежного помещения под печь и вытяжкой из нижней зоны). При этом в квартирах блокированных жилых домов вентиляция может быть с естественным побуждением через каналы в наружной стене.

Непосредственного выхода наружу из сауны, в том числе расположенной в цокольном или подвальном этаже, не требуется. В блокированных жилых домах выход на приквартирный участок из сауны допускается предусматривать из помещения, расположенного смежно с сауной.

При проектировании саун в многоквартирных жилых домах (кроме блокированных) рекомендуются:

- объем парильной из расчета не менее 8 м3 и не более 24 м3;

- установка под потолком сауны дренчера или перфорированного сухотруба, присоединенного к внутреннему водопроводу (за ее пределами);

- специальная печь заводского изготовления для нагрева с автоматическим отключением до полного остывания при достижении температуры 130 °С, а также через 8 ч непрерывной работы.

При устройстве сухотруба для парильной его диаметр следует определять по расчету при интенсивности орошения не менее 0,06 л/с на 1 м2 боковой поверхности стены, предусматривая при этом отверстия диаметром 3 - 5 мм с шагом 150 - 200 мм в трубе сухотруба и угол наклона струи воды 20° - 30° к поверхности стен (перегородок).

Древесные материалы, используемые при устройстве саун, должны иметь специальную пропитку для защиты от гниения и от возгорания.

6.2.5 В неотапливаемой части квартир и блокированных жилых домов, в том числе при верандах, лоджиях и террасах, возможно устройство приквартирной холодной кладовой.

6.2.6 В квартирах блокированных жилых домов в сельской местности целесообразно выделение хозяйственной зоны, в состав которой могут входить: кухня, помещение для хозяйственных работ (или постирочная), кладовая или шкаф для продуктов, встроенные шкафы для хранения несезонных вещей и предметов домашнего обихода, сушильный шкаф для рабочей одежды и обуви, уборная (или совмещенный санитарный узел), а также, при необходимости, помещения для хранения продукции подсобного хозяйства и приготовления корма домашним животным. Эту зону рекомендуется предусматривать смежно с выходом из дома на приквартирный участок. Помещение для хранения топлива, площадь которого целесообразно принимать от 3 до 10 м2, следует располагать в пристроенных или отдельно стоящих хозяйственных постройках, а помещения для содержания животных - в отдельно стоящих постройках.

В блокированных жилых домах с поквартирным отоплением рекомендуется предусматривать для установки теплогенераторам зависимости от его мощности отдельное помещение или выгороженное место в кухне в соответствии со СНиП 31-01.

У входа в квартиру рекомендуется предусматривать сушильный шкаф для рабочей одежды и обуви площадью 0,6 - 1,2 м2. Допускается его размещение в передней или вблизи от хозяйственного входа, например в хозяйственном помещении - при отсутствии в доме теплогенератора, а при наличии теплогенератора - смежно с помещением или зоной для его размещения.

Помещение для хозяйственных работ целесообразно предусматривать площадью не менее: 4 м2 - в 3 - 4 - комнатных квартирах; 6 м2 - в 5 - 6 - комнатных.

6.2.7 При проектировании блокированных жилых домов могут устраиваться под домом или вне его одно или несколько подземных помещений, таких как погреб, подполье, подвал.

Погреб - это, как правило, отдельно расположенное сооружение, полностью заглубленное в землю, которое служит для круглогодичного хранения продуктов. Иногда погреб располагают под хозяйственной постройкой или под жилым зданием. Площадь погреба рекомендуется принимать не менее 4 м2, высоту - не менее 1,9 м. Вход в погреб осуществляется по стремянке или лестнице через люк размером не менее 60´80 см.

Подполье - помещение для хранения (главным образом в зимнее время) овощей и других продуктов, размещаемое под полом кухни или другого нежилого помещения первого этажа. Площадь подполья рекомендуется принимать от 4 до 6 м2, высоту - от 1,2 до 1,9 м. Уровень заглубления подполья в землю не регламентируется и зависит от высоты цоколя дома. Доступ в подполье осуществляется по стремянке через люк размером не менее 60´80 см.

Подвальный этаж может быть под всем зданием или под его частью. В блокированных домах в подвале могут размещаться кладовые (для овощей, продуктов, инвентаря), автостоянка. Вход в подвал осуществляется по лестнице из передней, коридора, кухни или хозяйственного помещения. Помещения для хранения продуктов оборудуются естественной вентиляцией. Площади помещений, расположенных в подвале, целесообразно принимать, м2: продуктовой кладовой - 2 - 6, кладовой овощей - 7 - 8, кладовой хозяйственного инвентаря - 1,5 - 4.

6.2.8 Бассейны допускается проектировать на первых этажах квартир блокированных жилых домов при наличии технических обоснований расчета их водопотребления при заполнении, а также обеспечении возможности их канализации.

6.2.9 Камины на твердом топливе допускается проектировать в квартирах последнего верхнего этажа многоквартирного здания при обязательном устройстве автономных дымоходов для каждой из квартир.

6.3 Допустимая трансформация квартир

6.3.1 При выборе планировочных решений и набора типов квартир на этаже рекомендуется предусматривать возможность их трансформации и соответствующего внесения изменений в проект по заданию заказчика-застройщика или при последующей их эксплуатации в процессе капитального ремонта или реконструкции (приложение Е, рисунок Е.22).

С учетом конструктивной схемы жилого здания рекомендуется предусматривать варианты трансформации:

- в пределах отдельной квартиры;

- в пределах группы квартир - без изменения числа квартир на этаже или с изменением числа квартир на этаже.

6.3.2 При трансформации в пределах квартиры возможно: изменение числа жилых комнат в квартире; изменение количества, размеров, взаимосвязей местоположения функциональных зон, появление новых функциональных зон; изменение размеров и взаимосвязей помещений.

6.3.3 При трансформации в пределах групп квартир без изменения их количества на этаже допускается: изменение числа жилых комнат при объединении квартир, изменение количества, размеров, взаимосвязей и местоположения отдельных функциональных зон, появление новых функциональных зон, изменение размеров и взаимосвязей помещений.

6.3.4 При трансформации в пределах группы квартир с изменением их количества - с объединением нескольких квартир в квартиру с большим числом жилых комнат (или с разделением квартиры на несколько квартир с меньшим числом жилых комнат) - возможно по демографическим требованиям изменение процентного соотношения типов квартир по числу комнат в пределах жилого здания.

6.3.5 При выборе вариантов планировочных решений, обеспечивающих возможность их трансформации в будущем, следует предусматривать:

- группировку подлежащих возможной трансформации квартир на этаже, их взаимное расположение;

- специальную планировку подлежащих возможной трансформации квартир, в том числе смежное расположение передних двух квартир, общих комнат или других помещений;

- мероприятия конструктивно-технического характера, в том числе возможность изменения типов санитарно-технического оборудования и др.

6.3.6 Трансформация квартир наиболее легко осуществляется в жилых зданиях, имеющих конструктивную систему с широким шагом несущих конструкций (колонн, рамных или стеновых конструкций) - от 6 до 9 м, а также при применении безбалочных монолитных или сборно-монолитных перекрытий.

Трансформация квартир может быть предусмотрена и при других конструктивных системах, в том числе стеновых с малым и смешанным шагом несущих стен.

6.3.7 При проектировании здания с трансформацией квартир (одной или группы) рекомендуется обозначать в инструкции (или паспорте) на квартиру:

- местоположение оконных проемов, не подлежащих изменениям;

- местоположение вертикальных инженерных коммуникаций (стояков отопления, водопровода, канализации), не подлежащих изменениям;

- места допустимого размещения новых проемов в несущих стенах (при наличии заводских элементов усиления проемов или с усилением в построечных условиях);

- места допустимого расположения новых проемов в перегородках, а также перегородок, демонтаж которых возможен.

Целесообразно в квартирах применять трансформируемые, в том числе шкафные и раздвижные, перегородки.

6.4 Региональные особенности проектирования квартир

6.4.1 На территории I климатического района (кроме климатического подрайона IB) квартиры следует проектировать исходя из условий холодного периода (согласно таблице 1 СНиП 23-01), обеспечивая компактность планировки с целью повышения тепловой эффективности здания. При этом подсобные помещения (санузлы, гардеробные, хозяйственные кладовые, холлы и другие) должны располагаться, как правило, в глубине квартиры, что может дать увеличение ширины корпуса жилого здания до 15 м и более.

Выбор типов окон должен быть обусловлен повышенным уровнем их герметичности и теплозащиты (в том числе с тройным остеклением).

В жилых зданиях на территории климатических подрайонов IA, IБ и IГ следует предусматривать подогрев пола первого этажа, а на остальной территории такое решение допускается по заданию на проектирование.

6.4.2 В жилых зданиях на территории климатических подрайонов IA и IД допускается применять традиционные планировочные решения квартир с остекленными лоджиями и балконами или с верандами, при этом располагая их преимущественно со смещением от оконного проема.

6.4.3 Для уменьшения переохлаждения форточки и фрамуги окон квартир жилых зданий, проектируемых в климатических подрайонах IA, IД, IГ и IБ, должны быть изолированы от остального межстекольного пространства. Для сокращения инфильтрации воздуха рекомендуется также установка на окнах ставень.

Компенсацию недостаточности естественной вентиляции для обеспечения комфортного микроклимата в квартирах следует восполнять за счет применения технических средств: вентиляции с механическим побуждением и кондиционирования.

6.4.4 В жилых зданиях на территории климатических подрайонов IA, IБ, IГ, IД и IIА в квартирах следует предусматривать сушильные шкафы для верхней одежды и обуви с подводкой в шкафы труб горячего водоснабжения.

6.4.5 На территории климатического подрайона IB, климатических районов II и III (за исключением территорий с неблагоприятными условиями) квартиры в жилых зданиях рекомендуется проектировать исходя из условий теплого периода года (согласно таблице 2 СНиП 23-01), с летними помещениями (балконы, лоджии и веранды) (приложение Е, рисунки Е.24, Е.25).

Для III климатического района квартиры в жилых зданиях следует проектировать со сквозным, угловым или вертикально-горизонтальным проветриванием (в том числе через лестничную клетку), а также предусматривать элементы солнцезащиты на окнах и летних помещениях (приложение Е, рисунок Е.26).

6.4.6 На территориях климатического подрайона IVБ и климатического подрайона IVГ, не подверженных пыльным бурям, квартиры в жилых зданиях следует проектировать, исходя из условий теплого периода года, и устраивать в них:

- лоджии с выходом на них через балконные двери с двумя и более раскрываемыми (или раздвигаемыми) створками, обеспечивающими открывание в летний период;

- затененные террасы, в том числе располагаемые в местах перепада объемов здания;

- обязательное проветривание квартир - сквозное и угловое (через помещения этажа), вертикальное (через шахту) или вертикально-горизонтальное (через внеквартирные помещения этажа и через шахту) - раздельное для жилых комнат и подсобных помещений;

- элементы солнцезащиты, в том числе с обоймами (откосами), стационарными решетками, жалюзи, стационарными и мобильными солнцезащитными решетками и теневыми навесами, козырьками, элементами для вертикального озеленения.

6.4.7 На территории подрайона ГУБ в квартирах рекомендуется предусматривать: размещение санитарно-гигиенических помещений у наружной стены для устройства их проветривания и естественного освещения через окна; установку в наружных стенах дополнительных вентиляционных устройств для проветривания.

6.4.8 На территории климатического подрайона IVГ со скоростью ветра более 5 м/с и высокой запыленностью наружного воздуха квартиры рекомендуется проектировать:

- с ветро- и пылезащитными планировками с расположением с подветренной стороны жилого здания входных групп, летних помещений квартир, а также большинства жилых помещений, эксплуатируемых в период усиления ветра;

- с горизонтально-вертикальным проветриванием квартир через световентиляционную шахту;

- с устройством лоджий с раскрываемыми створками (по 6.4.6);

- с элементами солнцезащиты (по 6.4.6).

6.4.9 Во всех климатических районах допускается освещенная вторым светом кухня (или кухня-столовая), оборудованная электроплитой и обеспеченная приточно-вытяжной вентиляцией с механическим побуждением.

В климатическом подрайоне IVГ в 2 - 9 -этажных жилых зданиях в квартирах допускаются кухни (или кухни-столовые) в глубине корпуса с освещением и вентиляцией через световые шахты.

7 Помещения общественного назначения

7.1 Помещения общественного назначения, встроенные и встроенно-пристроенные в многоквартирные жилые здания

7.1.1 В многоквартирных жилых зданиях могут размещаться учреждения и предприятия общественного назначения. Помещения общественного назначения, размещаемые в жилых зданиях, могут быть встроенными и встроенно-пристроенными.

Типологические группы и рекомендуемая номенклатура встроенных в многоквартирные жилые дома (кроме блокированных) предприятий и учреждений общественного назначения даны в приложении В. При этом необходимо также учитывать требования приложения 4* СНиП 2.08.02 и действующих санитарно-эпидемиологических нормативных документов.

Состав помещений обслуживания в общежитиях квартирного типа, а также номенклатура предприятий и учреждений, встроенных и встроенно-пристроенных в блокированные жилые дома, определяются по заданию на проектирование с учетом региональных особенностей и по согласованию с местной администрацией.

При проектировании предприятий и учреждений общественного назначения встроенно-пристроенными в многоэтажные жилые здания величины показателей, нормируемых приложением В (площади, мощность и т.д.), допускается принимать в качестве нижней границы. Их увеличение, расширение номенклатуры, а также размещение в реконструируемых жилых зданиях допускаются по согласованию с органами местного самоуправления и органами санитарно-эпидемиологического надзора.

7.1.2 При проектировании предприятий и учреждений общественного назначения, встроенных и встроенно-пристроенных в многоэтажные жилые здания, следует в целях снижения их негативного воздействия на жилую часть здания учитывать нормируемые показатели, в том числе:

- по допустимому уровню шума в вышележащих жилых помещениях и на территории при работе вентиляционного оборудования, инженерных систем, а также оборудования встроенных учреждений;

- по допустимому уровню загрязненности воздуха от инженерных систем, вентиляционного оборудования и автотранспорта, обслуживающего встроенные предприятия.

При этом следует осуществлять:

- устройство дополнительных автономных инженерных систем;

- разделение потоков движения (жителей дома, посетителей и товаров при загрузке предприятий);

- дифференциацию придомовой территории для устройства проездов, площадок и других элементов.

7.1.3 При размещении в многоквартирных жилых зданиях учреждений оздоровительного и досугового назначения, учреждений здравоохранения и социального обеспечения, предприятий общественного питания, предприятий розничной торговли и бытового обслуживания, детских дошкольных учреждений, учреждений внешкольного обучения и курсов, учреждений управления, проектирования, информации и связи следует предусматривать:

- устройство автономных входов;

- размещение технологически шумных зон, как правило, вне объема жилого здания;

- разработку мероприятий по звукоизоляции вышележащих жилых помещений;

- размещение мест загрузки торговых и других учреждений вне зон окон жилых помещений;

- устройство кровли пристроенных учреждений на уровне ниже уровня пола жилых помещений в соответствии со СНиП 31-01.

К числу специальных инженерных мероприятий также относятся:

- устройство автономных инженерных систем встроенных (встроенно-пристроенных) помещений общественного назначения;

- применение технологического инженерного и другого оборудования, не создающего шума и вибрации, превышающих допустимые показатели для жилых помещений;

- устройство притока и вытяжки из нежилых помещений согласно СанПиН 2.1.2.1002 и СНиП 41-01.

Для устройства зальных помещений досуговых предприятий, предприятий торговли, питания и др. возможно применение различных конструктивных систем по высоте здания, в том числе:

- с использованием каркасных конструкций в нижних этажах;

- с устройством технического этажа для перехода к узкому шагу поперечных несущих стен в вышележащих этажах жилой части здания.

7.1.4 Планировочные решения встроенно-пристроенных и пристроенных объемов, в том числе их выступ за пределы объема здания, регламентируются градостроительными условиями, типом и мощностью предприятия, его технологией, а также нормативными противопожарными требованиями.

В соответствии с градостроительной ситуацией применяются различные объемно-планировочные решения:

- размещение выступающих объемов залов и некоторых подсобных помещений вдоль фронта здания со стороны крупных магистралей или площадей общегородского назначения;

- размещение выступающих объемов залов и некоторых подсобных помещений со стороны двора - при реконструкции исторически сложившихся районов, при дефиците территории или при небольшой ширине улиц;

- пристройка объемов залов и некоторых подсобных помещений с торцов жилых зданий;

- пристройка залов на уровне первого этажа при размещении жилых домов в глубине квартала.

При торговой площади магазинов до 400 м2 выступ объема торгового зала может составлять до 9 м, при большей торговой площади - до 18 м.

7.1.5 При проектировании жилых зданий с встроенно-пристроенными общественными помещениями необходимо учитывать возможность ремонта инженерных коммуникаций жилой части, проходящих транзитом через общественные помещения. С этой целью размер шахты, предназначенной для пропуска инженерных коммуникаций жилой части, должен обеспечивать возможность доступа в нее.

7.1.6 На эксплуатируемой кровле многоквартирных жилых зданий допускается размещение площадок: спортивных, для отдыха взрослых, сушки белья, чистки вещей, мебели и одежды, а также соляриев, предназначенных для пользования только жителями здания.

При этом следует обеспечивать необходимые меры безопасности, в том числе устройство ограждений достаточной высоты по периметру эксплуатируемой кровли, а также защитных сооружений для вентиляционных выпусков.

Дополнительные элементы благоустройства эксплуатируемых кровель устанавливаются по специальному заданию на проектирование.

При устройстве эксплуатируемой кровли в жилом многоквартирном здании (кроме блокированного) рекомендуется предусматривать технический чердак, а также шумозащитные мероприятия на основе акустических расчетов.

Выводы инженерных систем на кровле рекомендуется выполнять на недоступных для посетителей площадках или предусматривать их ограждения.

7.1.7 Высота встроенных и встроенно-пристроенных помещений принимается, как правило, от 3 до 3,6 м от пола до пола вышележащего этажа. Однако технологические требования к таким помещениям, как, например, парикмахерская, приемные пункты прачечной и химчистки, помещения для работы с населением и др., позволяют принимать высоту, равную высоте помещений жилой части здания.

7.2 Помещения для индивидуальной трудовой деятельности в составе квартир

7.2.1 В пределах площади квартир допускается проектировать дополнительные помещения для индивидуальной трудовой деятельности согласно СНиП 31-01.

7.2.2 Квартиры с кабинетами приема на одного и двух врачей (общего профиля, терапевта, педиатра, гомеопата, мануального терапевта, окулиста, логопеда, стоматолога и других по согласованию с органами местной санитарно-эпидемиологической службы), а также с кабинетом массажа допускается размещать на любых этажах. При кабинетах должны быть предусмотрены холлы-ожидальни с санузлом, оборудованным унитазом и умывальником.

7.2.3 В пределах площади квартир двухсторонней ориентации, расположенных не выше 2-го этажа, допускается размещать помещения семейных детских садов на группу не более 10 чел. (для детей в возрасте от 4 лет). При этом на придомовой территории жилого здания должна быть предусмотрена игровая площадка.

7.2.4 В квартирах блокированных жилых домов, в которых предусмотрены помещения для индивидуальной трудовой деятельности, допускается устраивать лестницу между подсобными помещениями квартиры (передней, коридором или холлом) и нежилыми помещениями для индивидуальной трудовой деятельности, располагаемыми под данной квартирой.

Приложение А

(справочное)

Перечень нормативных документов

Настоящий Свод правил содержит ссылки на следующие документы:

СНиП 2.07.01-89*

Градостроительство. Планировка и застройка городских и сельских поселений

СНиП 2.08.02-89*

Общественные здания и сооружения

СНиП 21-01-97*

Пожарная безопасность зданий и сооружений

СНиП 21-02-99*

Стоянки автомобилей

СНиП 23-01-99*

Строительная климатология

СНиП 23-03-2003

Защита от шума

СНиП 23-05-95*

Естественное и искусственное освещение

СНиП 31-01-2003

Здания жилые многоквартирные

СНиП 31-02-2001

Дома жилые одноквартирные

СНиП 35-01-2001

Доступность зданий и сооружений для маломобильных групп населения

СНиП 41-01-2003

Отопление, вентиляция и кондиционирование

ГОСТ 5746-2003

Лифты пассажирские. Основные параметры и размеры

СП 31-108-2002

Мусоропроводы жилых и общественных зданий и сооружений

СП 35-102-2001

Жилая среда с планировочными элементами, доступными инвалидам

СанПиН 2.1.2.1002-00

Санитарно-эпидемиологические требования к жилым зданиям и помещениям

СанПиН 2.2.1/2.1.1.1076-01

Гигиенические требования к инсоляции и солнцезащите помещений жилых и общественных зданий и территорий

СН 2.2.4/2.1.8.562-96

Шум на рабочих местах, в помещениях жилых, общественных зданий и на территории жилой застройки

НРБ 99

Нормы радиационной безопасности

 

Приложение Б

(справочное)

Термины и определения

Ветро- и пылезащитное жилое здание - жилое здание с планировкой, обеспечивающей ориентацию на подветренную сторону большинства жилых помещений квартир, летних помещений, входных групп, с применением на наветренных фасадах здания оконных проемов с площадью, минимально допустимой по нормам освещенности.

Встроенное нежилое помещение - помещение, располагаемое в габаритах жилого дома с выступом за его пределы не более чем на 1,5 м.

Встроенно-пристроенное нежилое помещение - помещение, располагаемое в габаритах жилого здания и в объемах, вынесенных за пределы габаритов жилого здания более чем на 1,5 м.

Галереи (общие внеквартирные) - расположенные с одной стороны жилого здания, открытые неостекленные помещения шириной не менее 1,2 м (с ограждениями, как правило, высотой 1,2 м), из которых осуществляются входы в квартиры.

Дополнительные помещения - помещения квартир повышенного уровня комфорта, не входящие в состав жилых и подсобных помещений, установленный в СНиП 31-01.

Капитальный ремонт - ремонт здания с целью восстановления исправности (работоспособности) его конструкций и систем инженерного обеспечения, а также поддержки эксплуатационных показателей. При этом могут осуществляться модернизация здания и его перепланировка, не вызывающие изменений основных технико-экономических показателей здания.

Комфорт проживания - включенный в строительные нормы комплекс санитарно-гигиенических, эргономических и экологических требований. Санитарно-гигиенические требования устанавливаются на оптимальном расчетном уровне, например, температура и влажность воздуха в помещениях; экологические - на допустимом, например, допустимый уровень содержания вредных веществ в воздухе и воде. Выполнение этих требований обеспечивается инженерно-техническим оснащением здания. Эргономические требования устанавливаются на минимально достаточном уровне и обеспечиваются при планировке помещений с учетом габаритов мебели и оборудования. Например, габариты и площади помещений квартиры обеспечивают расстановку необходимого для отдыха, сна, приготовления и приема пищи, санитарно-гигиенических процессов и домашних занятий набора мебели, бытовых приборов и оборудования, а также возможность свободного перемещения человека среди них.

Комфорт проживания (повышенный) - устанавливаемый в задании на проектирование повышенный уровень требований к габаритам и площади помещений, к составу помещений квартиры, а также к инженерно-техническому оснащению, обеспечивающему возможность регулирования в процессе эксплуатации санитарно-гигиенических параметров воздушной среды.

Криптоклиматический комплекс - многофункциональное здание компактной формы с крытыми переходами между жилой и общественной зонами, с ориентацией жилой части здания на благоприятную по ветровым и инсоляционным условиям сторону.

Лестнично-лифтовой узел - планировочный элемент, включающий лестничную клетку, один или несколько лифтов и лифтовой холл, иногда - ствол мусоропровода.

Ориентированный жилой дом - жилой дом с ориентацией на инсолируемую сторону большинства жилых комнат и летних помещений квартир.

Секция (дом) универсальной (неограниченной) ориентации - секция (дом) с квартирами, обеспеченными нормативной инсоляцией при любой постановке здания относительно сторон горизонта.

Секция (дом) частично ограниченной (широтной) ориентации - секция (дом) с квартирами, обеспеченными нормативной инсоляцией как при широтной, так и при меридиональной постановке секции (дома). Возможные отклонения от широты и долготы постановки определяются на основании результатов расчета продолжительности инсоляции помещений и территории в соответствии с требованиями СанПиН 2.2.1/2.1.1.1076.

Секция (дом) ограниченной (меридиональной) ориентации - секция (дом) с квартирами, обеспеченными нормативной инсоляцией при постановке секции (дома) по меридиану, отклонения от которого определяются на основании результатов расчета продолжительности инсоляции помещений и территории в соответствии с требованиями СанПиН 2.2.1/2.1.1.1076.

Реконструкция жилого здания - комплекс строительных работ и организационно-строительных мероприятий, связанных с изменением основных технико-экономических показателей (количества и качества квартир, строительного объема и общей площади здания и т.д.) в целях улучшения условий проживания, качества коммунального обслуживания, увеличения объема услуг. При реконструкции зданий помимо работ, выполняемых при капитальном ремонте, могут осуществляться:

- изменение планировки помещений, возведение надстроек, встроек, пристроек;

- повышение уровня инженерного оборудования, включая реконструкцию инженерных сетей (кроме магистральных);

- изменение архитектурного облика здания.

Приложение В

(рекомендуемое)

Номенклатура учреждений и предприятий общественного
назначения, встроенных в жилые здания

Таблица В.1

Наименование учреждений

Ограничения при размещении в объеме жилого здания

Примечание

Ограничивающий показатель

Допустимые этажи для размещения

Ед. изм.

Максим, допустимое значение

1

2

3

4

5

Дошкольные учреждения

Малые дошкольные учреждения

группа

3

1 - 2

Комплекс дошкольного воспитания (групповые отделения)

»

4

1 - 2

Прогулочная группа, дежурная дневная группа кратковременного присмотра (в том числе при квартире)

»

2

1

Дежурная круглосуточная группа кратковременного присмотра

»

2

1

Семейный детский сад (при квартире)

»

0,5

1 - 2

Учреждения здравоохранения и социального обеспечения

Поликлиника, посещение в смену:

50, 100, 200

общ. пл. (не более),
м2

(1300)

1 - 2

Ц, П - подсобные помещения; без автостоянки для машин для неотложной медицинской помощи

Микрополиклиника, посещение в смену:

с бригадой врачей разных специальностей:

100

То же

540

1 - 2

Тоже

80

»

500

1 - 2

»

с семейным центром здоровья:

100

»

600

1 - 2

»

Микрополиклиника: на 1-го семейного врача, двух врачей (семейного и стоматолога), бригаду из двух семейных врачей

общ.пл. (не более),
м2

180

1 - 2

 

Кабинеты для приема (при квартире); кабинет массажа

общ.пл. (не более),
м2

144

1-В

То же, на двух врачей (в том числе стоматологов)

»

180

1-В

Стоматологическая поликлиника:

для взрослых

посещ. в смену
м2
(не более)

150
800

1

Ц, П - подсобные помещения

для детей

То же

50
140

1

То же

То же

»

100; 200
290

1

»

Женская консультация

»

70, 100
300

1 - 2

»

Аптека:

7, 8 группы

общ.пл. (не более),
м2

255

1 - 2

»

6, 5 группы

»

600

1 - 2

»

4-2, 3-2, 1 группы

»

(1500)

1 - 2

»

Аптечный киоск

»

10

1

»

Оздоровительный центр

»

600

1 - 2, П, Ц

Без бассейна

Раздаточный центр молочной кухни

»

100

1

Ц, П - подсобные помещения

Подразделения управления социальной защиты населения

»

600

1

То же

Центры медико-социальной реабилитации инвалидов

»

1200

1 - 2

Ц, П - подсобные помещения; без бассейна

Учреждения платных социальных услуг

посещ. в
смену
м2
(не более)

100

1, П, Ц

Без проживания

Центр социального обслуживания (ЦСО) населения с отделением дневного пребывания:

на 25 мест

общ. пл. (не более), м2

300

1 - 2

Ц, П - подсобные помещения

на 50, 100 мест

То же

(1600)

1 - 2

То же

ЦСО без отделения дневного пребывания

»

300

1 - 2

Ц, П - подсобные помещения

Отделение дневного пребывания ЦСО

»

300

1 - 2

Тоже

Предприятия торговли продовольственными товарами

Магазины с универсальным ассортиментом:

универсам, гастроном

торг, площ. (не более), м2

400; 650 (1000)

1 - 3, П, Ц

диетические продукты

То же

200; 250 (650)

1 - 2, П, Ц

Специализированные магазины с широким ассортиментом:

хлеб, кондитерский

»

100; 250 (400)

1 - 2, П, Ц

мясо

»

(200)

1, П, Ц

Без разруба мяса

овощи, фрукты

»

100; 250 (400)

1 - 2, П, Ц

Специализированные магазины с узким или ограниченным ассортиментом: мини-маркет, «Винно-водочный», «Соки-джемы», «Напитки»

»

150

1, П, Ц

Предприятия торговли непродовольственными товарами

Магазины специализированные с широким ассортиментом: «Товары для новобрачных», «Одежда», «Обувь», «Малыш» и т.п.

торг. площ. (не более),
м2

400; 650 (1500)

1 - 2, П, Ц

Магазины специализированные с полным ассортиментом:

«Спорт и туризм», «Хозтовары» (без бытовой химии)

То же

200; 400 (650)

1 - 3, П, Ц

«Галантерея-парфюмерия», «Радиоаудиовидеофототовары», «Оргтехника», «Часы», «Ювелирные изделия»

»

100; 250 (400)

1 - 2, П, Ц

Специализированные магазины с узким или ограниченным ассортиментом: «Книги», «Цветы», «Природа», «Семена», «Охотник»

»

100; 200 (250)

1 - 2, П, Ц

Магазин заказов

»

320

1 - 2, П, Ц

Интернет-магазин

площ. (не более), м2

100

1 - 2, П, Ц

Без складских помещений

Предприятия питания

Ресторан, бар

кол-во
мест
м2
общая площ. (не более)

50 250

1 - 2, П, Ц

При режиме функционирования до 23 ч; усиленная звукоизоляция перекрытия

Кафе, столовая (в том числе диетическая и раздаточная), закусочная

То же

50 250

1 - 2, П, Ц

Магазины кулинарии (до 300 кг полуфабрикатов и кулинарных изделий в сутки)

торг, площ. (не более), м2

150

1 - 2, П, Ц

Усиленная звукоизоляция перекрытия

Предприятия бытового обслуживания

Ателье по пошиву и ремонту одежды, головных уборов и трикотажных изделий, Дом моды

общ. пл. (не более), м2

500

1 - 2, П, Ц

С различным набором видов услуг Усиленная звукоизоляция перекрытия

Мастерские по ремонту обуви (срочный, мелкий, средний)

То же

100

1, П, Ц

Усиленная звукоизоляция перекрытия

Мастерские по ремонту бытовых машин и приборов

»

100

1, П, Ц

Усиленная звукоизоляция перекрытия

Мастерские по ремонту часов и ювелирных изделий

»

100

1, П, Ц

Парикмахерская

»

250

1, П, Ц

Салон красоты

»

500

1 - 2, П, Ц

Без сауны

Прачечные самообслуживания (до 75 кг в смену)

»

150

1 - 2, П, Ц

Усиленная звукоизоляция перекрытия

Приемные пункты прачечной, химчистки

»

100

1 - 2, П, Ц

Фотография

»

150

1 - 2, П, Ц

Бюро посреднических услуг

»

200

1 - 2, П, Ц

Многоотраслевые комплексные приемные пункты типа «Мультисервис»

»

300

1, П, Ц

Ателье проката

»

300

1, П, Ц

Учреждения досугового назначения

Клубы, в том числе клуб-гостиная, клубы по интересам (молодежные, семейные, детские, подростковые, интернет-клубы и др.)

посещ.
м2

50 - 200
120 - 550

1 - 2

При режиме функционирования до 23 ч;
Ц, П - без помещений для детей и подростков

То же, с универсальной гостиной

То же

250
600 - 830

1 - 2, П, Ц

При режиме функционирования до 23 ч

Помещения для собраний жителей и досуговых занятий

м2 (не более)

50 - 180

1 - 2, П, Ц

То же

Помещения для кружковых занятий взрослых и детей

посещ.
м2

50 - 180

1 - 2

При режиме функционирования до 23 ч;

Ц, П - без помещений для детей и подростков

Игротека для детей

То же

50 - 180

1 - 2

Помещения игровых автоматов для детей

»

50

1

Помещения для присмотра за детьми

»

50 - 180

1 - 2

Видеосалон

кол-во мест

40 - 60

1 - 2, П, Ц

При режиме функционирования до 23 ч; усиленная звукоизоляция

Зал компьютерных игр

м2
(не более)

100 - 150

1 - 2, П, Ц

При режиме функционирования до 23 ч

Выставочный зал, художественная галерея

То же

300

1 - 2, П, Ц

Музей

квартира

1

1-В

Творческие мастерские:

художников, архитекторов

кол-во сотр.

5

1 - 2,
П, Ц, В

скульпторов

м2
(не более)

80

1, П, Ц

Без работы с гипсом

реставрационная народных промыслов

То же

80

1 - 2, П, Ц

Библиотека, тыс. ед. хранения:

центральная:
160; 220

общ. пл. (не более),
м2

1780 - 2420

1 - 3, П, Ц

филиал:
50; 80; 120

То же

500 - 1200

1 - 2, П, Ц

Залы, в том числе специализированные для инвалидов:

ОФП и спортивные (с элементами игр)

м2
м

72 - 540
7,0*

1, П, Ц

Усиленная звукоизоляция перекрытия;
мероприятия по   гашению структурных шумов

аэробики, хореографии, ритмической гимнастики

То же

72 - 216
5,0

То же

* В знаменателе дана высота помещения.

ЛФК

м2
м

72 - 288
5,0

1, П, Ц

борьбы и элементов борьбы (ушу, айкидо)

»

72 - 216
4,0

1, П, Ц

силовой подготовки

»

20
3,0

1, П, Ц

Усиленная звукоизоляция перекрытия; мероприятия по   гашению структурных шумов

для занятий на общеразвивающих тренажерах

»

72 - 108
4,0

1, П, Ц

Биллиардная, 1 - 2 стола

»

35 - 48
3,0

1, П, Ц

Сквош

»

65
5,0

1, П, Ц

Помещения:

настольного тенниса

»

24 - 54
3,0

1, П, Ц

шахмат и шашек

»

24 - 72
3,0

1, П, Ц

Учреждения и организации

Административные учреждения:

префектуры, муниципальные центры

кол-во сотр.
(не более)

100

1 - 2 (3)

При ограниченном потоке посетителей

учреждения службы занятости

То же

100
[5]

1 - 2 (3)
В

То же

налоговая инспекция

»

50

1 - 2 (3)

»

управления, офисы, представительства

»

100

1 - 2 (3)

»

Проектные и конструкторские организации

»

100

1 - 2 (3)

»

Проектно-изыскательские организации

»

100

1 - 2 (3)

»

Конструкторские бюро

»

100

1 - 2 (3)

»

Общественные организации

»

100

1 - 2 (3)

»

Кредитно-финансовые учреждения:

отделения Сбербанка

кол-во сотр.
(не более)

100

1 - 2 (3)

филиалы Сбербанка

То же

30
[5]

1 - 2 (3)
В

отделения коммерческого банка

»

100
[5]

1 - 2 (3)
В

филиалы коммерческого банка

»

50
[5]

1 - 2 (3)
В

расчетно-кассовые центры

»

100

1 - 2 (3)

Учреждения страхования:

управления Госстраха

»

500

инспекции Госстраха

»

100
[5]

1 - 2 (3)
В

страховые компании

»

100
[5]

1 - 2 (3)
В

Судебные и юридические учреждения:

суды

кол-во залов

3

1

Без рассмотрения уголовных дел

прокуратуры первичного звена

кол-во сотр. (не более)

30

1 - 2

юридические консультации, нотариальные и адвокатские конторы

кол-во сотр (не более)

100

1 - 2

центры научно-технической информации; научно-технические библиотеки, издательства, редакции, рекламные и информационные агентства

То же

100
[5]

1 - 2 (3) П, Ц
В

С ограниченным потоком посетителей.

Без типографии

конторские (офисные) помещения для других типов коммерческой деятельности, помещения для обучения предпринимательской деятельности

»

100
[5]

1 - 2 П, Ц
В

ЗАГСы

м2
(не более)

600

1 - 2

Ц, П - подсобные помещения

отделения диспетчерской связи

То же

500

1 - 2, П, Ц

 

отделения связи

»

700

1 - 2

Ц, П - подсобные помещения

ДЭЗы

»

500

1 - 2, П, Ц

Без мастерских

Учебные учреждения и курсы

Курсы репетиторские, иностранного языка, компьютерные курсы

колич. сотр. м2 (не более)

20
100

1 -2 (3)

Курсы, группы по повышению квалификации и профессиональной переподготовке, подготовке к поступлению в вузы

То же

20
100

1 -2 (3) Ц, П

Внешкольное обучение детей и подростков

Курсы, группы, студии по углубленному изучению предметов школьной программы и специальным предметам

колич. сотр.
м2
(не более)

20
100

1 -2 (3)

Условные обозначения, принятые в таблице:

П - подвал; Ц - цокольный этаж;

1, 2, 3 - соответственно: 1-й, 2-й и 3-й этажи;

В - верхний последний этаж.

Цифры в круглых скобках - только для нового строительства в крупных и крупнейших городах.

Цифры в квадратных скобках - только для верхнего последнего этажа.

Примечание - Для раздела «Учреждения досугового назначения» в графе 3 в числителе указаны минимальные, в знаменателе - максимальные показатели.

Приложение Г

(рекомендуемое)

Расчет вертикального транспорта (лифтов)

Термины и определения

Группа лифтов - два и более лифта одинакового назначения, объединенные системой группового управления, обслуживающие, как правило, одни и те же этажи здания и имеющие общие холлы или этажные площадки.

Групповое управление лифтами - система управления совместной работой двух и более лифтов в соответствии с заданным алгоритмом (исключение «холостых» пробегов и остановок лифтов, минимизация времени ожидания лифтов).

Лифтовой холл - помещение, в которое выходят двери лифтов.

Однорядное расположение лифтов - расположение лифтов с одной стороны лифтового холла.

Двухрядное расположение лифтов - расположение лифтов с двух противоположных сторон лифтового холла.

Пассажирский поток (пассажиропоток) - численность людей, перемещающихся между этажами при помощи средств вертикального транспорта за определенный период времени.

Интервал движения лифтов - усредненный интервал времени между моментами последовательного отправления вверх с основного посадочного этажа лифтов одной группы.

Круговой рейс лифта - путь, проходимый кабиной от основного посадочного этажа до возвращения на этот этаж, м.

Основной посадочный этаж - этаж, на который прибывает и с которого отправляется основная часть перевозимых лифтами пассажиров (обычно этаж входа в здание - 1-й этаж).

Заполнение кабины, отправляющейся с основного посадочного этажа (возвращающейся на основной посадочный этаж), - численность пассажиров, вошедших в кабины (вышедших из кабины), при отправлении с основного посадочного этажа (по прибытии на основной посадочный этаж).

Время кругового рейса лифта - время, затрачиваемое на круговой рейс и включающее время пуска и движения лифта, открывания и закрывания дверей, а также время загрузки и разгрузки кабины лифта.

Число возможных остановок - наибольшее число остановок, на которых лифт может останавливаться в определенный период функционирования здания.

Число вероятных остановок - усредненное число остановок лифта за круговой рейс, определяющееся методами теории вероятности с учетом числа возможных остановок, заполнения кабины и организации работы лифтов.

Методика расчета

Настоящая методика предназначена для выбора числа, грузоподъемности и скорости пассажирских лифтов, устанавливаемых в жилых зданиях.

При установке в здании двух и более групп лифтов для каждой группы следует проводить самостоятельный расчет. При этом должно быть установлено, какая часть населения будет пользоваться той или иной группой лифтов.

Следует учитывать, что расчетные пассажиропотоки в жилых зданиях и общежитиях носят двухсторонний характер: вверх с основного посадочного этажа и вниз на основной посадочный этаж без междуэтажных перемещений выше основного посадочного этажа.

Грузоподъемность лифтов (номинальная вместимость кабин Е) при расчете вертикального транспорта определяется численностью пассажиров, накопившихся в лифтовых холлах за время интервала движения лифтов tи.

Заполнение кабины одного лифта, отправляющейся вверх с основного посадочного этажа Еп и возвращающейся на этот этаж Ес, чел., определяется по формулам:

Еп = ain tи / 3600;                                                                                (1)

Ес = aiс tи / 3600;                                                                                (2)

где ain и aiс - величины расчетных приведенных пиковых пассажиропотоков, поднимающихся вверх с основного посадочного этажа и опускающихся на основной посадочный этаж, чел.-ч;

tи - интервал движения лифтов, с.

;                                                                              (3)

;                                                                              (4)

где 0,12 - коэффициент приведения пятиминутных пиковых пассажиропотоков к часовым;

Iп и Iс - показатели интенсивности пятиминутных пиковых пассажиропотоков, поднимающихся с основного посадочного этажа и возвращающихся на этот этаж, %;

 - численность населения, пользующегося лифтами, чел.;

i - номера этажей, население которых для перемещений с основного посадочного этажа и с верхних этажей на основной посадочный пользуется лифтами;

N - номер верхнего заселенного этажа.

Значения показателей интенсивности пятиминутных пиковых пассажиропотоков, %, для жилых зданий:

Iп = 4,95; Iс = 2,55.

Интервал движения лифтов, определяющий уровень комфортности обслуживания пассажиров, оценивается как: tи £ 60 с - повышенный, tи £ 80 с - хороший, tи £ 100 с - удовлетворительный, tи > 100 с - неудовлетворительный.

В пределах требуемого уровня комфортности обслуживания пассажиров величина tи выбирается таким образом, чтобы значение Еп было наибольшим при удовлетворении неравенства (5).

В приложении Г СНиП 31-01 принят удовлетворительный уровень комфортности обслуживания пассажиров, т.е. интервал движения лифтов tи £ 100 с.

Вместимость кабины Е, чел., лифтов должна быть больше или равна заполнению кабины лифта на основном посадочном этаже

Е ³ Еп                                                                                     (5)

Если по расчету достаточно установить лифты грузоподъемностью 400 кг, то как минимум один из этих лифтов следует заменить на лифт грузоподъемностью 630 кг с размером кабины (ширина ´ глубина) 1100´2100 или 2100´1100 мм.

Число пассажирских лифтов п, требующихся для установки в здании, определяется по формуле

                                                                                            (6)

где Т - время кругового рейса лифта, с.

Полученное дробное число округляется до целого, округление до целого может производиться в сторону уменьшения в случаях, когда дробная часть не превышает 10 % целой.

Время кругового рейса пассажирского лифта Т, с, находится по формулам:

                                                                               (7)

где Нв - вероятная высота подъема лифта, м;

                                                                            (8)

                                                                                       (9)

;                                                                              (10)

Опечатка.

;                                                                              (11)

Опечатка.

;                                                                              (12)

                                                                                     (13)

где h - путь, проходимый лифтом при разгоне до номинальной скорости и торможении от номинальной скорости до полной остановки, м;

Nв - число вероятных остановок выше основного посадочного этажа за круговой рейс;

 - время, затрачиваемое на разгон, торможение, пуск лифта, открывание и закрывание дверей, вход и выход пассажиров, с;

Нmax - высота подъема лифта от уровня пола основного посадочного этажа до уровня пола верхнего обслуживаемого этажа, м;

kи - коэффициент вероятной высоты подъема лифта (таблица Г.1);

Nв.п и Nв.с - число вероятных остановок лифта выше основного посадочного этажа при подъеме и спуске соответственно;

N1 - число возможных остановок лифта выше основного посадочного этажа;

t1 + t2 + t3 - затраты времени на разгон лифта до номинальной скорости v, торможение от номинальной скорости до полной остановки, пуск лифта, открывание и закрывание дверей, с (таблица Г.2);

t4 + t5 - затраты времени в круговом рейсе на вход пассажиров в кабину лифта и выход из нее, с;

Dt - время входа или выхода одного пассажира, с (таблица Г.3).

Таблица Г.1

Nв.п/N1

£0,6

0,61-0,7

0,71-0,8

0,81-1

kи

0,7

0,8

0,9

1

Таблица Г.2

n, м/с

h, м

t1 + t2 + t3, с

1

2

12

1,6

2,5

10

2,5

4,5

11

4

16

16

Таблица Г.3

Ширина дверного проема лифта, мм

Dt, с

< 1000

1,5

1000 и более

1

Приложение Д

(рекомендуемое)

Рекомендуемые правила подсчета объема, общей площади
жилого многоквартирного здания, площади квартир

1. Правила подсчета площади помещений, площади застройки здания, а также этажности здания, необходимые для целей проектирования, установлены в СНиП 31-01. В данном Своде правил даются рекомендуемые правила подсчета показателей, необходимые для потребительской характеристики жилого здания и квартир.

2. Строительный объем жилого здания определяется как сумма строительного объема выше отметки ±0,000 (надземная часть) и ниже этой отметки (подземная часть).

Строительный объем надземной и подземной частей здания определяется в пределах ограничивающих наружных поверхностей с включением ограждающих конструкций, световых фонарей и других надстроек, начиная с отметки чистого пола каждой из частей здания, без учета выступающих архитектурных деталей и конструктивных элементов, козырьков, портиков, террас, балконов, объема проездов и пространства под зданием на опорах (в чистоте), подпольных каналов, а также проветриваемых подполий под зданиями, проектируемыми для строительства на вечномерзлых грунтах.

3. Площадь жилого здания следует определять как сумму площадей этажей здания, измеренных в пределах внутренних поверхностей наружных стен.

В площадь этажа включаются площади балконов, лоджий, террас и веранд, а также лестничных площадок и ступеней с учетом их площадей в уровне данного этажа.

В площадь этажа не включается площадь проемов для лифтовых и других шахт.

Площади подполья для проветривания здания, проектируемого для строительства на вечномерзлых грунтах, неэксплуатируемого чердака, технического подполья, технического чердака, внеквартирных инженерных коммуникаций с вертикальной (в каналах, шахтах) и горизонтальной (в межэтажном пространстве) разводкой, а также тамбуров, портиков, крылец, наружных открытых лестниц и пандусов в площадь здания не включаются.

Эксплуатируемая кровля при подсчете общей площади здания приравнивается к площади террас.

4. Площадь квартир определяют как сумму площадей отапливаемых помещений (жилых, подсобных и дополнительных) без учета неотапливаемых помещений (лоджий, балконов, веранд, террас, холодных кладовых и тамбуров).

К жилым помещениям следует относить: спальни и общие комнаты (гостиные).

К подсобным помещениям следует относить: кухню, кухню-нишу или кухонную зону в кухне-столовой, внутриквартирные коридоры, холлы, переднюю, санитарно-гигиенические помещения (ванную, душевую, уборную, совмещенный санузел), встроенные шкафы и кладовые.

К дополнительным помещениям следует относить: постирочную, гардеробные, сауну, помещение для теплогенератора, столовую, детскую, игровую, кабинет, библиотеку и т.п.

Площадь под маршем внутриквартирной лестницы при высоте от пола до низа выступающих конструкций 1,6 м и менее не включается в площадь помещений, где расположена лестница.

Площадь, занимаемая печью и (или) камином, которые не являются декоративными, а входят в отопительную систему здания, в площадь помещений квартиры не включается.

При определении площади помещения квартиры, расположенной в мансардном этаже, целесообразно учитывать площадь этого помещения с высотой потолка от 1,6 м* до 2,5 м - при углах наклона к горизонту до 45°, от 1,9 м до 2,5 м - при углах наклона к горизонту от 45° и более; площадь помещений при высоте менее 2,5 м учитывается с понижающим коэффициентом 0,7. При этом высота менее 2,5 м может быть не более чем на 50 % площади этого помещения.

_____________

* Рекомендуемая в данном Своде правил начальная высота помещения, установленная исходя из условий комфорта, может не соответствовать начальной высоте, устанавливаемой правилами технической инвентаризации.

Площади частей помещений, имеющих высоту менее 1,6 м при углах наклона потолка к горизонту 45° и более (или 1,9 м - при углах наклона к горизонту от 30° до 45°), не учитываются.

5. Общую площадь квартиры определяют как сумму площадей ее отапливаемых помещений и встроенных шкафов, а также неотапливаемых помещений (лоджий, балконов, веранд и террас), подсчитываемых с понижающими коэффициентами, устанавливаемыми правилами технической инвентаризации.

Приложение Е

Иллюстрации


ОБЪЕМНО-ПЛАНИРОВОЧНАЯ СТРУКТУРА
ОСНОВНЫХ ТИПОВ МНОГОКВАРТИРНЫХ ЖИЛЫХ ЗДАНИЙ

СХЕМЫ СЕКЦИЙ МНОГОСЕКЦИОННЫХ ЖИЛЫХ ЗДАНИЙ

Типы секций

Углы поворота

Стороны блок

Количество квартир на этаже секции, шт.

1-2

3

4

5 и более

Рядовые

С торцом

прямолинейные

1

У

ЧО (Ш)

ЧО (Ш)

ЧО (М)

Без торцов

прямолинейные

2

У

ЧО (Ш)

ЧО (Ш)

ЧО (М)

со сдвигом

3

У

ЧО (Ш)

ЧО (Ш)

ЧО (М)

Поворотные

Без торцов

лестница во внутреннем углу

90°

2

У

ЧО (Ш)

ЧО (Ш)

ЧО (М)

лестница во внешнем углу

90°

2

У

ЧО (Ш)

ЧО (Ш)

ЧО (М)

лестница во внутреннем углу

90°, 135° и др.

2

У

ЧО (Ш)

ЧО (Ш)

ЧО (М)

Рисунок Е.1

ОБЪЕМНО-ПЛАНИРОВОЧНАЯ СТРУКТУРА
ОСНОВНЫХ ТИПОВ МНОГОКВАРТИРНЫХ ЖИЛЫХ ЗДАНИЙ

СХЕМЫ СЕКЦИЙ МНОГОСЕКЦИОННЫХ ЖИЛЫХ ЗДАНИЙ

Типы секций

Углы поворота

Стороны блок

Количество квартир на этаже секции, шт

1-2

3

4

5 и более

Поворотные

Без торцов

лестница во внешнем углу

90°, 135° и др.

2

У

ЧО (Ш)

ЧО (Ш)

ЧО (М)

лестница во внутреннем углу

90°, 135° и др.

2

У

ЧО (Ш)

ЧО (Ш)

ЧО (Ш)

трехлучевые

90°

3

У

ЧО (Ш)

ЧО (Ш)

ЧО (Ш)

трехлучевые

120° и др.

3

У

ЧО (Ш)

ЧО (Ш)

ЧО (Ш)

четырехлучевые

90°

4

У

ЧО (Ш)

ЧО (Ш)

ЧО (Ш)

Вставки

0°-180°

1

Условные обозначения:

У - секция универсальной ориентации;

ЧО (Ш) – секция частично ограниченной (широтной) ориентации;

ЧО (М) – секция частично ограниченной (меридиональной) ориентации.

Рисунок Е.1а

ОБЪЕМНО-ПЛАНИРОВОЧНАЯ СТРУКТУРА
ОСНОВНЫХ ТИПОВ МНОГОКВАРТИРНЫХ ЖИЛЫХ ЗДАНИЙ

СХЕМЫ ОДНОСЕКЦИОННЫХ ЖИЛЫХ ЗДАНИЙ
С РАЗЛИЧНОЙ ФОРМОЙ ПЛАНА

Формы планов односекционных жилых зданий

компактные

расчлененные

Рисунок Е.2

ОБЪЕМНО-ПЛАНИРОВОЧНАЯ СТРУКТУРА
ОСНОВНЫХ ТИПОВ МНОГОКВАРТИРНЫХ ЖИЛЫХ ЗДАНИЙ

СХЕМЫ ЖИЛЫХ ЗДАНИЙ КОРИДОРНОГО ТИПА

Размещение квартир

Размещение коридора

С одной или с двух сторон дома

В центре дома

По обе стороны от оси дома

Схема разреза

Квартиры в одном уровне (в том числе со спуском и подъемом из коридора)

Квартира в двух уровнях

Квартиры в нескольких уровнях со смещением на 1, 2, 3 марша

Условные обозначения:

 - коридоры;

 - квартиры;

 - лифтовые холлы.

Рисунок Е.3

ОБЪЕМНО-ПЛАНИРОВОЧНАЯ СТРУКТУРА
ОСНОВНЫХ ТИПОВ МНОГОКВАРТИРНЫХ ЖИЛЫХ ЗДАНИЙ

СХЕМЫ ЖИЛЫХ ЗДАНИЙ ГАЛЕРЕЙНОГО ТИПА

Размещение квартир

Размещение галереи

С одной стороны дома

На различных сторонах дома

Схема разреза

Квартиры в одном уровне (в том числе со спуском и подъемом с галереи)

Квартира в двух уровнях

Квартиры в нескольких уровнях со смещением на 1, 2, 3 марша

Условные обозначения:

- галереи;

 - квартиры.

Рисунок Е.4

ОБЪЕМНО-ПЛАНИРОВОЧНАЯ СТРУКТУРА
ОСНОВНЫХ ТИПОВ МНОГОКВАРТИРНЫХ ЖИЛЫХ ЗДАНИЙ

ЖИЛОЕ ЗДАНИЕ КОРИДОРНО-СЕКЦИОННОГО ТИПА

Рисунок Е.5

ПРИЕМЫ БЛОКИРОВКИ
МНОГОКВАРТИРНЫХ ЖИЛЫХ ЗДАНИЙ

ПРИЕМЫ БЛОКИРОВКИ СЕКЦИЙ В МНОГОСЕКЦИОННЫХ ЖИЛЫХ ДОМАХ

Односторонняя

Трехсторонняя

Двухсторонняя

Четырехсторонняя

ПРИЕМЫ ФОРМИРОВАНИЯ УГЛОВ ПОВОРОТА
В МНОГОСЕКЦИОННЫХ ЖИЛЫХ ДОМАХ

Секции без применения поворотных элементов

Секции со специальными окончаниями

Секции со вставками

Рисунок Е.6

ПРИЕМЫ БЛОКИРОВКИ
МНОГОКВАРТИРНЫХ ЖИЛЫХ ДОМОВ

ПРИЕМЫ БЛОКИРОВКИ КВАРТИР В БЛОКИРОВАННЫХ ЖИЛЫХ ДОМАХ

Линейная блокировка

Блокировка со сдвигом

Сложная

1-рядная

2-рядная

1-рядная

2-рядная

Форма плана блок-квартиры

прямоугольная

Г-образная

Т-образная

с внутренним двором

ПРИЕМЫ ФОРМИРОВАНИЯ УГЛОВ В ЖИЛЫХ ДОМАХ
КОРИДОРНОГО И ГАЛЕРЕЙНОГО ТИПОВ

Рисунок Е.7

ЭНЕРГОСБЕРЕГАЮЩИЕ ОБЪЕМНО-ПЛАНИРОВОЧНЫЕ
РЕШЕНИЯ ЖИЛЫХ ЗДАНИЙ

ЖИЛЫЕ ДОМА С ШИРОКИМ КОРПУСОМ

Ширина корпуса

от 13 м до 18 м

более 18 м

Рисунок Е.8

ЭНЕРГОСБЕРЕГАЮЩИЕ ОБЪЕМНО-ПЛАНИРОВОЧНЫЕ
РЕШЕНИЯ ЖИЛЫХ ЗДАНИЙ

ПРИЕМЫ УВЕЛИЧЕНИЯ ВЫХОДА ПЛОЩАДИ КВАРТИР НА ЭТАЖЕ

Рисунок Е.9

ОБЪЕМНО-ПЛАНИРОВОЧНЫЕ РЕШЕНИЯ
ШУМОЗАЩИЩЕННЫХ ЖИЛЫХ ДОМОВ

ШУМОЗАЩИЩЕННЫЕ ЖИЛЫЕ ДОМА РАЗЛИЧНЫХ ТИПОВ И ОРИЕНТАЦИИ
И ПРИЕМЫ ИХ РАЗМЕЩЕНИЯ ОТНОСИТЕЛЬНО МАГИСТРАЛЕЙ

Застройка и ее ориентация

Типы защищенных жилых домов и секций

Условные обозначения:

- ось магистрали;

- лестничные и лестнично-лифтовые узлы;

- фасад, ориентированный на шум;

- внеквартирные коридоры и холлы.

Застройка планировочно шумозащищенными жилыми зданиями, в том числе:

А - для любой стороны магистрали при неограниченной ориентации секций многосекционных жилых домов, домов коридорного и коридорно-секционного типов;

В - для южной, восточной и западной сторон магистрали при ограниченной ориентации секций многосекционных жилых домов и домов коридорного типа

Застройка жилыми зданиями с конструктивными средствами шумозащиты, в том числе:

С - односекционными жилыми домами;

D - многосекционными жилыми домами и домами других типов

Планировочные схемы:

1 - коридорный дом с центральным коридором и квартирами в двух уровнях;

2 - двухквартирная секция неограниченной ориентации;

3 - коридорно-секционный жилой дом неограниченной ориентации;

4 - шестиквартирная Т-образная секция широтной ориентации;

5 - четырехквартирная секция широтной ориентации;

6 - односекционный жилой дом с обычной планировочной структурой;

7 - многосекционный жилой дом с обычной планировочной структурой

Рисунок Е.10

ОБЪЕМНО-ПЛАНИРОВОЧНЫЕ РЕШЕНИЯ,
ОБЕСПЕЧИВАЮЩИЕ НОРМИРУЕМУЮ ИНСОЛЯЦИЮ
И ПОВЫШЕНИЕ ПЛОТНОСТИ ЗАСТРОЙКИ

Условное обозначение:

- нежилые помещения

Рисунок Е.11

ОБЪЕМНО-ПЛАНИРОВОЧНЫЕ РЕШЕНИЯ,
ОБЕСПЕЧИВАЮЩИЕ НОРМИРУЕМУЮ ИНСОЛЯЦИЮ
И ПОВЫШЕНИЕ ПЛОТНОСТИ ЗАСТРОЙКИ

ОРИЕНТИРОВАННЫЕ ЖИЛЫЕ ДОМА

Схемы формирования объема

Примеры решения

Т-образные дома

Дома, полученные методом разворота

Рисунок Е.12

РЕГИОНАЛЬНЫЕ ОСОБЕННОСТИ
ОБЪЕМНО-ПЛАНИРОВОЧНЫХ РЕШЕНИЙ ЖИЛЫХ ЗДАНИЙ

III И IV КЛИМАТИЧЕСКИЕ РАЙОНЫ СТРОИТЕЛЬСТВА

Примеры решений жилых домов с узким корпусом,
обеспечивающим малую тепловую инерцию здания

Обеспечение сквозного проветривания объема через квартиры

Затенение фасада сплошными лоджиями

Рисунок Е.13

РЕГИОНАЛЬНЫЕ ОСОБЕННОСТИ
ОБЪЕМНО-ПЛАНИРОВОЧНЫХ РЕШЕНИЙ ЖИЛЫХ ЗДАНИЙ

III И IV КЛИМАТИЧЕСКИЕ РАЙОНЫ СТРОИТЕЛЬСТВА

Примеры решений, обеспечивающих проветривание объема жилого здания
через рекреационные и коммуникационные пространства

Рисунок Е.14

ЭВАКУАЦИОННЫЕ ПУТИ

СХЕМЫ ОБЫЧНЫХ ЛЕСТНИЧНЫХ КЛЕТОК

Обычные лестничные клетки

Тип Л1

Тип Л2

Условные обозначения:

- входы в квартиры;

- световой фонарь;

- световая шахта.

Рисунок Е.15

ЭВАКУАЦИОННЫЕ ПУТИ

СХЕМЫ НЕЗАДЫМЛЯЕМЫХ ЛЕСТНИЧНЫХ КЛЕТОК

Незадымляемые лестничные клетки

Тип Н1

Тип Н2

Тип Н3

Условные обозначения:

- входы в квартиры;

- подпор воздуха;

- дымоудаление.

Рисунок Е.16

ПЛАНИРОВОЧНЫЕ ЭЛЕМЕНТЫ ЖИЛЫХ ЗДАНИЙ

РАЗМЕЩЕНИЕ МУСОРОПРОВОДА

Загрузочный клапан

Ствол мусоропровода

Первый этаж

Типовой этаж

На уровне промежуточной лестничной площадки

На лестничной площадке*

Смежно с лестничной площадкой*

На уровне пола этажа

Смежно с коридором

В тамбуре

На уровне промежуточной лестничной площадки

Смежно с лифтовым холлом

*

На уровне пола этажа

В отдельном помещении

             - входы в квартиры.

* Допускается при применении обычных лестничных клеток при высоте расположения верхнего этажа £ 28,0 м.

Рисунок Е.17

МИНИМАЛЬНЫЕ ГАБАРИТЫ И
ПЛОЩАДЬ ПОМЕЩЕНИЙ КВАРТИРЫ

ЖИЛЫЕ КОМНАТЫ: ГОСТИНЫЕ

Размеры функциональных зон с учетом габаритов мебели

Минимальные размеры и площадь

в 1-комнатных квартирах

в 2-комнатных квартирах

в квартирах с числом жилых комнат ³ 3

* В реконструируемых жилых домах.

** Рекомендуемая площадь.

Рисунок Е.18

МИНИМАЛЬНЫЕ ПЛОЩАДИ И
ГАБАРИТЫ ПОМЕЩЕНИЙ КВАРТИРЫ

ЖИЛЫЕ КОМНАТЫ: СПАЛЬНИ

на одного человека

на двух человек

Размеры элементов мебели и функциональных зон

Минимальные площади и размеры

* В мансардном этаже и этаже с наклонными ограждающими конструкциями при площади гостиной не менее 16 м2.

** В реконструируемых жилых домах.

Рисунок Е.19

МИНИМАЛЬНЫЕ ПЛОЩАДИ И
ГАБАРИТЫ ПОМЕЩЕНИЙ КВАРТИРЫ

КУХНИ

Размеры элементов мебели
функциональных зон

Минимальные

размеры

площади

Кухня-ниша

5 м2 - для квартир типа 1А

Кухня

8 м2 - для квартир типов 1Б и 2Б с числом жилых комнат ³ 3;

допускается:

5 м2 - для квартир типа 1А;

7 м2 - для квартир в мансардном этаже*

Кухня-столовая

6 м2-кухонная зона

Рекомендуемые:

³ 8 м2 - для квартир на семью из 2 чел. и одиноких;

³ 10 м2 - для квартир на семью из 3 - 5 чел.

* Также для квартир в этаже с наклонными ограждающими конструкциями.

Рисунок Е.20

МИНИМАЛЬНЫЕ ГАБАРИТЫ И
ПЛОЩАДЬ ПОМЕЩЕНИЙ КВАРТИРЫ

САНИТАРНО-ГИГИЕНИЧЕСКИЕ ПОМЕЩЕНИЯ

Минимальные габариты

Примеры планировочных решений

Раздельный санузел

Совмещенный санузел

Ванная комната

Уборная

* Без учета допуска 20 - 30 мм на установку ванны.

Рисунок Е.21

ПРИЕМЫ ТРАНСФОРМАЦИИ КВАРТИР

Рисунок Е.22

РЕГИОНАЛЬНЫЕ ОСОБЕННОСТИ
ПРОЕКТИРОВАНИЯ КВАРТИР

ПРИМЕРЫ ПЛАНИРОВОЧНЫХ РЕШЕНИЙ КВАРТИР ДЛЯ ЖИЛЫХ ДОМОВ
ГОСУДАРСТВЕННОГО И МУНИЦИПАЛЬНОГО ЖИЛИЩНЫХ ФОНДОВ
для климатического подрайона IB, II и III климатических районов

Рисунок Е.23

РЕГИОНАЛЬНЫЕ ОСОБЕННОСТИ
ПРОЕКТИРОВАНИЯ КВАРТИР

ПРИМЕРЫ ПЛАНИРОВОЧНЫХ РЕШЕНИЙ КВАРТИР ПОВЫШЕННОГО
УРОВНЯ КОМФОРТА С ДОПОЛНИТЕЛЬНЫМИ ПОМЕЩЕНИЯМИ
для климатического подрайона IB, II и III климатических районов

Рисунок Е.24

РЕГИОНАЛЬНЫЕ ОСОБЕННОСТИ
ПРОЕКТИРОВАНИЯ КВАРТИР

I И II КЛИМАТИЧЕСКИЕ РАЙОНЫ СТРОИТЕЛЬСТВА

Квартиры с сушильными шкафами

Квартиры с эркерами различной ориентации

Рисунок Е.25

РЕГИОНАЛЬНЫЕ ОСОБЕННОСТИ
ПРОЕКТИРОВАНИЯ КВАРТИР

III И IV КЛИМАТИЧЕСКИЕ РАЙОНЫ СТРОИТЕЛЬСТВА

Проветриваемые общие комнаты
с раздвижными перегородками и двухстворчатыми
дверями между жилым и летним помещением

Применение
угловой лоджии
для проветривания

Двухуровневая квартира
с проветриванием через приквартирный дворик

Раздельное проветривание помещений
(К - с/у)
и жилых помещений (Ок-Сп, Сп-Сп)

Рисунок Е.26

 

 

Ключевые слова: жилые здания, дома, помещения, объемно-планировочные структуры, планировочные элементы жилых зданий