Система нормативных документов в строительстве
СВОД ПРАВИЛ ПО
ПРОЕКТИРОВАНИЮ
И СТРОИТЕЛЬСТВУ
ДОМА-ИНТЕРНАТЫ
ДЛЯ ДЕТЕЙ-ИНВАЛИДОВ
СП 35-117-2006
ДЕПАРТАМЕНТ СТРОИТЕЛЬСТВА
И ЖИЛИЩНО-КОММУНАЛЬНОГО ХОЗЯЙСТВА
МИНИСТЕРСТВА РЕГИОНАЛЬНОГО РАЗВИТИЯ
РОССИЙСКОЙ ФЕДЕРАЦИИ
Москва
Предисловие
1 РАЗРАБОТАН ФГУП «Научно-проектный институт учебно-воспитательных, торгово-бытовых и досуговых зданий» (Институт общественных зданий) и ЗАО «Архитектурное проектно-исследовательское объединение - Центр» (АПИО-Центр)
2 ВНЕСЕН Департаментом по делам детей, женщин и семьи Министерства труда и социального развития Российской Федерации
3 УТВЕРЖДЕН приказами генерального директора «АПИО-Центр» от 16 ноября 2004 г. № 5 и директора ФГУП «Институт общественных зданий» от 16 марта 2006 г.
4 ЗАРЕГИСТРИРОВАН Департаментом строительства и жилищно-коммунального хозяйства Министерства регионального развития Российской Федерации 12 апреля 2006 г. № 3447-СК/07
5 ВВЕДЕН ВПЕРВЫЕ
СОДЕРЖАНИЕ
Введение
Настоящий Свод правил выполнен по государственному контракту № 1110-14/02 от 24 ноября 2002 г. с Госстроем России.
Федеральная целевая программа «Дети-инвалиды» отражает общественные преобразования в нашей стране и направлена на формирование основ комплексного решения проблем детей с отклонениями в развитии, на создание условий для реализации психолого-педагогической и социальной реабилитации детей-инвалидов.
Социальные учреждения для детей-инвалидов, в числе которых дома-интернаты для детей-инвалидов, нуждаются в совершенствовании нормативной документации.
В данном Своде правил содержатся требования к однопрофильным и многопрофильным домам-интернатам для детей-инвалидов со специализированными отделениями и единым на здание блоком общественных помещений (медицинских, административных, бытовых, столовой).
Нормативной базой, регламентирующей мероприятия по решению домов-интернатов для детей-инвалидов, являются законодательные и нормативные документы, в числе которых:
Федеральная целевая программа «Дети-инвалиды» (Постановление Правительства Российской Федерации от 19.09.97 г. № 1207);
Приказ Министерства образования РФ и Министерства здравоохранения РСФСР от 18 июля 1991 г. № 251/125 «О мерах по улучшению общеобразовательных учебно-воспитательных учреждений для детей и подростков, имеющих недостатки в физическом и умственном развитии»;
Федеральный Закон № 32. Собрание законодательства Российской Федерации 1995 г., ст. 3198 «О социальном обслуживании граждан пожилого возраста и инвалидов»;
«Положение о детском доме-интернате для детей с физическими недостатками». Приказ Министерства социального обеспечения РСФСР от 5 ноября 1980 г. № 122;
Постановление об утверждении «Методических рекомендаций по организации деятельности государственного (муниципального) учреждения «Дом-интернат для умственно отсталых детей»» Минтруда и социального развития РФ № 54 от 8 августа 2002 г.
Кроме перечисленных законодательных документов учтен комплекс отраслевых нормативных документов № 35, касающихся проектирования и строительства для маломобильного населения и инвалидов.
В работе частично использованы следующие материалы:
МГСН 4.02-94 «Дома-интернаты для детей-инвалидов»
ВСН 62-91 */Госкомархитектура «Проектирование среды жизнедеятельности с учетом потребностей инвалидов и маломобильных групп населения». Разделы 1 и 2, 1994.
Рекомендации по проектированию домов-интернатов для умственно отсталых детей. М., 1980.
В документе также учтены работы специалистов: канд. архит. Смывиной Л.А. (ФГУП «ИОЗ»); канд. архит. Тюричевой М.Н. (АПИО-Центр); канд. архит. Щетининой Н.Н. (ЦНИИЭП учебных зданий); канд. архит. Цытовича Г.Н. (ЦНИИЭП учебных зданий).
Работа выполнена авторским коллективом в следующем составе:
научный руководитель - канд. архит. Л.А. Смывина (ФГУП «ИОЗ»);
ответственные исполнители: канд. архит. Т.А. Исаева (ФГУП «ИОЗ») и д-р мед. наук, профессор Н.Ф. Дементьева (ФЦЭРИ), при участии: инж. Л.В. Сигачевой, инж. Н.И. Чернозубовой (ФГУП «ИОЗ»), компьютерная графика: канд. техн. наук. В.Ф. Кротюка, инж. И.Р. Домрачевой (ФГУП «ИОЗ»).
Научный редактор нормативного документа - канд. архит. A.M. Гарнец (ФГУП «ИОЗ»).
СВОД ПРАВИЛ ПО ПРОЕКТИРОВАНИЮ И СТРОИТЕЛЬСТВУ
ДОМА-ИНТЕРНАТЫ ДЛЯ ДЕТЕЙ-ИНВАЛИДОВ
Boarding schools (institutions) for disabled children
1.1 Положения Свода правил (далее - СП) распространяются на здания домов-интернатов (далее - учреждения) для стационарного проживания детей-инвалидов с сохранным интеллектом и физическими недостатками и умственно отсталых с различной степенью инвалидности. Определения учреждений даны в приложении А.
1.2 Требования Свода правил следует учитывать при проектировании новых объектов, реконструкции и модернизации существующего фонда, при решении функциональных зон помещений домов-интернатов различного назначения, при экспертизе проектов.
Настоящий СП предназначен также для применения органами архитектуры и градостроительства, социальной защиты населения, общественными организациями и фондами - собственниками объектов.
В случае реконструкции зданий для домов-интернатов следует учитывать кроме требований настоящего СП также требования нормативного документа по реконструкции СП 35-114.
В настоящем Своде правил приведены ссылки на следующие нормативные документы:
СНиП 21-01-97* «Пожарная безопасность зданий и сооружений»
СНиП 23-03-2003 «Защита от шума»
СНиП 31-01-2003 «Здания жилые многоквартирные»
СНиП 23-05-95* «Естественное и искусственное освещение»
СНиП 35-01-2001 «Доступность зданий и сооружений для маломобильных групп населения»
СНиП 41-01-03 «Отопление, вентиляция и кондиционирование»
СНиП 2.04.01-85* «Внутренний водопровод и канализация зданий»
СНиП 2.07.01-89* «Градостроительство. Планировка и застройка городских и сельских поселений»
СНиП 2.08.02-89* «Общественные здания и сооружения»
ГОСТ 11015-93 «Столы ученические. Типы и функциональные размеры»
ГОСТ 11016-93 «Стулья ученические. Типы и функциональные размеры»
СП 35-101-2001 «Проектирование зданий и сооружений с учетом доступности для маломобильных групп населения. Общие положения»
СП 35-114-2003 «Реконструкция и приспособление зданий для учреждений социального обслуживания пожилых людей»
ПУЭ «Правила устройства электроустановок»
ППБ 01-03 «Правила пожарной безопасности в Российской Федерации»
НПБ 88-2001* «Установки пожаротушения и сигнализации. Нормы и правила проектирования»
НПБ 104-03 «Системы оповещения и управления эвакуацией людей при пожарах в зданиях и сооружениях»
СанПиН 2.2.1/2.1.1.1278-03 «Гигиенические требования к естественному, искусственному и совмещенному освещению жилых и общественных зданий»
СанПиН 2.4.1201-03 «Гигиенические требования к устройству, содержанию, оборудованию и режиму работы специализированных учреждений для несовершеннолетних, нуждающихся в социальной реабилитации»
СанПиН 2.4.1249-03 «Санитарно-эпидемиологические требования к устройству, содержанию и организации режима работы дошкольных образовательных учреждений»
ВСН 281-75 «Указание по проектированию систем автоматизации технологических процессов»
3.1 Здания учреждений домов-интернатов для детей-инвалидов рассчитаны на проживание различных возрастных групп детей:
- с сохранным интеллектом, имеющих физические недостатки, в возрасте от 3 до 16 лет в соответствии с таблицей Б.1 приложения Б;
- умственно отсталых в возрасте от 4 до 18 лет в соответствии с таблицей Б.2 приложения Б.
3.2 В учреждениях для детей-инвалидов следует предусматривать необходимый набор помещений - жилых, служебно-бытовых, хозяйственных, административных, медицинских; культурно-массовых и досугового назначения, создавать условия для обеспечения обстановки, максимально приближенной к домашней, сочетая ее с необходимым медицинским обслуживанием.
Структура учреждений и взаимосвязь помещений приведены на рисунке 1, состав и площади помещений приведены в таблицах Г.1 - Г.7 приложения Г.
В учреждениях для детей-инвалидов могут быть запроектированы «дневные отделения» для круглосуточного пребывания детей на пять дней в неделю (при согласовании с органами социальной защиты с учетом устава учреждения).
3.3 Вместимость учреждений для детей-инвалидов рекомендуется принимать 100 - 200 мест в соответствии с таблицами В.1 и В.2 приложения В.
3.4 При проектировании домов-интернатов для детей-инвалидов следует учитывать требования строительных норм и правил применительно к зданиям общественного назначения согласно СНиП 2.08.02 и СНиП 35-01, а также следует соблюдать гигиенические требования к устройству и организации режима работы в домах-интернатах для детей-инвалидов в соответствии с СанПиН 2.2.1/2.1.1.1278, СанПиН 2.4.1249.
3.5 В домах-интернатах для детей-инвалидов противопожарную защиту следует обеспечивать в соответствии с требованиями СНиП 21-01. По функциональной пожарной опасности интернаты относятся к классу Ф.1.1. согласно СНиП 21-01, п. 5.21*.
Таблица 1 - Ориентация помещений
|
Ориентация помещений |
||||
|
севернее 45° СШ |
южнее 45° СШ |
|||
|
оптимальная |
допустимая |
оптимальная |
допустимая |
|
|
Групповые комнаты дневного пребывания |
Ю, ЮВ, В |
На ЮЗ не более 25 % комнат |
Ю, ЮВ |
Любая, кроме С, СЗ, З |
|
Спальные комнаты |
Любая, кроме северной части горизонта от 310° до 50° |
|||
|
Классы |
ЮВ |
На ЮЗ, З не более 25 % классов |
Ю, ЮВ |
Любая, кроме ЮЗ, З |
|
Палаты изолятора и карантинного отделения |
Ю, ЮВ |
На ЮЗ не более 50 % коек отделения |
Ю, ЮВ |
Любая, кроме С, СЗ, З |
|
Палаты для лежачих |
Ю, ЮВ, В |
На 3, СЗ и СВ не более 10 % коек отделения |
Ю, ЮВ |
На СЗ не более 10 % |
|
Учебно-производственные |
Ю, ЮВ, В |
На ЮЗ не более 25 % помещений |
Ю, ЮВ, В |
Любые, кроме З, ЮЗ |
|
Кабинеты врачей, процедурные, комнаты сестер, лечебные помещения, комнаты персонала |
Без ограничения |
|||
|
Примечания 1 В классе для занятий ориентация указана для основного света слева. 2 При расположении окон в противоположных стенах помещения ориентация не нормируется. |
||||
3.6 Оптимальная этажность домов-интернатов для детей-инвалидов рекомендуется 1 - 2 этажа.
При числе этажей более двух учреждения для детей-инвалидов должны быть оборудованы лифтами (по расчету), в том числе и кроватными. Количество лифтов в каждом конкретном случае определяется заданием на проектирование.
В интернатах для детей-инвалидов следует предусматривать кроме лифтов и пандусы. Уклон пандуса на путях передвижения инвалидов на колясках внутри и снаружи здания следует принимать не более 1 : 12 согласно СНиП 2.08.02, п. 1.94.
3.7 В зависимости от возраста и тяжести заболевания принцип размещения групп детей по этажам должен подчиняться следующим правилам:
- лежачие, обездвиженные дети размещаются не выше первого этажа;
- дети до 6 лет - не выше второго этажа.
В учреждении для детей-инвалидов с поражением опорно-двигательного аппарата расчетное число колясочников в отделении следует принимать 20 - 30 % вместимости отделения. В отделении для умственно отсталых детей, передвигающихся с трудом, число колясочников рекомендуется принимать 2 - 3 % вместимости отделения. Общее количество колясочников следует уточнять при составлении задания на проектирование.
3.8 Жилая площадь в домах-интернатах для детей-инвалидов принимается 4 м2/место для дошкольных групп и 6 м2/место для остальных групп согласно таблицам Г.1 и Г.2 приложения Г.
3.9 Высоту помещений учреждения для детей-инвалидов следует принимать согласно СНиП 31-01 (высота жилых помещений от пола до потолка не менее 2,5 м. Для климатических районов 1А, 1Б, 1Г, 1Д, IIА - не менее 2,7 м), высоту общественных помещений, кроме помещений столовой, допускается принимать равной высоте жилых помещений. Высоту помещения столовой следует принимать не менее 3 м согласно СНиП 2.08.02.
3.10 Ориентацию окон помещений по сторонам горизонта следует принимать с учетом требований СанПиН 2.4.1249, СНиП 23-05 и таблицы 1.
3.11 Необходимость мероприятий по решению учреждений гражданской обороны определяется в каждом конкретном случае заданием на проектирование.
Требования к интерьеру и размерам внутреннего пространства
3.12 Организация внутреннего и внешнего пространства, учитывающая особенности детей-инвалидов, проектируется исходя из обязательных минимально допустимых параметров комфортного проживания в соответствии с таблицами Б.1 - Б.2; В.1 - В.2; Г.1 - Г.8 приложений Б - Г, рисунком 2.
3.13 Оборудование помещений для детей-инвалидов следует принимать в соответствии с антропологическими и эргонометрическими данными детей, имеющих различные нарушения физического и умственного развития, в соответствии с рисунком 2. Параметры помещений для детей с физическими недостатками (нарушением зрения, слуха, речи) принимаются такими же, как и для помещений, рассчитанных на здоровых детей, в этом случае площадь тела в плане равна 0,1 м2 (в летней одежде).
Для слепых детей (с остротой зрения 0 - 0,05), которые используют ориентировочную трость для передвижения в окружающем пространстве, среднюю площадь тела в плане следует принимать 0,4 м2.
Для детей с последствиями полиомиелита и церебральных параличей, аномальных детей площадь тела ребенка, занимаемая в плане, составляет:
- без использования дополнительных опор - 0,25 м2;
- с одной дополнительной опорой - 0,2 м2;
- с двумя дополнительными опорами - 0,3 м2 (по данным д-ра архит., проф. В.К. Степанова).
На основе антропологических и эргонометрических данных детей-инвалидов жилые помещения следует принимать не менее, м2:
- спальные комнаты для детей-инвалидов с физическими недостатками - 4,0; для слепых (с остротой зрения 0 - 0,05) - 4,5;
- спальные комнаты для детей-инвалидов лежачих - 6,0;
- комнаты дневного пребывания - 3;
- классные комнаты в жилых ячейках - 2,5.
3.14 В составе жилой ячейки для детей с физическими недостатками, для старшеклассников следует предусматривать дополнительно комнаты для индивидуальных занятий площадью на 1 воспитанника не менее 1,5 м2/место, а для детей-инвалидов с последствиями полиомиелита и церебральных параличей - не менее 1,8 м2/ место.
3.15 При проектировании помещений рекомендуется пользоваться габаритными схемами, приведенными на рисунках 3 - 11.
4.1 Дома-интернаты для детей-инвалидов следует размещать на обособленных участках в озелененных районах селитебной территории, вблизи подъездных дорог, действующих инженерных коммуникаций в пределах радиуса обслуживания пожарного депо, на расстоянии не менее 3000 м от промышленных предприятий, улиц и дорог с интенсивным движением транспорта и железнодорожных путей, а также других источников повышенного шума, загрязнения воздуха и почвы.
4.2 Площадь земельного участка учреждений для детей-инвалидов следует принимать в соответствии с таблицами В.1 и В.2 приложения В.
При строительстве нового здания дома-интерната для детей-инвалидов в районах с затесненной застройкой площадь земельного участка может быть уменьшена, но не более чем на 20 %.
4.3 На участке следует разграничивать его территорию для площадок групп детей с сохранным интеллектом и детей умственно отсталых с учетом использования различными группами соответствующих функциональных зон организованных площадок на одну группу или общую на 2 - 3 группы:
- учебно-производственной зоны (садово-ягодные участки);
- зоны отдыха (площадки для встречи с родителями, площадки, оборудованные скамейками и столами, цветниками, прогулочные дорожки, лужайки для игр);
- хозяйственной зоны (гараж, овощехранилище, котельная, мусоросборник, склад).
Площадь участка и состав площадок для различных групп следует принимать в соответствии с таблицами В.1 и В.2 приложения В и СНиП 2.07.01 (таблица 7).
4.4 На территории участка следует предусматривать два самостоятельных въезда, один из въездов должен быть хозяйственным. При въезде на участок необходимо предусматривать стоянку легковых машин на 3 - 5 машин (25 м2 на место).
4.5 Озеленение участка следует принимать не менее 40 % площади участка.
4.6 Участок здания учреждения для детей-инвалидов необходимо ограждать оградой высотой 2 м с запирающимися калиткой и воротами.
4.7 Здания домов-интернатов следует размещать в пределах радиуса обслуживания пожарного депо.
4.8 При проектировании протяженных (блокированных) зданий должны быть предусмотрены сквозные проезды шириной в свету не менее 4,25 м.
Степень огнестойкости домов-интернатов для детей-инвалидов должна быть не ниже II степени огнестойкости.
5.1 Учреждения для детей-инвалидов с сохранным интеллектом, а также учреждения для детей умственно отсталых формируются из жилых отделений, жилых групп и жилых ячеек, помещений медицинского, хозяйственного и бытового назначения. При проектировании рекомендуется предусматривать вариант решения учреждения (многопрофильных) с интеграцией жилых отделений для детей с сохранным интеллектом и для умственно отсталых детей при четком разграничении отделений. Планировку здания необходимо решать исходя из функциональной структуры учреждения и с учетом СП 35-101, с единым блоком медицинских, административных, хозяйственных, культурно-массовых помещений и столовой. Схема планировки здания для детей-инвалидов представлена на рисунках 3 - 5. Состав и площадь помещений следует принимать в соответствии с таблицами Г.3 - Г.7 приложения Г.
5.2 В состав домов-интернатов для детей-инвалидов входят следующие основные группы помещений:
- приемно-карантинное отделение;
- жилые отделения для умственно отсталых детей;
- жилые отделения для детей с сохранным интеллектом, имеющих физические недостатки;
- общественные помещения;
- учебно-производственные;
- зальные;
- медицинские и сенсорные;
- служебно-бытовые;
- пищеблок;
- культурно-массовые и досуговые помещения;
- помещения проживания персонала (при загородном размещении дома-интерната для детей-инвалидов).
5.3 Все основные группы помещений учреждений для детей-инвалидов должны быть, как правило, функционально изолированы и взаимосвязаны через коммуникационные пространства. На практике обеспечить всем группам помещений необходимую изоляцию достаточно сложно. Поэтому допускаются некоторые группы помещений, кроме жилых, предусматривать проходными.
Функционально-планировочную организацию домов-интернатов для детей-инвалидов желательно проектировать с обособленными жилыми отделениями, которые рекомендуется соединять с блоком общественных помещений короткими (6 м) теплыми переходами, как показано на рисунке 5.
Приемно-карантинное отделение с изолятором
5.4 Приемно-карантинное отделение следует проектировать с отдельным самостоятельным выходом на участок. Приемное отделение должно иметь непосредственную связь с карантинным отделением.
Площадь на одно приемно-смотровое место представлена в таблице 2.
Таблица 2 - Приемное отделение
|
Площадь м2 |
|
|
Вестибюль-ожидальная |
12 |
|
Уборная при вестибюле (с электрополотенцесушителем при шлюзе) |
3 |
|
Приемно-смотровая |
16 |
|
Санпропускник-раздевальная |
6 |
|
Ванна с комнатой для одевания |
12 |
|
Место для хранения каталок |
6 |
|
Комната для временного хранения вещей поступающих |
4 |
|
Комната для хранения мягкого инвентаря |
4 |
|
ИТОГО: |
63 |
В карантинном отделении количество мест ориентировочно принимается 3 % общего числа детей-инвалидов в доме-интернате.
5.5 Окна в карантинном отделении следует проектировать из небьющегося стекла. Высота подоконника проектируется не менее 0,9 м от уровня пола. На окнах необходимо предусмотреть фрамуги или форточки, высоту размещения затворов фрамуг и форточек следует принимать от уровня пола 2,0 - 2,2 м.
5.6 Жилые ячейки для детей-инвалидов с физическими недостатками, но с сохранным интеллектом следует дифференцировать в зависимости от возраста и степени инвалидности в соответствии с таблицей Г.1 приложения Г и рисунком 6:
- для дошкольников - тип 1а;
- для подростков и старшеклассников - тип 1б;
- для лежачих, обездвиженных детей - тип 1в.
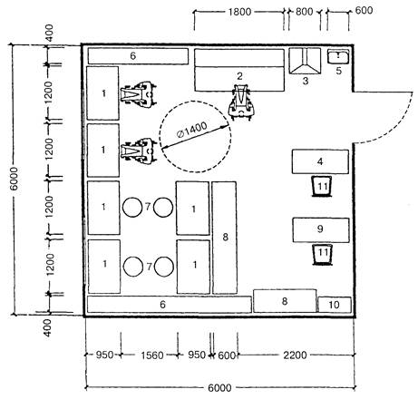
5.7 Жилую ячейку тип 1а следует предусматривать для детей-инвалидов в возрасте 3 - 7 лет. Жилая ячейка должна включать жилые комнаты на 4 - 6 человек, буфетную, комнату для игр, раздевальную, комнату воспитателя и санитарно-гигиенические помещения в соответствии с рисунками 5 и 7.
5.8 Жилую ячейку тип 1б следует предусматривать для детей-инвалидов подросткового возраста, подготовительной группы к общеобразовательным школьным занятиям в возрасте 6 - 7 лет и группы детей профессионального обучения 8 - 16 лет.
В жилой ячейке должны быть жилые комнаты на 2 - 3 - 4 человека, которые представлены на рисунках 6 и 8.
В составе жилой ячейки 1б следует предусматривать классы для обучающихся детей, состав и площади которых представлены в таблице Г.3 приложения Г.
Помещения жилой ячейки для детей с нарушением опорно-двигательного аппарата следует проектировать с учетом функциональных зон, обеспечивающих подъезд ребенка-инвалида в кресле-коляске к любой точке помещения, зону размещения кресла-коляски следует принимать шириной - 0,9 м и длиной - 1,5 м.
5.9 Жилая ячейка тип 1в предусматривается для лежачих детей, имеющих физические недостатки, не способных к передвижению, физически обездвиженных. Жилые комнаты следует рассчитывать на возрастные группы от 3 до 7 лет и от 8 до 16 лет. Вместимость жилых комнат следует проектировать на 6 - 8 человек.
Для удобства наблюдения за проживающими в жилых ячейках типа 1в шлюз-передняя не предусматривается. В ванной комнате следует предусмотреть зону для мытья клеенок. Состав и площади помещений жилой ячейки 1в представлены в таблице Г.1 приложения Г и на рисунке 10.
5.10 Жилые ячейки для умственно отсталых детей следует дифференцировать в зависимости от возраста и степени инвалидности по таблице Г.2 приложения Г и рисунку 9:
- для младшей группы - тип 2а;
- для средней и старших групп - тип 2б;
- для лежачих детей-инвалидов - тип 2в.
5.11 Жилую ячейку тип 2а следует предусматривать для детей младших групп в возрасте 4 - 8 лет с нарушенным интеллектом. В жилых ячейках тип 2а следует предусматривать: комнату воспитателя, игровую-столовую, жилые комнаты на 4 - 6 чел. Схема планировки жилой ячейки 2а представлена на рисунках 7, 10. Состав и площади помещений жилой ячейки 2а представлены в таблице Г.2 приложения Г.
5.12 Жилая ячейка тип 2б рассчитывается для детей в возрасте 8 - 12 лет и 12 - 18 лет, свободно или с трудом передвигающихся, способных к обучению. Жилые комнаты принимаются вместимостью на 2 - 3 - 4 чел. Схема планировки жилой ячейки представлена на рисунках 8 и 9. Состав и площади помещений жилой ячейки типа 2б принимаются согласно таблице Г.2 приложения Г.
5.13 В составе помещений жилой ячейки типа 2б для умственно отсталых детей 8 - 12 лет следует предусматривать учебные помещения (классы) исходя из подготовительной работы с ребенком по овладению им трудовыми навыками для дальнейшего обучения в учебно-производственных мастерских.
5.14 Жилую ячейку тип 2в следует предусматривать для детей-инвалидов умственно отсталых, не способных к передвижению, обездвиженных, лежачих. Она состоит из жилых комнат на 6 - 8 чел., при которых размещаются ванна с зоной для мытья клеенок, буфетная и кладовые для уборочного инвентаря и хозяйственные встроенные шкафы. В жилой ячейке типа 2в возможно размещение двух спален, вариант такого решения представлен на рисунках 9 и 10.
Состав и площади помещений жилой ячейки типа 2в представлены в таблице Г.2 приложения Г.
5.15 Раздевальные помещения для жилых ячеек типов 2а и 2б следует оборудовать встроенными шкафами с подсушкой одежды и обуви.
В спальных помещениях жилых ячеек следует предусматривать встроенные шкафы для хранения запаса чистого белья и спальных принадлежностей (0,15 м2/чел.). Схемы решения жилых ячеек типа 2 представлены на рисунке 9.
5.16 На каждые две жилые ячейки обучаемых детей-инвалидов рекомендуется устраивать одну неотапливаемую веранду площадью 1 м2/чел.
Учебные помещения
5.17 Для занятий обучаемых умственно отсталых детей, подготовительных групп трудового обучения (для среднего и старшего возраста детей) могут использоваться также комнаты трудотерапии, планировочная схема которых представлена на рисунке 11.
5.18 Учебная группа помещений для 1-го класса состоит из помещений для индивидуальных занятий и комнаты для игр, выполняющей функцию рекреационного помещения для отдыха во время занятий. Площади помещений приведены в таблицах Г.1 и Г.2 приложения Г.
5.19 Учебная группа помещений для воспитанников II - IV классов состоит из классных комнат, мастерских для трудового обучения, рекреаций и санитарных узлов, площади которых представлены в таблице Г.3 приложения Г.
5.20 Учебная группа помещений для средних и старших классов состоит из учебных классов, кабинетов лабораторий, лаборантских при них, рекреационных помещений и санитарных узлов.
Учебные кабинеты и лаборатории для средних и старших классов могут быть использованы для кружковых и индивидуальных занятий в неурочное время.
5.21 Лаборантские предусматриваются при каждом кабинете, а при лабораториях - по каждому предмету (химии, физике, биологии). Лаборантские являются местом для размещения отраслевой библиотеки, информационно-пленочных материалов, частичного хранения средств обучения, наглядных пособий. Состав помещений учебной и профессиональной подготовки для детей с сохранным интеллектом представлен в таблице Г.3 приложения Г.
5.22 Рекреационные помещения проектируются из расчета не менее 1 м2 на одного учащегося с учетом их универсального использования для занятий кружков, секций, игр (в том числе настольного тенниса).
5.23 Площадь класса принимается из расчета 2 м2 на человека. Классы оборудуются одноместными столами для детей, доской школьного типа, однотумбовым столом для воспитателя, шкафами для хранения наглядных пособий и тетрадей.
5.24 В классах необходимо предусмотреть сквозное или угловое проветривание, которое допускается осуществлять через рекреационное помещение или коридор.
Площадь застекленной поверхности окон в классах составляет 1/5 - 1/6 площади пола; 50 % окон следует устраивать с фрамугами или форточками. На столы обучающихся детей свет должен падать слева.
5.25 Учебные кабинеты для детей средней имбецильности (ручного труда, домоводства, агротехники и т.п.) должны состоять из двух помещений: собственно помещения для занятий и комнаты для хранения инструмента и запасного материала.
Учебно-производственные мастерские
5.26 Для производственной практики обучающихся предусматриваются учебно-производственные мастерские (УПМ). Учебно-производственные мастерские следует проектировать раздельно для детей-инвалидов с сохранным интеллектом в возрасте 8 - 16 лет и для умственно отсталых детей в возрасте 12 - 18 лет. Состав и площади помещений представлены в таблице Г.3 приложения Г.
5.27 Для детей с сохранным интеллектом учебно-производственные мастерские (далее - УПМ) профессиональной подготовки включают учебные классы, учебные кабинеты, мастерские. Взаимосвязь учебно-производственных помещений профессиональной подготовки должна осуществляться через коридоры и рекреации при обеспечении изолированности всех учебных кабинетов и мастерских.
Площадь учебных помещений рассчитывается для воспитанников I - IV классов 1,7 м2/место; V - IX (или V - XI) классов - 2,2 м2/место.
5.28 Для самостоятельно передвигающихся умственно отсталых детей помещения УПМ принимаются из расчета от 3 до 8 м2/место.
5.29 Высоту помещений для учебно-производственных мастерских рекомендуется принимать 4,2 м.
5.30 При УПМ на каждую мастерскую площадью 90 м2 предусматриваются: комната организатора работ (8 м2), склады заготовок (12 м2); складские помещения должны быть связаны с мастерскими.
5.31 Учебно-производственные мастерские детского дома-интерната для обучаемых умственно отсталых детей состоят из классов, кабинета домоводства, производственных мастерских, кабинета заведующего учебной частью, методического кабинета в соответствии с таблицей Г.3 приложения Г.
5.32 В домах-интернатах для обучаемых умственно отсталых детей старшей группы в целях осуществления лечебно-трудовой и активирующей терапии необходимо создание лечебно-трудовых мастерских (далее - ЛТМ), таблица Г.3, п. 31 приложения Г.
Для детей-инвалидов 16 - 18 лет следует проектировать ЛТМ, предусматривающие профессии почтальона-оператора электронной почты, переплетчика и др. Выбор профиля мастерских уточняется заданием на проектирование в зависимости от контингента детей, а также конкретных условий и возможностей места строительства.
5.33 Площадь помещений мастерских определяется из условий размещения станочного оборудования, стола инструктора и рабочих мест обучаемых. При этом следует учитывать, что расстояние между рядами (проход вдоль мастерской) должно быть не менее 90 см.
5.34 В мастерских для детей-инвалидов ширина основного прохода - 1,5 м, расстояние между столами в ряду, предназначенными для детей-инвалидов, должно быть не менее 1,5 м в соответствии с рисунком 11.
5.35 Лечебно-трудовые мастерские следует предусматривать для детей-инвалидов старших групп - воспитанников с сохранным интеллектом и нарушенным интеллектом, способных к частичному самообслуживанию. Вместимость и профиль лечебно-трудовых мастерских следует определять заданием на проектирование и в соответствии с таблицей Г.3 приложения Г.
Медицинские помещения
5.36 Медицинские помещения предназначаются для лечебных и коррекционно-оздоровительных мероприятий. Их следует проектировать общими на весь дом-интернат для детей-инвалидов.
Общие на здание медицинские помещения домов-интернатов для детей-инвалидов состоят из кабинетов врачей, врачей-консультантов, кабинета медсестры, физиотерапевтического кабинета, общеклинической лаборатории, аптеки, кабинета ЛФК, сенсорной и позиционирующей комнат. Состав и площади помещений представлены в таблице Г.4 приложения Г.
При планировке лечебных помещений следует учитывать, что умственно отсталые дети на процедуры приходят группами до 15 чел. в сопровождении персонала, процедуры происходят в открытых просматриваемых помещениях, залах. Применение закрытых кабин запрещается.
5.37 В состав служебно-бытовых помещений входят следующие помещения: вестибюль 0,5 м2/место с гардеробом и санузлом, комната для посетителей, помещение инженерно-технического персонала, комната отдыха персонала, кабинет директора, заместителя директора по хозяйственной части, бытовые помещения персонала с комнатой отдыха, кладовые сезонной одежды и обуви, мебели и инвентаря, комната бухгалтерии, архив, парикмахерская, мастерская текущего ремонта оборудования и инвентаря (36 м2), хозяйственный склад (36 м2), радиоузел, АТС, прачечная-постирочная с группой помещений, площади которых следует принимать по таблице Г.5 приложения Г.
5.38 Прачечную-постирочную следует проектировать из расчета ее работы в две смены производительностью 1 кг белья в сутки на одно место для отделений детей, имеющих отклонение в развитии (с сохранным интеллектом и умственно отсталых); 2 кг белья в сутки на одно место для лежачих детей, имеющих отклонение в развитии.
5.39 В состав прачечной-постирочной входят: помещение для сортировки грязного белья с постирочной, дезинфицирующее отделение, помещение для хранения дезинфекционных средств и приготовления растворов, центральная бельевая; комната для хранения одежды, предназначенной на списание, помещения для персонала в соответствии с таблицей Г.5 приложения Г.
Помещения общественного питания
5.40 В домах-интернатах для детей-инвалидов предусматриваются помещения питания:
- буфетная с мойкой на жилую ячейку, в которую из производственных помещений кухни-столовой для категории детей, передвигающихся с трудом, лежачих питание доставляется в бочках и термосах в помещение буфетной жилой ячейки. Питание происходит в жилой комнате. В жилых ячейках для обездвиженных детей помимо буфетных проектируются шкафы для хозяйственных принадлежностей и место для тары, площадь которых следует принимать в соответствии с таблицами Г.1 и Г.2 приложения Г;
- столовая с обеденным залом (пищеблок), рассчитанная в целом на учреждение. Столовая работает на сырье. Обеденный зал проектируется на детей самостоятельно передвигающихся. Состав и площади столовой и обеденного зала следует принимать в соответствии с таблицей Г.6 приложения Г, справочным пособием к СНиП «Проектирование общественного питания» и СанПиН 2.4.1201.
5.41 Площадь обеденного зала столовой следует принимать для детей-инвалидов младших групп 1,4 м2/место, для детей-инвалидов средних и старших групп - 2,4 м2/место. При количестве более 150 мест следует предусматривать несколько залов (два-три). Рядом с обеденным залом для персонала рекомендуется предусматривать обеденный зал площадью не менее 14 - 16 м2.
5.42 Зальные помещения следует предусматривать для детей с сохранным интеллектом и умственно отсталых обучаемых детей-инвалидов. Зальные помещения включают спортивный и актовый залы, фойе. Состав и площади зальных помещений представлены в таблице Г.7 приложения Г.
5.43 Площадь актового зала проектируется из расчета размещения в нем 75 % воспитанников при 0,8 м2 площади на одно место в соответствии с таблицей Г.7 приложения Г.
Помещения культурно-массового и досугового назначения
5.44 Состав и площади помещений культурно-массового назначения рекомендуется проектировать в соответствии с таблицей Г.7 приложения Г.
5.45 Для детей-инвалидов, нуждающихся в улучшении координации движения, проектируется зал ритмики (занятия под музыку) площадью из расчета 5 м2 на воспитанника.
5.46 Площади кинопроекционной радиоузла следует принимать в соответствии с требованиями СНиП 2.08.02.
5.47 В доме-интернате для детей-инвалидов рекомендуется проектировать библиотеку, включающую читальный зал, - 2,5 м2/место, книгохранилище площадью не менее 18 м2 и информационно-справочную комнату площадью не менее 12 м2. Количество мест в читальном зале рекомендуется принимать 10 % вместимости дома-интерната.
Водоснабжение и канализация
6.1 В домах-интернатах для детей-инвалидов следует предусматривать хозяйственно-питьевое, противопожарное и горячее водоснабжение, а также канализацию и водостоки, проектируемые в соответствии со СНиП 2.04.01 и СНиП 2.08.02.
6.2 На сети хозяйственно-питьевого водопровода следует предусматривать отдельный кран для присоединения шланга (рукава) в целях возможности его использования в качестве первичного устройства в жилых ячейках пожаротушения на ранней стадии.
Шланг должен обеспечивать возможность подачи воды в любую точку жилой ячейки с учетом длины струи 3 м, быть длиной не менее 15 м, диаметром 19 мм и оборудован распылителем.
6.3 В кранах умывальников и душевых жилых ячеек следует устанавливать термостатические регуляторы, исключающие подачу горячей воды температурой более 50 °С.
6.4 Нагревательные приборы в помещениях для пребывания детей должны иметь ограждения, обеспечивающие нормальную конвекцию воздуха и удобства чистки приборов.
6.5 В районах без централизованных инженерных сетей допускается в одно-двухэтажных зданиях домов-интернатов на 50 мест проектировать неканализованные уборные (люфт-клозеты), предусматриваемые в жилых ячейках в пределах отапливаемой части здания в соответствии со СНиП 2.08.02, п. 3.51.
Отопление, вентиляция и кондиционирование воздуха
6.6 В домах-интернатах следует предусматривать отопление, вентиляцию с естественным побуждением согласно СНиП 41-01.
Расчетные параметры воздуха и кратность воздухообмена в помещениях следует принимать с учетом данных таблицы Г.8 приложения Г.
Необходимость устройства кондиционирования воздуха устанавливается соответствующими документами.
6.7 Для помещений с нормируемой вытяжкой компенсацию удаляемого воздуха следует предусматривать как за счет поступления наружного воздуха, так и за счет перетекания воздуха из других помещений жилой ячейки.
Вытяжную вентиляцию жилых комнат, жилых ячеек следует предусматривать через вытяжные каналы кухонь, уборных, ванных, сушильных шкафов.
Если метеорологические условия и чистота воздуха не могут быть обеспечены вентиляцией с естественным побуждением, следует предусматривать вентиляцию с механическим побуждением притока и удаления воздуха или комбинированную вентиляцию с естественным притоком и удаление воздуха через вентиляционные каналы с частичным использованием механического побуждения согласно СНиП 41-01, п. 7.1.2.
6.8 Систему вентиляции следует предусматривать с раздельными вентиляционными коробами для каждой из жилых групп, размещенных в пределах одного пожарного отсека, согласно СНиП 41-01.
На воздуховодах систем общеобменной вентиляции необходимо предусматривать противопожарные клапаны, воздушные затворы, место и расположение которых принимаются по СНиП 41-01, п. 7.11.1.
6.9 Отопительные приборы, трубопроводы с температурой поверхности доступных частей выше 75 °С в помещениях домов-интернатов, лестничных клетках, вестибюлях должны иметь защитные ограждения (съемные деревянные решетки) или тепловую изоляцию трубопроводов согласно СНиП 41-01, п. 4.4.3, СНиП 2.08.02, п. 3.4.
6.10 В одноэтажных зданиях домов-интернатов для детей-инвалидов с общим числом мест 100 (сооружаемых в пригородных поселках) допускается устраивать печное отопление. Топочное отверстие и печные заслонки должны обслуживаться из подсобных помещений, имеющих окна, форточки и каналы вытяжной вентиляции. При проектировании следует учитывать требования СНиП 41-01, п. 6.6.
Электротехнические устройства
6.11 В домах-интернатах следует предусматривать электроосвещение, силовое электрооборудование, телефонизацию, радиофикацию, телевизионные антенны и звуковую сигнализацию. Диспетчеризацию систем инженерного оборудования следует предусматривать в проектах застройки микрорайона.
Внутридомовые, внутри жилых ячеек и жилых отделений электрические сети должны оборудоваться устройствами защитного отключения согласно ПУЭ и СанПиН 2.4.1201.
6.12 В домах-интернатах установку штепсельных розеток рекомендуется предусматривать в следующих помещениях: комнате коррекции, раздевальных, медицинской комнате, приемной изолятора, процедурном кабинете, кабинете заведующего, комнатах персонала, завхоза, в комнатах психологической разгрузки, в помещениях для физкультурных занятий, в общем рекреационном пространстве. В групповой, зале гимнастических занятий, в классах для использования технических средств обучения предусматриваются по две штепсельные розетки, в компьютерных классах - по числу устанавливаемых компьютеров.
6.13 Штепсельные розетки и выключатели для общего освещения должны находиться на высоте 1,8 м от уровня пола.
6.14 В комнатах коррекции для детей с нарушением зрения количество розеток следует предусматривать в соответствии с размещаемым оборудованием (как правило, по четыре двойные штепсельные розетки). Высота размещения - 1 м от уровня пола.
6.15 В зданиях учреждений необходимо предусматривать прямую телефонную связь помещения поста старшей медсестры с ближайшей пожарной частью.
Двусторонняя селекторная связь предусматривается между кабинетом заведующего со следующими помещениями: групповыми, медицинской комнатой, пищеблоком, комнатой завхоза, комнатой охранника, вахтера и комнатой кастелянши.
6.16 Проектирование систем автоматизации помещений административного и медицинского обслуживания следует выполнять в соответствии с ВСН 281, а также НПБ-104 и НПБ-110.
1 - жилые группы для детей-инвалидов с физическими недостатками, с сохранным интеллектом; 2 - жилые группы для лежачих детей-инвалидов с сохранным интеллектом; 3 - жилые группы для детей-инвалидов умственно отсталых, способных к обучению; 4 - жилые группы для детей-инвалидов умственно отсталых, не способных к обучению; 5 - жилые группы для лежачих детей-инвалидов умственно отсталых
Антропологические данные детей и высота рабочей мебели в зависимости от роста учащихся
|
Рост учащихся, см |
|||||
|
до 130 |
131 - 145 |
146 - 160 |
161 - 175 |
свыше 175 |
|
|
н1 |
123,5 |
138 |
153,7 |
168,8 |
179,5 |
|
н2 |
112 |
128 |
143,5 |
158 |
169 |
|
Н3 |
88 |
98 |
109 |
120 |
128 |
|
н4 |
140 |
160 |
180 |
200 |
220 |
|
В1 |
32,6 |
35,4 |
39 |
43,2 |
44,8 |
|
в2 |
123 |
138 |
153 |
169 |
179 |
|
в3 |
16,5 |
17,5 |
19 |
21,4 |
22 |
|
в4 |
50,6 |
53,6 |
58 |
62 |
62,5 |
|
н5* |
32 |
36 |
40 |
44 |
48 |
|
Н6** |
54 |
60 |
66 |
72 |
78 |
|
н7*** |
55 (75) |
60 (85) |
70 (95) |
80 (105) |
- |
|
в5 |
50 |
50 |
50 |
50 |
50 |
|
* В соответствии с ГОСТ 11016-93. ** В соответствии с ГОСТ 11015-93. *** Дана высота верстака столярного, в скобках - слесарного. |
|||||
|
СХЕМА ДОМА-ИНТЕРНАТА С ЛТМ ДЛЯ ДЕТЕЙ-ИНВАЛИДОВ |
3 |
2-й этаж
1-й этаж
1 - вестибюль; приемно-карантинное отделение; 2 - жилая ячейка типа 1а; 3 - жилая ячейка типа 1б; 4 - жилая ячейка типа 1в; 5 - класс; 6 - медицинская служба; 7 - помещения оздоровительной физкультуры; 8 - столовая; 9 - лечебно-трудовая мастерская (ЛТМ), мастерские трудового обучения; 10 - учебно-производственная мастерская (УПМ); 11 - помещения администрации; 12 - жилая ячейка типа 2а; 13 - жилая ячейка типа 2б; 14 - жилая ячейка типа 2в; 15 - сенсорное помещение; 16 - изолятор; 17 - жилая ячейка типа 2в
|
СХЕМА ПЛАНИРОВКИ ДОМА-ИНТЕРНАТА С МЕДИЦИНСКОЙ СЛУЖБОЙ |
4 |
План первого этажа
План второго этажа
I - отделение для детей-инвалидов с сохранным интеллектом; II - отделение для детей умственно отсталых; III - центральная в плане группа помещений, рассчитанных на обслуживание двух самостоятельных, обособленных друг от друга отделений для детей-инвалидов с сохранным интеллектом и детей умственно отсталых; 1 - вестибюль с гардеробом; 2 - кабинет директора; 3 - медицинская служба; 4 - спортивные и физкультурно-оздоровительные учреждения; 5 - блок питания; 6 - приемно-карантинное отделение; 7 - изолятор; 8 - жилая ячейка типа 1в; 9 - классы; 10 - актовый зал; 11 - профессиональные мастерские; 12 - лаборантские; 13 - медицинские процедурные кабинеты; 14 - жилая ячейка типа 2в; 15 - помещения для занятий; 16 - мастерские трудотерапии; 17 - сенсорные помещения; 18 - жилая ячейка типа 1а; 19 - жилая ячейка типа 1б; 20 - солярий; 21 - жилая ячейка типа 2а; 22 - жилая ячейка типа 2б; 23 - место для кресел-колясок; 24 - лифт; 25 - административно-служебные помещения; 26 - прачечная
1 - жилые отделения (блоки); 2 - школа, профессиональные и трудовые мастерские; 3 - административно-бытовые помещения; 4 - медицинская служба; 5 - пищеблок
A. Планировочная схема жилой ячейки типа 1а для дошкольников
1 - раздевальная; 2 - игровая; 3 - столовая; 4 - буфетная с мойкой; 5 - класс; 6 - комната воспитателя; 7 - санузел; 8 - комната для сушки одежды и обуви; 9 - гладильная; 10 - спальная комната на 6 мест; 11 - спальная комната на 4 места; 12 - кладовая демонстрационного и подсобного материала
Б. Планировочная схема жилой ячейки типа 1б для подростков и старшеклассников
1 - раздевальная; 2 - спальная комната на 4 места; 3 - спальная комната на 3 места; 4 - комната воспитателя с кладовой личных вещей; 5 - комната отдыха; 6 - буфетная; 7 - комната для занятий с кладовой; 8 - туалет; 9 - умывальник; 10 - комната для сушки одежды и обуви
B. Планировочная схема жилой ячейки типа 1в для лежачих детей-инвалидов с сохранным интеллектом
1 - кровать (200´90 см); 2 - встроенный шкаф для спальных принадлежностей и чистого белья; 3 - умывальник (60´40 см); 4 - буфет-мойка (180´60 см); 5 - каталка (225´60 см); 6 - ванна (170´70 см); 7 - слив (45´50 см); 8 - встроенный шкаф для суден; 9 - шкаф для хозяйственных принадлежностей; 10 - надкроватный столик; 11 - комната воспитателя с кладовой для демонстрационного школьного материала; 12 - спальная комната на 8 мест
А. Планировочная схема спальной комнаты на 6 мест для детей-инвалидов младших групп дошкольников; Б. Планировочная схема обеденного места в столовой с буфетной
1 - кровать 190 (200)´70 см; 2 - тумбочка 40´50 см; 3 - инвалидная коляска; 4 - шкаф комбинированный; 5 - стол 100´60 см; 6 - стул 40´40 см; 7 - стол детский обеденный 140 (160)´90 см
А - четырехместная спальная комната; Б - трехместная спальная комната; В - двухместная спальная комната
1 - кровать 190´70 см; 2 - диван; 3 - тумбочка 40´80 см; 4 - тумбочка 40´40 см; 5 - стол 60´100 см; 6 - стул 40´40 см; 7 - кресло 50´50 см; 8 - торшер; 9 - банкетка; 10 - инвалидная коляска; 11 - комбинированный шкаф
A. Планировочная схема жилой ячейки типа 2а для младшей группы детей-инвалидов
1 - раздевальная; 2 - групповая-столовая; 3 - буфетная с мойкой; 4 - спальная комната на 8 мест; 5 - спальная комната на 6 мест; 6 - умывальная; 7 - туалетная; 8 - ванная
Б. Планировочная схема жилой ячейки типа 2б для детей-инвалидов подростковой и старшей трудового обучения групп
1 - раздевальная; 2 - комната дневного пребывания; 3 - класс; 4 - спальная комната на 8 мест; 5 - спальная комната на 6 мест; 6 - туалетная; 7 - умывальная; 8 - ванна; 9 - шкаф для демонстрационного материала; 10 - бытовая кладовая; 11 - буфетная с мойкой
B. Планировочная схема жилой ячейки типа 2в для необучаемых, лежачих детей-инвалидов
1 - спальная комната на 8 мест; 2 - спальная комната на 6 мест; 3 - ванная со шкафом для суден; 4 - буфетная с мойкой; 5 - кровать (200´90 см); 6 - встроенный шкаф для спальных принадлежностей и чистого белья; 7 - умывальник (60´40 см); 8 - каталка (224´60 см); 9 - ванна; 10 - слив; 11 - встроенный шкаф для суден; 12 - шкаф для хозяйственных принадлежностей; 13 - надкроватный столик
I - планировочная схема жилых комнат жилой ячейки типа 1в для лежачих детей с сохранным интеллектом
А - спальная комната; Б - комната воспитателя; В - буфетная с мойкой; Г - ванная со шкафом для суден
1 - кровать (200´90 см); 2 - встроенный шкаф для спальных принадлежностей и чистого белья; 3 - умывальник; 4 - буфетная с мойкой (180´60 см); 5 - каталка; 6 - ванна; 7 - слив (45´50 см); 8 - встроенный шкаф для суден; 9 - шкаф для хозяйственных принадлежностей; 10 - надкроватный столик; 11 - кладовая для демонстрационного школьного материала
II - планировочная схема жилых комнат жилой ячейки типа 2а для лежачих детей умственно отсталых
А - спальные комнаты на 6 и 8 чел.; Б - ванная со шкафом для суден; В - буфетная с мойкой
1 - кровать (200´90 см); 2 - встроенный шкаф для спальных принадлежностей и чистого белья; 3 - умывальник; 4 - каталка; 5 - ванна; 6 - слив (45´50 см); 7 - встроенный шкаф для суден; 8 - шкаф для хозяйственных принадлежностей; 9 - надкроватный столик
Планировочная схема лечебно-трудовой мастерской по ремонту аппаратуры и бытовой техники
1 - стол монтажный; 7 - табурет с регулируемым
2 - стенд испытательный; сиденьем;
3 - стол с вытяжкой; 8 - стеллаж мастера;
4 - стол мастера; 9 - стол медсестры;
5 - мойка; 10 - шкаф медицинский
6 - стеллаж для материалов; одностворчатый
11 - стул
Дом-интернат для детей инвалидов, имеющих отклонение в развитии, является учреждением стационарного содержания детей с сохранным интеллектом (3 - 18 лет) и детей умственно отсталых (4 - 18 лет).
Жилое отделение - часть здания учреждения дома-интерната для детей-инвалидов, состоящая из нескольких жилых ячеек, объединенных общими на отделение помещениями.
Жилая ячейка - часть жилого отделения дома-интерната для детей-инвалидов. Жилая ячейка состоит из жилых комнат - спальни, групповой комнаты для занятий и общественных помещений - санитарно-гигиенических помещений, раздевальной, хозяйственных помещений, буфетной.
Комната позиционирования - является медицинским помещением для детей-инвалидов. Комната позиционирования используется для разнообразных терапевтических поз-укладок в зависимости от медицинских показаний ребенка-инвалида.
Сенсорная комната - является медицинским реабилитационным помещением для детей-инвалидов с различными физическими и умственными недостатками. Сенсорная комната предназначается для психического и физического развития нуждающихся в реабилитации детей-инвалидов. Сенсорная комната оснащается аппаратурой с набором различных управляемых переключателей, сенсорной панелью, стимулирующей двигательные, визуальные и акустические эмоции.
Стационарные учреждения социального обслуживания детей-инвалидов - учреждения, состоящие из жилых помещений для постоянного проживания в домах-интернатах детей-инвалидов с различной степенью инвалидности и комплекса служб социально-бытового и медицинского и учебно-воспитательного назначения для проживающего в учреждении контингента.
Функциональная зона - пространство для осуществления одного или нескольких схожих процессов, ограниченных какими-либо границами различных зон, характеризующихся определенными признаками.
Эргонометрические параметры - параметры человека в условиях покоя, движения или какой-либо деятельности.
(Справочное)
Таблица Б.1 - Группы детей с сохранным интеллектом
|
Наименование групп |
Возраст детей, лет |
Количество мест в спальной комнате/количество спальных комнат в жилой ячейке* для детей, имеющих отклонение в развитии |
|||||
|
Нарушение зрения |
Нарушение слуха |
Нарушение речи |
Нарушение опорно-двигательного аппарата |
Лежачие |
|||
|
1 |
Дошкольная группа |
3 - 7 |
|
|
|
|
|
|
2 |
Подготовительная группа к общеобразовательным школьным занятиям |
6 - 7 |
|
|
|
|
|
|
3 |
Группа профессионального обучения |
8 - 16 |
|
|
|
|
|
|
* В числителе указано количество мест в спальной комнате, в знаменателе указано количество спальных комнат в жилой ячейке. Примечание - Возрастные группы детей приводятся в соответствии с рекомендациями «О мерах по улучшению работы социальных учебно-воспитательных учреждений для детей и подростков, имеющих недостатки в физическом и умственном развитии». |
|||||||
Таблица Б.2 - Группы умственно отсталых детей
|
Наименование групп |
Возраст детей, лет |
Количество мест в спальной комнате/количество спальных комнат в жилой ячейке* для детей, имеющих отклонение в развитии |
||||
|
Самостоятельно передвигающиеся |
Передвигающиеся с трудом с помощью приспособления |
Не способные к самостоятельному передвижению |
Лежачие |
|||
|
1 |
Обучаемые дети Дошкольная группа |
4 - 8 |
|
|
|
|
|
2 |
Подготовительная группа к трудовому обучению |
8 - 12 |
|
|
|
|
|
3 |
Группа трудового обучения |
12 - 18 |
|
|
|
|
|
4 |
Диагностическая группа |
4 - 18 |
|
|
|
|
|
5 |
Необучаемые дети Младшая группа |
4 - 8 |
|
|
|
|
|
6 |
Средняя группа |
8 - 12 |
|
|
|
|
|
7 |
Старшая группа |
12 - 18 |
|
|
|
|
|
* В числителе указано количество мест в спальной комнате, в знаменателе указано количество спальных комнат в жилой ячейке. Примечания 1 Возрастные группы детей-инвалидов приводятся согласно типовому положению о доме для престарелых и инвалидов, утвержденному постановлением Госкомитета совета Министров СССР по труду и социальным вопросам от 20 июня 1978 г. № 202. 2 Диагностическая группа создается с целью выяснения степени умственной отсталости, возможности трудового обучения и уточнения методов коррекционно-воспитательной работы с воспитанниками. |
||||||
(рекомендуемое)
Таблица В.1 - Состав функциональных зон
|
Площади функциональных зон |
Площадь площадок, м2, при вместимости дома-интерната для детей-инвалидов, мест |
||||||
|
100 |
120 |
200 |
|||||
|
Для детей с сохранным интеллектом |
Для детей умственно отсталых |
Для детей с сохранным интеллектом |
Для детей умственно отсталых |
Для детей с сохранным интеллектом |
Для детей умственно отсталых |
||
|
1 |
Детские площадки: |
|
|
|
|
|
|
|
|
групповые |
2,08 |
2,08 |
1,9 |
1,8 |
1,5 |
1,2 |
|
|
общие физкультурные |
12,5 |
11 |
10 |
8 |
9 |
7 |
|
|
огород-ягодник |
0,12 |
0,1 |
0,12 |
0,1 |
0,1 |
|
|
|
уголок для животных и птиц |
0,18 |
- |
0,16 |
- |
0,15 |
- |
|
2 |
Хозплощадки |
1 |
1,2 |
1,0 |
1,2 |
1 |
1,2 |
|
3 |
Дороги, проезды |
По расчету в соответствии с планировкой |
|||||
|
4 |
Зеленые посадки |
Не менее 40 % площади участка |
|||||
|
5 |
Теневой навес |
2,6 |
2,08 |
2,2 |
2 |
2 |
1,8 |
Таблица В.2 - Площадь земельного участка
|
Вместимость, мест |
Площадь участка, м2/место |
|
|
Дом-интернат для детей-инвалидов |
100 |
80 |
|
120 |
60 |
|
|
200 |
50 |
|
|
Примечание - Площадь участков промежуточной вместимости определяется интерполяцией. |
||
(рекомендуемое)
Таблица Г.1 - Жилое отделение для детей с сохранным интеллектом, жилые ячейки тип 1 (а, б, в)
|
Помещения |
Расчетная площадь на 1 место, м2 (или площадь помещения, м2) |
|||||||||||||||
|
Жилые ячейки для младших групп |
Жилые ячейки для подростков и старшеклассников |
|||||||||||||||
|
Тип 1а |
Тип 1в |
Тип 1б |
Тип 1в |
|||||||||||||
|
Нарушение слуха и речи |
Нарушение зрения |
Нарушение опорно-двигательного аппарата |
Лежачие обездвиженные |
Нарушение слуха и речи |
Нарушение зрения |
Нарушение опорно-двигательного аппарата |
Лежачие обездвиженные |
|||||||||
|
|
|
А. Помещения жилых ячеек |
||||||||||||||
|
1 |
Раздевальная |
0,1 |
0,1 |
0,1 |
- |
0,1 |
0,1 |
0,1 |
- |
|||||||
|
2 |
Групповая |
4 |
4 |
4 |
- |
4 |
4 |
4 |
- |
|||||||
|
3 |
Спальная |
4 |
4 |
4 |
6 - 8 |
4 |
4 |
4 |
6 - 8 |
|||||||
|
4 |
Санузел, уборная, умывальная, душ |
0,8 |
0,8 |
0,8 |
- |
0,8 |
0,8 |
0,8 |
- |
|||||||
|
|
Ванная со шкафом для суден |
|
|
|
(20) на 1 - 2 жил. ячеек |
|
|
|
(20) на 1 - 2 жил. ячеек |
|||||||
|
5 |
Буфетная |
(Не менее 4) на жилую ячейку |
(6 - 9) на 1 - 2 жил. ячеек |
(Не менее 4) на жилую ячейку |
(6 - 9) на 1 - 2 жил. ячеек |
|||||||||||
|
6 |
Кладовая хозяйственная |
(2) на жилую ячейку |
(4) |
(2) на жилую ячейку |
(4) |
|||||||||||
|
7 |
Комната хранения уборочного инвентаря |
(4) на жилое отделение |
(4) на жилое отделение |
|||||||||||||
|
8 |
Учебная комната для приготовления уроков |
- |
- |
- |
- |
(12 - 18) на 1 - 2 жилые ячейки |
- |
|||||||||
|
9 |
Комната воспитателя |
(12) на жилое отделение |
(12) на жилое отделение |
|||||||||||||
|
10 |
Летняя веранда |
1 |
1 |
1 |
1 |
1 |
1 |
1 |
1 |
|||||||
|
11 |
Класс |
- |
- |
- |
- |
3 |
3 |
3 |
- |
|||||||
|
Б. Общие помещения на отделение (4 - 5 жилых ячеек) |
||||||||||||||||
|
12 |
Кабинет заведующего |
(12) на отделение |
||||||||||||||
|
13 |
Пост дежурного персонала |
(6) на отделение |
||||||||||||||
|
14 |
Комната дежурной медсестры |
(12 - 15) на отделение |
||||||||||||||
|
15 |
Кабинет логопеда |
(12) на отделение |
||||||||||||||
|
16 |
Кабинет ортопеда |
(12) на отделение |
||||||||||||||
|
17 |
Место хранения кресел-колясок |
(3) на жилую ячейку |
||||||||||||||
|
18 |
Комната для хранения чистого белья |
(12) на отделение |
||||||||||||||
|
19 |
Помещение для гимнастических и муз. занятий и лечебной физкультуры |
0,2 |
0,2 |
0,2 |
- |
0,2 |
0,2 |
0,2 |
- |
|||||||
|
20 |
Кабинет личной гигиены для девочек |
(4) на жилое отделение - |
- |
(4) на жилое отделение |
- |
|||||||||||
|
21 |
Комната для встреч с родителями |
(24) на отделение |
||||||||||||||
|
22 |
Комната персонала, при которой туалетная с душевой |
(12) на отделение |
||||||||||||||
Таблица Г.2 - Жилое отделение для детей умственно отсталых, жилые ячейки тип 2 (а, б, в)
|
Помещения |
Расчетная площадь на 1 место, м2 (или площадь помещения, м2) |
||||||||
|
Жилая ячейка для младшей группы |
Жилая ячейка для средней и старшей групп |
||||||||
|
Тип 2а |
Тип 2в |
Тип 2б |
Тип 2в |
||||||
|
Свободно передвигающиеся |
Передвигающиеся с трудом |
Лежачие |
Свободно передвигающиеся |
Передвигающиеся с трудом |
Лежачие |
||||
|
А. Помещения жилых ячеек |
|||||||||
|
1 |
Раздевальная |
1 |
1 |
|
|
|
|
||
|
2 |
Групповая, в том числе используемая в качестве обеденного помещения |
- |
1,2 |
||||||
|
3 |
Спальная комната |
4 |
4 |
6 |
6 |
6 |
6 |
||
|
4 |
Санузел: |
|
|
|
|
|
|||
|
уборная, умывальная, душ и ванная |
(8) на жилую ячейку |
(9) на жилую ячейку |
(5) на жилую ячейку |
(9) на жилую ячейку |
(5) на жилую ячейку |
||||
|
со шкафом для суден |
|
|
1,6 |
- |
- |
1,6 |
|||
|
5 |
Буфетная с мойкой |
(3) на жилую ячейку |
(3) на жилую ячейку |
|
|
|
|||
|
6 |
Кладовая |
- |
- |
(3) на жилую ячейку |
(3) на жилую ячейку |
(3) на жилую ячейку |
(3) на жилую ячейку |
||
|
7 |
Комната хранения уборочного инвентаря |
(4) на жилую ячейку |
|||||||
|
8 |
Учебная комната для приготовления уроков |
- |
- |
- |
(12) на жилые ячейки |
- |
|||
|
9 |
Комната психолога и воспитателя |
- |
- |
- |
(12 - 14) на жилые ячейки |
||||
|
10 |
Летняя веранда |
1 |
1 |
1 |
1 |
1 |
1 |
||
|
11 |
Класс-комната трудового обучения |
- |
- |
- |
3 |
3 |
- |
||
|
Б. Общие помещения на отделение (4 - 5 жил. ячеек) |
|||||||||
|
12 |
Кабинет заведующего |
(12) на отделение |
|||||||
|
13 |
Комната старшей медицинской сестры |
(15) на отделение |
|||||||
|
14 |
Помещение для гимнастических и муз. занятий и лечебной физкультуры |
(12) на отделение |
|||||||
|
15 |
Комната встречи родителей с детьми |
(20) на отделение |
|||||||
|
16 |
Комната персонала с туалетом и душевой |
(8) на отделение |
|||||||
|
17 |
Комната хранения кресел-колясок |
(6) на жилую ячейку |
|||||||
|
18 |
Комната хранения чистого белья |
(12) на отделение |
|||||||
|
19 |
Комната личной гигиены для девочек |
- |
- |
- |
Один кабинет на жилую ячейку |
- |
- |
||
|
20 |
Пост дежурного персонала |
4 м2 |
|||||||
|
Примечание - В группах для необучаемых детей раздевальная и групповая не предусматриваются, а площадь спален принимается 8 м2/чел. |
|||||||||
Таблица Г.3 - Помещения учебной и профессиональной подготовки и трудового обучения
|
Помещения |
Площадь помещений, м2, учебной и профессиональной подготовки в доме-интернате для детей-инвалидов |
Примечания |
||||
|
Для детей с сохранным интеллектом |
Для детей умственно отсталых |
|||||
|
на 1 место |
общая площадь |
на 1 место |
общая площадь |
|||
|
1 |
Учебно-игровые комнаты для школьников и младших классов |
4 |
|
3,6 |
|
Для разновозрастных групп |
|
2 |
Классы на 8 - 10 детей |
- |
|
3 |
|
В домах-интернатах для детей с недостатками умственного развития допускается принимать количество обучающихся из расчета на 50 % детей от вместимости учреждения |
|
|
I - V классы |
3 |
24 - 30 |
3 |
|
|
|
|
V - IX классы |
3 |
24 - 30 |
3 |
|
|
|
|
X - XI классы |
3,6 |
36 |
3 |
|
|
|
3 |
Класс на 12 человек |
- |
- |
3 |
36 |
|
|
4 |
Кабинет домоводства |
|
50 |
|
50 + 16 |
|
|
5 |
Производственные мастерские (столярная) |
4,5 |
|
4,5 |
|
|
|
6 |
Склад сырья |
|
|
|
16 |
На мастерскую |
|
7 |
Склад готовой продукции |
|
|
|
16 |
На мастерскую |
|
8 |
Инструментальная комната |
|
|
|
25 |
|
|
9 |
Кабинет методический и учебных пособий |
|
|
|
40 |
|
|
10 |
Санузел |
|
|
|
3´2 |
|
|
11 |
Кабинет зав. учебной частью |
12 |
На отделение |
|||
|
12 |
Рекреационные помещения |
1,2 |
|
1,4 |
|
|
|
13 |
Кабинет физики с лаборантской |
|
54 |
|
54 + 18 |
|
|
14 |
Гимнастический зал |
|
18´9 |
|
|
На отделение |
|
15 |
Кабинет химии с лаборантской |
|
54 + 18 |
|
|
Для средних и старших школьников (для обучаемых детей) |
|
16 |
Класс машинописи с подсобным помещением |
|
54 + 18 |
|
|
|
|
17 |
Класс рисования - изостудия с кладовой |
|
54 + 18 |
|
54 + 18 |
|
|
18 |
Компьютерный класс с подсобным помещением |
|
54 + 18 |
|
|
То же |
|
19 |
Класс биологии - живой уголок с лаборантской |
|
54 + 18 |
|
|
» |
|
20 |
Комната музыкальных занятий с кладовой инструментов |
|
54 + 18 |
|
54 + 18 |
» |
|
21 |
Классы: |
|
|
|
21 + 10 |
Для средних и старших школьников (для обучаемых детей) |
|
|
чтения |
|
|
|
36 + 10 |
|
|
|
математики |
|
|
|
36 |
|
|
|
счета |
|
|
|
36 |
|
|
22 |
Кабинет социально-бытовой адаптации, помещение для приема гостей |
|
72 + 10 |
|
36 + 10 |
|
|
23 |
Библиотека с книгохранилищем и читальным залом, кабинет русского и иностранного языков |
|
120 |
|
60,0 |
На отделение |
|
24 |
Методический кабинет |
|
36 |
|
- |
|
|
25 |
Кабинет заведующего учебной частью |
|
18 |
|
18 |
|
|
26 |
Комната учителей, мастеров, организатора работ |
|
54 |
|
54 |
|
|
27 |
Кладовая мебели, инвентаря |
|
24 |
|
24 |
|
|
28 |
Санитарные узлы для мальчиков и девочек |
|
По расчету |
|
По расчету |
Распределяются поэтажно |
|
29 |
Учебно-производственные мастерские с инвентарными и подсобными помещениями: |
|
|
|
|
Для средних и старших школьников умственно отсталых |
|
|
швейная |
|
36 + 12 + 10 |
|
36 |
|
|
|
картонажно-переплетная |
|
72 + 18 + 10 |
|
72 |
|
|
|
столярная |
|
54 + 18 + 10 |
|
54 |
|
|
|
ткацкая |
|
54 + 18 + 10 |
|
- |
|
|
|
механической сборки |
|
36 + 18 |
|
- |
|
|
|
электромонтажная |
|
36 + 18 |
|
- |
|
|
|
токарно-фрезерная |
|
72 + 18 |
|
- |
|
|
|
гончарная |
|
36 + 18 + 10 |
|
36 |
|
|
|
обувная |
|
36 |
|
36 |
|
|
|
ручных ремесел (вязания, лозоплетения и пр.) |
|
36 + 12 + 10 |
|
36 + 12 + 10 |
|
|
|
ремонта аппаратуры и бытовой техники |
|
36 + 18 + 10 |
|
36 + 18 + 10 |
|
|
30 |
Класс подготовки младшего медицинского персонала с кладовой учебных пособий |
|
36 + 10 |
|
36 + 10 |
Для средних и старших школьников с недостатками умственного развития |
|
31 |
Класс для обучения умственно отсталых детей |
- |
|
2,0 |
|
|
|
32 |
Лечебно-трудовые мастерские с кладовой: |
|
60 + 18 |
|
60 + 18 |
По заданию на проектирование |
|
|
мастерская производительного общественно-полезного труда |
1,7 |
|
1,7 |
|
|
|
|
картонажная мастерская |
1,0 |
|
1,0 |
|
|
|
|
швейная мастерская |
1,2 |
|
1,2 |
|
|
|
|
кулинария |
|
18,0 |
|
18,0 |
|
|
|
помещение музыкальных занятий |
|
36,0 |
|
36,0 |
|
|
|
кабинет домоводства |
|
36,0 |
|
36,0 |
|
Таблица Г.4 - Помещения медицинского обслуживания
|
Помещения |
Площадь помещений, м2, общих на отделения для детей с сохранным интеллектом и умственно отсталых детей при вместимости домов-интернатов, мест |
Примечания |
|||
|
100 |
120 |
200 |
|||
|
1 |
Кабинет заместителя директора по медицинской работе |
16 |
18 |
18 |
|
|
2 |
Кабинет педиатра |
15 |
15 |
15 |
|
|
3 |
Кабинет консультативного приема с темной комнатой |
20 + 8 |
|
||
|
4 |
Кабинет старшей медицинской сестры |
12 |
12 |
12´2 |
|
|
5 |
Комната клинической лаборатории (анализы крови, мочи) |
18,0 |
|
||
|
6 |
Аптечная комната |
|
8 + 4 |
10 + 4 |
|
|
7 |
Стерилизационно-автоклавная с помещением хранения и выдачи стерильных материалов |
12 + 6 |
12 + 6 |
14 + 6 |
|
|
8 |
Стоматологический кабинет |
16,0 |
|
||
|
9 |
Кабинет психоневролога |
15 |
15 |
15´2 |
|
|
10 |
Кабинет логопеда |
18 |
|
|
|
|
11 |
Кабинет ЛФК |
24 |
36 |
|
|
|
12 |
Кабинет индивидуального массажа и занятий ЛФК |
18 |
18 + 2 |
|
|
|
13 |
Ингаляторий |
24 |
30 |
|
|
|
14 |
Кабинет гидротерапии |
24 |
28 |
|
|
|
15 |
Раздевальная |
14 |
14 |
|
|
|
16 |
Водолечение: |
|
|
По 7 - 8 м2 на 1 ванну в открытом помещении, одна ванна должна быть приспособлена для обслуживания детей-опорников |
|
|
|
ванный зал |
28 |
28´2 |
||
|
|
раздевальная |
14 |
18 |
||
|
|
кабинет подводного массажа |
18 (для детей с сохранным интеллектом) |
|||
|
17 |
Кабинет светолечения |
12 |
12 |
18 |
|
|
18 |
Кабинет электролечения |
|
|
|
|
|
19 |
Подсобная комната |
10 |
|
||
|
20 |
Аминозиновый кабинет с подсобным помещением |
18 + 6 |
|
||
|
21 |
Кабинет озокерито-парафинолечения, горячих укутываний |
16 + 6 (для детей с сохранным интеллектом) |
|
||
|
22 |
Кабинет механотерапии |
28 |
Для детей с сохранным интеллектом |
||
|
23 |
Кабинет электросна |
18 |
28 |
|
|
|
24 |
Кабинет оксигенотерапии |
14 |
20 |
|
|
|
25 |
Кабинет психологической разгрузки |
18 |
24 |
|
|
|
26 |
Комната персонала |
14 |
12 + 2 |
|
|
|
27 |
Санитарные узлы для мальчиков и девочек с умывальниками в шлюзе |
16 |
16´2 |
18´2 |
|
|
28 |
Комнаты хранения предметов уборки |
4 |
4´2 |
4´2 |
|
|
29 |
Санузлы персонала с умывальниками в шлюзе |
3 |
3´2 |
3´2 |
|
|
30 |
Сенсорная комната |
18 |
24 |
36 |
|
|
31 |
Комната позиционирования |
18 |
24 |
36 |
|
|
32 |
Диагностический кабинет |
24 |
36 |
|
|
|
33 |
Отделение психиатрической помощи: |
|
|
|
|
|
|
кабинет психиатра |
12 |
12´2 |
|
|
|
|
комната медсестры |
12 |
14 |
12´2 |
|
Таблица Г.5 - Состав площадей и общих помещений административно-бытового назначения
|
Помещения |
Площадь помещений, м2, при вместимости домов-интернатов, мест |
Примечания |
|||
|
100 |
120 |
200 |
|||
|
1 |
Вестибюль с гардеробом для посетителей |
74 |
80 |
90 |
|
|
2 |
Санитарные узлы мужские и женские с умывальником в шлюзе |
10 (5´2) |
10 (5´2) |
15 (5´3) |
|
|
3 |
Помещение дежурного |
10 |
10 |
10 |
|
|
4 |
Кабинет директора |
18 |
18 |
24 |
|
|
5 |
Канцелярия-приемная |
12 |
14 |
18 |
|
|
6 |
Кабинет заместителя директора по хозяйственной части |
12 |
14 |
16 |
|
|
7 |
Помещение дежурного персонала технического обслуживания |
10 |
14 |
14 |
|
|
8 |
Бухгалтерия с кассой |
12 + 4 |
12 + 4 |
18 + 4 |
|
|
9 |
Комната отдыха персонала |
24 |
24 |
36 |
|
|
10 |
Комната сестры-хозяйки с кладовой |
10 + 6 |
12 + 6 |
12 + 6 |
|
|
11 |
Кладовые грязного белья и чистого белья с починочной |
10 + 12 |
10 + 12 |
16 + 20 |
|
|
12 |
Помещение архива |
8 |
10 |
12 |
Может располагаться в подвале |
|
13 |
АТС |
18 |
18 |
24 |
То же |
|
14 |
Гардероб персонала с душевой и санитарным узлом |
24 |
24 |
36 |
» |
|
15 |
Кладовые, инвентарные |
30 |
30 |
40 |
» |
|
16 |
Помещение ремонта электроаппаратуры с подсобным помещением |
12 + 4 |
12 + 4 |
14 + 6 |
» |
|
17 |
Комнаты хранения предметов уборки |
4 + 4 |
4 + 4 |
4 + 4 |
|
|
18 |
Постирочная |
8 + 18 + 6 |
8 + 18 + 6 |
8 + 22 + 8 |
В случае если в составе помещений хозяйственного обслуживания прачечная не предусмотрена |
|
19 |
Прачечная-постирочная: |
|
|
|
|
|
|
центральная бельевая с текущим ремонтом белья |
18 |
18 |
20 |
|
|
|
комната хранения одежды для списания |
6 |
6 |
6 |
|
|
|
помещение для сортировки грязного белья, в том числе: |
48 |
50 |
55 |
|
|
|
цех приема белья |
6 |
6 |
6 |
|
|
|
стиральный цех |
14 |
14 |
17 |
|
|
|
сушильно-гладильный цех |
12 |
12 |
15 |
|
|
|
цех разборки и упаковки белья |
6 |
6 |
8 |
|
|
|
гардеробная персонала |
4 |
4 |
4 |
|
|
|
уборная для персонала с умывальником в шлюзе |
3 |
3 |
3 |
|
|
|
дезинфекционное отделение, в том числе: |
42 |
44 |
44 |
|
|
|
прием и сортировка вещей |
6 |
6 |
8 |
|
|
|
грязное отделение |
10 |
10 |
10 |
|
|
|
разгрузочное отделение |
15 |
15 |
15 |
|
|
|
шлюз между ними |
- |
3 |
4 |
|
|
|
выдача вещей |
6 |
8 |
8 |
|
|
|
помещение для дезинфекционных средств и приготовления растворов |
|
4 + 4 |
|
|
Таблица Г.6 - Помещения столовой и производственных помещений кухни
|
Помещения |
Площадь помещений, м2, при вместимости домов-интернатов, мест |
Примечания |
|||
|
100 |
120 |
200 |
|||
|
1 |
Обеденный зал |
2,4 м2 на 1 место |
Для детей-инвалидов среднего и старшего возраста |
||
|
|
|
1,4 м2 на 1 место |
Для детей-инвалидов младших групп |
||
|
2 |
Умывальные |
3 м2 (1 умывальник) на каждые 18 - 20 мест |
То же |
||
|
3 |
Раздаточная |
18 |
18 |
24 |
» |
|
4 |
Сервизная |
6 |
6 |
8 |
» |
|
5 |
Моечная столовой посуды |
16 |
18 - 18 |
30 - 36 |
» |
|
6 |
Горячий цех |
54 |
54 |
70 |
|
|
7 |
Хлеборезка, хранение хлеба |
6 |
6 |
8 |
|
|
8 |
Моечная кухонной посуды |
8 |
8 |
10 |
|
|
9 |
Холодный цех |
10 |
10 |
14 |
|
|
10 |
Цех мучных изделий |
10 |
10 |
14 |
|
|
11 |
Мясо-рыбный цех |
18 |
18 |
24 |
|
|
12 |
Овощной цех |
15 |
15 |
15 |
|
|
13 |
Комната заведующего производством |
8 |
8 |
8 |
|
|
14 |
Кладовая суточного запаса продуктов |
8 |
8 |
10 |
|
|
15 |
Кладовая сухих продуктов |
10 |
10 |
14 |
|
|
16 |
Охлаждаемые камеры: |
|
|
|
Не менее двух камер |
|
|
продуктов |
30 |
30 |
32 |
|
|
|
отходов |
4 |
4 |
4 |
|
|
17 |
Помещение первичной обработки продуктов (овощей и птицы) |
8 + 6 |
8 + 6 |
10 + 8 |
|
|
18 |
Загрузочная, кладовая тары |
14 |
14 |
18 |
|
|
19 |
Кладовая белья: |
|
|
|
|
|
|
чистого |
6 |
6 |
8 |
|
|
|
грязного |
4 |
4 |
6 |
|
|
20 |
Кладовая и моечная тары |
12 |
12 |
16 |
|
|
21 |
Комната персонала с душевой и санитарным узлом |
18 |
18 |
24 |
|
|
22 |
Комната кладовщика |
- |
6 |
6 |
|
|
23 |
Кладовая овощей, солений |
12 + 6 |
12 + 6 |
16 + 8 |
|
|
24 |
Комната хранения предметов уборки |
4 |
4 |
4 |
|
|
25 |
Раздаточная |
16 |
16 |
20 |
|
|
26 |
Обеденный зал для персонала с подсобным помещением |
16 + 6 |
16 + 6 |
18 + 6 |
С выходом на участок |
Таблица Г.7 - Помещения культурно-массового обслуживания
|
Помещения |
Площадь помещений, м2, при вместимости домов-интернатов, мест |
Примечания |
|||
|
100 |
120 |
200 |
|||
|
1 |
Зрительный зал |
1,5 |
1,8 |
1,8 |
м2 на 1 место в зрительном зале |
|
2 |
Эстрада при зале |
54 |
|
||
|
3 |
Кинопроекционная с перемоточной и радиоузлом |
27 |
|
||
|
4 |
Фойе |
1 м2 на 1 место в зрительном зале |
Используется как выставочный зал, зал для танцев и игр в настольный теннис |
||
|
36 |
36 |
54 |
|||
|
5 |
Библиотека (читальный зал + книгохранилище) |
15 + 15 |
|
||
|
6 |
Санитарный узел с умывальником в шлюзе |
3 + 3 |
6 + 6 |
|
|
|
7 |
Радиоузел |
12 |
|
||
|
8 |
Фильмовидеотека |
18 |
|
||
|
9 |
Помещение пожарного поста |
10 |
|
||
|
10 |
Студия кабельного телевидения |
18 |
24 |
|
|
|
11 |
Кладовая мебели и реквизита |
18 |
24 |
|
|
|
12 |
Кладовая аппаратуры |
8 |
12 |
|
|
|
13 |
Комната художника |
12 |
12 |
12 |
|
|
14 |
Кружковые помещения: |
|
|
|
|
|
|
танцевальный класс с помещением для переодевания и санитарным узлом |
54 + 18 |
72 + 18 + 3 |
|
|
|
|
кружок лепки |
24 + 8 |
36 + 8 + 10 |
|
|
|
15 |
Кладовая инвентаря и готовых изделий |
12 |
18 |
|
|
|
16 |
Физкультурно-спортивный зал: |
|
|
Используется также для занятий ЛФК |
|
|
12´16 м |
132 |
288 |
|||
|
12´24 м |
|
|
|||
|
17 |
Хранение спортивного инвентаря |
12 |
16 |
|
|
|
18 |
Раздевальные для девочек и мальчиков с душевыми и санитарными узлами: |
|
|
|
|
|
|
для умственно отсталых детей |
18´2 |
36´2 |
По два душевых рожка и одному унитазу на каждую раздевальную |
|
|
|
для детей с недостатками физического развития |
21´2 |
42´2 |
|
|
|
19 |
Комната инструктора-методиста |
12 |
12 |
12 |
|
|
20 |
Лечебно-оздоровительный бассейн с ванной 5´10 м |
8´10 |
160 |
На 10 - 12 детей |
|
|
21 |
Комната методиста с санитарным узлом |
8´4 |
10 + 4 |
|
|
|
22 |
Раздевальная с душевой и санитарным узлом |
24 |
36 |
|
|
|
23 |
Помещения уборочного инвентаря |
6 |
6 |
6 |
|
|
24 |
Узел управления |
6 |
6 |
6 |
|
|
25 |
Лаборатория анализа воды |
8 |
8 |
8 |
|
|
26 |
Комната медсестры |
10 |
10 |
12 |
|
|
27 |
Кладовая спортивного инвентаря |
6 |
8 |
8 |
|
Таблица Г.8 - Температура воздуха и кратность воздухообмена в основных помещениях для детей*
|
Температура воздуха, °С |
Кратность обмена воздуха в 1 час |
|||||
|
В IA, IБ и IГ климатических подрайонах |
Во II, III климатических районах и IB, IД подрайонах |
В IA, IБ и IГ климатических подрайонах |
В других, за исключением IA, IБ и IГ климатических подрайонов |
|||
|
Приток |
Вытяжка |
Приток |
Вытяжка |
|||
|
Приемные, игровые ясельных групп: |
|
|
|
|
|
|
|
младшей |
24 |
23 - 22 |
2,5 |
1,5 |
- |
1,5 |
|
средней и старшей |
23 |
22 - 21 |
2,5 |
1,5 |
- |
1,5 |
|
Приемные, игровые младшей дошкольной группы |
23 |
22 |
2,5 |
1,5 |
- |
1,5 |
|
Групповые, раздевальные для групп: |
|
|
|
|
|
|
|
младшей, средней |
22 |
21 |
|
|
|
|
|
старшей, подготовительной |
21 |
20 |
2,5 |
1,5 |
- |
1,5 |
|
Спальни ясельных групп |
20 |
19 - 18 |
2,5 |
1,5 |
- |
1,5 |
|
Спальни дошкольных групп |
20 |
19 |
2,5 |
1,5 |
- |
1,5 |
|
Туалетные ясельных групп |
23 |
22 - 19 |
- |
1,5 |
- |
1,5 |
|
Туалетные дошкольных групп |
21 |
20 |
- |
1,5 |
- |
1,5 |
|
Залы для музыкальных и гимнастических занятий |
20 |
19 |
2,5 |
1,5 |
- |
1,5 |
|
Прогулочные веранды |
12 |
- |
По расчету, но не менее 20 м3 на 1 ребенка |
|
||
|
Помещение бассейна |
29 |
29 |
То же |
|
||
|
Медицинские помещения |
23 |
22 |
2,5 |
1,5 |
- |
1,5 |
|
Отапливаемые переходы |
18 |
15 |
|
По расчету, но не менее 20 м3 на 1 ребенка |
|
|
|
* Использованы данные СанПиН 2.4.1249. |
||||||
Ключевые слова: дома-интернаты для детей-инвалидов, дети с сохранным интеллектом, дети умственно отсталые, жилые и общественные помещения, лечебно-трудовые мастерские, учебно-производственные мастерские