|
Открытое акционерное общество Проектно-конструкторский
и технологический |
СТРОИТЕЛЬНЫЕ МАЧТОВЫЕ
ПОДЪЕМНИКИ И ПЛАТФОРМЫ
КАТАЛОГ-СПРАВОЧНИК
ЧАСТЬ 2
ПОДЪЕМНИКИ И
ПЛАТФОРМЫ
ЗАРУБЕЖНОГО ПРОИЗВОДСТВА
Каталог содержит общие виды подъемников с основными габаритными и конструктивными размерами, вариантами исполнений (кабина, монорельс, платформа), технические характеристики, схемы расположения подъемников относительно зданий с необходимыми привязочными размерами, площадки для установки подъемника, расположение настенных опор для зданий различных типов, общие виды креплений подъемников со схемами их установки, краткое описание конструкций подъемников и общие требования к установке и эксплуатации грузовых и грузопассажирских мачтовых строительных подъемников и платформ зарубежного производства.
Каталог предназначен для инженерно-технических работников, занимающихся разработкой проектов производства работ, а также специалистов строительных организаций, занятых эксплуатацией грузовых и грузопассажирских мачтовых подъемников и платформ зарубежного производства.
Каталог составлен специалистами Лаборатории совершенствования организации и технологии строительства (отдел 41) ОАО ПКТИпромстрой в составе:
Савина О.А. - ведущий инженер;
Черных В.В. - главный технолог отдела;
Бычковский Б.И. - главный технолог института - начальник отдела.
СОДЕРЖАНИЕ
Подъемники, приобретаемые за рубежом, должны соответствовать требованиям ПБ 10-518-02 «Правила устройства и безопасной эксплуатации строительных подъемников» Госгортехнадзора России и иметь сертификат соответствия установленного образца в соответствии с Перечнем технических устройств, применяемых на опасных производственных объектах и подлежащих сертификации (Постановление Правительства Российской Федерации от 11.08.1998 № 928 «О перечне технических устройств, применяемых на опасных производственных объектах и подлежащих сертификации»).
Вместе с поставляемыми подъемниками должна быть приложена эксплуатационная документация, выполненная на русском языке.
Строительные грузопассажирские подъемники предназначены для вертикального подъема людей и материалов в процессе строительства зданий и сооружений при выполнении строительно-монтажных и отделочных работ. Высота подъема, в зависимости от марки подъемника, достигает 150 м.
Основными узлами подъемников являются: мачта, кабина, машинное отделение, механизм подъема, кронштейны крепления.
Мачты грузопассажирских подъемников изготавливаются из труб и сортового проката. Мачты из труб более сложны в изготовлении, однако они обладают большей жесткостью и имеют меньшее аэродинамическое сопротивление ветру. Мачта подъемника может быть выполнена из уголков (направляющих) и труб (раскосы), а горизонтальные связи (поперечины) - из швеллеров и уголков. Мачту каждого подъемника собирают из рядовых и верхней секций.
На грузопассажирских подъемниках грузонесущим органом является кабина.
По конструкции механизмы подъема грузопассажирских подъемников бывают канатные и реечные. Для канатного механизма подъема применяют барабанные лебедки с канатоведущими шкивами. Реечный механизм подъема состоит из электродвигателя, редуктора, ведущей шестерни, входящей в зацепление с рейкой, установленной по всей длине мачты.
Настенные опоры устанавливают с определенным шагом в соответствии с требованиями «Инструкции по монтажу» и «Руководства по эксплуатации подъемника». Возможность крепления подъемника к зданию должна быть подтверждена проектной организацией. Для раскрепления консольных участков мачты, возвышающихся над крышей, устанавливают жесткие подкосы либо гибкие растяжки из стального каната.
Для приема груза, безопасного выхода и посадки в кабину людей на крыше здания устанавливают инвентарные площадки с ограждением. С обеих сторон подъемника должны находиться предупредительные надписи: «ОПАСНАЯ ЗОНА», «ПРЕБЫВАНИЕ В ОПАСНОЙ ЗОНЕ ЗАПРЕЩАЕТСЯ». На вертикальных стенах ограждения подъемника должны быть вывешены таблички: «Грузоподъемность не более ... кг или ... чел.», «Перевозка длинномерных грузов строго воспрещена». Внутри кабины вывешиваются данные о грузоподъемности и о количестве перевозимых людей. Кассеты управления должны иметь четкое обозначение кнопок.
Эксплуатация установленного подъемника разрешается после его полного технического освидетельствования представителем технического надзора и получения разрешения на его эксплуатацию.
При регистрации подъемников, изготовленных за рубежом, представляется экспертное заключение и сертификат о соответствии подъемника требованиям ПБ 10-518-02 и нормативных документов.
К управлению подъемником и его обслуживанию допускаются машинисты и электромеханики не моложе 18 лет, прошедшие медицинское освидетельствование и признанные годными, обученные по специальной программе и аттестованные квалификационной комиссией учебного заведения согласно ПБ 10-518-02 «Правила устройства и безопасной эксплуатации строительных подъемников» Госгортехнадзора России. Работа на подъемнике разрешается при наличии записи в вахтенном журнале, сделанной лицом, ответственным за техническое состояние подъемника при периодических осмотрах. Подъемник должен подвергаться ежесменному осмотру с занесением результатов осмотра в «Вахтенный журнал машиниста подъемника».
Запрещается эксплуатация подъемника:
– технически неисправного;
– с превышением его максимальной грузоподъемности;
– незаземленного или при других неисправно действующих устройствах, защищающих от поражения током;
– во время грозы, при скорости ветра силой, превышающей 18 м/с;
– при обледеневших направляющих.
При транспортировке грузов необходимо нагружать всю платформу кабины равномерно.
При температуре ниже 0 °С необходимо соблюдать особую осторожность при эксплуатации подъемника.
После окончания работ необходимо опустить кабину в нижнее положение, выключить главный выключатель, произвести общий техосмотр подъемника, как при его ежедневном осмотре. Вписать в «Вахтенный журнал» соответствующие замечания и наблюдения.
Монтаж подъемника разрешается только при наличии проекта производства работ на его установку на конкретном объекте, разработанного специализированной проектно-технологической организацией.
Монтаж, эксплуатация и демонтаж подъемников производится в соответствии с требованиями заводов-изготовителей согласно «Инструкции по монтажу», «Руководства по эксплуатации» и ПБ 10-518-02 «Правила устройства и безопасной эксплуатации строительных подъемников» Госгортехнадзора России, а также «Рекомендаций по установке и безопасной эксплуатации грузоподъемных кранов, строительных подъемников, грузоподъемных кранов-манипуляторов и подъемников (вышек) при разработке проектов организации строительства и проектов производства работ», ОАО ПКТИпромстрой, М., 2004 г.
Подъемники строительные грузопассажирские серии Alimak предназначены для вертикального перемещения людей, строительных материалов и изделий во время выполнения строительно-монтажных и отделочных работ при строительстве зданий и сооружений.
Стандартные подъемники имеют грузоподъемность от 400 до 3200 кг на кабину разных размеров длиной до 4 м при высоте подъема 250 м и выше. С помощью системы частотного регулирования, которой могут быть оснащены подъемники по желанию заказчика, могут достигать скорости подъема порядка 100 м/мин. Модульная конструкция обеспечивает взаимозаменяемость узлов и высокую гибкость в действии.
Одномачтовый подъемник Scando можно легко превратить в двухкабинную систему простым добавлением кабины, ограждения и второй зубчатой рейки. Грузоподъемность при этом удваивается при минимальных затратах времени. Точно так же двухкабинную схему можно расчленить на два однокабинных подъемника: добавить вторую мачту, настенные опоры и небольшое число принадлежностей.
Дополнительно к торцевым дверям крупные кабины могут быть оборудованы широкими входными воротами на длинной стороне для загрузки и выгрузки грузов на поддонах вилочным погрузчиком. Пространная кабина позволяет перевозить длинные и громоздкие материалы.
Монтаж подъемника производиться путем поднятия на крышу кабины оцинкованных секций мачты длиной 1,5 м монтажным краном, что позволяет монтировать каждый подъемник исключительно с помощью собственных механизмов и устраняет необходимость в подвижных кранах.
Подъемники управляются нажимными кнопками из кабины и с площадок. Приводной блок, рассчитанный на повседневную работу при высоких нагрузках, размещен на крыше кабины и легко доступен для технического обслуживания и ремонта.
Имеется широкий выбор настенных опор и дверей/ворот площадок, удовлетворяющих разным условиям стройплощадок и местным нормам.
Подъемники оснащены прибором безопасности Alimak¢a, срабатывающим при превышении подъемником номинальной скорости. Кабина при этом плавно останавливается, а питание приводных электродвигателей отключается.
Изготовитель - Alimak, PO Box 720, Skelleftee, Sweden.
Tel: +46 910 87000. Fax: +46 910 56690
E-mail: info@alimak.se
www.alimak.com
В модульных грузопассажирских подъемниках Alimak ch использована новая легковесная мачта. Грузоподъемность 1000-2000 кг на кабину. Одно- и двухкабинные схемы. Компактная конструкция с отличными ходовыми качествами.

Общий вид подъемника Alimak CH /30-32 DOL
ТЕХНИЧЕСКИЕ
ХАРАКТЕРИСТИКИ
ГРУЗОПАССАЖИРСКИХ ПОДЪЕМНИКОВ ALIMAK CH /30-32 DOL
|
11/30 |
14/30 |
20/301) |
||||||||
|
Крупная клеть со свободным грузовым уклоном |
8/30 |
14/30 |
18/301) |
|||||||
|
Пространная клеть с обычными воротами |
9/32 |
14/32 |
19/321) |
|||||||
|
Пространная клеть со свободным грузовым уклоном |
7/32 |
13/32 |
18/321) |
|||||||
|
Показатели |
Ед. изм. |
|||||||||
|
Грузоподъемность |
кг |
700 |
900 |
800 |
1100 |
1300 |
1400 |
1800 |
1900 |
2000 |
|
Максимальная высота подъема |
м |
120 |
120 |
120 |
120 |
120 |
120 |
60 |
60 |
60 |
|
Скорость при 50 Гц/60 Гц |
м/мин |
30 |
30 |
30 |
30 |
38 |
38 |
38 |
38 |
38 |
|
Монтажный кран, грузоподъемность |
кг |
90 |
90 |
90 |
90 |
90 |
90 |
90 |
90 |
90 |
|
Ловитель |
тип |
GF |
GF |
GF |
GF |
GF |
GF |
GF |
GF |
GF |
|
Размеры клети: |
||||||||||
|
внутренняя ширина |
м |
1,4 |
1,4 |
1,4 |
1,4 |
1,4 |
1,4 |
1,4 |
1,4 |
1,4 |
|
СН./30 внутренняя длина |
м |
- |
- |
3,0 |
3,0 |
- |
3,0 |
3,0 |
- |
3,0 |
|
СН./32 внутренняя длина |
м |
3,2 |
3,2 |
- |
- |
3,2 |
3,2 |
3,2 |
3,2 |
3,2 |
|
наружная длина (Е) |
м |
Добавить 0,12 м к внутренней длине |
||||||||
|
внутренняя высота |
м |
2,13 |
2,13 |
2,13 |
2,13 |
2,13 |
2,13 |
2,13 |
2,13 |
2,13 |
|
дверной проем, ширина´высота |
м |
1,2´2,0 |
||||||||
|
Питание: |
||||||||||
|
номинальное напряжение |
380 - 480 В, 50 или 60 Гц, 3-фазный ток |
|||||||||
|
при 380 В и 50 Гц: |
||||||||||
|
сетевой предохранитель |
А |
35 |
35 |
35 |
35 |
63 |
63 |
63 |
63 |
63 |
|
мощность одного электродвигателя |
кВт |
11 |
11 |
11 |
11 |
|||||
|
мощность двух электродвигателей |
кВт |
2´7,5 |
2´7,5 |
2´7,5 |
2´7,5 |
2´7,5 |
||||
|
пусковой ток |
А |
145 |
145 |
145 |
145 |
205 |
205 |
205 |
205 |
205 |
|
потребляемая мощность |
кВА |
15 |
15,5 |
17 |
17 |
26 |
26 |
30 |
30 |
30 |
|
Масса: |
||||||||||
|
базовый узел |
кг |
2) |
2) |
2) |
2300 |
2) |
2500 |
2) |
2) |
2500 |
|
секция мачты: |
||||||||||
|
с одной зубчатой рейкой |
68 |
68 |
68 |
68 |
68 |
68 |
68 |
68 |
68 |
|
|
с двумя зубчатыми рейками |
85 |
85 |
85 |
85 |
85 |
85 |
85 |
85 |
85 |
|
|
Длина секции мачты |
мм |
1508 |
1508 |
1508 |
1508 |
1508 |
1508 |
1508 |
1508 |
1508 |
|
Размеры в транспортном положении |
||||||||||
|
длина (F) |
м |
Добавить 0,38 м к наружной длине (Е) |
||||||||
|
ширина |
м |
2,49 |
2,49 |
2,49 |
2,49 |
2,49 |
2,49 |
2,49 |
2,49 |
2,49 |
|
максимальная высота |
м |
3,10 |
3,10 |
3.10 |
3,10 |
3,10 |
3,10 |
3,10 |
3,10 |
3,10 |
|
1) Кабины с раздвижными дверями на роликах 2) Масса исполнения для базовых моделей 11/30, 14/30 и 29/30 включает обычный вход и выходные ворота. Добавлять 32 кг на каждую 0,1 м часть вытянутой клети и добавить 140 или 110 кг в случае клети со свободным грузовым уклоном. |
||||||||||

Общий вид подъемника alimak CH /28-32 DOL
ТЕХНИЧЕСКИЕ
ХАРАКТЕРИСТИКИ
ГРУЗОПАССАЖИРСКИХ ПОДЪЕМНИКОВ ALIMAK CH /28-32 DOL
|
ALIMAK CH |
9/281) |
14/281) |
20/281) |
||||
|
ALIMAK CH |
9/30 |
14/30 |
20/30 |
||||
|
ALIMAK CH |
8/322) |
14/322) |
18/322) |
||||
|
Показатели |
Ед. изм. |
||||||
|
Грузоподъемность |
кг |
800 |
900 |
1400 |
1800 |
2000 |
|
|
Скорость при 50 Гц/60 Гц |
м/мин |
31 |
31 |
38 |
38 |
38 |
|
|
Максимальная высота подъема |
м |
120 |
120 |
120 |
120 |
120 |
|
|
Монтажный кран, грузоподъемность |
кг |
90 |
90 |
90 |
90 |
90 |
|
|
Ловитель |
тип |
GF |
GF |
GF |
GF |
GF |
|
|
Размеры клети: |
|||||||
|
Внутренняя ширина |
м |
1,4 |
1,4 |
1,4 |
1,4 |
1,4 |
|
|
СН../28 внутренняя длина |
м |
- |
2,8 |
2,8 |
- |
2,8 |
|
|
СН../30 внутренняя длина |
м |
- |
3,0 |
3,0 |
- |
3,0 |
|
|
СН../32 внутренняя длина |
м |
3,2 |
- |
3,2 |
3,2 |
- |
|
|
Наружная длина (Е) |
м |
Добавить 0,12 к внутренней длине |
|||||
|
Внутренняя высота |
м |
2,13 |
2,13 |
2,13 |
2,13 |
2,13 |
|
|
Дверной проем, ширина´высота |
м |
1,4´2,0 |
|||||
|
Питание: |
|||||||
|
номинальное напряжение |
380-480 В, 50 или 60 Гц, 3-фазный ток |
||||||
|
при 380 В и 50 Гц: |
|||||||
|
сетевой предохранитель |
А |
35 |
35 |
63 |
63 |
63 |
|
|
количество электродвигателей´мощность |
кВт |
1´11 |
1´11 |
2´7,5 |
2´7,5 |
2´7,5 |
|
|
пусковой ток |
А |
145 |
145 |
210 |
210 |
210 |
|
|
потребляемая мощность |
кВА |
14 |
14 |
22 |
22 |
26 |
|
|
Масса: |
|||||||
|
базовый узел |
кг |
23003) |
23003) |
25003) |
25003) |
25003) |
|
|
секция мачты: |
|||||||
|
с одной зубчатой рейкой |
кг |
68 |
68 |
68 |
68 |
68 |
|
|
с двумя зубчатыми рейками |
кг |
85 |
85 |
85 |
85 |
85 |
|
|
Длина секции мачты |
мм |
1508 |
1508 |
1508 |
1508 |
1508 |
|
|
Размеры в транспортном положении: |
|||||||
|
длина (F) |
м |
Добавить 0,38 м к наружной длине (Е) |
|||||
|
ширина |
м |
2,49 |
2,49 |
2,49 |
2,49 |
2,49 |
|
|
максимальная высота |
м |
3,10 |
3,10 |
3,10 |
3,10 |
3,10 |
|
Строительные грузопассажирские подъемники ALIMAK SCANDO являются наиболее популярными и широко применяемыми в мире. Они удовлетворяют почти всем требованиям в отношении грузоподъемности и скорости.
Общий вид подъемника Alimak Scando 10/32 TD, 20/32 TD
ТЕХНИЧЕСКИЕ
ХАРАКТЕРИСТИКИ
ГРУЗОПАССАЖИРСКИХ ПОДЪЕМНИКОВ ALIMAK SCANDO
10/32 TD, 20/32 TD
|
Ед. изм. |
SCANDO |
||
|
10/32 TD |
20/32 TD |
||
|
Грузоподъемность |
кг |
1000 |
2000 |
|
Монтажный груз |
кг |
1000 |
2000 |
|
Скорость при 50 Гц/60 Гц |
м/мин |
40 |
40 |
|
Максимальная высота подъема |
м |
150 |
150 |
|
Монтажный кран, грузоподъемность |
кг |
250 |
250 |
|
Ловитель |
тип |
GF |
GFD |
|
Размеры клети: |
|||
|
- внутренняя ширина |
м |
1,5 |
1,5 |
|
- внутренняя длина |
м |
3,2 |
3,2 |
|
- внутренняя высота минимальная |
м |
2,55 |
2,55 |
|
- дверной проем, ширина´высота |
м |
1,49´2,0 |
1,49´2,0 |
|
Питание: |
|||
|
номинальное напряжение |
380 - 660В, 50 или 60 Гц, 3-фазный ток |
||
|
- при 380 В и 50 Гц: |
|||
|
- сетевой предохранитель |
А |
63 |
80 |
|
- номинальная мощность при непрерывной работе |
кВт |
2´7,5 |
3´7,5 |
|
- номинальная мощность при продолжительности работы 25 % |
кВт |
2´9,5 |
3´9,5 |
|
пусковой ток |
А |
200 |
300 |
|
потребляемая мощность |
кВА |
26 |
39 |
|
Масса: |
|||
|
- базовый узел |
кг |
2770 |
2970 |
|
- секция мачты: |
|||
|
- с одной зубчатой рейкой |
кг |
130 |
130 |
|
- с двумя зубчатыми рейками |
кг |
155 |
155 |
|
Длина секции мачты |
мм |
1508 |
1508 |
Изготовитель - Alimak, PO Box 720, Skelleftee, Sweden.
Tel: +46 910 87000. Fax: +46 910 56690
E-mail: info@alimak.se
www.alimak.com
ТЕХНИЧЕСКИЕ
ХАРАКТЕРИСТИКИ
ГРУЗОПАССАЖИРСКИХ ПОДЪЕМНИКОВ ALIMAK SCANDO PM
1050
|
Ед. изм. |
Значение |
|
|
Грузоподъемность |
кг |
1050 |
|
Монтажный груз |
кг |
1050 |
|
Скорость при 50 Гц/60 Гц |
м/мин |
28 |
|
Максимальная высота подъема |
м |
28 |
|
Монтажный кран, грузоподъемность |
кг |
150 |
|
Ловитель |
тип |
GF |
|
Размеры клети: |
||
|
внутренняя ширина´длина |
м |
1,3´2,0 |
|
внутренняя высота, минимальная |
м |
2,47 |
|
Питание: |
||
|
номинальное напряжение при 380 В и 50 Гц: |
380 - 690 В, 50 или 60 Гц, 3-фазный ток |
|
|
сетевой предохранитель |
А |
35 |
|
номинальная мощность при непрерывной работе |
кВт |
7,5 |
|
номинальная мощность при продолжительности работы 25 % |
кВт |
9,5 |
|
пусковой ток |
А |
100 |
|
потребляемая мощность |
кВА |
13 |
|
Масса: |
||
|
базовый узел |
кг |
1050 |
|
1508 мм длины секции мачты |
кг |
130 |
ТЕХНИЧЕСКИЕ
ХАРАКТЕРИСТИКИ
ГРУЗОПАССАЖИРСКИХ ПОДЪЕМНИКОВ ALIMAK SCANDO PM
1150
|
Ед. изм. |
Значение |
|
|
Грузоподъемность |
кг |
1150 |
|
Монтажный груз |
кг |
1150 |
|
Скорость при 50 Гц/60 Гц |
м/мин |
28 |
|
Максимальная высота подъема |
м |
28 |
|
Монтажный кран, грузоподъемность |
кг |
150 |
|
Ловитель |
тип |
GF |
|
Размеры клети: |
||
|
внутренняя ширина´длина |
м |
1,3´2,0 |
|
внутренняя высота, минимальная |
м |
1,98 |
|
Питание: |
||
|
номинальное напряжение при 380 В и 50 Гц: |
380 - 690 В, 50 или 60 Гц, 3-фазный ток |
|
|
сетевой предохранитель |
А |
35 |
|
номинальная мощность при непрерывной работе |
кВт |
7,5 |
|
номинальная мощность при продолжительности работы 25% |
кВт |
9,5 |
|
пусковой ток |
А |
100 |
|
потребляемая мощность |
кВА |
13 |
|
Масса: |
||
|
базовый узел |
кг |
1050 |
|
1508 мм длины секции мачты |
кг |
130 |
ТЕХНИЧЕСКИЕ
ХАРАКТЕРИСТИКИ
ГРУЗОПАССАЖИРСКИХ ПОДЪЕМНИКОВ ALIMAK SCANDO M
1200
|
Ед. изм. |
Значение |
|
|
Грузоподъемность |
кг |
1200 |
|
Монтажный груз |
кг |
1200 |
|
Скорость при 50 Гц/60 Гц |
м/мин |
28 |
|
Максимальная высота подъема |
м |
28 |
|
Монтажный кран, грузоподъемность |
кг |
150 |
|
Ловитель |
тип |
GF |
|
Размеры клети: |
||
|
внутренняя ширина´длина |
м |
1,3´2,0 |
|
внутренняя высота, минимальная |
м |
- |
|
Питание: |
||
|
номинальное напряжение при 380 В и 50 Гц: |
380 - 690 В, 50 или 60 Гц, 3-фазный ток |
|
|
сетевой предохранитель |
А |
35 |
|
номинальная мощность при непрерывной работе |
кВт |
7,5 |
|
номинальная мощность при продолжительности работы 25 % |
кВт |
9,5 |
|
пусковой ток |
А |
100 |
|
потребляемая мощность |
кВА |
13 |
|
Масса: |
||
|
базовый узел |
кг |
1050 |
|
1508 мм длины секции мачты |
кг |
130 |

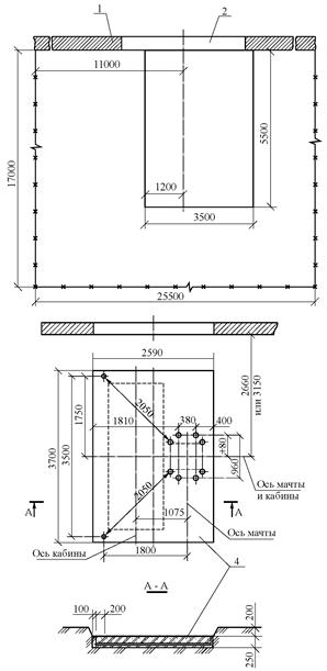
1 - опорная рама; 2 - кабина; 3 - секция; 4 - оголовок; 5 - кран-укосина; 6 - барабан канатный; 7 - стойка; 8 - противовес; 9 - бункер с кабелем; 10 - ограждение мачты; 11 - балка площадочная; 12 - кронштейн мачтовый; 13 - кронштейн настенный; 14 - буфер; 15 - остановочный барьер; 16 - плита фундаментная; 17 - вилка
Рисунок 1 - Общий вид подъемника «Гнезно-1000Р»
Мачтовый грузопассажирский подъемник «Гнезно-1000Р» предназначен для подъема людей и грузов при строительстве многоэтажных зданий и сооружений. Высота подъема кабины до 100 м.
Основными узлами подъемника являются: мачта, кабина, механизм подъема, кронштейн крепления.
Мачта подъемника изготавливается из труб, обладает повышенной жесткостью и меньшим аэродинамическим сопротивлением ветру в отличие от мачт, изготовленных из сортового проката. К раскосам и поперечинам передней грани прикреплена на винтах зубчатая рейка.
Механизм подъема - реечный, расположен в клети и закрыт капотом. Электродвигатель со встроенным коническим электромагнитным тормозом через эластичную муфту связан с ведомым валом червячного редуктора. Для уменьшения потребляемой мощности кабина подъемника соединена с движущимся на противоположной стороне мачты противовесом с помощью каната, проходящего через блоки, расположенные на головке мачты.
Каркас кабины служит кареткой, т.е. на нем непосредственно устанавливаются ходовые ролики, перемещающиеся по мачте.
В кабине подъемника двери сетчатые вертикально раздвижные (гильотинного типа), открываемые вручную. Для высадки пассажиров из кабины на этажах предусмотрены выносные инвентарные площадки с шахтными дверями. Для снижения динамических нагрузок на подъемнике колодки клиновых ловителей подпружинены, что способствует плавному нарастанию тормозного усилия.
Установка фундаментной плиты производится в соответствии с требованием «Инструкции по монтажу и эксплуатации подъемника».
Конструкции фундаментной плиты и крепления подъемника к зданию разрабатываются специализированной проектной организацией. Схема привязки подъемника разрабатывается в проектах производства работ.
ТЕХНИЧЕСКИЕ ХАРАКТЕРИСТИКИ
|
Значение |
|
|
Грузоподъемность, кг |
1000 |
|
Число пассажиров с машинистом, чел. |
12 |
|
Число рядовых секций в мачте, шт. |
68 |
|
Высота подъема кабины, м |
100 |
|
Высота подъема кабины свободностоящего подъемника, м |
11,5 |
|
Количество кронштейнов крепления, шт. |
17 |
|
Высота незакрепленной верхней части мачты, м |
2,9 |
|
Скорость подъема кабины, м/с |
0,65 |
|
Габаритные размеры, мм |
|
|
подъемник: |
|
|
длина |
3700 |
|
ширина |
2590 |
|
высота |
105347 |
|
рядовая секция мачты длина |
1500 |
|
Внутренние размеры кабины, мм: |
|
|
длина |
3000 |
|
ширина |
1300 |
|
высота |
2700 |
|
Конструкция дверей |
Вертикально-раздвижные |
|
высота´ширина, мм |
2060´1424 |
|
Мощность электродвигателя, кВт |
9 |
|
Напряжение питания в цепи управления, В |
220 |
|
Масса, кг: |
|
|
подъемник |
28000 |
|
рама |
900 |
|
кабина |
1200 |
|
противовес |
1200 |
|
Температура окружающего воздуха, °С |
-30...+40 |

1 - стена здания; 2 - проем здания; 3 - спланированная площадка; 4 - опорная плита
Рисунок 2 - Разбивка площадки под опорную раму и установка опорной плиты

Рисунок 3 - Схема установки подъемника «Гнезно-1000Р»
Завод-изготовитель - предприятие «Зрэмб», Польская Республика
Подъемники строительные грузопассажирские серии SCANCLIMBER предназначены для вертикального перемещения людей, строительных материалов и изделий во время выполнения строительно-монтажных и отделочных работ при строительстве и ремонте зданий и сооружений.
Установка подъемников серии SCANCLIMBER не требует бетонного фундамента, а может быть осуществлена непосредственно на грунтовом основании.
При монтаже подъемников используются новые, более прочные горячеоцинкованные мачтовые секции и анкерное крепление модульного типа, расстояние между креплениями до 20 м при длине анкерных труб от 0,4 до 5,6 м.
Подъемники серии SCANCLIMBER легко загружать и разгружать, предусмотрена возможность полного использования всего объема загрузки 10 м3 или 11,6 м3.
Максимальная свободностоящая высота подъемников 15,5 м, высота верхнего крепления 25 м.
Приводное устройство расположено на крыше кабины.
Преобразователь частоты делает возможным равномерный и бесступенчатый старт/стоп кабины с низким пусковым током.
Потребность в электроэнергии составляет всего 63 ампера.
Предусмотрены следующие дополнительные устройства:
– компьютерная система управления спуском с датчиками импульсов;
– приводная система с регулировкой частоты;
– система диагностики неисправностей;
– распознаватель перегрузки;
– аутригеры для нижней станции.
Возможен вариант обоих подъемников с двумя кабинами.
Изготовитель: OY SCANINTER NOKIA LTD
АО «Сканинтер Нокиа Лтд.»
Rantaperkiökatu 1 С 11
Fl-33900 TAMPERE, ФИНЛЯНДИЯ
Тел. +358 3 236 6300 Факс. +358 3 236 6333
www.scanclimber.com
Общий вид подъемников SCANCLIMBER SC1532 / SC2032F
Горячеоцинкованная мачтовая секция
ТЕХНИЧЕСКИЕ
ХАРАКТЕРИСТИКИ
ГРУЗОПАССАЖИРСКИХ ПОДЪЕМНИКОВ SCANCLIMBER SC1532
и SC2032F
|
Ед. изм. |
Подъемники |
||
|
SC1532 |
SC2032F |
||
|
Грузоподъемность |
кг или |
1500 или |
2000 или |
|
чел. |
18 |
24 |
|
|
Скорость |
м/мин. |
36 |
|
|
Максимальная высота подъема, с анкеровкой мачты: |
м |
||
|
однокабинный |
300 |
||
|
двухкабинный |
220 |
||
|
Максимальная свободностоящая высота подъема: |
м |
||
|
однокабинный |
15,5 |
||
|
двухкабинный |
14,0 |
||
|
Расстояние между анкерами |
м |
Максимально 20, в зависимости от типа крепления |
|
|
Свободностоящая высота мачты после верхнего крепления: |
м |
||
|
однокабинный |
7,5 |
||
|
двухкабинный |
3,0 |
||
|
Габариты кабины: |
|||
|
дверной проем: |
|||
|
ширина |
мм |
1510 |
1510 |
|
высота |
мм |
2100 |
2100 |
|
внутренние размеры кабины: |
|||
|
первый вариант |
мм |
1510´3200 |
1510´3200 |
|
второй вариант |
мм |
1510´3700 |
1510´3700 |
|
внутренняя высота кабины |
мм |
2100 |
2100 |
|
масса |
кг |
1550 |
1600 |
|
Габариты нижней станции: |
|||
|
длина |
мм |
3800 |
|
|
ширина |
мм |
2580 |
|
|
высота |
мм |
2670 |
|
|
масса |
кг |
1500 |
|
|
Подъемный механизм: |
|||
|
тип |
Верхний привод |
Верхний привод |
|
|
двигатели |
кВт |
2´9,2 |
2´11 |
|
Электропитание: |
|||
|
напряжение |
Трехфазное / 400 В/ 50 Гц |
||
|
ток |
63А / 5 п |
||
|
Аварийный тормоз |
тип |
UC3.0А |
|
|
Мачтовые секции: |
|||
|
длина мачтовой секции |
мм |
1508 |
|
|
масса мачтовой секции: |
|||
|
с одной зубчатой рейкой |
кг |
149 |
|
|
с двумя зубчатыми рейками |
кг |
173 |
|
|
Модуль зубчатой рейки |
М = 8 |
||
Мачтовые платформы SCANCLIMBER являются идеальным решением для выполнения работ по реконструкции, монтажу и кладке кирпичей на фасадах высоких зданий.
Мачтовые модульные платформы SCANCLIMBER могут иметь одну или двойную мачту. Мачта состоит из многих секций длиной 1250 мм, которые легко прикрепляются друг к другу при помощи болтов на требуемой высоте. Сама платформа собирается из модулей с помощью болтов. Платформа поднимается и опускается по вертикальной зубчатой рейке при помощи ведущего колеса, работающего через коробку передач с электромоторным приводом.
Платформа может быть свободностоящей до высоты 20 м. Максимальная высота платформы с креплением к стене при помощи анкеровки составляет 100 м. Высота больше 100 м является возможной при помощи спецмероприятий.
Шасси могут быть снабжены колесами или мачта может быть смонтирована также на т.н. минишасси для узких мест.
Мачтовые модульные платформы SCANCLIMBER обладают преимуществами:
– высокая грузоподъемность, при одномачтовой конструкции до 2000 кг, при двухмачтовой до 4200 кг;
– модульная система, взаимозаменяемые мачтовые секции, колесные шасси, минишасси, стенные анкеры, ограждения и т.п.;
– мачтовые секции, анкера и ограждения горячеоцинкованные;
– масса мачтовой секции - всего 82 кг;
– наружный размер мачтовых секций составляет 700´700 мм, обеспечивая хорошую устойчивость;
– ширина платформы - 1600 мм;
– длина платформы от 4,2 м (одномачтовая) до 31,1 м (двухмачтовая);
– телескопическое удлинение платформы;
– модули ограждения и двери снабжены встроенными плитками против толчков;
– в качестве дополнительного оборудования механизм передвижения шасси;
– надежное блокирующее устройство безопасности.
Кран для сборки мачты |
Телескопическое удлинение платформы |
|
Минишасси |
|
Механизм передвижения шасси |
Стенная анкеровка |
ТРАНСПОРТИРОВКА/ХРАНЕНИЕ
Платформа SCANCLIMBER в транспортном положении
Изготовитель: OY SCANINTER NOKIA LTD
АО «Сканинтер Нокиа Лтд.»
Rantaperkiönkatu 1 С 11
FIN-33900 TAMPERE, ФИНЛЯНДИЯ
Тел. +358 3 236 6300 Факс. +358 3 236 6333
www.scanclimber.com
Общий вид одномачтовых строительных платформ SCANCLIMBER SC1300 и SC4000
ТЕХНИЧЕСКИЕ ХАРАКТЕРИСТИКИ
|
Ед. изм. |
SC1300 одномачтовая |
SC4000 одномачтовая |
|
|
Максимальная длина платформы/грузоподъемность |
м/кг |
4,2/1300 |
4,2/2000 |
|
7,4/1000 |
7,4/1700 |
||
|
10,5/700 |
10,5/1400 |
||
|
12,5/1200 |
|||
|
Максимальная свободностоящая высота: |
|||
|
- с полностью выдвинутыми аутригерами |
м |
20,0 |
15,0 |
|
- с односторонним применением аутригеров |
м |
15,0 |
15,0 |
|
Максимальная высота с анкеровкой сверху |
м |
25,0 |
25,0 |
|
Максимальная высота с анкеровкой мачты |
м |
100,0 |
100,0 |
|
Расстояние между анкерами |
м |
12,5 |
12,5 |
|
Максимальная аутригерная нагрузка |
кН |
50,0 |
60,0 |
|
Транспортная масса |
кг |
3500 |
4000 |
|
Скорость подъема |
м/мин |
6,0 |
6,0 |
|
Горячеоцинкованные мачтовые секции, взаимозаменяемые во всех моделях |
мм/кг |
1256/82 |
1256/82 |
|
Электросистема: |
|||
|
- двигатели подъема |
380 В/50 Гц/3,0 кВт 3-х фазный/16 А |
2´380 В/50 Гц/ 2,2 кВт 3-х фазный/16 А |
|
|
- двигатель передвижения |
380 В/1,1 кВт |
380 В/1,1 кВт |
|
|
Устройства безопасности: |
|||
|
- механический тормоз безопасности |
+ |
+ |
|
|
- аварийная остановка и концевые выключатели |
+ |
+ |
|
|
- электромагнитный тормоз |
+ |
+ |
|
|
- реле аварийного тока |
+ |
+ |
ТЕХНИЧЕСКИЕ ХАРАКТЕРИСТИКИ
|
Ед. изм. |
SC1300 двухмачтовая |
SC4000 двухмачтовая |
|
|
Максимальная длина платформы/грузоподъемность |
м/кг |
11,9/2320 |
11,9/4200 |
|
18,3/1700 |
15,1/3800 |
||
|
19,9/3250 |
|||
|
23,1/2775 |
|||
|
26,3/2515 |
|||
|
31,1/2140 |
|||
|
Максимальная свободностоящая высота: |
|||
|
- с полностью выдвинутыми аутригерами |
м |
20,0 |
15,0 |
|
- с односторонним применением аутригеров |
м |
15,0 |
15,0 |
|
Максимальная высота с анкеровкой сверху |
м |
25,0 |
25,0 |
|
Максимальная высота с анкеровкой мачты |
м |
100,0 |
100,0 |
|
Расстояние между анкерами |
м |
12,5 |
12,5 |
|
Максимальная аутригерная нагрузка |
кН |
50,0 |
60,0 |
|
Транспортная масса |
кг |
2´3500 |
2´4000 |
|
Скорость подъема |
м/мин |
6,0 |
6,0 |
|
Горячеоцинкованные мачтовые секции, взаимозаменяемые во всех моделях |
мм/кг |
1256/82 |
1256/82 |
|
Электросистема: |
|||
|
- двигатели подъема |
2´380 В/50 Гц/3,0 кВт 3-х фазный/2´16 А |
2´380 В/50 Гц/ 2,2 кВт 3-х фазный/2´16 А |
|
|
- двигатель передвижения |
2´380 В/1,1 кВт |
2´380 В/1,1 кВт |
|
|
Устройства безопасности |
|||
|
- механический тормоз безопасности |
+ |
+ |
|
|
- аварийная остановка и концевые выключатели |
+ |
+ |
|
|
- электромагнитный тормоз |
+ |
+ |
|
|
- реле аварийного тока |
+ |
+ |
ТЕХНИЧЕСКИЕ ХАРАКТЕРИСТИКИ
|
Ед. изм. |
SC5000 одномачтовая |
SC5000 двухмачтовая |
|
|
Максимальная длина платформы/грузоподъемность |
м/кг |
4,1/2700 |
12,6/5000 |
|
7,3/2300 |
20,6/4000 |
||
|
10,5/1900 |
28,6/3000 |
||
|
13,7/1500 |
35,0/2200 |
||
|
16,9/1000 |
40,6/1500 |
||
|
Максимальная свободностоящая высота: |
|||
|
- с полностью выдвинутыми аутригерами, телескопы снаружи |
м |
18 - 20* |
20 |
|
- с односторонним применением аутригеров, телескопы снаружи |
м |
13 - 18* |
13 - 20* |
|
Максимальная высота с анкеровкой сверху |
м |
25,0 |
25,0 |
|
Максимальная высота с анкеровкой мачты |
м |
100,0 |
100,0 |
|
Расстояние между анкерами |
м |
12,5 |
12,5 |
|
Максимальная аутригерная нагрузка |
кН |
65,0 |
65,0 |
|
Транспортная масса |
кг |
4000 |
4000 |
|
Скорость подъема |
м/мин |
7,0 |
7,0 |
|
Горячеоцинкованные мачтовые секции, взаимозаменяемые во всех моделях |
мм/кг |
1256/82 |
1256/82 |
|
Электросистема: |
|||
|
- двигатели подъема |
2´380 В/50 Гц/3 кВт 3-х фазный/32 А |
2´380 В/50 Гц/ 3 кВт 3-х фазный/2´32 А |
|
|
- двигатель передвижения |
380 В/1,1 кВт |
2´380 В/1,1 кВт |
|
|
Устройства безопасности |
|||
|
- механический тормоз безопасности |
+ |
+ |
|
|
- аварийная остановка и концевые выключатели |
+ |
+ |
|
|
- электромагнитный тормоз |
+ |
+ |
|
|
- реле аварийного тока |
+ |
+ |
|
|
* зависит от длины платформы |
|||
Благодаря шарнирному соединению платформы и легкости мачтовой секции - только 48 кг - ее можно быстро и легко устанавливать, а транспортировать можно на буксирном трейлер-шасси.
ТЕХНИЧЕСКИЕ ХАРАКТЕРИСТИКИ
|
Ед. изм. |
SC1000 одномачтовая |
SC1000 двухмачтовая |
|
|
Максимальная длина платформы/грузоподъемность |
м/кг |
4,1/1300 |
12,3/1700 |
|
7,1/800 |
16,8/1400 |
||
|
10,1/500 |
19,8/1200 |
||
|
25,0/750 |
|||
|
Максимальная свободностоящая высота с выдвинутыми самыми крайними аутригерами |
м |
6,0 |
6,0 |
|
Максимальная высота с анкеровкой сверху |
м |
11,5 |
11,5 |
|
Максимальная высота с анкеровкой мачты |
м |
100,0 |
100,0 |
|
Расстояние между анкерами |
м |
6,0 |
6,0 |
|
Максимальное телескопическое расширение |
м |
1,0 |
1,0 |
|
Максимальная аутригерная нагрузка |
кН |
15,0 |
15,0 |
|
Скорость подъема |
м/мин |
6,0 |
6,0 |
|
Транспортная масса: |
кг |
||
|
максимальная (10,1 м платформа) |
1800 |
||
|
минимальная (4,1 м платформа) |
1000 |
||
|
Горячеоцинкованные мачтовые секции |
мм/кг |
1508/48 |
1508/48 |
|
Электросистема: |
|||
|
двигатели подъема |
400 В/50 Гц/3 кВт/3-х фазный/16 А |
2´400 В/50 Гц/3 кВт/3-х фазный/2´16 А |
|
|
Устройства безопасности: |
|||
|
- механический тормоз безопасности |
+ |
+ |
|
|
- аварийная остановка и концевые выключатели |
+ |
+ |
|
|
- электромагнитный тормоз |
+ |
+ |
|
|
- реле аварийного тока |
+ |
+ |
|
|
Дополнительные принадлежности |
Двигатели передвижения для колесного шасси |
Двигатели передвижения для колесного шасси |
Изготовитель: OY SCANINTER NOKIA LTD
АО «Сканинтер Нокиа Лтд.»
Rantaperkiönkatu 1 С 11
FIN-33900 TAMPERE, Finland (ФИНЛЯНДИЯ)
Тел. +358 3 236 6300 Факс. +358 3 236 6333
A member of the plettac Group
www.scanclimber.com
Мачтовое подъемное оборудование фирмы «Maber» включает следующие позиции:
– грузовые мачтовые подъемники;
– грузопассажирские мачтовые подъемники;
– пассажирские мачтовые подъемники;
– мачтовые подъемные рабочие платформы для фасадных работ.
Мачтовые подъемники «Maber» предназначены для вертикального перемещения людей, строительных материалов и изделий во время выполнения строительно-монтажных и отделочных работ при строительстве зданий и сооружений.
Подъемники «Maber» обладают сравнительно небольшой массой, но имеют запас прочности в 1,5 раза.
Подъемники «Maber» оснащены полным комплектом защитных устройств, обеспечивающих безопасность работы, таких как концевые выключатели, реагирующие на движение, контакт с мачтой, закрытие дверей, скорость движения, устройство нивелирования (для платформ), датчики низкой температуры, скорости ветра и защиты от перегрузки, а также экстренные механизмы торможения, срабатывающие в случае выхода из строя основных тормозных устройств.
Схема монтажа подъемников достаточно проста и может быть выполнена с помощью двух-трех человек под руководством специалиста-монтажника техники «Maber» без применения специальных грузоподъемных механизмов.
Изготовитель - Итальянская фирма «Maber»
Поставщик - Компания «ИМЕР ВОСТОК»
125047, г. Москва, пл. Тверская Застава,
д. 3, офис 501
Тел./факс 250-36-53, 250-40-21
E-mail: imer@imer.ru
www.imer.ru
Грузовой подъемник МВ 1500/150 предназначен для подъема грузов весом до 1500 кг. Команды передаются с земли с помощью дистанционного кнопочного пульта управления, которые подсоединяется к загрузочной платформе только во время монтажа.
Оснащен аварийным механическим тормозным устройством.
Общий вид грузового подъемника МВ 1500/150
Основные комплектующие части подъемника:
– опорная рама;
– мачта;
– настенные опоры и направляющие кабели;
– комплект двигателя с аварийным тормозом;
– электрический пульт управления;
– кнопочный пульт управления;
– защитные устройства;
– грузовая платформа;
– защитная разгрузочная дверца.
ТЕХНИЧЕСКИЕ
ХАРАКТЕРИСТИКИ
грузового подъемника МВ 1500/150
|
Ед. изм. |
Значение |
|
|
Максимальная высота подъема платформы |
м |
150 |
|
Расстояние между креплениями к стене |
м |
9 |
|
Грузоподъемность |
кг |
1500 |
|
Размеры кабины: |
мм |
|
|
ширина |
1500 |
|
|
длина |
2500 |
|
|
Вариант привода: трехфазный |
400 В - 50 Гц |
|
|
Мощность привода |
кВт |
2´5,5 |
|
Скорость подъема |
м/мин |
30 |
|
Аварийное механическое тормозное устройство |
есть |
Изготовитель - Итальянская фирма «Maber»
Поставщик - Компания «ИМЕР ВОСТОК»
125047, г. Москва, пл. Тверская Застава,
д. 3, офис 501
Тел./факс 250-36-53, 250-40-21
E-mail: imer@imer.ru
www.imer.ru
Пассажирский подъемник МВ А 1400/150 предназначен для подъема грузов и людей (максимум 14 человек) общим весом до 1400 кг. Команды передаются: из кабины, с земли и с дверей на этажах.
Мачтовые секции монтируются из кабины. Монтажная платформа открывается из кабины. Снабжен скользящими воротами выхода.
Общий вид пассажирского подъемника МВ А 1400/150
Основные комплектующие части подъемника:
– опорная рама;
– мачта;
– ограждение опорной рамы;
– настенные опоры и направляющие кабеля;
– комплект двигателя с аварийным тормозом;
– грузовая кабина;
– дверцы на этажах (количество по заказу);
– общий электрический пульт управления в кабине;
– пульт управления на опорной раме (дополнительное оборудование);
– защитные устройства;
– панель управления на дверце на этаже.
ТЕХНИЧЕСКИЕ
ХАРАКТЕРИСТИКИ
ПАССАЖИРСКОГО подъемника МВ а 1400/150
|
Ед. изм. |
Значение |
|
|
Максимальная высота подъема платформы |
м |
150 |
|
Расстояние между креплениями к стене |
м |
6/9 |
|
Грузоподъемность |
кг |
1400 |
|
Размеры кабины: |
мм |
|
|
ширина |
1500 |
|
|
длина |
3000 |
|
|
Вариант привода: трехфазный |
400 В - 50 Гц |
|
|
Мощность привода |
кВт |
2´7,5 |
|
Скорость подъема |
м/мин |
30 |
|
Аварийное механическое тормозное устройство |
есть |
Изготовитель - Итальянская фирма «Maber»
Поставщик - Компания «ИМЕР ВОСТОК»
125047, г. Москва, пл. Тверская Застава,
д. 3, офис 501
Тел./факс 250-36-53, 250-40-21
E-mail: imer@imer.ru
www.imer.ru
Грузопассажирский мачтовый строительный подъемник предназначен для подъема людей (7 человек) и грузов общим весом до 1500 кг.
|
+1500 кг |
v = 24 м/мин |
|
|
1 человек |
+1400 кг |
v = 12 м/мин |
|
2 человека |
+1300 кг |
v = 12 м/мин |
|
3 человека |
+1200 кг |
v = 12 м/мин |
|
4 человека |
+1100 кг |
v = 12 м/мин |
|
5 человек |
+1000 кг |
v = 12 м/мин |
|
6 человек |
+900 кг |
v = 12 м/мин |
|
7 человек |
+800 кг |
v = 12 м/мин |
Общий вид грузопассажирского мачтового строительного подъемника МВ С 2000/150
Основные комплектующие части грузопассажирского подъемника МВ С 2000/150
– опорная рама;
– мачта;
– настенные опоры и направляющие кабеля;
– комплект двигателя с аварийным тормозом;
– электрический пульт управления;
– кнопочный пульт управления;
– пульт управления на платформе с селектором скорости;
– защитные устройства;
– грузовая платформа;
– защитная разгрузочная дверца;
– защитное ограждение базовой секции;
– крыша.
ТЕХНИЧЕСКИЕ
ХАРАКТЕРИСТИКИ
ГРУЗОПАССАЖИРСКОГО ПОДЪЕМНИКА мв С
2000/150
|
Ед. изм. |
Значение |
|
|
Максимальная высота подъема платформы |
м |
150 |
|
Расстояние между креплениями к стене |
м |
6/9 |
|
Грузоподъемность |
кг |
1500 |
|
Размеры кабины: |
мм |
|
|
длина |
3200 |
|
|
ширина |
1500 |
|
|
Вариант привода: трехфазный |
400 В - 50 Гц |
|
|
Мощность привода |
кВт |
2´4 |
|
Скорость подъема с 5-ю пассажирами |
м/мин |
12 (1500 кг) |
|
Скорость подъема с грузом |
м/мин |
24 (1500 кг) |
|
Аварийное механическое тормозное устройство |
есть |
Изготовитель - Итальянская фирма «Maber»
Поставщик - Компания «ИМЕР ВОСТОК»
125047, г. Москва, пл. Тверская Застава,
д. 3, офис 501
Тел./факс 250-36-53, 250-40-21
E-mail: imer@imer.ru
www.imer.ru
Общий вид грузового подъемника МВ 500/120 М
ТЕХНИЧЕСКИЕ
ХАРАКТЕРИСТИКИ
ГРУЗОВОГО ПОДЪЕМНИКА МВ 500/120 М
|
Ед. изм. |
Модель |
|||
|
МВ 500/120-Т |
МВ 500/120-М |
МВ 500/120-М |
||
|
Максимальная высота подъема платформы |
м |
120 |
120 |
120 |
|
Расстояние между креплениями к стене |
м |
6 |
6 |
6 |
|
Грузоподъемность |
кг |
500 |
300 |
500 |
|
Размеры кабины: |
мм |
|||
|
ширина |
1000 |
1000 |
1300 |
|
|
длина |
1500 |
1500 |
1500 |
|
|
Вариант привода: однофазный |
- |
230 В - 50 Гц |
- |
|
|
Вариант привода: трехфазный |
400 В - 50 Гц |
- |
400 В - 50 Гц |
|
|
Мощность привода |
кВт |
3,0 |
1,7 |
3,0 |
|
Скорость подъема |
м/мин |
25 |
15 |
25 |
|
Аварийное механическое тормозное устройство |
Есть |
Есть |
Есть |
|
Изготовитель - Итальянская фирма «Maber»
Поставщик - Компания «ИМЕР ВОСТОК»
125047, г. Москва, пл. Тверская Застава,
д. 3, офис 501
Тел./факс 250-36-53, 250-40-21
E-mail: imer@imer.ru
www.imer.ru
Общий вид грузового подъемника МВ 800/150
ТЕХНИЧЕСКИЕ
ХАРАКТЕРИСТИКИ
ГРУЗОВОГО ПОДЪЕМНИКА МВ 800/150
|
Ед. изм. |
Модели |
||
|
МВ 800/150 |
МВ 800/150-S |
||
|
Максимальная высота подъема платформы |
м |
150 |
159 |
|
Расстояние между креплениями к стене |
м |
6 |
6 |
|
Грузоподъемность |
кг |
800 |
1000 |
|
Размеры кабины: |
мм |
||
|
ширина |
1400 |
1400 |
|
|
длина |
1750 |
1750 |
|
|
Вариант привода: трехфазный |
400 В - 40 Гц |
400 В - 40 Гц |
|
|
Скорость подъема |
м/мин |
25 |
20 |
|
Аварийное механическое тормозное устройство |
Есть |
Есть |
|
Изготовитель - Итальянская фирма «Maber»
Поставщик - Компания «ИМЕР ВОСТОК»
125047, г. Москва, пл. Тверская Застава,
д. 3, офис 501
Тел./факс 250-36-53, 250-40-21
E-mail: imer@imer.ru
www.imer.ru
Общий вид пассажирского подъемника МВ А 500/140
ТЕХНИЧЕСКИЕ
ХАРАКТЕРИСТИКИ
ПАССАЖИРСКОГО ПОДЪЕМНИКА МВ А 500/140
|
Ед. изм. |
Значение |
|
|
Максимальная высота подъема платформы |
м |
140 |
|
Расстояние между креплениями к стене |
м |
6 |
|
Грузоподъемность |
кг |
400 |
|
Размеры кабины: |
мм |
|
|
ширина |
1000 |
|
|
длина |
1750 |
|
|
Вариант привода: трехфазный |
400 В - 50 Гц |
|
|
Скорость подъема |
м/мин |
25 |
|
Аварийное механическое тормозное устройство |
есть |
Изготовитель - Итальянская фирма «Maber»
Поставщик - Компания «ИМЕР ВОСТОК»
125047, г. Москва, пл. Тверская Застава,
д. 3, офис 501
Тел./факс 250-36-53, 250-40-21
E-mail: imer@imer.ru
www.imer.ru
Общий вид грузового подъемника МВ А 800/150
ТЕХНИЧЕСКИЕ
ХАРАКТЕРИСТИКИ
ГРУЗОВОГО ПОДЪЕМНИКА МВ А 800/150
|
Ед. изм. |
Модель |
||
|
МВ А 800/150-1 |
МВ А 800/150-2 |
||
|
Максимальная высота подъема платформы |
м |
150 |
150 |
|
Расстояние между креплениями к стене |
м |
6 |
6 |
|
Грузоподъемность |
кг |
800 |
1000 |
|
Размеры кабины: |
мм |
||
|
ширина |
1150 |
1150 |
|
|
длина |
2060 |
2060 |
|
|
Вариант привода: трехфазный |
400 В - 50 Гц |
400 В - 50 Гц |
|
|
Скорость подъема |
м/мин |
25 |
20 |
|
Аварийное механическое тормозное устройство |
есть |
есть |
|
Изготовитель - Итальянская фирма «Maber»
Поставщик - Компания «ИМЕР ВОСТОК»
125047, г. Москва, пл. Тверская Застава,
д. 3, офис 501
Тел./факс 250-36-53, 250-40-21
E-mail: imer@imer.ru
www.imer.ru
Общий вид грузопассажирского подъемника МВ С 500/120
ТЕХНИЧЕСКИЕ
ХАРАКТЕРИСТИКИ
ГРУЗОПАССАЖИРСКОГО ПОДЪЕМНИКА МВ С 500/120
|
Ед. изм. |
Модель |
||
|
МВ С 500/120-М |
МВ С 500/120-Т |
||
|
Максимальная высота подъема платформы |
м |
120 |
120 |
|
Расстояние между креплениями к стене |
м |
6 |
6 |
|
Грузоподъемность |
кг |
500 |
500 |
|
Размеры кабины: |
мм |
||
|
ширина |
1320 |
1320 |
|
|
длина |
1600 |
1600 |
|
|
Вариант привода: однофазный |
230 В - 50 Гц |
- |
|
|
Вариант привода: трехфазный |
- |
400 В - 50 Гц |
|
|
Мощность привода |
кВт |
2,5 |
3,0 |
|
Скорость подъема |
м/мин |
15 |
24 |
|
Аварийное механическое тормозное устройство |
есть |
есть |
|
Изготовитель - Итальянская фирма «Maber»
Поставщик - Компания «ИМЕР ВОСТОК»
125047, г. Москва, пл. Тверская Застава,
д. 3, офис 501
Тел./факс 250-36-53, 250-40-21
E-mail: imer@imer.ru
www.imer.ru
Общий вид грузопассажирского подъемника С 1000/150
ТЕХНИЧЕСКИЕ
ХАРАКТЕРИСТИКИ
ГРУЗОПАССАЖИРСКОГО ПОДЪЕМНИКА С 1000/150
|
Ед. изм. |
Значение |
|
|
Максимальная высота подъема платформы |
м |
150 |
|
Расстояние между креплениями к стене |
м |
6 |
|
Грузоподъемность |
кг |
1000 |
|
Размеры кабины: |
мм |
|
|
ширина |
1400 |
|
|
длина |
1750 |
|
|
Вариант привода: трехфазный |
400 В - 50 Гц |
|
|
Скорость подъема с 5-ю пассажирами |
м/мин |
12 (1000 кг) |
|
Скорость подъема |
м/мин |
24 (1000 кг) |
|
Аварийное механическое тормозное устройство |
есть |
Изготовитель - Итальянская фирма «Maber»
Поставщик - Компания «ИМЕР ВОСТОК»
125047, г. Москва, пл. Тверская Застава,
д. 3, офис 501
Тел./факс 250-36-53, 250-40-21
E-mail: imer@imer.ru
http://www.imer.ru/
Одномачтовая рабочая платформа МВ Р 01/150 предназначена для фасадных работ в условиях наибольшей безопасности. Полезный вес равномерно распределенных по площади платформы грузов составляет 1250 кг. Платформа оснащена механическим тормозным устройством.
Общий вид одномачтовой рабочей платформы МВ Р 01/150
Основные комплектующие части одномачтовой платформы МВ Р 01/150:
– опорная рама;
– лестница;
– мачта;
– настенные опоры;
– комплект двигателя с аварийным тормозом;
– электрический пульт управления;
– защитные устройства;
– грузовая платформа.
ТЕХНИЧЕСКИЕ
ХАРАКТЕРИСТИКИ
ОДНОМАЧТОВОЙ РАБОЧЕЙ ПЛАТОФОРМЫ МВ Р
01/150
|
Ед. изм. |
Значение |
|
|
Максимальная высота подъема платформы |
м |
150 |
|
Скорость подъема платформы |
м/мин |
10 |
|
Максимальная длина рабочей платформы |
мм |
10100 |
|
Максимальная ширина рабочей платформы |
мм |
2290 |
|
Минимальная ширина рабочей платформы |
мм |
1340 |
|
Расстояние между креплениями к стене |
м |
9 |
|
Высота мачтовой секции |
м |
1,5 |
|
Вариант привода: трехфазный |
400 В - 50 Гц |
|
|
Мощность привода |
кВт |
4 |
|
Максимальная грузоподъемность |
кг |
1250 |
|
Аварийное механическое тормозное устройство |
есть |
Изготовитель - Итальянская фирма «Maber»
Поставщик - Компания «ИМЕР ВОСТОК»
125047, г. Москва, пл. Тверская Застава,
д. 3, офис 501
Тел./факс 250-36-53, 250-40-21
E-mail: imer@imer.ru
www.imer.ru
Двухмачтовая рабочая платформа МВ Р 02/150 предназначена для фасадных работ в условиях наибольшей безопасности. Полезный вес, равномерно распределенных по площади платформы грузов, составляет 2800 кг. Платформа оснащена аварийным механическим тормозным устройством.
Общий вид двухмачтовой рабочей платформы МВ Р 02/150
Основные комплектующие части двухмачтовой платформы МВ Р 02/150:
– две опорные рамы;
– лестница;
– две мачты;
– настенные опоры;
– два комплекта двигателей (с аварийным тормозом);
– электрический пульт управления;
– защитные устройства;
– грузовая платформа.
ТЕХНИЧЕСКИЕ
ХАРАКТЕРИСТИКИ
ДВУХМАЧТОВОЙ РАБОЧЕЙ ПЛАТОФОРМЫ МВ Р 02/150
|
Ед. изм. |
Значение |
|
|
Максимальная высота подъема платформы |
м |
150 |
|
Скорость подъема платформы |
м/мин |
10 |
|
Максимальная длина рабочей платформы |
мм |
30700 |
|
Максимальная ширина рабочей платформы |
мм |
2290 |
|
Минимальная ширина рабочей платформы |
мм |
1340 |
|
Расстояние между креплениями к стене |
м |
9 |
|
Высота мачтовой секции |
м |
1,5 |
|
Вариант привода: трехфазный |
400 В - 50 Гц |
|
|
Мощность привода |
кВт |
2´4 |
|
Максимальная грузоподъемность |
кг |
2800 |
|
Аварийное механическое тормозное устройство |
есть |
Изготовитель - Итальянская фирма «Maber»
Поставщик - Компания «ИМЕР ВОСТОК»
125047, г. Москва, пл. Тверская Застава,
д. 3, офис 501
Тел./факс 250-36-53, 250-40-21
E-mail: imer@imer.ru
www.imer.ru
Общий вид грузового подъемника МВ S 01-02/120
ТЕХНИЧЕСКИЕ
ХАРАКТЕРИСТИКИ
ГРУЗОВОГО ПОДЪЕМНИКА МВ S 01-02/120
|
Ед. изм. |
Модель |
||
|
МВ S 01/120 |
МВ S 02/120 |
||
|
Максимальная высота подъема платформы |
м |
120 |
120 |
|
Скорость подъема платформы |
м/мин |
10 |
10 |
|
Максимальная длина рабочей платформы |
мм |
7100 |
21750 |
|
Максимальная ширина рабочей платформы |
мм |
1750 |
1750 |
|
Минимальная ширина рабочей платформы |
мм |
1000 |
1000 |
|
Расстояние между креплениями к стене |
м |
6 |
6 |
|
Высота мачтовой секции |
м |
1,5 |
1,5 |
|
Вариант привода: трехфазный |
400 В - 50 Гц |
400 В - 59 Гц |
|
|
Мощность привода |
кВт |
3 |
2´3 |
|
Максимальная грузоподъемность |
кг |
800 |
2000 |
|
Аварийное механическое тормозное устройство |
есть |
есть |
|
Изготовитель - Итальянская фирма «Maber»
Поставщик - Компания «ИМЕР ВОСТОК»
125047, г. Москва, пл. Тверская Застава,
д. 3, офис 501
Тел./факс 250-36-53, 250-40-21
E-mail: imer@imer.ru
www.imer.ru
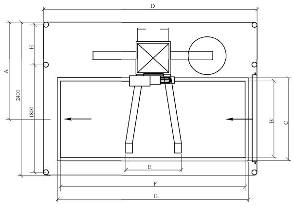
Подъемники строительные грузопассажирские Zenith Asi 15/36 фирмы Sofi предназначены для вертикального перемещения людей, строительных материалов и изделий во время выполнения строительно-монтажных и отделочных работ при строительстве зданий и сооружений.
Опорная рама подъемника Zenith Asi 15/36 состоит из стальных секций каркаса, служащих для расположения и обеспечения вертикальных мачт, и ограждения. Вертикальные мачты выполнены из ряда секций, закрепленных к стене через каждые 6 м. Кабина лифта перемещается вдоль мачты посредством зубчатой рейки.
Общий вид грузопассажирского подъемника zenith Asi 15/36
Вертикальная мачта состоит из отдельных модульных элементов. Высота каждого элемента 1,482 мм. Вертикальные элементы соединяются вместе посредством гальванизированных винтов с упругими прокладками.
Подъемник устанавливается на бетонном основании, усиленном тремя слоями стальной арматуры, способными выдержать нагрузки, передаваемые опорной рамой. Давление, передаваемое опорной рамой на основание, должно быть больше или равняться 2 daN/см2 (1 daN » 1 кг). Крепежные винты М20 должны быть скрыты в бетонном основании. В отдельных специфических случаях возможно использовать для крепления якорные винты.
ТЕХНИЧЕСКИЕ
ХАРАКТЕРИСТИКИ ГРУЗОПАССАЖИРСКИХ
ПОДЪЕМНИКОВ ZENITH ASI 15/36
|
Ед. изм. |
Значение |
|
|
Грузоподъемность |
кг |
1500 |
|
Максимальное количество поднимаемых людей |
16 |
|
|
Максимальная скорость работы |
м/мин |
36 |
|
Максимальная высота мачты |
м |
200 |
|
Высота подъема кабины лифта |
м |
197 |
|
Максимальная высота без крепления во время монтажа/демонтажа |
м |
6 (9) |
|
Расстояние между креплениями к стене |
м |
6 (9) |
|
Максимальная сила ветра в рабочем состоянии |
км/ч |
72 |
|
Максимальная сила ветра при монтаже (демонтаже) |
км/ч |
45 |
|
Максимальная сила ветра в нерабочем состоянии |
км/ч |
164 |
|
Максимальный толчок против поручня |
кг |
90 |
|
Мощность двигателя |
кВ |
2´9,2 |
|
Напряжение |
В |
400 |
|
Напряжение при экстренном торможении |
В |
230 |
|
Напряжение второстепенной цепи |
В |
24 |
|
Нормальная сила тока |
А |
29 |
|
Сила тока при обрыве |
А |
87 |
|
Количество тормозных систем |
2 |
|
|
Масса опорной рамы (включая ограждение) |
||
|
Стойки модуля |
8 |
|
|
Задержка уровня шума |
дБ (А) |
60 |
|
Наличие |
|
|
Вызов кабины лифта с основного уровня |
Есть |
|
Вызов с уровней этажей |
Есть |
|
Открытие входной двери на уровне этажа |
Есть |
Общий вид грузопассажирских подъемников и главные размеры
а) одинарного PLM; б) сдвоенного PLM
ТЕХНИЧЕСКИЕ ХАРАКТЕРИСТИКИ подъемников HEK PLM
|
PLM 1072 |
PLM 1073 |
PLM 1572 |
PLM 1573 |
PLM 2073 |
PLM 2074 |
PLM 1076 |
PLM 2076 |
PLM 2078 |
|
|
Груз (с пассажирами) (кг) |
1000 |
1000 |
1500 |
1500 |
2000 |
2000 |
2´1000 |
2´2000 |
2´2000 |
|
Число пассажиров |
12 |
12 |
18 |
18 |
25 |
25 |
2´12 |
2´25 |
2´25 |
|
Скорость (м/мин) |
40 |
40 |
40 |
40 |
40 |
40 |
40 |
40 |
40 |
|
Число моторов |
2 |
2 |
3 |
3 |
3 |
3 |
2´2 |
2´3 |
2´3 |
|
Максимальная высота мачты (м) А |
200 |
200 |
200 |
200 |
200 |
200 |
200 |
200 |
200 |
|
Максимальное анкерное расстояние (м) В |
12 |
12 |
12 |
12 |
12 |
12 |
12 |
12 |
9 |
|
Высота первого анкера (м) С |
6 |
6 |
6 |
6 |
6 |
6 |
6 |
6 |
4,5 |
|
Максимальная высота мачты над первым анкером (м) D |
6 |
6 |
6 |
6 |
6 |
6 |
6 |
6 |
4,5 |
|
Высота наземной клети (м) Е |
2,5 |
2,5 |
2,5 |
2,5 |
2,5 |
2,5 |
2,5 |
2,5 |
2,5 |
|
Высота кабины (м) F |
2,75 |
2,75 |
2,75 |
2,75 |
2,75 |
2,75 |
2,75 |
2,75 |
2,75 |
|
Внутренняя высота кабины (м) G |
2,2 |
2,2 |
2,2 |
2,2 |
2,2 |
2,2 |
2,2 |
2,2 |
2,2 |
|
Высота ограждения (м) Н |
1,15 |
1,15 |
1,15 |
1,15 |
1,15 |
1,15 |
1,15 |
1,15 |
1,15 |
|
Высота двери наземной клети (м) |
3,35 |
3,25 |
3,25 |
3,25 |
3,25 |
3,25 |
3,25 |
3,25 |
3,25 |
|
Высота пола кабины над землей (м) |
0,5 |
0,5 |
0,5 |
0,5 |
0,5 |
0,5 |
0,5 |
0,5 |
0,5 |
|
Макс. скорость ветра при сборке |
12,5 м/с (6 баллов по Бофорту) |
||||||||
|
Макс. скорость ветра при использовании |
20 м/с (8 баллов по Бофорту) |
||||||||
|
Тип мачты |
VRK 700 |
VRK 700 |
VRK 700 |
VRK 700 |
VRK 700 |
VRK 700 |
VRK 700 |
VRK 700 |
VRK 700 |
Пояснения к кодам: С = длина кабины,
Код - PLM AABC, где: например 1 = 1,6 м
АА = максимальная грузоподъемность, 2 = 2,4 м
например АА = 10 = 1000 кг 3 = 3,2 м
АА = 15 = 1500 кг 4 = 4,0 м
В = тип мачты, 6 = 3,2 м СДВОЕННАЯ
например 5 = мачта квадрат 500, 8 = 4,0 м СДВОЕННАЯ
7 = мачта квадрат 700

Схемы крепления подъемников HEK PLM
Размеры и МАССА подъемников HEK PLM
|
Размеры и масса |
|||||
|
PLM 1072 |
1510 |
650 |
2900´2600´3250 |
2580´1500 |
1110´1120´1508 |
|
PLM 1073 |
1620 |
650 |
3700´2600´3250 |
3380´1500 |
1110´1120´1508 |
|
PLM 1572 |
1510 |
840 |
2900´2600´3250 |
2580´1500 |
1110´1120´1508 |
|
PLM 1573 |
1620 |
840 |
3700´2600´3250 |
3380´1500 |
1110´1120´1508 |
|
PLM 2073 |
1620 |
840 |
3700´2600´3250 |
3380´1500 |
1110´1120´1508 |
|
PLM 2074 |
1750 |
840 |
4500´2600´3250 |
4190´1500 |
1110´1120´1508 |
|
PLM 1076 |
2880 |
1210 |
3700´2400´3250 |
3380´1500 |
1400´1540´1508 |
|
PLM 2076 |
2880 |
1590 |
3700´4400´3250 |
3380´1500 |
1400´1540´1508 |
|
PLM 2078 |
3130 |
1590 |
4500´4400´3250 |
4190´1500 |
1400´1540´1508 |
|
Масса базового механизма (кг), включая моторную каретку и включая 2 мачты и наземную раму |
Масса моторной каретки (кг), включая 1 мачту |
Размеры базового механизма, включая наземную клеть (длина´ширина´высота) (мм) |
Размеры базового механизма, исключая наземную клеть (длина´ширина) (мм) |
Размеры моторной каретки, включая 1 мачту (длина´ширина´высота) (мм) |
|

Вид подъемников HEK PLM в плане
Изготовитель - США