Закрытое
акционерное общество
«ИНСИ»
|
УТВЕРЖДАЮ Управляющий ЗАО «ИНСИ» Е.П. Бабенков «10» апреля 2006 |
Профили холодногнутые
металлические типа «Сайдинг»,
«Фасадная панель», комплектующие
изделия и элементы крепления.
Технические
условия
ТУ 5285-003-42481025-2006
(взамен ТУ 5285-003-42481025-2002)
|
Согласовано: Генеральный директор ООО «Инжстром» Н.Н. Зива |
Разработано: ЗАО «ИНСИ» Начальник технического отдела Н.В. Тимофеев 10.04.06 г. |
Настоящие технические условия распространяются на профили холодногнутые металлические типа «Сайдинг» и «Фасадная панель», комплектующие изделия к ним и элементы их крепления (далее - профили, комплектующие изделия и элементы крепления), изготавливаемые из тонколистового холоднокатаного горячеоцинкованного проката с защитно-декоративным покрытием и без покрытия на станках профилегибочных и предназначенные для облицовки наружных и внутренних поверхностей стен и потолков в ограждающих конструкциях промышленных, жилых и общественных зданий различного назначения с неагрессивной и слабоагрессивной средой по СНиП 2.03.11 при температурах наружного поверхности от минус 55 до плюс 80 °С.
В настоящих технических условиях использованы формулы полезной модели - «Фасадная панель» (варианты), защищенные патентами Российской Федерации № 33768; 33769. Патентообладатель - Закрытое акционерное общество «ИНСИ».

Примеры условного обозначения профилей
Пример 1: Профили холодногнутые металлические - «Сайдинг» тип 2, изготовленные из оцинкованного стального проката толщиной 0,55 мм с полиэфирным покрытием 1 класса SP толщиной 25 мкм по ГОСТ 52146.
МС 2 - 0,55 ЛКПОЦ ГОСТ 52146 - 1/SP 25 - ТУ 5285-003-42481025-2006
Пример 2: Профили холодногнутые металлические - «Фасадная панель» тип 1, изготовленные из оцинкованного проката толщиной 0,7 мм с порошковым полиэфирным покрытием 2 класса SP толщиной 80 мкм по СТО 42481025 004-2006.
ПФ 1 - 0,7 ППОЦ СТО 42481025 004-2006 - 2/SP 80 - ТУ 5285-003-42481025-2006
Пример 3: Кронштейн выравнивающий П-образный с габаритными размерами 200×50 мм из оцинкованного стального проката по ГОСТ Р 52246 толщиной 1,0 мм.
КВП 200×50 1,0 ОЦ ГОСТ 52246 - ТУ 5285-003-42481025-2006
Обязательные требования к качеству профилей, комплектующих изделий и элементов крепления изложены в пунктах 1.1.1; 1.1.4 - 1.1.14
1.1 Основные параметры и характеристики
Профили, комплектующие изделия и элементы крепления изготавливают в соответствии с требованиями настоящих технических условий по технологической документации, утвержденной в установленном порядке.
1.1.1 Размеры, типы и форма сечения профилей приведены в приложении А. Размеры, типы и форма сечения комплектующих изделий приведены в приложении Б. Размеры, типы и форма сечения элементов крепления приведены в приложении В.
- ОЦ - с оцинкованным покрытием по ГОСТ 14918, ГОСТ Р 52246
- ЛКПОЦ - с лакокрасочным полимерным покрытием по ГОСТ Р 52146; СТО ММК 376-2005
- ЛКОЦ - с лакокрасочным покрытием по ГОСТ 30246;
- ППОЦ - с порошковым полимерным покрытием по СТО 42481025 004-2006.
1.1.3 Толщина исходной заготовки - 0,5 - 1,5 мм
1.1.4 Профили изготавливают длиной от 1 до 6 метров. По согласованию изготовителя с потребителем допускается изготовление профилей длиной не менее 0,1 метра и не более 8 метров. Предельные отклонения по длине ±5 мм при длине до 6 м. Предельные отклонения по ширине профилей не должны превышать ±2 мм, а по высоте ±1 мм. Размеры, для которых предельные отклонения не установлены, на готовых профилях не контролируются.
1.1.5 Радиусы кривизны, ширина, высота ступенек обеспечиваются технологической оснасткой и на готовых профилях не контролируются.
1.1.6 Предельные отклонения от номинальных габаритных размеров комплектующих изделий по длине до 2-х метров не должны превышать ±2,0 мм, а свыше 2 м - ±3,0 мм. Размеры, для которых предельные отклонения не установлены, не контролируются.
1.1.7 Направляющие элементы крепления НПП, НПГ и НПШ изготавливают длиной от 0,5 до 5,0 м. Предельные отклонения линейных размеров элементов НПП; по длине +30 мм, по высоте и ширине ±1,0 мм.
Предельные отклонения линейных размеров элементов НПГ и НПШ: по длине +30 мм, по высоте и ширине ±2,0 мм.
1.1.8 Предельные отклонения линейных размеров выравнивающих кронштейнов ±2,0 мм.
1.1.9 Предельные отклонения по толщине основы и цинкового покрытия профилей, комплектующих изделий и элементов крепления должны соответствовать требованиям нормативно-технических документов, указанным в сертификатах качества на соответствующий прокат заводов-изготовителей. Предельные отклонения не распространяются на отклонения по толщине изделий в местах изгиба.
1.1.10 Серповидность профилей, комплектующих изделий и элементов крепления не должна превышать 1 мм на 1 метр длины. Общая серповидность не должна превышать произведения допускаемой серповидности на 1 метр на длину изделий в метрах.
В поперечном сечении направляющих элементов крепления НПП и НПГ, в продольном сечении выравнивающего кронштейна КВГ отклонения от угла 90° не должны превышать ±1°30'.
1.1.11 Продольный прогиб профилей не должен превышать 1 мм на 1 метр длины.
Общий продольный прогиб не должен превышать произведения допускаемого прогиба на 1 метр длины на длину профиля в метрах.
1.1.12 Профили, комплектующие изделия и элементы крепления должны быть обрезаны под прямым углом. Отклонение от перпендикулярности реза не должно выводить изделия за номинальные пределы по длине.
1.1.13 Предельные отклонения от плоскостности профилей, комплектующих изделий и элементов крепления не должны превышать 2,5 мм, а на отгибах крайних полок - 5,0 мм.
1.1.14 Скручивание профилей, комплектующих изделий и элементов крепления вокруг продольной оси не должно превышать произведения 30' на длину изделий в метрах и не должно быть более 5°.
1.1.15 Площадь сечения, масса 1 метра длины, ширина заготовки, координаты центра, осевые моменты инерции, осевые моменты сопротивления профилей приведены в приложении А, комплектующих изделий в приложении Б, элементов крепления в приложении В.
1.2 Требования к сырью и материалам
1.2.1 Для изготовления профилей, комплектующих изделий и элементов крепления их должны применяться материалы, согласно таблице 1.
Таблица 1
|
Характеристика покрытия и условные обозначения |
Марка сталей, сплавов |
|
|
1. Сталь тонколистовая оцинкованная с непрерывных линий по ГОСТ 14918 |
1 - 2 класс толщины цинкового покрытия, нормальной разнотолщинности HP, групп ХП и ПК, нормальной точности прокатки по толщине БТ и ширине БН, нормальной плоскостности ПН с обрезной кромкой О |
08ю по ГОСТ 9045; 08; 08пс по ГОСТ 1050 |
|
2. Прокат листовой горячеоцинкованный по ГОСТ Р 52246 |
Покрытие цинковое по массе класса 140 - 180, по узору и отделке поверхности - с нормальным узором кристаллизации Н и с нормальным узором кристаллизации дрессированное НД |
прокат марок 04, 05 220, 250 по ГОСТ Р 52246 |
|
3. Прокат тонколистовой холоднокатаный и холоднокатаный горячеоцинкованный с полимерным покрытием с непрерывных линий по ГОСТ Р 52146 |
полиэфирная эмаль ПЭ, ПЛ полиуретановая эмаль УР, поливинилденфторидная эмаль(ПВДФ) |
08ю по ГОСТ 9045; 08, 08пс по ГОСТ 1050 |
|
4. Прокат тонколистовой рулонный с защитно-декоротивным лакокрасочным покрытием для строительных конструкций по ГОСТ 30246 |
Эмаль ГФ-2107, Полиэфир-силиконовые эмали АС-1171, АС-5122, Акрилсиликоновые эмали МЛ-1202, Органодисперсные краски ОД-ХВ-221, Эпоксидная грунтовка ЭР-0140, Полихлорвиниловые пластикаты ПЛ-ХВ-122 |
08ю по ГОСТ 9045 08, 08пс по ГОСТ 1050 |
|
5. Прокат тонколистовой с защитно-декоративным полимерным покрытием по СТО ИНСИ 42481025 004-2006 |
Полиэфирная SP, Эпоксидная ЕР Эпокси-полиэфирная EP-SP, Полиуретановая PUR, Акриловая AY порошковые краски |
прокат марок 04, 05 по ГОСТ Р 52246 |
|
6. Прокат стальной с полимерным покрытием по СТО ММК 376-2005 |
Акрил AY, Эпоксид ЕР, Полиэфир SP, Полиамидмодифицированный полиэфир SP-PA, силиконмодифицированный полиэфир SP-SI, Акрилсиликон AY-SI, Полиуретан PUR, Полиамидмодифицированный полиуретан PUR-РА, Поливинилденфторид PVDF, Поливинилхлоридный пластизоль PVC(P) |
08ю по ГОСТ 9045 08пс по ГОСТ 1050 прокат ХП по ГОСТ 14918 |
|
Примечание - Применение материалов исходной заготовки выбирается потребителем в зависимости от условий эксплуатации конструкций. |
||
Допускается применять прокат, изготовленный по другим стандартам, в том числе, получаемый по импорту, показатели качества которого соответствуют требованиям нормативных документов на технологический процесс.
1.2.2 Химический состав основы, требования по механическим свойствам, соответствие требованиям нормативных документов подтверждают документом о качестве предприятия - изготовителя основы.
1.2.3 Комплектующие изделия изготавливаются из того же материала, что и партия профилей. Допускается поставка комплектующих элементов отдельным заказом.
1.2.4 Качество покрытия профилей комплектующих изделий и элементов крепления должно удовлетворять требованиям нормативных документов на материал исходной заготовки для профилирования.
Внешний вид поверхности изделий с полимерным покрытием должен соответствовать требованиям таблицы 2.
Таблица 2
|
Вид покрытия |
Характеристика внешнего вида покрытия на лицевой стороне |
|
|
1 |
ЛКПОЦ ППОЦ |
Поверхность покрытия должна быть однотонной. Поверхность покрытия должна быть сплошной, без дефектов, проникающих до металлической основы. На поверхности покрытия не должен визуально наблюдаться узор кристаллизации цинка. Допускаются отдельные дефекты размером не более 3 мм, не проникающих до металлической основы, или небольшие группы таких дефектов. |
|
2 |
ЛКПОЦ ППОЦ |
Кроме дефектов, указанных для 1 класса покрытия, допускается: - участки разнооттеночности; - участки с различным блеском; - шагрень; - оспины; - царапины не проникающие до металлической основы; - отпечатки, надавы; - другие дефекты, согласованные с потребителем. |
|
Примечание - Характеристики внешнего вида определяются визуально без применения увеличительных приборов. |
||
1.2.5 На лицевой поверхности полимерного покрытия допускаются отдельные участки с искажением рельефа тиснения, риски, следы формообразующих валков не нарушающие целостность покрытия.
1.2.6 Полимерное (органическое) покрытие обратной стороны должно быть сплошным. Допускаются непрокрасы площадью не более 5 %. Допускаются шагрень, риски, включения.
1.3 Комплектность.
1.3.1 Профили должны поставляться потребителю комплектно. В комплект поставки профилей должны входить:
- профили согласно спецификации заказчика.
- документ о качестве (по требованию заказчика прилагается документ о качестве на материал исходной заготовки завода поставщика).
1.3.2 По согласованию предприятия-изготовителя с потребителем в комплект поставки могут входить комплектующие изделия для отделки вентилируемого фасада, элементы крепления и крепежные изделия.
1.4 Маркировка
1.4.1 Маркировку наносят на ярлык, изготовленный по чертежам завода-изготовителя, который крепят к пакету.
1.4.2 Маркировка должна содержать:
- наименование и (или) товарный знак предприятия-изготовителя;
- номер заказа, наименование заказчика;
- наименование изделий;
- цвет защитно-декоративного покрытия;
- количество кв.м. изделий в пакете;
- массу и габаритные размеры пакета;
- номер пакета в партии;
- обозначение настоящих ТУ;
1.5 Упаковка
1.5.1 Упаковка должна быть произведена по схеме упаковки профилей, разработанной на предприятии-изготовителе и утвержденной в установленном порядке. Упаковка должна обеспечивать сохранность профилей и защитно-декоративного покрытия от механических повреждений и попадания атмосферных осадков. Элементы крепления без защитно-декоративного покрытия допускается не укрывать пленкой.
1.5.2 Масса пакета не должна превышать:
- комплектующих и элементов крепления - 80 кг;
- профилей - 1,5 тн.
Допускается формирование пакета более 1,5 т по согласованию между изготовителем и потребителем.
2.1. Профили, комплектующие изделия и элементы крепления являются нетоксичным и негорючим материалом в соответствии с ГОСТ 12.1.044.
2.2 Безопасность производственных процессов должна соответствовать требованиям ГОСТ 12.3.002.
2.3 Производственный контроль за соблюдением санитарных правил и выполнением санитарно-противоэпидемических (профилактических) мероприятий проводится в соответствии с требованиями санитарных правил СП 1.1.1058.
2.4 Условия производства, упаковки, транспортирования и хранения профилей, комплектующих изделий и элементов крепления не должны оказывать вредного воздействия на человека.
3.1. При изготовлении, монтаже и эксплуатации изделий по настоящим техническим условиям вредные выбросы в атмосферу отсутствуют.
3.2. Вредные производственные стоки отсутствуют.
3.3. Отходы производства утилизируются, как металлический лом.
4.1 Приемку профилей, комплектующих изделий и элементов крепления производят партиями. Партией следует считать изделия одного типоразмера, изготовленные из одного вида заготовки, сопровождаемые одним документом о качестве.
4.2 Все изделия проверяют по внешнему виду. Приемку партии по внешнему виду проводят по результатам технологического контроля в процессе производства.
4.3 Для контроля показателей качества изделий на соответствие требованиям настоящих технических условий отбирают по одному изделию из каждой пачки одной партии.
4.4. Партию считают принятой, если показатели качества изделий соответствуют требованиям настоящих ТУ.
4.5. При получении неудовлетворительных результатов контроля хотя бы по одному из показателей качества, по нему проводят повторный контроль на удвоенном числе образцов, отобранных из этой же партии. Если при повторной проверке окажется хотя бы одно изделие, не удовлетворяющий требованиям настоящих ТУ, то всю партию подвергают поштучной приемке.
4.6 Каждая партия отгружаемой продукции должна сопровождаться документом о качестве, содержащим:
- наименование и (или) товарный знак предприятия-изготовителя;
- наименование потребителя;
- номер заказа;
- наименование и условное обозначение изделий;
- наименование и количество крепежных изделий (при заказе);
- дату изготовления;
- наименование материала заготовки;
- вид и цвет защитно-декоративного покрытия;
- количество изделий в партии;
- теоретическая масса;
- штамп контроля качества;
- обозначение настоящих технических условий.
5.1 Марка, свойства, толщина проката, а также качество защитно-декоративного покрытия исходной заготовки должны быть удостоверены документом о качестве предприятия-изготовителя заготовки.
5.2 Качество поверхностей профилей, комплектующих изделий и элементов крепления определяется визуально, без применения увеличительных приборов.
5.3 Комплектность проверяют в соответствии со спецификацией заказчика. Маркировку и упаковку проверяют путем осмотра пакетов изделий.
5.4 Методы измерений отклонения формы профилей, комплектующих изделий и элементов крепления определяют по ГОСТ 26877.
5.5 Допускается использовать другие средства измерения, обеспечивающими необходимую точность измерения.
5.6 Качество резки проверяют внешним осмотром.
5.7 Упаковку и маркировку профилей проверяют внешним осмотром на соответствие требованием настоящих ТУ.
6.1 Изделия в упаковке перевозят транспортом всех видов в соответствии с правилами перевозок, действующими на транспорте данного вида.
6.2 Пакеты при транспортировании и хранении должны быть уложены на деревянные или из другого материала две продольные подкладки одинаковой толщины не менее 50 мм, шириной не менее 150 мм и длиной не менее габаритного размера пакета.
Пакеты при транспортировании должны быть закреплены и надежно предохранены от перемещения.
6.3 При транспортировании и хранении пакеты должны быть размещены в один ярус. Допускается размещение транспортируемых и хранимых пакетов в два при условии, что нагрузка на 1 м2 нижнего пакета, не должна превышать 250 кг/м2. Нагрузка от верхнего пакета должна передаваться через обвязку усиленной упаковки нижележащего пакета.
6.4 Транспортирование профилей в части воздействия климатических факторов внешней среды - по условиям 5, хранение по условиям 3 ГОСТ 15150.
6.5 Максимальный срок хранения профилей и комплектующих изделий к ним с полимерным покрытием в заводской упаковке у потребителя не должен превышать 45 дней с момента отгрузки изготовителем.
7.1 Не допускается крепление, стыковку и резку изделий производить методом сварки и применять газопламенные резаки. Не допускается резать абразивными кругами, образующими искры.
7.2 Удары по изделиям при монтаже, установке, креплении и заделке стыков не допускаются.
7.3 Изделия подлежат эксплуатации в условиях с неагрессивной и слабоагрессивной степенью воздействия среды по СНиП 2.03.11.
8.1 Изготовитель гарантирует соответствие изделий требованиям настоящих технических условий при соблюдении потребителем правил транспортирования, хранения и эксплуатации.
ССЫЛОЧНЫЕ НОРМАТИВНЫЕ ДОКУМЕНТЫ
|
Обозначение НТД на которую дана ссылка |
Номер пункта, в котором имеется ссылка |
|
СП 1.1.1058-2001 |
|
|
СТО ММК 376-2005 |
Лист изъят
Профили

1. √ - Окрашенная поверхность
2. * - Размер для справок
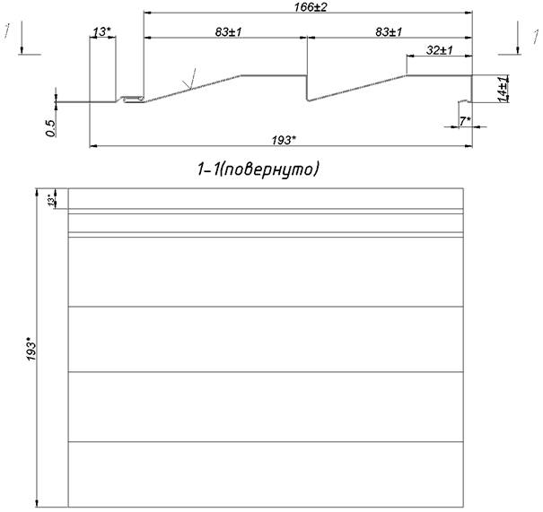
Рисунок А.2 - Металлосайдинг 3 (МС-3)
Таблица А.2
|
Обозначение |
t, мм |
Хс см |
Yc см |
Аф см2 |
Iх см4 |
Iy см4 |
Wx см3 |
Wy см3 |
Масса, кг/м.п. |
|
МС-3 |
0,5 |
10,1 |
0,73 |
1,30 |
0,278 |
53,875 |
0,381 |
5,308 |
0,981 |
Профили

1. √- Окрашенная поверхность
2. * - Размер для справок
Рисунок A3 - Панель фасадная 1А (ПФ1А)
Таблица A.3
|
Обозначение |
t, мм |
Хс см |
Yc см |
Аф см2 |
Iх см4 |
Iy см4 |
Wx см3 |
Wy см3 |
Масса, кг/м.п. |
|
ПФ-1А |
0,5 |
10,4 |
1,04 |
1,29 |
0,374 |
53,93 |
0,36 |
4,957 |
0,981 |
|
0,7 |
10,4 |
1,04 |
1,29 |
0,525 |
75,67 |
0,505 |
6,955 |
1,37 |
Профили

1. √ - Окрашенная поверхность
2. * - Размер для справок
Рисунок А.4 - Панель фасадная 2А (ПФ2А)
Таблица А.4
|
Обозначение |
t, мм |
Хс см |
Yc см |
Аф см2 |
Iх см4 |
Iy см4 |
Wx см3 |
Wy см3 |
Масса, кг/м.п. |
|
ПФ-2А |
0,5 |
10,4 |
1,03 |
1,28 |
0,351 |
53,148 |
0,34 |
5,133 |
0,981 |
|
0,7 |
10,4 |
1,03 |
1,79 |
0,491 |
74,32 |
0,48 |
7,17 |
1,37 |

1. \/ - Окрашенная поверхность
2. * - Размер для справок
Рисунок А.5 - Панель фасадная 3А (ПФ3А)
Таблица А.5
|
Обозначение |
t, мм |
Хс см |
Yc см |
Аф см2 |
Iх см4 |
Iy см4 |
Wx см3 |
Wy см3 |
Масса, кг/м.п. |
|
ПФ-3А |
0,5 |
10,4 |
1,02 |
1,29 |
0,363 |
53,93 |
0,354 |
5,195 |
0,981 |
|
0,7 |
10,4 |
1,04 |
1,29 |
0,525 |
75,67 |
0,505 |
6,955 |
1,37 |
Профили

1. √ - Окрашенная поверхность
2. * - Размер для справок
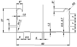
Рисунок А.6 - Металлосайдинг (МС)
Таблица А.6
|
Обозначение |
t, мм |
Хс см |
Yc см |
Аф см2 |
Iх см4 |
Iy см4 |
Wx см3 |
Wy см3 |
Масса, кг/м.п. |
|
МС |
0,5 |
14,3 |
0,8 |
1,52 |
0,43 |
95,6 |
0,53 |
6,7 |
1,282 |

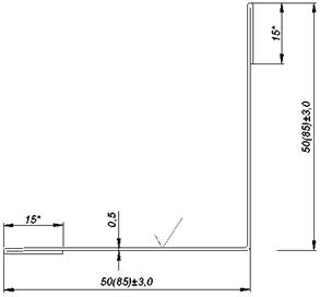
Рисунок Б.1 - Угол наружный (УСНс)

1. √- Окрашенная поверхность.
2. * - Размер для справок.
Рисунок Б.2 - Угол внутренний (УСВс)
Таблица Б.1
|
Обозначение |
t, мм |
Длина стандартная, м |
Площадь сечения А, см2 |
Масса 1 п.м., кг |
Ширина заготовки, мм |
|
УСНс |
0,5 |
3 |
1,57 |
1,228 |
313 |
|
УСВс |
0,5 |
3 |
1,25 |
0,981 |
250 |
Комплектующие изделия

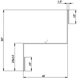
Рисунок Б.3 - Уголок наружный (УНc)

1. √ - Окрашенная поверхность.
2. * - Размер для справок.
Рисунок Б.4 - Угол внутренний (УВс)
Таблица Б.2
|
Обозначение |
t, мм |
Длина стандартная, м |
Площадь сечения А, см2 |
Масса 1 п.м., кг |
Ширина заготовки, мм |
|
УВс 50 |
0,5 |
3 |
0,63 |
0,491 |
125 |
|
УВс 85 |
0,5 |
3 |
0,98 |
0,765 |
195 |
|
УНс 50 |
0,5 |
3 |
0,63 |
0,491 |
125 |
|
УНс 85 |
0,5 |
3 |
0,98 |
0,765 |
195 |
Комплектующие изделия

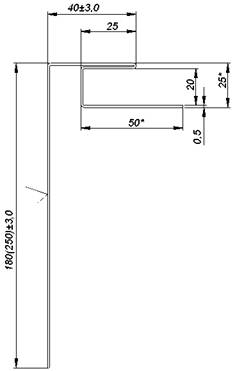
Рисунок Б.5 - Отлив верхний (ОВс)

1. √- Окрашенная поверхность.
2. * - Размер для справок.
Рисунок Б.6 - Нащельник (Нс)
Таблица Б.3
|
Обозначение |
t, мм |
Длина стандартная, м |
Площадь сечения А, см2 |
Масса 1 п.м., кг |
Ширина заготовки, мм |
|
ОВс |
0,5 |
3 |
0,625 |
0,491 |
125 |
|
Нс |
0,5 |
3 |
1,25 |
0,981 |
250 |
|
|
|
|
1. √- Окрашенная поверхность. 2. * - Размер для справок. |
|
|
Рисунок Б.7 - Аквилон (Акс) |
Рисунок Б.8 - Наличник (НЛс) |
Таблица Б.4
|
Обозначение |
t, мм |
Длина стандартная, м |
Площадь сечения А, см2 |
Масса 1 п.м., кг |
Ширина заготовки, мм |
|
Акс |
0,5 |
3 |
0,78 |
0,612 |
156 |
|
НЛс |
0,5 |
3 |
0,78 |
0,612 |
156 |
Комплектующие изделия

Рисунок Б.9 - Откосная планка (ОПс)

1. √- Окрашенная поверхность.
2. * - Размер для справок.
Рисунок Б.10 - Водоотлив (Вс)
Таблица Б.5
|
Обозначение |
t, мм |
Длина стандартная, м |
Площадь сечения А, см2 |
Масса 1 п.м., кг |
Ширина заготовки, мм |
|
ОПс 180 |
0,5 |
3 |
1,57 |
1,228 |
313 |
|
ОПс 250 |
0,5 |
3 |
1,88 |
1,472 |
375 |
|
Вс 180 |
0,5 |
3 |
1,25 |
0,981 |
250 |
|
Вс 250 |
0,5 |
3 |
1,60 |
1,256 |
320 |
|
|
|
|
Рисунок Б.11 - Планка начальная (НПс) |
Рисунок Б.12 - Планка крепежная (КПс) |
1. √/ - Окрашенная поверхность
2. * - Размер для справок.
Таблица Б.6
|
Обозначение |
t, мм |
Длина стандартная, м |
Площадь сечения А, см2 |
Масса 1 п.м., кг |
Ширина заготовки, мм |
|
НПс |
0,5 |
3 |
0,42 |
0,326 |
83 |
|
КПс |
0,5 |
3 |
0,60 |
0,471 |
120 |
Развертка

Рисунок В.1 - Кронштейн выравнивающий П-образный 125 (КВП125)
Таблица В.1
|
Обозначение |
t, мм |
Хс, см |
Yс, см |
Аф, см2 |
Iх, см4 |
Iу, см4 |
Wx, см3 |
Wy, см3 |
Масса, кг |
|
КВП 125 |
1,0 |
0,05 |
2,0 |
0,31 |
0,9754 |
0,0005 |
0,488 |
0,010 |
0,098 |
Элементы крепления

Рисунок В.2 - Кронштейн выравнивающий П-образный 200 (КВП200)
Таблица В.2
|
Обозначение |
t, мм |
Хс, см |
Yс, см |
Аф, см2 |
Iх, см4 |
Iу, см4 |
Wx, см3 |
Wy, см3 |
Масса, кг |
|
|
КВП 200 |
1,0 |
0,05 |
2,0 |
0,28 |
0,9419 |
0,0005 |
0,471 |
0,009 |
0,150 |
|
|
Элементы крепления
|
||||||||||
|
Рисунок В.3.1 - Кронштейн выравнивающий П-образный 250 (КВП 250) |
Рисунок В.3.2 - Шайба усиления (Ш 50) |
|||||||||
Таблица В.3
|
Обозначение |
t, мм |
Хс, см |
Yс, см |
Аф, см2 |
Iх, см4 |
Iу, см4 |
Wx, см3 |
Wy, см3 |
Масса, кг |
|
КВП 250 |
1,0 |
0,05 |
2,5 |
0,50 |
2,0833 |
0,0008 |
0,833 |
0,017 |
0,223 |
|
Ш 50 |
2,0 |
1,00 |
0,04 |
Элементы крепления


1 * - Размер для справок.
Рисунок В.4 - Кронштейн выравнивающий Г-образный (КВГ)
Таблица В.4
|
Обозначение |
t, мм |
Хс, см |
Yс, см |
Аф, см2 |
Iх, см4 |
Iу, см4 |
Wx, см3 |
Wy, см3 |
Масса, кг |
|
КВГ |
1,0 |
0,05 |
2,50 |
0,50 |
1,0417 |
0,0004 |
0,417 |
0,008 |
0,091 |
|
1,5 |
0,08 |
2,50 |
0,75 |
1,5625 |
0,0014 |
0,625 |
0,019 |
0,137 |
Элементы крепления

Рисунок В.5 - Профиль направляющий П-образный 60×17 (НПП 60×17)

1. * - Размер для справок.
Рисунок В.6 - Профиль направляющий П-образный 60×27 (НПП 60×27)
Таблица В.5
|
Обозначение |
t, мм |
Хс, см |
Yс, см |
Аф, см2 |
Iх, см4 |
Iу, см4 |
Wx, см3 |
Wy, см3 |
Масса 1 п.м, кг |
|
НПП 60×17 |
0,5 |
3,0 |
0,44 |
0,53 |
0,16 |
2,75 |
0,13 |
0,92 |
0,41 |
|
0,7 |
3,0 |
0,46 |
0,75 |
0,23 |
3,87 |
0,18 |
1,29 |
0,62 |
|
|
НПП 60×27 |
0,5 |
3,00 |
0,96 |
0,65 |
0,76 |
3,86 |
0,44 |
1,29 |
0,49 |
|
0,7 |
3,0 |
0,95 |
0,91 |
1,05 |
5,35 |
0,60 |
1,78 |
0,68 |
|
|
1,0 |
3,0 |
0,95 |
1,29 |
1,47 |
7,51 |
0,84 |
2,50 |
0,97 |
Элементы крепления

Рисунок В.7 - Профиль шляпный 20×75×20 (НПШ 20)

Рисунок В.7 - Профиль Г-образный 45×55 (НПГ 45×55)
Таблица В.6
|
Обозначение |
t, мм |
Хс, см |
Yс, см |
Аф, см2 |
Iх, см4 |
Iу, см4 |
Wx, см3 |
Wy, см3 |
Масса 1 п.м, кг |
|
НПШ 20-75 |
0,7 |
6,0 |
1,23 |
1,06 |
0,76 |
13,38 |
0,62 |
2,23 |
0,83 |
|
НПГ 45×55 |
0,7 |
3,46 |
3,95 |
0,69 |
2,23 |
1,37 |
0,56 |
0,40 |
0,55 |
|
1,0 |
3,44 |
3,94 |
0,98 |
3,16 |
1,95 |
0,80 |
0,56 |
0,79 |
Форма 3
|
Изм. |
Номера листов (страниц) |
Всего листов. докум. |
№ документа |
Входящий номер сопроводительного документа и дата |
Подпись |
Дата |
|||
|
Измененных |
Замененных |
новых |
Аннулированных |
||||||
|
002 |
18 - 29 |
17, 30 |
30 |
ТУ 5285-003-42481025-2006 |
Извещение № 42481025.1.008.003-08 от 09.06.08 |
Чигинцева |
10.06.08 |
||
|
003 |
4 |
4 |
- |
- |
30 |
ТУ 5285-003-42481025-2006 |
Извещение № 42481025.1.110 ТУ 003.003-10 от 29.01.10 |
Чигинцева |
29.01.10 |
|
004 |
1 |
1 |
- |
- |
30 |
ТУ 5285-003-42481025-2006 |
Извещение № 42481025.1.110 ТУ 003.004-10 от 26.05.10 |
Чигинцева |
26.05.10 |
|
005 |
2 |
2 |
- |
Лист 12 |
29 |
ТУ 5285-003-42481025-2006 |
Извещение № 42481025.1.110 ТУ 003.005-11 от 16.02.11 |
Чигинцева |
16.02.11 |
|
|
|
|
|
|
|
|
|
|
|
|
|
|
|
|
|
|
|
|
|
|
|
|
|
|
|
|
|
|
|
|
|
|
|
|
|
|
|
|
|
|
|
|
|
|
|
|
|
|
|
|
|
|
|
|
|
|
|
|
|
|
|
|
|
|
|
|
|
|
|
|
|
|
|
|
|
СОДЕРЖАНИЕ
|
3. Требования охраны окружающей среды.. 6 6. Транспортирование и хранение. 7 7. Указания по эксплуатации. 7 |