МИНИСТЕРСТВО ТРАНСПОРТНОГО СТРОИТЕЛЬСТВА

ГОСУДАРСТВЕННЫЙ ВСЕСОЮЗНЫЙ ДОРОЖНЫЙ
НАУЧНО-ИССЛЕДОВАТЕЛЬСКИЙ ИНСТИТУТ
(СОЮЗДОРНИИ)

МЕТОДИЧЕСКИЕ РЕКОМЕНДАЦИИ

ПО ПРИМЕНЕНИЮ КАТИОНАКТИВНОГО
ПОВЕРХНОСТНО-АКТИВНОГО ВЕЩЕСТВА БП-3
ПРИ УСТРОЙСТВЕ
АСФАЛЬТОБЕТОННЫХ ПОКРЫТИЙ

Одобрены Минтрансстроем

Москва 1977

Катионактивное вещество БП-3 рекомендуется применять для повышения сцепления битумов с минеральными материалами как кислых, так и основных пород.

Введение БП-3 в битум (0,5 - 1,5 %) или на поверхность минеральных материалов (0,05 - 0,1 %) дает возможность значительно улучшить сцепление битумов с минеральными материалами, что приводит к повышению водо- и морозостойкости дорожных покрытий и, как следствие, - к увеличению их срока службы.

Кроме того, применение БП-3 позволяет снизить расход битума, повысить производительность АБЗ; производить работы при неблагоприятных погодных условиях (особенно весной и осенью), удлинить строительный сезон; повысить производительность работ по устройству покрытий.

«Методические рекомендации» составлены на основе лабораторных исследований и опытного строительства, проведенных в 1974 - 1976 гг.

Предисловие

Один из путей повышения долговечности дорожных асфальтобетонных покрытий - улучшение сцепления битума с поверхностью минерального материала, что способствует увеличению водо- и морозостойкости асфальтобетона.

Эффективным средством для достижения этих целей служат поверхностно-активные вещества (ПАВ), небольшие добавки которых, введенные в битум или нанесенные на поверхность минеральных материалов в процессе приготовления асфальтобетонных смесей, резко изменяют природу поверхностей и условия взаимодействия на границе «битум - минеральный материал».

Наиболее ярко эти способности ПАВ проявляются в случае использования жидких битумов, которые содержат значительно меньшее количество полярных асфальтенов и асфальтогеновых кислот, чем вязкие битумы, и вследствие этого часто не могут обеспечить устойчивого сцепления даже с поверхностью основных пород. Кроме того, жидкие битумы могут применяться для обработки влажных минеральных материалов, что значительно снижает прочность сцепления, поэтому введение ПАВ при изготовлении жидких битумов обязательно.

(Опечатка)

Проведенные исследования и многолетний опыт применения ПАВ в дорожном строительстве СССР и за рубежом показали несомненное преимущество катионактивных ПАВ типа аминов и диаминов по сравнению с другими ПАВ.

Катионактивные ПАВ типа аминов и диаминов улучшают сцепление битумов с минеральными материалами как кислых, так и основных пород, и повышают термостойкость битумов.

В 1974 г. на Бердянском опытном нефтемаслозаводе впервые специально для дорожного строительства был налажен промышленный выпуск нового катионактивного поверхностно-активного вещества БП-3, разработанного в БашНИИ НП на основе полиэтиленполиамина и синтетических жирных кислот.

В 1974 - 1976 гг. в Союздорнии детально исследовано влияние БП-3 на свойства битумов и асфальтобетонных смесей и осуществлено его внедрение на объектах Главдорстроя Минтрансстроя, расположенных в различных климатических зонах страны (Уфимдорстрой, Каздорстрой, Севкавдорстрой, Камдорстрой, УС автомобильной дороги Москва - Рига).

Анализ лабораторных исследований и результаты, полученные при строительстве асфальтобетонных покрытий с использованием БП-3, позволили разработать «Методические рекомендации по применению катионактивного поверхностно-активного вещества БП-3 при устройстве асфальтобетонных покрытий».

«Методические рекомендации» составили Д.С. Шемонаева, Н.Б. Перлова (Союздорнии) и Г.А. Челухина (Ленинградский филиал Союздорнии).

1. Общие положения

1.1. Долговечность дорожных асфальтобетонных покрытий в значительной степени определяется качеством битума, который должен обладать комплексом необходимых структурно-механических свойств, обеспечивающих прочное сцепление с поверхностью минеральных материалов.

1.2. Прочность и устойчивость сцепления битума с поверхностью минеральных материалов зависят от природы битума и химико-минералогического состава минеральных материалов.

1.3. Битумы при наличии в них достаточного количества поверхностно-активных соединений (прежде всего асфальтогеновых кислот, их ангидридов и полярных асфальтенов) обеспечивают хорошее сцепление с сухой поверхностью минеральных материалов карбонатных, ультраосновных и основных пород (известняки, доломиты, базальты и т.п.), содержащих более 50 % окислов тяжелых и щелочно-земельных металлов.

Битумы не обеспечивают прочного сцепления с поверхностью кислых минеральных материалов, а также с влажными минеральными материалами любой природы.

1.4. Применение катион- и анионактивных поверхностно-активных веществ (ПАВ) позволяет значительно улучшить сцепление битума с поверхностью минеральных материалов.

1.5. Анионактивные ПАВ повышают сцепление битума с минеральными материалами только основных пород.

1.6. Катионактивные ПАВ типа аминов и диаминов повышают сцепление битума с поверхностью сухих и влажных минеральных материалов как основных, так и кислых пород.

1.7. Поверхностно-активное вещество БП-3 относится к классу катионактивных веществ. Его получают путем конденсации полиэтиленполиамина (ТУ-6-02-594-70) и синтетических жирных кислот С21 - С26 с кислотным числом в пределах 150 - 170 мг КОН/г. Удельный вес БП-3 при 80 °С - 0,913 г/см3, температура вспышки в открытом тигле более 180 °С; растворяется в спиртобензоле, этиловом и изопропиловом спиртах и нефтепродуктах, не растворяется в воде.

1.8. Введение небольших количеств БП-3 в битум позволяет:

обеспечить полное сцепление поверхности сухих и влажных минеральных материалов кислых и основных пород с жидкими и вязкими битумами;

снизить температуру приготовления горячих асфальтобетонных смесей и замедлить процесс старения битума;

уменьшить расход битума;

повысить производительность АБЗ и машин, используемых при устройстве дорожных покрытий;

повысить водо- и морозостойкость асфальтобетонных смесей и увеличить долговечность асфальтобетонных покрытий.

1.9. Наиболее эффективно применение БП-3 в случае использования для приготовления асфальтобетонных смесей жидких битумов и кислых минеральных материалов, а также при производстве строительных работ в неблагоприятных погодных условиях (особенно весной и осенью).

2. Материалы. Технология введения БП-3 в процессе приготовления асфальтобетонных смесей

2.1. БП-3 представляет собой воскообразный продукт от светло- до темно-коричневого цвета. Поставляется дорожно-строительным организациям Бердянским опытным нефтемаслозаводом в металлических бочках емкостью 200 л или в цистернах емкостью 60 т.

2.2. БП-3 должен удовлетворять требованиям ТУ 382-01-170-74 «Присадка адгезионная БП-3», приведенным в табл. 1.

Таблица 1

Показатели

Нормы

Методы испытаний

Сцепляемость с песком битума, содержащего 0,5 % БП-3,

Не хуже контрольного образца № 1

По ГОСТ 11508-74, метод «Б»

Кислотное число, мг КОН, на 1 г БП-3, не более

10

По ГОСТ 5985-59 с дополнением по п. 2.2 ТУ 382-01-170-74

Температура каплепадения, °С, не выше

75

По ГОСТ 6793-53

Содержание воды, %, не более

2,0

По ГОСТ 2477-65

2.3. В условиях асфальтобетонных заводов БП-3 можно вводить в битум или наносить на поверхность минеральных материалов.

Если в составе БП-3 имеется аммиак (о чем свидетельствует резкий запах), то его необходимо удалить, прогрев БП-3 при температуре 80 °С в течение 2 ч.

2.4. Подготовленное и отдозированное (весовым или объемным способом) БП-3 при температуре 80 °С вводят либо в котел битумоплавильных установок, либо в дозаторный бачок асфальтосмесительной установки.

При этом емкости рекомендуется заполнять битумом на 0,7 объема.

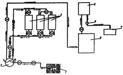
На рис. 1 приведена схема введения БП-3 в битум и подачи в цех для приготовления асфальтобетонной смеси, применяемая на асфальтобетонном заводе № 2 г. Ленинграда.

На рис. 2 показана деталь схемы - приемная емкость для разогрева бочек с БП-3 и ее дозировки (1). Эту емкость устанавливают в пристройке к битумоплавильному цеху. Она представляет собой железный бак (1), в который вставляют ящик меньшего размера - дозатор (3) , объем которого равен 1/6 общего объема, длина 1/3 общей длины, ширина - 1/2 ширины емкости, а высота - высоте общей емкости. В свободное пространство емкости ставят 5 бочек стандартного размера (800×560) (2). Всю емкость закрывают крышкой, разделенной на секции для извлечения каждой бочки из емкости. Емкость имеет трубопроводы для подачи пара (12) и слива воды (7,8). Бочки и дозатор разогревают водой, нагреваемой паром от местной котельной установки до температуры 70 - 80 °С.

Бочки с БП-3 помещают в емкость с помощью подъемного механизма с захватом, имеющего дистанционное управление (11).

Через 6 - 8 ч бочку с расплавленной присадкой извлекают из емкости с помощью того же приспособления, устанавливают на рольганг (9) и, постепенно наклоняя бочку, содержимое переливают в дозатор через загрузочное отверстие (10), снабженное решеткой.

Объемное дозирование БП-3 осуществляют дозатором поплавкового типа (4).

Пары воды из емкости с БП-3 удаляют двумя вентиляционными трубами (5).

Отмеренное количество БП-3 насосом подают в битумные котлы, где происходит перемешивание рециркуляцией. Далее смесь битума с присадкой поступает в рабочий котел, расходную емкость и через дозатор - в смеситель для получения асфальтобетонной смеси.

Рис. 1. Технологическая схема введения БП-3 в битум
и подачи в цex для приготовления асфальтобетонной смеси:

1 - приемная емкость для разогрева бочек и дозировки БП-3; 2 - битумный насос;
3 - битумные котлы емкостью по 15 т; 4 - рабочий котел; 5 - расходная емкость;
6 - дозатор; 7 - смеситель
 - поступление БП-3;  - процесс перемешивания;
 - поступление битума с БП-3 в цех;  - поступление битума

Pиc. 2. Приемная емкость для разогрева
бочек и дозировки БП-3:

1 - приемная емкость; 2 - бочка; 3 - дозатор;
4 - поплавок; 5 - вентиляционные трубы;
6 - патрубок для слива БП-3;
7 - патрубок для удаления излишка воды;
8 - патрубок для слива воды;
9 - рольганг; 10 - загрузочное отверстие дозатора;
11 - захват и подъемное устройство;
12 - патрубок для подвода пара

2.5. При введении БП-3 температура вязких битумов должна быть 100 - 130 °С, жидких битумов 70 - 100 °С.

2.6. В случае приготовления жидких битумов на АБЗ нагретое до 80 °С ПАВ подается в емкость, заполненную на 0,7 объема вязким битумом, имеющим температуру 80 - 110 °С (в зависимости от класса изготовляемого жидкого битума), одновременно с разжижителем. Перемешивать необходимо до получения однородной массы циркуляцией или «острым» паром, подаваемым под давлением.

2.7. БП-3 с битумом в рабочем котле можно смешивать с помощью битумного насоса.

В дозаторном бачке для смешения необходимо предусмотреть лопастную мешалку.

2.8. Время перемешивания БП-3 с битумом в рабочем котле должно быть 25 - 30 мин, в дозаторном бачке - 1 - 2 мин.

2.9. Битум с БП-3 при рабочих температурах разрешается выдерживать в котле в течение одной рабочей смены.

2.10. БП-3 можно наносить на минеральный материал, вводя его непосредственно в мешалку асфальто-смесительной установки через систему распределительных кранов и труб (гребенок) с соплами-разбрызгивателями принудительно под давлением (Pmax = 5 кгс/см2). При этом подготовленное по п. 2.3 и отдозированное БП-3 предварительно смешивают с пластификатором (в соотношении 1:3), в качестве которого лучше всего использовать применяемый битум (введенный при этом битум входит в общее количество битума, необходимого для приготовления смеси).

3. Особенности технологии приготовления асфальтобетонной смеси с применением БП-3

3.1. Приготовление, укладку и уплотнение асфальтобетонных смесей с применением БП-3 осуществляют в соответствии с разделами «Инструкции по строительству дорожных асфальтобетонных покрытий» ВСН 93-73, касающимися использования ПАВ.

3.2. Асфальтобетонные смеси с БП-3, подобранные в соответствии с ВСН 93-73, должны удовлетворять требованиям ГОСТ 9128-76 для горячих, теплых и холодных асфальтобетонных смесей.

3.3. Особое внимание следует уделять назначению оптимальной концентрации БП-3, так как превышение ее может привести к отрицательному эффекту. Рекомендуемые концентрации БП-3: 0,5 - 1,5 % к массе битума или 0,05 - 0,1 % к массе минерального материала.

3.4. Оптимальную концентрацию БП-3 необходимо подбирать в лаборатории в каждом конкретном случае с учетом природы и свойств применяемых минеральных материалов и битумов.

3.5. Оптимальная концентрация БП-3 при использовании в составе смеси активированного минерального порошка может быть ниже рекомендуемой (п. 3.3).

Таблица 2

Горячие и теплые смеси

Продолжительность перемешивания смесей в лопастных мешалках принудительного действия, сек

«сухого»

«мокрого»

Песчаные

15

45 - 60

Мелко- и среднезернистые

15

30 - 45

Крупнозернистые

-

20 - 30

Примечание. При применении ПАВ, а также активированного минерального порошка продолжительность «мокрого» перемешивания можно уменьшить на 15 - 30 %. Время приготовления холодных смесей должно в 1,3 - 1,5 раза превышать время приготовления аналогичных горячих смесей.

Таблица 3

Смеси

Марка битума

Температура нагрева битума, °C

Температура смесей, °С

при выпуске из смесителя

в асфальтоукладчике при укладке в конструктивный слой, не ниже

Горячие

БНД-90/130

110 - 130

120 - 140

100

БНД-60/90

БНД-40/60

БН-90/130

БН-60/90

Теплые

БНД-200/300

90 - 110

100 - 120

80

БНД-130/200

БН-200/300

БН-130/200

БГ-70/130

70 - 80

80 - 90

70

СГ-130/200

80 - 100

80 - 100

Холодные

СГ-70/130

80 - 100

80 - 100

+5 °С весной,

МГ-70/130

80 - 100

90 - 110

+10 °С осенью

3.6. Критерием оценки оптимальной концентрации БП-3 служит весь комплекс физико-механических свойств асфальтобетона, в первую очередь, - коэффициент длительной водостойкости и предел прочности при сжатии при 50 °С, которые должны удовлетворять требованиям ГОСТ 9128-76 к горячему, теплому и холодному асфальтобетону.

3.7. В случае приготовления асфальтобетонных смесей с БП-3 в асфальтобетонных смесителях, оборудованных лопастными мешалками с принудительным перемешиванием (типа Д-325 и Д-597), необходимо выдерживать режимы перемешивания, указанные в СНиП III-Д.5-73 (табл. 2).

3.8. В табл. 3 приведены температуры нагрева битумов с БП-3, асфальтобетонных смесей при выпуске из смесителя и при укладке их в покрытие в зависимости от марки битума.

4. Особенности технического контроля

4.1. При устройстве асфальтобетонных покрытий из смесей с применением БП-3 необходимо контролировать:

качество БП-3;

качество битума с добавкой БП-3;

качество минеральных материалов;

оптимальное количество вводимого БП-3;

качество асфальтобетонной смеси с БП-3;

технологический процесс приготовления и укладки смеси.

4.2. Контроль осуществляют следующим образом:

БП-3 принимают по паспортным данным завода-поставщика и оценивают его эффективность в соответствии с методикой, приведенной в приложении 1;

качество битумов проверяют в соответствии с требованиями ГОСТ 22245-76 «Битумы нефтяные дорожные вязкие» и ГОСТ 11955-74 «Битумы нефтяные дорожные жидкие»;

качество используемых минеральных материалов и качество готовой асфальтобетонной смеси проверяют в соответствии с требованиями ГОСТ 9128-76 «Смеси асфальтобетонные дорожные, аэродромные и асфальтобетон».

4.3. Процесс приготовления асфальтобетонных смесей с применением БП-3 контролируют в соответствии с требованиями ВСН 93-73 и пп. 3.3 - 3.8 настоящих «Методических рекомендаций».

4.4. В процессе приготовления асфальтобетонной смеси контролируют дозировку используемых материалов и в первую очередь БП-3 (точность дозирования должна составлять ±15 %), температуру нагрева минеральных материалов, температуру битума с БП-3 в котлах через 2 - 3 ч и температуру выпускаемой смеси. Качество готовой асфальтобетонной смеси проверяют в лаборатории, для чего отбирают одну пробу в смену из каждого смесителя.

4.5 При устройстве покрытия проверяют температуру асфальтобетонной смеси, толщину уложенного слоя и качество уплотнения.

5. Транспортирование и хранение БП-3

5.1. БП-3 транспортируют в обогреваемых железнодорожных цистернах емкостью 60 т или в металлических бочках емкостью 200 л.

5.2. Хранят БП-3 в герметично закрытых емкостях без доступа воздуха в соответствии с требованиями ГОСТ 1510-70.

5.3. Гарантийный срок хранения БП-3 - 1 год.

6. Правила техники безопасности при работе с БП-3

6.1. При использовании БП-3 необходимо руководствоваться «Правилами техники безопасности при строительстве, ремонте и содержании автомобильных дорог» (М., «Транспорт», 1969) и «Инструкцией по использованию поверхностно-активных веществ при строительстве дорожных покрытий с применением битумов» ВСН 59-68.

6.2. БП-3 - малолетучее горючее вещество, невзрывоопасно, с температурой вспышки выше 180 °С.

6.3. Все противопожарные мероприятия, осуществляемые на АБЗ, подлежат согласованию в местном отделении Госпожнадзора.

6.4. В случае загорания БП-3 необходимо тушить песком, кошмой, огнетушителем.

6.5. БП-3 малотоксично, не вызывает отравления и раздражения верхних дыхательных путей.

Длительный контакт с БП-3 может вызвать заболевание кожи - циклически текущий контактный дерматит. Поэтому следует ограничивать контакт с БП-3 рабочих, предрасположенных к аллергическим заболеваниям.

6.6. При производстве работ с использованием БП-3 рекомендуется защищать кожу, применяя «биологические перчатки», мазь Салисского, пасту «Миколаи» и пасту ИЭР (мыла нейтрального 12 %, технического глицерина 10 %, каолина 40 % и воды 30 %).

При попадании БП-3 на кожу необходимо промыть это место 1 - 2 %-ным раствором уксусной кислоты.

Удалять БП-3 с помощью растворителей запрещается.

6.7. Лица, занятые разогревом БП-3, введением его в смеси и отбором проб, должны быть обеспечены спецодеждой и индивидуальными средствами защиты (согласно типовым отраслевым нормам, утвержденным Государственным комитетом Совета Министров СССР по вопросам труда и заработной платы и Президиумом ВЦСПС).

6.8. При работе с БП-3 в лабораторных условиях необходима герметизация оборудования и вентиляция помещения.

Приложение

Метод определения сцепления битума с минеральной частью асфальтобетонной смеси

От средней пробы асфальтобетонной смеси, приготовленной в лаборатории или на заводе, отвешивают на технических весах две навески по 50 г и помещают одну из них на сетку. Вторую навеску оставляют для последующего сравнения со смесью, прошедшей испытание.

Химический стакан заполняют 15 %-ным раствором поваренной соли в дистиллированной воде примерно на 2/3 объема и устанавливают на электроплитку, песчаную баню или помещают над пламенем газовой горелки.

Сетку с навеской асфальтобетонной смеси опускают в стакан с кипящим раствором поваренной соли таким образом, чтобы слой раствора над сеткой был не менее 30 - 40 мм.

При испытании вязких битумов сетку с испытуемым образцом выдерживают в кипящем растворе в течение 30 мин, а при испытании жидкого битума - в течение 5 мин. Кипение раствора не должно быть бурным. Битум, отделившийся в процессе кипячения от поверхности смеси и всплывший на поверхность, снимают фильтровальной бумагой.

По истечении указанного времени сетку со смесью вынимают из кипящего раствора и помещают в стакан с холодной водой, чтобы охладить и смыть соль, осевшую на ее частичках. Затем смесь помещают на фильтровальную бумагу для испарения воды.

Сцепление оценивают после полного высыхания смеси.

Битум считают выдержавшим испытание на сцепление с минеральной частью асфальтобетонной смеси, если после испытания вся поверхность минеральных материалов покрыта битумом.

Содержание

Предисловие. 1

1. Общие положения. 2

2. Материалы. Технология введения БП-3 в процессе приготовления асфальтобетонных смесей. 3

3. Особенности технологии приготовления асфальтобетонной смеси с применением БП-3. 5

4. Особенности технического контроля. 6

5. Транспортирование и хранение БП-3. 7

6. Правила техники безопасности при работе с БП-3. 7

Приложение. Метод определения сцепления битума с минеральной частью асфальтобетонной смеси. 7