Приказ
Федеральной службы по экологическому, технологическому
и атомному надзору от 23 декабря 2016 г. № 561
"Об
утверждении Руководства по безопасности по взрывозащите горных
выработок угольных шахт, опасных по газу и (или) угольной пыли"
В целях содействия соблюдению требований промышленной безопасности приказываю:
Утвердить прилагаемое Руководство по безопасности по взрывозащите горных выработок угольных шахт, опасных по газу и (или) угольной пыли.
|
Руководитель |
А.В. Алёшин |
Руководство
по безопасности по взрывозащите горных выработок угольных шахт,
опасных по газу и (или) угольной пыли
(утв.
приказом Федеральной службы по экологическому, технологическому
и атомному надзору от 23 декабря 2016 г. № 561)
1. Настоящее Руководство по безопасности по взрывозащите горных выработок угольных шахт, опасных по газу и (или) угольной пыли (далее - Руководство по безопасности) разработано в целях содействия соблюдению требований Федеральных норм и правил в области промышленной безопасности "Правила безопасности в угольных шахтах", утвержденных приказом Федеральной службы по экологическому, технологическому и атомному надзору от 19 ноября 2013 г. № 550.
2. Настоящее Руководство по безопасности содержит рекомендации по взрывозащите горных выработок (далее - ВЗГВ) угольных шахт для обеспечения требований промышленной безопасности при их проектировании, строительстве, капитальном ремонте, реконструкции, техническом перевооружении, эксплуатации, консервации и ликвидации и не является нормативным правовым актом.
Организации, осуществляющие проектирование, строительство, капитальный ремонт, реконструкцию, техническое перевооружение, эксплуатацию, консервацию и ликвидацию угольных шахт могут использовать иные обоснованные способы и методы ВЗГВ, чем те, которые указаны в настоящем Руководстве по безопасности.
3. В Руководстве по безопасности используются термины и их определения, приведенные в приложении № 1 к настоящему Руководству по безопасности.
Условные обозначения, используемые в документации по ВЗГВ, приведены в приложении № 2 к настоящему Руководству по безопасности.
4. Руководство по безопасности содержит рекомендации по:
применению средств ВЗГВ при взрывах пылевоздушных, метановоздушных, пылеметановоздушных смесей и (или) смесей с горючими газами, содержащимися в рудничной атмосфере (далее - взрывоопасных смесей);
техническому, информационному, математическому, программному и организационному обеспечению систем ВЗГВ;
эксплуатации и обслуживанию средств и систем ВЗГВ.
Средства ВЗГВ входят в состав систем контроля и управления средствами ВЗГВ, которые являются составной частью многофункциональной системы безопасности (далее - МФСБ).
5. Системы ВЗГВ в угольных шахтах обеспечивают:
соответствие требованиям в области промышленной безопасности и технического регулирования, стандартов на взрывозащищенное электрооборудование, автоматизированные системы управления и информационные технологии; надежность видов обеспечения систем ВЗГВ; возможность пополнения и обновления средств ВЗГВ;
использование данных от датчиков, контролирующих параметры рудничной атмосферы в горных выработках;
техническую и информационную совместимость с техническими устройствами и системами, входящими в состав МФСБ.
6. В целях осуществления взрывозащиты горных выработок в настоящем Руководстве по безопасности рассматриваются следующие поражающие факторы взрыва:
пламя;
ударно-воздушная волна (далее - УВВ);
разлетающиеся осколки и предметы;
наличие в рудничной атмосфере продуктов взрыва.
7. Средства ВЗГВ устанавливаются в горных выработках угольных шахт для снижения поражающих факторов взрыва до приемлемого уровня.
8. Функциями систем ВЗГВ являются:
снижение поражающих факторов взрыва до приемлемого уровня;
информирование горного диспетчера о состоянии средств и системы ВЗГВ в нормальном и предаварийном режимах работы шахты;
дистанционная подача команд на срабатывание, блокировку срабатывания активных средств ВЗГВ с возможностью контроля и управления, реагирующих на угрозу взрыва;
телеуправление средствами ВЗГВ и телесигнализация их срабатывания;
хранение информации о состоянии средств ВЗГВ в нормальном и предаварийном режимах работы угольной шахты;
информирование горного диспетчера о состоянии средств ВЗГВ при аварийном режиме работы шахты;
хранение и (или) передача информации о параметрах происшедшего взрыва.
Функции систем ВЗГВ реализуются с помощью технических устройств, входящих в ее состав и (или) технических устройств автоматизированных систем (далее - АС), эксплуатируемых в угольных шахтах.
9. В состав систем ВЗГВ входят:
средства ВЗГВ;
линии связи, устройства, обеспечивающие передачу данных от средств ВЗГВ до наземных устройств;
наземные устройства, обеспечивающие сбор, обработку, отображение и хранение информации, получаемой от средств ВЗГВ;
устройства электропитания, обеспечивающие нормальное функционирование технических устройств системы ВЗГВ при отсутствии электроснабжения.
10. Средства ВЗГВ подразделяются:
по принципу срабатывания на:
пассивные, срабатывающие от УВВ (далее - пассивные средства ВЗГВ);
активные, срабатывающие от датчиков давления, температуры, и состава рудничной атмосферы, контролирующих наличие в ней продуктов взрыва, и извещателей пламени (далее - активные средства ВЗГВ, реагирующие на взрыв);
активные, срабатывающие при превышении предаварийных уровней параметров рудничной атмосферы (далее - активные средства ВЗГВ, реагирующие на угрозу взрыва);
комбинированные средства ВЗГВ, использующие сочетания элементов активных и пассивных средств ВЗГВ;
по сохранению способности выполнять функцию по ВЗГВ при повторных взрывах на:
работоспособные при повторных взрывах;
неработоспособные при повторных взрывах;
по реализации функции контроля и управления на:
средства ВЗГВ с функцией контроля и управления;
средства ВЗГВ без функции контроля и управления.
11. Активные средства ВЗГВ, реагирующие на угрозу взрыва, в местах их установки рекомендуется оборудовать устройствами световой и (или) звуковой сигнализации, информирующими об угрозе взрыва и о возможном срабатывании средств ВЗГВ.
Уставка срабатывания по метану световой и (или) звуковой сигнализации настраивается на значение 2,2 % объемной доли.
Для активного средства ВЗГВ, реагирующего на угрозу взрыва, рекомендуется обеспечить:
возможность подачи команды на срабатывание, блокировки срабатывания с места его расположения, а также от горного диспетчера;
автоматическое отключение средства ВЗГВ при нормализации составляющих (параметров) рудничной атмосферы.
12. В местах установки средств ВЗГВ с функцией контроля и управления рекомендуется устанавливать технические средства прямой телефонной и (или) радиосвязи с горным диспетчером.
13. Комбинированные средства ВЗГВ с возможностью контроля и управления рекомендуется устанавливать на расстоянии 10 - 50 м от сопряжений с примыкающими горными выработками в местах, определенных в соответствии с приложением № 3 к настоящему Руководству по безопасности.
В горных выработках выемочных участков, в подготовительных горных выработках, проводимых по углю или по углю и породе, рекомендуется устанавливать активные средства ВЗГВ, реагирующие на взрыв, активные средства ВЗГВ, реагирующие на угрозу взрыва с функцией контроля и управления, пассивные ВЗГВ.
В забоях подготовительных выработок, проводимых по углю или по углю и породе, в коротких очистных забоях, у сопряжений с длинными очистными забоями, на участках горных выработок с размещенным в них электрораспределительными устройствами, в камерах, в горных выработках, имеющих сопряжения с горными выработками выемочных и подготовительных участков, рекомендуется устанавливать активные средства ВЗГВ, реагирующие на взрыв.
В горных выработках, оборудованных магистральными ленточными конвейерами (кроме горных выработок, по которым транспортируется только порода), рекомендуется устанавливать по их протяженности - активные средства ВЗГВ, реагирующие на взрыв, активные средства ВЗГВ, реагирующие на угрозу взрыва, пассивные средства ВЗГВ.
В горных выработках, примыкающих к пожарным участкам, рекомендуется устанавливать активные средства ВЗГВ, реагирующие на взрыв, активные средства ВЗГВ, реагирующие на угрозу взрыва, пассивные средства ВЗГВ. Средства ВЗГВ в этих выработках рекомендуется устанавливать на время выполнения работ по их изоляции или вскрытию. После вскрытия горных выработок, примыкающих к пожарным участкам, средствами ВЗГВ рекомендуется обеспечить взрывозащиту этих выработок до перевода пожара в категорию "потушенный".
В горных выработках, в которых сооружены смесительные камеры, рекомендуется устанавливать активные средства ВЗГВ, реагирующие на взрыв, активные средства ВЗГВ, реагирующие на угрозу взрыва, пассивные средства ВЗГВ.
14. Датчики, входящие в состав активных средств ВЗГВ, реагирующих на взрыв, и (или) активных средств ВЗГВ, реагирующих на угрозу взрыва, в горных выработках устанавливают в местах, опасных по скоплению взрывоопасных газов в соответствии с Положением об аэрогазовом контроле в угольных шахтах, утвержденным приказом Федеральной службы по экологическому, технологическому и атомному надзору от 1 декабря 2011 г. № 678 (зарегистрирован Министерством юстиции Российской Федерации 29 декабря 2011 г., регистрационный № 22812).
При использовании датчика метана в качестве средства инициирования активных средств ВЗГВ, реагирующих на угрозу взрыва, уставка срабатывания принимается 2,5 % объемной доли.
15. Места установки средств ВЗГВ в горных выработках определяются в соответствии с приложением № 3 к настоящему Руководству по безопасности.
16. Схемы установки средств ВЗГВ в угольных шахтах, представлены в приложении № 4 к настоящему Руководству по безопасности.
17. При установке средств ВЗГВ, частично или полностью перекрывающих сечение горной выработки в месте их установки, предусматриваются проемы, проходы, ляды или двери для беспрепятственного перемещения людей, горной массы, материалов и оборудования.
18. Проектная документация на установку систем ВЗГВ разрабатывается с учетом горно-геологических и горнотехнических условий угольной шахты и содержит копии из плана горных работ с указанием мест установки средств ВЗГВ.
Проектная документация на системы ВЗГВ может содержать следующую информацию:
общие сведения о шахте;
перечень горных выработок, оборудуемых средствами ВЗГВ;
структуру системы ВЗГВ (например, верхний, сетевой и нижний уровни);
функционирование системы ВЗГВ;
способы и средства связи для информационного обмена между компонентами системы;
характеристику взаимосвязей системы ВЗГВ со смежными системами и ее совместимость, в том числе указания о способах обмена информацией;
режимы функционирования системы ВЗГВ;
диагностирование системы ВЗГВ;
модернизации системы ВЗГВ;
виды обеспечения системы ВЗГВ;
численность и квалификация персонала системы ВЗГВ и режим его работы;
эксплуатация, техническое обслуживание, ремонт и хранение компонентов системы ВЗГВ;
сохранность информации при авариях;
стандартизация и унификация;
сведения о применяемых средствах ВЗГВ;
сведения о применяемых программных обеспечениях;
параметры и характеристики технических устройств системы ВЗГВ;
порядок монтажа и приемки системы ВЗГВ в эксплуатацию;
копии из плана горных работ с указанием мест установки средств ВЗГВ;
схемы размещения и подключения технических устройств систем ВЗГВ;
схемы прокладки кабелей.
19. Документация на установку средств ВЗГВ в горных выработках содержит монтажные схемы, расчеты, электрические схемы, спецификации, сведения по монтажу, эксплуатации и обслуживанию.
20. Проектная документация на системы ВЗГВ и документация на установку средств ВЗГВ в горных выработках утверждается техническим руководителем (главным инженером) угледобывающей организации.
21. В состав систем ВЗГВ входят следующие виды обеспечения:
техническое;
информационное;
математическое;
программное;
организационное.
22. Техническое обеспечение включает в себя совокупность технических устройств системы ВЗГВ, предназначенных для реализации ее функций.
Технические решения (типы и количество применяемого оборудования, схемы его расстановки, схемы соединений и подключения технических устройств систем ВЗГВ к аппаратам электроснабжения, системам передачи и хранения информации) определяются проектной документацией на систему ВЗГВ.
Все подземные искробезопасные линии связи (контроля, управления) и питания системы ВЗГВ рекомендуется гальванически отделить от поверхностных линий связи (контроля, управления) и силовых сетей.
Система ВЗГВ и устанавливаемые в горных выработках шахты технические средства необходимо применять во взрывобезопасном исполнении.
Отключение (блокирование) отдельных элементов или системы ВЗГВ в целом для технического обслуживания и ремонта рекомендуется проводить по письменному разрешению технического руководителя (главного инженера) угледобывающей организации.
Подача команды на срабатывание активных средств ВЗГВ с возможностью контроля и управления, реагирующих на угрозу взрыва, производится с места или дистанционно, если не произошло их автоматическое срабатывание при достижении уставочного значения составляющими (параметрами) рудничной атмосферы, характеризующими взрывоопасность среды. Местная подача команды на срабатывание указанных средств ВЗГВ производится по распоряжению горного диспетчера. Блокировка срабатывания указанных средств ВЗГВ допускается только по письменному разрешению технического руководителя (главного инженера) угледобывающей организации.
Электрические, электронные и программируемые электронные устройства систем ВЗГВ оснащаются средствами защиты, ограничивающими доступ к органам настройки (градуировки) и (или) позволяющими обнаружить несанкционированное вмешательство в их работу (пломбы, доступ через пароль и другие).
Способы контроля работоспособности контрольных и исполнительных цепей систем ВЗГВ определяются проектными решениями.
Электропитание электрических, электронных и программируемых электронных устройств систем ВЗГВ, размещенных в горных выработках, осуществляется от устройств электропитания, обеспечивающих в аварийных ситуациях (при блокировке производственной деятельности и отсутствии электроснабжения) непрерывную работу перечисленных устройств в течение не менее 16 часов.
В системах ВЗГВ автоматически и непрерывно обеспечивается определение следующих неисправностей:
отказы и исчезновение электропитания (короткое замыкание или обрыв линий электропитания) датчика контроля параметров рудничной атмосферы, характеризующих взрывоопасность среды (при наличии), датчика контроля составляющих взрывного процесса (при наличии), подземных устройств контроля и управления, устройств контроля технического состояния средств ВЗГВ;
исчезновение связи (короткое замыкание, обрыв линий передачи данных) между подземными устройствами контроля и управления, и датчиком контроля параметров рудничной атмосферы, характеризующими взрывоопасность среды (при наличии), между подземными устройствами контроля и управления и датчиком контроля составляющих взрывного процесса (при наличии), между подземными устройствами контроля и управления, и устройствами контроля технического состояния средств ВЗГВ.
Системы ВЗГВ обеспечивают:
телесигнализацию о неработоспособности средств ВЗГВ с возможностью контроля и управления;
телесигнализацию о срабатывании световой и (или) звуковой сигнализации активных средств ВЗГВ с возможностью контроля и управления, реагирующих на угрозу взрыва;
телесигнализацию о срабатывании активных средств ВЗГВ с возможностью контроля и управления, реагирующих на угрозу взрыва;
телеуправление и местное управление активными средствами ВЗГВ с возможностью контроля и управления, реагирующими на угрозу взрыва;
телесигнализацию о выявленных неисправностях других технических устройств систем ВЗГВ;
телесигнализацию об отсутствии сетевого электропитания средств ВЗГВ с возможностью контроля и управления и других технических устройств систем ВЗГВ.
Способы сигнализации и телесигнализации об отказах, неисправностях и срабатывании технических устройств систем ВЗГВ определяются проектными решениями на основе технической документации завода-изготовителя.
23. Информационное обеспечение - совокупность систем классификации и кодирования технической и технологической информации, сигналов, характеризующих работу систем ВЗГВ, данных и документов, необходимых для реализации функций систем ВЗГВ.
Информационное обеспечение системы ВЗГВ включает в себя текущую и архивную информацию о состоянии средств и системы ВЗГВ в нормальном и предаварийном режимах работы шахты, которая отображается на экране компьютера горного диспетчера.
Текущая информация о состоянии средств и системы ВЗГВ отображается на мнемосхеме, которая включает в себя:
места размещения средств ВЗГВ с возможностью контроля и управления в горных выработках шахты;
информацию о состоянии средств ВЗГВ с возможностью контроля и управления;
информацию об отсутствии сетевого электропитания средств ВЗГВ с возможностью контроля и управления;
информацию о состоянии линий связи.
Для отображения контролируемых параметров применяется следующая цветовая кодировка:
зеленый цвет сигнализирует о работоспособном состоянии технических средствах системы ВЗГВ;
желтый цвет сигнализирует о включении световой и (или) звуковой сигнализации активного средства ВЗГВ с возможностью контроля и управления, реагирующих на угрозу взрыва;
синий цвет сигнализирует о включении средства ВЗГВ с возможностью контроля и управления;
красный цвет сигнализирует о неисправности технического средства системы ВЗГВ.
Архивная информация о состоянии средств и системы ВЗГВ отображается в форме таблиц. При этом временной интервал выборки информации для хранения не должен превышать 1 минуту, а срок хранения должен составлять не менее 1 года.
24. Математическое обеспечение включает в себя совокупность методов решения задач контроля и управления, алгоритмы и их описание, предназначенных для осуществления функций систем ВЗГВ.
Алгоритмы срабатывания средств ВЗГВ описываются в технической документации завода-изготовителя.
25. Программное обеспечение включает в себя совокупность программ, обеспечивающих реализацию функций систем ВЗГВ, и их описание.
Пользовательский интерфейс прикладного программного обеспечения системы ВЗГВ и эксплуатационная документация выполняются на русском языке.
Программное обеспечение системы ВЗГВ разрабатывается для подземного и наземного уровней.
Программное обеспечение для подземного уровня разрабатывается для подземных устройств контроля и управления средствами ВЗГВ.
Программное обеспечение для наземного уровня разрабатывается для информационного обеспечения горного диспетчера о состоянии средств и системы ВЗГВ.
Функции программного обеспечения систем ВЗГВ могут быть реализованы программным обеспечением АС, эксплуатируемым на шахте.
26. Организационное обеспечение состоит из документации, определяющей структуру и функции подразделений, действия персонала, использующего системы ВЗГВ и обеспечивающего их нормальное функционирование.
Организационное обеспечение системы ВЗГВ определяется проектной документацией на систему ВЗГВ.
Ответственные за правильность установки, эксплуатации, целостность, своевременность переноски и постоянное функционирование средств ВЗГВ и других технических устройств систем ВЗГВ назначаются приказом по шахте.
27. Монтаж и сдача в эксплуатацию системы ВЗГВ (ее частей) производится в соответствии с проектной документацией на систему ВЗГВ, документацией на установку средств ВЗГВ и соблюдением требований правил безопасности при монтаже и эксплуатации электроустановок.
28. Прием системы ВЗГВ (ее частей) в эксплуатацию производится комиссией, назначаемой приказом по шахте.
29. Прием системы ВЗГВ (ее частей) в эксплуатацию производится комиссией, назначаемой приказом по шахте и оформляется актом сдачи-приемки системы. Рекомендуемый образец акта сдачи-приемки в эксплуатацию системы ВЗГВ (ее частей) приведен в приложении № 5 к настоящему Руководству по безопасности.
30. Эксплуатация и облуживание средств и систем ВЗГВ осуществляется в соответствии с проектной документацией на систему ВЗГВ, документацией на установку средств ВЗГВ.
31. В данные, собираемые системой ВЗГВ и хранимые в архивах, не рекомендуется вносить какие-либо изменения.
32. Информация о состоянии системы ВЗГВ заносится в журнал эксплуатации и обслуживания системы ВЗГВ. Рекомендуемый срок хранения журнала от года и более. Рекомендуемый образец журнала эксплуатации и обслуживания систем ВЗГВ приведен в приложении № 6 к настоящему Руководству по безопасности.
33. Перечень работ по обслуживанию технических устройств систем ВЗГВ включает:
ежесуточный визуальный осмотр на наличие повреждений технических устройств, входящих в систему;
проверку срабатывания активных средств ВЗГВ, реагирующих на угрозу взрыва;
замену вышедшего из строя оборудования;
ремонт (организацию ремонта специализированными организациями) входящего в состав системы оборудования;
регламентное техническое обслуживание;
ведение документации.
Осмотр технических устройств систем ВЗГВ, их техническое обслуживание, проверка работоспособности, поверка и калибровка осуществляются в соответствии с проектной документацией на систему ВЗГВ и документацией на установку средств ВЗГВ.
34. Технические устройства систем ВЗГВ один раз в сутки проверяются в соответствии с порядком, установленным техническим руководителем (главным инженером) шахты. При проверке проводятся следующие работы:
внешний осмотр неэлектрических технических устройств, при котором выявляются нарушения целостности, крепления, наличия достаточного количества огнетушащего вещества;
внешний осмотр электрических и электронных технических устройств и кабельных линий, при котором выявляются нарушения целостности корпусов, кабелей, надежности их подсоединения, заземления, наличия пломб, правильности расположения измерительных приборов;
осмотр технических устройств и кабельных линий на предмет выявления возможного вмешательства в выходные цепи электрических, электронных и программируемых электронных средств.
35. При обнаружении повреждений технических средств системы ВЗГВ работники шахты сообщают об этом горному диспетчеру.
36. При использовании датчиков метана в качестве инициаторов активных средств ВЗГВ, реагирующих на угрозу взрыва, проверка сигнализации и срабатывания средств ВЗГВ проводится путем продувки датчиков специально приготовленными метановоздушными смесями, (концентрация CH4 - 0,6 % об. доли).
Перед проверкой сигнализации и срабатывания активных средств ВЗГВ, реагирующих на угрозу взрыва, проводится проверка правильности показаний датчиков метана в соответствии с Положением об аэрогазовом контроле в угольных шахтах, утвержденным приказом Федеральной службы по экологическому, технологическому и атомному надзору от 1 декабря 2011 г. № 678 (зарегистрирован Министерством юстиции Российской Федерации 29 декабря 2011 г., регистрационный № 22812).
37. Результаты проверки сигнализации и срабатывания активных заслонов, реагирующих на угрозу взрыва, заносятся в журнал эксплуатации и обслуживания системы ВЗГВ.
к Руководству по безопасности по взрывозащите
горных выработок угольных шахт, опасных по
газу и (или) угольной пыли, утвержденному
приказом Федеральной службы по
экологическому, технологическому
и атомному надзору
от 23 декабря 2016 г. № 561
Активное средство ВЗГВ - средство ВЗГВ, срабатывающее от датчика, контролирующего составляющие взрывного процесса (реагирующее на взрыв), или от датчика, измеряющего составляющие (параметры) рудничной атмосферы, характеризующие взрывоопасность среды (реагирующее на угрозу взрыва).
Взрывобезопасность - состояние угольной шахты, при котором исключается или минимизируется возможность взрыва, и, в случае его возникновения, предотвращается или минимизируется воздействие на людей вызываемых им поражающих факторов и обеспечивается сохранение материальных ценностей.
ВЗГВ - меры, направленные на снижение поражающих факторов взрыва взрывоопасной смеси до приемлемого уровня в горных выработках угольных шахт для сохранения жизни и здоровья людей, производственного оборудования, горных выработок и сооружений.
Средство ВЗГВ - техническое устройство, предназначенное для снижения поражающих факторов взрыва до приемлемого уровня в горных выработках угольных шахт.
Комбинированное средство ВЗГВ - средство ВЗГВ, представляющее собой комбинацию активного средства ВЗГВ, реагирующего на взрыв, и активного средства ВЗГВ, реагирующего на угрозу взрыва, или комбинацию пассивного средства ВЗГВ и активного средства ВЗГВ, реагирующих на угрозу взрыва.
Пассивное средство ВЗГВ - средство ВЗГВ, срабатывающее от внешней по отношению к нему энергии УВВ.
Ограждаемый объект - потенциально взрывоопасный объект (участок), который огражден средствами ВЗГВ и (или) взрывоустойчивыми перемычками от остальной части угольной шахты.
Поражающие факторы взрыва - составляющие процесса, вызванного взрывом взрывоопасной смеси и приводящего к поражению людей и объекта (пламя, УВВ, разлетающиеся осколки и предметы, наличие в рудничной атмосфере продуктов взрыва).
Приемлемый уровень снижения поражающих факторов - технически достижимый уровень, с которым можно согласиться при данных обстоятельствах на основании существующих в текущий период времени ценностей.
Режим работы аварийный - функционирование шахты (участка), когда произошла авария и возможен дальнейший ход ее развития; при котором на работающих воздействуют опасные и вредные производственные факторы; когда принимаются меры по защите, спасению людей и ликвидации аварии.
Режим работы нормальный - функционирование шахты (участка) без нарушения требований промышленной безопасности и проектных решений, при котором контролируемые параметры не выходят за пределы регламентированных значений и предельно допустимых концентраций.
Режим работы предаварийный - функционирование шахты (участка), характеризующийся отклонениями от нормального режима работы, с выходом контролируемых параметров в диапазоне от регламентированных значений до нижнего концентрационного предела воспламенения, при этом срабатывание систем противоаварийной защиты обеспечивается при 50 % нижнего концентрационного предела воспламенения.
Система контроля и управления средствами ВЗГВ - комплекс технических, информационных, программных, организационных и других устройств, направленных на повышение готовности шахты к взрыву, а при его возникновении - на снижение поражающих факторов взрыва до приемлемого уровня, а также обеспечивающих контроль и управление входящими в систему техническими устройствами.
к Руководству по безопасности по взрывозащите
горных выработок угольных шахт, опасных по
газу и (или) угольной пыли, утвержденному
приказом Федеральной службы по
экологическому, технологическому
и атомному надзору
от 23 декабря 2016 г. № 561
|
|
- активные средства ВЗГВ, реагирующие на взрыв, или активные средства ВЗГВ, реагирующие на угрозу взрыва, или комбинированные средства ВЗГВ с возможностью контроля и управления, или без возможности контроля и управления, или пассивные средства ВЗГВ; |
|
|
- комбинированные средства ВЗГВ с возможностью контроля и управления; |
|
|
- изолирующая перемычка; |
|
|
- вентиляционная перемычка с дверью; |
|
|
- изолирующая взрывоустойчивая перемычка; |
|
|
- очистной забой; |
|
|
- кроссинг; |
|
|
- выработка, сохраненная после прохода очистного забоя; |
|
|
- устье горной выработки, выходящей на поверхность; |
|
R |
- расстояние между средствами ВЗГВ (расстояние от эпицентра взрыва до средств ВЗГВ); |
|
|
- направление движения свежей струи воздуха; |
|
|
- направление движения исходящей струи воздуха; |
|
|
- направление движения грузопотока; |
|
|
- направление движения очистного забоя. |
к Руководству по безопасности по взрывозащите
горных выработок угольных шахт, опасных по
газу и (или) угольной пыли, утвержденному
приказом Федеральной службы по
экологическому, технологическому
и атомному надзору
от 23 декабря 2016 г. № 561
Средства ВЗГВ устанавливаются в горных выработках на расстоянии 10 - 50 м от сопряжений с примыкающими выработками.
Определение шага установки от эпицентра взрыва до средства ВЗГВ или между средствами ВЗГВ осуществляется в следующей последовательности:
определяется избыточное давление взрыва в месте расположения средства ВЗГВ;
проводится расчет нагрузок на элементы конструкции средства ВЗГВ;
проводится расчет прочности конструкции средства ВЗГВ на компьютере с использованием специализированных программных комплексов;
рассчитанные напряжения в элементах конструкций средства ВЗГВ сравниваются с разрушающими напряжениями принятых материалов конструкций, а расчетные нагрузки на элементы крепления с их несущей способностью.
Конструкция средства ВЗГВ в целом считается выдержавшей расчетное воздействие, если усилия в его элементах не превышают предел их прочности и нагрузка на элементы крепления не превышает их несущую способность. Заданный шаг установки средства ВЗГВ принимается обоснованным.
В противном случае в конструкцию средства ВЗГВ необходимо внести изменения по его усилению и повторить расчет или уменьшить заданный шаг установки средства ВЗГВ и также повторить расчет.
Избыточное давление взрыва ΔР, кПа, рекомендуется определять в соответствии с Методикой газодинамического расчета параметров воздушных ударных волн при взрывах газа и пыли, согласованной Департаментом угольной промышленности Министерства энергетики Российской Федерации 31 марта 2003 г. и утвержденной Госгортехнадзором России 2 апреля 2003 г., на основе компьютерного моделирования сети горных выработок, поддерживаемой на шахте с использованием специализированных программных комплексов или расчетным способом по формуле:
|
ΔР = Px∙P0, |
(1) |
где: Px - безразмерное давление при детонации взрывоопасной смеси;
P0 - атмосферное давление, принимается равным 101,3 кПа.
Безразмерное давление при детонации взрывоопасной смеси определяется по формулам:
|
ln(Px) = -1,124 - 1,66ln(Rx) + 0,26∙(ln(Rx))2; |
(2) |
|
|
(3) |
где Rx - безразмерное расстояние от центра взрыва при детонации взрывоопасной смеси, определяется по формуле:
|
|
(4) |
где: R - расстояние от эпицентра взрыва до места расположения средства ВЗГВ, м;
Е - эффективный энергозапас взрывоопасной смеси, МДж.
Значение Е при стехиометрической концентрации определяется по формуле:
|
E = Mг∙qг, |
(5) |
где: Mг - расчетная масса горючего вещества взрывоопасной смеси, кг;
qг - теплота сгорания горючего газа, МДж/кг;
Cг - концентрация горючего вещества в облаке взрывоопасной смеси, в расчете принимается равной 9,36 % об. (стехиометрическая концентрация для метана).
Расчетный объем взрывоопасной смеси облака V, м3, определяется по формуле:
|
|
(6) |
где Rг - расстояние от эпицентра взрыва в горной выработке заполненное взрывоопасной смесью, м (принимается на 150 м меньше расстояния от эпицентра взрыва до места расположения средства ВЗГВ).
Масса горючего газа при расчетной аварии Мг, кг, определяется по формуле:
|
|
(7) |
где ρг.п - плотность метана при расчетной температуре, кг/м3, определяется по формуле:
|
|
(8) |
где: m - молярная масса, для метана равна 16,04 м3/моль;
V0 - мольный объем, м3/моль (равен 22,413 м3/моль);
tр - расчетная температура, °С.
Теплота сгорания горючего газа qг, МДж/кг, определяется по формуле:
|
qг = ρг.п∙β, |
(9) |
где β - корректировочный параметр, характеризующий фугасные свойства взрывоопасной смеси, для метана принимается равным 1,14.
Расчетные значения избыточного давления взрыва в зависимости от расстояния от эпицентра взрыва приведены в таблице настоящего приложения.
Таблица
|
Расстояние от эпицентра взрыва до средства ВЗГВ (расстояние между средствами ВЗГВ), R, м |
200 |
300 |
400 |
500 |
600 |
700 |
800 |
900 |
1000 |
1100 |
1200 |
1300 |
1400 |
1500 |
|
Избыточное давление в месте установки средства ВЗГВ, ΔР, кПа |
50 |
195 |
318 |
412 |
485 |
541 |
586 |
623 |
653 |
679 |
701 |
720 |
737 |
751 |
Расчет прочности конструкции средства ВЗГВ рекомендуется выполнять на специализированных программных комплексах. Для проведения расчета необходимо определить нагрузки на элементы конструкции средства ВЗГВ.
Эквивалентная статическая нагрузка от взрыва, действующая на элементы конструкции средства ВЗГВ Rэкв, кН, определяется по формуле:
где: An - площадь средства ВЗГВ, м2;
Ak - площадь проемов в средстве ВЗГВ, м2;
Kд - коэффициент динамичности.
Из формулы (10) следует, что для средства ВЗГВ нагрузка действует
только на фронтальную площадь элементов конструкции. Так как, конструкции средства
ВЗГВ состоят из линейных элементов, для расчета необходимо привести нагрузки к
линейным элементам конструкции. Приведение нагрузок
проводится по формуле:
|
|
(11) |
где Апр - фронтальная площадь 1 погонного метра элемента конструкции средства ВЗГВ, м2.
Рассчитанные напряжения в элементах конструкций средства ВЗГВ сравниваются с разрушающими напряжениями принятых материалов конструкций, а расчетные нагрузки на элементы крепления с их несущей способностью.
Конструкция средства ВЗГВ в целом считается выдержавшей расчетное воздействие, если усилия в его элементах не превышают предел их прочности и нагрузка на элементы крепления не превышает их несущую способность. В противном случае в конструкцию средства ВЗГВ необходимо внести изменения по его усилению и повторить расчет, либо изменить расстояние от расчетного эпицентра взрыва и также повторить расчет.
к Руководству по безопасности по взрывозащите
горных выработок угольных шахт, опасных по
газу и (или) угольной пыли, утвержденному
приказом Федеральной службы по
экологическому, технологическому
и атомному надзору
от 23 декабря 2016 г. № 561

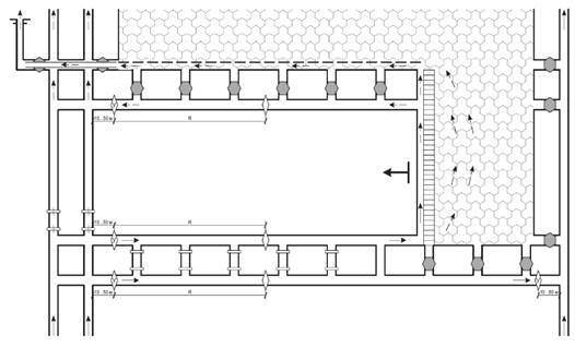
Рис. 1. Схема установки средств ВЗГВ в подготовительной выработке

Рис. 2. Схема установки средств ВЗГВ для выемочного
участка
с возвратноточной схемой проветривания

Рис. 3. Схема установки средств ВЗГВ для выемочного
участка
с возвратноточной схемой проветривания, подготовленного
спаренными выработками

Рис. 4. Схема установки средств ВЗГВ для выемочного
участка
с прямоточной схемой проветривания

Рис. 5. Схема установки средств ВЗГВ для выемочного
участка
с возвратноточной схемой проветривания и комбинированным направлением
выдачи исходящей струи (на заднюю сбойку),
подготовленного спаренными выработками

Рис. 6. Схема установки средств ВЗГВ для выемочного
участка при проветривании
с изолированным отводом метановоздушной смеси через выработанное пространство
действующего и ранее отработанного выемочного столба

Рис. 7. Схема установки средств ВЗГВ для выемочного
участка при проветривании
с изолированным отводом метановоздушной смеси через выработанное пространство
и сохраняемую в выработанном пространстве выработку

Рис. 8. Схема установки средств ВЗГВ для магистральных
выработок,
оборудованных ленточными конвейерами
к Руководству по безопасности по взрывозащите
горных выработок угольных шахт, опасных по
газу и (или) угольной пыли, утвержденному
приказом Федеральной службы по
экологическому, технологическому
и атомному надзору
от 23 декабря 2016 г. № 561
АКТ
_____________________________________________________ (систем(-ы) ВЗГВ или ее отдельных элементов) установленной (-ых) в ___________________________________________________________________________ (наименование предприятия и (или) объекта) Комиссия, назначенная приказом № __________________ от ______________________, (дата) в составе:
________________________ провела проверку системы ВЗГВ на предмет соответствия (дата) ___________________________________________________________________________ (наименование документа) В ходе проверки было установлено: ___________________________________________________________________________ (наличие или отсутствие замечаний) Заключение комиссии: ___________________________________________________________________________ (о принятии или непринятии в эксплуатацию) Подписи членов комиссии:
|
к Руководству по безопасности по взрывозащите
горных выработок угольных шахт, опасных по
газу и (или) угольной пыли, утвержденному
приказом Федеральной службы по
экологическому, технологическому
и атомному надзору
от 23 декабря 2016 г. № 561
Номер страницы _____________________. Всего страниц __________________
|
СОДЕРЖАНИЕ