Lifts. Special requirements of safety and accessibility for persons and other groups of population with disability

МЕЖГОСУДАРСТВЕННЫЙ СОВЕТ ПО СТАНДАРТИЗАЦИИ, МЕТРОЛОГИИ И СЕРТИФИКАЦИИ
(МГС)

INTERSTATE COUNCIL FOR STANDARDIZATION, METROLOGY AND CERTIFICATION
(ISC)

МЕЖГОСУДАРСТВЕННЫЙ
СТАНДАРТ

ГОСТ
33652-
2019
(EN 81-70:2018)

ЛИФТЫ

Специальные требования безопасности
и доступности для инвалидов и других
маломобильных групп населения

(EN 81-70:2018,
Safety rules for the construction and installation of lifts - Particular applications
for passenger and goods passenger lift - Part 70: Accessibility to lifts for persons
including persons with disability,
MOD)

Москва
Стандартинформ

2019

Предисловие

Цели, основные принципы и общие правила проведения работ по межгосударственной стандартизации установлены ГОСТ 1.0 «Межгосударственная система стандартизации. Основные положения» и ГОСТ 1.2 «Межгосударственная система стандартизации. Стандарты межгосударственные, правила и рекомендации по межгосударственной стандартизации. Правила разработки, принятия, обновления и отмены»

Сведения о стандарте

1 ПОДГОТОВЛЕН Ассоциацией «Российское лифтовое объединение» (Ассоциация «РЛО»), Открытым акционерным обществом «Щербинский лифтостроительный завод» (ОАО «ЩЛЗ») на основе собственного перевода на русский язык англоязычной версии стандарта, указанного в пункте 5

2 ВНЕСЕН Федеральным агентством по техническому регулированию и метрологии

3 ПРИНЯТ Межгосударственным советом по стандартизации, метрологии и сертификации (протокол от 30 сентября 2019 г. № 122-П)

За принятие проголосовали:

Краткое наименование страны по МК
(ИСО 3166) 004-97

Код страны по МК
(ИСО 3166) 004-97

Сокращенное наименование национального органа по
стандартизации

Беларусь

BY

Госстандарт Республики Беларусь

Казахстан

KZ

Госстандарт Республики Казахстан

Киргизия

KG

Кыргызстандарт

Россия

RU

Росстандарт

Таджикистан

TJ

Таджикстандарт

Узбекистан

UZ

Узстандарт

(Поправка).

4 Приказом Федерального агентства по техническому регулированию и метрологии от 22 октября 2019 г. № 1042-ст межгосударственный стандарт ГОСТ 33652-2019 (EN 81-70:2018) введен в действие в качестве национального стандарта Российской Федерации с 1 июня 2020 г.

5 Настоящий стандарт является модифицированным по отношению к европейскому стандарту EN 81-70:2018 «Правила безопасности по устройству и установке лифтов. Специальные применения пассажирских и грузопассажирских лифтов. Часть 70. Доступность лифтов для людей, включая людей с физическими ограничениями» («Safety rules for the construction and installation of lifts - Particular applications for passenger and goods passenger lift - Part 70: Accessibility to lifts for persons including persons with disability», MOD) путем изменения его структуры для приведения в соответствие с правилами, установленными в ГОСТ 1.5 (подразделы 4.2 и 4.3); путем изменения фраз, слов, которые выделены в тексте курсивом.

При этом в настоящий стандарт не включена ссылка на европейский стандарт EN 81-28:2018, поскольку в настоящем стандарте не устанавливаются требования к диспетчерскому контролю для обеспечения доступности.

В настоящий стандарт включены дополнительные ссылки на ГОСТ 30471, ГОСТ 33605, ГОСТ ISO 14798, которые выделены в тексте курсивом.

Наименование настоящего стандарта изменено относительно наименования указанного европейского стандарта для приведения в соответствие с ГОСТ 1.5 (подраздел 3.6).

Сведения о соответствии ссылочных межгосударственных стандартов международным (европейским) стандартам, использованным в качестве ссылочных в примененном европейском стандарте, приведены в дополнительном приложении ДА.

Сопоставление структуры настоящего стандарта со структурой указанного европейского стандарта приведено в дополнительном приложении ДБ

6 ВЗАМЕН ГОСТ 33652-2015 (EN 81-70:2003)

Информация о введении в действие (прекращении действия) настоящего стандарта и изменений к нему на территории указанных выше государств публикуется в указателях национальных стандартов, издаваемых в этих государствах, а также в сети Интернет на сайтах соответствующих национальных органов по стандартизации.

В случае пересмотра, изменения или отмены настоящего стандарта соответствующая информация будет опубликована на официальном интернет-сайте Межгосударственного совета по стандартизации, метрологии и сертификации в каталоге «Межгосударственные стандарты»

Содержание

1 Область применения. 3

2 Нормативные ссылки. 4

3 Термины и определения. 4

4 Существенные опасности и препятствия для обеспечения доступности. 5

5 Требования безопасности и/или защитные меры.. 6

5.1 Общие специальные требования. 6

5.2 Двери кабины и шахты лифта. 6

5.3 Размеры кабины, оборудование в кабине, точность остановки кабины.. 6

5.4 Устройства управления и сигнальные устройства. 8

6 Контроль соблюдения требований безопасности и/или защитных мер. 14

7 Сопроводительная документация. 17

Приложение A (справочное) Рассматриваемые категории инвалидности. 17

Приложение B (обязательное) Устройства управления очень больших размеров. 18

Приложение C (обязательное) Сенсорные экраны систем управления на этаж назначения. 19

Приложение D (справочное) Рекомендации по повышению доступности и удобства использования. 20

Приложение ДА (справочное) Сведения о соответствии ссылочных межгосударственных стандартов международным  (европейским) стандартам, использованным в качестве ссылочных в примененном  европейском стандарте. 20

Приложение ДБ (справочное) Сопоставление структуры настоящего стандарта со структурой примененного в нем  европейского стандарта. 21

Библиография. 21

ГОСТ 33652-2019
(EN 81-70:2018)

МЕЖГОСУДАРСТВЕННЫЙ СТАНДАРТ

ЛИФТЫ

Специальные требования безопасности и доступности для инвалидов
и других маломобильных групп населения

Lifts. Special requirements of safety and accessibility for persons and other groups of population with disability

Дата введения - 2020-06-01

1 Область применения

1.1 Настоящий стандарт устанавливает специальные требования безопасности и доступности, а также требования обеспечения безопасного входа (выхода) и использования лифтов лицами, относящимися к инвалидам и другим маломобильным группам населения (далее - инвалиды).

1.2 Настоящий стандарт распространяется на новые лифты, предназначенные для транспортирования людей или людей и грузов по ГОСТ 33984.1, устанавливаемые в новые здания и сооружения.

1.3 Настоящий стандарт устанавливает требования доступности лифтов для лиц, использующих кресла-коляски с ручным и электрическим приводами, а также для лиц с ослабленным зрением, слухом и другими физическими ограничениями по приложению А.

Необходимость выполнения соответствующих требований настоящего стандарта определена с учетом категорий физических ограничений лиц, пользующихся лифтом.

1.4 Настоящий стандарт может быть использован на добровольной основе для соблюдения специальных требований безопасности и доступности лифтов ([1], приложение 1, пункт 2).

1.5 При применении технических решений, отличающихся от регламентируемых или не предусмотренных настоящим стандартом, должен быть выполнен анализ риска этих технических решений в соответствии с ГОСТ ISO 14798, дополненный в необходимых случаях расчетами, чертежами и результатами испытаний, подтверждающими безопасность этого технического решения и его соответствие требованиям технического регламента [1].

2 Нормативные ссылки

В настоящем стандарте использованы нормативные ссылки на следующие межгосударственные стандарты:

ГОСТ 28911 (ИСО 4190-5:2006) Лифты. Устройства управления, сигнализации и дополнительные приспособления

ГОСТ 30471 Кресла-коляски. Максимальные габаритные размеры*

__________

* В Российской Федерации действует ГОСТ Р 50602-93.

ГОСТ 33984.1 (ЕН 81-20:2014) Лифты. Общие требования безопасности к устройству и установке. Лифты для транспортирования людей или людей и грузов

ГОСТ ISO 12100-2013 Безопасность машин. Основные принципы конструирования. Оценки риска и снижения риска

ГОСТ ISO 14798 Лифты пассажирские, эскалаторы и пассажирские конвейеры. Методика анализа и снижения риска**

__________

** В Российской Федерации также действует ГОСТ Р 53387-2009 (ИСО/ТС 14798:2006).

Примечание - При пользовании настоящим стандартом целесообразно проверить действие ссылочных стандартов и классификаторов на официальном интернет-сайте Межгосударственного совета по стандартизации, метрологии и сертификации (www.easc.by) или по указателям национальных стандартов, издаваемым в государствах, указанных в предисловии, или на официальных сайтах соответствующих национальных органов по стандартизации. Если на документ дана недатированная ссылка, то следует использовать документ, действующий на текущий момент, с учетом всех внесенных в него изменений. Если заменен ссылочный документ, на который дана датированная ссылка, то следует использовать указанную версию этого документа. Если после принятия настоящего стандарта в ссылочный документ, на который дана датированная ссылка, внесено изменение, затрагивающее положение, на которое дана ссылка, то это положение применяется без учета данного изменения. Если ссылочный документ отменен без замены, то положение, в котором дана ссылка на него, применяется в части, не затрагивающей эту ссылку.

3 Термины и определения

В настоящем стандарте применены термины ГОСТ 33984.1, а также следующие термины с соответствующими определениями:

3.1

точность остановки кабины (точность остановки): Расстояние по вертикали между уровнем порога дверей кабины и уровнем порога дверей шахты после автоматической остановки кабины.

[ГОСТ 33605-2015, статья 3.1.18]

3.2

собирательное управление: Вид управления, применяемый на лифтах с одиночной или групповой системами управления, при котором после регистрации одной команды управления могут быть зарегистрированы и последующие, при этом выполнение команды управления происходит в соответствии с заданной программой.

[ГОСТ 33605-2015, статья 3.6.21]

3.3

управление на этаж назначения: Управление, применяемое на одиночных или групповых лифтах, при котором команда на этаж назначения регистрируется на этажной площадке.

[ГОСТ 33605-2015, статья 3.6.22]

3.4 маломобильная группа населения; МГН: Лица, испытывающие затруднения при самостоятельном передвижении, получении услуги, необходимой информации или ориентации в пространстве. К маломобильным группам населения относятся: лица с временным нарушением здоровья, лица старших возрастов, лица с детскими колясками.

3.5 инвалид: Лицо, имеющее нарушение здоровья со стойким расстройством функций организма, в том числе с поражением опорно-двигательного аппарата, нарушением функций зрения и слуха, приводящими к ограничению жизнедеятельности и вызывающими необходимость его социальной защиты.

3.6 доступность лифта для инвалидов и маломобильных групп населения: Возможность для лиц, относящихся к инвалидам и маломобильным группам населения, безопасно и без посторонней помощи входить (въезжать в кресле-коляске) в кабину лифта, выходить (выезжать в кресле-коляске) из кабины лифта, осуществлять управление лифтом с этажной площадки и в кабине лифта.

3.7 устройство содействия доступности лифта: Средство для включения на одну поездку специальных функций для улучшения доступности лифта для инвалидов и других маломобильных групп населения (МГН).

3.8 новое здание (сооружение): Здание (сооружение), соответствующее действующим обязательным требованиям и не использовавшееся до установки в него нового лифта.

3.9

новый лифт: Лифт, соответствующий действующим обязательным требованиям безопасности и качества, который до ввода в эксплуатацию не имеет наработки.

[ГОСТ 33605-2015, статья 3.1.8]

4 Существенные опасности и препятствия для обеспечения доступности

Опасности, опасные ситуации и опасные события, относящиеся к области применения настоящего стандарта, установленные в результате анализа риска как существенные и требующие принятия мер по уменьшению или полному устранению риска, приведены в таблице 1.

В таблице 1 указаны препятствия для доступа и дополнительные риски, с которыми могут сталкиваться лица с ограниченными способностями или используемые ими приспособления.

Таблица 1 - Перечень существенных опасностей

Опасности согласно ГОСТ ISO 12100-2013, приложение В

Соответствующие пункты настоящего
стандарта

1 Механические опасности:

 

опасность раздавливания

5.3.2.3

опасность удара

5.3.2.3

8 Опасности из-за нарушения эргономических требований:

 

нарушение правил доступа

5.2.1, 5.2.2, 5.3.1, 5.3.2.3

конструкция или расположение индикаторов, устройств визуальной и звуковой сигнализации

5.4.2.4, 5.4.2.5, 5.4.3.3, 5.4.3.4

конструкция, расположение или идентификация устройств управления

5.1.2, 5.4.2.1, 5.4.2.2, 5.4.2.3, 5.4.3.1, 5.4.3.2

неправильное распределение нагрузки

5.3.2.1, 5.3.2.2

5 Требования безопасности и/или защитные меры

5.1 Общие специальные требования

5.1.1 Общие специальные требования безопасности и/или защитные меры, приведенные в настоящем стандарте, являются дополнением к общим требованиям безопасности по ГОСТ 33984.1.

5.1.2 Уровень звука для подачи звукового сигнала или голосового оповещения должен регулироваться в диапазоне от 35 до 65 дБ(А) в зависимости от условий места эксплуатации. В шумных условиях (например, на платформах железнодорожных станций) максимальный уровень звука может быть увеличен до 80 дБ(А). Средства регулирования звукового сигнала или звукового оповещения должны быть доступны только обслуживающему персоналу.

5.2 Двери кабины и шахты лифта

5.2.1 Двери кабины и шахты лифта должны быть автоматическими горизонтально-раздвижными.

Минимальные размеры дверных проемов должны соответствовать размерам, указанным в таблице 2.

5.2.2 Должна быть предусмотрена возможность регулирования времени задержки начала автоматического закрытия дверей кабины и шахты лифта в пределах от 2 до 20 с в зависимости от особенностей обслуживаемых пользователей.

Примечание - Для лиц с ограниченной подвижностью время задержки начала закрытия автоматических дверей должно быть не менее 6,0 с.

Средства регулирования времени автоматического закрытия дверей должны быть доступны для обслуживающего персонала.

Для обеспечения возможности сокращения этого времени в кабине лифта может быть предусмотрена установка кнопки закрытия дверей кабины и шахты лифта.

5.3 Размеры кабины, оборудование в кабине, точность остановки кабины

5.3.1 Размеры кабины

Минимальные внутренние размеры кабины лифта с учетом размеров используемых кресел-колясок должны соответствовать приведенным в таблице 2.

Размеры кабины лифта измеряют между конструктивными стенами кабины. Толщина любых декоративных элементов, уменьшающих минимальные внутренние размеры кабины, приведенные в таблице 2, должна быть не более 15 мм.

В кабине лифта не допускается установка каких-либо устройств на высоте менее 800 мм, которые могут препятствовать въезду в кабину и развороту в ней пассажиров на креслах-колясках или использующих другие вспомогательные средства перемещения.

Таблица 2 - Минимальные внутренние размеры кабин лифта

Тип
лифта

Минимальные размеры кабины1)

Уровень доступности

Примечание

1

Ширина кабины 2100 мм;
глубина кабины 1100 мм;
ширина дверного проема не менее 1200 мм, при этом дверной проем должен начинаться не более чем в 120 мм от одного из внутренних боковых ограждений кабины
2)

Кабина доступна для пользователя в кресле-коляске и нескольких других пользователей.

Обеспечивается также маневрирование кресла-коляски в кабине

Лифты типа 1 обеспечивают доступность для пользователей в креслах-колясках с ручным приводом по ГОСТ 30471, а также в креслах-колясках с электрическим приводом класса А (см. [2])

2

Ширина кабины 1100 мм;
глубина кабины 1400 мм;
ширина дверных проемов 900 мм

Кабина доступна для пользователя в кресле-коляске и одного сопровождающего лица

Лифты типа 2 обеспечивают доступность для пользователей в креслах-колясках с ручным приводом по ГОСТ 30471, а также в креслах-колясках с электрическим приводом класса A или B (см. [2]).
Лифты типа 2 не предоставляют возможность маневрирования в кабине пользователя в кресле-коляске

3

Ширина кабины 1100 мм;
глубина кабины 2100 мм;
ширина дверных проемов 900 мм

Кабина доступна для пользователя в кресле-коляске класса C и нескольких других пользователей. Есть возможность перевозить носилки

Лифты типа 3 обеспечивают доступность для пользователей в креслах-колясках с ручным приводом по ГОСТ 30471, а также в креслах-колясках с электрическим приводом класса A, B и C (см. [2])

4

Ширина кабины 1600 мм;
глубина кабины 1400 мм;
или ширина кабины 1400 мм;
глубина кабины 1600 мм;
ширина дверных проемов 900 мм

Кабина доступна для пользователя в кресле-коляске и нескольких других пользователей

Лифты типа 4 обеспечивают доступность для пользователей в креслах-колясках с ручным приводом по ГОСТ 30471, а также в креслах-колясках с электрическим приводом класса A или B (см. [2]). Лифты типа 4 обеспечивают возможность маневрирования в кабине пользователя в кресле-коляске и пользователей со вспомогательными средствами передвижения

5

Ширина кабины 2000 мм;
глубина кабины 1400 мм;
или ширина кабины 1400 мм;
глубина кабины 2000 мм;
ширина дверных проемов 1100 мм

Кабина доступна для пользователя в кресле-коляске и нескольких других пользователей. Обеспечивается также маневрирование (разворот) кресла-коляски в кабине

Лифты типа 5 обеспечивают доступность для пользователей в креслах-колясках с ручным приводом по ГОСТ 30471, а также в креслах-колясках с электрическим приводом классов A, B и C (см. [2]). Предусмотрено достаточное пространство для маневрирования пользователей в креслах-колясках и пользователей со вспомогательными средствами передвижения

1) Ширина кабины - расстояние по горизонтали между внутренними поверхностями конструктивных стен кабины, измеряемое параллельно передней стенке кабины. Декоративные или защитные панели, поручни (при их наличии) должны находиться внутри этого размера. Глубина кабины - расстояние по горизонтали между внутренними поверхностями передней и задней конструктивных стен кабины, измеряемое перпендикулярно к ширине. Декоративные или защитные панели, поручни (при их наличии) должны находиться внутри этого размера.

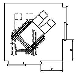
2) Расстояние между дверьми и смежными стенками кабины, как показано на рисунке 1, должно быть как можно больше.

а - расстояние от края дверного проема до соседней стены

Рисунок 1 - Кабина с дверьми на смежных стенках

5.3.2 Оборудование кабины

5.3.2.1 На одной боковой стене купе кабины должен быть установлен поручень. Для кабин типов 4 и 5 (таблица 2) на противоположной стороне или на задней стене должен быть установлен второй поручень.

a) поручень должен прерываться там, где находится панель управления;

b) поручень разрешается устанавливать только с одной стороны панели управления, если поручень с минимальной длиной 400 мм не умещается с более короткой стороны;

c) поперечное сечение поручня должно соответствовать приведенным на рисунке 2;

d) расстояние от стенки кабины до поручня должно составлять не менее 35 мм;

e) расстояние от верхнего края поручня до уровня пола должно составлять (900 ± 25) мм;

f) торцы поручней должны быть закрыты или направлены (загнуты) к стене (ограждению) кабины.

В кабинах, где поручень может ограничить ширину входа в кабину, поручень допускается устанавливать на задней стене.

5.3.2.2 Если в кабине предусмотрено откидное сиденье, оно должно отвечать следующим требованиям:

a) расстояние от сиденья до уровня пола должно составлять (500 ± 25) мм;

b) глубина сиденья должна быть от 300 до 400 мм;

c) ширина сиденья должна быть от 400 до 500 мм;

d) сиденье должно быть рассчитано на нагрузку 120 кг.

5.3.2.3 В кабинах типов 2 и 3 для пассажиров, использующих кресла-коляски, должна быть предусмотрена возможность видеть препятствия на их пути выезда из кабины задним ходом.

5.3.3 Точность остановки кабины

5.3.3.1 Точность остановки кабины лифта, предназначенного для транспортирования инвалидов (в том числе на креслах-колясках) и других МГН, должна быть в пределах ±10 мм.

1 - максимальный наружный диаметр поручня; 2 - минимальный внутренний диаметр поручня

Рисунок 2 - Размеры поперечного сечения поручней, мм

5.4 Устройства управления и сигнальные устройства

5.4.1 Общие сведения

5.4.1.1 Устройства управления систем с собирательным управлением

Системы с собирательным управлением используют следующие устройства управления, требования к которым приведены в 5.4.2:

- кнопки общего назначения на этажных площадках и в кабине; или

- кнопки увеличенных размеров на этажных площадках и в кабине; или

- кнопки общего назначения на этажных площадках, в кабине - клавишные панели для приказа на этажи назначения и кнопки для других задач управления.

Примечание - Использование клавишных панелей может позволить выполнить требования таблицы 4 в многоэтажных зданиях.

Для временного включения персонализированных функций и сигналов лифта могут использоваться дополнительные устройства управления (например, устройство содействия доступности, магнитная или чиповая карта, мобильный телефон и т.д.).

5.4.1.2 Устройства управления систем управления на этаж назначения

Системы управления на этаж назначения используются только в случае, когда может быть обеспечено инструктирование пользователя лифтом о функциональных особенностях этой системы управления.

Примечание - Из-за своей сложности системы управления на этаж назначения обеспечивают более низкий уровень доступности для некоторых пассажиров по сравнению с системами с собирательным управлением, в частности, при использовании сенсорного экрана со звуковой информацией пассажиры должны понимать и успевать реагировать на эту информацию в течение определенного периода времени.

В данной системе используются следующие устройства управления, требования к которым приведены в 5.4.3:

- клавишные панели и при необходимости устройства содействия доступу, в случае применения на этажных площадках и кнопки в кабинах; или

- сенсорные экраны и устройства содействия доступу на этажных площадках и кнопки в кабинах.

Для временного включения персонализированных функций и сигналов лифта могут использоваться дополнительные устройства управления (например, устройство содействия доступности, магнитная или чиповая карта, мобильный телефон и т.д.).

5.4.2 Требования к устройствам управления и сигнальным устройствам в системах с собирательным управлением

5.4.2.1 Требования к конструкции и расположению устройств управления

Требования к конструкции и расположению устройств управления приведены в таблице 3.

Требования к расположению устройств управления приведены в таблице 4.

Таблица 3 - Требования к конструкции устройств управления

Наименование характеристики

Устройство управления

на этажных площадках

в кабинах

a) Минимальная площадь толкателя кнопок

490 мм2

b) Минимальный размер толкателя кнопок

Вписанная окружность диаметром 20 мм

c) Идентификация толкателя кнопок

За счет контраста относительно окружения и тактильно

d) Идентификация панели устройства управления

За счет контраста относительно окружения

e) Усилие нажатия

Требуется от 2,5 до 5,0 Н

f) Обратная связь о срабатывании кнопки

Требуется для сообщения пассажирам о том, что нажатая кнопка сработала (например, кнопка имеет заметный ход или обеспечена механическая обратная связь)

g) Сигнал о регистрации поданной команды

Требуется для сообщения пассажирам визуальным и звуковым сигналом о том, что команда зарегистрирована.

Звуковой сигнал должен отвечать требованиям 5.1.2 и выдаваться при каждом отдельном нажатии, даже если вызов (приказ) уже зарегистрирован

h) Кнопка основного посадочного этажа в кабине

-

Выступает на (5 ± 1) мм относительно других кнопок (предпочтительно зеленого цвета)

i) Расположение символа на кнопке

При наличии, на толкателе кнопок или на 10 - 15 мм влево от него

На толкателе кнопок или на 10 - 15 мм влево от него

j) Требования к символу

При наличии, рельефный, контрастный по отношению к фону высотой 15 - 40 мм

Рельефный, контрастный по отношению к фону высотой 15 - 40 мм

k) Высота рельефа на толкателе кнопок (с) и символе (j)

Минимум 0,8 мм (рекомендуется 1,0 мм)

l) Расстояние между толкателями кнопок вызова или кнопок приказа

Минимум 10 мм

Таблица 4 - Требования к расположению устройств управления

Наименование характеристики

Элементы управления

на посадочных площадках

в кабинах

a) Минимальная высота от уровня пола до оси самой нижней кнопки

850 мм

b) Максимальная высота от уровня пола до оси самой высоко расположенной кнопки

1100 мм

1200 мм
(предпочтительно
1100 мм)

c) Расположение кнопок

Вертикальное

Вертикальное или горизонтальное (см. 5.4.2.3.1)

d) Минимальное боковое расстояние от оси любой кнопки до угла стен

500 мм (предпочтительно 700 мм).

Глубина любой ниши, в которой может располагаться кнопка, не должна превышать 250 мм (см. рисунок 3)

400 мм

e) Расстояние между группой кнопок вызова или кнопок приказа и другими группами кнопок1)

-

Минимум в два раза больше расстояния между активной зоной кнопок приказа

1) Например, между кнопками вызова персонала/открытия/закрытия двери и кнопками приказа.

1 - кнопка вызова на этаж; а- предпочтительно 700

Рисунок 3 - Расположение кнопки вызова на этаже, мм

5.4.2.2 Устройства управления на этажных площадках

5.4.2.2.1 Кнопки вызова должны отвечать требованиям таблиц 3 и 4, а символы - требованиям ГОСТ 28911. Дополнительные кнопки маркируются в соответствии с 5.4.2.3.2, перечисление а).

5.4.2.2.2 Кнопки увеличенного размера должны отвечать требованиям приложения B.

5.4.2.2.3 Может быть предусмотрено устройство содействия доступности лифта, маркированное по ГОСТ 28911.

Устройство должно соответствовать требованиям таблиц 3 и 4 [за исключением пункта с)] и располагаться рядом с устройством управления на этажных площадках.

Устройство служит для включения звуковой сигнализации согласно 5.4.3.3, перечисление b), если оно не включено постоянно, а также назначает на вызов ближайшую доступную кабину, инициирует задержку закрывания дверей лифта.

5.4.2.3 Устройства управления в кабине

5.4.2.3.1 Устройства управления в кабине должны соответствовать требованиям, приведенным в таблицах 3 и 4, и располагаться следующим образом:

a) кнопки приказа должны располагаться над кнопками вызова персонала и управления дверью;

b) при горизонтальном расположении кнопок приказа кнопки располагаются в один ряд слева направо. При вертикальном расположении кнопки приказа располагаются в один ряд снизу вверх или в несколько рядов слева направо и, затем, снизу вверх.

5.4.2.3.2 Кнопки для управления лифтом должны иметь следующее обозначение:

a) кнопки приказа: идентифицируются символами (например, числа, символы или пиктограммы) в соответствии с числом этажей в здании, предпочтительно: -2, -1, 0, 1, 2 и т.д.;

b) кнопка вызова персонала: желтая с символом в форме колокольчика по ГОСТ 28911;

c) кнопка открытия дверей: имеет обозначение <|> по ГОСТ 28911;

d) кнопка закрытия дверей (при наличии): имеет обозначение >|< по ГОСТ 28911.

5.4.2.3.3 Если для регистрации вызовов используются клавишные панели, они должны соответствовать требованиям 5.4.3.1.1. Кнопки вызова персонала и открытия/закрытия двери располагаются под клавишной панелью.

5.4.2.3.4 Кнопки увеличенного размера должны отвечать требованиям приложения B.

5.4.2.3.5 Панель управления должна располагаться на стенке кабины следующим образом:

a) в кабинах с центрально-раздвижными двустворчатыми дверьми панель управления должна находиться справа, если смотреть со стороны двери в кабину (со стороны основной двери - в кабинах с несколькими дверными проемами);

b) в кабинах с односторонне-раздвижными дверьми панель управления должна находиться со стороны закрытия двери, если смотреть со стороны главного входа (на тип кабины 1 не распространяется);

c) если ширина кабины превышает 1600 мм, панель управления устанавливается на каждой боковой стенке кабины (данное требование не относится к кабинам типа 1);

d) в кабинах с дверьми на смежных стенках панель управления устанавливается на каждой стенке кабины без двери.

Сигнальные устройства на этажных площадках

5.4.2.4.1 Сигнальные устройства (при наличии) по ГОСТ 33894.1 в форме стрелок должны располагаться сбоку или над дверьми шахты.

Стрелки должны располагаться на высоте от 1800 мм до 2500 мм над уровнем пола этажной площадки и обеспечивать угол обзора с этажной площадки не менее 140° в горизонтальной плоскости и 70° в вертикальной плоскости снизу. Высота стрелок должна составлять минимум 40 мм.

Стрелки для одиночных лифтов могут устанавливаться внутри кабины на высоте от 1600 мм до 2000 мм над уровнем пола таким образом, чтобы их было отчетливо видно с этажной площадки при открытии дверей лифта.

5.4.2.4.2 Включение стрелок должно сопровождаться звуковым сигналом. При движении вверх выдается один звуковой сигнал, а при движении вниз - два. Звуковые сигналы должны соответствовать требованиям, приведенным в 5.1.2.

5.4.2.4.3 Звуковой сигнал на этаже должен включаться при начале открывания дверей. Допускается использовать шум открывающейся двери вместо звукового сигнала, если его уровень звука 45 дБ(А) или выше.

5.4.2.5 Сигнальные устройства в кабине

5.4.2.5.1 Индикатор положения кабины должен находиться на панели управления или располагаться над панелью управления кабиной. Горизонтальная ось индикатора должна находиться на высоте от 1600 до 1800 мм над уровнем пола кабины. Высота номеров этажей должна составлять от 30 до 60 мм.

Дополнительные индикаторы могут устанавливаться в различных местах, например, над дверью кабины или на второй панели управления в кабине.

5.4.2.5.2 Перед прибытием кабины на этаж назначения должно звучать голосовое оповещение, содержащее номер этажа, на который прибывает кабина. Голосовое оповещение должно соответствовать требованиям 5.1.2.

5.4.2.5.3 Вызов персонала должен сопровождаться визуальной и звуковой сигнализацией, в которой используется:

a) визуальный символ желтого цвета, соответствующий требованиям ГОСТ 28911, который подсвечивается при инициации вызова персонала до окончания сеанса переговорной связи;

b) звуковой сигнал, соответствующий требованиям 5.1.2, который должен звучать после инициации вызова персонала;

c) символ зеленого цвета, соответствующий требованиям ГОСТ 28911, который подсвечивается во время сессии переговорной связи.

5.4.2.5.4 Для обеспечения доступности лицам с ослабленным слухом рекомендуется применять индукционную петлю. Пиктограмма с символом индукционной петли (рисунок 4) размещается вблизи микрофона для связи с персоналом.

Индукционная петля используется также для передачи голосовых оповещений по 5.4.2.5.2.

Примечание - Размеры - квадрат (20 - 50)×(20 - 50) мм.

Рисунок 4 - Пиктограмма с символом индукционной петли

5.4.3 Требования к устройствам управления и сигнальным устройствам в системах управления на этаж назначения

5.4.3.1 Устройства управления на посадочных площадках

5.4.3.1.1 Если используются клавишные панели, расположение клавишей должно быть таким, как на рисунке 5.

Рисунок 5 - Клавишная панель

Клавишные панели должны отвечать требованиям таблиц 3 и 4 с учетом следующих исключений и дополнительных требований:

a) ширина клавишной панели не должна превышать 120 мм;

b) высота клавишной панели не должна превышать 160 мм;

c) расстояние между клавишами должно быть от 5 до 15 мм;

d) цифры должны быть нанесены на клавиши и не должны быть рельефными (выступающими над поверхностью клавиши), однако могут быть выгравированы (углублены в поверхность клавиши);

e) знак в виде звездочки на клавише основного посадочного этажа должен отвечать требованиям ГОСТ 28911, а значок «минус» должен быть рельефным;

f) только на кнопке с цифрой «5» должна быть одна рельефная (выступающая над поверхностью клавиши) точка;

Шрифт Брайля не используется.

5.4.3.1.2 Должно быть предусмотрено устройство содействия доступности лифта по 5.4.2.2.3, маркированное по ГОСТ 28911. Устройство должно соответствовать требованиям таблиц 4 и 5 [за исключением пункта с)] и располагаться рядом с клавишной панелью, предпочтительно под ней.

Если используются сенсорные экраны, они должны соответствовать требованиям, приведенным в приложении C.

5.4.3.1.3 На каждой стене этажной площадки необходимо предусмотреть по крайней мере один комплект элементов управления между двумя соседними дверьми шахты.

5.4.3.2 Устройства управления в кабине

Кнопки вызова персонала, открывания двери и закрывания двери (при наличии) должны соответствовать требованиям 5.4.2.3.2.

5.4.3.3 Сигнальные устройства на этажных посадочных площадках

Сигнальные устройства на этажных площадках должны отвечать следующим требованиям:

a) выбранный этаж и назначенный на него лифт должны подтверждаться визуальным сигналом. Сигнальное устройство должно располагаться рядом с устройством ввода назначаемого вызова. Высота символов назначенного лифта на экране дисплея должно быть не менее 25 мм. После воздействия на устройство содействия доступности лифта визуальный сигнал должен быть виден на протяжении всего времени звукового оповещения;

b) выбранный этаж, назначенный лифт и его положения должны подтверждаться голосовым оповещением, которое включается при воздействии на устройство содействия доступности лифта (см. 5.4.3.1.2), если оно не включено постоянно;

c) каждый лифт должен иметь свою индивидуальную маркировку (например, A, B, C и т.д.). Маркировка размещается непосредственно над или рядом с дверью шахты на высоте от 1800 мм до 2500 мм над уровнем пола этажной площадки. Символы маркировки должны быть высотой не менее 40 мм и контрастно выделяться на своем фоне (см. 5.1.2);

d) если устройство содействия доступности лифта активировано, назначенный лифт при прибытии на этаж должен идентифицировать себя звуковым сигналом или голосовым оповещением (например, лифт A);

e) звуковые сигналы и голосовые оповещения [перечисления b) и d)] должны соответствовать требованиям 5.1.2.

5.4.3.4 Сигнальные устройства в кабине

Сигнальные устройства в кабине должны соответствовать требованиям, приведенным в 5.4.2.5.

6 Контроль соблюдения требований безопасности и/или защитных мер

В таблице 5 приведены методы контроля соблюдения требований безопасности и/или защитных мероприятий, описанных в разделе 5.

Таблица 5 - Методы контроля соблюдения требований по безопасности и/или защитных мероприятий

Пункт

Требования по безопасности

Визуальный контрольa)

Функциональные
испытания
b)

Измеренияc)

Чертежи/
расчеты
d)

Информация для пользователяe)

5.1

Общие сведения

5.1.1

Незначительные угрозы

5.1.2

Звуковые сигналы

5.3

Размеры кабины и оборудования в кабине

5.3.1

Размеры кабины

5.3.2.1

Поручень

5.3.2.2

Откидное сиденье

5.3.2.3

Устройства для наблюдения за препятствиями

5.4

Элементы управления и сигнальные устройства

5.4.1

Элементы управления

Таблица 3, a)

Площадь толкателя кнопок

Таблица 3, b)

Размеры толкателя кнопок

Таблица 3, c)

Обозначение толкателя кнопок

Таблица 3, d)

Обозначение передней панели

Таблица 3, e)

Усилие нажатия

Таблица 3, f)

Обратная связь

Таблица 3, g)

Сигнал обратной связи регистрации

Таблица 3, h)

Кнопка основного посадочного этажа

Таблица 3, i)

Расположение символа на кнопке

Таблица 3, j)

Размер символа

Таблица 3, k)

Высота рельефа

Таблица 3, l)

Расстояние между толкателями кнопок вызова или кнопок выбора этажа

Таблица 4, e)

Расстояние между группами кнопок

Таблица 4, a)

Минимальная высота над уровнем пола

Таблица 4, b)

Максимальная высота над уровнем пола

Таблица 4, c)

Расположение кнопок

Таблица 4, d)

Минимальное боковое расстояние

5.4.2.2.1

Маркировка кнопок вызова

5.4.2.2.2

Кнопки увеличенного размера

5.4.2.2.3

Кнопки дополнительных возможностей

Таблица 4

Расположение элементов управления на посадочных площадках

5.4.2.3.1

Расположение элементов управления

5.4.2.3.2

Маркировка кнопок в кабине

5.4.2.3.3

Клавишные панели

5.4.2.3.4

Кнопки увеличенного размера

5.4.2.3.5

Расположение панели управления кабиной

5.4.2.4.1

Сигналы управления в форме стрелок

5.4.2.4.2

Звуковой сигнал

5.4.2.4.3

Звуковой сигнал при открытии дверей на посадочной площадке

5.4.2.5.1

Сигнал управления положения кабины

5.4.2.5.2

Голосовое оповещение

 

5.4.2.5.3

Сигналы управления и звуковые сигналы вызова

5.4.3.1.1

Кнопочные панели

5.4.3.1.2

Кнопка дополнительных возможностей

5.4.3.1.3

Сенсорный экран

Приложение C

Расположение элементов управления на посадочной площадке

5.4.3.2

Конструкция и расположение элементов управления в кабине

5.4.3.3

Сигналы управления и устройства звуковой сигнализации для систем управления по этажу назначения на посадочных площадках

5.1.2

Уровень громкости звукового сигнала

5.4.3.4

Сигнальные устройства в кабине

a) Визуальный контроль используется для проверки соответствия требованиям с помощью визуального контроля поставленных компонентов.

b) Функциональные испытания позволяют установить, что заявленные технические характеристики соответствуют предъявленным требованиям.

c) Измерения (в указанном диапазоне) проводят для проверки соответствия требованиям с использованием соответствующих инструментов.

d) Проверка поставленных компонентов на предмет соответствия расчетным характеристикам по чертежам/ расчетам.

e) Проверка наличия соответствующего пункта в руководстве по эксплуатации или по маркировке.

Примечание - Знак «» означает, что проверка проводится, знак «■» - не проводится.

7 Сопроводительная документация

7.1 В сопроводительной документации должна быть следующая информация:

a) необходимость поддержания безопасного и беспрепятственного доступа к лифту и элементам его управления на этажных площадках (настоящее требование не относится к ответственности лифтовых организаций);

b) инструкции по настройке времени задержки закрытия двери;

c) инструкции по настройке уровня звука сигналов в кабине и на посадочных площадках;

d) правила пользования лифтом должны содержать информацию для пассажиров по использованию специальных функций лифта, например, устройства содействия доступности лифта, управление на этаж назначения и т.д.

Приложение A
(справочное)
Рассматриваемые категории инвалидности

В таблице A.1 указаны категории инвалидности, рассматриваемые в настоящем стандарте и в отношении которых был проведен соответствующий анализ доступности и безопасности.

Некоторые комбинации инвалидностей не рассматриваются в настоящем стандарте (см. таблицу A.2), поскольку считается, что требования к данным комбинациям выполняются:

- либо в отношении каждой из категорий;

- либо данные комбинации создают такие требования к лифтам, выполнение которых возможно только индивидуальными мерами, в результате согласования между заказчиком и производителем лифта, или использование лифта допускается только при сопровождении инвалида другим лицом.

В настоящем стандарте не рассматриваются инвалидности, которые непосредственно не связаны с функциями лифта (например, клаустрофобия) - см. таблицу A.2.

Таблица A.1 - Категории инвалидности, рассматриваемые в данном стандарте

Категория

Вид категории

Характеристика

Физические ограничения

Поражения опорно-двигательного аппарата

Потребность в использовании следующих средств:

- кресло-коляска;

- трость;

- ходунки;

- ходунки на колесиках (каталки);

- локтевые костыли

Нарушение выносливости, равновесия

Медленное передвижение, плохой баланс

Неловкость

Снижение функционирования рук, кистей рук, пальцев

Сенсорные ограничения

Ослабленное зрение

Слепота (использование трости, собака-поводырь), частичная потеря зрения, трудности различения цвета

Ослабленный слух

Частичная глухота

Проблемы с речью

Ограниченная или полная потеря речи

Интеллектуальные ограничения

Трудности с обучением

Пониженная способность управлять лифтом

Таблица A.2 - Категории инвалидности, не рассматриваемые в настоящем стандарте

Категория

Подкатегория

Примечание

Физические ограничения

Сильное ограничение двигательных возможностей

Паралич или отсутствие верхних конечностей

Ограничение возможностей в силу роста

Рост менее 1,5 м или более 2,0 м

Фобии

Клаустрофобия

-

Акрофобия (боязнь высоты)

-

Приложение B
(обязательное)
Устройства управления очень больших размеров

B.1 Введение

В данном приложении приведены требования по проектированию элементов управления очень больших размеров для обеспечения повышенной доступности, (см. также приложение D).

B.2 Элементы управления на посадочных площадках

Кнопки должны отвечать требованиям, приведенным в 5.4.2.2.1, со следующими отличиями:

a) минимальный размер активной зоны кнопки должен составлять 50×50 мм или диаметр активной зоны должен быть 50 мм;

b) размер символов, расположенных в активной зоне кнопок, должен быть от 25 до 40 мм.

B.3 Элементы управления в кабине

Кнопки должны соответствовать требованиям, приведенным в 5.4.2.3, со следующими отклонениями и дополнительными требованиями по их расположению:

a) действуют требования, приведенные в B.2, перечисления a) и b);

b) кнопки выбора этажа должны располагаться на наклонной горизонтальной панели. Проекция наклонной панели не должна превышать 100 мм под углом 30° ± 15° к вертикальной оси (см. рисунок B.1);

c) максимальная высота от уровня пола до оси самой высоко расположенной кнопки не должна превышать 1000 мм;

d) если кнопки выбора этажа располагаются в один ряд, они организуются слева направо;

e) кнопка открытия двери, кнопка тревоги и кнопка закрытия двери (при наличии) должны располагаться отдельно от кнопок выбора этажа на расстоянии, как минимум в два раза большем, чем расстояние между активными зонами кнопок выбора этажа (см. рисунок B.2);

f) если кнопки выбора этажа располагаются в два или более рядов, они организуются слева направо и снизу вверх (см. рисунок B.3).

Рисунок B.1 - Панель управления кабиной. Пример вида сбоку

Рисунок B.2 - Пример расположения кнопок в один ряд

Рисунок B.3 - Пример расположения кнопок в два ряда

Приложение C
(обязательное)
Сенсорные экраны систем управления на этаж назначения

Сенсорные экраны должны отвечать следующим требованиям:

a) яркость сенсорного дисплея должна составлять как минимум 300 кд/м2. Необходимо обеспечить соответствующий яркостной контраст между активной зоной, символами кнопок и фоном. Фон дисплея должен быть сплошным и неподвижным;

b) сенсорные кнопки на экране должны отвечать требованиям таблицы 3 со следующими исключениями и дополнительными требованиями:

1) пункты c), d), e), g), h), i), j), k) и l) таблицы 3 не применяются;

2) предпочтительно, чтобы кнопка основного посадочного этажа была зеленой или в зеленой рамке;

3) символы должны находиться в активной зоне кнопки;

4) высота символов должна быть от 15 до 40 мм;

5) расстояние между активной зоной кнопок должно быть не менее 5 мм;

c) расположение сенсорного экрана должно соответствовать требованиям, приведенным в таблице 4, за исключением пункта c);

d) высота символов назначения этажа на сенсорном экране должна быть не менее 25 мм, и они должны отображаться на протяжении соответствующего звукового оповещения (если функция включена);

e) в соответствии с требованиями, приведенными в 5.4.3.1.2, кнопка устройства содействия доступности должна располагаться рядом с сенсорным экраном, предпочтительно снизу, для включения речевого оповещения и выбора этажа в соответствии с таблицей 4, пункт e). По мере необходимости, она также может включать такие дополнительные функции, как крупные символы и повышенный контраст;

f) при нажатии на кнопку устройства содействия доступности выполняется следующее:

1) последовательное оповещение доступных этажей назначения (например, на этаже, где расположен вход в здание, объявляются этажи, начиная с самого нижнего до самого верхнего, или на самом верхнем этаже сначала объявляется этаж, где расположен вход в здание, а затем выполняется отсчет с самого верхнего до самого нижнего этажа);

2) в многоэтажных зданиях следует сначала выбрать зону назначения, а затем необходимый этаж.

Примечание - Подтверждение направления движения назначенного лифта описывается в 5.4.3.3.

Приложение D
(справочное)
Рекомендации по повышению доступности и удобства использования

Для повышения доступности и удобства использования лифтов имеется несколько возможностей. Это может быть особенно важно для многоквартирных жилых домов, а также в общественных местах (например, на железнодорожных станциях) и в специальных учреждениях (например, в больницах, домах престарелых и т.д.), где необходимо обеспечить возможность использования лифта инвалидами и другими МГН:

a) на стеклянных дверях лифта должна быть нанесена маркировка для предотвращения столкновения с дверьми, при этом можно использовать такую же маркировку, как на стенах и дверях в здании;

b) прозрачные элементы стен кабины могут сократить риск паники в случае застревания лифта;

c) поверхность стен кабины должна быть матовой для предотвращения отражения световых лучей, образования оптических иллюзий и бликов;

d) если на одной из стен кабины установлено зеркало, расстояние в вертикальной плоскости между полом и нижним краем зеркала должна быть не менее 300 мм, зеркальную поверхность необходимо обозначить, например, гравировкой какой-либо надписи, рисунка.

Приложение ДА
(справочное)
Сведения о соответствии ссылочных межгосударственных стандартов международным
(европейским) стандартам, использованным в качестве ссылочных в примененном
европейском стандарте

Таблица ДА.1

Обозначение ссылочного
межгосударственного стандарта

Степень
соответствия

Обозначение и наименование ссылочного международного (европейского) стандарта

ГОСТ 28911-2015 (ИСО 4190-5:2006)

MOD

ISO 4190-5:2006 «Лифты (элеваторы). Установка. Часть 5. Устройства управления, сигнализация и вспомогательные приспособления»

ГОСТ 33984.1-2016 (ЕН 81-20:2014)

MOD

EN 81-20:2014 «Правила безопасности по устройству и установке лифтов. Лифты для транспортирования людей и грузов. Часть 20. Пассажирские и грузопассажирские лифты»

ГОСТ ISO 12100-2013

IDT

EN ISO 12100:2010 «Безопасность машинного оборудования. Общие принципы проектирования. Оценка риска и снижения риска»

Примечание - В настоящей таблице использованы следующие условные обозначения степени соответствия стандартов:

- IDT - идентичный стандарт;

- MOD - модифицированные стандарты.

Приложение ДБ
(справочное)
Сопоставление структуры настоящего стандарта со структурой примененного в нем
европейского стандарта

Таблица ДБ.1

Структура настоящего стандарта

Структура европейского стандарта EN 81-71:2018

Разделы

Подразделы

Разделы

Подразделы

-

 

0

 

1

-

1

-

2

-

2

-

3

-

3

-

4

-

4

-

5

-

5

-

6

-

6

-

7

-

7

-

Приложения

A

Приложения

А

B

В

C

С

D

D

ДА

-

ДБ

-

-

ZA

Библиография

-

Библиография

-

Библиография

[1]

Технический регламент
Таможенного союза
ТР ТС 011/2011

Безопасность лифтов

[2]

EN 12184:2014

Кресла-каталки с электроприводом, мотороллеры и зарядные устройства для них. Требования и методы испытаний

 

Ключевые слова: лифты, специальные требования безопасности и доступности