Технология монолитного строительства в несъемной опалубке
Содержание
Технология монолитного строительства в несъемной опалубке применяется для строительства малоэтажных и многоэтажных зданий, при реконструкции и капитальном ремонте жилого фонда.
Возведение стен и перегородок с использованием несъемной опалубки сочетает в себе две технологии: монолитное строительство и возведение конструкций из пустотных блоков.
Основными этапами технологии монолитного строительства в несъемной опалубке являются: возведение участка стены из пустотных блоков, установка арматуры и заполнение бетоном внутренних пустот. Блоки выполняют функцию опалубки, но в отличие сборно-разборной опалубки, они не демонтируются после достижения бетоном необходимой прочности, а становятся составной частью стены.
В настоящий момент в России все большее применение находит несъемная опалубка из блоков «Durisol», изготовленных на основе древесной щепы и цемента, предназначенная для монолитного строительства без применения связующих растворов и клеящих материалов. Несомненным преимуществом несъемной опалубки является возможность возведения многослойной ограждающей конструкции с необходимым сопротивлением теплопередачи за один технологический цикл, т.е. стена получается «теплой» и не требует дальнейшего утепления. Теплоизоляционные свойства опалубки позволяют производить работы по бетонированию при отрицательных температурах, что сокращает сроки строительства.
Небольшой вес блоков несъемной опалубки позволяет вести их монтаж вручную. Подъем блоков может осуществляться вручную или с помощью подъемников. Подача бетона бетононасосом позволяет полностью отказаться от кранов. Все это в сочетании с малой номенклатурой блоков, сокращением объемов перевозок и хранения материалов позволяет существенно сократить размеры строительной площадки.
Инженерные коммуникации закладываются непосредственно в опалубку, а внутренняя электропроводка прокладывается во фрезеруемых бороздах.
Материал опалубки позволяет воплощать сложные архитектурные формы и декоративные элементы фасада: полукруглые стены, эркеры и т.д.
Технология монолитного строительства в несъемной опалубке из щепо-цементных блоков имеет следующие преимущества:
- простота и скорость монтажа конструкций;
- отсутствие тяжелой подъемной техники;
- небольшие размеры строительной площадки;
- высокое качество поверхности стен и перегородок;
- отличная тепло- и звукоизоляция;
- комфортный микроклимат, т.к. стены хорошо «дышат»;
- высокая пожарная безопасность (группа Г1 - слабогорючие, В1 - трудновоспламеняемые, Д1 - с малой дымообразующей способностью, огнестойкость стены под нагрузкой > 150 мин.);
- устойчивость к атмосферным воздействиям, минимальный уровень поглощения влаги, что позволяет хранить блоки на открытых строительных площадках и подходит для строительства объектов, не требующих штукатурки, например, для шумозащитных экранов у дорог;
- стойкость к образованию плесни, грибков и гниению;
- легкость в применении: материал легко резать, сверлить, в нем прочно держатся гвозди, шурупы, саморезы;
- невысокая трудоемкость работ, что снижает себестоимость строительства.
Технология строительства зданий из блоков «DURISOL»
Блоки Durisol - это система несъемной опалубки, предназначенная для возведения вертикальных строительных конструкций: наружных несущих стен, внутренних несущих стен, перегородок. Технология может применяться не только для малоэтажной застройки, но и для строительства зданий высотой более 4 этажей.
Номенклатура серийно изготавливаемых блоков представляет собой систему-конструктор, которая позволяет создавать любые конфигурации стен и в короткий период возводить объекты любой сложности. Блоки Durisol идеально подходят для проектов, где горизонтальные и вертикальные размеры являются кратными 250 мм. Блоки имеют стандартную длину 500 мм и высоту 250 мм. Толщина, в зависимости от назначения, составляет для различных серий 150, 220, 250, 300 и 375 мм.
Система блоков включает в себя стандартные (рис. 1) рядные блоки (N), универсальные блоки (U), половинчатые блоки (U/2), венцовые (Dr) и дополнительные (доборные) рядные блоки (ЕА). Универсальный блок (U) при необходимости можно разрезать любой пилой (ручная, электрическая, бензопила) и получить половинчатый блок непосредственно на строительной площадке. Универсальные блоки используются также для изготовления перемычек оконных и дверных проемов. Дополнительные (доборные) рядные блоки (ЕА) укладываются в углах стен и предназначены для сохранения правил перевязки наружных стен. Блоки для наружных стен изготавливаются с дополнительным внутренним слоем теплоизоляционного материала из пенополистирола или минеральной ваты.
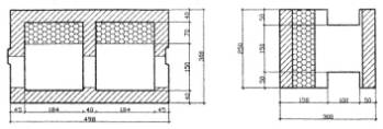
Вес рядных блоков составляет от 6 до 15 кг. Для возведения 1 м2 стены необходимо 8 блоков.

Рис. 1 Стандартный блок для наружных работ (с 70 мм пенополистирольными вкладышами) серии DSs 30/15
Блоки на строительную площадку доставляются в пакетах. Для монолитной конструкции, возводимой из блоков Durisol, необходимо обеспечить ровную горизонтальную поверхность, которая создается для первого ряда блоков с помощью выравнивающего строительного раствора по обрезу фундамента или на панели перекрытия. Небольшие корректировки стыков горизонтальной и вертикальной плоскости производятся деревянными клиньями.
Укладка первого ряда блоков начинается с углов, с учетом простенков и проемов. Монтаж углов производится из универсальных блоков (U). Перед установкой блока в его стенках производят вырезы для обеспечения стыковки с укладываемыми соседними блоками (N и ЕА) при заливке бетонной смеси (рис. 2). Все остальные ряды укладываются согласно правилам перевязки со смещением на 1/2 блока (вертикальные стыки должны проходить по центру блоков нижнего ряда). Основным требованием перевязки является обеспечение непрерывности бетонного ядра при последующей заливке бетоном.
Блоки устанавливаются встык (паз-гребень) друг к другу «насухо» без применения связующих строительных растворов. При этом не образуется мостиков холода, поверхность стен ровная, что важно для штукатурных работ.

Рис. 2
Оконные и дверные проемы выкладываются с помощью универсальных блоков (U) или (U/2) (рис. 3).

Рис. 3
Перемычки над проемами шириной до 2 м выполняются с помощью вертикально поставленных блоков (U/2) с вырезанными поперечными перегородками. Если ширина проемов более 2,5 м, можно использовать целые блоки (U). Высота бетонного ядра универсальных блоков U/2 с вырезанными поперечными перегородками. Если ширина проемов более 2,5 м, можно использовать целые блоки (U). Высота бетонного ядра перемычек составляет соответственно 200 мм или 450 мм. Конструкция перемычки усиливается арматурными стержнями диаметром 10 мм, распределительная арматура - 6 мм. Блоки перемычек укладывают на предварительно установленную временную опалубку.
В ряде блоков под оконными проемами нужно укладывать арматуру из 2-х стержней диаметром 8-40 мм с заходом не менее 750 мм в примыкающую к проему часть стены.

Рис. 4
В местах примыкания блоков перегородки к блокам наружной стены, по всей высоте этажа, необходимо сделать вырезы в боковых стенках блоков для обеспечения целостности бетонного ядра при заливке (рис. 4). Для усиления стыка в каждом третьем ряду рекомендуется укладывать L-образную арматуру (6 мм, 1 стержень длиной 400 мм).
Бетонная смесь для заливки внутренних полостей в кладке из блоков Durisol выполняет функцию несущего каркаса стены, воспринимающего нагрузку от перекрытий и крыши здания. Класс бетона (В 15, В20, В25, В30) определяется в зависимости от расчетной нагрузки на здание и должен быть одинаковым для всего этажа. Заливку пустот блоков бетонной смесью следует производить после установки 3¸4- рядов блоков (не выше 1000 мм). Уровень заливки не должен доходить до края верхнего блока (за исключением перемычек и последнего ряда стены). Бетонная смесь должна быть такой консистенции, чтобы она могла проникать во все полости, образованные блоками в стене.
Заливка полостей бетоном может производиться вручную (на небольших объектах), краном с бадьей или с помощью бетононасоса, но в этом случае следует избегать подачи с высоким давлением. Уплотнение бетона на малоэтажных зданиях производится вручную штыкованием, или с помощью глубинного вибратора диаметром не более 40 мм (рис. 5).
В случае приостановки бетонирования, бетон необходимо залить лишь до половины последнего ряда и установить вертикальные арматурные стержни в бетонную смесь на глубину не менее 200 мм.

Рис. 5
Шаг стержней не должен превышать 500 мм, а суммарная площадь поперечного сечения должна составлять минимум 1/2000 от поперечного сечения бетонного ядра (6 мм в каждую ячейку или 8 мм в каждый блок).
Кладка из блоков Durisol позволяет устраивать любые конструкции перекрытия: сборные, монолитные, балочные (рис. 6). В бетон укладывается стягивающий арматурный пояс. В зависимости от толщины перекрытия стенки стеновых блоков срезаются по высоте до нужного размера, чтобы придать блоку L-образную форму (рис. 7).

Рис. 6

Рис. 7
Штукатурные работы начинают после набора прочности бетоном в течение 28 суток.
Штукатурка наносится в три слоя: предварительный набрызг, основная штукатурка и наружная штукатурка. Перед нанесением штукатурки стену необходимо очистить и высушить. Перед нанесением каждого последующего слоя штукатурки предварительный набрызг должен затвердеть.
Под ограждение готовится железобетонное основание толщиной не менее 120 мм. Ограждение из блоков толщиной 150 мм может быть спроектировано с разделительными несущими столбами (из блоков Durisol большего размера, стального профиля или железобетона) или без разделительных элементов (рис. 8). Шаг разделительных элементов - 2¸4 м, в зависимости от высоты и назначения ограждения.
Блоки устанавливаются со смещением на 1/2 блока для перевязки швов. Блоки укладываются насухо, за исключением первого ряда, который необходимо уложить на выравнивающий цементный раствор. Каждый второй или третий ряд (в зависимости от высоты ограждения) необходимо армировать (рис. 9). Разделительные элементы из блоков Durisol усиливаются вертикальными арматурными стержнями. Бетонирование внутренней полости блоков осуществляется аналогично бетонированию стен и перегородок.

Рис. 8.

Рис. 9.
Журнал «Ценообразование и сметное нормирование в строительстве», ноябрь 2010 г. № 1