ПРАВИТЕЛЬСТВО
МОСКВЫ
МОСКОМАРХИТЕКТУРА.
РЕКОМЕНДАЦИИ
по реконструкции и модернизации
существующего фонда школьных зданий в соответствии с современными
педагогическими требованиями
1997
СОДЕРЖАНИЕ
ПРЕДИСЛОВИЕ.
1. Разработаны Институтом общественных зданий (ИОЗ) Минстроя РФ (док. арх. Степанов В.И. - руководитель; канд. арх. Бурмистрова С.А., канд. арх. Степанов А.В., арх. Безсонова Г.А.).
2. Согласованы Московским Комитетом образования, Москомархитектурой, Мосгосэкспертизой.
3. Подготовлены к утверждению и изданию Управлением перспективного проектирования и нормативов Москомархитектуры (арх. Шалов Л.А., инж. Щипанов Ю.Б.).
4. Утверждены Указанием Москомархитектуры от 01.07. 1997г. № 24
Настоящие Рекомендации разработаны в соответствии с Программой по разработке Московских городских строительных норм, рекомендаций, пособий и других нормативно-методических материалов по проектированию, утвержденной Постановлением Правительства г. Москвы от 01.11.94 г. № 992.
Рекомендации разработаны как дополнение к нормативным документам в строительстве, действующим на территории г. Москвы, и распространяются на проектирование реконструкции и модернизации существующего фонда зданий общеобразовательных школ.
Рекомендации представляют собой Методическое пособие, позволяющее оценить любой проект или школьное здание с точки зрения его возможностей для организации перспективных методов обучения.
Настоящие Рекомендации содержат материалы необходимые для:
• приведения состава и площади помещений существующих зданий массовых типов школ в соответствие с новыми педагогическими требованиями, закрепленными в МГСН 4.06-96 «Общеобразовательные учреждения» (1996 г.);
• оценки возможностей приспособления их под перспективные виды учебных учреждений в соответствии с новой номенклатурой, составом и площадями помещений, согласованными Департаментом образования г. Москвы (письмо от 31.07.96г. № 2.734.8.16.).
Рекомендации подготовлены на примере 6 типовых проектов школ, получивших наиболее массовое применение в строительстве г. Москвы в период с 1960 по 1990-е гг. Вместе с тем, предложенная методика, может быть также использована для усовершенствования школьных зданий, построенных по индивидуальным и повторно применяемым проектам прошлых лет.
Основные положения методики сводятся к:
• установлению целевых типов общеобразовательных учреждений, включая состав и площади их помещений;
• оценке существующих зданий по качественной характеристике классов - кабинетов, по составу и площадям помещений относительно целевых программ;
• разработке предложений по направлениям приспособления устаревших зданий школ к новым педагогическим условиям.
2.1. В целях решения важнейшей государственной задачи по подготовке высокоразвитой и высокообразованной личности в Законе РФ «Об образовании» (1992г.) были установлены следующие социально-педагогические аспекты, влияющие на дальнейшее развитие учебно-материальной базы современной школы:
• снижена наполняемость учебного класса с 40-30 до 25 учащихся;
• обучение в школе ориентировано на индивидуальное развитие каждой личности, а не на среднего ученика, как это было ранее;
• введено дифференцированное обучение по направлениям в старшем звене школы, что предопределяет 3 ступени обучения вместо единой общеобразовательной школы;
• предусмотрены новые активные формы обучения в школе - групповые и индивидуальные;
• предложена полная компьютеризация учебного процесса.
Указанные положения Закона влекут за собой пересмотр материальной среды школы, как по принципам организации сети и типов зданий, так и по организационной и функциональной структуре учебного здания. Это получило отражение в новых Московских городских строительных нормах (МГСН 4.06-96), введенных в действие с мая 1996г. и, в общем виде, может быть сведено к следующим позициям:
• вместо единой общеобразовательной школы установлена система общеобразовательных учреждений для различных градостроительных уровней, •включающая широкую номенклатуру видов и типов учебных зданий (общеобразовательные школы, школы с профильным обучением I, II и III ступеней, гимназии, лицеи);
• предложена широкая палитра по составу и площадям основных функциональных групп помещений общеобразовательных учреждений с учетом общего и дифференцированного обучения старшего звена школы по различным направлениям профилизации;
• увеличены расчетные показатели площади: классов и учебных кабинетов (с 2 до 3 м2/уч.); библиотеки (с 60 до 200 м2); мастерских с учетом изучения различных технологий (до 9-11,5 м2/уч.); рекреационных помещений (с 1 до 2 м2/уч.); учительских - с учетом организации для каждого преподавателя индивидуального рабочего места; спортзалов - до 1,4 м2/уч.;
обеденного зала - до 1 м2/посадочное место; зрительного зала - из расчета одновременной посадки до 60% учащихся;
• в обязательный перечень включены отсутствующие ранее помещения: практикумы по естественным наукам (по два помещения 50 м2 на каждую дисциплину) и специализированные кабинеты для профильного обучения;
мелкие помещения - для тихих игр, рабочие комнаты, комнаты индивидуальных занятий, ресурсные центры - по 10-12 м2 на учебную классную группу и т.д.
В результате, удельный показатель нормируемой площади на одного учащегося увеличился, по сравнению с предыдущими нормами, в 1,5-5 раз, в зависимости от степени специализации обучения. Это обуславливает существенное отставание действующего фонда школьных зданий от новой нормативной базы и социально - педагогической ориентации общества.
2.2. В настоящее время в г Москве насчитывается более 1300 школьных зданий, построенных по проектам прошлых лет в разные периоды становления системы образования. С одной стороны, они значительно отличаются друг от друга по нормативной базе, с другой, не соответствуют новым задачам народного образования.
В этой связи следует отметить, что вместимость, указанная в паспортах типовых проектов не соответствует фактической, вследствие уменьшения нормативной наполняемости классов современных школ до 25 и даже 20 уч. (в старших классах и классах с профильным обучением). Так, анализ одного из последних типовых проектов, действующих на сегодняшний день (У-92), показал, что его вместимость, согласно МГСН 4.06-96 «Общеобразовательные учреждения» и с учетом перехода на новые методы обучения, будет не 844, а 256 уч. Это положение принципиальным образом меняет ситуацию, как по сети, так и по оценке материально-технической базы действующих зданий и типовых проектов, обуславливает необходимость их корректировки.
Для оценки возможностей приспособления существующих школьных зданий к новым условиям и преобразования их в перспективные типы и виды учебных заведений потребовалось решить ряд логических задач, поставленных в настоящей работе в следующей последовательности:
(1.) - разработать целевую программу, включающую номенклатуру видов и типов наиболее массовых общеобразовательных учреждений, составы в площади помещений к ним;
(2.) - оценить педагогические возможности классов и кабинетов в типовых проектах, установить их реальную наполняемость;
(3.) - определить дефицит помещений в типовых проектах по отношению к новым целевым программам для приспособления их к новым педагогическим условиям.
Проектирование инженерных систем и оборудования реконструируемого фонда школьных зданий следует осуществлять в соответствии с требованиями МГСН 4.06-96 и других нормативных документов в строительстве, действующих на территории г. Москвы.
3.1. В соответствии с МГСН 4.06-96 к настоящей работе были разработаны примерные составы и площади помещений по следующим видам и типам зданий общеобразовательных учреждений (табл.3.1.).
Первая группа охватывает рекомендуемые для массового строительства общеобразовательные школы традиционного типа I - II и I - III ступеней обучения, с минимально допустимым составом помещений и учетом размещения их в жилых микрорайонах.
Вторая группа включает общеобразовательные школы с профильным обучением I-III и II-III ступеней, являющиеся новыми в системе общего образования в плане решения задачи дифференцированного обучения учащихся старших классов, начиная с 8-го. Первые из них рассчитаны на размещение в жилых микрорайонах, вторые - в качестве «кустовых» для обслуживания сети основных школ группы микрорайонов.
Третья группа включает специализированные учебные учреждения - гимназии и лицеи, дающие, как правило, общее образование с соответствующим уклоном, и размещаемые за пределами микрорайонов и жилых районов.
Полный развернутый состав и площади помещений по указанным видам и типам зданий приведен в приложении № I (согласованы Департаментом образования г. Москвы, письмо № 2.734.816. от 31.07.96г.).
3.2. Уровень нормативных требований по целевым типам УЗ выражает удельный показатель нормируемой площади (на одного учащегося), представленный в таблице 3.2. В рекомендуемых зданиях он колеблется в значительных пределах: от 11 до 39 м2/уч. При этом, чем выше степень дифференциации обучения по направлениям, тем он выше, вследствие более расширенного состава помещений: в специализированных учебных заведениях III группы - гимназиях и лицеях он самый высокий (23-39 м2/уч.), в основной общеобразовательной школе (1 группа) - самый низкий (11-17 м2/уч.).
Таблица 3.1.
|
Группа
|
Виды зданий |
Типы зданий: количество учащихся: количество параллельных классов |
Область применения |
||
|
Жилой микрорайон |
Муниципальный район |
Округ города |
|||
|
I группа |
1. Основная школа (НО) |
I-II ступени |
|
|
|
|
|
■ на 9 классов |
225/1:1:0 |
+ |
|
|
|
|
■ на 18 классов |
450/2:2:0 |
+ |
|
|
|
|
2. Средняя полная школа (НОС) |
I, II, III ступени |
|
|
|
|
|
■ на 11 классов |
275/1:1:1 |
+ |
|
|
|
|
■ на 22 класса |
550/2:2:2 |
+ |
|
|
|
|
■ на 33 класса |
825/3:3:3 |
+ |
+ |
|
|
II группа |
3. Средняя полная школа с профильным обучением (НОСП) |
|
|
|
|
|
|
■ на 11 классов |
275/1:1:1 |
+ |
|
|
|
|
■ на 22 класса |
550/2:2:2 |
+ |
|
|
|
|
■ на 33 класса |
825/3:3:3 |
+ |
+ |
|
|
|
4. Средняя школа II-III ступеней с профильным обучением (ОСП) |
|
|
|
|
|
|
■ на 20 классов |
500/0:2:4 |
|
+ |
|
|
|
■ на 30 классов |
750/0:3:6 |
|
+ |
+ |
|
III группа |
5. Гимназия в составе II-III ступеней (Г) |
|
|
|
|
|
|
■ на 7/8 классов |
140/0:1:1 160 |
|
+ |
|
|
|
■ на 14/16 классов |
280/0:2:2 320 |
|
+ |
+ |
|
|
■ на 21/24 класса |
420/0:3:3 |
|
+ |
+ |
|
|
6. Лицей в составе II-III ступеней (Л) |
|
|
|
|
|
|
■ на 8/10 классов |
160/0:2:2 200 |
|
+ |
|
|
|
■ на 12/15 классов |
240/0:3:3 |
|
+ |
+ |
|
|
■ на 18/27 классов |
360/0:0:9 540 |
|
|
+ |
Примечания: В знаменателе дано количество классов при 12 лет обучения.
Таблица 3.2
Нормируемая площадь по целевым программам.
|
Группа
|
Вид УЗ |
Тип УЗ (классов/ учащихся) |
Суммарная площадь/удельный показатель (м2) |
||
|
учебная группа помещений |
Общешкольная группа помещений |
итого по заданию |
|||
|
I |
Основная школа |
9/225 |
1913/8,5 |
1335/5,9 |
3248/14,4 |
|
|
I - П ступеней |
18/450 |
3070/6,8 |
2111/4,69 |
5181/11,49 |
|
|
Средняя полная |
11/275 |
2828/10,28 |
2018/7,34 |
4846/17,6 |
|
|
школа I – III ступени |
22/550 |
4315/7,84 |
2906/5,28 |
7221/13,1 |
|
|
|
33/825 |
5750/6,96 |
3923/4,76 |
9673/11,7 |
|
II |
Средняя полная |
11/275 |
3447/12,5 |
2160/7,85 |
5607/20,35 |
|
|
школа с профильным |
22/550 |
5500/10 |
3823/6,95 |
9323/16,95 |
|
|
Обучением I - III ступени |
33/825 |
7269/8,81 |
4565/5,5 |
11834/14,34 |
|
|
Средняя школа с |
20/500 |
5238/10,47 |
4754/9,5 |
9992/19,97 |
|
|
Профильным обучением II-III ступени |
30/750 |
5486/8,65 |
6046/8,06 |
12532/16,71 |
|
III |
Гимназия в составе |
7/140 |
2512/17,9 |
2394/17,1 |
4906/35 |
|
|
II-III ступени |
14/280 |
3708/13,2 |
2941/10,5 |
6649/23,7 |
|
|
|
21/420 |
4980/11,85 |
4742/11,29 |
9722/23,14 |
|
|
Лицей в составе II - |
3/160 |
3830/23,9 |
2370/14,8 |
5200/38,75 |
|
|
III ступени, начиная |
12/240 |
5288/22 |
3817/15,9 |
9105/37,9 |
|
|
с 8 кл. |
18/360 |
6655/18,5 |
4660/12,9 |
11315/31,43 |
Примечание: В целях корректного сопоставления с нормируемой площадью типовых проектов все показатели нормируемой площади даны без учета площади рекреаций и бассейна (таблицы 3.2. и 3.1.).
4.1. Новые целевые программы являются перспективной моделью, к которой надо стремиться в условиях реконструкции и модернизации школьных зданий, построенных по проектам прошлых лет.
Между тем, прямое сопоставление состава и площади помещений реконструируемого объекта (например, общеобразовательной школы на 22 класса) с аналогом по вместимости из целевой программы (средней школой или средней полной школой с профильным обучением - на 22 класса) показывает их значительное отличие, как по нормативной базе, так и конкретно по функциональным группам помещений. Например, в действующем т.п. У-92 разница в суммарной нормируемой площади достигает: в первом случае - 2093 м2, во втором - 5291 м2, по отдельным группам помещений - соответственно 497 и 569 м2 - по начальной школе, 668 и 888 м2 - до основной школе и т.д. (более подробно см. табл. 4.1.).
Это расхождение в балансе нормируемых площадей обусловлено не только составом и площадью помещений, но и различием: в расчетном количестве классных помещений; наполняемости учебных групп; пропускной способности (реальной наполняемости) классов-кабинетов целевых типов и существующих зданий.
4.2. В частности, по МГСН 4.06-96 количество классных помещений в здании должно соответствовать количеству учебных групп (в их число не входят лаборатории, практикумы, специализированные кабинеты, мастерские, игровые помещения), в существующих зданиях и типовых проектах оно меньше. Например, в действующем типовом проекте число классов - 16 вместо требуемых - 22. Следовательно, для приведения их в соответствие необходимо: либо сократить число учебных групп до реального количества классных помещений, либо в 1,4 раза увеличить нормируемую площадь здания.
4.3. Одновременно следует привести наполняемость учебных групп (количество учащихся в классе) к общему знаменателю - 24 вместо 36 учащихся, и лишь тогда сопоставлять нормируемую площадь, а также определить реальную вместимость классов, которая и типовых проектах ниже указанной величины (см. п. 5).
Таблица 4.1
|
№ п. п. |
Наименование помещения
|
Состав и площадь |
||
|
т.п. У-92 на 22 класса |
средняя полная школа на 22 класса (по МГСН) |
средняя полная школа с проф. обуч. на 22 класса (по МГСН) |
||
|
1 |
2 |
3 |
4 |
5 |
|
|
УЧЕБНАЯ ГРУППА ПОМЕЩЕНИЙ |
|
|
|
|
1. |
Начальная школа (НШ): |
|
|
|
|
|
■ класс - групповая |
55,5´6 |
76´8 |
76´8 |
|
|
■ спальня - игровая |
54,5´2 |
32´2 |
52´2 |
|
|
|
73´1 |
50´2 |
50´2 |
|
|
■ комн. тихих игр, уединения |
- |
- |
60 |
|
|
■ комн. труда, моделирования и тех. Игрушки |
75,0 |
108 |
120 |
|
|
■ методический каб - учительская |
37,0 |
60 |
60 |
|
|
■ рекреация зального типа |
355,1 |
388 |
388 |
|
|
Итого: |
911 |
1408 |
1408 |
|
|
Дефицит т.п. по: |
|
|
|
|
|
- суммарной площади: |
|
497 |
569 |
|
|
- учебным помещениям: |
|
464/3 |
636/4 |
|
2 |
Основная школа (КОШ): |
|
|
|
|
|
■ класс – кабинет |
55,5´4 56´2 |
76´10 |
76´10 |
|
|
■ ресурсный центр |
- |
- |
120 |
|
|
■ рабочие комнаты для занятий по интересам |
- |
- |
100 |
|
|
■ рекреация зального типа |
258 |
500 |
500 |
|
|
Итого: |
592 |
1260 |
1480 |
|
|
Дефицит т.п. по: |
|
|
|
|
|
- суммарной площади: |
|
668 |
888 |
|
|
- учебным помещениям: |
|
426/4 |
646/6 |
|
3 |
Старшая школа (КСШ): |
|
|
|
|
|
■ кабинеты универсального назначения |
55,5´3 56´1 |
76´4 |
76´4 |
|
|
■ комнаты индивидуальных занятий |
- |
- |
60 |
|
|
■ ресурсный центр |
- |
- |
40 |
|
|
■ рекреация зального типа |
177 |
200 |
200 |
|
|
Итого: |
400 |
504 |
604 |
|
|
Дефицит т.п. по: |
|
|
|
|
|
- суммарной площади: |
|
104 |
204 |
|
|
- учебным помещениям: |
|
31/0 |
181/2 |
|
4 |
Основная и старшая школа (СК): |
|
|
|
|
|
Специализированные кабинеты: |
|
|
|
|
|
■ учебные кабинеты по естественным наукам (физика, химия, биология) в составе: |
|
|
|
|
|
■ лаборатория |
74´3 |
76´3 |
76´3 |
|
|
■ практикум |
36´4 |
50´3 |
50´6 |
|
|
■ лаборантская |
18´1 |
18´3 |
18´3 |
|
|
Специализированные кабинеты: |
|
|
|
|
|
■ иностранного языка |
36,6´2 |
40´6 |
40´6 |
|
|
■ информатике и ВТ |
56+75 |
90 |
90 |
|
|
■ технич. черчения и рисования |
75 |
76 |
100 |
|
|
■ компьютерный класс |
- |
- |
72´2 |
|
|
Итого: |
575 |
784 |
1156 |
|
|
Дефицит т.п. по: |
|
|
|
|
|
- суммарной площади: |
|
209 |
581 |
|
|
- учебным помещениям: |
|
209/4 |
581/9 |
|
5 |
Помещения изучения технологий (трудовое обучение): |
|
|
|
|
|
■ мастерская по обработке металла и технологии |
91 |
90 |
90 |
|
|
■ инструментальная |
8+16+15 |
18 |
18 |
|
|
■ мастерская по обработке дерева |
58,6 |
90 |
90 |
|
|
■ мастерская по обработке тканей и технологии |
92 |
90 |
108 |
|
|
■ кулинария |
56 |
50 |
50 |
|
|
■ домоводство с бытовой техникой |
- |
90 |
90 |
|
|
■ кабинет изучения технологий |
- |
90 |
90 |
|
|
■ универсальная мастерская по технологическим видам труда |
- |
- |
108 |
|
|
■ автодело |
- |
- |
108 |
|
|
■ электрорадиотехнология |
- |
108 |
108 |
|
|
■ радиоэлектроника |
- |
- |
108 |
|
|
■ кабинет машинописи и основ делопроизводства |
- |
- |
80 |
|
|
Итого: |
337 |
626 |
1048 |
|
|
Дефицит т.п. по: |
|
|
|
|
|
- суммарной площади: |
|
289 |
711 |
|
|
- учебным помещениям: |
|
289/3 |
711/7 |
|
6 |
Центр информации - библиотека |
|
|
|
|
|
■ библиотека |
73,4 |
235 |
235 |
|
|
■ технический центр |
- |
72 |
72 |
|
|
■ методический кабинет |
- |
90 |
90 |
|
|
Итого: |
73 |
397 |
397 |
|
|
Дефицит т.п. по: |
|
|
|
|
|
- суммарной площади/ количеству помещений: |
|
324/2 |
324/2 |
|
7 |
Вестибюльная группа учебных помещений, администрация: |
|
|
|
|
|
■ кабинет директора |
31,7 |
25 |
32 |
|
|
■ кабинет заместителя директора по учебно-воспитательной работе |
18 |
10 |
10 |
|
|
■ кабинет организатора внеклассной работы |
11,4 |
12 |
12 |
|
|
■ кабинет заместителя директора по хозяйственной работе |
11,4 |
10 |
10 |
|
|
■ канцелярия |
|
|
|
|
|
■ кладовая уборочного |
18 |
12 |
12 |
|
|
Инвентаря |
4 |
8 |
8 |
|
|
■ кабинет врача |
|
|
|
|
|
■ процедурная |
16,4 |
21 |
21 |
|
|
■ кабинет зубного врача |
- |
16 |
16 |
|
|
■ санузлы учащихся |
16,4 |
12 |
12 |
|
|
|
168/23+8+18+ |
83 |
83 |
|
|
■ санузлы персонала |
17+34х3 |
|
|
|
|
■ вестибюль-гардероб |
26/9+4+4+9 |
10 |
10 |
|
|
|
91/67+16,2+8 |
193 |
193 |
|
|
Итого: |
412,5 |
424 |
431 |
|
|
Дефицит т.п. по: |
|
|
|
|
|
- суммарной площади: |
|
12 |
18 |
|
|
ОБЩЕШКОЛЬНАЯ ГРУППА ПОМЕЩЕНИЙ: |
|
|
|
|
8 |
Группа зрительного зала: |
|
|
|
|
|
■ зрительный зал |
141,6 |
374 |
374 |
|
|
■ эстрада |
- |
72 |
180 |
|
|
■ лекционная аудитория |
- |
- |
100 |
|
|
■ киноаппаратная |
38,8/24,8+5+9 |
27 |
27 |
|
|
■ кладовая – инвентарная |
17/9+8 |
12 |
36 |
|
|
■ артистические |
24,6 |
18 |
30 |
|
|
■ технический центр |
9 |
48 |
48 |
|
|
Итого: |
232 |
551 |
795 |
|
|
Дефицит т.п. по: |
|
|
|
|
|
- суммарной площади: |
|
318 |
563 |
|
9 |
Группа свободного творчества во внеучебное время. |
|
|
|
|
|
■ группа студий изобразительного искусства; |
- |
36´3 |
36´3 |
|
|
■ кабинет эстетики |
23 |
- |
80 |
|
|
■ хореографии и драмкружка |
- |
108 |
108 |
|
|
■ раздевальные при студии хореографии |
- |
40 |
40 |
|
|
■ музыки и пения |
56 |
50 |
100 |
|
|
■ помещение для хранения музыкальных инструментов |
- |
- |
40 |
|
|
■ студия ИЗО |
- |
- |
144+40 |
|
|
■ кружок технического творчества |
74 |
90 |
216 |
|
|
■ фото-кино студия |
8,6 |
36 |
54 |
|
|
■ группа помещений юннатско-биологической деятельности |
- |
90 |
180 |
|
|
Итого: |
162 |
522 |
1110 |
|
|
Дефицит т.п. по: |
|
|
|
|
|
-суммарной площади/ количеству помещений: |
|
360/5 |
948/9 |
|
10 |
Группа спортивно-оздоровительная. |
|
|
|
|
|
■ спортзалы |
421/284+137 |
828 |
936 |
|
|
■ раздевальные |
78/48+36 |
168/21´8 |
168/21´8 |
|
|
■ инвентарная снарядная |
16,4 |
32+16 |
32+16 |
|
|
■ помещение хранения убор. инвентаря |
6+4 |
4 |
4 |
|
|
■ комната инструктора |
8,3 |
20+10 |
20´2 |
|
|
Итого: |
534 |
1078 |
1196 |
|
|
Дефицит т.п. по: |
|
|
|
|
|
- суммарной площади: |
|
543 |
662 |
|
11 |
Столовая: |
|
|
|
|
|
■ обеденный зал с раздаточной и местами для преподавателей |
170 |
297 |
297 |
|
|
■ кухонный блок с подсобными помещениями |
183 |
185 |
185 |
|
|
Итого: |
353 |
482 |
482 |
|
|
Дефицит т.п. по: |
|
|
|
|
|
- суммарной площади: |
|
128 |
128 |
|
12 |
Вестибюльная группа общественной зоны: |
|
|
|
|
|
■ вестибюль с гардеробом |
387 |
273 |
240 |
|
|
Итого по зданию: |
5014 |
8195 |
10305 |
|
|
Дефицит т.п. по: |
|
|
|
|
|
- суммарной площади: |
|
2093 |
5291 |
Примечание. В строке «Дефицит т.п. по учебным помещениям» в числителе дана величина дефицита по суммарной площади учебных помещений, без учета рекреаций, в знаменателе - количество недостающих учебных помещений.
5.1. Для расчета реальной вместимости существующего здания необходимо провести технологическую оценку его основных учебных помещений - классов - кабинетов по установлению в них реального числа ученических мест.
Например, в типовых проектах, отобранных для исследования, образца строительства 1960-х (МЮ, 65-426/1) и 1980-90-х гг. (У-76, У-77, У-79, У-92) классы - кабинеты имеют размеры в плане (в чистоте) соответственно:
а) 5.8´8.8, 6.2´8.4, 6.2´8.2 и б) 6.4´8.8 м.
5.2. Согласно п.9.1. - 9.3. - эргономических параметров размещения мебели и оборудования МГСН 4.06-96 классные помещения первого периода строительства размером:
• 8.2´6.2 и 8.4´6.2 - могут быть рассчитаны не более, чем на 16-20 учащихся - при фронтальных занятиях, на 16 учащихся - при фронтально-групповых и на 12 - при групповых формах ведения уроков (рис.1, 2, 3);
• 8.8´5.8 - на 16 учащихся - при фронтальных, 16-12 уч. - при фронтально-групповых и 10 - 11 учащихся - при групповых занятиях (рис. 4, 5, 6).
Классные помещения второго периода строительства (8.8´6.4) могут быть приспособлены для занятий 20 учащихся - при фронтальной работе, на 16 уч. - при фронтально-групповой и на 15-12 учащихся - при групповой работе (рис. 4, 5, 6). Двойные значения вместимости классных помещений обусловлены двумя типоразмерами учебных столов (шириной 70 и 60 см).
5.3. За основу расчета реальной наполняемости классов принимают среднюю величину - их наполняемость при фронтально-групповых занятиях. В результате, пропускная способность (наполняемость) классных помещений всех рассматриваемых в данной работе типовых проектов составит 16 учащихся, тогда реальная вместимость действующего типового проекта (V-92) будет 16 групп ´ 16 учащихся = 256 учащихся. Количество и реальная наполняемость классных помещений по типовым проектам прошлых лет приведена в таблице 5.1.
Если за основу расчета принять возможность проведения в классных помещениях преимущественно фронтальных занятий - реальная наполняемость классов - кабинетов всех указанных типовых проектов составит 20 учащихся.
Таким образом, основным критерием оценки типового проекта выступают два показателя: реальная наполняемость классных помещений и суммарный показатель нормируемой площади здания, которые в конечном итоге предопределяют реальную вместимость и удельные показатели площади объекта (на одного учащегося).


Рис.1. Размещение мебели и оборудования (по МГСН 4.06-96) при фронтальных занятиях в классных помещениях размером 6.2´8.2 и 6.2´8.4.
а - при ширине ученического стола - 0 6 м; б - при ширине ученического стола - 0.7 м


Рис. 2. Размещение мебели и оборудования (по МГСН 4.06-96) при фронтально-групповых занятиях в классных помещениях размером 6.2х8.2 и 6.2х8.4.
а - при ширине ученического стола - 0-6 м; б - при ширине ученического стола - 0.7 м


Рис. 3. Размещение мебели и оборудования (по МГСН 4.06-96) при групповых занятиях в классных помещениях размером 6.2х8.2 и 6.2х8.4.
а - при ширине ученического стола - 0.6 м; б - при ширине ученического стола - 0.7 м.


Рис. 4. Размещение мебели и оборудования (по МГСН 4.06-96) при фронтальных занятиях в классных помещениях размером 5.8х8.8 и 6.4х8.8.
а - при ширине ученического стола - 0.6 м; б - при ширине ученического стола - 0.7 м.


Рис. 5. Размещение мебели и оборудования (по МГСН 4.06-96) при фронтально-групповых занятиях в классных помещениях размером 5.8х8.8 и 6.4х8.8.
а - при ширине ученического стола - 0.6 м; б - при ширине ученического стола - 0.7 м.


Рис.6. Размещение мебели и оборудования (по МГСН 4.06-96) при групповых занятиях в классных помещениях размером 5.8´8.8 и 6.4´8.8.
а - при ширине ученического стола - 0.6 м; б - при ширине ученического стола - 0.7 м.
Таблица 5.1.
Количество и реальная наполняемость классных помещений типовых проектов школьных зданий.
|
№ п.п |
Индекс типового проекта |
Показатели помещений классов-кабинетов |
|||
|
габариты: в чистоте/ в осях, м |
площадь (м2) |
количество по школе (шт.) |
наполняемость (учеников) |
||
|
1. |
МЮ |
5,8х8,8/6,0х90 6,0х8,2/6,2х8,4 |
51,0 49,2 |
15 |
16 |
|
2. |
65-426/1 |
В,2х8,4/6,4х8,6 6,2х8,2/6,4х8,4 |
52,08 50,08 |
16 |
16 |
|
3. |
У-76 |
6,4х8,8/6,6х9,0 |
56,3 |
22 |
16 |
|
4. |
У-77 |
3,4х8,8/6,6х9,0 |
56,3 |
16 |
16 |
|
5. |
У-79 |
6,4х8,8/6,6х9,0 |
56,3 |
20 |
16 |
|
6. |
У-92 |
6,4х8,8/6,6х9,0 |
56,3 |
16 |
16 |
С учетом изложенного, рассматриваются планировочные решения и технике - экономические параметры всех отобранных для исследования типовых проектов школьных зданий, включая откорректированные по МГСН 4.06-96 показатели вместимости и площади зданий.
6.1. Типовой проект МЮ (вариант с пристроенным спортзалом), выпуск 1957г., разработан на основе программы 1957г. Имеет компактный 5-этажный объем «линейного типа» (рис. 7-10). Суммарная нормируемая площадь - 3159 м2, в т.ч. по учебной группе - 1930 м2, по общешкольной группе - 1229 м2. Количество классных помещений - 15.
|
Наименование показателей |
Основные показатели |
|
|
по паспорту |
в пересчете на МГСН |
|
|
Наполняемость классов-кабинетов(уч.) |
36 |
16 |
|
Вместимость здания (уч.) |
880 |
240 |
|
Удельный показатель нормируемой площади (м2): |
3,6 |
13,0 |
|
в т.ч. по учебной группе - |
2,2 |
8,0 |
|
по общешкольной группе - |
1,4 |
5,1 |
6.2. Типовой проект 65-426/1 (3-я редакция), выпуск 1973г., разработан на основе СНиП П-Л-42-67, откорректирован по СНиП - П-65-73. Состоит из двух линейных корпусов, соединенных одноэтажным переходом: 3-х этажного учебного и 2-х этажного общешкольного (рис. 11-13). Суммарная нормируемая площадь - 4089 м2, в т.ч. по учебной группе - 2042 м2, по общешкольной группе - 2047 м2. Количество классных помещений - 16.
|
Наименование показателей |
Основные показатели |
|
|
по паспорту |
в пересчете на МГСН |
|
|
Наполняемость классов-кабинетов(уч.) |
36 |
16 |
|
Вместимость здания (уч.) |
1000 |
256 |
|
Удельный показатель нормируемой площади (м2): |
4,1 |
16,0 |
|
в т.ч. по учебной группе - |
2,0 |
8,0 |
|
по общешкольной группе - |
2,1 |
8,0 |
6.3. Типовой проект У-76 (вариант 2), выпуск 1985 г., разработан по программе НШ 1980-85 гг. Имеет компактный 3-х этажный объем с внутренним двором в центре (рис. 14- 16). Суммарная нормируемая площадь 7094 м2, в т.ч. по учебной группе - 3034 м2, по общешкольной - 4060 м2. Количество классных помещений - 22.
|
Наименование показателей |
Основные показатели |
|
|
по паспорту |
в пересчете на МГСН |
|
|
Наполняемость классов-кабинетов (уч.) |
36 |
16 |
|
Вместимость здания (уч.) |
1176 |
352 |
|
Удельный показатель нормируемой площади (м2): |
6,0 |
20,1 |
|
в т.ч. по учебной группе - |
2,57 |
8,6 |
|
по общешкольной группе - |
3,45 |
11,5 |
6.4. Типовой проект У- 77 (вариант 3), выпуск 1984 г., разработан по программе НШ 1980-85гг. Состоит из двух пересекающихся объемов: 4-х этажного учебного и 3-х этажного общешкольного (рис. 17-20). Суммарная нормируемая площадь - 5588 м2, в т.ч. по учебной группе - 2903м2, по общешкольной - 2685 м2. Количество классных помещений - 16.
|
Наименование показателей |
Основные показатели |
|
|
по паспорту |
в пересчете на МГСН |
|
|
Наполняемость классов-кабинетов(уч.) |
36 |
16 |
|
Вместимость здания (уч.) |
844 |
256 |
|
Удельный показатель нормируемой площади (м2): |
6,6 |
21,8 |
|
в т.ч. по учебной группе - |
3,43 |
11,3 |
|
по общешкольной группе - |
3,2 |
10,48 |
6.5. Типовой проект У-79 (вариант 2), выпуск 1989г., разработан в соответствии с ВСН 50-86. Состоит из двух 3-х этажных объемов, соединенных одноэтажным переходом (рис. 21-23). Суммарный показатель нормируемой площади - 5986 м2, в т.ч. по учебной группе - 2842 м2, по общешкольной - 3144 м2. Количество классных помещений - 20.
|
Наименование показателей |
Основные показатели |
|
|
по паспорту |
в пересчете на МГСН |
|
|
Наполняемость классов-кабинетов (уч.) |
36 |
16 |
|
Вместимость здания (уч.) |
1266 |
320 |
|
Удельный показатель нормируемой площади (м2): |
4,72 |
18,7 |
|
в т.ч. по учебной группе - |
2,24 |
8,9 |
|
по общешкольной группе - |
2,48 |
9,8 |
6.6. Типовой проект У-92 (для затесненных участков), выпуск 1994 г., разработан в соответствии со СНиП 2.08.02.-89. Имеет компактный 4-х этажный объем с зальными помещениями в центре (рис. 24-27). Суммарная нормируемая площадь - 5403 м2, в т.ч. по учебной группе - 2762 м2, по общешкольной - 2641м2. Количество классных помещений - 16.
|
Наименование показателей |
Основные показатели |
|
|
по паспорту |
в пересчете на МГСН |
|
|
Наполняемость классов-кабинетов(уч.) |
36 |
16 |
|
Вместимость здания (уч.) |
844 |
256 |
|
Удельный показатель нормируемой площади (м2): |
6,4 |
21,1 |
|
в т.ч. по учебной группе - |
3,3 |
10,8 |
|
по общешкольной группе - |
3,1 |
10,3 |


Рис.7. Типовой проект школы МЮ.
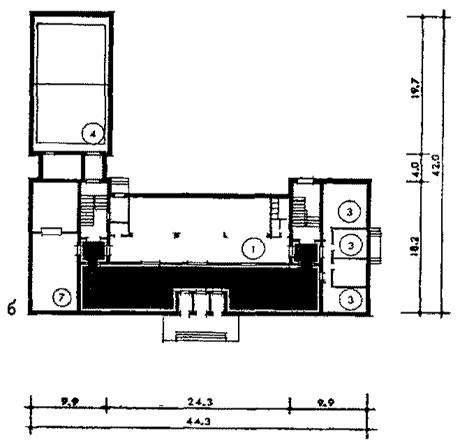
а - главный фасад; б - план 1 этажа: 1 - основные учебные помещения; 3 - административные; 4 - спортзал; 7 – столовая (буфет); заштрихованы рекреации.

Рис. 8. Типовой проект школы МЮ.
а - разрез по спортзалу; б - план 2 этажа: 1 - основные учебные помещения; 3 - административные; заштрихованы рекреаций.

Рис. 9. Типовой проект школы МЮ.
а - разрез по зрительному залу; б - план 3 этажа: 1 - основные учебные помещения; заштрихованы рекреации.

Рис. 10. Типовой проект школы МЮ.
а, б - планы 4 и 5 этажей: 1 - основные учебные помещения; 2 -библиотека; 3 - административные; 5 - зрительный зал; заштрихованы рекреации.

Рис. 11. Типовой проект школы 65-426/1.
а - главный фасад; б - план 1 этажа: 1 - основные учебные помещения; 2 - библиотека; 3 - административные; 7 - столовая; заштрихованы рекреации.

Рис. 12. Типовой проект школы 65-426/1.
а - разрез по залам, б - план 2 этажа: 1 - основные учебные помещения, 3 - административные; 4 - спортзал, 5 - зрительный зал; заштрихованы рекреации.

Рис. 13. Типовой проект школы 65-426/17
а - фасад со стороны залов; б - план 3 этажа: 1 - основные учебные помещения; 3 - административные; 4,5 - второй свет залов; заштрихованы рекреации.

Рис. 14. Типовой проект школы У-76.
а - главный фасад; б - план 1 этажа: 1 - основные учебные помещения; 3 - административные; 7 - столовая; заштрихованы рекреации.

Рис. 15. Типовой проект школы У-76.
а - разрез по залам; б - план 2 этажа: 1- основные учебные помещения; 3 - административные; 4 - спортзал; 5 - зрительный зал; заштрихованы рекреации.

Рис. 16. Типовой проект школы У-76.
а - разрез по учебному блоку; б - план 3 этажа: 1 - основные учебные помещения; 2 - библиотека; 3 - административные; 4 - спортзал; 4,5 - второй свет залов; заштрихованы рекреации.

Рис. 17. Типовой проект школы У-77.
а - главный фасад; б - план 1 этажа: 1 - основные учебные помещения; 3 - административные; 6 - кружковые; 7 - столовая; 8 -вестибюль с гардеробом; заштрихованы рекреации.

Рис. 18. Типовой проект школы У-77.
а - разрез по залам; б - план 2 этажа: 1 - основные учебные помещения; 3 - административные; заштрихованы рекреации.

Рис. 19. Типовой проект школы У-77.
а - боковой фасад; б - план 3 этажа: 1 - основные учебные помещения; 2 - библиотека; 3 - административные; 4,5 - второй свет залов; 6 - кружковые; заштрихованы рекреации.

Рис. 20. Типовой проект школы У-77.
а - задний фасад; б - план 4 этажа: 1 - основные учебные помещения; 6 - кружковые; заштрихованы рекреации.

Рис. 21. Типовой проект школы У-79.
а - главный фасад; б - план 1 этажа: 1 - основные учебные помещения; 3 - административные; 1 - становая; 8 - вестибюль с гардеробом; заштрихованы рекреации.

Рис. 22. Типовой проект школы У-79.
а - разрез по залам; б - план 2 этажа: 1 - основные учебные помещения; 3 - административные, 4 - спортзал; 5 - зрительный зал; 6 - кружковые; заштрихованы рекреации.

Рис. 23. Типовой проект школы У-79.
а - фасад со стороны учебного блока; б - план 3 этажа, 1 - основные учебные помещения; 2 - библиотека; 3 - административные; 4,5 -второй свет залов; заштрихованы рекреации.

Рис. 24. Типовой проект школы У-92.
а - боковой фасад; б - план 1 этажа: 1 - основные учебные помещения; 3 - административные; 7 - столовая; заштрихованы рекреации.

Рис. 25. Типовой проект школы У-92.
а - разрез по залам; б - план 2 этажа: 1 - основные учебные помещения; 3 - административные; 4 - спортзал; 5 - зрительный зал; заштрихованы рекреации.

Рис. 26. Типовой проект школы У-92.
а - разрез по учебным секциям; б - план 3 этажа: 1 - основные учебные помещения; 3 - административные; 4,5 - второй свет залов; заштрихованы рекреации.

Рис. 27. Типовой проект школы У-92.
а - главный фасад; б - план 4 этажа: I - основные учебные помещения; 2 - библиотека; 3 - административные; б - кружковые; заштрихованы рекреации.
7.1. Для решения вопроса методики, оценки материальной среды типовых проектов и возможностей приспособления их под новые типы зданий необходимо предварительно провести структурный анализ по основным группам помещений целевых программ и типовых проектов. Дело в том, что сравнение между собой только основных учебных помещений будет недостаточно, так как новые нормы содержат новые группы помещений, отсутствовавшие ранее (например, центр информации - библиотека, рабочие комнаты, ресурсные центры и др.).
Учебная группа содержит:
• основные учебные помещения, которые, согласно целевой программе, включают классы - кабинеты, помещения для организации продленного дня, универсальные учебные помещения, помещения для труда и изучения технологий, лаборатории по естественным наукам, практикумы, специализированные кабинеты;
• вспомогательные учебные помещения - игровые, методический кабинет, ресурсный центр, рабочие комнаты для занятий по интересам комнаты индивидуальных занятий, лаборантские в инструментальные;
• помещение центра информации - библиотеки;
• прочие административные и обслуживающие помещения, в т.ч. техцентр, учительская с комнатой отдыха.
Основные учебные помещения с целью проведения структурного анализа дополнительно дифференцируются по площадям, согласно их габаритам в существующих зданиях: площадью более 70 м2, от 70 до 50 м2, мене 50 м2.
Общешкольная группа помещений содержит:
• спортивно-оздоровительную подгруппу - спортзалы и обслуживающие их помещения;
• зрительного зала - зрительный зал с эстрадой в обслуживающие помещения;
• помещения свободного творчества во внеучебное время (кружковые);
• столовую - обеденный зал с раздаточной и производственно помещения кухни;
• рекреации зального типа;
• прочие помещения - вестибюль с гардеробом. По данной схеме составляется структурная карта помещений целевых типов учебных зданий и исследуемых типовых проектов (табл. 7.1. - 7.7.)
Структурная карта основных функциональных групп помещений типового проекта МЮ (к рис. 7-10).
|
Учебная группа помещений |
Общешкольная группа помещений |
|||
|
Наименование помещений |
Состав, площадь (м2) |
Всего |
Наименование помещений |
Состав, площадь (м2) |
|
Основные учебные: |
|
541,2/5 |
Спортивно-оздоровительные, в том числе зал и обслуживающие помещения |
|
|
- более 70 м2 |
165х1 102х3 70,1х1 |
234/(9х18)+67 |
||
|
- 70-50 м2 |
50х15 52х1 63,4х2 |
928.6/18 |
Зрительного зала, в том числе зал и обслуживающие помещения |
192/159+33 |
|
- менее 50 м2 |
30,8х3 |
92,4/3 |
Свободного творчества |
0/0 |
|
Вспомогательные |
30,8х1 |
65,6/3 |
Столовая |
101,2/32+69 |
|
Библиотека |
17,4х2 |
66,9 |
Прочие (вестибюль) |
207,7 |
|
Прочие (административные) |
|
235,5/12 |
Рекреации |
495,45 |
|
Итого по группе: |
|
1930,4 |
Итого по группе: |
1229 |
Примечания. 1. По учебной группе: в числителе дана суммарная площадь помещений, в знаменателе - их количество.
2. По общешкольной группе: в числителе дана суммарная площадь помещений, в знаменателе - площадь залов + площадь обслуживающих помещений.
Таблица 7.2.
Структурная карта основных функциональных групп помещении типового кроена В5-426/1 (к рис. 11-13).
|
Учебная группа помещений |
Общешкольная группа помещений |
|||
|
Наименование помещений |
Состав, площадь (м2) |
Всего |
Наименование помещений |
Состав, площадь (м2) |
|
Основные учебные: |
|
|
Спортивно – оздоровительные, |
|
|
- более 70 м2 |
0 |
0 |
в том числе зал и обслуживающие помещения |
344,2/(24х12)+78 |
|
- 70-50 м2 |
66х5 54х6 50х15 |
1400/26 |
Зрительного зала, в том числе зал и обслуживающие помещения |
274/233+41 |
|
- менее 50 м2 |
48х5 |
240,5/5 |
Свободного творчества |
19,4/1 |
|
Вспомогательные |
50х1 16х4 |
113,1/5 |
Столовая |
240/164+76 |
|
Библиотека |
|
49,9 |
Прочие (вестибюль) |
314 |
|
Прочие (административные) |
|
238/15 |
Рекреации |
856 |
|
Итого по группе: |
|
2042 |
Итого по группе: |
2047 |
Примечания. 1. По учебной группе: в числителе дана суммарная площадь помещений, в знаменателе - их количество.
2. По общешкольной группе: в числителе дана суммарная площадь помещений, в знаменателе - площадь залов + площадь обслуживающих помещений.
Таблица 7.3
Структурная карта основных функциональных групп помещений типового проекта У-76 (к рис. 14-16).
|
Учебная группа помещений |
Общешкольная группа помещений |
|||
|
Наименование помещений |
Состав, площадь (м2) |
Всего |
Наименование помещений |
Состав, площадь (м2) |
|
Основные учебные: |
|
|
Спортивно – оздоровительные, |
|
|
- более 70 м2 |
75х11 |
825/11 |
в том числе зал и обслуживающие помещения |
465,3/(24х12)+75 (15х6,5) |
|
- 70-50 м2 |
59х4 56х22 |
1468/26 |
Зрительного зала, в том числе зал и обслуживающие помещения |
272,4/216+56 |
|
- менее 50 м2 |
37х2 |
74/2 |
Свободного творчества |
0/0 |
|
Вспомогательные |
18х5 15х3 56х1 |
191/9 |
Столовая |
417/183+234 |
|
Библиотека |
|
39,0 |
Прочие (вестибюль) |
290,6 |
|
Прочие (административные) |
|
407/20 |
Рекреации |
2616 |
|
Итого по группе: |
|
3034,2 |
Итого по группе: |
4060 |
Примечания. 1. По учебной группе: в числителе дана суммарная площадь помещений, в знаменателе - их количество.
2. По общешкольной группе: в числителе дана суммарная площадь помещений, в знаменателе - площадь залов и площадь обслуживающих помещений.
Таблица 7.4.
Структурная карта основных функциональных групп помещении типового проекта У-77 (к рис. 17-20).
|
Учебная группа помещений |
Общешкольная группа помещений |
|||
|
Наименование помещений |
Состав, площадь (м2) |
Всего |
Наименование помещений |
Состав, площадь (м2) |
|
Основные учебные: |
|
|
Спортивно – оздоровительные, |
|
|
- более 70 м2 |
75х8 |
600,7/8 |
В том числе зал и обслуживающие помещения |
58б,3/(24х12)+150 (18х9) |
|
- 70-50 м2 |
56х22 54х1 |
1288,8/23 |
Зрительного зала, в том числе зал и обслуживающие помещения |
230,2/158,3+72 |
|
- менее 50 м2 |
37х6 |
222,6/6 |
Свободного творчества |
148,4/3 |
|
Вспомогательные |
37х1 30х3 18х5 11,4х2 |
242,8/11 |
Столовая |
370,2/147+223,2 |
|
Библиотека |
|
56,7 |
Прочие (вестибюль) |
389,1 |
|
Прочие (административные) |
|
491,9/34 |
Рекреации |
962,5 |
|
Итого по группе: |
|
2903,6 |
Итого по группе: |
2685 |
Примечания. 1. По учебной группе, в числителе дана суммарная площадь помещений, в знаменателе - их количество.
2. По общешкольной группе: в числителе дана суммарная площадь помещений, в знаменателе - площадь залов + площадь обслуживающих помещений.
Таблица 7.5.
Структурная карта основных функциональных групп помещение типового проекта У-79 (к рис. 21-23).
|
Учебная группа помещений |
Общешкольная группа помещений |
|||
|
Наименование помещений |
Состав, площадь (м2) |
Всего |
Наименование помещений |
Состав, площадь (м2) |
|
Основные учебные: |
|
|
Спортивно – оздоровительные, |
|
|
- более 70 м2 |
74х2 |
148/2 |
В том числе зал и обслуживающие помещения |
809/(24х12)+233 (24х12) |
|
- 70-50 м2 |
67х2 56х28 |
1707,2/30 |
Зрительного зала, в том числе зал и обслуживающие помещения |
248/201+47 |
|
- менее 50 м2 |
37х6 |
225/6 |
Свободного творчества |
93/2 |
|
Вспомогательные |
56х1 18х3 11х2 |
133/6 |
Столовая |
514/244+270 |
|
Библиотека |
|
93 |
Прочие (вестибюль) |
296 |
|
Прочие (административные) |
|
536/32 |
Рекреации |
1184 |
|
Итого по группе: |
|
2842,2 |
Итого по группе: |
3144 |
Примечания. 1. По учебной группе: в числителе дана суммарная площадь помещений, в знаменателе - их количество.
2. По общешкольной группе: в числителе дана суммарная площадь помещений, в знаменателе - площадь залов + площадь обслуживающих помещений.
Таблица 7.6.
Структурная карта основных функциональных групп помещении типового проекта У-92 (к рис. 24-27).
|
Учебная группа помещений |
Общешкольная группа помещений |
|||
|
Наименование помещений |
Состав, площадь (м2) |
Всего |
Наименование помещений |
Состав, площадь (м2) |
|
Основные учебные: |
|
|
Спортивно – оздоровительные, |
|
|
- более 70 м2 |
92х2 75х4 74х3 |
705,5/9 |
В том числе зал и обслуживающие помещения |
574/(24х12)+152 (12х12) |
|
- 70-50 м2 |
58х1 56х18 54х2 |
1170/21 |
Зрительного зала, в том числе зал и обслуживающие помещения |
198/142+56 |
|
- менее 50 м2 |
37х2 |
73/2 |
Свободного творчества |
165/4 |
|
Вспомогательные |
37х3 73х1 18х3 16х2 |
258/10 |
Столовая |
363/170+ 193 |
|
Библиотека |
|
73 |
Прочие (вестибюль) |
483 |
|
Прочие (административные) |
|
482,5/27 |
Рекреации |
858 |
|
Итого по группе: |
|
2762 |
Итого по группе: |
2641 |
Примечания. 1. По учебной группе: в числителе дана суммарная площадь помещений, в знаменателе - их количество.
2. По общешкольной группе: в числителе дана суммарная площадь помещений, в знаменателе - площадь залов + площадь обслуживающих помещений.
Таблица 7.7.
|
Наименование показателей
|
Вид и тип здания (количество классов) |
|||||||||||||||
|
НО |
НОС |
НОСП |
ОСП |
Г |
Л |
|||||||||||
|
9кл. |
18кл. |
11кл. |
22кл. |
33кл. |
11кл. |
22кл. |
33кл. |
20кл. |
30кл. |
7кл. |
14кл. |
21кл. |
8кл. |
12кл. |
18кл. |
|
|
Учебная группа |
|
|
|
|
|
|
|
|
|
|
|
|
|
|
|
|
|
Основные учебные помещения: |
|
|
|
|
|
|
|
|
|
|
|
|
|
|
|
|
|
- более 70 м2 |
1228 15 |
2020 25 |
1806 22 |
2732 34 |
3568 45 |
2186 26 |
3334 40 |
4350 53 |
3354 37 |
3990 48 |
1438 18 |
2174 27 |
2976 37 |
2384 27 |
3202 36 |
3938 45 |
|
- 70-50 м2 |
172 3 |
294 5 |
172 3 |
444 8 |
566 10 |
322 6 |
594 11 |
716 13 |
350 7 |
350 7 |
50 1 |
50 1 |
50 1 |
200 4 |
350 7 |
500 10 |
|
- менее 50 м2 |
80 2 |
160 4 |
268 7 |
240 6 |
360 9 |
160 4 |
240 6 |
360 9 |
240 6 |
360 9 |
320 8 |
400 10 |
480 12 |
348 9 |
536 14 |
724 19 |
|
Библиотека |
80 |
100 |
115 |
235 |
325 |
115 |
235 |
325 |
235 |
325 |
115 |
235 |
325 |
235 |
325 |
440 |
|
Прочие (административные) |
274 13 |
338 13 |
370 16 |
471 16 |
642 19 |
567 21 |
904 24 |
1229 24 |
884 22 |
1198 24 |
540 22 |
751 22 |
1008 22 |
607 19 |
791 19 |
927 17 |
|
Итого по группе: |
1834 34 |
2912 48 |
2731 49 |
4122 65 |
5461 84 |
3350 58 |
5307 82 |
6980 100 |
5063 73 |
6223 89 |
2463 50 |
3610 61 |
4839 73 |
3774 60 |
5204 77 |
6529 92 |
|
Общешкольная группа: |
|
|
|
|
|
|
|
|
|
|
|
|
|
|
|
|
|
- спортивно-оздоровительные |
350 288 +62 |
738 576 +162 |
788 648 +140 |
1078 828 +250 |
1476 1116 +360 |
788 648 +140 |
1196 936 +260 |
1424 1116 +308 |
1186 936 +250 |
1434 1116 +318 |
784 576 +208 |
814 648 +166 |
1186 936 +250 |
784 576 +208 |
1036 828 +208 |
1186 936 +250 |
|
- зрительного зала |
288 225 +63 |
437 374 +63 |
322 259 +63 |
551 446 +105 |
911 770 +141 |
464 259 +205 |
795 554 +241 |
1011 770 +241 |
761 520 +241 |
931 690 +241 |
519 278 +241 |
647 376 +271 |
775 474 +301 |
533 292 +241 |
589 348 +241 |
673 432 +241 |
|
- свободного творчества |
338 8 |
338 8 |
464 10 |
522 9 |
540 9 |
500 9 |
1110 13 |
1110 13 |
1110 13 |
1294 14 |
746 11 |
948 12 |
1132 13 |
688 10 |
1070 13 |
1070 13 |
|
- столовой |
222 |
370 |
276 |
482 |
689 |
276 |
482 |
689 |
480 |
648 |
211 |
353 |
495 |
223 |
325 |
459 |
|
- вестибюля. |
216 |
386 |
265 |
466 |
596 |
229 |
433 |
620 |
455 |
652 |
183 |
277 |
397 |
198 |
274 |
390 |
|
- рекреационного центра |
- |
- |
- |
- |
- |
- |
- |
- |
937 |
1350 |
- |
- |
904 |
- |
607 |
1008 |
|
Итого по группе: |
1414 |
2269 |
2115 |
3099 |
4212 |
2257 |
4016 |
4854 |
4929 |
6309 |
2443 |
3039 |
4889 |
2426 |
3901 |
4786 |
Примечания. 1. По учебной группе: в числителе дана суммарная площадь помещений, в знаменателе - их количество.
2. По общешкольной группе - в числителе дана суммарная площадь помещений, в знаменателе - площадь залов + площадь обслуживающих помещений.
8.1. Основные положения по выявлению дефицита площадей существующего объекта относительно нового типа учебного здания рассматриваются на примере т.п. 65-426/1.
Прежде всего, для определения состава и площади помещений нового здания по социальному заказу (месту учебного заведения в системе обслуживания населения - на жилую группу, или микрорайон, или группу микрорайонов; программе и срокам обучения; контингенту учащихся и т.д.) устанавливается целевой тип и вид нового здания (типы и виды). Это может быть школа, либо школа с профильным обучением, либо гимназия или лицей.
8.2. Выбирается программа - состав и площади помещений по данному типу (типам), в соответствии с утвержденными МГСН 4.06-96 «Общеобразовательные учреждения». На основе программы составляется структурная карта помещений по данному целевому типу (типам) зданий (табл. 7.7.).
8.3. Далее выбирается типовой проект, подлежащий корректировке (в рассматриваемом случае - 65-426/1) и по его материальной базе составляется аналогичная структурная карта (табл. 7.2.).
8.4. После этого проводится сопоставление структурных карт целевых типов зданий и типового проекта, для выявления дефицита здания по площади и составу помещений. Оно проводится раздельно по учебной и общешкольной группам помещений, и начинается с учебной.
8.5. Сопоставление может проводится по двум вариантам:
- варианту А (основному) - при необходимости сохранения первоначальной внутренней планировки существующего объекта без изменения;
- варианту Б (дополнительному) - при возможности внутренней перепланировки существующего объекта.
При первом варианте: анализируются педагогические возможности основных учебных помещений существующего здания - классов - кабинетов для установления в них реального числа ученических мест по МГСН (см. п. 5.), в рассматриваемом случае - это 16 учащихся.
8.6. На основе данного показателя пересчитывается программа-состав и площади помещений целевых типов учебных зданий на новую расчетную вместимость учебной группы - на 16 уч., и по аналогии с п. 7.2. - составляется новая откорректированная структурная карта по целевым типам зданий (табл. 8.1.).
8.7. По новой структурной карте выбирается целевой тип максимально близкий к типовому по суммарному показателю нормируемой площади учебной группы помещений. Далее проводится сопоставление их параметров по всему составу помещений данной группы. В результате - устанавливается минимальный (для данного типового проекта при его приведении к указанным целевым типам) дефицит учебных помещений - по их площади и количеству (табл. 8.2.).
При этом в типовом проекте возможно выявление как дефицита, так резерва или баланса помещений. В некоторых случаях возможно наличие дефицита и резерва одновременно: дефицита - по основным учебным помещениям, резерва - из мелких помещений учебно-вспомогательного назначения (т.п. V-77, V-79, V-92 - см. табл. 9.2.).
8.8. При необходимости приспособления типового проекта не к одному, а к нескольким целевым типам и видам учебных зданий, не обязательно каждый раз проводить развернутый анализ по всему составу их помещений, достаточно воспользоваться величиной уже установленного минимального дефицита.
Для этого, в утвержденной номенклатуре целевых типов устанавливается базовый тип - имеющий минимальный состав и площади помещений. Все остальные целевые типы приводятся к нему по двум параметрам:
а) показателю нормируемой площади учебных помещений - с помощью введения поправочного коэффициента «Хп» (который выражает пропорциональную зависимость между суммарной площадью учебных помещений любого целевого типа и базового целевого типа: Хп = суммарная площадь «п» - го типа по учебной группе помещений / суммарная площадь базового типа по учебной группе помещений);
б) по количеству помещений - с помощью коэффициента «Вп» (который показывает разницу в количестве помещений любого целевого типа и базового типа УЗ: Вп = количество помещений «п»-целевого типа - количество помещений базового типа). Базовым типом в утвержденной номенклатуре учебных зданий является основная школа на 9 классов (см. табл.8.1.). С помощью указанных коэффициентов по уже известным параметрам минимального дефицита типового проекта определяется его дефицит относительно любого целевого типа УЗ.
При этом, для определения искомого дефицита площади помещений следует воспользоваться формулой (I):
![]()
(где
- минимальный дефицит
типового проекта по нормируемой площади учебных помещений; Дп+1 -
дефицит типового проекта относительно «п+1»-го целевого типа по учебной группе
помещений (нормируемой площади); С1 - нормируемая площадь учебной
группы помещений базового целевого типа;
- поправочный
коэффициент «п» - го целевого типа, которому соответствует уже установленный
минимальный дефицит помещений типового проекта;
- поправочный
коэффициент для «п+1» целевого типа УЗ.)
Для определения искомого дефицита по количеству помещений (как общему количеству, так и по отдельным подгруппам учебных помещений) следует воспользоваться формулой (II):
![]()
(где
- дефицит типового проекта
по количеству помещений, установленный ранее относительно «п» - го целевого
типа; Дп+1 - искомый дефицит типового проекта по количеству
помещений, устанавливаемый относительно «п+1» целевого типа УЗ; Вп и
Вп+1 - поправочные коэффициенты соответственно для «п» и «п+1»-го
целевого типа УЗ).
Полученные значения дефицита заносятся в сводную таблицу (табл. 8.7.). При этом, если у показателя минимального дефицита типового проекта имеется резерв, он без изменения переносится на соответствующие показатели по остальным целевым типам и сохраняется до подсчета дефицита по зданию в целом (с учетом помещений общешкольной группы).
8.9. В случае, когда реальная наполняемость класов-кабинетов равна 20 учащимся (см.п.5.3.) - все вышеуказанные расчеты ведутся по структурной карте, приведенной в Приложении 4. При анализе учебных помещений по второму варианту: анализируются технологические и конструктивные возможности данных помещений существующего здания с точки зрения их возможной перепланировки. В этом случае все помещения дополнительно к предложенной ранее схеме (п.7.2.) классифицируются на «изменяемые» и «неизменяемые». К неизменяемым следует отнести помещения, заключенные в основных несущих конструкциях, а также специализированные лаборатории и мастерские, имеющие специальные инженерные коммуникации.
Проводится сопоставление структуры существующего объекта с наиболее близким по суммарной площади (учебной группы помещений) целевым типом при нормативной наполняемости учебной группы - 24 учащихся (табл. 7.7).
В начале, сопоставление ведется без изменения планировочных габаритов помещений существующего здания, затем - с перепланировкой «изменяемых» помещений в недостающие помещения большей площади (табл. .8.3.). В результате, устанавливается минимальный дефицит типового проекта по учебной группе помещений (их площади и количеству) при нормативной наполняемости учебных групп.
Расчет дефицита типового проекта относительно любого другого целевого типа ведется по аналогии с вариантом А по вышеприведенным (п. 8.8.) формулам с использованием соответствующих поправочных коэффициентов при нормативной наполняемости учебных групп (табл. 8.4.).
8.10. Каждый из представленных вариантов расчета дефицита имеет свои преимущества. Вариант А - ориентирован на действующие нормативные требования и предполагает корректировку зданий с минимальными на сегодняшний день затратами. Вариант Б - ориентирован на максимальную нормативную вместимость класса, которая (при пересчете на меньшую вместимость учебной группы) дает некоторый резерв, что может быть использовано для дальнейшего развития новаторских методов обучения в современной школе.
8.11. По аналогии с учебной группой анализируется общешкольная группа помещений. Анализ проводится на основе структурных карт соответствующих учебных зданий при двух вариантах расчетной наполняемости учебных групп (на 16 и 24 уч.) по следующим параметрам: площади спортивного зала (залов) и площади остальных общешкольных помещений. К остальным общешкольным относятся все помещения подгруппы за исключением спортивных залов, а также рекреаций и вестибюля. Последние не подлежат изменению в существующих зданиях в целях сохранения их первоначальной композиционной целостности.
8.12. Сопоставление указанных параметров типового проекта ведется относительно целевого типа, ранее отобранного при анализе учебной группы помещений.
В результате, устанавливается первоначальный дефицит типового проекта по общешкольным помещениям, который должен быть откорректирован:
- по спортивным залам - с учетом конкретных типоразмеров спортзалов по МГСН 4 06-96 (табл-8.5.);
- по остальным общешкольным помещениям - с учетом резерва по учебной группе, если он имелся.
В рассматриваемом т.п. 65-426 указанный резерв отсутствует при первом варианте наполняемости учебных групп (вариант А) и равен 120 - при втором варианте (вариант Б) наполняемости (см. табл. 8.7.).
Например, для приведения спортивных залов (площадью 288 м2) рассматриваемого типового проекта в соответствие с одноименными помещениями средней полной школы с профильным обучением на 22 класса, имеющим площадь 720 м2, необходимо дополнить существующее здание еще одним залом, площадь которого была бы не менее 432 м2 (720 - 288=432). Вместе с тем, среди нормативных типоразмеров наиболее близким по площади является спортзал 30´18, площадью 540 м2. Таким образом, показатель дефицита площади спортзала рассматриваемого проекта возрастает до 540м2.
По показателю остальных общешкольных помещений величина дефицита после корректировки может быть наоборот уменьшена на величину резерва по учебной группе (см. п. 8.7.).
Откорректированные значения дефицита по указанным показателям заносятся в сводную таблицу (табл. 8.7.).
8.13. При необходимости расчета дефицита общешкольных помещений здания относительно других целевых типов, можно воспользоваться приведенной ранее формулой (I) и уже установленным первоначальным дефицитом по каждому показателю общешкольной группы. Для этого, по аналогии с учебной группой, вводится два поправочных коэффициента: по спортзалам (Кп) и по остальным общешкольным помещениям (Мп) (табл. 8.6.). Полученные результаты также корректируются (п.8.12.), после чего заносятся в сводную таблицу (табл. 8.7.).
Таблица 8.1.
|
Наименование показателей |
Вид и тип УЗ (количество классов) |
|||||||||||||||
|
НО |
НОС |
НОСП |
ОСП |
Г |
Л |
|||||||||||
|
9кл. |
18кл. |
11кл. |
22кл. |
33кл. |
11кл. |
22кл. |
33кл. |
20кл. |
30кл. |
7кл. |
14кл. |
21кл. |
8кл. |
12кл. |
18кл. |
|
|
Основные учебные помещения: |
|
|
|
|
|
|
|
|
|
|
|
|
|
|
|
|
|
- более 70 м2 |
72 1 |
144 2 |
144 2 |
144 2 |
144 2 |
288 4 |
432 6 |
504 7 |
525 7 |
504 7 |
72 1 |
72 1 |
144 2 |
432 6 |
648 9 |
648 9 |
|
- 70-50 м2 |
293 5 |
346 6 |
353 6 |
466 8 |
519 9 |
505 9 |
466 8 |
571 10 |
412 7 |
465 8 |
232 4 |
345 6 |
451 7 |
458 8 |
511 9 |
624 11 |
|
- менее 50 м2 |
604 14 |
1124 26 |
984 24 |
1618 38 |
2262 53 |
976 23 |
1876 44 |
2472 58 |
1510 36 |
2088 49 |
884 22 |
1276 31 |
1716 41 |
1044 26 |
1340 33 |
2092 54 |
|
Вспомогательные |
48 2 |
78 2 |
48 2 |
28 2 |
168 5 |
238 7 |
474 10 |
748 10 |
492 8 |
708 8 |
232 8 |
392 8 |
552 8 |
284 5 |
408 5 |
486 3 |
|
Библиотека |
80 |
100 |
115 |
235 |
325 |
115 |
235 |
325 |
235 |
325 |
115 |
235 |
325 |
235 |
325 |
440 |
|
Прочие |
226 11 |
260 11 |
322 14 |
393 14 |
474 14 |
329 14 |
400 14 |
481 14 |
392 14 |
490 16 |
308 14 |
359 14 |
450 14 |
323 14 |
383 14 |
441 14 |
|
Итого по группе: |
1323 34 |
2052 48 |
1966 49 |
2934 65 |
3892 84 |
2451 58 |
3883 82 |
5101 100 |
3566 73 |
4580 89 |
1843 50 |
2679 61 |
3638 73 |
2776 60 |
3615 77 |
4731 92 |
|
Коэффициенты приведения: |
|
|
|
|
|
|
|
|
|
|
|
|
|
|
|
|
|
- Хп |
1,0 |
1,55 |
1,48 |
2,22 |
2,94 |
1,85 |
2,93 |
3,86 |
2,69 |
3,46 |
1,39 |
2,0 |
2,75 |
2,1 |
2,7 |
3,58 |
|
- Вп |
0 |
14 |
15 |
31 |
50 |
24 |
48 |
66 |
39 |
55 |
16 |
27 |
39 |
26 |
43 |
58 |
Примечания. 1. В числителе дана суммарная площадь помещений, в знаменателе - их количество.
2. Коэффициенты приведения: Хп - площади и Вп - количества помещений учебной группы каждого целевого типа УЗ к базовому типу (НО-9 кл.).
Пример выявления дефицита по учебной группе помещений типового проекта 65-426/1 относительно целевого типа при расчетной наполняемости учебной группы - 16 учащихся.
|
Наименование помещений |
Состав помещений |
Сопоставление: |
Дефицит/ остаток-резерв |
||
|
по целевому типу НОС –11кл. |
По типовому проекту |
НОС-11кл. |
типовой проект |
||
|
Основные учебные: - более 70м2 |
72´2 |
0 |
72´2 = |
65´2 |
0 |
|
- 70-50 м2 |
60´5 53´1 |
65´5 54´6 50´16 |
60´5 = 53´1 = |
50´1 |
0
0 |
|
- менее 50 м2 |
48´14 40´2 36´1 28´7 |
48´5 |
48´14 = 40´2 =
|
50х14 48х2
54´1
|
0 0
0
0 |
|
Вспомогательные |
30´1 18´1 |
0 |
|
48х1 |
48´1 |
|
Библиотека |
74 |
50 |
74 = |
50+48´1 |
0 |
|
Прочие |
322 |
301 |
322 = |
301+48´1 |
0 |
|
Итого: |
1966/49 |
2042/52 |
|
|
Дефицит = 0 Резерв: 48 |
Примечание. Суммарный показатель площади по учебной группе помещений сопоставляемых объектов приведен без учета площади рекреаций, которая остается неизменной.
Пример выявления минимального дефицита площади по учебной группе помещений т.п. 65-426 при нормативной наполняемости учебной группы - 24 учащихся (вариант Б).
|
Наименование показателей
|
Целевой тип – основная школа 9 кл. (НО-9 кл.) |
Т.п. 65-426
|
Сопоставление "неизменяемых" помещений |
Корректировка "изменяемых помещений" типового проекта.
|
Дефицит/ остаток |
||
|
Дефицит по Н0-9кл. |
Остаток по т.п. |
резерв |
|||||
|
Основные учебные помещения. |
|
|
0 |
= 108´1 = 90´4 = 76´10 |
0 |
1 этаж: 65+ 15=80 : 76х1 65+18=83 : 90х1
|
|
|
- более 70 м2 |
108´1 90´4 76´10 |
- - - |
|
||||
|
- 70 - 50 м2 |
60´1 62´1 50´1 |
- - - |
55´2(3) 4´6 50´2(14) |
= = 0 = |
65´(3) 65´6 50´1(14) |
2 этаж: 50х2+14=114 : 90+24 2х(50х2)= 2х100 : 2х(76+24) 2х(50+48)=196 : 108+88(90) |
|
|
- менее 50 м2 |
40´2
|
- |
48´1(4) |
= 0 |
48´(3) |
|
|
|
Вспомогательные |
30´1 18´1
|
- |
0 |
= 30´1 = 18´1 |
0 |
3 этаж: 65 + 33 = 98 76 + 22 2´(50´2)=2´100 : 2´(76+24) 2´(50+48)=196 . 90+76+30 |
|
|
Библиотека |
80
|
- |
50 |
= 30 |
0 |
|
|
|
Прочие |
226/11 |
- |
301 |
= 0 |
0 |
|
Дефицит =0 |
|
Итого: |
1834 34 |
2042 52 |
|
|
Остаток: 54´6=76´3 на 1/2гр. 50´1 =в библиотеку 24´5=120 |
Резерв: 24´5=120 5 |
|
Примечание. В характеристике типового проекта - в скобках приведено количество учебных помещений "изменяемых" в процессе корректировки (3), перед скобками - количество "неизменяемых" помещений аналогичной площади.
Базовый тип и коэффициенты приведения к нему нормируемой площади по учебной группе помещений остальных целевых типов зданий при расчетной наполняемости учебной группы - 24 учащихся.
|
Наименование Показателей |
Вид и тип УЗ (количество классов) |
|||||||||||||||
|
НО |
НОС |
НОСП |
ОСП |
Г |
Л |
|||||||||||
|
9 кл. |
18кл. |
11кл. |
22кл. |
33кл. |
11кл. |
22кл. |
33кл. |
20кл. |
30кл. |
7 кл. |
14кл. |
21кл. |
8кл. |
12кл. |
18кл. |
|
|
Суммарная нормируемая площадь по учебной группе помещений (м2) |
1834 |
2912 |
2731 |
4122 |
5461 |
3350 |
5307 |
6980 |
5063 |
6223 |
2463 |
3610 |
4839 |
3774 |
5204 |
6529 |
|
Коэффициенты приведения: |
|
|
|
|
|
|
|
|
|
|
|
|
|
|
|
|
|
- Хп |
1,0 |
1,6 |
1,48 |
2,25 |
3,0 |
1,8 |
2,9 |
3,8 |
2,76 |
3,4 |
1,3 |
1,97 |
2,6 |
2,06 |
2,8 |
3,56 |
|
- Вп |
0 |
14 |
15 |
31 |
50 |
24 |
48 |
66 |
39 |
55 |
16 |
27 |
39 |
26 |
43 |
58 |
Примечание Коэффициенты приведения Хп - площади и Вп - количества помещений учебной группы каждого целевого типа УЗ к базовому типу (НО-9 кл.).
Таблица 8.5.
Типы недостающих спортзалов к типовым проектам школьных здании в соответствии с МГСН 4.06-96.
|
Т.п. |
Залы по типовым проектам
|
Номенклатура залов по целевой программе |
||||||||||
|
288 24х12 |
380 24х15 |
468 24х12 12х15 |
540 30х18 |
576 24х12 24x12 |
648 36х18 |
720 30х18 12х15 |
828 36х18 12х15 |
936 36х18 24х12 |
1008 30х18 24х12 12х15 |
1116 36х18 24х12 12х15 |
||
|
III |
IV |
|
V |
|
VI |
|
VII |
VIII |
|
|
||
|
МЮ |
162 9х18 |
126(144) 12х12 I |
198(180) 12х15 II |
306(360) 24х15 |
378(360) 24х15 |
414(360) 24х15 |
486(540) 30х18 |
558(540) 30х18 |
666(648) 36х18 |
774(828) 36х18 12х15 |
846(828) 36х18 12х15 |
954(936) 36х18 24х12 |
|
65-426 |
288 24х12 |
0 |
72(144) 12х12 |
180 12х15 |
252(288) |
288 |
360 |
432(540) |
540 |
648 |
720(828) |
828 |
|
V-76 |
386 24х12 6,5х15 |
0 |
0 |
82(144) |
154(144) |
190(180) |
262(288) |
334(360) |
442(540) |
550(540) |
622(648) |
730(828) |
|
V-92 |
432 24х12 12х12 |
0 |
0 |
36(0) |
108(144) |
144 |
216(180) |
288 |
396(360) |
504(540) |
576(540) |
684(648) |
|
V-77 |
450 24х12 9х18 |
0 |
0 |
18(0) |
90(144) |
126(144) |
198(180) |
270(288) |
378(360) |
486(540) |
558(540) |
666(648) |
|
V-79 |
576 24х12 24х12 |
0 |
0 |
0 |
0 |
0 |
72(144) |
144 |
252(288) |
360 |
432(540) |
540 |
Примечания. 1 В скобках приведены площади спортзалов, соответствующие их размерам по МГСН.
2. В качестве минимального зала дополнительно к минимальному залу по МГСН 12´15= 180 (тип II) принят универсальный зал 12´12= 144 (тип I).
3. I-VIII - типы недостающих спортзалов
Таблица 8.6.
Характеристика общешкольной группы помещений целевых типов учебных зданий, коэффициенты приведения при двух вариантах наполняемости учебных групп -на 16 учащихся (вариант А), на 24 учащихся (вариант Б).
|
Наименование показателей |
Вид и тип УЗ (количество классов) |
|||||||||||||||
|
НО |
НОС |
НОСП |
ОСП |
Г |
Л |
|||||||||||
|
9кл. |
18кл. |
11кл. |
22кл. |
33кл. |
11кл. |
22кл. |
33кл. |
20кл. |
30кл. |
7кл. |
14кл. |
21кл. |
8кл. |
12кл. |
18кл. |
|
|
А/ Спортзал (м2) |
288 |
468 |
360 |
576 |
1008 |
360 |
720 |
1008 |
720 |
1008 |
360 |
576 |
720 |
576 |
720 |
720 |
|
Коэффициент приведения – Кп |
1,0 |
1,625 |
1,25 |
2,0 |
3,5 |
1,25 |
2,5 |
3,5 |
2,5 |
3,5 |
1,25 |
2,0 |
2,5 |
2,0 |
2,5 |
2,5 |
|
Остальные общешкольные помещения (м2) |
789 |
1028 |
977 |
1401 |
1919 |
1155 |
2233 |
2589 |
2819 |
3516 |
1474 |
1916 |
3003 |
1434 |
2372 |
2749 |
|
Коэффициент приведения – Мп |
1,0 |
1,3 |
1,24 |
1,77 |
2,43 |
1,46 |
2,83 |
3,28 |
3,57 |
4,46 |
1,86 |
2,42 |
3,8 |
1,82 |
3,01 |
3,48 |
|
Б/ Спортзал (м2) |
288 |
576 |
648 |
828 |
1116 |
648 |
936 |
1116 |
936 |
1116 |
576 |
648 |
936 |
576 |
828 |
936 |
|
Коэффициент приведения – Кп |
1,0 |
2,0 |
2,25 |
2,87 |
3,87 |
2,25 |
3,25 |
3,87 |
3,25 |
3,87 |
2,0 |
2,25 |
3,25 |
2,0 |
2,87 |
3,25 |
|
Остальные общешкольные помещения (м2) |
910 |
1307 |
1202 |
1805 |
2500 |
1380 |
2647 |
3943 |
2601 |
3191 |
1684 |
2114 |
3492 |
1652 |
2350 |
3410 |
|
Коэффициент приведения – Мп |
1,0 |
1,44 |
1,32 |
1,98 |
2,75 |
1,52 |
2,91 |
4,33 |
2,86 |
3,51 |
1,85 |
2,32 |
3,83 |
1,81 |
2,58 |
3,75 |
Сводная таблица по дефициту и методам реконструкции типового проекта 65-426/1 при двух вариантах наполняемости учебных групп - на 16 учащихся (вариант А) и на 24 учащихся (вариант Б).
|
Наименование показателей |
Вид и тип УЗ (количество классов) |
|||||||||||||||
|
НО |
НОС |
НОСП |
ОСП |
Г |
Л |
|||||||||||
|
9кл. |
18кл. |
11кл. |
22кл. |
33кл. |
11кл. |
22кл. |
33кл. |
20кл. |
30кл. |
7кл. |
14кл. |
21кл. |
8кл. |
12кл. |
18кл. |
|
|
1 |
2 |
3 |
4 |
5 |
6 |
7 |
8 |
9 |
10 |
11 |
12 |
13 |
14 |
15 |
16 |
17 |
|
А) По учебной группе: |
|
|
|
|
|
|
|
|
|
|
|
|
|
|
|
|
|
- дефицит площади помещений |
+643 |
85 |
0 |
971 |
1924 |
482 |
1910 |
3140 |
1593 |
2611 |
+127 |
680 |
1672 |
812 |
1606 |
2770 |
|
-дефицит количества помещений |
+15 |
+1 |
0 |
16 |
35 |
9 |
33 |
51 |
24 |
40 |
1 |
12 |
24 |
11 |
28 |
43 |
|
-метод преобразования |
М |
М |
М |
Пр |
Пр |
Н |
Пр |
Н/Ц |
Пр |
Пр |
М |
Н |
Пр |
Пр |
Пр |
11р |
|
По общешкольной группе: |
|
|
|
|
|
|
|
|
|
|
|
|
|
|
|
|
|
- дефицит площади по типам залов (табл.8.5.) |
0 |
П |
I |
III |
VII |
I |
V |
VII |
V |
VII |
I |
III |
V |
III |
V |
V |
|
- дефицит площади остальных общешкольных помещений. |
178 |
597 |
510 |
1078 |
2134 |
688 |
2162 |
2805 |
2748 |
3733 |
1007 |
1593 |
2932 |
1111 |
2296 |
2678 |
|
По зданию в целом: |
М +465 |
М П-597 |
М I-510 |
971 III-1078 |
1924 VII-2134 |
Н I-688 |
1910 V-2162 |
Н/Ц |
1593 V-2748 |
Н/Ц |
М I-880 |
Н III-1593 |
1672 V-2932 |
812 III-1111 |
1606 V-2296 |
Н/Ц |
|
Б) По учебной группе: |
|
|
|
|
|
|
|
|
|
|
|
|
|
|
|
|
|
-дефицит площади помещений |
+120 |
1078 |
897 |
2287 |
3631 |
1522 |
3466 |
5154 |
3228 |
4383 |
624 |
1779 |
3008 |
1944 |
3375 |
4695 |
|
-дефицит количества помещений |
+5 |
9 |
10 |
26 |
45 |
19 |
43 |
61 |
34 |
50 |
11 |
22 |
34 |
21 |
38 |
53 |
|
- метод преобразования |
М |
Пр |
Пр |
Пр |
Н/Ц |
Пр |
Н/Ц |
Н/Ц |
Н/Ц |
Н/Ц |
Н |
Пр |
Пр |
Пр |
Н/Ц |
Н/Ц |
|
По общешкольной группе: - дефицит площади по типам залов (табл.8.5.): |
0 |
III |
IV |
V |
VII |
IV |
VI |
VII |
VI |
VII |
III |
IV |
VI |
III |
V |
VI |
|
-дефицит площади остальных обще – школьных помещений |
299 |
987 |
950 |
1731 |
2719 |
1128 |
2685 |
4158 |
2640 |
3402 |
1360 |
1862 |
3528 |
1328 |
2278 |
3446 |
|
По зданию в целом: |
М 179 |
1078 III-867 |
897 IV-830 |
2287 V-1611 |
Н/Ц |
1522 IV-1008 |
Н/Ц |
Н/Ц |
Н/Ц |
Н/Ц |
Н III-1240 |
1779 IV-1742 |
Н/Ц |
1944 III-1208 |
Н/Ц |
Н/Ц |
Примечания. 1. В числителе дана площадь по учебному блоку, в знаменателе - тип (I - VIII) недостающего спортзала и суммарная площадь по недостающим помещениям общешкольной группы (включая залы).
2. М - модернизация, Пр - реконструкция с помощью блока-пристройки, Н - надстройка учебного блока, Н/Ц - целесообразность любых преобразований.
9.1. Результат проведенного выше анализа (дефицит по каждой группе помещений) позволяет решить, в какой степени существующий объект не соответствует целевым типам зданий и какие методы реконструктивных преобразований необходимы для приведения его в это соответствие.
9.2. С учетом специфики существующего фонда московских школ, состоящей в:
затесненности школьных участков; недопустимости надстройки блока зальных помещений вследствие ограниченности изделий московского строительного каталога;
возможности надстройки учебного блока некоторых школьных зданий не более, чем на один этаж, - могут быть предложены два направления преобразования устаревших школьных зданий:
- модернизация, проводимая без изменения планировочных габаритов здания, путем изменения типа и вида учебного заведения;
- реконструкция, осуществляемая посредством увеличения площади существующего объекта с помощью надстройки или блоков-пристроек.
9.3. Для того, чтобы по величине найденного дефицита установить характер необходимых для конкретного случая реконструктивных преобразований, вводятся следующие общие ограничения для максимальных значений дефицита школьных зданий:
- при модернизации - величина дефицита не должна превышать одноименный показатель нормируемой площади (по соответствующей группе помещений) реконструируемого объекта более, чем на 5-10%;
- при реконструкции с помощью надстройки учебного блока -дефицит не должен превышать площадь этажа учебного блока существующего здания;
- при реконструкции с помощью блоков - пристроек - величина дефицита не должна превышать аналогичный показатель нормируемой площади существующего объекта более, чем в 1,5 раза.
9.4. По указанным ограничениям для каждого типового проекта устанавливаются свои пороговые значения дефицита по каждой группе помещений и зданию в целом.
Например, по учебной группе помещении рассматриваемого проекта: модернизация возможна при дефиците площади равном нулю или больше нуля, но меньше 204 м2; надстройка учебного блока на 1 этаж - при дефиците больше 204 м2, но меньше 648 м2; реконструкция с помощью блока-пристройки - при дефиците больше 648 м2, но меньше 3063 м2 (табл. 9.1.).
9.5. При сопоставлении ранее полученных значений дефицита с соответствующими пороговыми значениями - устанавливается возможность того или иного метода реконструкции здания при его приведении к конкретному целевому типу. В итоге, по каждому типовому проекту были установлены конкретные методы их преобразования в приведенные целевые типы и объемы для формирования необходимых блоков-пристроек (табл. 9.2).
Таблица 9.1
|
Методы реконструкции |
Расчет |
Пороговые значения дефицита - Д, м2 |
|
1. По учебной группе помещений: |
|
|
|
- модернизация |
0,1´2042 ==204 |
-204<Д<204 (резерв) |
|
- надстройка |
648 |
204<Д<648 |
|
- блок-пристройка |
1,5´2042=3063 |
648<Д<3063 |
|
2. По общешкольной группе помещений: |
|
|
|
- модернизация |
0,1´1191=119 |
-119<Д<119 |
|
- блок-пристройка |
1,5´1191=1787 |
119<Д<1787 |
|
3. По зданию в целом |
|
|
|
- модернизация |
0,1´3233=323 |
-323<Д<323 |
|
- реконструкция |
1,5´3233=4849 |
3233<Д<4849 |
Примечания. 1. Все показатели площади даны без учета площади рекреации типового проекта, в виду необходимости сохранения их без изменения для композиционной целостности существующего здания.
2. < - меньше, либо равно.
Сводная таблица по дефициту и методам реконструкции типовых проектов при двух вариантах наполняемости учебных групп - на 16 учащихся (вариант А) и на 24 учащихся (вариант Б).
|
Т.п. |
Наименование показателей |
Вид и тип УЗ (количество классов) |
|||||||||||||||
|
НО |
НОС |
НОСП |
ОСП |
Г |
Л |
||||||||||||
|
9кл. |
18кл. |
11кл. |
22кл. |
33кл. |
11кл. |
22кл. |
33кл. |
20кл. |
30кл. |
7кл. |
14кл. |
21кл. |
8кл. |
12кл. |
18кл. |
||
|
1 |
2 |
3 |
4 |
5 |
6 |
7 |
8 |
9 |
10 |
11 |
12 |
13 |
14 |
15 |
16 |
17 |
18 |
|
МЮ |
А) - по учебной группе помещений |
+551 |
728 |
643 |
1614 |
2566 |
1125 |
2553 |
Н/Ц |
2236 |
3255 |
516 |
1323 |
2315 |
1455 |
2249 |
3413 |
|
|
- по общешкольной группе |
I-748 |
III-1131 |
II-972 |
IV-1576 |
VII-2562 |
II-1150 |
V-2588 |
VII-3232 |
V-3174 |
VII-4159 |
II-1469 |
IV-2091 |
V-3358 |
IV-1609 |
V-2727 |
-3104 |
|
|
-по зданию в целом |
М I-197 |
728 III-580 |
643 II-421 |
1614 IV-1025 |
Н/Ц |
1125 II-599 |
Н/Ц |
Н/Ц |
Н/Ц |
Н/Ц |
516 II-948 |
1323 IV-1540 |
Н/Ц |
1455 IV-1058 |
Н/Ц |
Н/Ц |
|
|
Б) - по учебной группе помещений |
0 |
1078 |
897 |
2287 |
Н/Ц |
1522 |
Н/Ц |
Н/Ц |
Н/Ц |
Н/Ц |
624 |
1779 |
Н/Ц |
1944 |
Н/Ц |
Н/Ц |
|
|
-по общешкольной группе |
I-869 |
IV-1482 |
V-1557 |
VI-2268 |
VIII-3251 |
V-1735 |
VII-3290 |
VIII-4694 |
VII-3244 |
VIII-3942 |
IV-1859 |
V-2469 |
VII-4135 |
IV-1827 |
VI-2813 |
VII-4053 |
|
|
- по зданию в целом |
М I-869 |
1078 IV-1482 |
897 V-1557 |
Н/Ц |
Н/Ц |
1522 V-1735 |
Н/Ц |
Н/Ц |
Н/Ц |
Н/Ц |
624 IV-1859 |
Н/Ц |
Н/Ц |
1944 IV-1827 |
Н/Ц |
Н/Ц |
|
65-426/I |
А) - по учебной группе помещений |
+643 |
85 |
0 |
971 |
1924 |
482 |
1910 |
Н/Ц |
1593 |
2611 |
+127 |
680 |
1672 |
812 |
1606 |
2770 |
|
|
-по общешкольной группе |
178 |
II-597 |
I-510 |
III-1078 |
VII-2134 |
I-688 |
V-2162 |
VII-2805 |
V-2748 |
VII-3733 |
I-1007 |
III-1593 |
V-2932 |
III-1111 |
V-2296 |
V-2678 |
|
|
- по зданию в целом |
М + 465 |
М II-597 |
М I-510 |
971 III-1078 |
1924 VII-2134 |
Н I-688 |
1910 V-2162 |
Н/Ц |
1593 V-2748 |
Н/Ц |
М I-880 |
Н III-1593 |
1672 V-2932 |
812 III-1111 |
1606 V-2296 |
Н/Ц |
|
|
Б) - по учебной группе помещений |
+120 |
1078 |
897 |
2287 |
Н/Ц |
1522 |
Н/Ц |
Н/Ц |
Н/Ц |
Н/Ц |
624 |
1779 |
3008 |
1944 |
Н/Ц |
Н/Ц |
|
|
-по общешкольной группе |
299 |
III-987 |
IV-950 |
V-1731 |
VII-2719 |
IV-1128 |
VI-2685 |
VII-4158 |
VI-2640 |
VII-3402 |
III-1360 |
IV-1862 |
VI-3528 |
III-1328 |
V-2278 |
VI-3446 |
|
|
-по зданию в целом |
М 179 |
1078 III-867 |
897 IV-830 |
2287 V-1611 |
Н/Ц |
1522 IV-1008 |
Н/Ц |
Н/Ц |
Н/Ц |
Н/Ц |
Н III-1240 |
1779 IV-1742 |
Н/Ц |
1944 III-1208 |
Н/Ц |
Н/Ц |
|
У-76 |
А) - по учебной группе помещений |
+ 1614 |
+886 |
+971 |
0 |
952 |
+489 |
939 |
2169 |
622 |
1641 |
+ 1098 |
+291 |
701 |
+158 |
635 |
1799 |
|
|
- по общешкольной группе помещений |
20 |
I-403 |
208 |
II-812 |
VI-1798 |
386 |
IV-1824 |
VI-2468 |
IV-2410 |
VI-3395 |
705 |
II-1327 |
IV-2594 |
II-845 |
IV-1963 |
IV-2340 |
|
|
- по зданию в целом |
Н/Ц |
М +627 I-144 |
Н/Ц |
М II-812 |
Н VI-1798 |
М +103 |
Н IV-1824 |
2169 VI-2468 |
Н ГУ-2410 |
1641 VI-3395 |
М +393 |
М II-1036 |
701 VI-2594 |
М II-687 |
Н IV-1963 |
1799 IV-2340 |
|
|
Б) -по учебной группе помещений |
Н/Ц |
182 |
+400 |
1390 |
2734 |
625 |
2569 |
4257 |
2331 |
3486 |
+273 |
882 |
2111 |
1047 |
2477 |
3798 |
|
|
-по общешкольной группе помещений |
141 |
II-721 |
III-720 |
V-1573 |
VI-2381 |
III-902 |
V-2419 |
VI-3819 |
V-2374 |
VI-3073 |
II-1095 |
III-1633 |
V-3263 |
II-1063 |
V-2120 |
V-3181 |
|
|
-по зданию в целом |
Н/Ц |
182 II-321 |
М III-320 |
1390 V-1173 |
2734 VI-1918 |
Н III-504 |
2569 V-2019 |
Н/Ц |
2331 V-1974 |
3486 VI-2673 |
М II-422 |
Н III-1235 |
2111 V-2863 |
Н II-663 |
2477 V-1720 |
3798 V-2781 |
|
У-77 |
А) - по учебной группе помещений |
+1124 |
+397 |
+482 |
489 |
1442 |
+217 |
1429 |
2659 |
1111 |
2130 |
+609 |
198 |
1191 |
331 |
1125 |
2289 |
|
|
- по общешкольной группе помещений |
+96 |
143 |
92 |
I-660 |
V-1574 |
270 |
III-1636 |
V-2244 |
III-2222 |
V-3171 |
589 |
I-1175 |
III-2406 |
I-693 |
III-1775 |
III-2152 |
|
|
- по зданию в целом |
Н/Ц |
М +471 |
М +607 |
489 I-443 |
1442 V-1357 |
М 53 |
1429 III-1419 |
2659 V-2027 |
1111 III-2005 |
2130 V-2954 |
М +237 |
198 I-958 |
1191 III-2189 |
331 I-476 |
1125 III-1558 |
2289 III-1935 |
|
|
Б) -по учебной группе помещений |
+627 |
452 |
270 +177 |
1660 |
3004 |
895 |
2839 |
4527 |
2601 |
3756 |
+177 |
1152 |
2381 |
1317 |
2748 |
4068 |
|
|
-по общешкольной группе помещений |
25 |
I-569 |
II-496 |
IV-1277 |
VI-2266 |
II-678 |
V-2303 |
VI-3703 |
V2258 |
VI-2957 |
I-943 |
II-1409 |
V-3147 |
I-910 |
IV-1825 |
V-3065 |
|
|
-по зданию в целом |
Н/Ц |
452 I-322 |
270 II-319 |
1660 IV-1100 |
3004 VI-2089 |
895 II-501 |
2839 V-2126 |
Н/Ц |
2601 V-2081 |
3756 VI-2780 |
М I-766 |
1152 II-1232 |
2381 V-2970 |
1317 I-733 |
2748 IV-1648 |
Н/Ц |
|
У-79 |
А) - по учебной группе помещений |
1412 |
+109 |
+194 |
778 |
1730 |
288 +207 |
1717 |
2947 |
1399 |
2418 |
+320 |
486 |
1479 |
619 |
1413 |
2577 |
|
|
- по общешкольной группе помещений |
+288 +299 |
+108 +60 |
+216 +111 |
313 |
V-1371 |
+216 67 |
I-1289 |
V-2041 |
I-1875 |
V-2968 |
+216 368 |
828 |
I-2059 |
346 |
I-1428 |
I-1805 |
|
|
- по зданию в целом |
1412 М+ 506 |
+109 М+ 267 |
+194 М+ 318 |
Н 106 |
1730 V-1164 |
288 М+ 140 |
1717 I-1082 |
2947 V-1834 |
1399 I-1668 |
2418 V-2761 |
+320 179 |
Н 621 |
1479 I-1852 |
Н 139 |
1413 I-1221 |
2577 I-1598 |
|
|
Б) -по учебной группе помещений |
+591 |
488 |
306 +380 |
1696 |
3040 |
931 |
2875 |
4563 |
2637 |
3792 |
33 |
1188 |
2417 |
1353 |
2784 |
4104 |
|
|
-по общешкольной группе помещений |
+288 +178 |
219 |
I-1276 |
III-1002 |
V-1954 |
I-439 |
IV-1920 |
V-3392 |
IV-1874 |
V-2646 |
596 |
1169 |
IV-2763 |
563 |
III-1549 |
IV-2681 |
|
|
-по зданию в целом |
Н/Ц |
Н М+ 161 |
Н I-826 |
1696 Ш-622 |
3040 V-1574 |
931 I-59 |
2875 IV-1540 |
Н/Ц |
2637 IV-1494 |
3792 V-2266 |
М 216 |
1188 I-789 |
2417 IV-2383 |
1353 183 |
2784 III-1169 |
4104 IV-2301 |
|
У-92 |
А) - по учебной группе помещений |
+ 1124 |
+397 |
+482 |
489 |
1442 |
0 |
1429 |
2659 |
1111 |
2130 |
+609 |
198 |
1190 |
330 |
1125 |
2289 |
|
|
- по общешкольной группе помещений |
+144 +79 |
160 |
109 |
I-677 |
V-1591 |
287 |
III-1653 |
V-2261 |
III-2239 |
V-3188 |
606 |
I-1192 |
III-2423 |
I-710 |
III-1792 |
III-2169 |
|
|
- по зданию в целом |
Н/Ц |
М +237 |
М +373 |
489 I-677 |
1442 V-1591 |
М 287 |
1429 III-1653 |
2659 V-2261 |
1111 III-2239 |
2130 V-3188 |
М |
198 I-1192 |
1190 III-2423 |
330 I-710 |
1125 III-1792 |
2289 III-2169 |
|
|
Б) -по учебной группе помещений |
+668 |
409 |
228 +211 |
1618 |
2962 |
853 |
2797 |
4484 |
2559 |
3714 |
+45 |
1110 |
2339 |
1275 |
2706 |
4026 |
|
|
-по общешкольной группе помещений |
+144 42 |
I-586 |
II-513 |
IV-1293 |
VI-2282 |
II-695 |
V-2320 |
VI-3720 |
V-2274 |
IV-2974 |
I-960 |
II-1425 |
V-3163 |
I-927 |
IV-1842 |
V-3081 |
|
|
-по зданию в целом |
Н/Ц |
409 I-375 |
228 II-302 |
1618 IV-1082 |
2962 VI-2071 |
853 II-484 |
2797 V-2109 |
Н/Ц |
2559 V-2063 |
3714 IV-2763 |
М I-704 |
1110 II-1214 |
2339 V-2952 |
1275 I-716 |
2706 IV-1631 |
4026 V-2870 |
Примечания. 1. В числителе дана недостающая площадь по учебной группе помещений здания, в знаменателе - тип недостающего спортзала (I-VIII) и суммарная площадь недостающих общешкольных помещений, включая спортзал.
2. Пр. - реконструкция с помощью блока-пристройки; М - модернизация; Н- надстройка учебного блока, Н/Ц - нецелесообразно любые виды преобразований; +216 - резерв площади, 216 - дефицит площади.
3. 1- для каждого типового проекта отмечен целевой тип УЗ максимально близкий к нему по составу и площадям помещений (с минимальным показателем дефицита).
10.1. По представленной методике модернизация школьных зданий путем введения недостающих помещений посредством изменения назначения имеющихся с одновременным изменением типа и вида УЗ возможна в двух вариантах:
- вариант А - без изменения внутренней планировки существующего здания (переноса перегородок);
- вариант Б - с его частичной внутренней перепланировкой (с переносом перегородок, за исключением тех помещений, которые требуют специальных инженерных коммуникаций - специализированных лабораторий физики, химии, биологии, астрономии, мастерских).
10.2. В отобранных для исследования типовых проектах модернизация проводиться по варианту А. Конкретные изменения типа и вида учебного здания по указанным проектам в результате модернизации. представлены в таблице 10.1.
10.3. Вследствие того, что модернизация характеризуется обязательным снижением проектной вместимости зданий, она может быть рекомендована для преобразования существующих школ в специализированные учебные заведения - гимназии и лицеи. В этом случае, дефицит учебных мест, получаемый в результате модернизации, в значительной мере может быть компенсирован за счет использования указанных объектов в качестве «кустовых» - для обучения учащихся старших классов соседних школ.
Рекомендации по преобразованию школьных зданий построенных по устаревшим типовым проектам.
Модернизация школьных зданий без изменения планировки.
|
Типовой проект |
Вариант |
Вид и тип УЗ (количество классов) |
|||||||||||||||
|
НО |
НОС |
НОСП |
ОСП |
Г |
Л |
||||||||||||
|
9кл. |
18кл. |
11кл. |
22кл. |
33кл. |
11кл. |
22кл. |
33кл. |
20кл. |
30кл. |
7кл. |
14кл. |
21кл. |
8кл. |
12кл. |
18кл. |
||
|
МЮ
|
А |
|
|
|
|
|
|
|
|
|
|
|
|
|
|
|
|
|
65-426/1
|
A |
|
|
|
|
|
|
|
|
|
|
|
|
|
|
|
|
|
У-76
|
А |
|
|
|
|
|
|
|
|
|
|
|
|
|
|
|
|
|
У-77
|
А |
|
|
|
|
|
|
|
|
|
|
|
|
|
|
|
|
|
У-79
|
А |
|
|
|
|
|
|
|
|
|
|
|
|
|
|
|
|
|
У-92
|
А |
|
|
|
|
|
|
|
|
|
|
|
|
|
|
|
|
11.1. Возможны три схемы реконструкции указанных школьных зданий:
- модернизация учебного блока и пристройка блока общешкольных помещений;
- надстройка учебного блока и пристройка блока общешкольных помещений (табл. 11.1.);
- пристройка двух функциональных блоков (учебного и общешкольного) или одного комплексного.
Все они также могут быть выполнены в 2-х вариантах: А- без существенной перепланировки, Б-с внутренней перепланировкой существующего объекта.
Перепланировку и изменение назначения помещений в каждом существующем здании следует проводить, по возможности, с учетом функционального зонирования и взаимосвязи групп помещений согласно требованиям МГСН 4.06-96.
11.2. Реконструкция с помощью надстройки возможна для небольшой части типовых проектов, имеющих этажность ниже допустимой (т.п. 65-426, У-76, У-79), а также при соблюдении специальных условий: наличия достаточного запаса прочности основных несущих конструкций реконструируемого объекта; наличия инсоляционного резерва относительно близлежащей застройки; сохранения архитектурной и композиционной целостности застройки и т.д.
11.3. В Московском территориальном каталоге на 1996 г. имеется 6 действующих типовых проектов блоков-пристроек, разработанных и откорректированных МНИИТЭП в 70-90 гг. В частности:
1. Блок-столовая т.п. У-73, выпуск 1990 г.;
2. Блок-столовая и спортзал (24´12) т.п. У-74, выпуск 1990 г.;
3. Функциональный блок эстетического воспитания т.п. У-80, выпуск 1982 г. (в составе студий изобразительного и прикладного искусства, хореографии, музыки и пения);
4. Блок начальных классов т.п. У-81, выпуск 1990 г. (на 12 групп со спортзалом 9´18);
5. Блок начальных классов т.п. У-82 (на 8 групп со спортзалом 6,6´18);
6. Блок начальных классов со столовой т.п. У-83 (на 8 групп с кружковыми и столовой).
Несмотря на разнообразие типов, вышеуказанные блоки - и функциональные и комплексные - не отвечают задачам новой педагогической технологии - активизации и дифференциации обучения среднего и старшего звена школы. В этом смысле они не соответствуют основным задачам преобразования материальной среды современной школы и нуждаются в дальнейшем расширении номенклатуры блоков-пристроек.
Реконструкция школьных зданий с учетом перепланировки, надстройки и пристройки.
|
Типовой проект |
Вариант |
Вид и тип УЗ (количество классов) |
|||||||||||||||
|
НО |
НОС |
НОСП |
ОСП |
Г |
Л |
||||||||||||
|
9кл. |
18кл. |
11кл. |
22кл. |
33кл. |
11кл. |
22кл. |
33кл. |
20кл. |
30кл. |
7кл. |
14кл. |
21кл. |
8кл. |
12кл. |
18кл. |
||
|
МЮ |
А |
|
|
|
|
|
|
|
|
|
|
|
|
|
|
|
|
|
|
Б |
|
|
|
|
|
|
|
|
|
|
|
|
|
|
|
|
|
65-426/1 |
А |
|
|
|
|
|
|
|
|
|
|
|
|
|
|
|
|
|
|
Б |
|
|
|
|
|
|
|
|
|
|
|
|
|
|
|
|
|
У-76 |
А |
|
|
|
|
|
|
|
|
|
|
|
|
|
|
|
|
|
|
Б |
|
|
|
|
|
|
|
|
|
|
|
|
|
|
|
|
|
У-77 |
А |
|
|
|
|
|
|
|
|
|
|
|
|
|
|
|
|
|
|
Б |
|
|
|
|
|
|
|
|
|
|
|
|
|
|
|
|
|
У-79 |
А |
|
|
|
|
|
|
|
|
|
|
|
|
|
|
|
|
|
|
Б |
|
|
|
|
|
|
|
|
|
|
|
|
|
|
|
|
|
У-92 |
А |
|
|
|
|
|
|
|
|
|
|
|
|
|
|
|
|
|
|
Б |
|
|
|
|
|
|
|
|
|
|
|
|
|
|
|
|
Примечания. 1. В числителе дан вариант преобразования учебного блока, в знаменателе – блока общешкольных помещений.
2.
- модернизация,
- надстройка,
- пристройка.
12.1. Предлагается 5 типов универсальных функциональных блоков (три учебных и два общешкольных), ориентированных на оптимизацию учебно-воспитательной среды преимущественно средней и старшей школы. Реконструкция типовых проектов посредством универсальных блоков-пристроек приведена в таблице 12.1.
Их номенклатура, примерный состав и площади помещений даны в таблицах 12.2.; 12.3.; 12.4.
12.2. Предлагаемые блоки универсальны:
- по назначению, т.к. могут применяться автономно, в комплексе с другими блоками, а при необходимости - в составе единого комплексного блока;
- по суммарной нормируемой площади, которая унифицирована для всех реконструируемых зданий и представлена в виде следующего числового ряда:
по учебной группе - 600-800, 1000- 1200 и 1000- 1600, но общешкольной группе - 500-600, 800-1000, 1000-1200 и 1200-1400;
- по составу помещений: в учебном блоке - это универсальные учебные помещения и специализированные кабинеты, в общешкольном - 2 спортзала (в сумме или каждый в отдельности заменяющие типы недостающих залов в рассматриваемых проектах), минимальный состав кружковых и лекционная аудитория;
- по вместимости, которая рассчитана на наполняемость учебных групп - 30 учащихся (Согласно п.3.4. МГСН 4.06-96 повышенная наполняемость классных групп до 30 уч. допустима в условиях реконструкции застройки и сложившегося фонда школьных зданий. Это положение новых норм, главным образом, относится к блокам-пристройкам, где можно принять учебные помещения расширенных параметров и тем самым более экономно решать проблему реорганизации сети учебных заведений).
Поэтому предложенные блоки могут быть использованы для реконструкции любого из представленных типовых проектов школьных зданий, и выступать в качестве базовых блоков-пристроек на группу школ, учитывая затесненность московских участков. Это также позволит отчасти компенсировать дефицит ученических мест, возникший в ходе реконструкции устаревшего школьного фонда.
12.3. По сравнению с модернизацией, реконструкция способна более полно удовлетворять новым педагогическим требованиям с сохранением первоначальной вместимости реконструируемого объекта. Поэтому она может быть рекомендована в тех случаях, когда невозможно изменить проектную вместимость и вид учебного здания, а территориальные возможности допускают развитие здания вблизи либо непосредственно в пределах занимаемой территории.
12.4. Рассмотренные варианты преобразования школьных здании, построенных по устаревшим типовым проектам предлагаются в качестве методического материала, на основе которого по заданиям местных планирующих органов могут быть разработаны конкретные проекты, с учетом особенностей местного фонда школьных зданий и без нарушения современной педагогической технологии.
Реконструкция школьных зданий с помощью универсальных блоков-пристроек.
|
Типовой проект |
Вари Ант
|
Вид и тип УЗ (количество классов) |
|||||||||||||||
|
НО |
НОС |
НОСП |
ОСП |
Г |
Л |
||||||||||||
|
9кл. |
18кл. |
11кл. |
22кл. |
33кл. |
11кл. |
22кл. |
33кл. |
20кл. |
30кл. |
7кл. |
14кл. |
21кл. |
8кл. |
12кл. |
18кл. |
||
|
МЮ |
А |
_ IV |
IIV |
IIV |
IIIIV |
|
IIIV |
|
|
|
|
IIV |
IIIV |
|
IIIV |
|
|
|
|
Б |
_ V |
IIIV |
IIV |
|
|
IIIV |
|
|
|
|
|
|
|
|
|
|
|
65-426/1 |
А |
|
_ IV |
_ IV |
IIV |
IIIV |
_ IV |
|
|
|
|
_ IV |
|
|
IIV |
|
|
|
|
Б |
|
IIIV |
IIV |
|
|
IIIIV |
|
|
|
|
_ IV |
|
|
IIIIV |
|
|
|
У-76 |
А |
|
_ IV |
|
_ IV |
_ V |
|
_ V |
|
|
|
|
_ IV |
|
_ IV |
_ V |
|
|
|
Б |
|
_ IV |
_ IV |
IIIV |
|
_ IV |
|
|
|
|
_ IV |
_ IV |
|
_ IV |
|
|
|
У-77 |
А |
|
|
|
IIV |
IIIV |
|
IIIV |
|
IIV |
|
|
IIV |
IIV |
IIV |
IIIV |
|
|
|
Б |
|
IIV |
IIV |
IIIIV |
|
IIV |
|
|
|
|
_ IV |
IIIV |
|
IIV |
|
|
|
У-79 |
А |
II |
|
|
|
IIIIV |
I |
IIIIV |
|
IIV |
|
|
_ IV |
IIV |
|
IIIV |
|
|
|
Б |
|
|
_ IV |
IIIIV |
|
IV |
|
|
|
|
_ V |
IIIV |
|
IIIV |
|
|
|
У-92 |
А |
|
|
|
IIV |
IIV |
_ IV |
IIV |
|
|
|
|
IIV |
|
IIV |
IIV |
|
|
|
Б |
|
IIV |
IIV |
IIIIV |
|
IIV |
|
|
|
|
_ IV |
IIIV |
|
IIIV |
|
|
Примечание. В числителе дан тип учебного блока, в знаменателе - тип блока общешкольных помещении из предлагаемой номенклатуры (см. табл. 12.2.).
Номенклатура типов функциональных блоков для пристроек
к существующим зданиям школ, построенным
по типовым проектам прошлых лет
|
№ Блока |
Тип блока |
|
|
УЧЕБНЫЕ БЛОКИ: |
|
I. |
Универсальный на 8 учебных помещений. |
|
II. |
Универсальный на 12 учебных помещений. |
|
III. |
Универсальный на 16 учебных помещений |
|
|
ОБЩЕШКОЛЬНЫЕ БЛОКИ: |
|
IV. |
Универсальный на 2 спортзала (360 и 180м2) и базовый комплект кружковых помещений. |
|
V. |
Универсальный на 2 спортзала (648 и 180 м2), зрительный зал и базовый комплект кружковых помещений. |
Примерный состав и площади помещений универсальных учебных блоков.
|
№ |
Наименование помещении |
Тип блока, площадь (м2) |
||
|
п.п |
|
I - на 8 учебных помещении |
11-на 12 учебных помещений |
Ш-на16 учебных помещений |
|
1 |
Универсальные учебные помещения: |
|
|
|
|
|
- универсальные кабинеты |
540(456)/6х90(76) |
540(456)/6х90(76) |
540(456)/6х90(76) |
|
|
- специализированные кабинеты (по естественным наукам, изучению техники, обработке материалов, технологии, электро – радиотехнологии |
270/2´135 |
810/6´135 |
1350/10´135 |
|
2. |
Рабочие комнаты |
24*) 2´12 |
72*) 6´12 |
120*) 10´12 |
|
3. |
Ресурсный центр |
80 |
80 |
80 |
|
4. |
Инструментальная комната мастера и кладовая для хранения сырья |
60/18´2+24 |
72/18´2+36 |
72/18´2+36 |
|
5. |
Гардеробная |
24 |
36 |
48 |
|
6. |
Санузлы |
38 |
58 |
77 |
|
7. |
Вестибюль с гардеробом |
90 |
134 |
179 |
|
8. |
Рекреации |
480 |
720 |
960 |
|
|
Итого нормируемой площади - для сопоставления - без учета площади рекреаций |
1606(1522) 1126(1042) |
2522(2438) 1802(1718) |
3426(3342) 2466(2382) |
Примечания. 1 В скобках дана площадь с учетом проведения в учебных помещениях только фронтальных работ.
2. *) Количество рабочих комнат определяется проектом.
Примерный состав и площади помещений универсальных общешкольных блоков.
|
№ п.п. |
Наименование помещений |
Тип блока, площадь (м2) |
|
|
IV |
V |
||
|
1. |
Спортивно-оздоровительная группа: |
540/24´15 |
828/36´18 |
|
|
- спортзалы |
12х15 |
12´15 |
|
|
- раздевальные |
84/4х21+36/2х18 |
84/4´21+36/2´18 |
|
|
-инвентарная (снарядная) |
12+16 |
12+32 |
|
|
-помещения хранения уборочного инвентаря |
4 |
4 |
|
|
-помещение инструктора |
10 |
20 |
|
2. |
Кружковые помещения: - помещения эстетического воспитания (в составе студий ИЗО, музыки и пения, хореографии) |
108/3х36+62+108 |
108/3´36+62+108 |
|
|
- универсальное помещение технического творчества с подсобной |
108+12 |
108+12 |
|
|
помещения для биолого-опытнической деятельности ( в составе кружка юннатов, кабинета экологии) |
72/2´36+54 |
72/2´36+54 |
|
3. |
Помещения зрительного зала: |
|
|
|
|
- зрительный зал с эстрадой |
- |
212/140+72 |
|
|
-артистические с кладовой |
- |
8+12 |
|
|
- киноаппаратная с тамбуром |
- |
27 |
|
|
-технический центр |
- |
48 |
|
|
-лекционная аудитория |
100 |
|
|
4. |
Санузлы |
38 |
53 |
|
5. |
Вестибюль с гардеробом |
134,4 |
187 |
|
6. |
Рекреации |
488 |
688 |
|
|
Итого нормируемой площади: |
1986 |
2775 |
|
|
-для сопоставления - без учета площади рекреаций |
1498 |
2087 |
|
№№ и перечень функциональных групп помещений |
Наименование помещений |
Основная школа |
Средняя полная школа |
Средняя полная школа с профильным обучением |
Средняя школа I-III ступени с профильным обучением |
Гимназия |
Лицей |
|||||||||||||||||||
|
1 |
2 |
3 |
4 |
5 |
6 |
7 |
8 |
9 |
10 |
11 |
12 |
13 |
14 |
15 |
16 |
17 |
18 |
19 |
20 |
|||||||
|
|
Число учащихся |
225 |
450 |
275 |
550 |
825 |
275 |
550 |
825 |
550+ 550 |
500 |
750 |
1000 |
140 160 |
280 320 |
420 480 |
160 200 |
240 300 |
360 540 |
|||||||
|
|
Орг-пед. структура |
1:1:0 |
2:2:0 |
1:1:1 |
2:2:2 |
3:3:3 |
1:1:1 |
2:2:2 |
3:3:3 |
222+ 222 |
0:2:4 |
0:3:6 |
0:4:8 |
0:1:1 |
0:2:2 |
0:3:3 |
0:2:2 |
0:3:3 |
0:0:9 |
|||||||
|
|
Количество классов |
9 |
18 |
11 |
22 |
33 |
11 |
22 |
33 |
22+ 22 |
20 |
30 |
40 |
78 |
14 16 |
21 24 |
8 10 |
12 15 |
18 27 |
|||||||
|
Площадь м2 и число помещений |
||||||||||||||||||||||||||
|
1 |
2 |
3 |
4 |
5 |
6 |
7 |
8 |
9 |
10 |
11 |
12 |
13 |
14 |
15 |
16 |
17 |
18 |
19 |
20 |
|||||||
|
Учебная группа помещений |
||||||||||||||||||||||||||
|
1. 1-е классы |
-Класс, расширенный с учетом организации групповых занятий |
76 |
152 2´76 |
76 |
152 2´76 |
228 3´76 |
76 |
152 2´76 |
228 3´76 |
304 4´76 |
|
|
|
|
|
|
|
|
|
|||||||
|
-Спальня - игровая |
62 |
124 2´62 |
62 |
124 2´62 |
186 3´62 |
62 |
124 2´62 |
186 3´62 |
248 4´62 |
|
|
|
|
|
|
|
|
|
||||||||
|
-Рекреация (зального типа) |
60 |
100 |
60 |
100 |
150 |
60 |
100 |
150 |
200 |
|
|
|
|
|
|
|
|
|
||||||||
|
У – КНШ |
||||||||||||||||||||||||||
|
2. Начальные (2-4) классы |
- Класс с возможностью организации групповых, индивидуальных и игровых занятий |
228 3´76 |
456 6´76 |
228 3´76 |
456 6´76 |
684 9´76 |
228 3´76 |
456 6´76 |
684 9´76 |
912 12´76 |
|
|
|
|
|
|
|
|
|
|||||||
|
- Универсальные помещения в т ч для организации продленного дня |
60 |
120 2´60 |
60 |
120 2´60 |
180 3´60 |
60 |
120 2х60 |
180 3´60 |
240 4´60 |
|
|
|
|
|
|
|
|
|
||||||||
|
- Комнаты тихих игр и уединения |
|
|
|
|
|
30 |
60 |
90 |
120 |
|
|
|
|
|
|
|
|
|
||||||||
|
- Комната труда, моделирования и технической игрушки, изобразительного искусства, природы |
108 |
108 |
108 |
108 |
108 |
120 |
120 |
120 |
240 2´120 |
|
|
|
|
|
|
|
|
|
||||||||
|
- Рекреация (зального типа) |
144 |
288 |
144 |
288 |
342 |
144 |
288 |
342 |
576 |
|
|
|
|
|
|
|
|
|
||||||||
|
- Учительская – методический кабинет |
30 |
60 |
30 |
60 |
90 |
30 |
60 |
90 |
120 |
|
|
|
|
|
|
|
|
|
||||||||
|
У – КОШ |
||||||||||||||||||||||||||
|
1 |
2 |
3 |
4 |
5 |
6 |
7 |
8 |
9 |
10 |
11 |
12 |
13 |
14 |
15 |
16 |
17 |
18 |
19 |
20 |
|||||||
|
3. классы кабинеты (5-9) основной школы |
- Класс - учебный кабинет, рассчитанный на организацию фронтальных, групповых и индивидуальных форм работы |
380 5´76 |
760 10´76 |
380 5´76 |
760 10´76 |
1140 15´76 |
380 5´76 |
760 10´76 |
1140 15´76 |
1520 20´76 |
760 10´76 |
1140 15´76 |
1520 20´76 |
360 5´76 |
760 10´76 |
1140 15´76 |
304 4х76 |
456 6´76 |
|
|||||||
|
- Ресурсный центр |
|
|
|
|
|
60 |
120 |
180 |
240 |
120 |
180 |
240 |
60 |
120 |
180 |
48 |
72 |
|
||||||||
|
- Рабочие комнаты для занятий по интересам |
|
|
|
|
|
50 |
100 |
150 |
200 2´100 |
100 |
150 |
200 |
50 |
100 |
150 |
100 |
150 |
|
||||||||
|
-Рекреация (зального типа) |
250 |
500 |
250 |
500 |
750 |
250 |
500 |
750 |
1000 |
500 |
750 |
1000 |
250 |
500 |
750 |
500 |
750 |
|
||||||||
|
У – КСШ |
||||||||||||||||||||||||||
|
1 |
2 |
3 |
4 |
5 |
6 |
7 |
8 |
9 |
10 |
11 |
12 |
13 |
14 |
15 |
16 |
17 |
18 |
19 |
20 |
|||||||
|
4. учебные кабинеты (10-11) старшей школы |
- Кабинеты универсального назначения (оснащенные в зависимости от профиля обучения) |
|
|
152 2´76 |
304 4´76 |
456 6´76 |
152 2´76 |
304 4´76 |
456 6´76 |
608 8´76 |
608 8´76 |
912 12´76 |
1216 16´76 |
152 2´76/228 3х´76 |
304 4´76/456 6´76 |
456 6´76/684 9´76 |
304 4´76/456 6´76 |
456 6´76/684 9´76 |
1368 18´76/2052 27´76 |
|||||||
|
- Комнаты индивидуальных занятий |
|
|
|
|
|
30 |
60 |
90 |
120 |
120 |
180 |
240 |
30/45 |
60/90 |
90/ 135 |
60/90 |
90/ 135 |
270 /415 |
||||||||
|
- Ресурсный центр |
|
|
|
|
|
20 |
40 |
60 |
80 |
80 |
120 |
160 |
20/30 |
40/60 |
60/90 |
40/60 |
60/ 90 |
180/270 |
||||||||
|
- Рекреации |
|
|
100 |
200 |
300 |
100 |
200 |
300 |
400 |
400 |
600 |
800 |
100/ 200 |
200/ 300 |
300/ 400 |
200/ 300 |
300 /400 |
720/ 1080 |
||||||||
|
У – СК |
||||||||||||||||||||||||||
|
1 |
2 |
3 |
4 |
5 |
6 |
7 |
8 |
9 |
10 |
11 |
12 |
13 |
14 |
15 |
16 |
17 |
18 |
19 |
20 |
|||||||
|
5. специализированные кабинеты основной старшей школы |
Учебные кабинеты по естественным наукам (физика химия, биология) в составе: |
|
|
|
|
|
|
|
|
|
|
|
|
|
|
|
|
|
|
|||||||
|
- лаборатория |
|
|
228 3´76 |
228 3´76 |
228 3´76 |
228 3´76 |
228 3´76 |
228 3´76 |
228 3´76 |
228 3´76 |
228 3´76 |
228 3´76 |
228 3х76 |
228 3х76 |
228 3х76 |
228 3х76 |
228 3х76 |
228 3х76 |
||||||||
|
-практикум |
|
|
|
150 3´50 |
150 3´50 |
150 3´50 |
300 6´50 |
300 6´50 |
600 12х50 |
300 6х50 |
300 6х50 |
600 12х50 |
|
|
|
150 3х50 |
300 6х50 |
450 9х50 |
||||||||
|
- лаборантская – практикум |
108 3´36 |
108 3´36 |
108 3´36 |
|
|
|
|
|
|
|
|
|
|
|
|
108 3х36 |
216 6х36 |
324 9х36 |
||||||||
|
- лаборантская |
|
|
|
|
54 3´18 |
|
54 3´18 |
54 3´18 |
108 6´18 |
54 3´18 |
54 3´18 |
54 3´18 |
54 3х18 |
54 3х18 |
54 3х18 |
|
|
|
||||||||
|
- кабинет естествознания |
76 |
76 |
|
|
|
|
|
|
|
|
|
|
|
|
|
|
|
|
||||||||
|
Специализированные кабинеты |
|
|
|
|
|
|
|
|
|
|
|
|
|
|
|
|
|
|
||||||||
|
- иностранного языка |
80 2´40 |
160 4´40 |
160 4´40 |
240 6´40 |
360 9´40 |
160 4´40 |
240 6´40 |
360 9´40 |
480 12´40 |
240 6´40 |
360 9´40 |
480 12´40 |
320 8´40 |
400 10´40 |
480 12´40 |
240 6´40 |
320 8´40 |
400 10´40 |
||||||||
|
- информатики и вычислительной техники |
90 |
90 |
90 |
90 |
90 |
90 |
90 |
90 |
180 2х90 |
90 |
90 |
90 |
90 |
90 |
90 |
90 |
90 |
90 |
||||||||
|
- технического черчения и рисования |
76 |
76 |
76 |
76 |
76 |
76 |
100 |
100 |
100 |
100 |
100 |
100 |
76 |
100 |
100 |
100 |
200 2´100 |
300 3´100 |
||||||||
|
- компьютерный класс |
|
|
|
|
|
72 |
144 2´72 |
216 3´72 |
288 4´72 |
144 2´72 |
216 3´72 |
288 4´72 |
144 2´72 |
216 3´72 |
288 4´72 |
144 2´76 |
216 3´72 |
288 4´72 |
||||||||
|
- профильного обучения |
|
|
|
|
|
|
|
|
|
|
108 |
216 2´108 |
|
108 |
216 2´108 |
216 2´108 |
324 3´108 |
432 4´108 |
||||||||
|
У – ТМ |
||||||||||||||||||||||||||
|
6. Помещения изучения технологий (трудовое обучение) |
- Мастерская по обработке металла и дерева (универсальная) |
90 |
90 |
|
|
|
|
|
|
|
|
|
|
90 |
90 |
90 |
|
|
|
|||||||
|
- Мастерская по обработке металла и технологии |
|
|
90 |
90 |
90 |
90 |
90 |
90 |
90 |
90 |
90 |
90 |
|
|
|
108 |
108 |
108 |
||||||||
|
- Инструментальная |
18 |
18 |
18 |
18 |
24 |
18 |
18 |
24 |
24 |
18 |
24 |
24 |
18 |
18 |
18 |
36 |
36 |
36 |
||||||||
|
-Мастерская по обработке дерева и технологии |
|
|
90 |
90 |
90 |
90 |
90 |
90 |
90 |
90 |
90 |
90 |
|
|
|
90 |
90 |
90 |
||||||||
|
- Мастерская по обработке тканей и технологии |
90 |
90 |
90 |
90 |
90 |
108 |
108 |
108 |
108 |
108 |
108 |
108 |
90 |
90 |
90 |
108 |
108 |
108 |
||||||||
|
- Кулинария |
50 |
50 |
50 |
50 |
50 |
50 |
50 |
50 |
50 |
50 |
50 |
50 |
50 |
50 |
50 |
50 |
50 |
50 |
||||||||
|
- Домоводство с бытовой техникой |
|
|
|
90 |
90 |
90 |
90 |
90 |
90 |
90 |
90 |
90 |
|
|
90 |
90 |
90 |
90 |
||||||||
|
- Кабинет изучения технологии |
90 |
90 |
90 |
90 |
90 |
90 |
90 |
90 |
90 |
90 |
90 |
90 |
|
|
|
90 |
108 |
108 |
||||||||
|
- Универсальная мастерская по техническим видам труда |
|
|
|
|
|
108 |
108 |
108 |
108 |
108 |
108 |
108 |
|
|
|
|
108 |
108 |
||||||||
|
- Автодело |
|
|
|
|
|
|
108 |
108 |
216 2´108 |
215 2´108 |
216 2´108 |
216 2´108 |
|
|
|
108 |
216 2´108 |
216 2´108 |
||||||||
|
- Электрорадиотехнология |
|
108 |
108 |
108 |
108 |
108 |
108 |
108 |
108 |
108 |
108 |
108 |
|
|
108 |
108 |
108 |
108 |
||||||||
|
- Электротехника |
|
|
|
|
|
|
|
108 |
108 |
108 |
108 |
108 |
108 |
108 |
|
108 |
108 |
108 |
||||||||
|
- Радиоэлектроника |
|
|
|
|
|
|
108 |
108 |
108 |
108 |
108 |
108 |
|
|
|
108 |
108 |
108 |
||||||||
|
- Кабинет машинописи и основ делопроизводства |
|
|
|
|
|
80 |
80 |
80 |
80 |
80 |
80 |
80 |
80 |
80 |
80 |
80 |
80 |
80 |
||||||||
|
У – ЦИБ |
||||||||||||||||||||||||||
|
7. группа центра информации библиотека
|
- Библиотека – справочно-информационный центр с зонами читательских мест* |
80 |
100 |
115 |
235 |
325 |
115 |
235 |
325 |
440 |
235 |
325 |
440 |
115 |
235 |
325 |
235 |
325 |
440 |
|||||||
|
- Технический центр |
72 |
72 |
72 |
72 |
72 |
72 |
72 |
72 |
72 |
72 |
72 |
72 |
72 |
72 |
72 |
72 |
72 |
72 |
||||||||
|
Методический кабинет с учительской и комнатой отдыха (5-11классы) |
|
|
60 |
90 |
120 |
60 |
90 |
120 |
180 2´90 |
90 |
120 |
180 |
60 |
90 |
120 |
60 |
120 |
120 |
||||||||
|
У – ВА |
||||||||||||||||||||||||||
|
8.Вестибюльная группа учебных помещений, администрация |
- Кабинет директора |
25 |
25 |
25 |
25 |
25 |
32 |
32 |
32 |
32 |
32 |
40 |
40 |
32 |
32 |
40 |
32 |
40 |
40 |
|||||||
|
-Кабинет замдиректора по учебно-воспитательной работе |
10 |
10 |
10 |
10 |
10 |
10 |
10 |
10 |
22 2´10 |
10 |
20 2´10 |
20 2´10 |
10 |
10 |
20 |
10 |
20 |
20 |
||||||||
|
- Кабинет организатора внеклассной и внешкольной работы |
12 |
12 |
12 |
12 |
12 |
12 |
12 |
12 |
24 2´12 |
12 |
24 2´12 |
24 2´12 |
12 |
12 |
24 |
24 |
24 |
24 |
||||||||
|
- Кабинет замдиректора по адм. – хоз. Работе |
10 |
10 |
10 |
10 |
10 |
10 |
10 |
10 |
10 |
10 |
10 |
10 |
10 |
10 |
10 |
10 |
10 |
10 |
||||||||
|
- Канцелярия |
12 |
12 |
12 |
12 |
12 |
12 |
12 |
12 |
12 |
12 |
12 |
12 |
12 |
12 |
12 |
12 |
12 |
12 |
||||||||
|
-Комната техперсонала |
12 |
12 |
12 |
12 |
12 |
12 |
12 |
12 |
24 2´12 |
12 |
12 |
12 |
12 |
12 |
12 |
12 |
12 |
12 |
||||||||
|
- Кл уборочного инвентаря |
8 |
8 |
8 |
8 |
8 |
8 |
8 |
8 |
18 2´8 |
8 |
8 |
8 |
8 |
8 |
8 |
8 |
8 |
8 |
||||||||
|
- Кабинет врача |
21 |
|
21 |
21 |
21 |
21 |
21 |
21 |
21 |
21 |
21 |
21 |
21 |
21 |
21 |
21 |
21 |
21 |
||||||||
|
- Процедурная |
|
|
16 |
16 |
16 |
16 |
16 |
16 |
16 |
16 |
16 |
16 |
16 |
16 |
16 |
16 |
16 |
16 |
||||||||
|
- Кабинет зубного врача |
|
|
12 |
12 |
12 |
12 |
12 |
12 |
12 |
12 |
12 |
12 |
12 |
12 |
12 |
12 |
12 |
12 |
||||||||
|
- Санузлы учащихся |
34 |
68 |
42 |
83 |
124 |
42 |
83 |
124 |
165 |
75 |
113 |
150 |
21/24 |
42/48 |
63/72 |
24/30 |
36/45 |
54/81 |
||||||||
|
- Санузлы персонала |
10 |
10 |
10 |
10 |
20 |
10 |
10 |
20 |
20 2´10 |
10 |
10 |
20 |
10 |
10 |
20 |
10 |
10 |
20 |
||||||||
|
- Вестибюль-гардероб |
79 |
158 |
97 |
193 |
289 |
97 |
193 |
289 |
386 2´193 |
175 |
263 |
350 |
49/56 |
98 /112 |
147 /168 |
56/70 |
84 /105 |
126 /189 |
||||||||
|
Общешкольная группа помещений |
||||||||||||||||||||||||||
|
О-РЦ |
||||||||||||||||||||||||||
|
9. Рекреационный центр (центр досуга) |
Рекреационный центр в составе: |
|
|
|
|
|
|
|
|
|
|
|
|
|
|
|
|
|
|
|||||||
|
- форума |
|
|
|
|
|
|
|
|
1650 |
750 |
1125 |
1500 |
|
|
720 |
|
450 |
810 |
||||||||
|
- вестибюля-гардероба |
|
|
|
|
|
|
|
|
По расчету |
|
|
|
|
|
|
|||||||||||
|
- кабинета директора |
|
|
|
|
|
|
|
|
25 |
25 |
25 |
25 |
|
|
25 |
|
25 |
25 |
||||||||
|
- кабинета коменданта |
|
|
|
|
|
|
|
|
25 |
25 |
25 |
25 |
|
|
25 |
|
25 |
25 |
||||||||
|
- канцелярия-бухгалтерия |
|
|
|
|
|
|
|
|
18 |
18 |
18 |
18 |
|
|
18 |
|
18 |
18 |
||||||||
|
- замдиректора по воспитательной работе |
|
|
|
|
|
|
|
|
8 |
8 |
8 |
8 |
|
|
8 |
|
8 |
8 |
||||||||
|
- комната дежурного персонала |
|
|
|
|
|
|
|
|
12 |
12 |
12 |
12 |
|
|
12 |
|
12 |
12 |
||||||||
|
- помещение инженера и техсотрудников |
|
|
|
|
|
|
|
|
12 |
12 |
12 |
24 2´12 |
|
|
12 |
|
12 |
12 |
||||||||
|
- помещение рабочих с подсобкой |
|
|
|
|
|
|
|
|
12 |
12 |
12 |
12 |
|
|
12 |
|
12 |
12 |
||||||||
|
- санузлы |
|
|
|
|
|
|
|
|
165 |
75 |
113 |
150 |
|
|
72 |
|
45 |
81 |
||||||||
|
О – ЗЗ |
||||||||||||||||||||||||||
|
10 Группа зрительного зала |
- Зрительный зал (мест площадь) |
153 107 |
302 211 |
187 131 |
374 262 |
590 413 |
187 131 |
374 262 |
590 413 |
748 524 |
340 238 |
510 357 |
640 448 |
98 69/ 112 78 |
196 137/ 224 157 |
294 206 /336 235 |
112 78 /150 105 |
168 118 /210 147 |
252 177 /378 265 |
|||||||
|
- эстрада |
72 |
72 |
72 |
72 |
180 |
72 |
180 |
180 |
180 |
180 |
180 |
180 |
180 |
180 |
180 |
180 |
180 |
180 |
||||||||
|
|
с учетом использования для хореографии оркестра и театральных представлений |
|||||||||||||||||||||||||
|
- Лекционная аудитория |
|
|
|
|
|
100 |
100 |
100 |
100 |
100 |
100 |
100 |
100 |
100 |
100 |
100 |
100 |
100 |
||||||||
|
- Киноаппаратная |
27 |
27 |
27 |
27 |
27 |
27 |
27 |
27 |
27 |
27 |
27 |
27 |
27 |
27 |
27 |
27 |
27 |
27 |
||||||||
|
- Кладовая -инвентарная |
12 |
12 |
12 |
12 |
36 |
12 |
36 |
36 |
36 |
36 |
36 |
36 |
36 |
36 |
36 |
36 |
36 |
36 |
||||||||
|
- артистические |
24 |
24 |
24 |
18 |
30 |
18 |
30 |
30 |
30 |
30 |
30 |
30 |
30 |
60 |
90 |
30 |
30 |
30 |
||||||||
|
- технический центр |
|
|
|
48 |
48 |
48 |
48 |
48 |
48 |
48 |
48 |
48 |
48 |
48 |
48 |
48 |
48 |
48 |
||||||||
|
О - ХВ, О - ТТ, О – БЮ |
||||||||||||||||||||||||||
|
11 Группа свободного творчества во внеучебное время |
- Группа студий изобразительного искусства |
108 3´36 |
108 3´36 |
108 3´36 |
108 3´36 |
108 3´36 |
108 3´36 |
108 3´36 |
108 3´36 |
108 3´36 |
108 3´36 |
108 3´36 |
108 3´36 |
108 3´36 |
108 3´36 |
108 3´36 |
108 3´36 |
108 3´36 |
108 3´36 |
|||||||
|
- Кабинет эстетики |
|
|
|
|
|
|
80 |
80 |
80 |
80 |
80 |
80 |
80 |
80 |
80 |
80 |
80 |
80 |
||||||||
|
- Хореография и драмкружок |
90 |
90 |
90 |
108 |
108 |
90 |
108 |
108 |
108 |
108 |
108 |
108 |
108 |
108 |
108 |
108 |
108 |
108 |
||||||||
|
- Раздевальные при студии хореографии |
18 |
18 |
18 |
40 |
40 |
18 |
40 |
40 |
40 |
40 |
40 |
40 |
40 |
40 |
40 |
40 |
40 |
40 |
||||||||
|
- Музыка и пение |
50 |
50 |
50 |
50 |
50 |
50 |
100 |
100 |
100 |
100 |
100 |
100 |
100 |
100 |
100 |
100 |
100 |
100 |
||||||||
|
- Помещение хранения музыкальных инструментов |
|
|
|
|
|
|
40 |
40 |
40 |
40 |
40 |
40 |
|
|
|
|
|
|
||||||||
|
- Студия изобразительного искусства (универсальная) |
|
|
|
|
|
|
184 144+ 40 |
184 144+ 40 |
368 2´144+80 |
184 144+ 40 |
368 2´144 +80 |
552 3´144 +120 |
184 144 +40 |
368 2´144 +80 |
552 3´144 +120 |
|
134 144 + 40 |
134 144 + 40 |
||||||||
|
- Кружок тех-творчества |
|
|
90 |
90 |
90 |
108 |
216 |
216 |
216 |
216 |
216 |
216 |
|
|
|
108 |
216 |
216 |
||||||||
|
- фото-киностудия |
|
|
36 |
36 |
54 |
36 |
54 |
54 |
54 |
54 |
54 |
54 |
36 |
54 |
54 |
54 |
54 |
54 |
||||||||
|
- Группа помещений юннатско-биологической деятельности |
72 2´36 |
72 2´36 |
72 2´36 |
90 |
90 |
90 |
180 |
180 |
180 |
180 |
180 |
180 |
90 |
90 |
90 |
40 |
180 2´90 |
180 2´90 |
||||||||
|
О – СЗ |
||||||||||||||||||||||||||
|
12 Группа спортивно- оздоровительная |
- Спортзалы |
288 |
576 2´288 |
648 |
828 648+ 180 |
1116 648+ 288+ 180 |
648 |
936 648+ 288 |
1116 648+ 288+ 180 |
1764 2х648+288 +180 |
936 648+288 |
1116 648 +288 +180 |
1764 2´648+288 +180 |
576 2´288 |
648 |
936 648+ 288 |
576 2´288 |
828 648+180 |
936 648+ 288 |
|||||||
|
- Раздевальные |
42 2´21 |
126 6´21 |
84 4´21 |
168 8´21 |
252 12´21 |
84 4´21 |
168 8´21 |
210 10´21 |
252 12´21 |
168 8´21 |
210 10´21 |
252 12´21 |
126 6´21 |
84 4´21 |
168 8´21 |
126 6´21 |
126 6´21 |
168 8х21 |
||||||||
|
Инвентарная (снарядная) |
16 |
32 2´16 |
32 |
48 32+16 |
64 32+2´16 |
32 |
48 32+16 |
64 32+2´16 |
80 2´32+16 |
48 32´16 |
64 32+2´16 |
80 2´ (32+16) |
48 32´16 |
48 32´16 |
48 32´16 |
48 32´16 |
48 32´16 |
48 32´16 |
||||||||
|
- Помещение хранения уборочного инвентаря |
4 |
4 |
4 |
4 |
4 |
4 |
4 |
4 |
8 2´4 |
4 |
4 |
4 |
4 |
4 |
4 |
4 |
4 |
4 |
||||||||
|
- Комната инструктора |
|
|
20 |
30 20+10 |
40 2´20 |
20 |
40 2´20 |
30 10´20 |
40 2´20 |
30 10´20 |
40 2´20 |
40 2´20 |
30 10´20 |
30 10´20 |
30 10´20 |
30 10´20 |
30 10´20 |
30 10´20 |
||||||||
|
О – З |
||||||||||||||||||||||||||
|
13 Столовая |
- Обеденный зал с раздаточной и местами преподавателей - кухонный блок с подсобными помещениями |
122 |
243 |
149 |
297 |
446 |
149 |
297 |
446 |
594 |
295 |
405 |
540 |
84/96 |
168 /192 |
252 /288 |
96 /120 |
140 /180 |
216 /324 |
|||||||
|
100 |
127 |
127 |
185 |
243 |
127 |
185 |
243 |
370 |
185 |
243 |
370 |
127 |
185 |
243 |
127 |
185 |
243 |
|||||||||
|
О – В |
||||||||||||||||||||||||||
|
14 Вестибюльная группа общественной |
- Вестибюль с гардеробом |
137 |
228 |
168 |
273 |
307 |
132 |
240 |
331 |
409 |
280 |
389 |
477 |
134 /142 |
179 /194 |
250 /272 |
142 /162 |
190 /212 |
269 /349 |
|||||||
|
Итого расчетная площадь
|
3650 |
5978 |
5314 |
8195 |
11036 |
6103 |
10305 |
13155 |
20128 |
10737 |
12992 |
18087 |
5287 5527 |
7360 7741 |
1091211432 |
6866 7259 |
10274 10794 |
12370 14005 |
||||||||
|
на 1 уч-ся |
16,22 |
13,28 |
19,32 |
14,90 |
13,37 |
22,19 |
18,73 |
15,94 |
18,30 |
21,47 |
17,32 |
18,09 |
37,7634,54 |
26.2824,19 |
25.98 23,82 |
42,92 36,29 |
42.813598 |
34,36 2594 |
||||||||
|
О – Б |
||||||||||||||||||||||||||
|
15 Бассейн |
- Бассейн |
600 |
|
|
|
|
|
|
|
|
|
|
|
|
|
|
|
|
|
|||||||
|
- Раздевальные со шкафами, душевыми, санузлами |
260 4´65 |
|
|
|
|
|
|
|
|
|
|
|
|
|
|
|
|
|
||||||||
|
- Инструкторская- кладовая спортинвентаря |
18 12+6 |
|
|
|
|
|
|
|
|
|
|
|
|
|
|
|
|
|
||||||||
|
- Помещение медсестры с лабораторией анализа воды |
12 2´6 |
|
|
|
|
|
|
|
|
|
|
|
|
|
|
|
|
|
||||||||
|
- бытовые помещения |
9 |
|
|
|
|
|
|
|
|
|
|
|
|
|
|
|
|
|
||||||||
|
- служебные помещения |
12 |
|
|
|
|
|
|
|
|
|
|
|
|
|
|
|
|
|
||||||||
|
Итого с учетом бассейна |
4561 |
6889 |
6225 |
9106 |
11947 |
7014 |
11216 |
14066 |
21039 |
11648 |
13903 |
18998 |
6198 6438 |
8271 8732 |
11823 12343 |
7777 8170 |
11185 11705 |
13281 14916 |
||||||||
|
на 1 уч-ся |
20,27 |
15,31 |
22,64 |
16,56 |
14,48 |
25,51 |
20,39 |
17,05 |
19,13 |
23,30 |
18,54 |
19,00 |
44,27 40,24 |
29,54 27,29 |
28,15 25,71 |
48,61 40,85 |
46,60 39,02 |
36,89 27,62 |
||||||||
Примечания: К общешкольному блоку типа "А" относятся группы общешкольных помещений общеобразовательных школ
К общешкольному блоку типа "Б" относятся группы общешкольных помещений общеобразовательных школ с профильным обучением
К общешкольному блоку типа "В" относятся группы общешкольных помещений, в составе которых имеется рекреационный центр (0-РЦ)
В т ч для учащихся младшего возраста, информационного пункта, мест для работы с каталогами, фонда открытого доступа фонда закрытого хранения общешкольного ресурсного центра (состоящего из зоны комплектования и обработки литературы и специализированного фонда хранения) индивидуальных занятий с ТСО
1. Стол ученический одноместный с горизонтальной крышкой 700(600)´500´700 (760);
2. Стол учителя в емкостью для ТСО 1200´600´738;
3. Подставка передвижная для телевизора и кинопроектора (подвесное устройство для телевизора) 800´540´1100;
4. Подставка для графопроектора передвижная 510´599´396-812;
5. Подставка для диапроектора складируемая 460´300´1217;
6. Стул ученический 340´380´ 420; 360´400´460;
7. Стул учителя 360´360-440´ 420-450;
8. Шкаф, встроенный для классного помещения 5520 (5980)´580´2740 (3000);
9. Доска классная для мела, основная, односторонняя 1600, 2000´1000, 1200;
10. Экран свертывающийся 2600´1900, 1500´900;
11. Шторы затемнения с электроприводом по габаритам оконных проемов.
УЗ - учебное здание
НО - основная школа I, II ступеней
НОС - полная средняя школа I, II и 1П студеней
НОСП - полная средняя школа I, II и III ступеней с профильным обучением
ОСП - средняя школа II и III ступеней с профильным обучением Г - гимназия в составе II и III ступеней обучения
Л - лицей в составе II и III ступеней обучения
т.п. - типовой проект
х и хх - меньше и больше требуемого по МГСН 4.06-96
|
Наименование показателей |
Вид и тип УЗ (количество классов) |
|||||||||||||||
|
НО |
НОС |
НОСП |
ОСП |
Г |
Л |
|||||||||||
|
9кл. |
18кл. |
11кл. |
22кл. |
33кл. |
11кл. |
22кл. |
33кл. |
20кл. |
30кл. |
7кл. |
14кл. |
21кл. |
8кл. |
12кл. |
18кл. |
|
|
Основные учебные помещения: |
|
|
|
|
|
|
|
|
|
|
|
|
|
|
|
|
|
- более 70м2 |
390 5 |
480 6 |
555 7 |
630 8 |
630 8 |
735 9 |
900 11 |
1080 13 |
1080 13 |
1080 13 |
315 4 |
390 5 |
480 6 |
915 11 |
1185 14 |
1260 15 |
|
- 70-50 м2 |
706 12 |
1352 23 |
1006 17 |
1772 30 |
2538 43 |
1231 20 |
1952 33 |
2723 46 |
1445 24 |
2111 35 |
845 14 |
1331 22 |
1877 31 |
977 16 |
1343 22 |
1829 30 |
|
- менее 50 м2 |
115 3 |
185 5 |
297 8 |
381 10 |
486 13 |
220 7 |
525 13 |
630 16 |
504 13 |
630 16 |
325 9 |
395 11 |
465 13 |
498 13 |
595 15 |
1134 29 |
|
Вспомогательные |
48 2 |
78 2 |
48 2 |
78 2 |
168 5 |
238 7 |
474 10 |
748 10 |
492 8 |
708 8 |
232 8 |
392 8 |
552 8 |
284 5 |
408 5 |
486 3 |
|
Библиотека |
80 |
100 |
115 |
235 |
325 |
115 |
235 |
325 |
235 |
325 |
115 |
235 |
325 |
235 |
325 |
440 |
|
Прочие |
226 11 |
260 11 |
322 14 |
393 14 |
474 14 |
329 14 |
400 14 |
481 14 |
392 14 |
490 16 |
308 14 |
359 14 |
450 14 |
323 14 |
383 14 |
441 14 |
|
Итого по группе |
1565 34 |
2455 48 |
2343 49 |
3489 65 |
4621 84 |
2868 58 |
4486 82 |
5987 100 |
4148 73 |
5344 89 |
2140 50 |
3102 61 |
4149 73 |
3232 60 |
4239 77 |
5590 92 |
|
Коэффициенты приведения: |
|
|
|
|
|
|
|
|
|
|
|
|
|
|
|
|
|
- Хп |
1,0 |
1,57 |
1,49 |
2,23 |
2,95 |
1,8 |
2,87 |
3,83 |
2,65 |
3,41 |
1,37 |
1,98 |
2,65 |
2,06 |
2,7 |
3,57 |
|
- Вп |
0 |
14 |
15 |
31 |
50 |
24 |
48 |
66 |
39 |
55 |
16 |
27 |
39 |
26 |
43 |
58 |
Примечание. 1. Все показателя площади даны без учета рекреаций.
2. В числителе дана суммарная площадь помещений, в знаменателе - количество помещений.