ФЕДЕРАЛЬНОЕ АГЕНТСТВО ПО ТЕХНИЧЕСКОМУ РЕГУЛИРОВАНИЮ И МЕТРОЛОГИИ
|
|
НАЦИОНАЛЬНЫЙ |
ГОСТ Р 52420-2005 |
Конструкции базовые несущие
СИСТЕМЫ ВТОРИЧНОГО ЭЛЕКТРОПИТАНИЯ
Типы и основные размеры
|
|
Москва Стандартинформ 2006 |
Цели
и принципы стандартизации в Российской Федерации установлены Федеральным
законом от 27 декабря
Сведения о стандарте
1 РАЗРАБОТАН Закрытым акционерным обществом «Группа компаний «Электронинвест», Ассоциацией «Электропитание», Открытым акционерным обществом «Авангард» (ОАО «Авангард»)
2 ВНЕСЕН Межгосударственным техническим комитетом по стандартизации МТК 420 «Базовые несущие конструкции, печатные платы, сборка и монтаж электронных модулей», подкомитетом МПК-1 «Базовые несущие конструкции радиоэлектронных средств (РЭС)»
3 УТВЕРЖДЕН И ВВЕДЕН В ДЕЙСТВИЕ Приказом Федерального агентства по
техническому регулированию и метрологии от 27 декабря
4 Настоящий стандарт соответствует международным стандартам:
МЭК 60917-1:1998 «Модульный принцип построения механических несущих конструкций для электронного оборудования. Часть 1. Общий стандарт» (IEC 60917-1:1998 «Modular order for the development of mechanical structures for electronic equipment practices - Part 1: Generic standard», NEQ);
МЭК
60917-2:1992 «Модульный принцип построения механических несущих конструкций для
электронного оборудования. Часть 2. Частный стандарт. Координационные размеры для несущих конструкций с шагом 25 мм» (IEC 60917-2:1992 «Modular order for the development of mechanical
structures for electronic equipment practices - Part 2: Sectional specification
- Interface coordination dimensions for the
МЭК
60917-2-1:1993 «Модульный принцип построения механических несущих конструкций
для электронного оборудования. Часть 2. Частный стандарт. Координационные
размеры для несущих конструкций с шагом
5 ВВЕДЕН ВПЕРВЫЕ
Информация об изменениях к настоящему стандарту публикуется в ежегодно издаваемом информационном указателе «Национальные стандарты», а текст изменений и поправок - в ежемесячно издаваемых информационных указателях «Национальные стандарты». В случае пересмотра (замены) или отмены настоящего стандарта соответствующее уведомление будет опубликовано в ежемесячно издаваемом информационном указателе «Национальные стандарты». Соответствующая информация, уведомление и тексты размещаются также в информационной системе общего пользования - на официальном сайте национального органа Российской Федерации по стандартизации в сети Интернет
Настоящий стандарт не может быть полностью или частично воспроизведен, тиражирован и распространен в качестве официального издания без разрешения Федерального агентства по техническому регулированию и метрологии
ГОСТ Р 52420-2005
НАЦИОНАЛЬНЫЙ СТАНДАРТ РОССИЙСКОЙ ФЕДЕРАЦИИ
Конструкции базовые несущиеСИСТЕМЫ ВТОРИЧНОГО ЭЛЕКТРОПИТАНИЯТипы и основные размерыBase carrying mechanical structures. Systems of secondary power supplies. Types and basic dimensions |
Дата введения - 2007-01-01
Настоящий стандарт распространяется на системы и источники вторичного электропитания, построенные на основе базовых несущих конструкций нулевого (БНК 0), первого (БНК 1), второго (БНК 2) и третьего (БНК 3) уровней разукрупнения или размерносовместимые с ними.
Стандарт устанавливает конструктивные типы и основные размеры систем и источников вторичного электропитания.
Настоящий стандарт распространяется на продукцию оборонного назначения, поставляемую по Государственному оборонному заказу.
В настоящем стандарте использованы нормативные ссылки на следующие стандарты: ГОСТ Р 51623-2000 Конструкции базовые несущие радиоэлектронных средств. Система построения и координационные размеры
ГОСТ Р 51676-2000 Конструкции несущие базовые радиоэлектронных средств. Термины и определения
ГОСТ Р 52003-2003 Уровни разукрупнения радиоэлектронных средств. Термины и определения
ГОСТ 23413-79 Средства вторичного электропитания радиоэлектронной аппаратуры. Термины и определения
Примечание - При пользовании настоящим стандартом целесообразно проверить действие ссылочных стандартов в информационной системе общего пользования - на официальном сайте национального органа Российской Федерации по стандартизации в сети Интернет или по ежегодно издаваемому информационному указателю «Национальные стандарты», который опубликован по состоянию на 1 января текущего года, и по соответствующим ежемесячно издаваемым информационным указателям, опубликованным в текущем году. Если ссылочный документ заменен (изменен), то при пользовании настоящим стандартом следует руководствоваться замененным (измененным) документом. Если ссылочный документ отменен без замены, то положение, в котором дана ссылка на него, применяется в части, не затрагивающей эту ссылку.
В настоящем стандарте применены термины по ГОСТ Р 52003 в части терминов по уровням разукрупнения радиоэлектронных средств (РЭС), ГОСТ Р 51676 в части терминов по БНК и ГОСТ 23413.
По конструктивному исполнению системы и источники вторичного электропитания, выполненные в виде стандартных электронных модулей (СЭМ), в зависимости от уровня разукрупнения в соответствии с ГОСТ Р 52003 и используемой БНК в соответствии с ГОСТ Р 51676, подразделяются на: СЭМ 0, СЭМ 1. СЭМ 2, СЭМ 3.
5.1 Коды условных обозначений несущих конструкций систем и источников вторичного электропитания, построенных на основе БНК, применяемых в СЭМ 1, СЭМ 2 и СЭМ 3, должны соответствовать кодам условных обозначений, принятых для системы БНК.
5.2 Коды условных обозначений корпусов СЭМ 0, приведенные в настоящем стандарте, обязательны для применения в нормативных документах на БНК и в автоматизированных системах на их основе.
5.3 Номер варианта конструкции и модификации конструктивного исполнения в кодах условных обозначений корпусов СЭМ 0 присваивается базовой организацией по стандартизации.
5.4 Корпуса СЭМ 0 подразделяют на типы в зависимости от:
размеров по высоте Н, ширине В и длине L;
варианта конструкции;
модификации или конструктивного исполнения вариантов.
5.5 Для корпусов СЭМ 0 устанавливают следующую структуру кода условных обозначений, приведенную в таблице 1.
Таблица 1
|
Номер разряда |
1 |
2 |
3 |
4 |
5 |
6 |
7 |
8 |
9 |
10 |
11 |
12 |
13 |
|
Знаковое заполнение разряда |
X |
Х |
|
X |
Х |
. |
Х |
X |
. |
. |
X |
. |
X |
Примечание - «X» - число, «.» - разделительная точка.
5.6 Разряды 1 и 2, 4 и 5,
7 и 8 определяют размеры корпусов СЭМ 0 соответственно по высоте Н, ширине
В и длине L. Каждая из указанных пар разрядов представляет
число от 01 до 99, которое является результатом деления значений Н, В и L соответственно на модуль приращения п, равный
5.7 Разряды 10 и 11 определяют номер варианта конструкции, который представляет число от 01 до 99.
5.8 Разряд 13 определяет номер модификации конструктивного исполнения, который представляет число от 0 до 9. Разряд имеет значение 0 для обозначения основного исполнения.
5.9 Разряды 3, 6, 9 и 12 используют для разделительного знака.
5.10 Пример условного
обозначения корпуса СЭМ 0 для размера Н ´ B ´ L = 10 ´ 50 ´
Корпус СЭМ 0 04.20.40.01.1
6.1.1 Система построения и координационные размеры систем вторичного электропитания (СВЭП), в зависимости от применяемых БНК, - в соответствии с ГОСТ Р 51623.
6.1.2 Конструкция СЭМ 0 должна обеспечивать надежное крепление в аппаратуре, удобство монтажа и подключения, а при необходимости и отвод тепла.
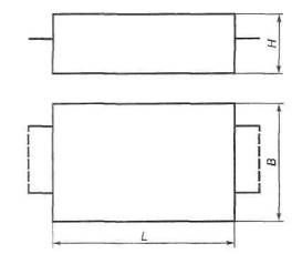
6.2.1 Основные размеры корпусов СЭМ 0 должны соответствовать рисунку 1 и таблице 2.

Рисунок 1 - Размеры корпусов СЭМ 0
Таблица 2 - Параметрический размерный ряд корпусов СЭМ 0
|
Обозначение основного размера |
Значение основного размера |
|
Нmax |
7,5; 10; 12,5; 15; 20; 25; 30; 40; 50; 60; 75; 100 |
|
Вmax |
15; 17,5; 20; 22,5; 25; 27,5: 30; 32.5; 35: 40: 45: 50; 55; 60; 65; 70; 80; 90; 100; 110; 120; 140; 160 |
|
Lmax |
20; 25; 30; 35; 40; 45; 50; 55; 60; 70; 80: 90: 100: 110; 120; 140; 160; 200; 230; 250; 270 |
6.2.2 Варианты и модификации исполнения корпусов СЭМ 0 приведены в приложении А
6.2.2.1 Функциональное назначение и обозначение выводов
При обозначении выводов на шильдике СЭМ должны применяться следующие обозначения (полные либо сокращенные):
+ (-) Uвx - положительный (отрицательный) вывод входного напряжения;
+ (-)Uвыx - положительный (отрицательный) вывод выходного напряжения;
Uвx - вывод переменного входного напряжения;
Корпус (Корп) - вывод, электрически соединенный с металлическим корпусом СЭМ, с нормированным сопротивлением СЭМ, с нормированным сопротивлением соединения;
Упр (Вкл, Выкл) - вывод управления включением (выключением), которое должно обеспечиваться замыканием последнего на вывод «-Uвx» с помощью маломощного ключа (транзистора, контактов реле и т. д.);
Peг - вывод регулировки выходного напряжения СЭМ, замыкание на выводы «-Uвыx» или «+Uвыx» которого накоротко либо через резистор позволяет изменять выходное напряжение СЭМ в диапазоне не менее +10 % или + 10 % номинального значения выходного напряжения;
Контр - контрольный вывод, на котором присутствует напряжение постоянного тока, когда СЭМ работает, и 0 - когда СЭМ не работает;
Общий (Общ) - общий вывод для нескольких выходных (входных) сигналов или напряжений.
6.2.2.2 Требования к конструктивному расположению выводов (групп выводов) СЭМ - в соответствии с приложением Б.
6.3.1 Основные размеры корпусов СЭМ 1, построенных на основе БНК 1, приведены на рисунке 2 и в таблице 3.

Рисунок 2 - Размеры корпусов СЭМ 1
Таблица 3 - Параметрический размерный ряд корпусов СЭМ 1 В миллиметрах
|
Обозначение основного размера |
Значение основного размера |
|
Hmax |
100; 115; 233,35; 265: 365; 415 |
|
Bmax |
15; 20; 25; 30; 40: 50; 60; 75: 100; 125; 150; 200; 225; 250 |
|
Lmax |
150; 160; 235; 285 |
6.4.1 Основные размеры корпусов СЭМ 2, построенных на основе БНК 2, приведены на рисунке 3 и в таблице 4.

Рисунок 3 - Размеры корпусов СЭМ 2
Таблица 4 - Параметрический размерный ряд корпусов СЭМ 2
В миллиметрах
|
Обозначение основного размера |
Значение основного размера |
|
Hmax |
133,35; 150; 266,7; 300; 450 |
|
Bmax |
400; 450; 500 |
|
В1 |
375; 425; 475 |
|
В2 |
435; 485; 535 |
|
Lmax |
175; 225; 250; 300 |
|
L1 |
225; 275; 300; 350 |
6.5.1 Основные размеры корпусов СЭМ 3, построенных на основе БНК 3, приведены на рисунках 4 и 5 и в таблицах 5 и 6.

Рисунок 4 - Размеры корпусов СЭМ 3 на базе моноблока
Таблица 5 - Параметрический размерный ряд корпусов СЭМ 3 на базе моноблока
В миллиметрах
|
Обозначение основного размера |
Значение основного размера |
|
Hmax |
250; 350 |
|
Bmax |
600 |
|
В1 |
475 |
|
Lmax |
450 |

Рисунок 5 - Размеры корпусов СЭМ 3 на базе шкафа (стойки)
Таблица 6 - Параметрический размерный ряд корпусов СЭМ 3 на базе шкафа (стойки)
В миллиметрах
|
Обозначение основного размера |
Значение основного размера |
|
Hmax |
600-2600; через 200 |
|
H1 |
250 |
|
Bmax |
300; 350; 400; 500; 600 |
|
В1 |
200; 250; 300; 400; 450; 500 |
|
Lmax |
300; 400; 500; 600; 800 |
6.6.1 Соответствие основных размеров корпусов СЭМ 0 основным размерам корпусов СЭМ 1 приведено в таблице 7.
Таблица 7
|
Обозначение основных размеров корпусов СЭМ 0 |
Обозначение основных размеров корпусов СЭМ 1 |
|
Н |
В |
|
В |
L |
|
L |
Н |
А.1 Конструктивные исполнения корпусов СЭМ 0 приведены на рисунках А.1, А.2, их размеры - в таблице А.1.

Рисунок А.1 - СЭМ 0, вариант исполнения 1

Рисунок А.2 - СЭМ 0, вариант исполнения 2
В миллиметрах
|
Условное обозначение корпусов СЭМ 0 |
Конструктивное исполнение |
Н |
В |
B1 |
L |
L1 |
|
Корпус СЭМ 0 05.13.20.01.1 |
Рисунок А.1 |
12 |
32 |
27 |
50 |
45 |
|
Корпус СЭМ 0 05.13.20.01.2 |
Рисунок А.1 |
12 |
32 |
27 |
50 |
45 |
|
Корпус СЭМ 0 05.14.24.01.1 |
Рисунок А.1 |
12 |
29 |
58 |
53 |
|
|
Корпус СЭМ 0 05.16.26.01.1 |
Рисунок А.1 |
12 |
40 |
35 |
64 |
59 |
|
Корпус СЭМ 0 06.18.29.01.1 |
Рисунок А.1 |
14 |
44 |
39 |
71 |
66 |
|
Корпус СЭМ 0 06.34.48.01.1 |
Рисунок А.1 |
16 |
84 |
76 |
122 |
114 |
|
Корпус СЭМ 0 07.22.36.01.1 |
Рисунок А.1 |
16 |
54 |
48 |
89 |
83 |
|
Корпус СЭМ 0 07.25.40.01.1 |
Рисунок А.1 |
16 |
61 |
54 |
98 |
91 |
|
Корпус СЭМ 0 05.13.24.02.1 |
Рисунок А.2 |
12 |
32 |
- |
60 |
53 |
|
Корпус СЭМ 0 05.13.24.02.2 |
Рисунок А.2 |
12 |
32 |
- |
60 |
53 |
|
Корпус СЭМ 0 05.14.25.02.1 |
Рисунок А.2 |
12 |
34 |
- |
62 |
57 |
|
Корпус СЭМ 0 05.16.29.02.1 |
Рисунок А.2 |
12 |
40 |
- |
72 |
67 |
|
Корпус СЭМ 0 06.18.32.02.1 |
Рисунок А.2 |
14 |
44 |
- |
78 |
72 |
|
Корпус СЭМ 0 07.22.36.01.1 |
Рисунок А.2 |
16 |
54 |
- |
90 |
81 |
|
Корпус СЭМ 0 07.25.40.01.1 |
Рисунок А.2 |
16 |
61 |
- |
100 |
93 |
А.2 При обозначении выводов на корпусе (шильдике корпуса) СЭМ 0 преобразователей должно быть учтено следующее:
выводы располагаются по ширине корпуса;
обозначение нумерации выводов располагается по часовой стрелке, начиная с нижнего левого угла. Пример обозначения выводов приведен на рисунке А.3;
назначение выводов располагается согласно их нумерации в следующей последовательности:
вывод 1 - «УПР (Вкл, Выкл)» - вывод управления включением (выключением) СЭМ;
вывод 2 - «-Uвx» - вывод отрицательной полярности входного напряжения (нуля);
вывод 3 - «+Uвx» - вывод положительной полярности входного напряжения (фазы);
вывод 4 - «Корпус (Корп)» - вывод, электрически соединенный с металлическим корпусом СЭМ, с нормированным сопротивлением соединения;
вывод 5 - «+U вых» - вывод положительной полярности выходного напряжения;
вывод 6 - «-U вых» - вывод отрицательной полярности выходного напряжения;
вывод 7 - «Per» - вывод регулировки выходного напряжения СЭМ,
вывод 8 - «Контр» - контрольный вывод.

Рисунок А.3 - Пример обозначения выводов СЭМ
Выводы СЭМ, предназначенные для подпайки, должны быть жесткими и обеспечивать протекание тока не менее 10 А через вывод. Конструктивное расположение выводов, групп выводов для одно-, трехканальных СЭМ показано на рисунках Б.1-Б.3.
Б.1 Одноканальные СЭМ

Рисунок Б.1 - Расположение выводов одноканальных СЭМ
Допускается вывод «Корпус» делать со стороны выходного напряжения.
Б.2 Двухканальные СЭМ

Рисунок Б.2 - Расположение выводов двухканальных СЭМ
Б.3 Трехканальные СЭМ


Рисунок Б. 3 - Расположение выводов трехканальных СЭМ
|
Ключевые слова: радиоэлектронные средства, базовые несущие конструкции, системы вторичного электропитания, источники вторичного электропитания, типы, основные размеры |