|
|
Открытое акционерное общество Проектно-конструкторский
и технологический |
|
УТВЕРЖДАЮ
Генеральный директор, к.т.н.
___________ С.Ю. Едличка
«_04_» __октября__ 2002 г.
ТЕХНОЛОГИЧЕСКАЯ КАРТА
НА
ПОГРУЗОЧНО-РАЗГРУЗОЧНЫЕ РАБОТЫ
С ИСПОЛЬЗОВАНИЕМ АВТОМОБИЛЬНЫХ КРАНОВ
26-02-ТК
Главный инженер
___________ А.В. Колобов
Начальник лаборатории
___________ Б.И. Бычковский
2002
Настоящая технологическая карта является обязательным организационно-технологическим документом при производстве погрузочно-разгрузочных работ и складировании грузов на базах, складах и площадках с использованием автомобильных кранов и содержит основные решения по организации и технологии погрузочно-разгрузочных работ.
В технологической карте приведены общие указания по производству работ автокранами, технология выполнения погрузочно-разгрузочных работ, технологическая оснастка и схемы строповки, а также даны требования по технике безопасности и охране труда, экологической и пожарной безопасности при производстве работ.
Технологическая карта предназначена для производителей работ, мастеров и бригадиров, а также инженерно-технических работников строительных и проектно-технологических организаций.
Технологическую карту разработали сотрудники лаборатории совершенствования организации и технологии строительства (отдел 41) ОАО ПКТИпромстрой.
Авторы будут признательны за предложения и возможные замечания по составу и содержанию технологической карты.
Технологическая карта не заменяет ППР. (см. СНиП 3.01.01-85*)
СОДЕРЖАНИЕ
1.1 Технологическая карта разработана на погрузочно-разгрузочные работы и складирование грузов на базах, складах и площадках с использованием автомобильных кранов КС-3562А, КС-3562Б, КС-3571, КС-35715-2, КС-3577, КС-4571, КС-45717К-1, КС-4572.
1.2 Технологической картой предусмотрены погрузочно-разгрузочные работы на следующие виды изделий, материалов и конструкций:
- сборные железобетонные изделия;
- металлопрокат;
- арматурные изделия;
- кирпич на поддонах;
- пиломатериалы и столярные изделия;
- средства подмащивания;
- материалы в контейнерах;
- бытовые помещения контейнерного типа.
Масса грузов не должна превышать номинальной грузоподъемности автомобильных кранов, указанных в п. 1.1, на требуемом вылете. При использовании других типов грузоподъемных кранов для погрузочно-разгрузочных работ они должны быть привязаны по вылету и грузоподъемности.
1.3 При производстве погрузочно-разгрузочных работ технологическая карта должна быть привязана к конкретной площадке с учетом используемого грузоподъемного крана, наличия воздушных линий, инженерных сетей и коммуникаций, зданий и сооружений.
2.1 Погрузочно-разгрузочные и транспортные работы следует осуществлять в соответствии с проектом производства работ или технологической картой, ПБ 10-382-00 «Правила устройства и безопасной эксплуатации грузоподъемных кранов» Госгортехнадзора России, СНиП 12-03-2001 «Безопасность труда в строительстве. Часть 1. Общие требования», ГОСТ 12.3.009-76* «ССБТ. Работы погрузочно-разгрузочные. Общие требования безопасности», ГОСТ 12.3.020-80* «ССБТ. Процессы перемещения грузов на предприятиях. Общие требования безопасности», ПОТ РО-200-01-95 «Правила по охране труда на автомобильном транспорте» и ПОТ РМ-007-98 «Правила по охране труда при погрузочно-разгрузочных работах и размещении грузов».
2.2 Пожарную безопасность в местах производства погрузочно-разгрузочных работ следует обеспечивать в соответствии с требованиями ППБ 01-93** «Правила пожарной безопасности в Российской Федерации», введенными в действие приказом МВД Российской Федерации, ГОСТ 12.1.004-91* и других нормативных документов, действующих в строительстве.
2.3 Места производства погрузочно-разгрузочных работ, включая проходы и проезды, должны иметь достаточное естественное и искусственное освещение в соответствии с ГОСТ 12.1.046-85 и СНиП 23-05-95. Освещенность должна быть равномерной, без слепящего действия светильников на работающих.
2.4 Места производства погрузочно-разгрузочных работ должны быть размещены на специально отведенной территории с твердым и ровным покрытием, способным воспринимать наибольшую проектную нагрузку от грузоподъемного крана с грузом, от транспортных средств и грузов. Площадки для погрузочных и разгрузочных работ должны быть спланированы и с целью отвода поверхностных вод должны иметь уклон не более 5° в сторону внешнего контура площадки складирования. Размеры и покрытие площадок для погрузочно-разгрузочных работ должны соответствовать проекту производства работ. В соответствующих местах необходимо установить знаки: «Въезд», «Выезд», «Разворот» и др.
2.5 На площадках для укладки грузов должны быть обозначены границы штабелей, проходов и проездов между ними. Ширина проходов между штабелями должна быть не менее 1 м и проезды, ширина которых зависит от габаритов транспортных средств и грузоподъемного крана, обслуживающих склад. Максимальная длина штабеля не должна превышать 20 - 30 м. Не допускается размещать грузы в проходах и проездах.
2.6 При размещении автомобилей на погрузочно-разгрузочных площадках расстояние между автомобилями, стоящими друг за другом (в глубину), должно быть не менее 1 м, а между автомобилями, стоящими рядом (по фронту), - не менее 1,5 м.
Если автомобили устанавливают для погрузки или разгрузки вблизи здания, то между зданием и задним бортом автомобиля (или задней точкой свешиваемого груза) должен соблюдаться интервал не менее 0,5 м.
Расстояние между автомобилем и штабелем груза должно быть не менее 1 м.
2.7 При производстве погрузочно-разгрузочных работ автокран устанавливают на площадку, выполненную в соответствии с требованиями п. 2.4. Автокран должен быть установлен таким образом, чтобы при подъеме груза исключалась необходимость предварительного подтаскивания груза при наклонном положении грузовых канатов и имелась бы возможность перемещения груза, поднятого не менее чем на 500 мм выше встречающихся на пути оборудования, штабелей грузов, бортов подвижного состава и т.п.
Погрузочно-разгрузочные работы должны производиться краном при условии установки его на все выносные опоры (аутригеры). Масса поднимаемых грузов должна быть в пределах грузовой характеристики используемых кранов.
2.8 Транспортные средства и оборудование, применяемое для погрузочно-разгрузочных работ, должно соответствовать характеру груза.
2.9 При необходимости установки крана на краю откоса котлована или траншеи необходимо соблюдать расстояния, указанные в таблице 1.
Таблица 1 - Наименьшее допустимое расстояние от основания откоса выемки или траншеи до ближайших опор машины (СНиП 12-03-2001)
|
Грунт ненасыпной |
||||
|
песчаный |
супесчаный |
суглинистый |
глинистый |
|
|
Расстояние по горизонтали от основания откоса выемки до ближайшей опоры машины, м |
||||
|
1 |
1,50 |
1,25 |
1,00 |
1,00 |
|
2 |
3,00 |
2,40 |
2,00 |
1,50 |
|
3 |
4,00 |
3,60 |
3,25 |
1,75 |
|
4 |
5,00 |
4,40 |
4,00 |
3,00 |
|
5 |
6,00 |
5,30 |
4,75 |
3,50 |
2.10 Установка и работа автомобильных кранов на расстоянии ближе 30 м от линии электропередачи или воздушной электрической сети напряжением более 42 В должна производиться по наряду-допуску и под непосредственным руководством лица, ответственного за безопасность производства работ кранами. Лицо, ответственное за безопасное производство работ кранами, должно расписаться в наряде-допуске и обеспечить выполнение указанных в нем безопасных условий работы. Работы производятся только при наличии письменного разрешения организации-владельца линии электропередачи (ЛЭП).
Согласно ПОТ Р М-016-2001 РД 153-34.0-03.150-00 «Межотраслевые правила по охране труда (правила безопасности) при эксплуатации электроустановок» охранной зоной вдоль воздушной линий электропередачи является участок земли и пространства, заключенный между двумя вертикальными плоскостями, проходящими через параллельные прямые, отстоящие по обе стороны от крайних проводов линии электропередачи (при неотклоненном их положении) на расстоянии, м, для линии напряжением:
до 1 кВ 2
от 1 до 20 кВ включительно 10
35 кВ 15
110 кВ 20
150, 220 кВ 25
330, 400, 500 кВ 30
750 кВ 40
1150 кВ (постоянный ток) 55
При установке и работе крана в охранной зоне ЛЭП следует строго соблюдать порядок, установленный ст. 9.5.17 ПБ 10-382-00 «Правила устройства и безопасной эксплуатации грузоподъемных кранов» Госгортехнадзора России.
2.11 При установке автомобильных кранов и применении транспортных средств с поднимаемым кузовом в охранной зоне воздушной линии электропередачи необходимо снять напряжение.
При обоснованной невозможности снятия напряжения с воздушной линии электропередачи работу строительных машин в охранной зоне линии электропередачи разрешается производить при условии выполнения следующих требований:
а) расстояние от подъемной или выдвижной части строительной машины в любом ее положении до находящейся под напряжением воздушной линии электропередачи (ВЛ) должно быть не менее указанного в таблице 2 согласно ГОСТ 12.1.051-90 «ССБТ. Электробезопасность. Расстояния безопасности в охранной зоне линий электропередачи напряжением свыше 1000 В»;
б) корпуса машин, за исключением машин на гусеничном ходу, должны быть заземлены при помощи инвентарного переносного заземления.
Таблица 2 - Минимальные расстояния приближения машин к воздушной линии электропередачи
|
Минимальное расстояние приближения, м |
|
|
до 1 |
1,5 |
|
1 - 20 |
2,0 |
|
20 - 35 |
2,0 |
|
35 - 110 |
3,0 |
|
110 - 220 |
4,0 |
|
220 - 400 |
5,0 |
|
400 - 750 |
9,0 |
|
750 - 1150 |
10,0 |
2.12 Разрешение на пуск в работу автомобильного крана после перестановки его на новый объект выдается инженерно-техническим работником по надзору за безопасной эксплуатацией грузоподъемных кранов на основании результатов проверки состояния крана и обеспечения безопасных условий его работы с записью в вахтенном журнале.
2.13 На рабочей площадке в каждой смене должно быть назначено приказом руководителя организации лицо, ответственное за безопасное производство работ с кранами, из числа мастеров, прорабов, начальников цехов, участков. На складах материалов и других участках работы в качестве лиц, ответственных за безопасное производство работ кранами, по согласованию с региональными органами госгортехнадзора могут быть назначены заведующие складами, бригадиры.
2.14 Лицо, ответственное за безопасное производство работ кранами, обязано:
- проверить исправность грузоподъемных механизмов, СГЗП и тары, приспособлений, подмостей и прочего погрузочно-разгрузочного инвентаря;
- организовать ведение работ кранами в соответствии с правилами безопасности, техническими условиями, настоящей технологической картой и регламентами;
- инструктировать крановщиков и стропальщиков по безопасному выполнению предстоящей работы, обращая внимание на опасные факторы, особые условия на месте ведения работ, недопущение перегрузки крана, правильность строповки и зацепки грузов, правильность установки стреловых самоходных кранов, безопасность выполнения работ при загрузке и разгрузке автомашин, соблюдение стропальщиками личной безопасности;
- не допускать использования немаркированных, неисправных или не соответствующих по грузоподъемности и характеру груза съемных грузозахватных приспособлений и тары;
- указывать крановщикам и стропальщикам место, порядок и габариты складирования грузов, а также последовательность выполнения операций;
- непосредственно руководить работами при перемещении грузов, на которые не разработаны схемы строповки, а также в других случаях, предусмотренных проектами или технологическими регламентами;
- указывать крановщикам место установки стреловых самоходных кранов для работы вблизи линий электропередачи и выдавать разрешение на работу с записью в вахтенном журнале;
- не допускать производство работ без наряда-допуска в случаях, предусмотренных нормативными документами и настоящей картой;
- обеспечивать рабочих необходимыми инвентарем и средствами для безопасного производства работ кранами;
- разъяснять значение подаваемых сигналов и свойств материала, поданного к погрузке (разгрузке);
- следить за выполнением крановщиками и стропальщиками производственных инструкций, проектов производства работ, технологических карт и регламентов.
2.15 На территории площадки складирования устанавливают указатели въездов, проездов, выездов и другие информационные знаки в соответствии с ГОСТ 12.4.026-76*. Ширину проездов определяют в зависимости от габаритов транспортных средств и кранов, которые будут работать на площадке.
2.16 При отсутствии стандартов и технических условий заводов-изготовителей рекомендуются следующие способы складирования основных видов материалов и конструкций:
- кирпич в пакетах на поддонах по высоте не более чем в два яруса, по ширине пакеты ставятся в один ряд, расстояние между рядами 1 м, в ряду между парой пакетов (на один контейнер) оставляется расстояние в 200 мм. Ширина ряда принимается по длине поддона; кирпич должен складироваться по сортам, а лицевой - по цветам и оттенкам. Осенью и зимой штабеля кирпича рекомендуется покрывать листами рубероида;
- стеновые панели и блоки вертикальной разрезки - в пирамиды или специальные кассеты в соответствии с паспортом на указанные конструкции, с учетом геометрических размеров изделий и устойчивости их при складировании;
- стеновые блоки горизонтальной разрезки - в два яруса на подкладках и прокладках;
- плиты перекрытий - в штабель высотой не более 2,5 м на прокладках и подкладках, которые располагают перпендикулярно пустотам или рабочему пролету;
- ригели и колонны - в штабель высотой до 2 м на подкладках и прокладках;
- фундаментные блоки и блоки стен подвалов - в штабель высотой не более 2,6 м на подкладках и прокладках;
- пиломатериалы - в штабель, высота которого при рядовой укладке составляет не более половины ширины штабеля, а при укладке в клетки - не более ширины штабеля. В любом случае высота штабеля не должна превышать 3 м;
- мелкосортный металл - в стеллаж высотой не более 1,5 м. При складировании железобетонных элементов, имеющих петли (плиты, блоки, балки и т.д.), высота прокладок должна быть больше выступающей части монтажных петель не менее чем на 20 мм.
2.17 Между штабелями должны быть предусмотрены проходы шириной не менее 1 м и проезды, ширина которых зависит от габаритов транспортных средств и грузоподъемных кранов, обслуживающих склад. Наибольшая длина штабеля не должна превышать 20 - 30 м.
2.18 Между штабелями одноименных конструкций, сложенных рядом (плиты перекрытий), или между конструкциями в штабеле (балки, колонны) должно быть расстояние, не менее 200 мм.
2.19 Высота штабеля или ряда штабелей на общей прокладке не должна превышать полуторную его ширину.
2.20 В штабелях прокладки располагаются по одной вертикали.
2.21 В каждом штабеле должны храниться конструкции и изделия одномерной длины.
2.22 Материалы, изделия и конструкции в штабелях следует располагать таким образом, чтобы маркировка изделий была обращена в сторону прохода или проезда, а монтажные петли располагались так, чтобы их удобно было стропить при производстве работ.
3.1 Производство погрузочно-разгрузочных работ включает следующие операции:
- перемещение крана и установка его в рабочее положение на все имеющиеся выносные опоры;
- подбор съемных грузозахватных приспособлений;
- осмотр и строповка груза, а при необходимости и закрепление оттяжек (для длинномерных грузов);
- подача сигналов машинисту крана;
- погрузка и выгрузка груза с подъемом или опусканием его и поворотом стрелы крана;
- укладка подкладок и прокладок под конструкции или детали;
- расстроповка груза, отцепка оттяжек.
3.2 Погрузку и выгрузку материалов и грузов (конструкции, детали и т.п.) автомобильным стреловыми кранами осуществляет звено из трех человек (см. ЕНиР Е1-5):
машинист крана 6 разряда - 1 чел.
такелажники 2 разряда - 2 чел.
Нормы времени на погрузку и выгрузку краном строительных материалов и грузов (конструкции, детали и т.п.) в автомобили, прицепы, полуприцепы и трейлеры приведены в таблице 3 (на 100 тонн).
Таблица 3 - Нормы времени на погрузочно-разгрузочные работы
|
Общая масса поднимаемого груза, т, до |
Машинист, чел.-час. |
Такелажник, чел.-час. |
Общая масса поднимаемого груза, т, до |
Машинист, чел.-час. |
Такелажник, чел.-час. |
|
|
Разные грузы (материалы) штучные, в пакетах, контейнерах или на поддонах |
0,5 |
11 |
22 |
6 |
1,9 |
3,8 |
|
1 |
6,1 |
12 |
7 |
1,8 |
3,6 |
|
|
1,5 |
4,4 |
8,8 |
8 |
1,7 |
3,4 |
|
|
2 |
3,6 |
7,2 |
10 |
1,6 |
3,2 |
|
|
3 |
2,7 |
5,4 |
13 |
1,5 |
3,0 |
|
|
4 |
2,3 |
4,6 |
18 |
1,4 |
2,8 |
|
|
5 |
2,1 |
4,2 |
20 |
1,3 |
2,6 |
3.3 Погрузочно-разгрузочные работы необходимо осуществлять в следующей последовательности:
- в определенном технологической картой (схемой) месте, на подготовленной площадке, лицо, ответственное за безопасное производство работ кранами:
1) проверяет правильность установки крана на указанном месте и после этого делает запись в вахтенном журнале крановщика о разрешении производства работ, ставя свою подпись;
2) проверяет правильность установки знаков безопасности на границе опасной зоны от работы крана и координатную систему защиты. Стропальщики подбирают грузозахватные приспособления (ГЗП), соответствующие массе и характеру перемещаемого груза согласно схемам строповок и таблиц масс перемещаемых грузов, проверяют исправность ГЗП путем осмотра наличия на них клейм или металлических бирок с обозначением номера, грузоподъемности и даты испытания, проверяют массу груза, предназначенного к перемещению краном. После этого машинист может перевести стрелу крана из транспортного положения в рабочее.
- убедившись в соответствии установки крана, знаков безопасности и координатной защиты требованиям норм и правил, стропальщик подает сигнал машинисту крана переместить стрелу к месту строповки груза;
- стропальщики осуществляют строповку перемещаемого груза;
- после осуществления строповки груза стропальщики убеждаются в том, что груз надежно закреплен и ничем не удерживается, что на грузе, под грузом, внутри груза нет незакрепленных деталей и инструмента и что груз во время подъема не может за что-либо зацепиться, а также в отсутствии людей возле грузов, между грузами, оборудованием и т.д.;
- затем стропальщик подает сигнал машинисту крана приподнять груз на высоту до 300 мм, убеждается в правильности строповки и равномерности натяжения ветвей стропа, отходит на безопасное расстояние и дает сигнал на перемещение груза к месту разгрузки;
- стропальщики принимают груз на высоте до 1 м от уровня площадки (земли), ориентируют его в соответствии со схемой складирования и старший из стропальщиков дает сигнал машинисту крана опустить груз с таким расчетом, чтобы нижняя часть груза находилась от уровня площадки складирования на высоте до 0,4 - 0,5 м;
- убедившись в правильной ориентации груза над местом складирования (штабелем), стропальщик подает сигнал машинисту крана опустить груз на площадку. Стропы при этом остаются натянутыми. Когда груз опущен и стропальщик убедится, что груз находится в устойчивом положении, стропальщик подает сигнал машинисту крана ослабить стропы;
- затем стропальщик осуществляет расстроповку груза.
3.4 Границы опасных зон в местах, над которыми происходит перемещение грузов краном, принимаются от крайней точки горизонтальной проекции наружного наименьшего габарита перемещаемого груза с прибавлением наибольшего габаритного размера перемещаемого (падающего) груза и минимального расстояния отлета груза при его падении согласно таблице 4 (см. приложение Г.1 СНиП 12-03-2001).
Таблица 4 - Зависимость величины отлета падающего груза от высоты падения
|
Минимальное расстояние отлета перемещаемого краном груза в случае его падения, м |
|
|
До 10 |
4 |
|
» 20 |
7 |
|
» 70 |
10 |
|
» 120 |
15 |
|
» 200 |
20 |
|
» 300 |
25 |
|
» 450 |
30 |
|
Примечание - При промежуточных значениях высоты возможного падения грузов (предметов) минимальное расстояние их отлета допускается определять методом интерполяции. |
|
Величина опасной зоны при работе крана определяется согласно рисунку 1 по формуле:
Rоп.зоны = Rмакс. + 0,5Bгр. + Lгр. + Lотл., (1)
где Rоп.зоны - величина опасной зоны, м;
Rмакс. - максимальный рабочий вылет крюка крана, м;
Вгр. - наименьший габарит перемещаемого груза, м;
Lгр. - наибольший габарит перемещаемого груза, м;
Lотл. - минимальное расстояние отлета груза при его падении, м.
где Вгр. - наименьший габарит перемещаемого груза;
Lгр. - наибольший габарит перемещаемого груза;
Lотл. - минимальное расстояние отлета груза.
Рисунок 1 - Определение границы опасной зоны
3.5 Горизонтальная и вертикальная привязка кранов и схемы погрузки и разгрузки грузов даны на рисунках 2 - 27.
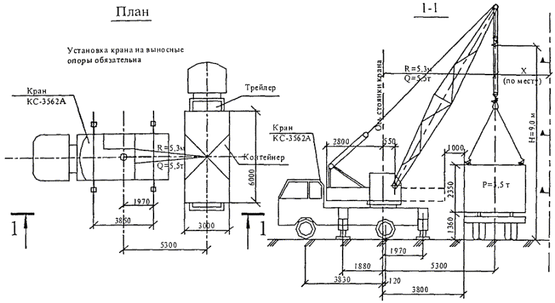
Рисунок 2 - Горизонтальная привязка крана КС-3562А (КС-3562Б)

Рисунок 3 - Вертикальная привязка крана КС-3562А (КС-3562Б)

Рисунок 4 - Погрузка и разгрузка бытовых помещений контейнерного типа массой до 5 т краном КС-3562А

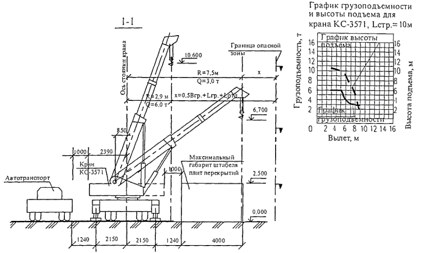
Рисунок 5 - Горизонтальная привязка крана КС-3571

Рисунок 6 - Вертикальная привязка крана КС-3571

Рисунок 7 - Погрузка и разгрузка бытовых помещений контейнерного типа массой до 5 т краном КС-3571

Рисунок 8 - Грузовые характеристики крана КС-35715-2
Таблица 5 - Высотные характеристики
|
Длина стрелы, м |
8 |
10 |
12 |
14 |
21 (стрела 14 м с гуськом) |
||||||||||
|
Высота подъема, м* |
9,0 |
6,9 |
3,0 |
10,7 |
8,7 |
3,3 |
12,8 |
10,6 |
3,9 |
14,5 |
11,3 |
4,3 |
21,6 |
18,5 |
14,0 |
|
Вылет, м |
1,9 |
5,0 |
7,0 |
3,0 |
6,0 |
9,0 |
3,3 |
7,0 |
11,0 |
4,0 |
9,0 |
13,0 |
6,5 |
12,0 |
16,0 |
* - без учета деформации стрелы

Рисунок 9 - Высотные характеристики крана КС-35715-2

Рисунок 10 - Горизонтальная привязка крана КС-35715-2

Рисунок 11 - Вертикальная привязка крана КС-35715-2

Рисунок 12 - Погрузка и разгрузка контейнера с грузом краном КС-35715-2

Рисунок 13 - Горизонтальная привязка крана КС-3577

Рисунок 14 - Вертикальная привязка крана КС-3577

Рисунок 15 - Погрузка и разгрузка контейнера с грузом до 5 т краном КС-3577

Рисунок 16 - Горизонтальная привязка крана КС-4571

Рисунок 17 - Вертикальная привязка крана КС-4571

Рисунок 18 - Погрузка и разгрузка плит перекрытий краном КС-4571
Таблица 6 - Грузовые характеристики крана КС-45717К-1 при работе с обычными грузами
|
Вылет, м |
Грузоподъемность, т, на выдвинутых выносных опорах при длине стрелы (L), м |
Зона работы, градус |
|||||||
|
9 |
9 |
12 |
15 |
18 |
21 |
28 (стрела 21 м с гуськом 7 м) |
9 - 21 (выдвижение секций) |
||
|
2,0 |
25,00 |
15,00 |
- |
- |
- |
- |
- |
3,00 |
240* |
|
3,0 |
25,00 |
15,00 |
15,00 |
- |
- |
- |
- |
3,00 |
|
|
3,2 |
23,00 |
15,00 |
15,00 |
- |
- |
- |
- |
3,00 |
|
|
3,5 |
20,00 |
15,00 |
15,00 |
- |
- |
- |
- |
3,00 |
|
|
3,8 |
17,70 |
15,00 |
15,00 |
13,75 |
- |
- |
- |
3,00 |
|
|
4,0 |
17,00 |
15,00 |
15,00 |
13,25 |
- |
- |
- |
3,00 |
|
|
4,5 |
15,00 |
15,00 |
14,25 |
12,75 |
10,00 |
- |
- |
3,00 |
|
|
5,0 |
13,00 |
13,00 |
12,25 |
11,55 |
9,75 |
- |
- |
3,00 |
|
|
5,5 |
11,30 |
11,30 |
10,60 |
10,00 |
8,80 |
6,35 |
- |
3,00 |
|
|
6,0 |
9,65 |
9,65 |
9,05 |
8,55 |
7,85 |
6,05 |
- |
3,00 |
|
|
7,0 |
7,55 |
7,55 |
6,95 |
6,45 |
5,95 |
5,45 |
- |
3,00 |
|
|
7,7 |
6,35 |
6,35 |
5,90 |
5,50 |
5,00 |
4,60 |
- |
3,00 |
|
|
8,0 |
- |
- |
5,55 |
5,15 |
4,75 |
4,35 |
1,95 |
3,00 |
|
|
9,0 |
- |
- |
4,55 |
4,30 |
3,90 |
3,55 |
1,90 |
3,00 |
|
|
10,0 |
- |
- |
3,90 |
3,60 |
3,25 |
3,00 |
1,60 |
3,00 |
|
|
10,7 |
- |
- |
3,50 |
3,15 |
2,80 |
2,70 |
1,40 |
В соответствии с грузовыми характеристиками для длин стрел 9 - 21 м, но не более 3,0 т |
|
|
12,0 |
- |
- |
- |
2,65 |
2,35 |
2,25 |
1,15 |
||
|
13,7 |
- |
- |
- |
2,15 |
1,85 |
1,75 |
0,95 |
||
|
15,0 |
- |
- |
- |
- |
1,50 |
1,45 |
0,80 |
||
|
16,0 |
- |
- |
- |
- |
1,45 |
1,40 |
0,70 |
||
|
16,7 |
- |
- |
- |
- |
1,35 |
1,25 |
0,65 |
||
|
17,0 |
- |
- |
- |
- |
- |
1,20 |
0,60 |
||
|
18,0 |
- |
- |
- |
- |
- |
1,05 |
- |
||
|
19,7 |
- |
- |
- |
- |
- |
0,90 |
- |
||
|
Кратность полиспаста (m) |
8 |
5 |
5; 8 |
5; 8 |
5; 8 |
5; 8 |
1 |
5; 8 |
|
|
Примечания: 1 При увеличении длины стрелы свыше 9 м максимальная грузоподъемность крана снижается с 25 т до 15 т и ниже в зависимости от длины стрелы и вылета, что контролируется ограничителем грузоподъемности. 2 Массы крюковой подвески (основной - 0,25 т или вспомогательной - 0,05 т) и съемных грузозахватных приспособлений входят в массу поднимаемого груза. 3 При работе крана с гуськом, закрепленным на основании стрелы в транспортном положении, грузоподъемность крана снижается на 0,2 т, что контролируется ограничителем грузоподъемности. 4 Грузоподъемность для промежуточных длин стрелы определяется по грузовой характеристике ближайшей большей длине стрелы. |
|||||||||
* - зона работы 240° (по 120° от положения стрелы «назад» в обе стороны)
Таблица 7 - Грузовые характеристики крана КС-45717К-1 при работе с ядовитыми и взрывчатыми веществами
|
Вылет, м |
Грузоподъемность, т, на выдвинутых выносных опорах при длине стрелы (L), м |
Зона работы, градус |
|||||||
|
9 |
9 |
12 |
15 |
18 |
21 |
28 (стрела 21 м с гуськом 7 м) |
9 - 21 (выдвижение секций) |
||
|
2,0 |
20,00 |
12,50 |
- |
- |
- |
- |
- |
2,40 |
240* |
|
3,0 |
20,00 |
12,50 |
10,00 |
- |
- |
- |
- |
2,40 |
|
|
3,2 |
20,00 |
12,50 |
10,00 |
- |
- |
- |
- |
2,40 |
|
|
3,5 |
20,00 |
12,50 |
10,00 |
- |
- |
- |
- |
2,40 |
|
|
3,8 |
17,70 |
12,50 |
10,00 |
10,00 |
- |
- |
- |
2,40 |
|
|
4,0 |
17,00 |
12,50 |
10,00 |
10,00 |
- |
- |
- |
2,40 |
|
|
4,5 |
15,00 |
12,50 |
10,00 |
10,00 |
10,00 |
- |
- |
2,40 |
|
|
5,0 |
13,00 |
12,50 |
10,00 |
10,00 |
9,75 |
- |
- |
2,40 |
|
|
5,5 |
11,30 |
11,30 |
10,00 |
10,00 |
8,80 |
6,35 |
- |
2,40 |
|
|
6,0 |
9,65 |
9,65 |
9,05 |
8,55 |
7,85 |
6,05 |
- |
2,40 |
|
|
7,0 |
7,55 |
7,55 |
6,95 |
6,45 |
5,95 |
5,45 |
- |
2,40 |
|
|
7,7 |
6,35 |
6,35 |
5,90 |
5,50 |
5,00 |
4,60 |
- |
2,40 |
|
|
8,0 |
- |
- |
5,55 |
5,15 |
4,75 |
4,35 |
1,95 |
2,40 |
|
|
9,0 |
- |
- |
4,55 |
4,30 |
3,90 |
3,55 |
1,90 |
2,40 |
|
|
10,0 |
- |
- |
3,90 |
3,60 |
3,25 |
3,00 |
1,60 |
2,40 |
|
|
10,7 |
- |
- |
3,50 |
3,15 |
2,80 |
2,70 |
1,40 |
В соответствии с грузовыми характеристиками для длин стрел 9 - 21 м, но не более 2,4 т |
|
|
12,0 |
- |
- |
- |
2,65 |
2,35 |
2,25 |
1,15 |
||
|
13,7 |
- |
- |
- |
2,15 |
1,85 |
1,75 |
0,95 |
||
|
15,0 |
- |
- |
- |
- |
1,50 |
1,45 |
0,80 |
||
|
16,0 |
- |
- |
- |
- |
1,45 |
1,40 |
0,70 |
||
|
16,7 |
- |
- |
- |
- |
1,35 |
1,25 |
0,65 |
||
|
17,0 |
- |
- |
- |
- |
- |
1,20 |
0,60 |
||
|
18,0 |
- |
- |
- |
- |
- |
1,05 |
- |
||
|
19,7 |
- |
- |
- |
- |
- |
0,90 |
- |
||
|
Кратность полиспаста (m) |
8 |
5 |
5; 8 |
5; 8 |
5; 8 |
5; 8 |
1 |
5; 8 |
|
|
Примечания: 1 При увеличении длины стрелы свыше 9 м максимальная грузоподъемность крана снижается с 20 т до 10 т и ниже в зависимости от длины стрелы и вылета, что контролируется ограничителем грузоподъемности. 2 Массы крюковой подвески (основной - 0,30 т или вспомогательной - 0,05 т) и съемных грузозахватных приспособлений входят в массу поднимаемого груза. 3 При работе крана с гуськом, закрепленным на основании стрелы в транспортном положении, грузоподъемность крана снижается на 0,2 т, что контролируется ограничителем грузоподъемности. 4 Грузоподъемность для промежуточных длин стрелы определяется по грузовой характеристике ближайшей большей длине стрелы. |
|||||||||
* - зона работы 240° (по 120° от положения стрелы «назад» в обе стороны)

Рисунок 19 - Грузовые характеристики крана КС-45717К-1 при работе с обычными грузами (на выносных опорах)

Рисунок 20 - Грузовые характеристики крана КС-45717К-1 при работе с ядовитыми и взрывчатыми веществами (на выносных опорах)
Таблица 8 - Высотные характеристики крана КС-45717К-1
|
Длина стрелы, L, м |
9 |
12 |
15 |
18 |
21 |
28 (стрела 21 м с гуськом 7 м) |
||||||||||||
|
Высота подъема, м |
10,0 |
8,0 |
2,8 |
12,8 |
10,2 |
3,0 |
15,6 |
12,4 |
3,1 |
18,3 |
15,5 |
3,3 |
21,3 |
17,8 |
3,5 |
28,2 |
26,5 |
23,1 |
|
Вылет, м |
2,0 |
5,0 |
7,7 |
3,0 |
7,0 |
10,7 |
3,8 |
9,0 |
13,7 |
4,5 |
10,0 |
16,7 |
5,5 |
12,0 |
19,7 |
8,0 |
12,0 |
17,0 |

Рисунок 21 - Высотные характеристики крана КС-45717К-1

Рисунок 22 - Горизонтальная привязка крана КС-45717К-1

Рисунок 23 - Вертикальная привязка крана КС-45717К-1

Рисунок 24 - Погрузка и разгрузка плит перекрытия краном КС-45717К-1

Рисунок 25 - Горизонтальная привязка крана КС-4572

Рисунок 26 - Вертикальная привязка крана КС-4572
Рисунок 27 - Погрузка и разгрузка контейнеров массой до 5 т краном КС-4572
4.1 Погрузочно-разгрузочные работы следует производить согласно требованиям СНиП 12-03-2001 «Безопасность труда в строительстве. Часть 1. Общие требования», ГОСТ 12.3.009-76*, «ССБТ. Работы погрузочно-разгрузочные. Общие требования» и ПБ 10-382-00 «Правила устройства и безопасной эксплуатации грузоподъемных кранов», утвержденных Госгортехнадзором России, а также «Правил техники безопасности для предприятий автомобильного транспорта».
4.2 К выполнению погрузочно-разгрузочных работ с помощью автомобильных кранов допускаются лица не моложе 18 лет, прошедшие медицинское обследование и признанные годными, обученные по специальной программе в учебных заведениях (пунктах), имеющих лицензию Госгортехнадзора России по программам, согласованным с Госгортехнадзором России, аттестованные квалификационной комиссией по ст. 9.4.22 «Правил устройства и безопасной эксплуатации грузоподъемных кранов» и получившие удостоверение на право производства погрузочно-разгрузочных работ.
4.3 Стропальщики, занятые на погрузочно-разгрузочных работах, должны предварительно пройти инструктаж и расписаться после его проведения в журналах:
- вводного инструктажа;
- инструктажа на рабочем месте;
- повторного инструктажа (не реже одного раза в три месяца);
- внепланового инструктажа - целевого инструктажа.
4.4 Работники, допущенные по результатам проведенного медицинского осмотра к выполнению работ по погрузке (разгрузке) опасных и особо опасных грузов, предусмотренных ГОСТ 19433-88*, должны проходить специальное обучение безопасности труда с последующей аттестацией, а также знать и уметь применять приемы оказания первой доврачебной помощи.
4.5 Автомобильный кран, находящийся в работе, должен быть снабжен табличкой с ясно обозначенным регистрационным номером, грузоподъемностью и датой следующего частичного или полного технического освидетельствования.
4.6 Автомобильные краны, грузозахватные приспособления и тара, не прошедшие технического освидетельствования, к работе не допускаются.
4.7 Запрещается выполнение работ на автомобильном кране при скорости ветра, превышающей значение, допустимое для работы данного крана и указанное в его техническом паспорте, а также при сильном снегопаде, тумане, дожде, а также во всех других случаях, когда машинист плохо различает сигналы стропальщика или перемещаемый груз.
4.8 Перед началом погрузочно-разгрузочных работ должен быть установлен порядок обмена условными сигналами между стропальщиком и машинистом крана.
4.9 При работе автомобильного крана не допускается:
- нахождение людей возле работающего крана;
- подъем груза: засыпанного или примерзшего к земле; защемленного другими грузами, укрепленного болтами или залитого бетоном; находящегося в неустойчивом состоянии;
- оттягивание груза во время его подъема, перемещения и опускания;
- выравнивание перемещаемого груза руками, а также поправка стропов на весу;
- работа при выведенных из действия или неисправных приборах безопасности и тормозах;
- освобождение с помощью крана защемленных грузозахватных устройств;
- подъем и перемещение груза, масса которого неизвестна или превышает грузоподъемность крана;
- подъем груза, не имеющего маркировки.
4.10 Работа автомобильных кранов под неотключенными контактными проводами городского транспорта может производиться при соблюдении расстояния между стрелой крана и контактными проводами не менее 1000 мм при установке ограничителя (упора), не позволяющего уменьшить указанное расстояние при подъеме стрелы.
Порядок работы кранов вблизи линии электропередачи, выполненной гибким кабелем, определяется владельцем линии.
В местах производства погрузочно-разгрузочных работ, в зоне работы грузоподъемных машин, а также на автомобильном кране запрещается нахождение лиц, не имеющих непосредственного отношения к производимой работе или крану.
4.11 Строповка грузов должна производиться в соответствии с разработанными способами правильной строповки и зацепки грузов, которым должны быть обучены стропальщики и машинисты кранов. Графическое изображение способов строповки и зацепки, а также перечень основных перемещаемых грузов с указанием их массы должны быть выданы на руки стропальщикам и машинисту крана и вывешены в местах производства работ. Для строповки предназначенного к подъему груза должны применяться стропы, соответствующие массе и характеру поднимаемого груза, с учетом числа ветвей и угла их наклона; стропы следует подбирать так, чтобы угол между их ветвями не превышал 90°.
4.12 Перемещение груза не должно производиться при нахождении под ним людей. Стропальщик может находиться возле груза во время его подъема или опускания, если груз находится на высоте не более 1000 мм от площадки, на которой находится стропальщик.
4.13 При перемещении груза автомобильным краном нахождение работающих на грузе и в зоне его возможного падения не допускается.
4.14 Запрещается подъем или опускание груза при нахождении людей в кузове или в кабине поданной под разгрузку (погрузку) автомашины.
4.15 После окончания работы и в перерыве между работами груз и грузозахватные приспособления не должны оставаться в поднятом положении.
4.16 Способы строповки грузов должны исключать возможность падения или скольжения застропованного груза. Установка (укладка) и крепление грузов должны обеспечивать их устойчивость при транспортировании и складировании, разгрузке транспортных средств и разборке штабелей, а также возможность механизированной погрузки и выгрузки.
4.17 Перемещение мелкоштучных грузов должно производиться в специально для этого предназначенной таре, при этом должна исключаться возможность выпадения отдельных грузов.
4.18 Перемещение груза неизвестной массы должно производиться только после определения его фактической массы.
4.19 Груз или грузозахватное приспособление при их горизонтальном перемещении должны быть предварительно подняты на 500 мм выше встречающихся на пути предметов.
4.20 Не допускается перемещение автомобильного крана с грузом.
4.21 Опускать перемещаемый груз разрешается лишь на предназначенное для этого место, где исключается возможность падения, опрокидывания или сползания устанавливаемого груза. На место установки груза должны быть предварительно уложены соответствующей прочности подкладки и прокладки. Укладку и разборку груза следует производить равномерно, без нарушений установленных для складирования груза габаритов и без загромождения проходов. При подъеме груза он должен быть предварительно приподнят на высоту не более 200 - 300 мм для проверки правильности строповки и надежности действия тормоза.
4.22 Для разворота длинномерных и громоздких грузов должны применяться одна или две оттяжки из пенькового каната или стального гибкого троса.
ОБЯЗАННОСТИ МАШИНИСТА ВО ВРЕМЯ РАБОТЫ КРАНА
Во время подъема и перемещения груза машинист крана должен руководствоваться следующими правилами:
1 Работать краном только по сигналу стропальщика. Если стропальщик дает сигнал, действуя вопреки инструкции, то машинист по такому сигналу не должен выполнять требуемую операцию. За повреждения, причиненные действием крана вследствие выполнения неправильно поданного сигнала, несут ответственность как машинист, так и стропальщик, подавший неправильный сигнал. Обмен сигналом между стропальщиком и машинист должен производиться по установленному на предприятии (в организации) порядку. Сигнал «Стоп» машинист обязан выполнять независимо от того, кто его подает;
2 Определять по указателю грузоподъемности грузоподъемность крана для каждого вылета стрелы. При работе крана на уклоне, когда указатель вылета не учитывает уклона, вылет стрелы следует определять промером, замеряя горизонтальное расстояние от оси вращения крана до центра свободно висящего крюка;
3 Предупреждать звуковым сигналом перед подъемом груза стропальщиков и всех находящихся около крана лиц о необходимости уйти из зоны поднимаемого груза и возможного опускания стрелы. Не допускается нахождение людей возле работающего крана во избежание зажатия их между поворотной и неповоротной частями крана;
4 Загружать и разгружать автомашины и прицепы к ним только при отсутствии людей на транспортных средствах, в чем предварительно необходимо убедиться;
5 Устанавливать крюк подъемного механизма над грузом так, чтобы при подъеме исключалось косое натяжение грузового каната;
6 При подъеме груза, масса которого близка к разрешенной грузоподъемности для данного вылета стрелы, необходимо предварительно поднять его на высоту не более 200 - 300 мм, чтобы убедиться в устойчивости крана и исправности действия тормозов, после чего поднимать груз на нужную высоту;
7 Перемещаемые в горизонтальном направлении грузы следует предварительно приподнять на 0,5 м выше встречающихся на пути предметов;
8 При подъеме стрелы необходимо следить за тем, чтобы она не поднималась выше положения, соответствующего наименьшему рабочему вылету;
9 При подъеме и опускании груза, находящегося вблизи штабеля или автомашины предварительно убедиться, что между поднимаемым грузом и транспортным средством и штабелем отсутствуют стропальщик и другие люди, а стрела или поднимаемый груз не задевают за штабель или автомашину;
10 Внимательно следить за канатами; в случае схода их с барабанов или блоков, образования петель или обнаружения повреждения канатов необходимо приостановить работу крана;
При подъеме и перемещении грузов машинисту ЗАПРЕЩАЕТСЯ:
1 Допускать к обвязке или зацепке грузов случайных лиц, не имеющих прав стропальщика, а также применять грузозахватные приспособления без бирок или клейм. В этих случаях машинист обязан прекратить работу крана и поставить в известность ответственного за безопасное производство работ кранами;
2 Поднимать или кантовать груз, масса которого превышает грузоподъемность крана для данного вылета стрелы. Если машинист не знает массы груза, то он должен получить в письменном виде сведения об этом у лица, ответственного за безопасное производство работ кранами;
3 Опускать стрелу с грузом до вылета, при котором грузоподъемность крана будет меньше массы поднимаемого груза;
4 Резко тормозить при повороте стрелы с грузом;
5 Подтаскивать груз по земле крюком крана при косом натяжении канатов;
6 Отрывать крюком груз, засыпанный землей или примерзший к земле, заложенный другими грузами, укрепленный болтами или залитый бетоном;
7 Освобождать краном защемленные грузом съемные грузозахватные приспособления (стропы, клещи, и т.п.);
8 Поднимать железобетонные изделия с поврежденными петлями, неправильно обвязанный груз, груз, находящийся в неустойчивом положении, а также в таре, заполненной выше бортов;
9 Укладывать груз на электрические кабели и трубопроводы, а также на краю откоса или траншеи;
10 Поднимать груз с находящимися на нем людьми, а также груз, поддерживаемый руками;
11 Передавать управление краном лицам, не имеющим прав на управление краном, а также допускать к самостоятельному управлению учеников и стажеров без своего наблюдения за ними;
12 Загружать и разгружать автомашины при нахождении водителя или других людей в кабине;
13 Поднимать не уложенные в специальные контейнеры баллоны со сжатым или сжиженным газом.
При возникновении неисправностей машинист обязан опустить груз, прекратить работу крана и сообщить об этом лицу, ответственному за безопасное производство работ кранами. Так же должен действовать машинист в следующих случаях:
- при приближении грозы или сильного ветра, скорость которого превышает допустимую для работы данного крана и указанную в его паспорте; при этом машинист должен выполнить все указания инструкции завода-изготовителя о предотвращении угона крана ветром;
- недостаточной освещенности места работы крана, сильного снегопада или тумана, а также во всех других случаях, когда машинист плохо различает сигналы стропальщика или перемещаемый груз;
- если температура воздуха ниже наименьшей допустимой, указанной в паспорте крана;
- при закручивании канатов грузового полиспаста.
Если во время работы крана произойдет авария или случай травмирования, то машинист обязан немедленно сообщить об этом лицу, ответственному за безопасное производство работ кранами, а также лицу, ответственному за исправное состояние крана.
ОБЯЗАННОСТИ СТРОПАЛЬЩИКА ПЕРЕД НАЧАЛОМ РАБОТ
До начала работы стропальщик обязан:
1 ознакомиться при производстве погрузочно-разгрузочных работ с технологической картой и поставить в ней свою подпись;
2 получить от лица, ответственного за безопасное производство работ кранами, инструктаж и задание о виде работ, массе получаемых грузов, о месте и габаритах их складирования;
3 подобрать грузозахватные приспособления, соответствующие весу и характеру поднимаемого груза. Стропы должны подбираться (с учетом числа ветвей) такой длины, чтобы угол между ветвями не превышал 90°;
4 проверить исправность грузозахватных приспособлений и наличие на них клейм или бирок с обозначением номера, даты испытания и грузоподъемности, а также проверить исправность тары и наличие на ней надписи о ее назначении, номера, информации о собственной массе и предельной массе груза, для транспортировки которого она предназначена;
5 проверить наличие и исправность вспомогательных инвентарных приспособлений (оттяжек, багров, крюков, лестниц, подкладок, прокладок, спецподкладок для стропов и т.д.);
6 проверить освещение рабочего места. При недостаточном освещении стропальщик, не приступая к работе, обязан доложить об этом лицу, ответственному за безопасное производство работ кранами.
Стропальщик должен помнить, что ОПАСНО:
- приступать к работе, не ознакомившись с проектом производства работ, без защитной каски и сигнального жилета;
- устанавливать стреловой самоходный кран на выносные опоры при нахождении крановщика в крановой кабине;
- устанавливать стреловой самоходный кран на выносные опоры при подъеме (опускании) стрелы в рабочее положение, укладывать стропы на неповоротную раму крана.
ОБЯЗАННОСТИ СТРОПАЛЬЩИКА ПРИ ОБВЯЗКЕ И ЗАЦЕПКЕ ГРУЗОВ
При обвязке и зацепке груза стропальщик должен руководствоваться следующими указаниями:
1 обвязку или зацепку грузов следует производить в соответствии со схемами строповки грузов, строповку редко поднимаемых грузов, на которые не разработаны схемы их строповки, следует производить под руководством лица, ответственного за безопасное производство работ кранами;
2 проверить массу груза, предназначенного к перемещению краном, по списку грузов или по маркировке на грузе; если стропальщик не имеет возможности определить массу груза, то он должен узнать ее у лица, ответственного за безопасное производство работ кранами;
3 при обвязке груза канаты и цепи должны накладываться на его основной массив (раму, каркас, корпус, станину) без узлов, перекруток и петель; под ребра грузов следует использовать специальные подкладки, предохраняющие стропы от повреждений;
4 обвязывать груз надлежит таким образом, чтобы во время его перемещения исключалось падение отдельных его частей (блоки, бревна, прутки) и обеспечивалось устойчивое положение груза при перемещении: для этого строповка длинномерных грузов должна производиться не менее чем в двух местах;
5 зацепку железобетонных и бетонных изделий, а также других грузов, снабженных петлями, рымами, цапфами, следует производить за все предусмотренные для подъема в соответствующем положении петли, рымы, цапфы;
6 неиспользованные для зацепки груза концы многоветвевого стропа следует укрепить (навесить на разъемное звено) так, чтобы при перемещении груза краном исключалась возможность задевания ими за встречающиеся на пути предметы;
7 убедиться, что предназначенный к подъему груз ничем не укреплен, не защемлен, не завален и не примерз к земле.
При обвязке и зацепке грузов стропальщику ЗАПРЕЩАЕТСЯ:
1 производить строповку груза, масса которого неизвестна или превышает грузоподъемность крана;
2 пользоваться поврежденными или немаркированными съемными грузозахватными приспособлениями и тарой, соединять звенья разорванных цепей болтами или проволокой, связывать канаты;
3 производить строповку груза иными способами, чем указано на схемах строповки;
4 применять для обвязки и зацепки грузов не предусмотренные схемами строповки приспособления (ломы, штыри и др.);
5 производить зацепку груза, не имеющего маркировки, а также зацепку его за поврежденные петли;
6 подвешивать груз на один рог двурогого крюка;
7 производить строповку и подвешивание грузов на крюк крана на расстоянии ближе 30 м от крайнего провода линии электропередачи без наряда-допуска и без присутствия ответственного лица, назначенного приказом по предприятию, фамилия которого должна быть указана в наряде-допуске;
8 забивать крюк стропа в монтажные петли железобетонный изделий или других грузов;
9 поправлять ветви стропов в зеве крюка ударами молотка или других предметов;
10 поправлять ударами молотка, лома и другими предметами стропы на поднимаемом грузе;
11 использовать при обвязке крупных стеновых блоков и других высоких грузов приставные лестниц (в этих случаях следует применять переносные площадки);
12 допускать к строповке и расстроповке грузов лиц, не имеющих удостоверения стропальщика;
13 подвешивать груз не за все имеющиеся на изделии петли;
14 производить зацепку поддонов с кирпичом без ограждения, за исключением погрузки или разгрузки (на землю) автомашин, а также при условии удаления людей из зоны перемещения груза.
ОБЯЗАННОСТИ СТРОПАЛЬЩИКА ПРИ ПОДЪЕМЕ И ПЕРЕМЕЩЕНИИ ГРУЗА
Перед подачей сигнала о подъеме груза, стропальщик ДОЛЖЕН:
- убедиться, что груз надежно закреплен и ничем не удерживается;
- проверить, нет ли на грузе незакрепленных деталей и инструмента; перед подъемом труб большого диаметра проверить, чтобы в них не было земли, льда или других предметов, которые могут выпасть при подъеме;
- убедиться, что груз не может во время подъема и перемещения за что-либо зацепиться;
- убедиться в отсутствии людей возле груза, между поднимаемым грузом и штабелями.
Перед подъемом груза стреловым краном стропальщик должен проверить также отсутствие людей возле самого крана, на неповоротной платформе крана, в зоне опускания стрелы и груза, а самому выйти из опасной зоны.
Стропальщик при подъеме и перемещении груза краном ДОЛЖЕН:
- предварительно подать сигнал для подъема груза на высоту 200 - 300 мм, проверить при этом правильность строповки, равномерность натяжения стропов, устойчивость крана и действие тормозов и только после этого подавать сигнал о подъеме груза на необходимую высоту; при необходимости исправления строповки груз должен быть опущен; проверить по указателю грузоподъемности, что установленный машинистом вылет соответствует массе поднимаемого груза;
- перед горизонтальным перемещением груза убедиться, что груз поднят на высоту не менее 0,5 м выше встречающихся на пути предметов;
- сопровождать груз при перемещении и следить, чтобы он не перемещался над людьми и не мог за что-либо зацепиться; если сопровождать груз не представляется возможным, то за его перемещением должен следить машинист крана;
- для предотвращения самопроизвольного разворота длинномерных и громоздких грузов во время их подъема или перемещения применять специальные оттяжки;
- укладку груза производить равномерно, без нарушения установленных для складирования габаритов и без загромождения проходов и проездов, чтобы расстояние от выступающих элементов поворотной части крана до груза было не менее одного метра, при невозможности выполнения этого условия работы должны быть прекращены.
При подъеме и перемещении груза стропальщику ЗАПРЕЩАЕТСЯ:
- находиться на грузе во время подъема или перемещения, а также допускать подъем или перемещение груза, если на нем находятся другие люди;
- находиться под поднятым грузом или допускать нахождение под ним других людей;
- оттягивать груз во время его подъема, перемещения и опускания;
- находиться и допускать пребывание людей в кузове автомобиля;
- производить погрузку и разгрузку автомашин, если в них находятся люди.
При работе автомобильных кранов вблизи линии электропередачи стропальщик должен быть особенно внимательным. Во избежание зажатия между поворотной и неповоротной частями крана, а также между грузом и краном, стропальщик не должен находиться в опасных местах.
Если во время подъема или перемещения груза стропальщик заметит неисправность крана, он обязан немедленно подать сигнал о прекращении подъема (перемещения) груза и сообщить о неисправности машинисту.
ОБЯЗАННОСТИ СТРОПАЛЬЩИКА ПРИ ОПУСКАНИИ ГРУЗА
Стропальщик перед опусканием груза ОБЯЗАН:
- предварительно осмотреть место, на которое необходимо опустить груз, и убедиться в невозможности падения, опрокидывания или сползания груза;
- на место установки груза в случае необходимости предварительно уложить прочные подкладки для удобства извлечения стропов из-под груза;
- снимать стропы с груза или крюка лишь после того, как груз будет надежно установлен, а при необходимости и закреплен.
При работе на штабелях высотой более 1,5 м необходимо применять переносные инвентарные площадки и стремянки для перехода с одного штабеля на другой.
Прокладки и подкладки в штабелях следует располагать в одной вертикальной плоскости, их толщина при штабелировании плит перекрытий и покрытий, блоков и т.п. должна быть больше высоты выступающих монтажных петель. Прокладки должны быть одинакового сечения и достаточной прочности.
Запрещается применение прокладок круглого сечения при складировании строительных материалов в штабели.
Для размещения материалов должны быть подготовлены выровненные и утрамбованные, а в зимнее время - очищенные от снега и льда площадки.

ТАБЛИЦА МАСС ГРУЗОВ И ПРИМЕНЯЕМЫХ ГРУЗОЗАХВАТНЫХ ПРИСПОСОБЛЕНИЙ
|
Наименование элементов |
Марка, тип |
Масса, т |
№№ схем строповок |
Количество одновременно поднимаемых элементов, шт. |
Грузозахватные приспособления |
Кол. |
|||
|
Строп |
Характеристика |
||||||||
|
Q, тс |
L, мм |
Р, кг |
|||||||
|
Фундаментные плиты |
Ф20-12-25 |
2,46 |
55 |
1 |
4-х ветвевой |
5,0 |
3000 |
38,5 |
1 |
|
Ф20-12-35 |
|||||||||
|
Блоки бетонные для стен подвалов |
ФБС12.4.3-т |
0,31 |
5 |
2 |
- « - |
5,0 |
3000 |
38,5 |
1 |
|
ФБС9.4.6-т |
0,47 |
77 |
4 |
- « - |
5,0 |
3000 |
38,5 |
1 |
|
|
Сваи |
С10-30 |
2,28 |
3 |
1 |
- « - |
5,0 |
3000 |
38,5 |
1 |

ТАБЛИЦА МАСС ГРУЗОВ И ПРИМЕНЯЕМЫХ ГРУЗОЗАХВАТНЫХ ПРИСПОСОБЛЕНИЙ
|
Наименование элементов |
Марка, тип |
Масса, т |
№№ схем строповок |
Количество одновременно поднимаемых элементов, шт. |
Грузозахватные приспособления |
Кол. |
|||
|
Строп |
Характеристика |
||||||||
|
Q, тс |
L, мм |
Р, кг |
|||||||
|
Колонны легкого каркаса |
КРС72 |
3,3 |
59 |
1 |
4-х ветвевой |
10 |
5000 |
108,0 |
1 |
|
КРСС24 |
1,1 |
||||||||
|
Ригели легкого каркаса |
1РФ32-8П |
2,0 |
31 |
1 |
- « - |
10 |
5000 |
108,0 |
1 |
|
Лестничные марши |
ЛМ-39-18 |
1,98 |
13 |
1 |
- « - |
10 |
5000 |
108,0 |
1 |
|
Панели перекрытия |
П6-4 |
2,42 |
12 |
1 |
- « - |
10 |
5000 |
108,0 |
1 |

ТАБЛИЦА МАСС ГРУЗОВ И ПРИМЕНЯЕМЫХ ГРУЗОЗАХВАТНЫХ ПРИСПОСОБЛЕНИЙ
|
Наименование элементов |
Марка, тип |
Масса, т |
№№ схем строповок |
Количество одновременно поднимаемых элементов, шт. |
Грузозахватные приспособления |
Кол. |
|||
|
Строп |
Характеристика |
||||||||
|
Q, тс |
L, мм |
Р, кг |
|||||||
|
Арматурные стержни |
0,12 м3 = 1 т |
2,0 |
86 |
2 т |
4-х ветвевой |
5,0 |
3000 |
38,5 |
12 |
|
3,2 |
4000 |
7,38 |
|||||||
|
Арматурные сетки |
- « - |
- « - |
16 |
- « - |
кольцевой |
5,0 |
3000 |
38,5 |
1 |
|
3,2 |
4000 |
7,38 |
4 |
||||||
|
Арматурные сетки в рулонах, на поддонах |
- « - |
- « - |
88 |
- « - |
- « - |
5,0 |
3000 |
38,5 |
1 |
|
3,2 |
4000 |
7,38 |
2 |
||||||
|
Ларь для хранения закладных деталей и инструмента |
№ 1164М тр. МОС |
0,26 |
68 |
1 |
4-х ветвевой |
5,0 |
3000 |
38,5 |
1 |
|
5 |
|||||||||

ТАБЛИЦА МАСС ГРУЗОВ И ПРИМЕНЯЕМЫХ ГРУЗОЗАХВАТНЫХ ПРИСПОСОБЛЕНИЙ
|
Наименование элементов |
Марка, тип |
Масса, т |
№№ схем строповок |
Количество одновременно поднимаемых элементов, шт. |
Грузозахватные приспособления |
Кол. |
||||
|
Строп |
Характеристика |
|||||||||
|
Q, тс |
L, мм |
Р, кг |
||||||||
|
Стеновые панели |
ПС60 |
2,71 |
11 |
1 |
4-х ветвевой |
5,0 |
3000 |
38,5 |
1 |
|
|
12.2,5-2л |
||||||||||
|
Перемычки |
5ПГ |
1,135 |
17 |
3 |
4-х ветвевой |
5,0 |
3000 |
38,5 |
1 |
|
|
50-23-П |
||||||||||
|
кольцевой |
||||||||||
|
Кирпич на поддонах |
- |
1,5 |
18 |
1 |
- « - |
5,0 |
3000 |
38,5 |
1 |
|
|
Панельные подмости |
№ 1214 |
0,77 |
8 |
1 |
4-х ветвевой |
5,0 |
3000 |
38,5 |
1 |
|

ТАБЛИЦА МАСС ГРУЗОВ И ПРИМЕНЯЕМЫХ ГРУЗОЗАХВАТНЫХ ПРИСПОСОБЛЕНИЙ
|
Наименование элементов |
Марка, тип |
Масса, т |
№№ схем строповок |
Количество одновременно поднимаемых элементов, шт. |
Грузозахватные приспособления |
Кол. |
|||
|
Строп |
Характеристика |
||||||||
|
Q, тс |
L, мм |
Р, кг |
|||||||
|
Контейнер для рулонных кровельных материалов |
№ 4780М тр. МОС |
2,244 |
9 |
1 |
4-х ветвевой |
5 |
3000 |
38,5 |
1 |
|
Железобетонные лотковые перекрытия каналов |
ЛП-4 |
2,86 |
119 |
1 |
- « - |
10 |
5000 |
108,0 |
1 |
|
Железобетонные лотковые днища каналов |
ЛД-10 |
2,68 |
120 |
1 |
- « - |
10 |
5000 |
108,0 |
1 |
|
Железобетонные кольца горловин колодцев |
К-1 |
0,132 |
114 |
1 |
- « - |
5 |
3000 |
38,5 |
1 |

ТАБЛИЦА МАСС ГРУЗОВ И ПРИМЕНЯЕМЫХ ГРУЗОЗАХВАТНЫХ ПРИСПОСОБЛЕНИЙ
|
Наименование элементов |
Марка, тип |
Масса, т |
№№ схем строповок |
Количество одновременно поднимаемых элементов, шт. |
Грузозахватные приспособления |
Кол. |
|||
|
Строп |
Характеристика |
||||||||
|
Q, тс |
L, мм |
Р, кг |
|||||||
|
Пиломатериалы 1,5 м3 |
|
1,2 |
17 |
10 |
4-х ветвевой |
10 |
5000 |
108,0 |
1 |
|
82 |
кольцевой |
3,2 |
4000 |
7,38 |
2 |
||||
|
Металлические балки |
|
1,0 |
84 |
1св |
- « - |
10 |
5000 |
108,0 |
1 |
|
3,2 |
4000 |
7,38 |
2 |
||||||
|
85 |
- « - |
10 |
5000 |
108,0 |
1 |
||||
|
3,2 |
4000 |
7,38 |
2 |
||||||

ТАБЛИЦА МАСС ГРУЗОВ И ПРИМЕНЯЕМЫХ ГРУЗОЗАХВАТНЫХ ПРИСПОСОБЛЕНИЙ
|
Наименование элементов |
Марка, тип |
Масса, т |
№№ схем строповок |
Количество одновременно поднимаемых элементов, шт. |
Грузозахватные приспособления |
Кол. |
|||
|
Строп |
Характеристика |
||||||||
|
Q, тс |
L, мм |
Р, кг |
|||||||
|
Фундаменты под сборные железобетонные ограды |
ФО-2 |
0,70 |
29 |
1 |
4-х ветвевой |
5,0 |
3000 |
38,5 |
1 |
|
Сборные железобетонные ограды |
ПО-2 |
1,42 |
58 |
1 |
- « - |
5,0 |
3000 |
39,5 |
1 |
|
ПО-16 |
1,56 |
58 |
1 |
- « - |
5,0 |
3000 |
38,5 |
1 |
|
1. СНиП 23-05-95 «Естественное и искусственное освещение».
2. СНиП 12-03-2001 «Безопасность труда в строительстве. Часть 1. Общие требования».
3. ГОСТ 12.1.004-91* «ССБТ. Пожарная безопасность. Общие требования».
4. ГОСТ 12.1.046-85 «ССБТ. Строительство. Нормы освещения строительных площадок».
5. ГОСТ 12.1.051-90 «ССБТ. Электробезопасность. Расстояния безопасности в охранной зоне линий электропередачи напряжением свыше 1000 В».
6. ГОСТ 12.3.009-76* «ССБТ. Работы погрузочно-разгрузочные. Общие требования безопасности».
7. ГОСТ 12.3.020-80* «ССБТ. Процессы перемещения грузов на предприятиях. Общие требования безопасности».
8. ГОСТ 12.4.026-76* «ССБТ. Цвета сигнальные и знаки безопасности».
9. ГОСТ 19433-88* «Грузы опасные. Классификация и маркировка».
10. ЕНиР. Единые нормы и расценки на строительные, монтажные и ремонтно-строительные работы. Сборник 1. Внутрипостроечные транспортные работы.
11. ПБ 10-382-00 «Правила устройства и безопасной эксплуатации грузоподъемных кранов», Госгортехнадзор России, 2000 г.
12. ППБ 01-93** «Правила пожарной безопасности в Российской Федерации».
13. ПОТ РО-200-01-95 «Правила по охране труда на автомобильном транспорте».
14. ПОТ РМ-007-98 «Правила по охране труда при погрузочно-разгрузочных работах и размещении грузов».
15. ПОТ Р М-016-2001, РД 153-34.0-03.150-00 «Межотраслевые правила по охране труда (правила безопасности) при эксплуатации электроустановок».
16. СП 12-135-2002 «Безопасность труда в строительстве. Отраслевые типовые инструкции по охране труда». Типовые инструкции по охране труда для работников строительных профессий, выполняющих работы, в том числе:
- погрузочно-разгрузочные и складирование грузов - ТИ РО-057-2002;
- стропальщиков - ТИ РО-060-2002.
17. РДИ 10-406(34)-01 «Типовая инструкция для лиц, ответственных за безопасное производство работ кранами».
18. РДИ 10-395(30-00) «Типовая инструкция для инженерно-технических работников, ответственных за содержание грузоподъемных машин в исправном состоянии».
19. РДИ 10-388(40)-00 «Типовая инструкция для инженерно-технических работников по надзору за безопасной эксплуатацией грузоподъемных машин».
20. «Стреловые самоходные краны. Часть 1. Краны автомобильные. Краны на шасси автомобильного типа», АООТ ПКТИпромстрой, М., 1996.
Технологическая карта не заменяет ППР. (см. СНиП 3.01.01-85*)
(обязательное)
|
Выдан «_____» ___________ 200_ г. Действителен до «_____» __________ 200_ г. 1. Руководителю работ _______________________________________________________ (Ф.И.О., должность) 2. На выполнение работ ______________________________________________________ (наименование работ, место, условия их выполнения) ___________________________________________________________________________ 3. Опасные производственные факторы, которые действуют или могут возникнуть независимо от выполняемой работы в местах ее производства: ___________________________________________________________________________ ___________________________________________________________________________ ___________________________________________________________________________ ___________________________________________________________________________ 4. До начала производства работ необходимо выполнить следующие мероприятия:
Начало работ в _____ час. ____ мин. ____ 200__ г. Окончание работ в ____ час. _____ мин. ____ 200__ г. 5. В процессе производства работ необходимо выполнить следующие мероприятия:
6. Состав исполнителей работ.
7. Наряд-допуск выдал _______________________________________________________ (уполномоченный приказом руководителя организации, Ф.И.О., должность, подпись) Наряд-допуск принял ________________________________________________________ (должность, Ф.И.О., подпись) 8. Письменное разрешение действующего предприятия (эксплуатирующей организации) на производство работ имеется. Мероприятия по безопасности строительного производства согласованы ____________ ___________________________________________________________________________ (должность, Ф.И.О., подпись уполномоченного представителя действующего ___________________________________________________________________________ предприятия или эксплуатирующей организации) 9. Рабочее место и условия труда проверены. Мероприятия по безопасности производства, указанные в наряде-допуске, выполнены. Разрешаю приступить к выполнению работ _____________________________________ (Ф.И.О., должность, подпись, дата) 10. Наряд-допуск продлен до __________________________________________________ (дата, подпись лица, выдавшего наряд-допуск) 11. Работа выполнена в полном объеме. Материалы, инструмент, приспособления убраны. Люди выведены. Наряд-допуск закрыт. Руководитель работ __________________________________________________________ (дата, подпись) Лицо, выдавшее наряд-допуск _________________________________________________ (дата, подпись) Примечание - Наряд-допуск оформляется в двух экземплярах (1-ый находится у лица, выдающего наряд, 2-ой - у ответственного руководителя работ), при работах на территории действующего предприятия наряд-допуск оформляется в трех экземплярах (3-ий экземпляр выдается ответственному лицу действующего предприятия). |
(обязательное)
|
___________________________________________________________________________ (наименование предприятия и ведомства) НАРЯД-ДОПУСК № _______ Наряд выдается на производство работ на расстоянии менее 30 м от крайнего провода линии электропередачи напряжением более 42 В 1. Крановщику ______________________________________________________________ (фамилия, инициалы) ___________________________________________________________________________ (тип крана, регистрационный номер) 2. Выделенного для работы ___________________________________________________ (организация, выделившая кран) 3. На участке _______________________________________________________________ (организация, которой выдан кран, место производства ___________________________________________________________________________ работ, строительная площадка, склад, цех) 4. Напряжение линии электропередачи _________________________________________ 5. Условия работы ___________________________________________________________ (необходимость снятия напряжения с линии ___________________________________________________________________________ электропередачи, наименьшее допускаемое при работе крана ___________________________________________________________________________ расстояние по горизонтали от крайнего провода до ближайших частей крана, ___________________________________________________________________________ способ перемещения груза и другие меры безопасности) 6. Условия передвижения крана _______________________________________________ (положение стрелы и другие меры безопасности) 7. Начало работы _________ час. __________ мин. «___» ___________ 200_____ г. 8. Конец работы ________ час. __________ мин. «___» ___________ 200_____ г. 9. Ответственный за безопасное производство работ ______________________________ ___________________________________________________________________________ (должность, фамилия, инициалы, дата и номер приказа о назначении) 10. Стропальщик ____________________________________________________________ (фамилия, инициалы) ___________________________________________________________________________ (номер удостоверения, дата последней проверки знаний) 11. Разрешение на работу крана в охранной зоне _________________________________ ___________________________________________________________________________ (организация, выдавшая разрешение, номер и дата разрешения) 12. Наряд выдал главный инженер (энергетик) ___________________________________ ___________________________________________________________________________ (организация, подпись) 13. Необходимые меры безопасности, указанные в п. 5, выполнены _________________ ___________________________________________________________________________ Лицо, ответственное за безопасное производство работ ___________________________ _______________________ «______» _______________ 20_____ г. (подпись) 14. Инструктаж получил крановщик _______________________ (подпись) «____» _______________ 200__ г. Примечания: 1. Наряд выписывается в двух экземплярах: первый выдается крановщику, второй хранится у производителя работ. 2. Пункт 11 заполняется в случае работы крана в охранной зоне линии электропередачи. 3. К воздушным линиям электропередачи относятся также ответвления от них. 4. Работы вблизи линии электропередачи выполняются в присутствии и под руководством лица, ответственного за безопасное производство работ кранами. |