ОТКРЫТОЕ АКЦИОНЕРНОЕ ОБЩЕСТВО
АКЦИОНЕРНАЯ КОМПАНИЯ
ПО ТРАНСПОРТУ НЕФТИ «ТРАНСНЕФТЬ»
ОАО «АК «ТРАНСНЕФТЬ»
ТЕХНОЛОГИЧЕСКИЕ
РЕГЛАМЕНТЫ
(стандарты предприятия)
акционерной компании
по транспорту нефти «Транснефть»
Том I

![]()
Москва 2003
РЕГЛАМЕНТ
РАСЧЕТА ПОЛЕЗНОЙ ЕМКОСТИ РЕЗЕРВУАРНОГО ПАРКА И РАЗРАБОТКИ ТЕХНОЛОГИЧЕСКИХ КАРТ
НА РЕЗЕРВУАРЫ И РЕЗЕРВУАРНЫЕ ПАРКИ
Утвержден 17 апреля 2001 г.
1.1. Область применения
1.1.1. Данный Регламент вводится вместо «Регламента по расчету полезной емкости резервуарного парка» от 8 сентября 2000 года, «Регламента разработки технологических карт резервуаров и резервуарных парков и обеспечения ими рабочих мест» от 9 марта 2000 года и «Уточнения к регламенту по расчету полезной емкости резервуарного парка» от 19 октября 2000 года.
1.1.2. Настоящий регламент распространяется на резервуары и резервуарные парки для нефти в системе ОАО АК «Транснефть».
1.1.3. Регламентом определяется методика расчета потенциальной полезной емкости резервуаров и резервуарных парков каждой НПС и ОАО МН в целом.
1.1.4. Регламентом определяется методика расчета емкости единичного резервуара и резервуарного парка на каждой НПС и ОАО МН в целом с учетом нормативных ограничений по его заполнению нефтью.
1.1.5. Регламент определяет порядок разработки технологических карт резервуаров и резервуарных парков и обеспечения ими рабочих мест товарных операторов НПС (ЛПДС), диспетчерских служб РНУ, ОАО МН.
1.1.6 Регламент разработан на основании:
- «Методики определения нормативов технологических остатков нефти в резервуарных парках ОАО «АК «Транснефть» от 2.03.2001 года.
- РД «Правила технической эксплуатации резервуаров магистральных нефтепроводов», введенные в действие приказом ОАО «АК «Транснефть» № 25 от 12.03.2001 года.
- РД 153-39.4-056-00 «Правила технической эксплуатации магистральных нефтепроводов.
- ВНТП 2-86 «Нормы технологического проектирования магистральных нефтепроводов».
1.1.7. Регламент разработан с целью введения единых терминов, используемых в технологической карте резервуаров, единой методики расчета полезной емкости резервуарного парка и предназначен для пользования службами ОАО МН при разработке технологических карт.
1.2. Термины и определения
1.2.1. В настоящем Регламенте применяются следующие термины с соответствующими определениями:
Товарная нефть - нефть грузоотправителей и ОАО МН, предназначенная для транспортировки конечным грузополучателям и использования на собственные нужды.
КПТ - камера системы пенотушения.
ПРП - приемо-раздаточный патрубок.
Hконстр - расстояние, определяемое типом и конструкцией резервуара.
Объем по строительному ному номиналу (Vстр) - объем, определяемый высотой стенки резервуара.
Потенциальная полезная ёмкость резервуара (Vпп) - объем, определяемый разностью объемов максимально допустимого и минимально допустимого уровней.
Полезный объем резервуара (Vп) - объем, равный разности между объемом нормативного уровня верхнего и объемом нормативного уровня нижнего.
Технологический остаток (Vто) - объем нефти, который включает в себя минимально допустимый остаток (Vмин доп), определяемый минимально допустимым уровнем (Hмин доп), и технологический запас (Vтз).
Технологический запас (Vтз) - объем нефти, необходимый для устойчивой работы участка нефтепровода в течение установленного времени.
Нормативный уровень аварийный (На) - уровень, необходимый для создания емкости аварийного сброса нефти, предназначенной для:
- защиты участка нефтепровода и технологических трубопроводов НПС от превышения давления;
- освобождения поврежденного участка трубопровода от нефти при аварии на линейной части;
- сброса давления из участков нефтепровода.
Минимально допустимый уровень (Нмин доп) - уровень, дальнейшее снижение которого ограничивается воронкообразованием и кавитацией насосов, необходимостью полного затопления струи при приёме нефти в резервуар, высотой стоек при наличии понтона или плавающей крыши.
Максимально допустимый уровень (Нмакс доп) - уровень взлива, дальнейшее повышение которого ограничивается температурным расширением нефти и конструктивными особенностями резервуаров:
- для РВС со стационарной крышей и понтоном - высотой от днища до врезки пенокамеры, с учетом высоты понтона;
- для РВС с плавающей крышей - разностью высот стенки резервуара и плавающей крыши;
- для ЖБР - высотой от днища до плит перекрытия.
Нормативный уровень нижний (Нн) - уровень нефти, необходимый для устойчивой работы откачивающих агрегатов в течение времени, достаточного для оперативных действий (передачи соответствующих оперативных распоряжений или согласований, остановки откачивающих агрегатов и отключения резервуаров) или для переключения на откачку нефти с одной группы резервуаров на другую.
Нормативный уровень верхний (Нв) - уровень нефти, необходимый для создания запаса емкости, достаточной для приема нефти из трубопровода на время оперативных действий по отключению резервуаров (передача соответствующих оперативных распоряжений и согласований, остановка перекачки, отключение резервуаров) или переключению приема нефти с одной группы резервуаров на другую.
Воронкообразование - вращательное движение частиц жидкости с образованием воронки при ее истечении из резервуара через приемо-раздаточный патрубок.
Схема технологического процесса перекачки нефти «через резервуары» (режим «прием-сдача») - поочередный прием нефти в один или группу резервуаров, при этом подача нефти на следующую станцию осуществляется из другого резервуара (или другой группы резервуаров).
Схема технологического процесса перекачки нефти с «подключенными резервуарами» (транзитные резервуары) - движение нефти из нефтепровода в нефтепровод с подключением резервуарного парка к приемной линии насосной. Применяют для компенсации производительностей предыдущего и последующего участков нефтепровода.
Эксплуатационный участок магистрального нефтепровода - участок нефтепровода между двумя перекачивающими станциями с резервуарными парками, работающий в едином гидравлическом режиме.

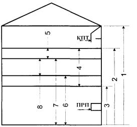
Рис. 1
1 - высота стенки резервуара
2 - максимально допустимый уровень взлива
3 - минимально допустимый уровень взлива
4 - высота, определяющая потенциальную полезную емкость
2.1. Расчет максимального допустимого уровня взлива
2.1.1. Максимально допустимый уровень в резервуаре определяется по формуле:
Нмакс доп = Нконстр - 100 мм,
где Нконстр - расстояние, определяемое типом и конструкцией резервуара:
- для РВС со стационарной крышей и с понтоном - от днища (в районе уторного уголка) до нижней образующей пенокамеры;
- для резервуаров РВС с плавающей крышей - от днища (в районе уторного уголка) до верха стенки;
- для ЖБР - от днища до плит перекрытия.
2.1.2. Расстояние, определяющее запас емкости на температурное расширение нефти, принимается равным 100 мм.
Для ЖБР и РВС со стационарной крышей 100 мм отмеряются от зеркала нефти.
Для РВС с понтоном 100 мм отмеряются от нижней образующей пенокамеры до верха короба понтона и вычитается высота понтона, с учетом его погружения.
Для РВС с плавающей крышей 100 мм отмеряются от верха стенки до короба крыши и вычитается высота плавающей крыши, с учетом ее погружения.
2.2. Расчет минимально допустимого уровня взлива
2.2.1. Минимально допустимый уровень (Нмин доп) нефти в резервуаре со стационарной крышей рассчитывается, исходя из условия недопустимости прорыва воздуха в приемо-раздаточный патрубок резервуара при воронкообразовании.
2.2.2. В резервуаре с плавающей крышей или понтоном величина минимально допустимого уровня определяется высотой стоек и расстоянием 30 см от днища резервуара до низа опорных стоек.
2.2.3. В резервуаре с понтоном, опорные стойки которого установлены на днище, минимально допустимый уровень определяется высотой опорных стоек и расстоянием на 30 см выше них.
2.2.4. Минимальный уровень по воронкообразованию определяется в зависимости от конструктивного расположения приемо-раздаточного патрубка (ПРП), его диаметра и производительности опорожнения резервуара, которая зависит от производительности напорного участка нефтепровода при схеме перекачки «через резервуары» и максимальной разности производительностей приемного и напорного участков при схеме перекачки с «подключенными резервуарами».
Величина Нмин доп определяются по формуле
Нмин доп = Нкр + А,
где Нкр - критическая высота уровня жидкости в резервуаре, при которой начинается устойчивое истечение с воронкой, м;
А - расстояние от днища резервуара до оси приемо-раздаточного патрубка, м; значения А определяются по паспорту резервуара.
,
где Re = V · dn / ν - критерий Рейнольдса;
dn - диаметр приемо-раздаточного патрубка, м;
V - скорость в одном приемо-раздаточном патрубке, м/с.
Определяется по максимальной производительности заполнения - опорожнения резервуара Q, м3/с. Максимально допустимые скорости представлены в приложении 1;
ν - кинематическая вязкость при максимальной температуре перекачиваемой жидкости, м2/с;
φ - угол среза приемо-раздаточного патрубка, рад.
2.2.5. При наличии в резервуаре «хлопушки» с горизонтально или максимально поднятой крышкой угол среза ПРП следует принимать равным φ = 30 град.
2.2.6. В приложении 1 представлены результаты расчета Нкр в зависимости от диаметра и угла среза ПРП, производительности опорожнения и вязкости перекачиваемой жидкости. Диапазон изменения параметров:
d = 0,1 ÷ 0,7 м;
φ = 30, 90, 120 (соответственно 0,5236; 1,5708; 2,0944 рад.);
Q = 100 ÷ 7000 м3/ч;
ν = 0,5 · 10-6 ÷ 30 · 10-6 м2/с.
Для резервуаров с донным отводом жидкости минимально допустимый уровень Нмин доп определяется по приложению 2.
2.2.7. Расчетная производительность заполнения (опорожнения) резервуара определяется по максимально возможной производительности участка нефтепровода, с учетом:
- фактически установленных на резервуаре предохранительных и дыхательных клапанов, вентиляционных патрубков, огневых предохранителей;
- ограничений скорости движения нефти с целью обеспечения электростатической безопасности (приложение 3);
- ограничения скорости движения нефти установленной проектом (исполнительной документацией) для резервуара, понтона или плавающей крыши;
- ограничения производительности заполнения (опорожнения) резервуара, из-за объединения в группу.
2.3. Расчет потенциальной полезной емкости резервуарного парка
2.3.1. Потенциальная полезная емкость резервуара (Vпп) определяется по формуле:
Vпп = (Нмакс доп - Нмин доп) · F,
где F - площадь зеркала нефти в резервуаре, м2.
2.3.2. Потенциальная полезная емкость резервуарного парка (Vпп рп) определяется как сумма потенциальных полезных емкостей резервуаров парка НПС:
,
где n - количество резервуаров в парке.
3.1. Расчет запаса аварийного объема
3.1.1. Общий запас аварийной емкости (Va рп) не должен превышать двухчасовую пропускную способность подводящего нефтепровода. Объем аварийной емкости резервуарного парка является нормативным ограничением по аварийному запасу и рассчитывается по формуле:
Vа рп = 2 Q,
где Q (м3/ч) определяется из расчета производительности нефтепровода на максимальном режиме работы по установленному оборудованию.
3.2. Расчет запаса объема резервуарного парка по нормативному уровню нижнему
3.2.1. Для резервуарного парка указанный запас емкости (Vн рп) равен сумме всех объемов (Vн) в резервуарах парка и является нормативным ограничением по нижнему уровню. Объем резервуарного парка по нормативному уровню нижнему должен быть рассчитан на хранение технологического запаса нефти.
3.2.2. Объем резервуарного парка по нормативному уровню нижнему определяется по формуле:
,
где Vнi = (Нн - Нмин доп) · F;
F - площадь зеркала нефти в резервуаре, м2;
n - количество резервуаров в парке;
Нн - нормативный уровень нижний.
3.2.3. Уровень (Нн) для резервуара определяется по формуле:
,
где Q - максимально допустимая производительность опорожнения резервуара, м3/ч;
t - время, необходимое для оперативных действий, принимается равным 0,5 часа;
F - площадь зеркала нефти в резервуаре, м2.
3.3. Расчет запаса объема резервуарного парка по нормативному уровню верхнему
3.3.1. Для резервуарного парка указанный запас емкости (Vв рп) равен сумме всех объемов (Vв) в резервуарах парка и является нормативным ограничением по верхнему уровню.
,
где Vвi = (Нмакс доп - Нв) · F;
F - площадь зеркала нефти в резервуаре, м2;
n - количество резервуаров в парке, (Vа рп);
(Нв) - нормативный уровень верхний.
3.3.2. Уровень (Нв) для резервуара определяется по формуле:
,
где Q - максимально допустимая производительность заполнения резервуара, м3/ч;
t - время, необходимое для оперативных действий, принимается равным 0,5 часа;
F - площадь зеркала нефти в резервуаре, м2.
3.4. Методика расчета полезной емкости резервуарного парка с учетом нормативных ограничений
3.4.1. Полезная емкость резервуарного парка с учетом нормативных ограничений - это емкость резервуарного парка, которую можно использовать при проведении товарных операций при приеме, транспортировке и отгрузке нефти.
3.4.2. Полезная емкость резервуарного парка определяется как разность между потенциальной полезной емкостью резервуарного парка (Vпп рп) и нормативными ограничениями:

Рис. 2
1 - высота стенки резервуара;
2 - максимально допустимый уровень взлива;
3 - минимально допустимый уровень взлива;
4 - высота, определяющая потенциальную полезную емкость;
5 - нормативный объем аварийный;
6 - нормативный уровень нижний;
7 - нормативный уровень верхний;
8 - высота, определяющая полезную емкость резервуара
3.4.3. Полезная емкость резервуарного парка определяется по формуле:
Vп рп = Vпп рп - Vн рп - Vв рп - Vа рп
3.4.4. Для резервуаров, в которых хранится технологический запас (Vтз), вместо (Vн рп) в данную формулу ставится (Vтз), при условии, (Vтз) больше или равно (Vн рп).
3.4.5. Для резервуарных парков, резервуары которых расположены на разных геодезических отметках, разрабатывается операционная карта, по которой технологические переключения исключают (сокращают) потери полезной емкости из-за разницы отметок днищ резервуаров.
4.1. Коэффициент полезной емкости (К) определяется отношением полезной емкости резервуарного парка (Vп рп) к объему резервуарного парка по строительному номиналу (Vстр):
.
5.1. Технологическая карта должна содержать следующую информацию:
- номер резервуара по технологической схеме;
- тип резервуара;
- высота трафаретной отметки (абсолютная отметка от окрайки днища резервуара);
- высота врезки пенокамеры;
- диаметр приемо-раздаточных патрубков (ПРП), расстояние от днища до оси ПРП, до верхней образующей ПРП, объем взлива до верхней образующей ПРП, максимальная производительность ПРП;
- высота максимально и минимально допустимых уровней взливов нефти, объемы по максимально и минимально допустимым уровням взлива, технологический остаток;
- тип, количество, диаметр, суммарная пропускная способность дыхательных и предохранительных клапанов, вентиляционных патрубков, с учетом установленных огнепреградителей;
- максимально допустимая скорость движения понтона, плавающей крыши;
- максимально допустимая производительность заполнения (опорожнения) резервуара;
- количество резервуаров, одновременно подключаемых в технологическую группу;
- наличие приборов замера уровня, устройств для размыва донных отложений, газоуравнительной системы.
5.2. Технологические карты (Приложение 5) составляются техническими службами НПС (ЛПДС) на основании градуировочных таблиц, исполнительной документации на строительство (реконструкцию, капитальный ремонт) резервуаров и резервуарных парков и подписываются руководством НПС (ЛПДС). После составления и подписания технологическая карта направляется на рассмотрение и подписание в РНУ (УМН).
5.3. Главный инженер РНУ (УМН) проверяет правильность составления и заполнения технологических карт, соответствие их исполнительной документации, подписывает их и направляет в ОАО МН.
5.4. Главный технолог, начальники отдела эксплуатации и товарно-транспортного отдела проверяют соответствие технологических карт нормативным документам, режимам перекачки и эксплуатации нефтепроводов, согласовывают их и представляют на утверждение главному инженеру ОАО МН.
5.5. Утвержденные главным инженером ОАО МН технологические карты направляются на рабочие места персонала, осуществляющего товарно-транспортные операции (операторные НПС, диспетчерские РНУ, ОАО МН), в диспетчерское управление ОАО «АК «Транснефть» и на сервер компьютерной сети в систему «СКУТОР» ОАО «АК «Транснефть».
5.6. В случае изменения технологических параметров эксплуатации резервуаров, после капитального ремонта (реконструкции), замены оборудования на резервуаре или в резервуарном парке руководство НПС в срок не более трех дней должно представить измененные технологические карты, с обоснованием изменений в РНУ (УМН).
5.7. Главный инженер и службы РНУ (УМН) в срок не более трех дней проверяют соответствие внесенных изменений исполнительной документации, обоснованность и правильность внесения изменений, подписывают и направляют измененные технологические карты на утверждение в ОАО МН.
5.8. Главный технолог, начальники отдела эксплуатации и товарно-транспортного отдела ОАО МН, в срок не более пяти дней проверяют соответствие изменений, внесенных в технологические карты, нормативным документам, режимам перекачки и эксплуатации нефтепроводов, согласовывают измененные технологические карты и представляют их на утверждение главному инженеру ОАО МН.
5.9. Утвержденные главным инженером ОАО МН измененные технологические карты направляются на рабочие места персонала, осуществляющего товарно-транспортные операции (операторные НПС, диспетчерские РНУ, ОАО МН), в диспетчерское управление ОАО «АК «Транснефть» и на сервер компьютерной сети в систему «СКУТОР» ОАО «АК «Транснефть».
5.10. Сведения о техническом состоянии резервуаров, потенциальной полезной емкости составляются ОАО МН согласно Приложению 4 и передаются по электронной почте на сервер Компании по системе СКУТОР к 20 числу ежемесячно для отдела магистральных нефтепроводов и нефтебаз ОАО «АК «Транснефть».
|
Производительность через один приемораздаточный патрубок, м3/ч |
Скорость в приемо-раздаточном патрубке, м/с |
Угол среза приемо-раздаточного патрубка, град. |
Вязкость 10-6, м2/с |
||||||||||||||
|
5 |
10 |
15 |
20 |
25 |
30 |
40 |
50 |
60 |
70 |
80 |
90 |
100 |
110 |
120 |
|||
|
1 |
2 |
3 |
5 |
6 |
7 |
8 |
9 |
10 |
11 |
12 |
13 |
14 |
15 |
16 |
17 |
18 |
19 |
|
Диаметр ПРП - 0,15 м |
|||||||||||||||||
|
100 |
1,57 |
30 |
0,10 |
0,08 |
0,07 |
0,06 |
0,06 |
0,05 |
0,05 |
0,05 |
0,04 |
0,04 |
0,04 |
0,04 |
0,04 |
0,03 |
0,03 |
|
100 |
1,57 |
90 |
0,17 |
0,13 |
0,12 |
0,11 |
0,10 |
0,09 |
0,08 |
0,08 |
0,07 |
0,07 |
0,07 |
0,06 |
0,06 |
0,06 |
0,06 |
|
100 |
1,57 |
120 |
0,20 |
0,16 |
0,14 |
0,12 |
0,11 |
0,11 |
0,10 |
0,09 |
0,09 |
0,08 |
0,08 |
0,07 |
0,07 |
0,07 |
0,07 |
|
200 |
3,15 |
30 |
0,12 |
0,10 |
0,09 |
0,08 |
0,07 |
0,07 |
0,06 |
0,06 |
0,05 |
0,05 |
0,05 |
0,05 |
0,05 |
0,04 |
0,04 |
|
200 |
3,15 |
90 |
0,21 |
0,17 |
0,15 |
0,13 |
0,13 |
0,12 |
0,11 |
0,10 |
0,09 |
0,09 |
0,08 |
0,08 |
0,08 |
0,08 |
0,07 |
|
200 |
3,15 |
120 |
0,25 |
0,20 |
0,17 |
0,16 |
0,14 |
0,14 |
0,12 |
0,11 |
0,11 |
0,10 |
0,10 |
0,09 |
0,09 |
0,09 |
0,09 |
|
300 |
4,72 |
90 |
0,24 |
0,19 |
0,17 |
0,15 |
0,14 |
0,13 |
0,12 |
0,11 |
0,11 |
0,10 |
0,10 |
0,09 |
0,09 |
0,09 |
0,08 |
|
300 |
4,72 |
120 |
0,28 |
0,22 |
0,20 |
0,18 |
0,17 |
0,16 |
0,14 |
0,13 |
0,12 |
0,12 |
0,11 |
0,11 |
0,10 |
0,10 |
0,10 |
|
400 |
6,29 |
30 |
0,16 |
0,12 |
0,11 |
0,10 |
0,09 |
0,09 |
0,08 |
0,07 |
0,07 |
0,06 |
0,06 |
0,06 |
0,06 |
0,06 |
0,05 |
|
400 |
6,29 |
90 |
0,27 |
0,21 |
0,19 |
0,17 |
0,16 |
0,15 |
0,13 |
0,13 |
0,12 |
0,11 |
0,11 |
0,10 |
0,10 |
0,10 |
0,09 |
|
400 |
6,29 |
120 |
0,31 |
0,25 |
0,22 |
0,20 |
0,18 |
0,17 |
0,16 |
0,14 |
0,14 |
0,13 |
0,12 |
0,12 |
0,11 |
0,11 |
0,11 |
|
500 |
7,86 |
30 |
0,17 |
0,13 |
0,12 |
0,11 |
0,10 |
0,09 |
0,08 |
0,08 |
0,07 |
0,07 |
0,07 |
0,06 |
0,06 |
0,06 |
0,06 |
|
500 |
7,86 |
90 |
0,29 |
0,23 |
0,20 |
0,18 |
0,17 |
0,16 |
0,15 |
0,13 |
0,13 |
0,12 |
0,12 |
0,11 |
0,11 |
0,10 |
0,10 |
|
500 |
7,86 |
120 |
0,34 |
0,27 |
0,23 |
0,21 |
0,20 |
0,18 |
0,17 |
0,16 |
0,15 |
0,14 |
0,13 |
0,13 |
0,12 |
0,12 |
0,12 |
|
750 |
11,80 |
30 |
0,19 |
0,15 |
0,13 |
0,12 |
0,11 |
0,11 |
0,10 |
0,09 |
0,08 |
0,08 |
0,08 |
0,07 |
0,07 |
0,07 |
0,07 |
|
750 |
11,80 |
90 |
0,33 |
0,26 |
0,23 |
0,21 |
0,19 |
0,18 |
0,17 |
0,15 |
0,15 |
0,14 |
0,13 |
0,13 |
0,12 |
0,12 |
0,12 |
|
750 |
11,80 |
120 |
0,38 |
0,30 |
0,27 |
0,24 |
0,22 |
0,21 |
0,19 |
0,18 |
0,17 |
0,16 |
0,15 |
0,15 |
0,14 |
0,14 |
0,13 |
|
Диаметр ПРП - 0,2 м |
|||||||||||||||||
|
100 |
0,88 |
30 |
0,12 |
0,09 |
0,08 |
0,07 |
0,07 |
0,07 |
0,06 |
0,06 |
0,05 |
0,05 |
0,05 |
0,05 |
0,04 |
0,04 |
0,04 |
|
100 |
0,88 |
90 |
0,21 |
0,16 |
0,14 |
0,13 |
0,12 |
0,11 |
0,10 |
0,10 |
0,09 |
0,09 |
0,08 |
0,08 |
0,08 |
0,07 |
0,07 |
|
100 |
0,88 |
120 |
0,24 |
0,19 |
0,16 |
0,15 |
0,14 |
0,13 |
0,12 |
0,11 |
0,10 |
0,10 |
0,09 |
0,09 |
0,09 |
0,08 |
0,08 |
|
200 |
1,77 |
30 |
0,15 |
0,12 |
0,10 |
0,09 |
0,09 |
0,08 |
0,07 |
0,07 |
0,07 |
0,06 |
0,06 |
0,06 |
0,06 |
0,05 |
0,05 |
|
200 |
1,77 |
90 |
0,26 |
0,21 |
0,18 |
0,16 |
0,15 |
0,14 |
0,13 |
0,12 |
0,11 |
0,11 |
0,10 |
0,10 |
0,10 |
0,09 |
0,09 |
|
200 |
1,77 |
120 |
0,30 |
0,24 |
0,21 |
0,19 |
0,18 |
0,16 |
0,15 |
0,14 |
0,13 |
0,12 |
0,12 |
0,11 |
0,11 |
0,11 |
0,10 |
|
300 |
2,65 |
30 |
0,17 |
0,14 |
0,12 |
0,11 |
0,10 |
0,09 |
0,09 |
0,08 |
0,07 |
0,07 |
0,07 |
0,07 |
0,06 |
0,06 |
0,06 |
|
300 |
2,65 |
90 |
0,30 |
0,24 |
0,21 |
0,19 |
0,17 |
0,16 |
0,15 |
0,14 |
0,13 |
0,12 |
0,12 |
0,11 |
0,11 |
0,11 |
0,10 |
|
300 |
2,65 |
120 |
0,34 |
0,27 |
0,24 |
0,22 |
0,20 |
0,19 |
0,17 |
0,16 |
0,15 |
0,14 |
0,14 |
0,13 |
0,13 |
0,12 |
0,12 |
|
400 |
3,54 |
30 |
0,19 |
0,15 |
0,13 |
0,12 |
0,11 |
0,10 |
0,09 |
0,09 |
0,08 |
0,08 |
0,07 |
0,07 |
0,07 |
0,07 |
0,07 |
|
400 |
3,54 |
90 |
0,33 |
0,26 |
0,23 |
0,21 |
0,19 |
0,18 |
0,16 |
0,15 |
0,14 |
0,14 |
0,13 |
0,12 |
0,12 |
0,12 |
0,11 |
|
400 |
3,54 |
120 |
0,38 |
0,30 |
0,26 |
0,24 |
0,22 |
0,21 |
0,19 |
0,18 |
0,16 |
0,16 |
0,15 |
0,14 |
0,14 |
0,13 |
0,13 |
|
500 |
4,42 |
30 |
0,20 |
0,16 |
0,14 |
0,13 |
0,12 |
0,11 |
0,10 |
0,09 |
0,09 |
0,08 |
0,08 |
0,08 |
0,07 |
0,07 |
0,07 |
|
500 |
4,42 |
90 |
0,35 |
0,28 |
0,24 |
0,22 |
0,21 |
0,19 |
0,18 |
0,16 |
0,15 |
0,15 |
0,14 |
0,13 |
0,13 |
0,13 |
0,12 |
|
500 |
4,42 |
120 |
0,41 |
0,32 |
0,28 |
0,26 |
0,24 |
0,22 |
0,20 |
0,19 |
0,18 |
0,17 |
0,16 |
0,16 |
0,15 |
0,14 |
0,14 |
|
750 |
6,63 |
30 |
0,23 |
0,18 |
0,16 |
0,15 |
0,14 |
0,13 |
0,12 |
0,11 |
0,10 |
0,10 |
0,09 |
0,09 |
0,09 |
0,08 |
0,08 |
|
750 |
6,63 |
90 |
0,40 |
0,32 |
0,28 |
0,25 |
0,24 |
0,22 |
0,20 |
0,19 |
0,18 |
0,17 |
0,16 |
0,15 |
0,15 |
0,14 |
0,14 |
|
750 |
6,63 |
120 |
0,47 |
0,37 |
0,32 |
0,29 |
0,27 |
0,26 |
0,23 |
0,22 |
0,20 |
0,19 |
0,18 |
0,18 |
0,17 |
0,17 |
0,16 |
|
1000 |
8,85 |
30 |
0,26 |
0,20 |
0,18 |
0,16 |
0,15 |
0,14 |
0,13 |
0,12 |
0,11 |
0,11 |
0,10 |
0,10 |
0,09 |
0,09 |
0,09 |
|
1000 |
8,85 |
90 |
0,44 |
0,35 |
0,31 |
0,28 |
0,26 |
0,24 |
0,22 |
0,21 |
0,19 |
0,18 |
0,18 |
0,17 |
0,16 |
0,16 |
0,15 |
|
1000 |
8,85 |
120 |
0,51 |
0,41 |
0,35 |
0,32 |
0,30 |
0,28 |
0,26 |
0,24 |
0,22 |
0,21 |
0,20 |
0,20 |
0,19 |
0,18 |
0,18 |
|
1500 |
13,27 |
30 |
0,29 |
0,23 |
0,20 |
0,18 |
0,17 |
0,16 |
0,15 |
0,14 |
0,13 |
0,12 |
0,12 |
0,11 |
0,11 |
0,10 |
0,10 |
|
1500 |
13,27 |
90 |
0,51 |
0,40 |
0,35 |
0,32 |
0,30 |
0,28 |
0,25 |
0,24 |
0,22 |
0,21 |
0,20 |
0,19 |
0,19 |
0,18 |
0,18 |
|
1500 |
13,27 |
120 |
0,59 |
0,47 |
0,41 |
0,37 |
0,34 |
0,32 |
0,29 |
0,27 |
0,26 |
0,24 |
0,23 |
0,22 |
0,22 |
0,21 |
0,20 |
|
Диаметр ПРП - 0,25 м |
|||||||||||||||||
|
100 |
0,57 |
30 |
0,14 |
0,11 |
0,10 |
0,09 |
0,08 |
0,08 |
0,07 |
0,06 |
0,06 |
0,06 |
0,05 |
0,05 |
0,05 |
0,05 |
0,05 |
|
100 |
0,57 |
90 |
0,24 |
0,19 |
0,17 |
0,15 |
0,14 |
0,13 |
0,12 |
0,11 |
0,10 |
0,10 |
0,09 |
0,09 |
0,09 |
0,09 |
0,08 |
|
100 |
0,57 |
120 |
0,28 |
0,22 |
0,19 |
0,17 |
0,16 |
0,15 |
0,14 |
0,13 |
0,12 |
0,11 |
0,11 |
0,11 |
0,10 |
0,10 |
0,10 |
|
200 |
1,13 |
30 |
0,17 |
0,14 |
0,12 |
0,11 |
0,10 |
0,10 |
0,09 |
0,08 |
0,08 |
0,07 |
0,07 |
0,07 |
0,06 |
0,06 |
0,06 |
|
200 |
1,13 |
90 |
0,30 |
0,24 |
0,21 |
0,19 |
0,18 |
0,17 |
0,15 |
0,14 |
0,13 |
0,12 |
0,12 |
0,11 |
0,11 |
0,11 |
0,10 |
|
200 |
1,13 |
120 |
0,35 |
0,28 |
0,24 |
0,22 |
0,20 |
0,19 |
0,17 |
0,16 |
0,15 |
0,14 |
0,14 |
0,13 |
0,13 |
0,12 |
0,12 |
|
300 |
1,70 |
30 |
0,20 |
0,16 |
0,14 |
0,13 |
0,12 |
0,11 |
0,10 |
0,09 |
0,09 |
0,08 |
0,08 |
0,08 |
0,07 |
0,07 |
0,07 |
|
300 |
1,70 |
90 |
0,34 |
0,27 |
0,24 |
0,22 |
0,20 |
0,19 |
0,17 |
0,16 |
0,15 |
0,14 |
0,14 |
0,13 |
0,13 |
0,12 |
0,12 |
|
300 |
1,70 |
120 |
0,40 |
0,32 |
0,28 |
0,25 |
0,23 |
0,22 |
0,20 |
0,18 |
0,17 |
0,16 |
0,16 |
0,15 |
0,15 |
0,14 |
0,14 |
|
400 |
2,26 |
30 |
0,22 |
0,17 |
0,15 |
0,14 |
0,13 |
0,12 |
0,11 |
0,10 |
0,10 |
0,09 |
0,09 |
0,08 |
0,08 |
0,08 |
0,08 |
|
400 |
2,26 |
90 |
0,38 |
0,30 |
0,26 |
0,24 |
0,22 |
0,21 |
0,19 |
0,18 |
0,17 |
0,16 |
0,15 |
0,14 |
0,14 |
0,14 |
0,13 |
|
400 |
2,26 |
120 |
0,44 |
0,35 |
0,30 |
0,28 |
0,26 |
0,24 |
0,22 |
0,20 |
0,19 |
0,18 |
0,17 |
0,17 |
0,16 |
0,16 |
0,15 |
|
500 |
2,83 |
30 |
0,24 |
0,19 |
0,16 |
0,15 |
0,14 |
0,13 |
0,12 |
0,11 |
0,10 |
0,10 |
0,09 |
0,09 |
0,09 |
0,08 |
0,08 |
|
500 |
2,83 |
90 |
0,41 |
0,32 |
0,28 |
0,26 |
0,24 |
0,22 |
0,20 |
0,19 |
0,18 |
0,17 |
0,16 |
0,16 |
0,15 |
0,15 |
0,14 |
|
500 |
2,83 |
120 |
0,47 |
0,37 |
0,33 |
0,30 |
0,28 |
0,26 |
0,24 |
0,22 |
0,21 |
0,20 |
0,19 |
0,18 |
0,17 |
0,17 |
0,16 |
|
750 |
4,25 |
30 |
0,27 |
0,21 |
0,19 |
0,17 |
0,16 |
0,15 |
0,13 |
0,13 |
0,12 |
0,11 |
0,11 |
0,10 |
0,10 |
0,10 |
0,09 |
|
750 |
4,25 |
90 |
0,47 |
0,37 |
0,32 |
0,29 |
0,27 |
0,26 |
0,23 |
0,22 |
0,20 |
0,19 |
0,19 |
0,18 |
0,17 |
0,17 |
0,16 |
|
750 |
4,25 |
120 |
0,54 |
0,43 |
0,37 |
0,34 |
0,32 |
0,30 |
0,27 |
0,25 |
0,24 |
0,22 |
0,21 |
0,21 |
0,20 |
0,19 |
0,19 |
|
1000 |
5,66 |
30 |
0,30 |
0,24 |
0,21 |
0,19 |
0,17 |
0,16 |
0,15 |
0,14 |
0,13 |
0,12 |
0,12 |
0,11 |
0,11 |
0,11 |
0,10 |
|
1000 |
5,66 |
90 |
0,51 |
0,41 |
0,36 |
0,32 |
0,30 |
0,28 |
0,26 |
0,24 |
0,22 |
0,21 |
0,20 |
0,20 |
0,19 |
0,18 |
0,18 |
|
1000 |
5,66 |
120 |
0,59 |
0,47 |
0,41 |
0,37 |
0,35 |
0,33 |
0,30 |
0,28 |
0,26 |
0,25 |
0,24 |
0,23 |
0,22 |
0,21 |
0,21 |
|
1250 |
7,08 |
30 |
0,32 |
0,25 |
0,22 |
0,20 |
0,19 |
0,18 |
0,16 |
0,15 |
0,14 |
0,13 |
0,13 |
0,12 |
0,12 |
0,11 |
0,11 |
|
1250 |
7,08 |
90 |
0,55 |
0,44 |
0,38 |
0,35 |
0,32 |
0,30 |
0,28 |
0,26 |
0,24 |
0,23 |
0,22 |
0,21 |
0,20 |
0,20 |
0,19 |
|
1250 |
7,08 |
120 |
0,64 |
0,51 |
0,44 |
0,40 |
0,37 |
0,35 |
0,32 |
0,30 |
0,28 |
0,27 |
0,25 |
0,24 |
0,24 |
0,23 |
0,22 |
|
1500 |
8,49 |
30 |
0,34 |
0,27 |
0,24 |
0,21 |
0,20 |
0,19 |
0,17 |
0,16 |
0,15 |
0,14 |
0,13 |
0,13 |
0,13 |
0,12 |
0,12 |
|
1500 |
8,49 |
90 |
0,59 |
0,47 |
0,41 |
0,37 |
0,34 |
0,32 |
0,29 |
0,27 |
0,26 |
0,24 |
0,23 |
0,22 |
0,22 |
0,21 |
0,20 |
|
1500 |
8,49 |
120 |
0,68 |
0,54 |
0,47 |
0,43 |
0,40 |
0,37 |
0,34 |
0,32 |
0,30 |
0,28 |
0,27 |
0,26 |
0,25 |
0,24 |
0,24 |
|
2000 |
11,32 |
30 |
0,37 |
0,30 |
0,26 |
0,24 |
0,22 |
0,21 |
0,19 |
0,17 |
0,16 |
0,16 |
0,15 |
0,14 |
0,14 |
0,13 |
0,13 |
|
2000 |
11,32 |
90 |
0,65 |
0,51 |
0,45 |
0,41 |
0,38 |
0,36 |
0,32 |
0,30 |
0,28 |
0,27 |
0,26 |
0,25 |
0,24 |
0,23 |
0,22 |
|
2000 |
11,32 |
120 |
0,75 |
0,59 |
0,52 |
0,47 |
0,44 |
0,41 |
0,37 |
0,35 |
0,33 |
0,31 |
0,30 |
0,29 |
0,28 |
0,27 |
0,26 |
|
Диаметр ПРП - 0,3 м |
|||||||||||||||||
|
100 |
0,39 |
30 |
0,16 |
0,12 |
0,11 |
0,10 |
0,09 |
0,09 |
0,08 |
0,07 |
0,07 |
0,06 |
0,06 |
0,06 |
0,06 |
0,06 |
0,05 |
|
100 |
0,39 |
90 |
0,27 |
0,21 |
0,19 |
0,17 |
0,16 |
0,15 |
0,13 |
0,13 |
0,12 |
0,11 |
0,11 |
0,10 |
0,10 |
0,10 |
0,09 |
|
100 |
0,39 |
120 |
0,31 |
0,25 |
0,22 |
0,20 |
0,18 |
0,17 |
0,16 |
0,14 |
0,14 |
0,13 |
0,12 |
0,12 |
0,11 |
0,11 |
0,11 |
|
250 |
0,98 |
30 |
0,21 |
0,17 |
0,15 |
0,13 |
0,12 |
0,12 |
0,11 |
0,10 |
0,09 |
0,09 |
0,08 |
0,08 |
0,08 |
0,08 |
0,07 |
|
250 |
0,98 |
90 |
0,37 |
0,29 |
0,25 |
0,23 |
0,21 |
0,20 |
0,18 |
0,17 |
0,16 |
0,15 |
0,15 |
0,14 |
0,13 |
0,13 |
0,13 |
|
250 |
0,98 |
120 |
0,42 |
0,34 |
0,29 |
0,27 |
0,25 |
0,23 |
0,21 |
0,20 |
0,18 |
0,18 |
0,17 |
0,16 |
0,16 |
0,15 |
0,15 |
|
500 |
1,97 |
30 |
0,27 |
0,21 |
0,18 |
0,17 |
0,16 |
0,15 |
0,13 |
0,12 |
0,12 |
0,11 |
0,11 |
0,10 |
0,10 |
0,09 |
0,09 |
|
500 |
1,97 |
90 |
0,46 |
0,37 |
0,32 |
0,29 |
0,27 |
0,25 |
0,23 |
0,21 |
0,20 |
0,19 |
0,18 |
0,18 |
0,17 |
0,16 |
0,16 |
|
500 |
1,97 |
120 |
0,53 |
0,42 |
0,37 |
0,34 |
0,31 |
0,29 |
0,27 |
0,25 |
0,23 |
0,22 |
0,21 |
0,20 |
0,20 |
0,19 |
0,18 |
|
750 |
2,95 |
30 |
0,30 |
0,24 |
0,21 |
0,19 |
0,18 |
0,17 |
0,15 |
0,14 |
0,13 |
0,13 |
0,12 |
0,12 |
0,11 |
0,11 |
0,11 |
|
750 |
2,95 |
90 |
0,53 |
0,42 |
0,37 |
0,33 |
0,31 |
0,29 |
0,26 |
0,24 |
0,23 |
0,22 |
0,21 |
0,20 |
0,19 |
0,19 |
0,18 |
|
750 |
2,95 |
120 |
0,61 |
0,48 |
0,42 |
0,38 |
0,36 |
0,34 |
0,30 |
0,28 |
0,27 |
0,25 |
0,24 |
0,23 |
0,22 |
0,22 |
0,21 |
|
1000 |
3,93 |
30 |
0,34 |
0,27 |
0,23 |
0,21 |
0,20 |
0,18 |
0,17 |
0,16 |
0,15 |
0,14 |
0,13 |
0,13 |
0,12 |
0,12 |
0,12 |
|
1000 |
3,93 |
90 |
0,58 |
0,46 |
0,40 |
0,37 |
0,34 |
0,32 |
0,29 |
0,27 |
0,25 |
0,24 |
0,23 |
0,22 |
0,21 |
0,21 |
0,20 |
|
1000 |
3,93 |
120 |
0,67 |
0,53 |
0,47 |
0,42 |
0,39 |
0,37 |
0,34 |
0,31 |
0,29 |
0,28 |
0,27 |
0,26 |
0,25 |
0,24 |
0,23 |
|
1250 |
4,91 |
30 |
0,36 |
0,29 |
0,25 |
0,23 |
0,21 |
0,20 |
0,18 |
0,17 |
0,16 |
0,15 |
0,14 |
0,14 |
0,13 |
0,13 |
0,13 |
|
1250 |
4,91 |
90 |
0,63 |
0,50 |
0,43 |
0,39 |
0,37 |
0,34 |
0,31 |
0,29 |
0,27 |
0,26 |
0,25 |
0,24 |
0,23 |
0,22 |
0,22 |
|
1250 |
4,91 |
120 |
0,72 |
0,57 |
0,50 |
0,46 |
0,42 |
0,40 |
0,36 |
0,34 |
0,32 |
0,30 |
0,29 |
0,28 |
0,27 |
0,26 |
0,25 |
|
1500 |
5,90 |
30 |
0,38 |
0,30 |
0,27 |
0,24 |
0,22 |
0,21 |
0,19 |
0,18 |
0,17 |
0,16 |
0,15 |
0,15 |
0,14 |
0,14 |
0,13 |
|
1500 |
5,90 |
90 |
0,66 |
0,53 |
0,46 |
0,42 |
0,39 |
0,37 |
0,33 |
0,31 |
0,29 |
0,28 |
0,26 |
0,25 |
0,24 |
0,24 |
0,23 |
|
1500 |
5,90 |
120 |
0,77 |
0,61 |
0,53 |
0,48 |
0,45 |
0,42 |
0,38 |
0,36 |
0,34 |
0,32 |
0,30 |
0,29 |
0,28 |
0,27 |
0,27 |
|
2000 |
7,86 |
30 |
0,42 |
0,34 |
0,29 |
0,27 |
0,25 |
0,23 |
0,21 |
0,20 |
0,18 |
0,18 |
0,17 |
0,16 |
0,16 |
0,15 |
0,15 |
|
2000 |
7,86 |
90 |
0,73 |
0,58 |
0,51 |
0,46 |
0,43 |
0,40 |
0,37 |
0,34 |
0,32 |
0,30 |
0,29 |
0,28 |
0,27 |
0,26 |
0,25 |
|
2000 |
7,86 |
120 |
0,84 |
0,67 |
0,59 |
0,53 |
0,49 |
0,47 |
0,42 |
0,39 |
0,37 |
0,35 |
0,34 |
0,32 |
0,31 |
0,30 |
0,29 |
|
2500 |
9,83 |
30 |
0,46 |
0,36 |
0,32 |
0,29 |
0,27 |
0,25 |
0,23 |
0,21 |
0,20 |
0,19 |
0,18 |
0,17 |
0,17 |
0,16 |
0,16 |
|
2500 |
9,83 |
90 |
0,79 |
0,63 |
0,55 |
0,50 |
0,46 |
0,43 |
0,39 |
0,37 |
0,34 |
0,33 |
0,31 |
0,30 |
0,29 |
0,28 |
0,27 |
|
2500 |
9,83 |
120 |
0,91 |
0,72 |
0,63 |
0,57 |
0,53 |
0,50 |
0,46 |
0,42 |
0,40 |
0,38 |
0,36 |
0,35 |
0,34 |
0,32 |
0,32 |
|
3000 |
11,80 |
30 |
0,48 |
0,38 |
0,34 |
0,30 |
0,28 |
0,27 |
0,241 |
0,22 |
0,21 |
0,20 |
0,19 |
0,18 |
0,18 |
0,17 |
0,17 |
|
3000 |
11,80 |
90 |
0,84 |
0,66 |
0,58 |
0,53 |
0,49 |
0,46 |
0,42 |
0,39 |
0,37 |
0,35 |
0,33 |
0,32 |
0,31 |
0,30 |
0,29 |
|
3000 |
11,80 |
120 |
0,97 |
0,77 |
0,67 |
0,61 |
0,57 |
0,53 |
0,48 |
0,45 |
0,42 |
0,40 |
0,38 |
0,37 |
0,36 |
0,35 |
0,34 |
|
Диаметр ПРП - 0,4 м |
|||||||||||||||||
|
100 |
0,22 |
30 |
0,19 |
0,15 |
0,13 |
0,12 |
0,11 |
0,10 |
0,09 |
0,09 |
0,08 |
0,08 |
0,07 |
0,07 |
0,07 |
0,07 |
0,07 |
|
100 |
0,22 |
90 |
0,33 |
0,26 |
0,23 |
0,21 |
0,19 |
0,18 |
0,16 |
0,15 |
0,14 |
0,14 |
0,13 |
0,12 |
0,12 |
0,12 |
0,11 |
|
100 |
0,22 |
120 |
0,38 |
0,30 |
0,26 |
0,24 |
0,22 |
0,21 |
0,19 |
0,18 |
0,16 |
0,16 |
0,15 |
0,14 |
0,14 |
0,13 |
0,13 |
|
250 |
0,55 |
30 |
0,26 |
0,20 |
0,18 |
0,16 |
0,15 |
0,14 |
0,13 |
0,12 |
0,11 |
0,11 |
0,10 |
0,10 |
0,09 |
0,09 |
0,09 |
|
250 |
0,55 |
90 |
0,44 |
0,35 |
0,31 |
0,28 |
0,26 |
0,24 |
0,22 |
0,21 |
0,19 |
0,18 |
0,18 |
0,17 |
0,16 |
0,16 |
0,15 |
|
250 |
0,55 |
120 |
0,51 |
0,41 |
0,35 |
0,32 |
0,30 |
0,28 |
0,26 |
0,24 |
0,22 |
0,21 |
0,20 |
0,20 |
0,19 |
0,18 |
0,18 |
|
500 |
1,11 |
30 |
0,32 |
0,26 |
0,22 |
0,20 |
0,19 |
0,18 |
0,16 |
0,15 |
0,14 |
0,13 |
0,13 |
0,12 |
0,12 |
0,12 |
0,11 |
|
500 |
1,11 |
90 |
0,56 |
0,44 |
0,39 |
0,35 |
0,33 |
0,31 |
0,28 |
0,26 |
0,24 |
0,23 |
0,22 |
0,21 |
0,21 |
0,20 |
0,19 |
|
500 |
1,11 |
120 |
0,64 |
0,51 |
0,45 |
0,41 |
0,38 |
0,35 |
0,32 |
0,30 |
0,28 |
0,27 |
0,26 |
0,25 |
0,24 |
0,23 |
0,22 |
|
750 |
1,66 |
30 |
0,37 |
0,29 |
0,26 |
0,23 |
0,22 |
0,20 |
0,18 |
0,17 |
0,16 |
0,15 |
0,15 |
0,14 |
0,14 |
0,13 |
0,13 |
|
750 |
1,66 |
90 |
0,64 |
0,51 |
0,44 |
0,40 |
0,37 |
0,35 |
0,32 |
0,30 |
0,28 |
0,27 |
0,25 |
0,24 |
0,24 |
0,23 |
0,22 |
|
750 |
1,66 |
120 |
0,74 |
0,59 |
0,51 |
0,47 |
0,43 |
0,41 |
0,37 |
0,34 |
0,32 |
0,31 |
0,29 |
0,28 |
0,27 |
0,26 |
0,26 |
|
1000 |
2,21 |
30 |
0,41 |
0,32 |
0,28 |
0,26 |
0,24 |
0,22 |
0,20 |
0,19 |
0,18 |
0,17 |
0,16 |
0,16 |
0,15 |
0,14 |
0,14 |
|
1000 |
2,21 |
90 |
0,70 |
0,56 |
0,49 |
0,44 |
0,41 |
0,39 |
0,35 |
0,33 |
0,31 |
0,29 |
0,28 |
0,27 |
0,26 |
0,25 |
0,24 |
|
1000 |
2,21 |
120 |
0,81 |
0,64 |
0,56 |
0,51 |
0,48 |
0,45 |
0,41 |
0,38 |
0,35 |
0,34 |
0,32 |
0,31 |
0,30 |
0,29 |
0,28 |
|
1250 |
2,76 |
30 |
0,44 |
0,35 |
0,30 |
0,28 |
0,26 |
0,24 |
0,22 |
0,20 |
0,19 |
0,18 |
0,17 |
0,17 |
0,16 |
0,16 |
0,15 |
|
1250 |
2,76 |
90 |
0,76 |
0,60 |
0,53 |
0,48 |
0,44 |
0,42 |
0,38 |
0,35 |
0,33 |
0,31 |
0,30 |
0,29 |
0,28 |
0,27 |
0,26 |
|
1250 |
2,76 |
120 |
0,88 |
0,69 |
0,61 |
0,55 |
0,51 |
0,48 |
0,44 |
0,41 |
0,38 |
0,36 |
0,35 |
0,33 |
0,32 |
0,31 |
0,30 |
|
1500 |
3,32 |
30 |
0,47 |
0,37 |
0,32 |
0,29 |
0,27 |
0,26 |
0,23 |
0,22 |
0,20 |
0,19 |
0,18 |
0,18 |
0,17 |
0,17 |
0,16 |
|
1500 |
3,32 |
90 |
0,81 |
0,64 |
0,56 |
0,51 |
0,47 |
0,44 |
0,40 |
0,37 |
0,35 |
0,33 |
0,32 |
0,31 |
0,30 |
0,29 |
0,28 |
|
1500 |
3,32 |
120 |
0,93 |
0,74 |
0,64 |
0,59 |
0,54 |
0,51 |
0,47 |
0,43 |
0,41 |
0,39 |
0,37 |
0,35 |
0,34 |
0,33 |
0,32 |
|
2000 |
4,42 |
30 |
0,51 |
0,41 |
0,35 |
0,32 |
0,30 |
0,28 |
0,26 |
0,24 |
0,22 |
0,21 |
0,20 |
0,20 |
0,19 |
0,18 |
0,18 |
|
2000 |
4,42 |
90 |
0,89 |
0,70 |
0,61 |
0,56 |
0,52 |
0,49 |
0,44 |
0,41 |
0,39 |
0,37 |
0,35 |
0,34 |
0,33 |
0,32 |
0,31 |
|
2000 |
4,42 |
120 |
1,02 |
0,81 |
0,71 |
0,64 |
0,60 |
0,56 |
0,51 |
0,48 |
0,45 |
0,42 |
0,41 |
0,39 |
0,38 |
0,37 |
0,35 |
|
2500 |
5,53 |
30 |
0,55 |
0,44 |
0,38 |
0,35 |
0,32 |
0,30 |
0,28 |
0,26 |
0,24 |
0,23 |
0,22 |
0,21 |
0,20 |
0,20 |
0,19 |
|
2500 |
5,53 |
90 |
0,95 |
0,76 |
0,66 |
0,60 |
0,56 |
0,53 |
0,48 |
0,44 |
0,42 |
0,40 |
0,38 |
0,36 |
0,35 |
0,34 |
0,33 |
|
2500 |
5,53 |
120 |
1,10 |
0,88 |
0,76 |
0,69 |
0,64 |
0,61 |
0,55 |
0,51 |
0,48 |
0,46 |
0,44 |
0,42 |
0,41 |
0,39 |
0,38 |
|
3000 |
6,63 |
30 |
0,59 |
0,47 |
0,41 |
0,37 |
0,34 |
0,32 |
0,29 |
0,27 |
0,26 |
0,24 |
0,23 |
0,22 |
0,22 |
0,21 |
0,20 |
|
3000 |
6,63 |
90 |
1,01 |
0,81 |
0,70 |
0,64 |
0,59 |
0,56 |
0,51 |
0,47 |
0,44 |
0,42 |
0,40 |
0,39 |
0,37 |
0,36 |
0,35 |
|
3000 |
6,63 |
120 |
1,17 |
0,93 |
0,81 |
0,74 |
0,69 |
0,64 |
0,59 |
0,54 |
0,51 |
0,49 |
0,47 |
0,45 |
0,43 |
0,42 |
0,41 |
|
3500 |
7,74 |
30 |
0,62 |
0,49 |
0,43 |
0,39 |
0,36 |
0,34 |
0,31 |
0,29 |
0,27 |
0,26 |
0,24 |
0,24 |
0,23 |
0,22 |
0,21 |
|
3500 |
7,74 |
90 |
1,07 |
0,85 |
0,74 |
0,67 |
0,62 |
0,59 |
0,53 |
0,50 |
0,47 |
0,44 |
0,42 |
0,41 |
0,39 |
0,38 |
0,37 |
|
3500 |
7,74 |
120 |
1,23 |
0,98 |
0,86 |
0,78 |
0,72 |
0,68 |
0,62 |
0,57 |
0,54 |
0,51 |
0,49 |
0,47 |
0,45 |
0,44 |
0,43 |
|
4000 |
8,85 |
30 |
0,64 |
0,51 |
0,45 |
0,41 |
0,38 |
0,35 |
0,32 |
0,30 |
0,28 |
0,27 |
0,26 |
0,25 |
0,24 |
0,23 |
0,22 |
|
4000 |
8,85 |
90 |
1,12 |
0,89 |
0,77 |
0,70 |
0,65 |
0,61 |
0,56 |
0,52 |
0,49 |
0,46 |
0,44 |
0,43 |
0,41 |
0,40 |
0,39 |
|
4000 |
8,85 |
120 |
1,29 |
1,02 |
0,89 |
0,81 |
0,75 |
0,71 |
0,64 |
0,60 |
0,56 |
0,54 |
0,51 |
0,49 |
0,48 |
0,46 |
0,45 |
|
4500 |
9,95 |
30 |
0,67 |
0,53 |
0,47 |
0,42 |
0,39 |
0,37 |
0,34 |
0,31 |
0,29 |
0,28 |
0,27 |
0,26 |
0,25 |
0,24 |
0,23 |
|
4500 |
9,95 |
90 |
1,16 |
0,92 |
0,81 |
0,73 |
0,68 |
0,64 |
0,58 |
0,54 |
0,51 |
0,48 |
0,46 |
0,44 |
0,43 |
0,41 |
0,40 |
|
4500 |
9,95 |
120 |
1,34 |
1,06 |
0,93 |
0,84 |
0,78 |
0,74 |
0,67 |
0,62 |
0,59 |
0,56 |
0,53 |
0,51 |
0,49 |
0,48 |
0,47 |
|
5000 |
11,06 |
30 |
0,69 |
0,55 |
0,48 |
0,44 |
0,41 |
0,38 |
0,35 |
0,32 |
0,30 |
0,29 |
0,28 |
0,27 |
0,26 |
0,25 |
0,24 |
|
5000 |
11,06 |
90 |
1,20 |
0,95 |
0,83 |
0,76 |
0,70 |
0,66 |
0,60 |
0,56 |
0,53 |
0,50 |
0,48 |
0,46 |
0,44 |
0,43 |
0,42 |
|
5000 |
11,06 |
120 |
1,39 |
1,10 |
0,96 |
0,88 |
0,81 |
0,76 |
0,69 |
0,64 |
0,61 |
0,58 |
0,55 |
0,53 |
0,51 |
0,50 |
0,48 |
|
Диаметр ПРП - 0,5 м |
|||||||||||||||||
|
250 |
0,35 |
30 |
0,30 |
0,24 |
0,21 |
0,19 |
0,17 |
0,16 |
0,15 |
0,14 |
0,13 |
0,12 |
0,12 |
0,11 |
0,11 |
0,11 |
0,10 |
|
250 |
0,35 |
90 |
0,51 |
0,41 |
0,36 |
0,32 |
0,30 |
0,28 |
0,26 |
0,24 |
0,22 |
0,21 |
0,20 |
0,20 |
0,19 |
0,18 |
0,18 |
|
250 |
0,35 |
120 |
0,59 |
0,47 |
0,41 |
0,37 |
0,35 |
0,33 |
0,30 |
0,28 |
0,26 |
0,25 |
0,24 |
0,23 |
0,22 |
0,21 |
0,21 |
|
500 |
0,71 |
30 |
0,37 |
0,30 |
0,26 |
0,24 |
0,22 |
0,21 |
0,19 |
0,17 |
0,16 |
0,16 |
0,15 |
0,14 |
0,14 |
0,13 |
0,13 |
|
500 |
0,71 |
90 |
0,65 |
0,51 |
0,45 |
0,41 |
0,38 |
0,36 |
0,32 |
0,30 |
0,28 |
0,27 |
0,26 |
0,25 |
0,24 |
0,23 |
0,22 |
|
500 |
0,71 |
120 |
0,75 |
0,59 |
0,52 |
0,47 |
0,44 |
0,41 |
0,37 |
0,35 |
0,33 |
0,31 |
0,30 |
0,29 |
0,28 |
0,27 |
0,26 |
|
750 |
1,06 |
30 |
0,43 |
0,34 |
0,30 |
0,27 |
0,25 |
0,24 |
0,21 |
0,20 |
0,19 |
0,18 |
0,17 |
0,16 |
0,16 |
0,15 |
0,15 |
|
750 |
1,06 |
90 |
0,74 |
0,59 |
0,51 |
0,47 |
0,43 |
0,41 |
0,37 |
0,34 |
0,32 |
0,31 |
0,29 |
0,28 |
0,27 |
0,26 |
0,26 |
|
750 |
1,06 |
120 |
0,86 |
0,68 |
0,59 |
0,54 |
0,50 |
0,47 |
0,43 |
0,40 |
0,37 |
0,36 |
0,34 |
0,33 |
0,32 |
0,31 |
0,30 |
|
1000 |
1,42 |
30 |
0,47 |
0,37 |
0,33 |
0,30 |
0,28 |
0,26 |
0,24 |
0,22 |
0,21 |
0,20 |
0,19 |
0,18 |
0,17 |
0,17 |
0,16 |
|
1000 |
1,42 |
90 |
0,82 |
0,65 |
0,57 |
0,51 |
0,48 |
0,45 |
0,41 |
0,38 |
0,36 |
0,34 |
0,32 |
0,31 |
0,30 |
0,29 |
0,28 |
|
1000 |
1,42 |
120 |
0,94 |
0,75 |
0,65 |
0,59 |
0,55 |
0,52 |
0,47 |
0,44 |
0,41 |
0,39 |
0,37 |
0,36 |
0,35 |
0,34 |
0,33 |
|
1250 |
1,77 |
30 |
0,51 |
0,40 |
0,35 |
0,32 |
0,30 |
0,28 |
0,25 |
0,24 |
0,22 |
0,21 |
0,20 |
0,19 |
0,19 |
0,18 |
0,18 |
|
1250 |
1,77 |
90 |
0,88 |
0,70 |
0,61 |
0,55 |
0,51 |
0,48 |
0,44 |
0,41 |
0,38 |
0,36 |
0,35 |
0,34 |
0,32 |
0,31 |
0,30 |
|
1250 |
1,77 |
120 |
1,02 |
0,81 |
0,70 |
0,64 |
0,59 |
0,56 |
0,51 |
0,47 |
0,44 |
0,42 |
0,40 |
0,39 |
0,37 |
0,36 |
0,35 |
|
1500 |
2,12 |
30 |
0,54 |
0,43 |
0,37 |
0,34 |
0,32 |
0,30 |
0,27 |
0,25 |
0,24 |
0,22 |
0,21 |
0,21 |
0,20 |
0,19 |
0,19 |
|
1500 |
2,12 |
90 |
0,93 |
0,74 |
0,65 |
0,59 |
0,55 |
0,51 |
0,47 |
0,43 |
0,41 |
0,39 |
0,37 |
0,36 |
0,34 |
0,33 |
0,32 |
|
1500 |
2,12 |
120 |
1,08 |
0,86 |
0,75 |
0,68 |
0,63 |
0,59 |
0,54 |
0,50 |
0,47 |
0,45 |
0,43 |
0,41 |
0,40 |
0,39 |
0,37 |
|
2000 |
2,83 |
30 |
0,59 |
0,47 |
0,41 |
0,37 |
0,35 |
0,33 |
0,30 |
0,28 |
0,26 |
0,25 |
0,24 |
0,23 |
0,22 |
0,21 |
0,21 |
|
2000 |
2,83 |
90 |
1,03 |
0,82 |
0,71 |
0,65 |
0,60 |
0,57 |
0,51 |
0,48 |
0,45 |
0,43 |
0,41 |
0,39 |
0,38 |
0,37 |
0,36 |
|
2000 |
2,83 |
120 |
1,19 |
0,94 |
0,82 |
0,75 |
0,69 |
0,65 |
0,59 |
0,55 |
0,52 |
0,49 |
0,47 |
0,45 |
0,44 |
0,42 |
0,41 |
|
2500 |
3,54 |
30 |
0,64 |
0,51 |
0,44 |
0,40 |
0,37 |
0,35 |
0,32 |
0,30 |
0,28 |
0,27 |
0,25 |
0,24 |
0,24 |
0,23 |
0,22 |
|
2500 |
3,54 |
90 |
1,11 |
0,88 |
0,77 |
0,70 |
0,65 |
0,61 |
0,55 |
0,51 |
0,48 |
0,46 |
0,44 |
0,42 |
0,41 |
0,40 |
0,38 |
|
2500 |
3,54 |
120 |
1,28 |
1,02 |
0,89 |
0,81 |
0,75 |
0,70 |
0,64 |
0,59 |
0,56 |
0,53 |
0,51 |
0,49 |
0,47 |
0,46 |
0,44 |
|
3000 |
4,25 |
30 |
0,68 |
0,54 |
0,47 |
0,43 |
0,40 |
0,37 |
0,34 |
0,32 |
0,30 |
0,28 |
0,27 |
0,26 |
0,25 |
0,24 |
0,24 |
|
3000 |
4,25 |
90 |
1,18 |
0,93 |
0,82 |
0,74 |
0,69 |
0,65 |
0,59 |
0,55 |
0,51 |
0,49 |
0,47 |
0,45 |
0,43 |
0,42 |
0,41 |
|
3000 |
4,25 |
120 |
1,36 |
1,08 |
0,94 |
0,86 |
0,80 |
0,75 |
0,68 |
0,63 |
0,59 |
0,56 |
0,54 |
0,52 |
0,50 |
0,49 |
0,47 |
|
3500 |
4,95 |
30 |
0,72 |
0,57 |
0,50 |
0,45 |
0,42 |
0,39 |
0,36 |
0,33 |
0,31 |
0,30 |
0,28 |
0,27 |
0,26 |
0,26 |
0,25 |
|
3500 |
4,95 |
90 |
1,24 |
0,98 |
0,86 |
0,78 |
0,72 |
0,68 |
0,62 |
0,58 |
0,54 |
0,51 |
0,49 |
0,47 |
0,46 |
0,44 |
0,43 |
|
3500 |
4,95 |
120 |
1,43 |
1,14 |
0,99 |
0,90 |
0,84 |
0,79 |
0,72 |
0,66 |
0,63 |
0,59 |
0,57 |
0,55 |
0,53 |
0,51 |
0,50 |
|
4000 |
5,66 |
30 |
0,75 |
0,59 |
0,52 |
0,47 |
0,44 |
0,41 |
0,37 |
0,35 |
0,33 |
0,31 |
0,30 |
0,29 |
0,28 |
0,27 |
0,26 |
|
4000 |
5,66 |
90 |
1,30 |
1,03 |
0,90 |
0,82 |
0,76 |
0,71 |
0,65 |
0,60 |
0,57 |
0,54 |
0,51 |
0,49 |
0,48 |
0,46 |
0,45 |
|
4000 |
5,66 |
120 |
1,50 |
1,19 |
1,04 |
0,94 |
0,88 |
0,82 |
0,75 |
0,69 |
0,65 |
0,62 |
0,59 |
0,57 |
0,55 |
0,53 |
0,52 |
|
4500 |
6,37 |
30 |
0,78 |
0,62 |
0,54 |
0,49 |
0,46 |
0,43 |
0,39 |
0,36 |
0,34 |
0,32 |
0,31 |
0,30 |
0,29 |
0,28 |
0,27 |
|
4500 |
6,37 |
90 |
1,35 |
1,07 |
0,93 |
0,85 |
0,79 |
0,74 |
0,67 |
0,63 |
0,59 |
0,56 |
0,53 |
0,51 |
0,50 |
0,48 |
0,47 |
|
4500 |
6,37 |
120 |
1,56 |
1,24 |
1,08 |
0,98 |
0,91 |
0,86 |
0,78 |
0,72 |
0,68 |
0,65 |
0,62 |
0,59 |
0,57 |
0,56 |
0,54 |
|
5000 |
7,08 |
30 |
0,81 |
0,64 |
0,56 |
0,51 |
0,47 |
0,44 |
0,40 |
0,37 |
0,35 |
0,33 |
0,32 |
0,31 |
0,30 |
0,29 |
0,28 |
|
5000 |
7,08 |
90 |
1,40 |
1,11 |
0,97 |
0,88 |
0,82 |
0,77 |
0,70 |
0,65 |
0,61 |
0,58 |
0,55 |
0,53 |
0,51 |
0,50 |
0,48 |
|
5000 |
7,08 |
120 |
1,61 |
1,28 |
1,12 |
1,02 |
0,94 |
0,89 |
0,81 |
0,75 |
0,70 |
0,67 |
0,64 |
0,62 |
0,59 |
0,58 |
0,56 |
|
5500 |
7,78 |
30 |
0,83 |
0,66 |
0,58 |
0,52 |
0,49 |
0,46 |
0,42 |
0,39 |
0,36 |
0,35 |
0,33 |
0,32 |
0,31 |
0,30 |
0,29 |
|
5500 |
7,78 |
90 |
1,44 |
1,14 |
1,00 |
0,91 |
0,84 |
0,79 |
0,72 |
0,67 |
0,63 |
0,60 |
0,57 |
0,55 |
0,53 |
0,51 |
0,50 |
|
5500 |
7,78 |
120 |
1,66 |
1,32 |
1,15 |
1,05 |
0,97 |
0,92 |
0,83 |
0,77 |
0,73 |
0,69 |
0,66 |
0,63 |
0,61 |
0,59 |
0,58 |
|
6000 |
8,49 |
30 |
0,86 |
0,68 |
0,59 |
0,54 |
0,50 |
0,47 |
0,43 |
0,40 |
0,37 |
0,36 |
0,34 |
0,33 |
0,32 |
0,31 |
0,30 |
|
6000 |
8,49 |
90 |
1,48 |
1,18 |
1,03 |
0,93 |
0,87 |
0,82 |
0,74 |
0,69 |
0,65 |
0,62 |
0,59 |
0,57 |
0,55 |
0,53 |
0,51 |
|
6000 |
8,49 |
120 |
1,71 |
1,36 |
1,19 |
1,08 |
1,00 |
0,94 |
0,86 |
0,80 |
0,75 |
0,71 |
0,68 |
0,65 |
0,63 |
0,61 |
0,59 |
|
Диаметр ПРП - 0,6 м |
|||||||||||||||||
|
250 |
0,25 |
30 |
0,34 |
0,27 |
0,23 |
0,21 |
0,20 |
0,18 |
0,17 |
0,16 |
0,15 |
0,14 |
0,13 |
0,13 |
0,12 |
0,12 |
0,12 |
|
250 |
0,25 |
90 |
0,58 |
0,46 |
0,40 |
0,37 |
0,34 |
0,32 |
0,29 |
0,27 |
0,25 |
0,24 |
0,23 |
0,22 |
0,21 |
0,21 |
0,20 |
|
250 |
0,25 |
120 |
0,67 |
0,53 |
0,47 |
0,42 |
0,39 |
0,37 |
0,34 |
0,31 |
0,29 |
0,28 |
0,27 |
0,26 |
0,25 |
0,24 |
0,23 |
|
500 |
0,49 |
30 |
0,42 |
0,34 |
0,29 |
0,27 |
0,25 |
0,23 |
0,21 |
0,20 |
0,18 |
0,18 |
0,17 |
0,16 |
0,16 |
0,15 |
0,15 |
|
500 |
0,49 |
90 |
0,73 |
0,58 |
0,51 |
0,46 |
0,43 |
0,40 |
0,37 |
0,34 |
0,32 |
0,30 |
0,29 |
0,28 |
0,27 |
0,26 |
0,25 |
|
500 |
0,49 |
120 |
0,84 |
0,67 |
0,59 |
0,53 |
0,49 |
0,47 |
0,42 |
0,39 |
0,37 |
0,35 |
0,34 |
0,32 |
0,31 |
0,30 |
0,29 |
|
750 |
0,74 |
30 |
0,48 |
0,38 |
0,34 |
0,30 |
0,28 |
0,27 |
0,24 |
0,22 |
0,21 |
0,20 |
0,19 |
0,18 |
0,18 |
0,17 |
0,17 |
|
750 |
0,74 |
90 |
0,84 |
0,66 |
0,58 |
0,53 |
0,49 |
0,46 |
0,42 |
0,39 |
0,37 |
0,35 |
0,33 |
0,32 |
0,31 |
0,30 |
0,29 |
|
750 |
0,74 |
120 |
0,97 |
0,77 |
0,67 |
0,61 |
0,57 |
0,53 |
0,48 |
0,45 |
0,42 |
0,40 |
0,38 |
0,37 |
0,36 |
0,35 |
0,34 |
|
1000 |
0,98 |
30 |
0,53 |
0,42 |
0,37 |
0,34 |
0,31 |
0,29 |
0,27 |
0,25 |
0,23 |
0,22 |
0,21 |
0,20 |
0,20 |
0,19 |
0,18 |
|
1000 |
0,98 |
90 |
0,92 |
0,73 |
0,64 |
0,58 |
0,54 |
0,51 |
0,46 |
0,43 |
0,40 |
0,38 |
0,37 |
0,35 |
0,34 |
0,33 |
0,32 |
|
1000 |
0,98 |
120 |
1,06 |
0,84 |
0,74 |
0,67 |
0,62 |
0,59 |
0,53 |
0,49 |
0,47 |
0,44 |
0,42 |
0,41 |
0,39 |
0,38 |
0,37 |
|
1250 |
1,23 |
30 |
0,57 |
0,46 |
0,40 |
0,36 |
0,34 |
0,32 |
0,29 |
0,27 |
0,25 |
0,24 |
0,23 |
0,22 |
0,21 |
0,20 |
0,20 |
|
1250 |
1,23 |
90 |
0,99 |
0,79 |
0,69 |
0,63 |
0,58 |
0,55 |
0,50 |
0,46 |
0,43 |
0,41 |
0,39 |
0,38 |
0,37 |
0,35 |
0,34 |
|
1250 |
1,23 |
120 |
1,15 |
0,91 |
0,80 |
0,72 |
0,67 |
0,63 |
0,57 |
0,53 |
0,50 |
0,48 |
0,46 |
0,44 |
0,42 |
0,41 |
0,40 |
|
1500 |
1,47 |
30 |
0,61 |
0,48 |
0,42 |
0,38 |
0,36 |
0,34 |
0,30 |
0,28 |
0,27 |
0,25 |
0,24 |
0,23 |
0,22 |
0,22 |
0,21 |
|
1500 |
1,47 |
90 |
1,06 |
0,84 |
0,73 |
0,66 |
0,62 |
0,58 |
0,53 |
0,49 |
0,46 |
0,44 |
0,42 |
0,40 |
0,39 |
0,38 |
0,37 |
|
1500 |
1,47 |
120 |
1,22 |
0,97 |
0,84 |
0,77 |
0,71 |
0,67 |
0,61 |
0,57 |
0,53 |
0,51 |
0,48 |
0,47 |
0,45 |
0,43 |
0,42 |
|
2000 |
1,97 |
30 |
0,67 |
0,53 |
0,47 |
0,42 |
0,39 |
0,37 |
0,34 |
0,31 |
0,29 |
0,28 |
0,27 |
0,26 |
0,25 |
0,24 |
0,23 |
|
2000 |
1,97 |
90 |
1,16 |
0,92 |
0,81 |
0,73 |
0,68 |
0,64 |
0,58 |
0,54 |
0,51 |
0,48 |
0,46 |
0,44 |
0,43 |
0,41 |
0,40 |
|
2000 |
1,97 |
120 |
1,34 |
1,06 |
0,93 |
0,84 |
0,78 |
0,74 |
0,67 |
0,62 |
0,59 |
0,56 |
0,53 |
0,51 |
0,49 |
0,48 |
0,47 |
|
2500 |
2,46 |
30 |
0,72 |
0,57 |
0,50 |
0,46 |
0,42 |
0,40 |
0,36 |
0,34 |
0,32 |
0,30 |
0,29 |
0,28 |
0,27 |
0,26 |
0,25 |
|
2500 |
2,46 |
90 |
1,25 |
0,99 |
0,87 |
0,79 |
0,73 |
0,69 |
0,63 |
0,58 |
0,55 |
0,52 |
0,50 |
0,48 |
0,46 |
0,45 |
0,43 |
|
2500 |
2,46 |
120 |
1,44 |
1,15 |
1,00 |
0,91 |
0,84 |
0,80 |
0,72 |
0,67 |
0,63 |
0,60 |
0,57 |
0,55 |
0,53 |
0,52 |
0,50 |
|
3000 |
2,95 |
30 |
0,77 |
0,61 |
0,53 |
0,48 |
0,45 |
0,42 |
0,38 |
0,36 |
0,34 |
0,32 |
0,30 |
0,29 |
0,28 |
0,27 |
0,27 |
|
3000 |
2,95 |
90 |
1,33 |
1,06 |
0,92 |
0,84 |
0,78 |
0,73 |
0,66 |
0,62 |
0,58 |
0,55 |
0,53 |
0,51 |
0,49 |
0,47 |
0,46 |
|
3000 |
2,95 |
120 |
1,54 |
1,22 |
1,06 |
0,97 |
0,90 |
0,84 |
0,77 |
0,71 |
0,67 |
0,64 |
0,61 |
0,59 |
0,57 |
0,55 |
0,53 |
|
3500 |
3,44 |
30 |
0,81 |
0,64 |
0,56 |
0,51 |
0,47 |
0,44 |
0,40 |
0,38 |
0,35 |
0,34 |
0,32 |
0,31 |
0,30 |
0,29 |
0,28 |
|
3500 |
3,44 |
90 |
1,40 |
1,11 |
0,97 |
0,88 |
0,82 |
0,77 |
0,70 |
0,65 |
0,61 |
0,58 |
0,56 |
0,53 |
0,52 |
0,50 |
0,49 |
|
3500 |
3,44 |
120 |
1,62 |
1,28 |
1,12 |
1,02 |
0,95 |
0,89 |
0,81 |
0,75 |
0,71 |
0,67 |
0,64 |
0,62 |
0,60 |
0,58 |
0,56 |
|
4000 |
3,93 |
30 |
0,84 |
0,67 |
0,59 |
0,53 |
0,49 |
0,47 |
0,42 |
0,39 |
0,37 |
0,35 |
0,34 |
0,32 |
0,31 |
0,30 |
0,29 |
|
4000 |
3,93 |
90 |
1,46 |
1,16 |
1,01 |
0,92 |
0,86 |
0,81 |
0,73 |
0,68 |
0,64 |
0,61 |
0,58 |
0,56 |
0,54 |
0,52 |
0,51 |
|
4000 |
3,93 |
120 |
1,69 |
1,34 |
1,17 |
1,06 |
0,99 |
0,93 |
0,84 |
0,78 |
0,74 |
0,70 |
0,67 |
0,64 |
0,62 |
0,60 |
0,59 |
|
4500 |
4,42 |
30 |
0,88 |
0,70 |
0,61 |
0,55 |
0,51 |
0,48 |
0,44 |
0,41 |
0,38 |
0,36 |
0,35 |
0,34 |
0,32 |
0,31 |
0,30 |
|
4500 |
4,42 |
90 |
1,52 |
1,21 |
1,06 |
0,96 |
0,89 |
0,84 |
0,76 |
0,71 |
0,66 |
0,63 |
0,60 |
0,58 |
0,56 |
0,54 |
0,53 |
|
4500 |
4,42 |
120 |
1,76 |
1,40 |
1,22 |
1,11 |
1,03 |
0,97 |
0,88 |
0,82 |
0,77 |
0,73 |
0,70 |
0,67 |
0,65 |
0,63 |
0,61 |
|
5000 |
4,91 |
30 |
0,91 |
0,72 |
0,63 |
0,57 |
0,53 |
0,50 |
0,46 |
0,42 |
0,40 |
0,38 |
0,36 |
0,35 |
0,34 |
0,32 |
0,32 |
|
5000 |
4,91 |
90 |
1,58 |
1,25 |
1,09 |
0,99 |
0,92 |
0,87 |
0,79 |
0,73 |
0,69 |
0,65 |
0,63 |
0,60 |
0,58 |
0,56 |
0,55 |
|
5000 |
4,91 |
120 |
1,82 |
1,44 |
1,26 |
1,15 |
1,06 |
1,00 |
0,91 |
0,84 |
0,80 |
0,76 |
0,72 |
0,69 |
0,67 |
0,65 |
0,63 |
|
5500 |
5,41 |
30 |
0,94 |
0,75 |
0,65 |
0,59 |
0,55 |
0,52 |
0,47 |
0,44 |
0,41 |
0,39 |
0,37 |
0,36 |
0,35 |
0,34 |
0,33 |
|
5500 |
5,41 |
90 |
1,63 |
1,29 |
1,13 |
1,03 |
0,95 |
0,90 |
0,81 |
0,76 |
0,71 |
0,68 |
0,65 |
0,62 |
0,60 |
0,58 |
0,56 |
|
5500 |
5,41 |
120 |
1,88 |
1,49 |
1,30 |
1,18 |
1,10 |
1,03 |
0,94 |
0,87 |
0,82 |
0,78 |
0,75 |
0,72 |
0,69 |
0,67 |
0,65 |
|
6000 |
5,90 |
30 |
0,97 |
0,77 |
0,67 |
0,61 |
0,57 |
0,53 |
0,48 |
0,45 |
0,42 |
0,40 |
0,38 |
0,37 |
0,36 |
0,35 |
0,34 |
|
6000 |
5,90 |
90 |
1,68 |
1,33 |
1,16 |
1,06 |
0,98 |
0,92 |
0,84 |
0,78 |
0,73 |
0,70 |
0,66 |
0,64 |
0,62 |
0,60 |
0,58 |
|
6000 |
5,90 |
120 |
1,93 |
1,54 |
1,34 |
1,22 |
1,13 |
1,06 |
0,97 |
0,90 |
0,84 |
0,80 |
0,77 |
0,74 |
0,71 |
0,69 |
0,67 |
|
6500 |
6,39 |
30 |
0,99 |
0,79 |
0,69 |
0,63 |
0,58 |
0,55 |
0,50 |
0,46 |
0,43 |
0,41 |
0,39 |
0,38 |
0,37 |
0,35 |
0,34 |
|
6500 |
6,39 |
90 |
1,72 |
1,37 |
1,19 |
1,08 |
1,01 |
0,95 |
0,86 |
0,80 |
0,75 |
0,71 |
0,68 |
0,66 |
0,63 |
0,61 |
0,60 |
|
6500 |
6,39 |
120 |
1,99 |
1,58 |
1,38 |
1,25 |
1,16 |
1,09 |
0,99 |
0,92 |
0,87 |
0,82 |
0,79 |
0,76 |
0,73 |
0,71 |
0,69 |
|
7000 |
6,88 |
30 |
1,02 |
0,81 |
0,71 |
0,64 |
0,60 |
0,56 |
0,51 |
0,47 |
0,44 |
0,42 |
0,40 |
0,39 |
0,38 |
0,36 |
0,35 |
|
7000 |
6,88 |
90 |
1,76 |
1,40 |
1,22 |
1,11 |
1,03 |
0,97 |
0,88 |
0,82 |
0,77 |
0,73 |
0,70 |
0,67 |
0,65 |
0,63 |
0,61 |
|
7000 |
6,88 |
120 |
2,04 |
1,62 |
1,41 |
1,28 |
1,19 |
1,12 |
1,02 |
0,95 |
0,89 |
0,84 |
0,81 |
0,78 |
0,75 |
0,73 |
0,71 |
|
Диаметр ПРП - 0,7 м |
|||||||||||||||||
|
250 |
0,18 |
30 |
0,37 |
0,29 |
0,26 |
0,23 |
0,22 |
0,20 |
0,19 |
0,17 |
0,16 |
0,15 |
0,15 |
0,14 |
0,14 |
0,13 |
0,13 |
|
250 |
0,18 |
90 |
0,64 |
0,51 |
0,45 |
0,41 |
0,38 |
0,35 |
0,32 |
0,30 |
0,28 |
0,27 |
0,26 |
0,25 |
0,24 |
0,23 |
0,22 |
|
250 |
0,18 |
120 |
0,74 |
0,59 |
0,52 |
0,47 |
0,43 |
0,41 |
0,37 |
0,34 |
0,32 |
0,31 |
0,29 |
0,28 |
0,27 |
0,27 |
0,26 |
|
500 |
0,36 |
30 |
0,47 |
0,37 |
0,32 |
0,29 |
0,27 |
0,26 |
0,23 |
0,22 |
0,20 |
0,19 |
0,19 |
0,18 |
0,17 |
0,17 |
0,16 |
|
500 |
0,36 |
90 |
0,81 |
0,64 |
0,56 |
0,51 |
0,47 |
0,45 |
0,41 |
0,38 |
0,35 |
0,34 |
0,32 |
0,31 |
0,30 |
0,29 |
0,28 |
|
500 |
0,36 |
120 |
0,94 |
0,74 |
0,65 |
0,59 |
0,55 |
0,52 |
0,47 |
0,43 |
0,41 |
0,39 |
0,37 |
0,36 |
0,34 |
0,33 |
0,32 |
|
750 |
0,54 |
30 |
0,54 |
0,43 |
0,37 |
0,34 |
0,31 |
0,29 |
0,27 |
0,25 |
0,23 |
0,22 |
0,21 |
0,20 |
0,20 |
0,19 |
0,19 |
|
750 |
0,54 |
90 |
0,93 |
0,74 |
0,64 |
0,58 |
0,54 |
0,51 |
0,46 |
0,43 |
0,41 |
0,39 |
0,37 |
0,35 |
0,34 |
0,33 |
0,32 |
|
750 |
0,54 |
120 |
1,07 |
0,85 |
0,74 |
0,68 |
0,63 |
0,59 |
0,54 |
0,50 |
0,47 |
0,44 |
0,43 |
0,41 |
0,39 |
0,38 |
0,37 |
|
1000 |
0,72 |
30 |
0,59 |
0,47 |
0,41 |
0,37 |
0,34 |
0,32 |
0,29 |
0,27 |
0,26 |
0,24 |
0,23 |
0,23 |
0,22 |
0,21 |
0,20 |
|
1000 |
0,72 |
90 |
1,02 |
0,81 |
0,71 |
0,64 |
0,60 |
0,56 |
0,51 |
0,47 |
0,45 |
0,42 |
0,41 |
0,39 |
0,38 |
0,36 |
0,35 |
|
1000 |
0,72 |
120 |
1,18 |
0,94 |
0,82 |
0,74 |
0,69 |
0,65 |
0,59 |
0,55 |
0,52 |
0,49 |
0,47 |
0,45 |
0,43 |
0,42 |
0,41 |
|
1250 |
0,90 |
30 |
0,64 |
0,50 |
0,44 |
0,40 |
0,37 |
0,35 |
0,32 |
0,29 |
0,28 |
0,26 |
0,25 |
0,24 |
0,23 |
0,23 |
0,22 |
|
1250 |
0,90 |
90 |
1,10 |
0,87 |
0,76 |
0,69 |
0,64 |
0,61 |
0,55 |
0,51 |
0,48 |
0,46 |
0,44 |
0,42 |
0,41 |
0,39 |
0,38 |
|
1250 |
0,90 |
120 |
1,27 |
1,01 |
0,88 |
0,80 |
0,74 |
0,70 |
0,64 |
0,59 |
0,56 |
0,53 |
0,50 |
0,48 |
0,47 |
0,45 |
0,44 |
|
1500 |
1,08 |
30 |
0,68 |
0,54 |
0,47 |
0,43 |
0,39 |
0,37 |
0,34 |
0,31 |
0,29 |
0,28 |
0,27 |
0,26 |
0,25 |
0,24 |
0,23 |
|
1500 |
1,08 |
90 |
1,17 |
0,93 |
0,81 |
0,74 |
0,68 |
0,64 |
0,58 |
0,54 |
0,51 |
0,49 |
0,46 |
0,45 |
0,43 |
0,42 |
0,41 |
|
1500 |
1,08 |
120 |
1,35 |
1,07 |
0,94 |
0,85 |
0,79 |
0,74 |
0,68 |
0,63 |
0,59 |
0,56 |
0,54 |
0,52 |
0,50 |
0,48 |
0,47 |
|
2000 |
1,44 |
30 |
0,74 |
0,59 |
0,52 |
0,47 |
0,43 |
0,41 |
0,37 |
0,34 |
0,32 |
0,31 |
0,29 |
0,28 |
0,27 |
0,27 |
0,26 |
|
2000 |
1,44 |
90 |
1,29 |
1,02 |
0,89 |
0,81 |
0,75 |
0,71 |
0,64 |
0,60 |
0,56 |
0,53 |
0,51 |
0,49 |
0,47 |
0,46 |
0,45 |
|
2000 |
1,44 |
120 |
1,49 |
1,18 |
1,03 |
0,94 |
0,87 |
0,82 |
0,74 |
0,69 |
0,65 |
0,62 |
0,59 |
0,57 |
0,55 |
0,53 |
0,52 |
|
2500 |
1,81 |
30 |
0,80 |
0,64 |
0,56 |
0,50 |
0,47 |
0,44 |
0,40 |
0,37 |
0,35 |
0,33 |
0,32 |
0,31 |
0,29 |
0,29 |
0,28 |
|
2500 |
1,81 |
90 |
1,39 |
1,10 |
0,96 |
0,87 |
0,81 |
0,76 |
0,69 |
0,64 |
0,61 |
0,58 |
0,55 |
0,53 |
0,51 |
0,49 |
0,48 |
|
2500 |
1,81 |
120 |
1,60 |
1,27 |
1,11 |
1,01 |
0,94 |
0,88 |
0,80 |
0,74 |
0,70 |
0,66 |
0,64 |
0,61 |
0,59 |
0,57 |
0,56 |
|
3000 |
2,17 |
30 |
0,85 |
0,68 |
0,59 |
0,54 |
0,50 |
0,47 |
0,43 |
0,39 |
0,37 |
0,35 |
0,34 |
0,32 |
0,31 |
0,30 |
0,29 |
|
3000 |
2,17 |
90 |
1,47 |
1,17 |
1,02 |
0,93 |
0,86 |
0,81 |
0,74 |
0,68 |
0,64 |
0,61 |
0,58 |
0,56 |
0,54 |
0,53 |
0,51 |
|
3000 |
2,17 |
120 |
1,70 |
1,35 |
1,18 |
1,07 |
1,00 |
0,94 |
0,85 |
0,79 |
0,74 |
0,71 |
0,68 |
0,65 |
0,63 |
0,61 |
0,59 |
|
3500 |
2,53 |
30 |
0,90 |
0,71 |
0,62 |
0,56 |
0,52 |
0,49 |
0,45 |
0,42 |
0,39 |
0,37 |
0,36 |
0,34 |
0,33 |
0,32 |
0,31 |
|
3500 |
2,53 |
90 |
1,55 |
1,23 |
1,08 |
0,98 |
0,91 |
0,85 |
0,78 |
0,72 |
0,68 |
0,64 |
0,62 |
0,59 |
0,57 |
0,55 |
0,54 |
|
3500 |
2,53 |
120 |
1,79 |
1,42 |
1,24 |
1,13 |
1,05 |
0,99 |
0,90 |
0,83 |
0,78 |
0,74 |
0,71 |
0,68 |
0,66 |
0,64 |
0,62 |
|
4000 |
2,89 |
30 |
0,94 |
0,74 |
0,65 |
0,59 |
0,55 |
0,52 |
0,47 |
0,43 |
0,41 |
0,39 |
0,37 |
0,36 |
0,34 |
0,33 |
0,32 |
|
4000 |
2,89 |
90 |
1,62 |
1,29 |
1,12 |
1,02 |
0,95 |
0,89 |
0,81 |
0,75 |
0,71 |
0,67 |
0,64 |
0,62 |
0,60 |
0,58 |
0,56 |
|
4000 |
2,89 |
120 |
1,87 |
1,49 |
1,30 |
1,18 |
1,10 |
1,03 |
0,94 |
0,87 |
0,82 |
0,78 |
0,74 |
0,71 |
0,69 |
0,67 |
0,65 |
|
4500 |
3,25 |
30 |
0,97 |
0,77 |
0,68 |
0,61 |
0,57 |
0,54 |
0,49 |
0,45 |
0,43 |
0,40 |
0,39 |
0,37 |
0,36 |
0,35 |
0,34 |
|
4500 |
3,25 |
90 |
1,69 |
1,34 |
1,17 |
1,06 |
0,99 |
0,93 |
0,84 |
0,78 |
0,74 |
0,70 |
0,67 |
0,64 |
0,62 |
0,60 |
0,58 |
|
4500 |
3,25 |
120 |
1,95 |
1,55 |
1,35 |
1,23 |
1,14 |
1,07 |
0,97 |
0,90 |
0,85 |
0,81 |
0,77 |
0,74 |
0,72 |
0,70 |
0,68 |
|
5000 |
3,61 |
30 |
1,01 |
0,80 |
0,70 |
0,64 |
0,59 |
0,56 |
0,50 |
0,47 |
0,44 |
0,42 |
0,40 |
0,38 |
0,37 |
0,36 |
0,35 |
|
18504 |
3,61 |
90 |
1,75 |
1,39 |
1,21 |
1,10 |
1,02 |
0,96 |
0,87 |
0,81 |
0,76 |
0,72 |
0,69 |
0,67 |
0,64 |
0,62 |
0,61 |
|
5000 |
3,61 |
120 |
2,02 |
1,60 |
1,40 |
1,27 |
1,18 |
1,11 |
1,01 |
0,94 |
0,88 |
0,84 |
0,80 |
0,77 |
0,74 |
0,72 |
0,70 |
|
5500 |
3,97 |
30 |
1,04 |
0,83 |
0,72 |
0,66 |
0,61 |
0,57 |
0,52 |
0,48 |
0,45 |
0,43 |
0,41 |
0,40 |
0,38 |
0,37 |
0,36 |
|
5500 |
3,97 |
90 |
1,80 |
1,43 |
1,25 |
1,14 |
1,05 |
0,99 |
0,90 |
0,84 |
0,79 |
0,75 |
0,72 |
0,69 |
0,66 |
0,64 |
0,63 |
|
5500 |
3,97 |
120 |
2,08 |
1,65 |
1,44 |
1,31 |
1,22 |
1,15 |
1,04 |
0,97 |
0,91 |
0,86 |
0,83 |
0,79 |
0,77 |
0,74 |
0,72 |
|
6000 |
4,33 |
30 |
1,07 |
0,85 |
0,74 |
0,68 |
0,63 |
0,59 |
0,54 |
0,50 |
0,47 |
0,44 |
0,43 |
0,41 |
0,39 |
0,38 |
0,37 |
|
6000 |
4,33 |
90 |
1,86 |
1,47 |
1,29 |
1,17 |
1,09 |
1,02 |
0,93 |
0,86 |
0,81 |
0,77 |
0,74 |
0,71 |
0,68 |
0,66 |
0,64 |
|
6000 |
4,33 |
120 |
2,14 |
1,70 |
1,49 |
1,35 |
1,25 |
1,18 |
1,07 |
1,00 |
0,94 |
0,89 |
0,85 |
0,82 |
0,79 |
0,77 |
0,74 |
|
6500 |
4,69 |
30 |
1,10 |
0,87 |
0,76 |
0,69 |
0,64 |
0,61 |
0,55 |
0,51 |
0,48 |
0,46 |
0,44 |
0,42 |
0,41 |
0,39 |
0,38 |
|
6500 |
4,69 |
90 |
1,91 |
1,51 |
1,32 |
1,20 |
1,12 |
1,05 |
0,95 |
0,89 |
0,83 |
0,79 |
0,76 |
0,73 |
0,70 |
0,68 |
0,66 |
|
6500 |
4,69 |
120 |
2,20 |
1,75 |
1,53 |
1,39 |
1,29 |
1,21 |
1,10 |
1,02 |
0,96 |
0,91 |
0,87 |
0,84 |
0,81 |
0,79 |
0,76 |
|
7000 |
5,06 |
30 |
1,13 |
0,90 |
0,78 |
0,71 |
0,66 |
0,62 |
0,56 |
0,52 |
0,49 |
0,47 |
0,45 |
0,43 |
0,42 |
0,40 |
0,39 |
|
7000 |
5,06 |
90 |
1,95 |
1,55 |
1,36 |
1,23 |
1,14 |
1,08 |
0,98 |
0,91 |
0,85 |
0,81 |
0,78 |
0,75 |
0,72 |
0,70 |
0,68 |
|
7000 |
5,06 |
120 |
2,26 |
1,79 |
1,56 |
1,42 |
1,32 |
1,24 |
1,13 |
1,05 |
0,99 |
0,94 |
0,90 |
0,86 |
0,83 |
0,81 |
0,78 |

|
Диаметр ПРП, мм |
Максимально допустимая скорость истечения, м\с |
|
200 |
10,9 |
|
300 |
10,3 |
|
500 |
9,4 |
|
600 |
9,1 |
|
700 |
8,8 |
СОДЕРЖАНИЕ
|
2. Методика расчета потенциальной полезной емкости резервуарного парка. 3 3. Методика расчета полезной емкости резервуарного парка с учетом нормативных ограничений. 4 |