
ОТРАСЛЕВОЙ СТАНДАРТ
ВЕНТИЛЯЦИЯ И КОНДИЦИОНИРОВАНИЕ
ВОЗДУХА. ПОСТРОЕНИЕ, СОДЕРЖАНИЕ И
ОФОРМЛЕНИЕ ДОКУМЕНТОВ
РАБОЧЕГО ПРОЕКТА
ОСТ 36-119-85
УТВЕРЖДЕН заместителем министра монтажных и специальных строительных работ СССР 22 апреля 1985 г.
ИСПОЛНИТЕЛИ М.Д. Грушина (руководитель темы), В.В. Сейфулина, Т.П. Чупина (исполнители)
ОТРАСЛЕВОЙ СТАНДАРТ
|
ВЕНТИЛЯЦИЯ И КОНДИЦИОНИРОВАНИЕ ВОЗДУХА. |
ОСТ 36-119-85 |
|
ПОСТРОЕНИЕ, СОДЕРЖАНИЕ И ОФОРМЛЕНИЕ |
|
|
ДОКУМЕНТОВ РАБОЧЕГО ПРОЕКТА |
Введен впервые |
Заместителем министра монтажных и специальных строительных работ СССР 22 апреля 1985 г. срок введения установлен с 1 января 1986 г.
Настоящий стандарт распространяется на проектирование местной, общеобменной вентиляции и кондиционирования воздуха, воздушных и воздушно-тепловых завес, а также систем аспирации и пневмотранспорта и устанавливает дополнительные требования к составу и правилам выполнения документов рабочего проекта (рабочей документации) на производство работ по вентиляции и кондиционированию воздуха, связанные с необходимостью получения исходных данных для расчетов на ЭВМ, а также требования к новым видам документов, выполненных на печатающих и графических устройствах вывода ЭВМ.
Стандарт не распространяется на проектирование отопления и теплоснабжения установок вентиляции и кондиционирования воздуха.
Стандарт обязателен для организаций и предприятий Министерства монтажных и специальных строительных работ СССР, выпускающих и использующих документы рабочего проекта (рабочей документации) по вентиляции и кондиционированию воздуха.
1.1. Комплект документов рабочего проекта (рабочей документации) для производства работ по вентиляции следует выполнять в соответствии с требованиями СНиП 1.02.01-85, СН 202-81, а рабочие чертежи - в соответствии с требованиями ГОСТ 21.602-79.
1.2. Дополнительные требования настоящего стандарта в части правил выполнения относятся к следующим документам:
пояснительной записке, требования к которой устанавливаются с целью конкретизации ее содержания;
рабочим чертежам: общим данным, чертежам систем, чертежам установок систем. Дополнительные требования к рабочим чертежам устанавливаются с целью получения исходных данных для расчетов на ЭВМ и получения с печатающих и графических устройств вывода ЭВМ дополнительных документов.
1.3. В состав дополнительных документов рабочего проекта, на который распространяются требования настоящего стандарта, включаются:
документация, входящая в состав проекта производства работ (ППР) на монтаж систем вентиляции и кондиционирования воздуха, содержащая: пояснительную записку и ППР, техническую характеристику и экономические показатели объекта, технико-экономические характеристики вентиляционных систем, графики поставки оборудования, сводную спецификацию материалов для монтажа систем, производственные калькуляции трудовых затрат и заработной платы, календарный план производства работ, ведомость инструментов, приспособлений и механизмов, указания по производству монтажных работ и указания по технике безопасности;
документация для монтажного производства, содержащая: комплектовочные ведомости деталей и изделий, таблицу соединений и спецификацию материалов по каждой системе;
документация для заготовительного производства, содержащая: наряд-задание, счет-фактуру, таблицы отгрузки и стандартных деталей, комплектовочную ведомость, спецификацию материалов для заготовительного производства.
1.4. В развитие ГОСТ 21.602-79 в состав рабочих чертежей включаются технологические схемы автоматизации и диспетчеризации систем вентиляции и кондиционирования воздуха для сокращения трудовых затрат на выполнение технологических расчетов,
1.5. Допускается при отсутствии в организации технических средств, соответствующих программно-математическому обеспечению, для выпуска полного комплекта документов рабочего проекта выполнять в соответствии с требованиями настоящего стандарта только основной комплект рабочих чертежей.
2.1. Пояснительная записка должна включать разделы:
общую часть;
исходные данные для проектирования;
принятые проектные решения;
табличные и текстовые приложения.
2.2. Общая часть должна включать: основания для разработки рабочего проекта, вид строительства, характеристику технологического оборудования, характеристику строительных конструкций здания, очередность строительства, сведения об использованных в проекте изобретениях.
2.3. В разделе исходных данных для проектирования необходимо указать: документацию, положенную в основу проектирования; климатологические данные; режим работы предприятия (цеха); характеристику производственных процессов; параметры воздуха внутри помещений; теплоэнергоснабжение и водоснабжение установок отопления, вентиляции и кондиционирования воздуха.
2.4. Принятые проектные решения следует освещать по разделам:
отопление;
вентиляция;
кондиционирование воздуха;
технологическое описание принципиальных схем;
автоматизация, диспетчеризация систем вентиляции и кондиционирования воздуха;
использование вторичных тепловых ресурсов;
мероприятия по защите атмосферного воздуха от загрязнений;
мероприятия по снижению уровня шума и вибрации установок вентиляции и кондиционирования воздуха;
противопожарные мероприятия;
антикоррозионная защита;
штаты службы эксплуатации систем вентиляции и кондиционирования воздуха;
экономическая эффективность и новизна проектных решений.
2.5. Табличные и текстовые приложения должны содержать задания на проектирование и результаты инженерных расчетов.
3.1. Общие данные.
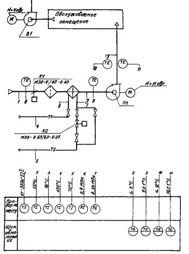
3.1.1. На плане-схеме следует приводить отметку перекрытия (уровня), на котором установлен побудитель тяги. Пример оформления плана-схемы размещения установок систем приведен в обязательном приложении 1.
3.1.2. Характеристика систем вентиляции должна выполняться в виде таблицы по обязательному приложению 2.
3.1.3. Характеристику воздухонагревателей, камер орошения, блоков тепломассообмена и теплопреобразователей, помещаемую в графе "Теплообменник" («Тепломассообменник») следует указывать для расчетных режимов.
В графе "I теплоноситель" необходимо указывать расход и параметры воздуха, в графе "II теплоноситель" - расход и параметры нагревающей или охлаждающей среды.
3.2. Чертежи систем
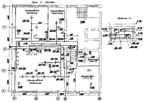
3.2.1. Планы и разрезы систем вентиляции и кондиционирования воздуха.
3.2.1.1. Планы систем вентиляции и кондиционирования воздуха выполняют, как правило, отдельно от планов систем отопления и теплоснабжения установок вентиляции и кондиционирования воздуха.
3.2.1.2. Разрезы выполняют только для зданий сложного конструктивного исполнения, с большой насыщенностью вентиляционными системами и другими коммуникациями, влияющими на конструирование систем вентиляции.
3.2.1.3. Воздуховоды на планах изображают в одну линию. Допускается выделять в отдельные фрагменты наиболее сложные узлы и пересечения и показывать их в большом масштабе и в две линии.
3.2.1.4. Воздуховоды, расположенные друг над другом, на планах условно изображают параллельными линиями, о чем делается соответствующая надпись на чертеже.
3.2.1.5. Оборудование систем, для которого разрабатывают установочные чертежи, на планах не показывают, а дают ссылку на чертеж установки.
3.2.1.6. На планах указывают привязки осей воздуховодов к координационным осям здания.
3.2.1.7. Пример оформления плана приведен в обязательном приложении 4.
3.2.2. Схемы систем вентиляции и кондиционирования воздуха.
3.2.2.1. Схемы выполняют, как правило, посистемно (каждая на отдельном листе) без масштаба.
3.2.2.2. Элементы систем на схемах показывают условными графическими обозначениями.
3.2.2.3. На схемах указывают:
размеры расчетных участков для конструирования сети (условиями, определяющими границы участка, являются: изменение сечения воздуховодов, привязка фиксированных изделий, изменение типа соединения, изменение направления сети, изменение материала воздуховода, изоляция воздуховода);
привязку и размеры сечений присоединений не стандартизированного оборудования и сети воздуховодов;
отметки уровня осей воздуховодов;
привязку побудителя тяга и воздуховодов к координационным осям здания (сооружения);
отметки пересекаемых перекрытий (чистый пол);
тип и отметку верха или низа патрубка унифицированного узла прохода;
тип и количество оборудования и изделий (с указанием типовой серии);
марку, направление вращения и положение выходного патрубка, исполнение, производительность, полное давление, частоту вращения вентилятора;
тип, мощность, частоту вращения электродвигателя, исполнение по взрывозащите (если обороты вентилятора и электродвигателя совпадают, их указывают один раз);
тип и количество закладных конструкций под контрольно-измерительные приборы и средства автоматизации;
типовые крепления воздуховодов с указанием на полке линии-выноски типа крепления в соответствии с применяемым в данной монтажной организации нормативным документом.
3.2.2.4. Обозначение координационных осей здания на схемах приводят в кружках диаметром 10 мм.
3.2.2.5. В пояснениях и схемах должны быть указаны:
номера листов общих данных, плана и установочного чертежа, соответствующего данной системе;
материал воздуховодов;
толщина металла в случае отступления от требования СНиП II-33-75;
тип окраски или химзащиты воздуховодов при наличии специальных требований;
отметка полов помещений и вентиляционных камер (площадок);
номер типовой технологической карты для монтажа воздуховодов.
3.2.2.6. Пример оформления схем показан на черт. 1 и 2 обязательного приложения 5.
3.2.3. Чертежи установок систем.
3.2.3.1. Чертежи установок систем выполняют для приточных систем вентиляции и кондиционирования воздуха, тепломассообменников и вытяжных установок с обеспыливающим и газоочистным оборудованием.
3.2.3.2. На планах установок систем указывают привязки, а на разрезах - отметки воздуховодов.
3.2.3.3. На планах и разрезах установок систем показывают монтажные проемы с габаритными размерами и привязками к координационным осям здания.
3.3. Технологическая схема автоматизации и диспетчеризации систем вентиляции и кондиционирования воздуха.
3.3.1. Схему автоматизации и диспетчеризации вычерчивают с помощью условных графических обозначений.
3.3.2. Все исполнительные механизмы и приводы на схеме маркируют.
3.3.3. На схеме указывают места установки контрольно-измерительных приборов и условные графические обозначения датчиков средств автоматизации, обозначенные порядковыми номерами.
3.3.4. Под схемой условно изображают щиты и пульты управления в виде прямоугольников произвольных размеров, достаточных для внесения графических условных обозначений устанавливаемых на них контрольно-измерительных приборов и средств автоматизации согласно их порядковому номеру.
3.3.5. Над условными графическими обозначениями контрольно-измерительных приборов и средств автоматизации указывают предел измерения или величину регулируемого параметра (см. рекомендуемое приложение 3).
3.3.6. Рядом с технологической схемой приводят описание работы узлов автоматического регулирования систем вентиляции и кондиционирования воздуха.
4.1. Спецификация оборудования.
4.1.1. Спецификацию оборудования (СО) выполняют на листах формата A3 по форме 1 обязательного приложения 6. При продолжении формы 1 применяют укороченный штамп, приведенный в форме 1.
4.2. Ведомость потребности в материалах (ВМ).
4.2.1. ВМ выполняют на листах формата A3, по форме 2 обязательного приложения 6.
4.3. Сметная документация.
4.3.1. Сметную документацию в виде локальных смет по каждой системе вентиляции, кондиционированию воздуха и по объекту в целом выполняют на листах формата A3 по форме 3 обязательного приложения 6.
4.4. Заказная спецификация.
4.4.1. Заказную спецификацию выполняют на листах формата A3 по форме 4 и 5 обязательного приложения 6.
4.4.2. К заказной спецификации прикладывают бланк-заказы на центральные кондиционеры, приточные камеры, опросные листы на газоочистное, насосное и другое оборудование, арматуру, составляемые по формам заводов-изготовителей.
4.5. Документация, входящая в состав ПНР на монтаж систем вентиляции:
4.5.1. Пояснительная записка должна содержать сведения об исходных данных и нормативной документации, на основе которых разрабатывается ППР.
4.5.2. Техническая характеристика объекта должна содержать:
4.5.2.1. Общий объем работ по вентиляции и кондиционированию воздуха на данном объекте, выраженный в квадратных метрах.
4.5.2.2. Общее количество проката, необходимого для монтажа всех вентиляционных систем объекта, с учетом норм расхода материалов на изготовление и с выделением из общего количества доли материала, затрачиваемого на изделия (материал поставки заказчика).
4.5.2.3. Общее количество вентиляционных систем по объекту и распределение их в соответствии с назначением: приточная система, система кондиционирования воздуха, общеобменная вытяжная система, вытяжная система вентиляции с местными отсосами, система естественной вентиляции, аспирационная система и система пневмотранспорта, воздушная и воздушно-тепловая завеса.
4.5.2.4. Количество вентиляционного оборудования по видам и количественное распределение внутри вида по типам, а именно:
вентиляторы - общее количество, в том числе:
радиальные;
осевые;
крышные;
кондиционеры - общее количество, в том числе:
центральные;
местные автономные;
местные неавтономные;
бытовые;
транспортные;
доводчики эжекционные;
воздухоохлаждающие агрегаты;
приточные камеры - общее количество;
обеспыливающее оборудование - общее количество;
тепломассообменники - общее количество.
4.5.3. Экономические показатели объекта должны содержать:
4.5.3.1. Общую сметную стоимость объекта с обязательным выделением нормативной условно-чистой продукции, в том числе:
сметную стоимость оборудования, не входящего в объем строительно-монтажных работ;
сметную стоимость строительно-монтажных работ (СМР) по вентиляции, в том числе:
сметную стоимость монтажа оборудования без стоимости оборудования, не входящего в объем СМР;
сметную стоимость монтажа вентиляционной сети.
Примечание. Перечень вентиляционного оборудования, не входящего в СМР, утвержден постановлением Госстроя СССР от 22 апреля 1983 г. № 84 "О порядке применения норм накладных расходов в строительстве".
4.5.3.2. Трудовые затраты в чел.-днях по объекту в целом, в том числе:
трудовые затраты на монтаж оборудования;
трудовые затраты на монтаж сети.
4.5.3.3. Заработную плату по объекту в целом, в том числе:
заработную плату на монтаж оборудования;
заработную плату на монтаж сети.
4.5.3.4. Удельный вес заработной платы в сметной стоимости СМР объекта, выраженный в процентах.
4.5.3.5. Заработную плату на монтаж систем вентиляции указывают без предусмотренных ЕНиР поправочных коэффициентов к нормам времени и расценкам на строительные и монтажные работы, выполняемые в зимнее время, в помещениях с вредными условиями труда, в эксплуатируемых зданиях всех назначений, в действующих цехах и на производственных площадках в связи с наличием в зоне производства работ действующего технологического оборудования или загромождающих помещение предметов, или движения транспорта по внутрицеховым и внутризаводским путям; в зимние месяцы в тепляках; вблизи объектов, находящихся под высоким напряжением; при температуре воздуха на рабочем месте более 40 °С; в закрытых сооружениях, находящихся ниже 3 м от поверхности земли; в действующих цехах предприятий с вредными условиями труда, в которых рабочим промышленного предприятия установлен сокращенный рабочий день, а строительные работы имеют нормальную продолжительность рабочего дня.
4.5.4. Технико-экономические характеристики вентиляционных систем выполняются на листах формата A3 по форме 6 обязательного приложения 6.
В графе "Шифр заказа" приводят код монтажного управления в системе АСУ-трест, производящего монтаж, шифр объекта по титульному списку, порядковый номер заказа по данному объекту. При отсутствии данных графа не заполняется.
4.5.5. Графики поставки оборудования и изделий выполняют на листах формата A3 по форме 7 обязательного приложения 6 и дифференцируют по поставщикам.
4.5.6. Сводную спецификацию материалов для монтажа систем составляют на листах формата A3 по форме 8 обязательного приложения 6 с учетом действующих норм расхода материалов.
4.5.7. Производственные калькуляции трудовых затрат и заработной платы приводят на каждую систему и на объект в целом на листах формата A3 по форме 9 обязательного приложения 6.
4.5.8. Календарный план производства работ выполняют на листах формата A3 по форме 10 обязательного приложения 6.
4.5.9. Ведомость инструментов, приспособлений и механизмов выполняют на листах формата A3 по форме 11 обязательного приложения 6.
4.5.10. Указания по производству монтажных работ выполняют на листах формата A3 и содержат:
требования по строительной готовности объекта, требования к оборудованию, принимаемому в монтаж от заказчика;
указания по монтажу оборудования и указания по монтажу воздуховодов, конкретные рекомендации о способах и последовательности выполнения работ.
4.5.11. В разделе приводится перечень типовых технологических карт, применяемых в проекте.
4.5.12. Указания по технике безопасности выполняются на листах формата A3 и содержат мероприятия, обеспечивающие безопасное ведение работ на объекте.
4.6. Документация для монтажного производства систем вентиляции и кондиционирования воздуха.
4.6.1. Комплектовочную ведомость деталей выполняют по форме 12 обязательного приложения 6.
4.6.2. В графе "Номер участка. Дубль" приводят номера участков по схеме и количество одинаковых участков.
4.6.3. В графе "Номер детали. Количество" для деталей со склада приводят маркировку, которая состоит из буквенного литера, определяющего тип детали, номер детали в своем типе и количество деталей.
4.6.4. В графе "Наименование" указывают наименование деталей и оформление торцов деталей.
4.6.5. В графе "Привязка" приводят привязки осей врезок к базовому торцу деталей. За базовый принимается левый торец детали по ходу деталировки.
4.6.6. Комплектовочная ведомость деталей выполняется на листах формата A3.
4.6.7. Комплектовочная ведомость изделий выполняется по форме 13 обязательного приложения 6.
4.6.8. Комплектовочная ведомость изделий выполняется на листах формата A3.
4.6.9. Спецификацию материалов по каждой системе составляют по форме 14 обязательного приложения 6.
4.6.10. Спецификацию материалов по каждой системе составляют с учетом действующих норм расхода материалов.
4.6.11. Спецификация материалов выполняется на листах формата A3.
4.7. Документация для заготовительного производства систем вентиляции и кондиционирования воздуха.
4.7.1. Наряд-задание на изготовление деталей выполняют по форме 16 обязательного приложения 6.
В зависимости от конструктивных особенностей вентиляционной системы и технологии завода-изготовителя наряд-задание должен выходить на каждую технологическую линию.
4.7.1.1. В графе "Номер детали" приводят номера деталей, изготовляемых на данной технологической линии.
4.7.1.2. В графе "Наименование" указывают наименование и оформление торцов деталей.
4.7.1.3. В графе "Количество штук" приводят количество одинаковых деталей.
4.7.1.4. В графе "Д/В" приводят диаметр круглого воздуховода или первую сторону, параллельную оси прямоугольного воздуховода, в мм.
4.7.1.5. В графе "Н" приводят вторую сторону прямоугольного воздуховода в миллиметрах (мм).
4.7.1.6. В графе "Длина" указывают длину детали в мм.
4.7.1.7. В графе "Л1" указывают привязку оси врезки к базовому торцу детали в мм.
4.7.1.8. В графе "Угол в град" приводят угол отвода или угол поворота врезки относительно первой в градусах.
4.7.1.9. В графе "Толщина в мм" приводят толщину металла, из которого изготавливается деталь, в мм.
4.7.1.10. В графе "Поверхность общая, кв. м" приводят поверхность каждой детали и итоговую по всем деталям каждой технологической линии.
4.7.1.11. В графе "Норма времени, н/ч" указывают норму времени на изготовление деталей.
4.7.1.12. В графе "Расценка, руб.-коп." приводят стоимость изготовления деталей.
4.7.1.13. В графе "Трудозатраты, чел/ч" приводят общие трудовые затраты по всему объему работ.
4.7.1.14. В графе "Зарплата, руб.-коп." указывают зарплату по всему объему работ.
4.7.1.15. После общей головки таблицы наряд-задания указывают материал воздуховодов и тип окраски их.
4.7.1.16. В конце таблицы наряд-задания следует таблица соединений.
4.7.1.17. В таблице соединений приводят наименования соединений, размер (диаметр для круглых или сечение для прямоугольных воздуховодов) в мм и количество в штуках.
4.7.1.18. В таблице соединений по всей системе указывают наименование, размер и количество соединений в целом по системе.
4.7.1.19. Наряд-задание выполняется на листах формата A3.
4.7.2. Счет-фактуру выполняют по форме 17 обязательного приложения 6.
4.7.2.1. В графе "№ п/п" указывают номер позиций по порядку.
4.7.2.2. В графе "Прейскурант 24-15" приводят обоснование расценки по прейскуранту 24-15.
4.7.2.3. В графе "Наименование готовой продукции" указывают наименование готовых изделий в соответствии с обоснованием "расценки (воздуховоды из стали толщиной Т= … мм, периметром … мм, хомуты, подвески, тяги для воздуховодов).
4.7.2.4. В графе "Единица измерения" приводят обозначение единицы измерения по каждой позиции.
4.7.2.5. В графе "Количество единиц" приводят общее количество по каждой позиции.
4.7.2.6. В графах "НУЧП (руб.-коп.) единицы, общая" приводят условную нормативно-чистую продукцию в рублях и копейках на единицу и на общее количество по каждой позиции.
4.7.2.7. В графах "Цена оптовая (руб.-коп.) единицы, общая" приводят оптовую цену на единицу и на общее количество по каждой позиции.
4.7.2.8. В конце таблицы "Счет-фактура" приводят итог по графам "НУЧП общая" и "Цена оптовая общая" и итог по этим графам с учетом коэффициентов к НУЧП и оптовой цене для предприятий, имеющих районную надбавку к зарплате в процентах.
4.7.2.9. Счет-фактура выполняется на листах формата A3.
4.7.3. Спецификацию материалов по каждой системе для заготовительного производства составляют по форме 14 обязательного приложения 6 (см. пп. 4.6.9; 4.6.10).
4.7.4. Комплектацию деталями из магазина выполняют по форме 18 обязательного приложения 6.
4.7.4.1. В графе "№ п/п" указывают номера деталей из магазина по порядку.
4.7.4.2. В графе "Маркировка детали" указывают маркировку детали, комплектуемой из магазина, в соответствии с принятой маркировкой для данного заготовительного предприятия. Маркировка состоит из буквенного литера, определяющего тип детали и номера детали в своем типе.
4.7.4.3. В графе "Наименование" указывают наименование детали из магазина.
4.7.4.4. В графе "Количество" указывают количество деталей соответствующей маркировки.
4.7.4.5. В графе "Длина в мм" указывают длину детали.
4.7.4.6. Графы "Подписи должностных лиц", "ОТК", "Склад", "Получатель" заполняются вручную соответствующими подписями должностных лиц.
4.7.4.7. Комплектация деталями из магазина выполняется на листах формата A3.
4.7.5. Таблицу отгрузки выполняют по форме 19 обязательного приложения 6.
4.7.5.1. В графе "Номер детали п/п" приводят номера всех деталей, из которых состоит вентиляционная система. Детали записывают в порядке возрастания.
4.7.5.2. В графе "Количество деталей" указывают количество одинаковых деталей.
4.7.5.3. В графе "Место нахождения детали" указывают номер технологической линии заготовительного производства, на которой изготавливают данную деталь.
4.7.5.4. Графы "Подписи", "ОТК", "МУ" заполняются вручную подписями соответствующих должностных лиц.
4.7.5.5. Таблица отгрузки выполняется на листах формата A3.
4.7.6. Таблицу стандартных деталей выполняют по форме 15 обязательного приложения 6.
4.7.6.1. В графе "№ п/п" приводят номера стандартных деталей, из которых состоит вентиляционная система. Детали записываются в порядке возрастания.
4.7.6.2. В графе "Наименование" указывают наименование стандартной детали.
4.7.6.3. В графе "Измеритель" приводят обозначение единицы измерения по каждой позиции.
4.7.6.4. В графе "Количество" указывают количество одинаковых деталей.
4.7.6.5. После общей головки таблицы стандартных деталей указывают материал воздуховодов, тип окраски или химзащиты.
4.7.6.6. В конце таблицы дается объем монтажа, с выделением объемов монтажа по материалам.
4.7.6.7. Таблица стандартных деталей выполняется на листах формата A3.
4.7.7. В конце всех машинограмм для заготовительного производства приводят общее количество металла на систему в квадратных метрах.
4.8. Все машинограммы должны иметь следующие обязательные реквизиты: наименование и местонахождение организации, создающей машинограмму, дату создания машинограммы.
5.1. Рабочий проект по вентиляции и кондиционированию воздуха (том I) выдается заказчику в следующем составе:
книга 1. Пояснительная записка - 3 экз. в переплете;
книга 2. Рабочие чертежи по вентиляции и кондиционированию воздуха -3 экз. (из них один - без переплета);
книга 3. Документация, входящая в состав ППР на монтаж систем вентиляции и кондиционирования воздуха, - 2 экз. в переплете;
книга 4. Документация для монтажного производства систем вентиляции и кондиционирования воздуха - 2 экз. без переплета;
книга 5. Документация для заготовительного производства систем вентиляции и кондиционирования воздуха - 2 экз. без переплета.
5.2. Состав книг 1, 2, 3, 4 и 5 тома I в соответствии с обязательным приложением 7.
6.1. Внесение изменений в документы, выполняемые на печатающих и графических устройствах вывода ЭВМ (машинограмма) должно осуществляться путем перекодирования измененных участков сети или оборудования, введения в ЭВМ необходимых исходных данных и получения машинной выдачи с учетом изменений.
6.2. В тех случаях, когда в машинограмму вносят исправления, сделанные от руки, в соответствии с "Временными общеотраслевыми руководящими указаниями о придании юридической силы документам на магнитной ленте и бумажном носителе, создаваемом средствами вычислительной техники", утвержденными постановлением ГКНТ СССР от 20 апреля 1981 г. № 100, машинограмма должна иметь указания на обоснование этих исправлений, время их внесения и подпись должностного лица, сделавшего исправления.




Черт. 1


Черт. 2
|
Позиция |
Наименование и техническая характеристика оборудования и материалов, завод-изготовитель (для импортного - страна, фирма) |
Тип, марка оборудования, обозначение документа и номер опросного листа |
Единица измерения |
Код завода-изготовителя |
Код оборудования, материала |
Цена единицы оборудования, тыс. руб. |
Количество |
Масса единицы оборудования, кг |
|
|
наименование |
код |
||||||||
|
1 |
2 |
3 |
4 |
5 |
6 |
7 |
8 |
9 |
10 |
|
10 |
49 |
13 |
6 |
4 |
10 |
13 |
7 |
8 |
9 |
|
¬¾¾® |
¬¾¾¾¾¾¾¾¾¾¾¾¾® |
¬¾¾¾¾¾¾¾¾® |
¬¾¾¾¾® |
¬¾¾® |
¬¾¾¾® |
¬¾¾¾¾® |
¬¾¾¾¾® |
¬¾¾¾® |
¬¾¾¾¾® |

Примечание. Размеры граф всех таблиц приложения 6 даны в символах АЦПУ.
ВЕДОМОСТЬ ПОТРЕБНОСТИ В МАТЕРИАЛАХ
|
№ п/п |
Наименование материала и единица измерения |
Количество |
Количество |
|||
|
материал |
ед. изм. |
Типовой |
Индивидуальный |
Всего |
||
|
5 |
32 |
12 |
4 |
8 |
9 |
8 |
|
¬¾¾® |
¬¾¾¾¾¾¾¾¾¾¾¾¾¾¾¾¾¾¾® |
¬¾¾® |
¬¾¾® |
¬¾¾® |
¬¾¾¾¾¾® |
¬¾¾® |
(Наименование стройки) Форма 3
Локальная смета №
на _____________________________________________________
(наименование работ и затрат, наименование объекта)
Сметная стоимость _______________ тыс. руб.
Нормативная условно-чистая продукция ___________ тыс. руб.
Составлена в ценах 19 ____г. Основание: чертежи № _______
|
№ п/п |
Номера прейскурантов, УСН, расценок, ценников и др. |
Наименование работ и затрат |
Ед. изм. |
Количество |
Стоимость единицы, руб. |
Общая стоимость, руб. |
|||
|
Всего |
Нормативно-чистой продукции |
В том числе |
|||||||
|
основной зарплаты |
эксплуатация машин |
||||||||
|
в т.ч. заработная плата |
|||||||||
|
1 |
2 |
3 |
4 |
5 |
6 |
7 |
8 |
9 |
10 |
|
4 |
12 |
49 |
3 |
6 |
9 |
6 |
11 |
8 |
12 |
|
¬¾® |
¬¾¾¾¾¾¾¾¾¾¾¾¾¾® |
¬¾¾¾¾¾¾¾® |
¬¾¾® |
¬¾¾¾® |
¬¾¾¾¾¾® |
¬¾¾¾® |
¬¾¾¾¾¾¾¾® |
¬¾¾¾® |
¬¾¾¾¾¾® |
|
Исходные данные составил ú¬¾¾¾¾34¾¾¾¾¾®÷ |
|
Расчет проверил ú¬¾¾¾¾¾¾¾13¾¾¾¾¾¾¾¾¾¾®÷ |
|
должность, подпись |
|
дата |
|
(инициалы, фамилия) |
|
Нормативная база №ú¬¾2¾®÷ от ¬¾¾¾¾¾7¾¾¾¾®÷ |
|
Проверил ú¬¾¾¾¾¾¾¾¾¾34¾¾¾¾¾¾¾¾¾®÷ |
|
дата |
|
должность, подпись (инициалы, фамилия) |
|
ú¬¾¾¾¾¾¾¾¾¾¾¾¾45¾¾¾¾¾¾¾¾¾¾¾¾¾¾®÷ |
|
Перфорация: подготовил ú¬¾¾¾¾37¾¾¾¾¾¾®÷ |
|
наименование (по ОКПО) и местонахождение |
|
должность, подпись |
|
ú¬¾¾¾¾¾¾¾¾¾¾¾¾45¾¾¾¾¾¾¾¾¾¾¾¾¾¾®÷ |
|
(инициалы, фамилия) |
|
(по СОАТО) организации, создавшей машинограмму |
|
Проверил ú¬¾¾¾¾¾¾¾¾¾39¾¾¾¾¾¾¾¾¾®÷ |
|
|
|
должность, подпись (инициалы, фамилия) |
|
|
Утверждаю
………………….
« » …… 19 ……..г.
|
|
Код |
||||||||||||||||||
|
|
Форма |
0801028 |
|||||||||||||||||
|
ЗАКАЗНАЯ СПЕЦИФИКАЦИЯ На листах |
от |
№ |
|
||||||||||||||||
|
|
|||||||||||||||||||
|
(проектная организация- генеральный проектировщик) |
|
||||||||||||||||||
|
(проектная организация-разработчик) |
|
||||||||||||||||||
|
(министерство (ведомство) заказчика) |
|
||||||||||||||||||
|
(производственное объединение (главное управление, управление) министерства (ведомства) |
|
||||||||||||||||||
|
(заказчик-застройщик) |
|
||||||||||||||||||
|
(стройка) |
|
||||||||||||||||||
|
(комплектующая организация) |
|
||||||||||||||||||
|
Госснаб союзной республики (главное территориальное управление Госснаба СССР) |
|
||||||||||||||||||
|
(характер строительства (новое, расширение, реконструкция, техническое перевооружение) |
|
||||||||||||||||||
|
(наименование объекта (производственной мощности) |
|
||||||||||||||||||
|
(мощность пускового комплекса) |
|
||||||||||||||||||
|
(срок ввода объекта (мощности) в эксплуатацию) |
|
||||||||||||||||||
|
(часть (раздел) проекта) |
|
||||||||||||||||||
|
(наименование вида оборудования, изделия и материалов, поставляемых заказчиком (по ВКГ ОКП) |
|||||||||||||||||||
|
№ п/п |
Номер позиции по технологической схеме |
Наименование и техническая характеристика основного и комплектующего оборудования, приборов, арматуры, материалов, кабельных и др. изделий. Завод-изготовитель (для импортного оборудования - страна, фирма) |
Тип, марка, каталог, № чертежа, № опросного листа, материал оборудования |
Ед. изм. |
Код завода-изготовителя |
Код оборудования, изделий, материалов |
Цена единицы (тыс. руб.) |
Потребность по проекту |
В т.ч. на пусковой комплекс |
Ожидаемое наличие на 01.01. 19 _г. |
Заявленная потребность на 19__ г. |
Согласованный объем потребности |
|||||||
|
наименование |
код |
Всего |
в том числе по срокам |
стоимость всего (тыс. руб.) |
|||||||||||||||
|
I |
II |
III |
1У |
||||||||||||||||
|
1 |
2 |
3 |
4 |
5 |
6 |
7 |
8 |
9 |
10 |
11 |
12 |
13 |
14 |
15 |
16 |
17 |
18 |
19 |
|
|
4 |
7 |
26 |
8 |
4 |
4 |
8 |
13 |
б |
6 |
6 |
6 |
5 |
5 |
4 |
4 |
4 |
4 |
4 |
|
|
¨ |
¬¾¾® |
¬¾¾¾¾® |
¬¾¾® |
¬¾¾® |
¨ |
¬¾¾® |
¬¾¾® |
¬¾® |
¬¾® |
¬¾® |
¬¾® |
¬¾¾¾® |
¨ |
¨ |
¨ |
¨ |
¨ |
¨ |
|
|
|
|
|
|
|
|
|
|
|
|
|
|
|
|
|
|
|
|
|
|
Заказчик-застройщик
Объект строительства Продолжение заказной спецификации № лист №
|
№ п/п |
Номер позиции по технологической схеме |
Наименование и техническая характеристика основного и комплектующего оборудования, приборов, арматуры, материалов, кабельных и др. изделий. Завод-изготовитель (для импортного оборудования - страна, фирма) |
Тип, марка, каталог, № чертежа, № опросного листа, материал оборудования |
Ед. изм. |
Код завода-изготовителя |
Код оборудования, изделий, материалов |
Цена единицы (тыс. руб.) |
Потребность по проекту |
В т.ч. на пусковой комплекс |
Ожидаемое наличие на 01.01. 19 _г. |
Заявленная потребность на 19__ г. |
Согласованный объем потребности |
||||||
|
наименование |
код |
Всего |
в том числе по срокам |
стоимость всего (тыс. руб.) |
||||||||||||||
|
в т.ч. на пусковой комплекс |
|
I |
II |
III |
IУ |
|||||||||||||
|
1 |
2 |
3 |
4 |
5 |
6 |
7 |
8 |
9 |
10 |
11 |
12 |
13 |
14 |
15 |
16 |
17 |
18 |
19 |
|
4 |
7 |
26 |
8 |
4 |
4 |
8 |
13 |
б |
6 |
6 |
6 |
5 |
5 |
4 |
4 |
4 |
4 |
4 |
|
¨ |
¬¾¾® |
¬¾¾¾¾¾¾® |
¬¾¾® |
¬¾¾® |
¬¾® |
¬¾® |
¬¾® |
¬¾® |
¬¾® |
¬¾¾® |
¬¾¾® |
¬¾¾¾® |
¨ |
¨ |
¨ |
¨ |
¨ |
¨ |
|
|
|
|
|
|
|
|
|
|
|
|
|
|
|
|
|
|
|
|
ТЕХНИКО-ЭКОНОМИЧЕСКАЯ ХАРАКТЕРИСТИКА ВЕНТИЛЯЦИОННЫХ СИСТЕМ
|
Шифр заказа |
Имя системы |
Отметка установки оборудования |
Сметная стоимость, руб. |
Трудоемкость, чел.-дн. |
Зарплата, руб. |
Объем сети, м2 |
Материал |
Окраска |
||||||||
|
Общая |
НУЧП |
Сети |
Оборудования |
Общая |
Сети |
Оборудования |
Общая |
Сети |
Оборудования |
|||||||
|
11 |
9 |
8 |
6 |
6 |
6 |
6 |
6 |
6 |
6 |
6 |
6 |
6 |
5 |
7 |
9 |
|
|
¬¾¾® |
¬¾¾® |
¬¾¾¾¾¾¾® |
¬¾® |
¬¾® |
¬¾® |
¬¾¾® |
¬¾® |
¬¾® |
¬¾¾¾¾® |
¬¾® |
¬¾® |
¬¾¾¾¾® |
¬¾® |
¬¾® |
¬¾® |
|
ГРАФИК ПОСТАВКИ ОБОРУДОВАНИЯ И ИЗДЕЛИЙ
|
Имя системы |
Наименование, техническая характеристика оборудования или изделия, завод-изготовитель |
Обозначение документа |
Ед. изм. |
Количество |
Масса единицы, кг |
Срок поставки |
|
10 |
62 |
16 |
4 |
5 |
8 |
8 |
|
¬¾¾¾® |
¬¾¾¾¾¾¾¾¾¾¾¾¾¾¾¾¾¾¾¾¾¾¾¾¾¾¾¾¾¾¾¾¾¾® |
¬¾¾¾¾¾¾¾® |
¬¾¾® |
¬¾¾¾® |
¬¾¾¾¾® |
¬¾¾¾¾® |
СВОДНАЯ СПЕЦИФИКАЦИЯ МАТЕРИАЛОВ
|
Наименование и техническая характеристика материала |
Ед. изм. |
Количество |
Масса, кг |
Обозначение документа |
|
|
Единицы |
Общая |
||||
|
49 |
6 |
8 |
7 |
8 |
17 |
|
¬¾¾¾¾¾¾¾¾¾¾¾¾¾¾¾¾¾¾¾¾¾¾¾¾¾¾¾¾¾¾¾¾® |
¬¾¾¾® |
¬¾¾¾¾¾® |
¬¾¾¾® |
¬¾¾¾¾® |
¬¾¾¾¾¾¾¾¾¾¾¾¾¾® |
Общая масса проката (т),
в том числе (т)
ПРОИЗВОДСТВЕННАЯ КАЛЬКУЛЯЦИЯ ТРУДОВЫХ ЗАТРАТ И ЗАРАБОТНОЙ ПЛАТЫ
|
Код работ |
Наименование работ |
Обоснование |
Ед. изм. |
Трудоемкость, чел.-дн. |
Расценки, руб. |
Объем работ |
Трудозатраты, чел.-день |
Зарплата, руб. |
|
9 |
51 |
11 |
5 |
8 |
8 |
7 |
8 |
7 |
|
¬¾¾¾® |
¬¾¾¾¾¾¾¾® |
¬¾¾¾¾® |
¬¾¾¾® |
¬¾¾¾¾¾¾¾¾¾® |
¬¾¾¾¾¾® |
¬¾¾¾¾¾¾® |
¬¾¾¾¾¾¾¾¾¾® |
¬¾¾¾¾® |
КАЛЕНДАРНЫЙ ПЛАН ПРОИЗВОДСТВА РАБОТ
|
Наименование и последовательность выполнения работ |
Объем работ, системы |
Трудоемкость, чел.-дни |
Число рабочих |
Продолжительность работ, дни |
Срок выполнения ………………………………………………… |
|||||||||||
|
год ………………………………………………………………….. |
||||||||||||||||
|
месяцы |
||||||||||||||||
|
кв. м возд. |
1 |
2 |
3 |
4 |
5 |
6 |
7 |
8 |
9 |
10 |
11 |
12 |
||||
|
20 |
12 |
12 |
10 |
11 |
3 |
3 |
3 |
3 |
3 |
3 |
3 |
3 |
3 |
3 |
3 |
3 |
|
¬¾¾¾¾¾¾¾¾¾¾¾¾¾¾® |
¬¾¾¾® |
¬¾¾¾¾¾® |
¬¾¾¾¾® |
¬¾¾¾¾¾¾® |
¨ |
¨ |
¨ |
¨ |
¨ |
¨ |
¨ |
¨ |
¨ |
¨ |
¨ |
¨ |
График движения рабочей силы
ВЕДОМОСТЬ ИНСТРУМЕНТОВ, ПРИСПОСОБЛЕНИЙ И МЕХАНИЗМОВ ДНЯ ОСНАЩЕНИЯ БРИГАДЫ МОНТАЖНИКОВ
|
Наименование инструмента и средств малой механизации |
ГОСТ, ОСТ, МН, ТУ или чертежи (тип, марка) |
Техническая характеристика |
Ед. изм. |
Количество |
|
45 |
20 |
39 |
3 |
6 |
|
¬¾¾¾¾¾¾¾¾¾¾¾¾¾¾¾¾¾¾¾¾¾¾¾¾¾¾¾¾® |
¬¾¾¾¾¾¾¾¾¾® |
¬¾¾¾¾¾¾¾¾¾¾¾¾® |
¬¾¾¾® |
¬¾¾¾® |
Шифр: Объект: Система:
Марка чертежей:
КОМПЛЕКТОВОЧНАЯ ВЕДОМОСТЬ ДЕТАЛЕЙ И ИЗДЕЛИЙ
|
Номер участка дубль |
Номер детали, количество |
НАИМЕНОВАНИЕ |
Размеры, мм |
Угол, град |
Материал |
|||
|
Д/В |
Н |
длина |
привязка |
|||||
|
9 |
7 |
46 |
7 |
7 |
7 |
9 |
6 |
13 |
|
¬¾¾¾¾® |
¬¾¾¾¾¾¾¾¾¾¾¾¾¾® |
¬¾¾¾¾¾¾¾¾¾® |
¬¾¾¾¾® |
¬¾¾¾¾® |
¬¾¾¾¾® |
¬¾¾¾¾® |
¬¾¾¾¾® |
¬¾¾¾¾® |
|
|
|
|
|
|
|
|
|
|
|
Расчет произведен ú¬¾¾¾¾¾¾¾24¾¾¾¾¾¾¾¾®÷ |
|
дата |
|
Нормативная база №ú¬¾8¾®÷ от ¬¾¾¾¾13¾¾¾¾®÷ |
|
дата |
|
ú¬¾¾¾¾¾¾¾¾¾¾¾¾41¾¾¾¾¾¾¾¾¾¾¾¾¾®÷ |
|
Наименование (по ОКПО) и местонахождение |
|
ú¬¾¾¾¾¾¾¾¾¾¾¾¾45¾¾¾¾¾¾¾¾¾¾¾¾¾®÷ |
|
(по СОАТО) организации, создавшей машинограмму |
Объект: Система:
Шифр:
Марка чертежей:
комплектовочная ведомость изделий
|
Номер детали |
Наименование изделий |
Типовая серия или ГОСТ |
Размеры, мм |
Количество |
Масса, кг |
|||||
|
длина |
А |
В |
Д1 |
Д2 |
единицы |
общая |
||||
|
5 |
46 |
11 |
6 |
5 |
5 |
5 |
5 |
5 |
8 |
8 |
|
¬¾¾¾¾® |
¬¾¾¾¾® |
¬¾¾¾¾¾¾¾® |
¬¾¾¾¾® |
¬¾¾¾¾® |
¬¾¾¾¾® |
¬¾¾¾¾® |
¬¾¾¾¾® |
¬¾¾¾® |
¬¾¾¾® |
¬¾¾¾® |
|
Расчет произведен ú¬¾¾¾¾¾¾¾24¾¾¾¾¾¾¾¾®÷ |
|
дата |
|
Нормативная база №ú¬¾8¾®÷ от ¬¾¾¾¾13¾¾¾¾®÷ |
Шифр: Объект: Система:
Марка чертежей:
СПЕЦИФИКАЦИЯ МАТЕРИАЛОВ
|
Наименование и техническая характеристика материала |
Ед. изм. |
Количество |
Масса, кг |
Обозначение документа |
|
|
единицы |
общая |
||||
|
45 |
6 |
10 |
7 |
10 |
15 |
|
¬¾¾¾¾¾¾¾¾¾¾¾¾¾¾¾¾¾¾¾¾¾¾¾¾¾® |
¬¾¾¾¾¾¾® |
¬¾¾¾¾¾¾® |
¬¾¾¾¾¾¾® |
¬¾¾¾¾¾¾® |
¬¾¾¾¾¾¾¾¾¾® |
Коэффициент нормализации (отношение поверхности стандартных воздуховодов к общей поверхности)
Общая масса проката с учетом норм расхода материалов на заготовительные и монтажные работы (Т)
Объем работ (кв. м)
|
Расчет произведен ú¬¾¾¾¾¾¾¾24¾¾¾¾¾¾¾¾®÷ |
|
дата |
|
Нормативная база №ú¬¾8¾®÷ от ¬¾¾¾¾13¾¾¾¾®÷ |
|
дата |
|
ú¬¾¾¾¾¾¾¾¾¾¾¾¾41¾¾¾¾¾¾¾¾¾¾¾¾¾®÷ |
|
наименование (по ОКПО) и местонахождение |
|
ú¬¾¾¾¾¾¾¾¾¾¾¾¾45¾¾¾¾¾¾¾¾¾¾¾¾¾®÷ |
|
(по СОАТО) организации, создавшей машинограмму |
ТАБЛИЦА СТАНДАРТНЫХ ДЕТАЛЕЙ
Объект: Система:
|
№ п/п |
Наименование |
Измеритель |
Количество |
|
|
|
Материал воздуховодов |
Тип окраски |
|
|
|
5 |
63 |
5 |
6 |
|
|
¬¾¾¾¾¾¾¾¾¾¾¾¾® |
¬¾¾¾¾¾¾¾¾¾¾¾¾¾¾¾¾¾¾¾¾¾¾¾¾¾¾¾® |
¬¾¾¾¾¾¾¾¾¾¾¾¾® |
¬¾¾¾¾¾¾¾¾¾¾¾¾® |
|
Объем монтажа………………. В том числе монтаж воздуховодов по материалам:
Наряд-задание на ………………19 г. Технологическая линия: Дата расчета:
Маркировка: Объект: Система:
Конструктор-кодировщик
|
Номер детали. |
НАИМЕНОВАНИЕ |
Кол-во, шт. |
Размеры, мм |
Угол, град |
Толщина в мм |
Поверхность общая, кв. м |
Норма времени, чел.-ч |
Расценка руб.-коп. |
Трудозатраты, чел.-ч |
Зарплата коп. |
|||
|
д/в |
Н |
длина |
Л1 |
||||||||||
|
|
Материал воздуховодов |
Тип окраски |
|
|
|
|
|
|
|
|
|
|
|
|
|
Таблица соединений |
|
|
|
|
|
|
|
|
|
|
|
|
|
5 |
46 |
5 |
6 |
6 |
6 |
6 |
5 |
4 |
6 |
7 |
7 |
7 |
7 |
|
¬¾¾¾® |
¬¾¾¾¾¾¾¾¾¾® |
¬¾¾¾® |
¬¾¾® |
¬¾¾® |
¬¾¾® |
¬¾¾® |
¬¾¾® |
¬¾¾® |
¬¾¾® |
¬¾¾® |
¬¾¾® |
¬¾¾¾¾® |
¬¾¾® |
СЧЕТ-ФАКТУРА Дата отгрузки: …………..198 г.
Получатель:
Отправитель:
Маркировка: Объект: Система:
Конструктор-кодировщик:
|
№ п/п |
Прейскурант 24-15 |
Наименование готовой продукции |
Ед. изм. |
Количество единиц |
НУЧП, руб.-коп. |
Цена оптовая, руб.-коп. |
||
|
единицы |
общая |
единицы |
общая |
|||||
|
5 |
6 |
46 |
6 |
8 |
7 |
9 |
7 |
10 |
|
¬¾¾¾¾® |
¬¾¾¾¾¾¾¾® |
¬¾¾¾¾¾¾¾¾¾¾¾¾¾¾¾® |
¬¾¾¾¾® |
¬¾¾¾¾¾¾¾® |
¬¾¾¾® |
¬¾¾¾® |
¬¾¾¾® |
¬¾¾¾® |
Итого:
Итого с учетом коэффициентов к нормативу чистой продукции и оптовой цене для предприятий, имеющих районную надбавку к зарплате процентов:
Мастер цеха ...... Мастер ОТК……………Мастер ПХВ ………………Кладовщик ………………..
КОМПЛЕКТАЦИЯ ДЕТАЛЯМИ ИЗ МАГАЗИНА
|
№ п/п |
Маркировка деталей |
Наименование |
Количество |
Длина в мм |
Подписи должностных лиц |
||
|
ОТК |
склад |
получатель |
|||||
|
4 |
7 |
30 |
4 |
6 |
11 |
11 |
11 |
|
¬¾¾¾¾¾¾® |
¬¾¾¾¾¾¾¾¾¾¾® |
¬¾¾¾¾¾¾® |
¬¾¾¾¾¾¾® |
¬¾¾¾¾¾¾® |
¬¾¾¾¾¾¾® |
¬¾¾¾¾¾¾® |
¬¾¾¾¾¾¾® |
Маркировка: Объект: Система:
ТАБЛИЦА ОТГРУЗКИ Срок изготовления по графику: 198 г.
|
Номер детали п/п |
Количество деталей |
Место нахождения деталей |
Подписи |
|
Номер детали п/п |
Количество деталей |
Место нахождения деталей |
Подписи |
|
Номер детали п/п |
Количество деталей |
Место нахождения деталей |
Подписи |
|||
|
ОТК |
МУ |
ОТК |
МУ |
ОТК |
МУ |
|||||||||||
|
6 |
6 |
12 |
8 |
8 |
2 |
6 |
6 |
12 |
8 |
8 |
2 |
6 |
6 |
12 |
8 |
8 |
|
¬¾¾® |
¬¾¾¾® |
¬¾¾¾® |
¬¾® |
¬¾® |
¬¾® |
¬¾¾® |
¬¾¾¾® |
¬¾¾¾® |
¬¾® |
¬¾® |
¬¾® |
¬¾¾® |
¬¾¾¾® |
¬¾¾¾® |
¨ |
¨ |
Всего: в т.ч. детали из магазина- нестандартные детали-
|
Состав проекта |
Состав тома |
Содержание |
|
1 |
2 |
3 |
|
Вентиляция и кондиционирование воздуха |
Книга I. |
1. Титульный лист книги 1 |
|
Пояснительная записка |
1.. Состав проекта |
|
|
3. Содержание книги 1 |
||
|
4. Пояснительная записка |
||
|
5. Табличные и текстовые приложения |
||
|
Книга 2. |
1. Титульный лист книги 2 |
|
|
Рабочие чертежи по вентиляции и кондиционированию воздуха |
2. Состав проекта |
|
|
3. Содержание книги 2 |
||
|
4. Ведомость основного комплекта рабочих чертежей |
||
|
5. Ведомость ссылочных и прилагаемых документов |
||
|
6. Рабочие чертежи по вентиляции |
||
|
7. Ведомость потребности в материалах к основному комплексу рабочих чертежей |
||
|
8. Спецификация оборудования |
||
|
9. Технологические схемы автоматизации систем |
||
|
10. Чертежи общих видов |
||
|
Книга 3. |
1. Титульный лист книги 3 |
|
|
Документация, входящая в состав проекта производства работ (ППР) на монтаж систем вентиляции и кондиционирования воздуха |
2. Состав проекта |
|
|
3. Содержание книги 3 |
||
|
4. Пояснительная записка |
||
|
5. Техническая характеристика объекта |
||
|
6. Экономические показатели объекта |
||
|
7. Технико-экономическая характеристика вентиляционных систем |
||
|
8. Графики поставки оборудования и изделий |
||
|
9. Сводная спецификация материалов |
||
|
10. Производственные калькуляции трудовых затрат и заработной платы |
||
|
11. Календарный план производства работ |
||
|
12. Ведомость инструментов, приспособлений и механизмов |
||
|
13. Указания по производству монтажных работ |
||
|
14. Указания по технике безопасности |
||
|
Книга 4. |
1. Титульный лист книги 4 |
|
|
Документация для монтажного производства систем вентиляции и кондиционирования воздуха |
2. Состав проекта |
|
|
3. Содержание книги 4 |
||
|
4. Комплектовочная ведомость деталей и изделий |
||
|
5. Комплектовочная ведомость изделий |
||
|
6. Спецификация материалов |
||
|
Книга 5. |
1. Титульный лист книги 5 |
|
|
Документация для заготовительного производства систем вентиляции и кондиционирования воздуха |
2. Состав проекта |
|
|
3. Содержание книги 5 |
||
|
4. Наряд-задание на изготовление деталей |
||
|
5. Таблица соединений |
||
|
6. Счет-фактура |
||
|
7. Спецификация материалов для заготовительного производства |
||
|
8. Таблица отгрузки |
||
|
9. Таблица стандартных деталей |
||
|
10. Комплектовочная ведомость |
ЛИСТ РЕГИСТРАЦИИ ИЗМЕНЕНИЙ
|
Изм. |
Номер листов (страниц) |
Номер документа |
Подпись |
Дата |
Срок введения изменения |
|||
|
измененных |
замененных |
новых |
аннулированных |
|||||