
ГОСУДАРСТВЕННЫЙ СТАНДАРТ СОЮЗА ССР
Балки обвязочные железобетонные
для зданий промышленных
предприятий
Конструкция и размеры
ГОСТ 24893.1-81
ГосударственнЫЙ комитет СССР
по делам строительства
Москва
Разработаны Центральным научно-исследовательским и проектно-экспериментальным институтом промышленных зданий и сооружений (ЦНИИпромзданий) Госстроя СССР
ИСПОЛНИТЕЛИ
К. Ю. Полищюк (руководитель темы);
Б. Ф. Васильев; Г. М. Смилянский, канд. техн. наук;
Т. Г. Кузнецова; Н. М. Ляндрес; В. И. Пименова
ВНЕСЕНЫ Центральным научно-исследовательским и проектно-экспериментальным институтом промышленных зданий и сооружений (ЦНИИпромзданий) Госстроя СССР
Директор Ю. Н. Хромец
УТВЕРЖДЕНЫ И ВВЕДЕНЫ в действие постановлением Государственного комитета СССР по делам строительства от 14 июля 1981 г. № 119
ГОСУДАРСТВЕННЫЙ СТАНДАРТ СОЮЗА ССР
|
Балки обвязочные
железобетонные для зданий Конструкция и размеры Reinforced concrete frame brace
for industrial buildings. |
ГОСТ |
Постановлением Государственного комитета СССР по делам строительства от 14 июля 1981 г. № 119 срок введения установлен
с 01.01 1983 г.
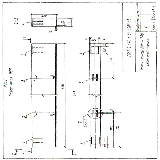
1. Настоящий стандарт распространяется на сборные железобетонные обвязочные балки координационной длиной 6,0 м типов БОП и БОВ и устанавливает требования к их армированию.
2. Конструкция балок, технические требования и технические показатели - по ГОСТ 24893.0-81.
3. Армирование балок должно соответствовать указанному на листах 1 - 5 сборочного черт. 1000 СБ ГОСТ 24893.1-81.
Армирование балок для зданий с расчетной сейсмичностью 7 - 9 баллов должно соответствовать указанному на листах 1 - 5 сборочного черт. 2000 СБ ГОСТ 24893.1-81.
4. Спецификация арматурных и закладных изделий на одну балку приведена на листах 1 - 2 черт. 1000; выборка стали - на листе 1 черт. 0000 ВС ГОСТ 24893.1-81.
Спецификация арматурных и закладных изделий на одну балку, предназначенную для зданий с расчетной сейсмичностью 7 - 9 баллов, приведена на листах 1 - 3 черт. 2000; выборка стали на листе 2 черт. 0000 ВС ГОСТ 24893.1-81.
5. Арматурные и закладные изделия для балок по ГОСТ 24893.2.81.
6. Правила приемки, методы контроля и испытаний, маркировка, хранение, транспортирование и гарантии изготовителя балок - по ГОСТ 24893.0-81.

















