
Фасадная система
ПОЛИАЛПАН
Рекомендации
по проектированию
и применению для строительства
и реконструкции зданий
ОАО ЦНИИЭП жилища
СОДЕРЖАНИЕ
Настоящие технические решения фасадной системы «Полиалпан» разработаны Центральным научно-исследовательским институтом жилых и общественных зданий (ЦНИИЭП жилища) по договору от 19.04.02 № 2-8453 при участии ЗАО «Интеко» и ООО «Полиалпан» и основаны на конструктивных решениях («Альбом технических решений для массового применения. Система «Полиалпан» наружной теплоизоляции фасадов зданий», шифр: ПЛН-25/40/2001), разрешенных к применению Управлением стандартизации технического нормирования и сертификации Госстроя России и Главным управлением государственной противопожарной службы МВД России.
1.1. Фасадная система «Полиалпан» с вентилируемым воздушным зазором (далее система) представляет собой многослойную конструкцию, состоящую из несущего каркаса, утепляющего слоя, фасадных панелей системы «Полиалпан», и предназначена для использования в новом строительстве, а также при капитальном ремонте и реконструкции существующих зданий в целях придания зданию современного архитектурного облика и радикального повышения уровня теплозащиты наружных стен.
1.2. Эта система может применяться в жилых и общественных зданиях до 12-ти этажей включительно.
1.3. Достоинствами системы являются:
- широкая палитра цвета и фактуры облицовочных панелей, что обеспечивает индивидуальность и высокую архитектурно-художественную выразительность здания;
- высокие теплотехнические характеристики наружных стен, удовлетворяющие самым высоким современным требованиям по теплозащите зданий и их энергоэффективности практически для всех регионов страны;
- незначительный вес панелей (3,5 кг/м2 при толщине 25 мм и 4,2 кг/м2 при толщине 40 мм), позволяющий применять их в зданиях с неблагоприятными грунтовыми условиями;
- возможность круглогодичного выполнения работ по устройству системы благодаря отсутствию «мокрых» процессов при высокой интенсивности монтажа;
- долговечность системы, обеспечивающая снижение затрат на ремонт фасадов здания и сохранение его внешнего вида за счет стойкости лакокрасочного покрытия к атмосферным и техногенным воздействиям.
1.4. На панели системы «Полиалпан» выданы соответствующие разрешительные документы: гигиеническое заключение, протокол сертификационных и экспертных испытаний, сертификат пожарной безопасности и другие (см. приложение 4).
1.5. Конструктивные элементы системы выполняются из материалов или деталей, приведенных в данном техническом решении, либо из сертифицированных материалов и деталей, согласованных с ООО «ПОЛИАЛПАН».
1.6. Настоящие технические решения (основаны на конструктивных решениях, изложенных в «Альбоме технических решений для массового применения Система «Полиалпан» наружной теплоизоляции фасадов зданий» (шифр: ПЛН-25/40/2001), согласованных к применению Управлением стандартизации технического нормирования и сертификации Госстроя России и Главным Управлением государственной противопожарной службы МВД России) предназначены для проектных и строительных организаций, а также организаций, осуществляющих контроль за выполнением строительных работ.
2.1. Проектно-сметная документация на систему для конкретного объекта разрабатывается на основе задания на проектирование, подготовленного в соответствии с существующим порядком и утвержденного заказчиком. Задание в обязательном порядке должно содержать требование о соответствии системы второму этапу энергосбережения СНиП II-3-79* (изд. 1998 г).
2.2. Задание должно включать следующие исходные данные:
- архитектурные чертежи фасадов здания, включающие данные о выбранной фактуре и цвете облицовочных панелей «Полиалпан», чертежи архитектурных деталей (карнизов, обрамление проемов и т.п.) и другие необходимые данные;
- строительные чертежи наружных стен от цоколей до парапетов, включая узлы, поясняющие решение и размеры наружных стен;
- данные о величине допустимой дополнительной нагрузки на фундаменты и стены здания;
- план участка, на котором расположено здание.
2.3. Для существующих зданий, подлежащих капитальному ремонту или реконструкции, задание на проектирование должно дополнительно содержать акт обследования наружных стен, где указывается состояние поверхности фасадов, результаты испытаний на усилия по вырыву дюбелей из стены, геодезическую съемку поверхностей фасадов с данными о величине отклонений их отдельных участков от плоскостей стен.
2.4. В качестве основных параметров системы, задаваемых изначально, принимают:
- тип и размер панелей «Полиалпан» (длина до 12 м и более, толщина 25 и 40 мм, ширина 50 и 44 см соответственно);
- характеристику принятых плит утеплителя (марку, размеры, теплопроводность и др.), а также необходимость (или отсутствие необходимости) применения ветро-защитной пленки;
- размеры воздушной прослойки, воздухозаборных и воздуховыводящих щелей для разных регионов, в частности, на чертежах даны эти значения для Московского и Ханты-Мансийского (размеры в скобках) регионов;
- схему размещения на фасаде здания деталей несущей подсистемы с размерами и принятой номенклатурой погонажных профилей и деталей;
- тип и марки дюбелей для крепления к основанию (существующей стене) деталей несущей подсистемы и плит утеплителя.
2.5. Цвет и фактуру облицовочных панелей «Полиалпан» определяет главный архитектор проекта, если эти данные отсутствуют в задании на проектирование.
2.6. В качестве утеплителя следует принимать минераловатные плиты на синтетическом связующем или другие негорючие утеплители, на которые имеются технические свидетельства Госстроя России, разрешающие их применение в фасадных системах с вентилируемым воздушным зазором, например, минераловатные плиты типа «Лайт-баттс» для слоя, примыкающего к основанию (стене), и плит типа «Венти-баттс» для слоя, обращенного к воздушному зазору. Поверхность минераловатных плит, контактирующую с воздушным зазором, во избежание ветровой эрозии желательно кашировать. Толщина плит утеплителя определяется теплотехническим расчетом (см. приложение 2).
2.7. Схему размещения на фасаде здания деталей несущей подсистемы принимают с учетом следующих факторов:
- геометрии фасада, размещения на нем оконных проемов, балконов, лоджий, карнизов, тяг и других архитектурных деталей;
- прочности основания (стены) и фактическими значениями усилия вырыва крепежных дюбелей;
- результатов прочностных расчетов, определяющих допускаемые расстояния между кронштейнами, горизонтальными несущими профилями и другими крепежными деталями;
- расстояние между крепежными поясами не следует назначать более 600-800 мм, при этом под карнизом и у углов здания это расстояние следует уменьшить вдвое; расстояние между кронштейнами по горизонтали не должно превышать 600-800 мм, а в двухметровой зоне у углов и под карнизом здания это расстояние необходимо уменьшить вдвое, поскольку там аэродинамическая нагрузка (ветровой напор и отсос) возрастают вдвое.
2.8. Тип и марку дюбелей для крепления к основанию несущих кронштейнов и плит утеплителя принимают, исходя из следующих условий:
- наличия Технического свидетельства Госстроя России, разрешающего применение данных дюбелей в фасадных системах с вентилируемым воздушным зазором;
- материала основания;
- результатов испытания дюбелей на вырывание;
- прочностных расчетов системы;
- толщины слоя утеплителя.
3.1. Система «Полиалпан» принципиально отличается от других фасадных систем тем, что в ней облицовочные панели выполнены с теплоизолирующим слоем, благодаря чему в воздушном зазоре температура на несколько градусов выше, чем в атмосфере, за счет этого толщина слоя утеплителя соответственно уменьшается.
3.2. Облицовочные панели выполнены трехслойными. Наружный слой представляет собой металлический лист толщиной 0,5 мм из сплава алюминия, марганца и магния с фактурой лицевой поверхности под декоративную штукатурку, дерево и т.п. Лист покрыт с обеих сторон лаком горячей сушки, толщина слоя лака на лицевой стороне листа - 24 мкм, на тыльной - 5 мкм. Стандартная гамма отделок лакового покрытия содержит более 20 цветов.
Теплоизоляционный слой толщиной 25 и 40 мм выполнен из твердого пенополиуретана плотностью 40-60 кг/м3, прочно скрепленного с наружным и внутренним металлическими слоями силами адгезионного сцепления.
Внутренний слой представляет собой легированную алюминиевую фольгу толщиной 0,05 мм.
Панели соединяют друг с другом водонепроницаемым механическим замком.
Для исключения коррозионных процессов между внутренней частью панели и несущим горизонтальным профилем прокладывается полиэтиленовая пленка.
3.3. Основные детали несущей подсистемы выполняют из стальных гнутых оцинкованных профилей ПН-2 швеллерного типа высотой 50 мм, полкой - 40 мм и толщиной листа - 0,6 мм. Следует применять такие профили с толщиной оцинковки 40-60 мкм (тип П).
3.4. Кронштейны изготавливают из профиля ПН-2 требуемой длины путем поперечного разреза полок и сгибания профиля под прямым углом. В местах совмещения полок швеллера их соединяют саморезами (рис. 1), обеспечив жесткую фиксацию кронштейна. В горизонтальной стенке швеллера на конце кронштейна, где к нему прикрепляется горизонтальный несущий профиль, делают два параллельных надреза длиной 70-80 мм, образуя отгибную пластину, к которой сверху саморезом крепят горизонтальный несущий профиль. Такое решение позволяет при температурных деформациях облицовочной панели обеспечивать вертикальное перемещение горизонтального несущего профиля.
3.5. Кронштейны несущей подсистемы предусмотрены двух типов: несущие и поддерживающие. Несущие, в отличие от поддерживающих, описанных в п. 3.4, дополнительно снабжены подкосом из профиля ПН-2, закрепляемого с помощью саморезов. Несущие кронштейны располагают в нижнем и верхнем поясах крепления облицовочной панели, поддерживающие - в промежуточных поясах. Несущие кронштейны, помимо восприятия ветрового напора и отсоса, воспринимают также вес облицовочных панелей; поддерживающие кронштейны в основном работают на ветровой напор и отсос.
3.6. Работает механизм компенсации температурных деформаций облицовочных панелей следующим образом:
При нагреве и температурном удлинении облицовочных панелей их вес воспринимают нижние несущие кронштейны (рис. 2), поддерживающие и верхние несущие кронштейны воспринимают только нагрузки от ветрового напора и отсоса. При отрицательных температурах, когда происходит укорочение облицовочных панелей, их вес воспринимают верхние несущие кронштейны, а нижние и поддерживающие кронштейны работают только на ветровой напор и отсос. При промежуточных температурных воздействиях поддерживающие кронштейны могут воспринимать часть нагрузки от веса облицовочных панелей.
Такое конструктивное решение несущей подсистемы позволяет использовать при облицовке фасадов панели длиной до 12 м и более.
3.7. Воздухозаборные щели, обеспечивающие поступление воздуха в вентилируемую воздушную прослойку, и воздуховыводящие щели, служащие для эвакуации воздуха, должны перекрываться перфорированными профилями во избежание попадания внутрь системы посторонних предметов или биоты. При этом суммарная площадь отверстий должна быть не менее 50 % от площади воздухозаборной или воздуховыводящей щели. Размеры щелей, сечение воздушной прослойки и других аэродинамических компонентов должны рассчитываться в зависимости от климатических условий того или иного региона на основе допустимого влажностного режима системы. Такой расчет для Московского и Ханты-Мансийского регионов приведен в приложении 2.
3.8. Конструктивные решения всех основных узлов системы представлены на рисунках 3-25. Конструктивные параметры, связанные с климатическими особенностями того или иного региона, даны применительно к упомянутым выше регионам (в скобках - для Ханты-Мансийска).
3.9. Крепления плит утеплителя к основанию осуществляют с помощью дюбелей по технологии, принятой в других фасадных системах. Следует только отметить, что наличие кронштейнов позволяет обходиться без монтажного приклеивания минераловатных плит к основанию, ограничиваясь только механическим креплением посредством дюбелей.
3.10. Прочностные расчеты несущей подсистемы, включая учет температурных воздействий, для условий регионов Москвы и Ханты-Мансийска даны в приложении 1.
3.11. Номенклатура несущих профильных элементов, профилей для фасадной отделки системы «Полиалпан», крепежных деталей приведены в приложении 3. Там же дан примерный расход материалов на один квадратный метр отделываемой стены.
4.1. Для выполнения работ по монтажу системы здание разбивают на захватки и определяют порядок и последовательность перемещения монтажников с одной захватки на другую.
4.2. Величину захваток и их количество в каждом случае определяют с учетом многих факторов, в том числе размеров фасада здания, численности бригады монтажников, оснащением строительной организации оборудованием и оснасткой, условиями комплектации строительства материалами, изделиями и др. Захваткой может быть вся высота здания (при высоте здания не более 18 м), или часть высоты при наличии промежуточных карнизов, поясков и т.п. Разбивка фасадов здания на захватки и выбор средств для работы монтажников на высоте выполняются в проекте организации строительства или в технологических картах.
4.3. Монтаж системы необходимо выполнять только с инвентарных строительных лесов.
Конструкция лесов для защиты рабочих мест от некоторых неблагоприятных атмосферных воздействий должна быть приспособлена для устройства сетчатых и пленочных покрытий.
Рекомендуемые типы лесов приведены в таблице 1 и показаны на рис. 26.
Таблица 1.
|
Краткая характеристика |
Разработчик, завод-изготовитель |
|
|
Леса универсальные ЛСПХ-40 для отделочных работ на фасадах зданий, выполненные в соответствии с ГОСТ 27321 |
Конструкция: трубчатые, приставные, хомутовые. Максимальная высота лесов - 40 м. Шаг яруса - 2 м. Шаг стоек вдоль стены - 2,5 м. Ширина яруса (прохода) - 1,25 м. Нормативная поверхностная нагрузка - 200 кгс/м2. Настил - деревянный. Масса комплекта - 16,3 т на 1000 м2 площади фасада |
ЦНИИОМТП |
|
Леса клиновые ЛСПК-40 для отделочных работ на фасадах зданий, выполненные в соответствии с ГОСТ 27321 |
Конструкция: трубчатые, приставные, клиновые. Максимальная высота лесов - 40 м. Шаг яруса - 2 м. Шаг стоек вдоль стены - 2,5 м. Ширина яруса (прохода) - 1,25 м. Нормативная поверхностная нагрузка - 200 кгс/м2. Масса комплекта - 11,3 т на 1000 м2 площади фасада |
ЦНИИОМТП |
4.4. При монтаже системы на реконструируемых зданиях работы начинают с очистки фасадов от несвязанных с основанием элементов, таких как отслоившаяся штукатурка, краска и т.п. Кроме того, фасад необходимо освободить (демонтировать) от специальных устройств: водосточных труб, различных кронштейнов, антенн, вывесок и др. В отдельных случаях необходимо провести работы по выравниванию плоскостей фасадов для последующего плотного прилегания плит утеплителя.
4.5. Монтаж системы начинают с разметки фасада, установки маяков, по которым будут устанавливать и крепить кронштейны. Разметку необходимо производить с помощью геодезических приборов, высокоточных уровней с большой базой, отвесов.
4.6. После разметки фасада в нем сверлят отверстия под дюбели для крепления кронштейнов к основанию посредством анкерных винтов. Для снижения теплопередачи в местах примыкания кронштейнов к основанию устанавливают паронитовые прокладки.
В случаях, когда основанием служит кирпичная кладка, нельзя устанавливать дюбели в швы кладки, при этом расстояние от центра дюбеля до ложкового шва должно быть не менее 35 мм, а от тычкового - 60 мм. Минимальное расстояние от края конструкции до оси дюбеля оговаривается в специальных рекомендациях фирмы-изготовителя и регламентируется в проекте организации строительства.
4.7. К кронштейнам саморезами крепят горизонтальные несущие профили, положение которых необходимо проверять соответствующими приборами и инструментами, поскольку от точности установки этих профилей зависит плоскостность облицовываемого фасада в пределах проектных допусков.
4.8. К началу монтажа плит утеплителя захватка, на которой производят работы, должна быть укрыта от попадания влаги на стену и плиты утеплителя. Исключением могут быть случаи, когда монтажники не покидают рабочие места до тех пор, пока все установленные плиты утеплителя защитят ветровлагозащитной пленкой.
4.9. Монтаж плит утеплителя начинают с нижнего ряда, который устанавливают на стартовый профиль, цоколь или другую соответствующую конструкцию, и ведут снизу-вверх. Если плиты утеплителя предусмотрено устанавливать в 2 ряда, например при использовании разных марок («Лайт-баттс» и «Венти-баттс») необходимо обеспечивать перекрывание швов в рядах. Плиты утеплителя следует устанавливать плотно друг к другу так, чтобы в швах и между рядами не было пустот. Если избежать пустот невозможно, они должны быть заделаны тем же материалом. Для крепления плит утеплителя к основанию рекомендуется применять пластмассовые дюбели тарельчатого типа с распорными стержнями. При использовании влаговетрозащитной пленки каждую устанавливаемую плиту утеплителя сначала закрепляют двумя дюбелями, а после укрытия пленкой нескольких рядов устанавливают все предусмотренные проектом дюбели. Полотнища пленки располагают с перехлестом 100 мм.
4.10. Монтаж облицовочных панелей начинают после завершения установки всех плит утеплителя на данной захватке. В процессе их монтажа необходимо следить за тем, чтобы воздушная вентилируемая прослойка была чиста и не перекрывалась плитами утеплителя или посторонними предметами.
4.11. В процессе монтажа фасадной системы должен выполняться пооперационный контроль качества работ и составляться акты на скрытые работы. Это выполняется в соответствии с действующей в подрядной организации «Системой управления контролем качества продукции».
4.12. Работы по монтажу системы могут выполнять организации, имеющие лицензию на производство строительных работ, при условии, что специалисты этих организаций прошли обучение в ООО «ПОЛИАЛПАН» на право выполнения работ по монтажу системы.
5.1. В процессе строительства и эксплуатации здания не разрешается крепить непосредственно к облицовочным панелям любые детали или устройства, кроме тех, на которые получены разрешения ООО «ПОЛИАЛПАН».
5.2. Содержать желоба на крыше и водостоки в исправном состоянии, чтобы исключить попадание грязи, смываемой с крыши и водостоков на поверхность фасада из облицовочных панелей.
5.3. При необходимости поддержания должного внешнего вида фасада здания рекомендуется производить периодическую очистку (промывку) водой лицевых поверхностей панелей от оседающих атмосферных загрязнений.
5.4. Панели с крупными дефектами, не подлежащими восстановлению, могут быть частично вырезаны и заменены другими в соответствии с инструкциями (рекомендациями) ООО «ПОЛИАЛПАН».
6.1. Состав рабочего проекта или рабочей документации на фасадную систему «Полиалпан» должен включать общую пояснительную записку, архитектурную и конструктивную части, раздел по решению архитектурных деталей, специальные части (водосток, антенны, реклама и др.), а также сметы.
6.2. В общей пояснительной записке приводятся:
- архитектурная концепция решения фасадов здания и отдельных архитектурных элементов;
- данные о конструктивном решении системы и ее элементов;
- данные о решении специальных устройств на фасаде;
- данные об эффективности энергосбережения принятых технических решений, результаты теплотехнических расчетов;
- экологическая характеристика системы;
- основные технико-экономические показатели.
6.3. Архитектурная часть включает чертежи фасадов здания, отдельных архитектурных деталей и узлов. На чертежах приводится цветовое решение фасада и его отдельных частей.
6.4. Конструкторская часть включает чертежи всех конструктивных элементов системы с узлами и деталями, а также полную спецификацию всех применяемых материалов и изделий.
6.5. Специальная часть содержит чертежи фасадов с привязкой мест размещения специальных устройств (водостоков, реклам, вывесок т.п.), узлы и детали крепления этих устройств, а также характеристики оборудования, материалов и изделий, предусмотренных проектом. Кроме того, проектом должны быть предусмотрены устройства, обеспечивающие регламентное и бережное обслуживание фасада (включая очистку) в процессе его эксплуатации.
6.6. Сметы на устройство системы составляют на основе действующих нормативов, единичных расценок, фактической стоимости оборудования и материалов, а также утвержденных заказчиком калькуляций на отдельные виды работ.
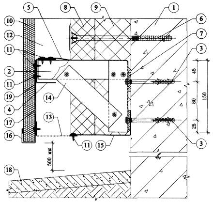
1. Горизонтальный несущий профиль ПН-2.
2. Отгибаемая пластина.
3. Кронштейн из ПН-профиля.
4. Подкос.
5. Саморез с прессшайбой.
6. Надрез.
Рис. 1. Присоединение горизонтального профиля ПН-2 к кронштейну:
а - к поддерживающему; б - к несущему.
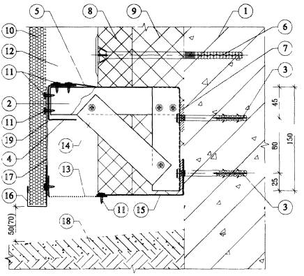
1. Кронштейн, воспринимающий вес конструкции при удлинении
2. Кронштейн, воспринимающий вес конструкции при укорочении
Рис. 2. Схема работы узлов системы при температурных деформациях:
а - при монтаже; б - при удлинении; в - при укорочении
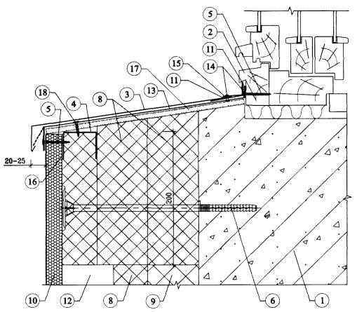
1. Существующая стена.
2. Угол здания.
3. Кронштейн из ПН-профиля.
4. Кронштейн из ПН-профиля с подкосом.
5. Промежуточный (рядовой) пояс.
6. Верхний несущий пояс.
7. Нижний несущий пояс.
8. Дополнительная угловая обрешетка (выше 3,5 м угол усиливается дополнительной обрешеткой на расстоянии 1,5 м от угла).
Рис. 3. Схема расположения обрешетки из ПН-профиля на фасаде здания.

1. Существующая стена.
2. Угол здания.
3. Балконная плита.
4. Оконный проем.
5. Балконный проем.
6. Противопожарная рассечка.
7. Противопожарный пояс (не реже, чем через 7,2 м по высоте здания).
Рис. 4. Схема расположения противопожарных поясов и рассечек на фасаде здания.

1. Существующая стена.
2. Утеплитель, стойкий к ветровой эрозии.
3. Утеплитель.
4. Рондель.
5. Воздушная прослойка.
6. Фасадная панель «Полиалпан»
Рис. 5. Вертикальный разрез узла противопожарного пояса.

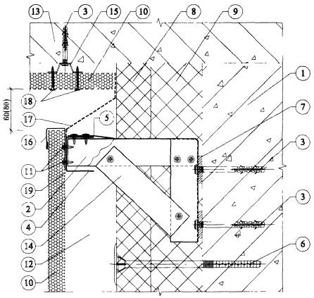
1. Существующая стена.
2. Кронштейн из профиля ПН-2.
3. Пластмассовый дюбель со стальным сердечником.
4. Горизонтальный несущий профиль ПН-2.
5. Отгибаемая пластина.
6. Рондель.
7. Паронитовая шайба.
8. Утеплитель, стойкий к ветровой эрозии.
9. Утеплитель.
10. Фасадная панель «Полиалпан»
11. Саморез с прессшайбой.
12. Воздушная прослойка
13. Полиэтиленовая пленка.
Рис. 6. Вертикальный разрез промежуточного узла крепления системы.

1. Существующая стена.
2. Кронштейн из профиля ПН-2.
3. Пластмассовый дюбель со стальным сердечником.
4. Горизонтальный несущий профиль ПН-2.
5. Отгибаемая пластина.
6. Рондель.
7. Паронитовая шайба.
8. Утеплитель, стойкий к ветровой эрозии.
9. Утеплитель.
10. Фасадная панель «Полиалпан».
11. Саморез с прессшайбой.
12. Воздушная прослойка.
13. Силиконовый герметик.
14. Подкос из профиля ПН-2 (L = 150 мм)
15. Отделочный профиль № 2 с дренажными отверстиями.
16. Отделочный профиль № 2.
17. Отделочный профиль № 4.
18. Полиэтиленовая пленка.
Рис. 7. Вертикальный разрез несущего узла крепления системы на стыке панелей «Полиалпан».

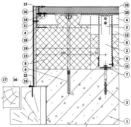
1. Существующая стена.
2. Кронштейн из профиля ПН-2.
3. Пластмассовый дюбель со стальным сердечником.
4. Горизонтальный несущий профиль ПН-2.
5. Отгибаемая пластина.
6. Рондель.
7. Паронитовая шайба.
8. Утеплитель, стойкий к ветровой эрозии.
9. Утеплитель.
10. Фасадная панель «Полиалпан».
11. Саморез с прессшайбой.
12. Воздушная прослойка.
13. Вертикальный стык панелей «Полиалпан».
14. Надрез.
15. Полиэтиленовая пленка.
Рис. 8. Горизонтальный разрез несущего узла крепления системы на стыке панелей «Полиалпан».

1. Существующая стена.
2. Кронштейн из профиля ПН-2.
3. Пластмассовый дюбель со стальным сердечником.
4. Горизонтальный несущий профиль ПН-2.
5. Отгибаемая пластина.
6. Рондель.
7. Паронитовая шайба.
8. Утеплитель, стойкий к ветровой эрозии.
9. Утеплитель.
10. Фасадная панель «Полиалпан»
11. Саморез с прессшайбой.
12. Воздушная прослойка
13. Перфорированный оцинкованный стальной профиль.
14. Подкос из профиля ПН-2 (L = 150 мм).
15. Оцинкованный стальной профиль.
16. Отделочный профиль № 2 с дренажными отверстиями.
17. Оцинкованная стальная пластина δ = 0,5 мм.
18. Отмостка.
19. Полиэтиленовая пленка (условно не показана).
Рис. 9. Вертикальный разрез несущего узла крепления системы по цоколю.

1. Существующая стена.
2. Кронштейн из профиля ПН-2.
3. Пластмассовый дюбель со стальным сердечником.
4. Горизонтальный несущий профиль ПН-2.
5. Отгибаемая пластина.
6. Рондель.
7. Паронитовая шайба.
8. Утеплитель, стойкий к ветровой эрозии.
9. Утеплитель.
10. Фасадная панель «Полиалпан».
11. Саморез с прессшайбой.
12. Воздушная прослойка
13. Перфорированный оцинкованный стальной профиль.
14. Подкос из профиля ПН-2 (L = 150 мм).
15. Оцинкованный стальной профиль.
16. Отделочный профиль № 2 с дренажными отверстиями.
17. Оцинкованная стальная пластина δ = 0,5 мм.
18. Отмостка.
19. Полиэтиленовая пленка (условно не показана).
Рис. 10. Вертикальный разрез несущего узла крепления системы по цоколю (для частных зданий).

1. Существующая стена.
2. Кронштейн из профиля ПН-2.
3. Пластмассовый дюбель со стальным сердечником.
4. Горизонтальный несущий профиль ПН-2.
5. Отгибаемая пластина.
6. Рондель.
7. Паронитовая шайба.
8. Утеплитель, стойкий к ветровой эрозии.
9. Утеплитель.
10. Фасадная панель «Полиалпан».
11. Саморез с прессшайбой.
12. Воздушная прослойка
13. Отделочный профиль №11.
14. Саморез с потайной головкой.
15. Силиконовый герметик.
16. Вертикальный стык панелей «Полиалпан».
17. Заклёпка.
18. Полиэтиленовая пленка (условно не показана).
Рис. 11. Горизонтальный разрез узла внешнего угла системы (с профилем № 11).

1. Существующая стена.
2. Кронштейн из профиля ПН-2.
3. Пластмассовый дюбель со стальным сердечником.
4. Горизонтальный несущий профиль ПН-2.
5. Отгибаемая пластина.
6. Рондель.
7. Паронитовая шайба.
8. Утеплитель, стойкий к ветровой эрозии.
9. Утеплитель.
10. Фасадная панель «Полиалпан».
11. Саморез с прессшайбой.
12. Воздушная прослойка.
13. Отделочный профиль № 2.
14. Саморез с потайной головкой.
15. Силиконовый герметик.
16. Заклёпка.
17. Полиэтиленовая пленка (условно не показана).
Рис. 12. Горизонтальный разрез узла внешнего угла системы (с профилем № 2).

1. Существующая стена.
2. Кронштейн из профиля ПН-2.
3. Пластмассовый дюбель со стальным сердечником.
4. Горизонтальный несущий профиль ПН-2.
5. Отгибаемая пластина.
6. Рондель.
7. Паронитовая шайба.
8. Утеплитель, стойкий к ветровой эрозии.
9. Утеплитель.
10. Фасадная панель «Полиалпан».
11. Саморез с прессшайбой.
12. Воздушная прослойка.
13. Отделочный профиль № 12.
14 Саморез с потайной головкой.
15. Силиконовый герметик.
16. Заклёпка.
17. Полиэтиленовая пленка (условно не показана).
Рис. 13. Горизонтальный разрез узла внешнего угла системы (с профилем № 12).

1. Существующая стена.
2. Кронштейн из профиля ПН-2.
3. Пластмассовый дюбель со стальным сердечником.
4. Горизонтальный несущий профиль ПН-2.
5. Отгибаемая пластина.
6. Рондель.
7. Паронитовая шайба.
8. Утеплитель, стойкий к ветровой эрозии.
9. Утеплитель.
10. Фасадная панель «Полиалпан».
11. Саморез с прессшайбой.
12. Воздушная прослойка.
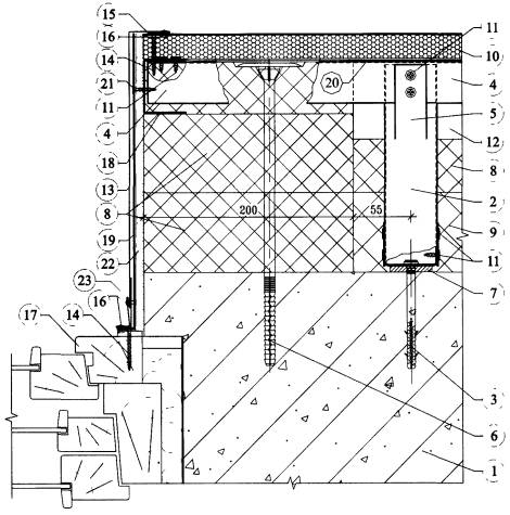
13. Карнизная часть.
14. Подкос из профиля ПН-2 (L = 150 мм).
15. Оцинкованный стальной профиль.
16. Отделочный профиль № 2.
17. Перфорированный оцинкованный стальной профиль.
18. Саморез с потайной головкой.
19. Полиэтиленовая пленка (условно не показана).
Рис. 14. Вертикальный разрез узла примыкания системы к карнизу.

1. Существующая стена.
2. Кронштейн из профиля ПН-2.
3. Пластмассовый дюбель со стальным сердечником.
4. Горизонтальный несущий профиль ПН-2.
5. Отгибаемая пластина.
6. Рондель.
7. Паронитовая шайба.
8. Утеплитель, стойкий к ветровой эрозии.
9. Утеплитель.
10. Фасадная панель «Полиалпан».
11. Саморез с прессшайбой.
12. Воздушная прослойка.
13. Карнизная часть (кобылка).
14. Подкос из профиля ПН-2 (L = 150 мм).
15. Оцинкованный стальной профиль.
16. Отделочный профиль № 2.
17. Перфорированный оцинкованный стальной профиль.
18. Саморез с потайной головкой.
19. Полиэтиленовая пленка (условно не показана).
Рис. 15. Вертикальный разрез узла примыкания системы к стропильной кровле.

1. Существующая стена.
2. Кронштейн из профиля ПН-2.
3. Горизонтальный профиль ПН-2.
4. Горизонтальный несущий профиль ПН-2.
5. Вертикальный профиль ПН-2.
6. Рондель.
7. Минераловатная рассечка.
Рис. 16. Схема примыкания каркаса из ПН-профиля и минераловатных рассечек к дверному проему.

1. Существующая стена.
2. Дверной блок.
3. Отделочный профиль № 7.
4. Горизонтальный профиль ПН-2.
5. Саморез с потайной головкой Ø 3,2 × 51.
6. Рондель.
7. Заклепка.
8. Утеплитель, стойкий к ветровой эрозии.
9. Утеплитель.
10. Фасадная панель «Полиалпан».
11. Силиконовый герметик.
12. Воздушная прослойка.
13. Оцинкованный стальной лист δ = 0,5 мм.
14. Саморез с потайной головкой Ø 3,2 × 25.
15. Полиэтиленовая пленка (условно не показана).
16. Гипсоволокнистый влагостойкий лист.
Рис. 17. Вертикальный разрез узла дверного проема по верхнему откосу (с профилем № 7).

1. Существующая стена.
2. Кронштейн из профиля ПН-2.
3. Пластмассовый дюбель со стальным сердечником.
4. Горизонтальный несущий профиль ПН-2.
5. Отгибаемая пластина.
6. Рондель.
7. Паронитовая шайба.
8. Утеплитель, стойкий к ветровой эрозии.
9. Утеплитель.
10. Фасадная панель «Полиалпан».
11. Саморез с прессшайбой.
12. Воздушная прослойка.
13. Отделочный профиль № 12.
14 Саморез с потайной головкой Ø 3,2 × 51.
15. Силиконовый герметик.
16. Заклепка.
17. Дверной блок.
18. Вертикальный профиль ПН-2.
19. Оцинкованный стальной лист δ = 0,5 мм.
20. Полиэтиленовая пленка (условно не показана).
21. Саморез с потайной головкой Ø 3,2 × 25.
22. Гипсоволокнистый влагостойкий лист.
Рис. 18. Горизонтальный разрез узла дверного проема.

1. Существующая стена.
2. Кронштейн из профиля ПН-2.
3. Горизонтальный профиль ПН-2.
4. Горизонтальный несущий профиль ПН-2.
5. Вертикальный профиль ПН-2.
6. Рондель.
7. Минераловатная рассечка.
Рис. 19. Схема примыкания каркаса из ПН-профиля и минераловатных рассечек к оконному проему.

1. Существующая стена.
2. Дверной блок.
3. Отделочный профиль № 7.
4. Горизонтальный профиль ПН-2.
5. Саморез с потайной головкой.
6. Рондель.
7. Заклепка.
8. Утеплитель, стойкий к ветровой эрозии.
9. Утеплитель.
10. Фасадная панель «Полиалпан».
11. Силиконовый герметик.
12. Воздушная прослойка.
13. Оцинкованный стальной лист δ = 0,5 мм.
14. Саморез с потайной головкой Ø 3,2 × 51.
15. Полиэтиленовая пленка (условно не показана).
16. Гипсоволокнистый влагостойкий лист.
Рис. 20. Вертикальный разрез узла оконного проема по верхнему откосу (с профилем № 7)

1. Существующая стена.
2. Дверной блок.
3. Отделочный профиль № 10.
4. Горизонтальный профиль ПН-2.
5. Саморез с потайной головкой Ø 3,2 × 51.
6. Рондель.
7. Заклепка.
8. Утеплитель, стойкий к ветровой эрозии.
9. Утеплитель.
10. Фасадная панель «Полиалпан».
11. Силиконовый герметик.
12. Воздушная прослойка.
13. Оцинкованный стальной лист δ = 0,5 мм.
14. Саморез с потайной головкой Ø 3,2 × 25.
15. Оконный блок.
16. Полиэтиленовая пленка (условно не показана).
17. Гипсоволокнистый влагостойкий лист.
Рис. 21. Вертикальный разрез узла оконного проема по верхнему откосу (с профилями № 9 и № 10)

1. Существующая стена.
2. Дверной блок.
3. Отделочный профиль № 8.
4. Горизонтальный профиль ПН-2.
5. Саморез с потайной головкой Ø 3,2 × 51.
6. Рондель.
7. Отгиб через 400 мм.
8. Утеплитель, стойкий к ветровой эрозии.
9. Утеплитель.
10. Фасадная панель «Полиалпан».
11. Силиконовый герметик.
12. Воздушная прослойка.
13. Оцинкованный стальной лист δ = 0,5 мм.
14. Заклепка.
15. Полиэтиленовая пленка (условно не показана).
16. Саморез с потайной головкой Ø 3,2 × 25.
17. Гипсоволокнистый влагостойкий лист.
Рис. 22. Вертикальный разрез узла оконного проема по нижнему откосу (с профилем № 8)

1. Существующая стена.
2. Отделочный профиль № 8*.
3. Отделочный профиль № 9*.
4. Горизонтальный профиль ПН-2.
5. Саморез с потайной головкой Ø 3,2 × 51.
6. Рондель.
7. Отгиб через 400 мм.
8. Утеплитель, стойкий к ветровой эрозии.
9. Утеплитель.
10. Фасадная панель «Полиалпан».
11. Силиконовый герметик.
12. Воздушная прослойка.
13. Оцинкованный стальной лист δ = 0,5 мм.
14. Заклепка.
15. Оконный блок.
16. Полиэтиленовая пленка (условно не показана).
17. Гипсоволокнистый влагостойкий лист.
18. Саморез с потайной головкой Ø 3,2 × 25.
Рис. 23. Вертикальный разрез узла оконного проема по нижнему откосу (с профилями № 8* и № 9*)

1. Существующая стена.
2. Кронштейн из профиля ПН-2.
3. Пластмассовый дюбель со стальным сердечником.
4. Горизонтальный несущий профиль ПН-2.
5. Отгибаемая пластина.
6. Рондель.
7. Паронитовая шайба.
8. Утеплитель, стойкий к ветровой эрозии.
9. Утеплитель.
10. Фасадная панель «Полиалпан».
11. Саморез с прессшайбой.
12. Воздушная прослойка.
13. Отделочный профиль № 7.
14. Саморез с потайной головкой.
15. Силиконовый герметик.
16. Заклепка.
17. Оконный блок.
18. Вертикальный профиль ПН-2.
19. Оцинкованный стальной лист δ = 0,5 мм.
20. Полиэтиленовая пленка.
Рис. 24. Горизонтальный разрез узла оконного проема (с профилем № 7).
1. Существующая стена.
2. Кронштейн из профиля ПН-2.
3. Пластмассовый дюбель со стальным сердечником.
4. Горизонтальный несущий профиль ПН-2.
5. Отгибаемая пластина.
6. Рондель.
7. Паронитовая шайба.
8. Утеплитель, стойкий к ветровой эрозии.
9. Утеплитель.
10. Фасадная панель «Полиалпан».
11. Саморез с прессшайбой.
12. Воздушная прослойка.
13. Отделочный профиль № 10.
14. Саморез с потайной головкой.
15. Силиконовый герметик.
16. Заклепка.
17. Оконный блок.
18. Вертикальный профиль ПН-2.
19. Оцинкованный стальной лист δ = 0,5 мм.
20. Отделочный профиль № 9.
21. Полиэтиленовая пленка.
Рис. 25. Горизонтальный разрез узла оконного проема (с профилями № 9 и № 10).
Рис. 26. Средства подмащивания. Леса универсальные хомутовые ЛСПХ-40 (сборка из отдельных элементов).
1. Общие положения
Прочностные расчеты включают проверку прочности и деформаций основных несущих и ограждающих конструкций системы облицовки фасадов «Полиалпан», их соединений между собой и со стеной здания на действие нагрузок от собственного веса облицовочных панелей, давления ветра, а также изменений температуры наружного воздуха.
Нагрузки от собственного веса панелей и веса других конструкций принимаются по проекту. Ветровые нагрузки принимаются по СНиП [1] с учетом дополнительных коэффициентов и рекомендаций ЦНИИСКа, регламентированных письмом № 1-945 от 14.11.2001 г.
Усилия: изгибающие моменты; поперечные и продольные силы; прогибы определяются с использованием основных положений сопротивления материалов и строительной механики.
Коэффициенты надежности по нагрузкам γf, а также единый коэффициент надежности по ответственности γn = 0,95 принимают по СНиП [1].
2. Исходные данные
Система предназначается для устройства вентилируемого фасада. Высота зданий ограничивается 30 м, районы строительства - гг. Москва и Ханты-Мансийск и аналогичные им по ветровым нагрузкам.
Основные несущие конструкции - кронштейны и горизонтальные несущие профили (ГНП) изготавливаются из гнутых швеллеров ПН-2 из оцинкованной стали толщиной 0,6 мм, собственной массой 0,6 кг/м.
Кронштейны крепятся к стене с помощью пластмассовых дюбелей Ø 8 мм и распорных шурупов Ø 5,5 мм из оцинкованной стали. Горизонтальные несущие профили крепятся к кронштейнам саморезами с прессшайбой Ø 4,2 мм из оцинкованной стали.
Шаги кронштейнов в средних зонах фасада lx · hz,c = 0,8 · 0,8 м, в угловых зонах lx,e · hz,e = 0,8 · 0,4 м, шаги ГНП соответственно hz,c = 0,8 м и hz,e = 0,4 м.
Облицовка производится панелями «Полиалпан» шириной 0,5 м, длиной 12 м, толщиной 25 (40) мм, наружный несущий слой которых выполняется из алюминиевого сплава толщиной 0,5 мм, а теплоизолирующий слой из пенополиуретана плотностью 40-60 кг/м3, защищенный изнутри алюминиевой фольгой толщиной 0,05 мм. Собственная масса панелей 3,5 (4,2) кг/м2. Далее в расчетах принята толщина 25 мм (с δ = 40 мм, см. п. 12). Панели крепятся к ГНП шурупами - саморезами с прессшайбой Ø 4,2 мм из оцинкованной стали.
Дополнительное утепление - из минераловатных плит - крепится к стене независимо специальными ронделями, расчет которых не требуется.
Величина температурного перепада наружного воздуха для расчета принята Δt = 50 °С.
3. Расчетные характеристики материалов
Расчетные сопротивления наружного слоя панелей «Полиалпан» из алюминиевого сплава согласно [2] (МПа): на растяжение, сжатие и изгиб R = 120; на сдвиг Rs = 75; на смятие Rip = 90; модуль упругости Е = 7 · 104; заклепок: на срез Rrs = 70; на смятие Rrp = 110. Коэффициент условий работы γс = 1. Коэффициент линейного расширения α, °С-1 = 0,23 · 10-4.
Расчетные сопротивления несущих стальных профилей ПН-2 согласно [3] (МПа): на растяжение, сжатие и изгиб Ry = 230; на сдвиг Rs = 133; на смятие Rip = 175; модуль упругости Е = 21 · 104. Коэффициент условий работы γc = 1.
Расчетные сопротивления стальных шурупов и саморезов по [3] (МПа): на растяжение Rbt = 170; на срез Rbs = 150. Коэффициент условий работы на растяжение γв = 1; на срез γв = 0,8.
4. Расчетные схемы
Направления координатных осей приняты: ось x - горизонтальная в плоскости стены; ось y - горизонтальная по нормали к стене; ось z - вертикальная.
Расчетная схема панели «Полиалпан» в направлении оси z - многопролетная балка с пролетами lс = hc = 0,8 м и lе = hе = 0,4 м, неразрезная на средних опорах (ГНП) и шарнирно опертая на ГНП по концам (рис. П.1.1). Панель воспринимает нагрузки от собственного веса, давления (отсоса) ветра, а также от изменений температуры наружного воздуха (рис. П.1.2; П.1.3).
Облицовочные панели «Полиалпан» при перепадах температур получают деформации удлинения или укорочения в плоскости стены. При этом в направлении оси «х» благодаря небольшой ширине панелей в = 500 мм эти деформации относительно легко локализуются в вертикальных стыках между панелями. В направлении же оси «z» при длине (высоте) панелей Lz = 12 м в случае жесткого крепления панелей к ГНП и кронштейнам в последних могли бы возникать недопустимые напряжения.
Поэтому была принята особая конструкция крепления, с достаточно большой податливостью, позволяющая значительно снизить температурные усилия как в панелях, так и в кронштейнах. При этом величина удлинения всей панели должна компенсироваться в горизонтальных швах между торцами панелей.
Расчетная схема ГНП - многопролетная балка с пролетами lх = 0,8 м, неразрезная на средних опорах-кронштейнах и шарнирно опертая на кронштейны по концам (рис. П.1.4). ГНП воспринимают нагрузки от собственного веса, веса панелей и от ветра.
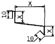
Расчетная схема кронштейнов - консоль (рис. П.1.5) с вылетом lk = 200 и 270 мм, зависящим от толщины слоя утеплителя и воздушного зазора (варианты - Москва и Ханты-Мансийск).
Основные несущие кронштейны, расположенные у низа и верха панелей на расстоянии Lz = 12 м, воспринимают все вышеперечисленные нагрузки, передаваемые через ГНП. Остальные, поддерживающие, кронштейны воспринимают аналогичную с основными ветровую нагрузку и уменьшенную за счет температурного перепада панелей вертикальную нагрузку. Собственным весом кронштейнов пренебрегают.
Соединения между элементами конструкций и со стеной рассчитываются на действие усилий растяжения, изгиба, сдвига (среза) и отрыва от совместного действия вышеперечисленных нагрузок.
Рис. П.1.1. Схема расчета панели «Полиалпан» на совместное действие вертикальной и горизонтальной нагрузок.
а - Nz - сжатие при (+Δt),
б - Nz - растяжение при (-Δt).
Рис. П.1.2. Схема расчета кронштейнов при повышении Δt панелей.
а, б - до и после деформирования (ГПН условно не показаны)
Рис. П.1.3. Схема расчета кронштейнов при понижении Δt панелей.
а, б - до и после деформирования (ГПН условно не показаны)
Рис. П.1.4 Расчетные схемы ГНП.
а - на вертикальные нагрузки,
б - на горизонтальные нагрузки
Рис. П.1.5. Расчетные схемы кронштейнов.
а - схема усилий,
б - момент от вертикальной нагрузки,
в - поперечная сила,
г - продольная сила.
Вертикальные нагрузки от веса панелей «Полиалпан»:
нормативная qzn = 3,5 · 101 = 35;
расчетная qz = 1,1 · 35 = 38,5 Н/м2.
Вертикальные нагрузки на ГНП:
от собственного веса ГНП qz(w)n =0,6 · 101 = 6; qz(w) = 1,1 · 6 = 6,6 Н/м;
от веса панелей:
в средних зонах фасада:
нормативная qz,cn = qzn · hz,c = 35 · 0,8 = 28;
расчетная qz,c = qz,cn · γf = 28 · 1,1 = 30,8 Н/м;
в угловых зонах: qz,en = qzn · hz,e = 35 · 0,4=14; qz,e = qz,en · γf = 14 · 1,1 = 15,4 Н/м;
суммарные qz,cn = 28 + 6 = 34; qz,c = 30,8 + 6,6 = 37,4;
qz,en = 14 + 6 = 20; qz,e = 15,4 + 6,6 = 22 Н/м.
Максимальная вертикальная расчетная нагрузка на несущие кронштейны (без учета температуры):
в средних зонах Nz,c = qz,c · lx (Lz / hz,c) = 37,4 · 0,8 (12 / 0,8) = 449 Н;
в угловых зонах Nz,e = qz,e · lx (Lz / hz,e) = 22 · 0,8 (12 / 0,4) = 528 Н.
За горизонтальную нагрузку принималось давление ветра на высоте 30 м.
Для I ветрового района (г. Москва) нормативное значение ветрового давления Wo = 0,23 кПа; коэффициент «К» для Н = 30 м, тип местности «В» по табл. 6 [1] К = 1; аэродинамический коэффициент для средних зон фасада Сс = 0,8, а с учетом пульсационной составляющей γр,с = 1,7 (согласно п.п. 6.7; 6.9 [1]) Сс = 0,8 · 1,7 = 1,36; для угловых зон Ce = -2, а с учетом γр,е = 1,3 (по рекомендации ЦНИИСКа) Се = [2] · 1,3 = 2,6.
Величина ветровых нагрузок для I района:
в средних зонах фасада:
нормативная qy,cn = Wo · К · Сс = 0,23 · 103 · 1 · 1,36 = 313;
расчетная qy,c = qy,cn · γf = 313 · 1,4 = 438 Н/м2;
в угловых зонах qy,en = Wo · К · Сe = 0,23 · 103 · 1 · 2,6 = 598;
qу,е = qy,en · γf = 598 · 1,4 = 837 Н/м2.
Для III ветрового района (г. Ханты-Мансийск) Wo = 0,38 кПа; при остальных тех же коэффициентах, как и для I района, нагрузки пропорциональны отношению Woi, т.е. 0,38 / 0,23 = 1,65, с учетом этого
в средних зонах фасада: qy,cn = 313 · 1,65 = 516; qy,c = 438 · 1,65 = 723 Н/м2;
в угловых зонах qy,en = 598 · 1,65 = 987; qy,e = 837 · 1,65 = 1381 Н/м2.
Горизонтальные нагрузки на 1 м высоты панели:
для I района:
нормативные: qy,cn = qy,cn · в = 313 · 0,5 = 157 Н/м; qy,en = 598 · 0,5 = 299 Н/м;
расчетные qy,c = qy,c в = 438 · 0,5 = 219; qy,e = 837 · 0,5 = 418 Н/м;
для III района:
нормативные: qy,cn = qy,cn · в = 516 · 0,5 = 258; qy,en = 987 · 0,5 = 494 Н/м;
расчетные qy,c = qy,c в = 723 · 0,5 = 362; qy,e = 1381 · 0,5 = 691 Н/м.
Горизонтальные нагрузки на 1 м длины ГНП:
для I района:
нормативные: qy,cn = qy,cn · hz,c = 313 · 0,8 = 250; qy,en = qy,en · hz,e = 598 · 0,4 = 239 Н/м;
расчетные qy,c = 438 · 0,8 = 350; qy,e = 837 · 0,4 = 335 Н/м;
для III района:
нормативные: qy,cn = 516 · 0,8 = 413; qy,en = 987 · 0,4 = 395 Н/м;
расчетные qy,c = 723 · 0,8 = 578; qy,e = 1381 · 0,4 = 552 Н/м.
Горизонтальные расчетные нагрузки на кронштейны при грузовых площадях:
в средних зонах фасада Агрс = 0,8 · 0,8 = 0,64 м2,
в угловых зонах Агре = 0,8 · 0,4 = 0,32 м2:
для I района: Ny,c = qy,c · Агрс = 438 · 0,64 = 280 Н; Ny,e = qy,e · Агре = 837 · 0,32 = 268 Н;
для III района: Ny,c = 723 0,64 = 463 Н; Ny,e = 1381 · 0,32 = 442 H.
а) В панелях «Полиалпан».
Изгибающие моменты от горизонтальных ветровых нагрузок по формуле
M(y)i = Kтабл · qy,i · h2z,i:
для I района:
нормативные: M(y)cn = 0,105 · 157 · 0,82 = 10,55; M(y)en = 0,105 · 299 · 0,42 = 5,02 Нм;
расчетные: M(y)c = 0,105 · 219 · 0,82 = 14,72; M(y)e = 0,105 · 418 · 0,42 = 7,02 Нм;
для III района:
нормативные: M(y)cn = 0,105 · 258 · 0,82 = 17,34; M(y)en = 0,105 · 494 · 0,42 = 8,3 Нм;
расчетные: М(у)с = 0,105 · 362 · 0,82 = 24,33; М(у)е = 0,105 · 691 · 0,42 = 11,61 Нм.
Продольная растягивающая или сжимающая (в зависимости от знака Δt) сила, собираемая с высоты (длины) панели Lz = 12 м:
Nz = qz · в · Lz (собств. вес) + nкр · Nt (от Δt, см. п. 9);
в средних зонах фасада:
для I и III районов Nz,c = 38,5 · 0,5 · 12 + 15 · 3,4 = 231 + 51 = 282 Н;
в угловых зонах Nz,e = 231 + 30 · 3,4 = 333 Н.
Поперечные силы от горизонтальных нагрузок по формуле
Qy,i = qy,i · hz,i / 2 + M(y)i / hz,i;
для I района: Qy,c = 219 · 0,8 / 2 + 14,72 / 0,8 = 106 Н;
Qy,e = 418 · 0,4 / 2 + 8,3 / 0,4 = 104,4 Н;
для III района: Qy,с = 362 · 0,8 / 2 + 24,33 / 0,8 = 175,2 Н;
Qy,e = 691 · 0,4 / 2 + 13,69 / 0,4 = 172,4 Н.
б) В горизонтальных несущих профилях (ГНП):
Изгибающие моменты по формуле
Мi = Ктабл. · qi · lx2:
1) от вертикальных нагрузок:
нормативные: М(z)cn = 0,107 · 34 · 0,82 = 2,31; М(z)en = 0,107 · 20 · 0,82 = 1,36 Нм;
расчетные: M(z)c = 0,107 · 37,4 · 0,82 = 2,61; M(z)e = 0,107 · 22 · 0,82 = 1,5 Нм;
2) от горизонтальных нагрузок:
для I района:
нормативные: М(y)cn = 0,107 · 250 · 0,82 = 17; М(y)en = 0,107 · 239 · 0,82 = 16,3;
расчетные: М(y)c = 0,107 · 350 · 0,82 = 23,8; М(у)е = 0,107 · 335 · 0,82 = 22,8 Нм;
для III района: М(y)cn = 0,107 · 413 · 0,82 = 28,1; М(y)en = 0,107 · 395 · 0,82 = 26,9;
М(y)c = 0,107 · 578 · 0,82 = 39,3; М(y)e = 0,107 · 552 · 0,82 = 37,5 Нм.
Поперечные силы по формуле
Qi = qi · lx / 2 + Mi / lx:
1) от вертикальной расчетной нагрузки: Qz,c = 37,4 · 0,8 / 2 + 2,61 / 0,8 = 18,2;
Qz,e = 22 · 0,8 / 2 + 1,5 / 0,8 = 10,7 Н;
2) от горизонтальных расчетных нагрузок:
для I района: Qy,c = 350 · 0,8 / 2 + 23,8 / 0,8 = 169,8;
Qy,e = 335 · 0,8 / 2 + 22,8 / 0,8 = 162,5 Н;
для III района: Qy,c = 578 · 0,8 / 2 + 39,3 / 0,8 = 280,3;
Qy,e = 552 · 0,8 / 2 + 37,5 / 0,8 = 267,7 Н.
в) в несущих кронштейнах
Усилия от вертикальной расчетной нагрузки: по формуле
Nz = Nz(w) (от веса панелей и ГНП - см. п. 5) + nкр · Nt (от Δt, см. п. 9);
для I и III районов в средних зонах фасада:
Nz,c = 449 + 15 · 3,4 (то же, что в панелях, см. выше) = 500 Н;
в угловых зонах: Nz,e = 528 + 30 · 3,4 = 630 Н.
Изгибающие моменты от расчетной вертикальной нагрузки при расчетных вылетах консолей lk = 200 - 30 = 170 мм (I район) и lk = 270 - 30 = 240 мм (III район)
Mz(i) = Nz,i · lk,i:
для I района:
в средних зонах фасада М(z)с = 500 · 170 · 10-3 = 85;
в угловых зонах M(z)e = 630 · 170 · 10-3 = 107,1 Нм;
для III района соответственно:
в средних зонах фасада М(z)с = 500 · 240 · 10-3 = 120;
в угловых зонах M(z)e = 630 · 240 · 10-3 = 151,2 Нм.
От горизонтальных расчетных нагрузок, воспринимаемых всеми кронштейнами, в средних зонах фасада сжимающие усилия для I и III районов Ny,с = 280 и 463 Н; в угловых зонах растягивающие усилия для I и III районов Ny,c = 268 и 442 Н (см. п. 5).
г) В соединениях между элементами и стеной
Учитывается дополнительный коэффициент увеличения средней составляющей ветрового давления γm = 1,2 по рекомендации ЦНИИСКа (см. п. 1).
1) между панелями «Полиалпан» и ГНП:
от вертикальной расчетной нагрузки с учетом Δt
Qz = Nzmax (в угловых зонах I района) = 333 Н (см. выше);
от горизонтального расчетного усилия растяжения вследствие отрицательного давления ветра (отсоса) для III района
Ny = Ny,emax · γm = qy,e · в · hz,e · γm = 1381 · 0,5 · 0,4 · 1,2 = 331 Н.
2) между ГНП и кронштейнами:
от вертикальных усилий растяжения, возникающих от Δt
Nz = Ny(t)max (в угловых зонах I района, см. выше) = nкр · Nt = 30 · 3,4 = 102 Н;
от горизонтальной ветровой нагрузки с максимумом в средних зонах фасада для III района Qy = Ny,cmax = qy,c · γm · lx · hz,c = 723 · 1,2 · 0,8 · 0,8 = 555 Н.
3) между ветвями кронштейна: горизонтальное усилие сжатия в средних зонах фасада от расчетной ветровой нагрузки III района Ny = Ny,cmax = 463 Н (см. п. 6), прикладываемое на уровне центра тяжести горизонтальной ветви - консоли на расстоянии zц.т = 12 мм от верха; изгибающие моменты в консоли определяются в зависимости от величины ее вылета (см. п.п. 9 и 10).
4) между несущим кронштейном и стеной: максимальное горизонтальное усилие растяжения от расчетной ветровой нагрузки (отсоса) для III района Ny = Nymax = qy,e · γm · lх · hz,e = 1381 · 1,2 · 0,8 · 0,4 = 530 Н; максимальное вертикальное расчетное усилие в угловых зонах I района Nz = Nz,emax = 630 Н (см. п. 6);изгибающий момент определяется в зависимости от величины вылета верхней ветви - консоли (см. п.п. 9 и 10).
7. Проверка прочности и жесткости облицовочных панелей «Полиалпан»
Геометрические характеристики поперечного сечения панелей (пенополиуретаном пренебрегают, в запас < 1 %):
А = 331 мм2; J = 22953 мм4; W = 1126 мм3; So = 1095 мм3; t = 1 мм.
Наиболее невыгодные сочетания вертикальных и горизонтальных усилий в панелях возникают в средних зонах фасада, они и используются для проверки прочности.
По формуле (29) [2], трансформированной к данному примеру, на растяжение (сжатие) с изгибом
(Nz / A + M(y)i / W) γn ≤ Rγc;
для I района
МПа < 120 · 1 =
120 МПа;
для III района
МПа < 120 МПа;
прочность панелей на растяжение (сжатие) с изгибом обеспечивается. По формуле (21) [2] на сдвиг (срез)
;
для I района
МПа < Rsγc = 75 · 1 = 75 МПа;
для III района
МПа < 75 МПа;
прочность панелей на сдвиг (срез) обеспечивается.
Прогиб от ветровой нормативной нагрузки по известной формуле
;
для I района
мм;
для III района
мм,
что составляет 1/3200 и 1/2000 пролета l = 800 мм и значительно меньше предельно допустимой [1] величины 1/200 пролета; жесткость панелей достаточна.
8. Проверка прочности и жесткости горизонтальных несущих профилей (ГНП)
Геометрические характеристики поперечного сечения: А = 78 мм2; J(z) = 25451 мм4; W(z) = 1018 мм3; S(z) = 787 мм3; tz = δ = 0,6 мм; J(y) = 13566 мм4; W(y) = 492 мм3; S(y) = 457 мм3; ty = 2δ = 1,2 мм. Как и для панелей, проверочные расчеты ГНП выполняются только для средних зон фасада с более неблагоприятными условиями.
Прочность ГНП на изгиб в двух плоскостях по формуле (38) [3], трансформированной к данному примеру
;
для I района
МПа <
230 · 1 = 230 МПа;
для III района
МПа
< 230 МПа;
условие (38) удовлетворяется; прочность ГНП на изгиб в двух плоскостях обеспечивается.
Прочность на сдвиг (срез) в двух плоскостях.
По формуле (29) [3]
(МПа);
для I района
;
;
результирующая τ = (0,892 + 4,532) = 4,62 МПа < 133 · 1 = 133 МПа;
для III района τz = 0,89;
;
результирующая τ = (0,892 + 7,482) = 7,53 МПа < 133 МПа;
условие (29) удовлетворяется; прочность ГНП на сдвиг (срез) обеспечивается.
Прогибы ГНП от нормативных нагрузок по известной формуле
:
1) от вертикальной нагрузки
мм;
2) от горизонтальных (ветровых) нагрузок:
для I
района:
мм;
для III района:
мм;
найденные прогибы составляют:
и ![]()
что значительно меньше предельно допустимой [1] величины 1/200 пролета; жесткость ГНП достаточна.
9. Проверка прочности несущих кронштейнов
Геометрические характеристики поперечного сечения: А = 78 мм2; J(z) = 13566 мм4; W(z) = 492 мм3; So(z) = 457 мм3; t(z) = 1,2 мм; геометрические характеристики отгибаемых пластин: впл = 30 мм; δпл = 0,6 мм; Апл = 18 мм2; Jпл = 30 · 0,63 / 12 = 0,54 мм4; Wпл = 30 · 0,62 / 6 = 1,8 мм3.
Усилия, возникающие в отгибаемых пластинах от температурных деформаций панелей «Полиалпан»: максимальный прогиб отгибаемых пластин по формуле fzпл = ΔLz = α · Δt · Lz = 0,23 · 10-4 · 50 · 12000 = 13,8 мм, а с учетом податливости изгибу кронштейнов и релаксации температурных усилий за счет реактивного обжатия или растяжения панелей «Полиалпан» примерно на 25 %: fzпл = 0,75 · 13,8 = 10,4 мм; т.к. зазор между ГВН и кронштейном 10 мм, который может быть преодолен, то принимается максимальный прогиб пластин fzпл = 10 мм. Этому прогибу при lпл = 100 мм соответствует усилие Nпл = fzпл · 3EJ / lпл3 = 10 · 3 · 21 · 104 · 0,54 / 1003 = 3,4 Н и момент Мпл = Nпл · lпл = 3,4 · 100 = 340 Н мм; напряжения в основании пластин:
для I района ветровых нагрузок
МПа < Ryγc = 230 · 1 = 230 МПа;
для III района при Ny = 463 Нм остальных тех же параметрах, что и для I района
МПа < Ryγc = 230 МПа;
прочность отгибаемых пластин обеспечивается.
Проверка устойчивости пластин на сжатие не производится в предположении, что зазор между ГНП и кронштейном при отгибе пластин погашается.
Прочность поперечного сечения несущего кронштейна на растяжение (сжатие) с изгибом по формуле (50) [3], трансформированной к данному примеру
;
для I района
МПа < 230 · 1 =
230 МПа;
для III района
МПа > 230 МПа на
10 %;
для I района условие (50) удовлетворяется и прочность поперечного сечения несущего кронштейна на растяжение (сжатие) с изгибом обеспечивается; для III района условие (50) не удовлетворяется и кронштейн следует усиливать подкосами (см. п. 10.3).
По формуле (29) [3] на сдвиг (срез) от поперечной силы Q(z) = Nz =630 Н (для I и III районов):
МПа < Rsγc
=133 · 1 = 133 МПа;
условие (29) [3] удовлетворяется, прочность поперечного сечения несущего кронштейна на сдвиг (срез) для обоих районов обеспечивается.
10. Проверка прочности соединений
1) Соединение панелей «Полиалпан» с ГНП: количество саморезов Ø 4,2 мм; ns = 2; do = 2,5 мм; Ао = 4,9 мм2. Максимальные усилия: Ny = 331 Н; Nz = 333 Н (см. п. 6, г). По формуле (129) [3] на растяжение:
Ny · γn / (Ao · ns) = 331 · 0,95 / (4,9 · 2) = 32,1 МПа < Rst = 170 МПа;
прочность саморезов на растяжение обеспечивается.
По формуле (127) [3] на срез:
Nz · γn / (Ao · ns) = 333 · 0,95 / (4,9 · 2) = 32,3 МПа < Rвsγв = 150 · 0,8 = 120 МПа;
прочность саморезов на срез обеспечивается.
Проверка на смятие ГНП под саморезами:
Nz · γn / (δ · do · ns) = 333 · 0,95 / (0,6 · 2,5 · 2) = 105,5 МПа < Ripγc = 175 · 1 = 175 МПа;
прочность ГНП на смятие обеспечивается.
Проверка на смятие панелей под саморезами:
Nz · γn / (δ · d · ns) = 333 · 0,95 / (0,5 · 4,2 · 2) = 75,3 МПа < Rrpγc = 110 · 1 = 110 МПа;
прочность панелей на смятие под саморезами обеспечивается.
2) Соединение ГНП с кронштейнами: количество саморезов Ø 4,2 мм; ns = 2; do = 2,5 мм; Ао = 4,9 мм2. Максимальные усилия: Nz = 102 Н; Qy = 555 Н (см. п. 6, г). Ввиду незначительной величины Nz прочность самореза на растяжение заведомо обеспечивается.
По формуле (29) [3] на сдвиг (срез):
Qy · γn / (Ao · ns) = 555 · 0,95 / (4,9 · 2) = 53,8 МПа < Rвs · γв = 150 · 0,8 = 120 МПа;
прочность соединения на сдвиг (срез) обеспечивается.
3) Соединение между ветвями кронштейна: количество саморезов Ø 4,2 мм; ns = 4; do = 2,5 мм; Ао = 4,9 мм2.
Максимальные усилия:
для I района: M(z) = 107,1 Нм; Ny = 268 Н;
для III района: М(z) = 151,2 Нм; Ny = 442 Н.
Эквивалентные моменты относительно саморезов, расположенных на расстояниях zв = 30 мм от верха и 10 мм от низа горизонтальной ветви:
M(z) = 107,1 - 268 · 12 · 10-3 = 103,9 Нм(I район);
M(z) = 151,2 - 442 · 12 · 10-3 = 145,9 Нм (III район).
Напряжения среза в саморезах:
для I района
МПа > Rвsγв = 150 · 0,8
= 120 МПа;
для III района
МПа > 120 МПа,
прочность соединения на срез не обеспечивается: из данной проверки выявлена необходимость устройства подкосов в несущих кронштейнах, при этом свободная длина консолей должна быть не более lк = 100 мм для обоих ветровых районов.
4) Соединение кронштейна со стеной: количество шурупов на растяжение (сжатие) ns = 1; на срез ns = 2; Ø 5,5 мм; do = 4,2 мм; Ао = 13,8 мм2. Расстояние между осями верхнего и нижнего шурупов z = 80 мм.
Максимальные усилия:
для I района: M(z) = 107,1 Нм; Ny = 280 H; Nz = 630 H;
для III района: M(z) = 151,2 Нм; Ny = 463 H; Nz = 630 H.
По формуле (129) [3] прочность верхнего шурупа на растяжение от совместного действия силы Ny и момента M(z):
для I района
МПа < RstAo =
170 МПа;
для III района
МПа < 170 МПа;
прочность шурупа на растяжение обеспечивается.
По формуле (127) [3] на срез от силы Nz: для I и III районов
Nz · γn / (Ao · ns) = 630 · 0,95 / (13,8 · 2) = 21,7 МПа < Rвsγв = 150 · 0,8 = 120 МПа;
прочность шурупов на срез обеспечивается.
По расчетам на прочность соединения кронштейна со стеной возможно применение одного дюбель-шурупа, но в случае исключения нижнего дюбель-шурупа нарушится фиксация плеча между верхним и нижним дюбель-шурупами, в результате чего прочность соединения на растяжение с изгибом может оказаться недостаточной.
11. Выводы и рекомендации
На основании расчетов, проведенных для зданий высотой до 30 м, при ветровых нагрузках I и III районов, величине температурного перепада 50 °С, шагах вертикальных опор (кронштейнов) и горизонтальных (ГНП) - 800 мм в средних частях и 400 мм в угловых зонах фасада, установлено и рекомендуется:
1. Прочность и жесткость облицовочных панелей «Полиалпан» толщиной 25 мм, шириной 0,5 м и длиной (высотой) 12 м обеспечиваются. В случае применения панелей толщиной 40 мм их прочность и жесткость также обеспечиваются.
2. Прочность и жесткость горизонтальных направляющих профилей (ГНП), изготовленных из гнутых профилей ПН-2, обеспечиваются для обоих вариантов толщин панелей 25 и 40 мм.
3. Прочность несущих кронштейнов, изготовленных из гнутых профилей ПН-2, обеспечивается при условии устройства в них подкосов с оставлением свободной консоли не более lk ≤ 100 мм. Прочность отгибаемых пластин в кронштейнах обеспечивается при их длине lk = 70-100 мм.
12. Перечень нормативных документов и литературы
1. СНиП 2.01.07-85*. Нагрузки и воздействия. - М.: Минстрой РФ, 1996.
2. СНиП 2.03.06-85. Алюминиевые конструкции. - М.: ЦИТП, 1986.
3. СНиП II-23-81*. Стальные конструкции. - М.: ЦИТП, 1990.
1. Введение
В настоящем разделе содержатся принципы теплотехнического проектирования фасадных систем «Полиалпан» с вентилируемыми воздушными прослойками между панелями и слоем утеплителя, приводятся рекомендации по различным техническим параметрам.
Принципы теплотехнического проектирования включают методы теплотехнических расчетов, расчеты воздухообмена и влагообмена в воздушных прослойках.
Методика теплотехнических расчетов базируется на требованиях СНиП II-3-79* [4] и МГСН 2.01-99 [9].
2. Основные используемые в тексте понятия
Прослойка между стеной и экраном, вентилируемая наружным воздухом; швы, щели - воздухозаборные, воздуховыводящие. Путями прохождения наружного воздуха могут являться в основном (горизонтальные) воздухозаборные щели.
Условное сопротивление паропроницанию - приведенное, учитывающее сопротивление паропроницанию материалов панелей и щелей между облицовочными панелями.
3. Основные положения по проектированию систем наружных стен с вентилируемой воздушной прослойкой
При проектировании зданий с фасадной системой «Полиалпан» следует учитывать особенности экранируемых стен.
Минимальный размер воздухозаборный щели рекомендуется 25 мм (при размерах облицовочных панелей 9000 × 500 мм ÷ 12000 × 500 мм) для Москвы и 35 мм для Ханты-Мансийска.
Общая толщина воздушной прослойки должна быть, как правило, 60-70 мм для Москвы и 100 мм для Ханты-Мансийска.
Сечение воздуховыводящей щели не должно быть менее сечения воздухозаборной щели.
4. Правила теплотехнического проектирования наружных ограждений с вентилируемым фасадом
Теплотехническое проектирование наружных стен с фасадной системой «Полиалпан» включает в себя два этапа. Причем второй этап применяется, если после первого этапа расчетов не выявится надежность рассматриваемой конструкции в теплотехническом отношении.
Первый этап.
Назначается конструктивное решение стены, в т.ч. параметры облицовочных панелей, воздухозаборных и воздуховыводящих щелей с учетом раздела 3.
Выполняется теплотехнический расчет наружной стены с облицовочной панелью, т.е. определяется необходимая толщина теплоизоляции, исходя из требований 2-ого этапа СНиП II-3-79* (98) [4] и с учетом требований МГСН 2.01-99 [9].
Выполняется расчет влажностного режима стены по методике СНиП II-3-79* (98) [4] с учетом коэффициента паропроницаемости по глади облицовочной панели.
Проверяется расчетом упругость водяного пара на выходе из прослойки по формуле (18) с учетом параметров стены данных в разделе 7 при расходе воздуха равным нулю, если требования СНиП II-3-79* (98) будут выполнены.
Если влажностный режим стены удовлетворяет требованиям норм строительной теплотехники, то на этом теплотехническое проектирование заканчивается.
Если влажностный режим экранированных стен не удовлетворяет требованиям СНиП II-3-79* (98) [4], то подбирается такой размер щелей и панелей, чтобы с ним конструкция стены удовлетворяла требованиям СНиП [4].
Если расчет влажностного режима наружного ограждения с вентилируемым фасадом показал невыполнение требований СНиП II-3-79* (98) [4], то переходят ко второму этапу теплотехнического проектирования.
Второй этап.
1) Определяется условное сопротивление паропроницанию панели с учетом щелей по методике раздела 6.6.
2) С учетом этого показателя проводят расчет по методике СНиП II-3-79* (98 г.).
4) С учетом результатов расчета по п.п. 2, 3 анализируются результаты, при необходимости корректируются материалы и их толщины в конструкции с целью исключения влагонакопления в годовом цикле. В основном, проведенных упомянутых расчетов для определения применимости конструкции бывает достаточно. В других случаях расчет может быть продолжен в такой последовательности.
Для выполнения п. 5 определяется термическое сопротивление воздушной прослойки по формуле (16).
6) Определяется температура на выходе из воздушной прослойки по формуле (15).
7) Определяется действительная упругость водяного пара на выходе из прослойки ey по формуле (18). Определяется упругость водяного пара на выходе из прослойки и проверяется условие ey < Eн, где Eн - максимальная упругость водяного пара на выходе из прослойки. Анализируются результаты расчетов и корректируется конструкция стены.
5. Краткая характеристика объекта и нормативные требования
Для расчета приняты однотипные многоэтажные жилые здания, расположенные в г. Москве и Ханты-Мансийске.
Наружные стены приняты в двух вариантах: с внутренним слоем из монолитного железобетона γo = 2500 кг/м3, толщиной 0,18 м (λБ = 2,04) и кирпича, толщиной 0,51 м (λ = 0,58 Вт/м °С).
Снаружи внутреннего слоя располагается утеплитель - базальтовая минплита, толщиной, определяемой расчетом с λ = 0,045 [10], воздушная прослойка и облицовочная панель «Полиалпан», толщиной 0,025 м. Высота панели принята 9 (12) м, ширина 0,5 м.
Система является многослойной конструкцией, состоящей из несущего каркаса, утепляющего слоя, облицовочных панелей «Полиалпан», ряда монтажных профилей для устройства оконных откосов, сливов, обрамления панелей, углов и т.п.
Основанием для системы являются несущие конструкции наружных стен зданий и сооружений из различных материалов: кирпича, монолитного и сборного бетона и др.
В системе слой наружной облицовки фасада установлен с воздушным зазором относительно расположенного за ним слоя плит утеплителя, закрепленного на основании.
Толщина воздушной прослойки δпр может в расчете варьироваться. Назначаем ее первоначальную толщину в соответствии с МГСН 2.01-99 δпр = 60 мм [9].
Прослойка за панелью вентилируется. В нижней части конструкции воздухозаборная щель, а в верхней - воздуховыводящая. Причем в чистоте площадь щелей, которые считаются приточными, равна 0,025 м2. Высота (ширина) горизонтальной приточной щели 25 мм. Площадь воздуховыводящих щелей принимается равной не менее площади воздухозаборных.
Требования к теплотехническим характеристикам конструкций содержатся в СНиП II-3-79* [4] и МГСН 2.01-99 [9].
Требования к сопротивлению теплопередаче конструкций приведены в [4], исходя из санитарно-гигиенических и комфортных условий и условий энергосбережения. Так как требования из условия энергосбережения являются более жесткими, они и приняты в настоящей работе в качестве критерия оценки системы.
Согласно [4] требования по второму этапу нужно принимать для зданий, строительство которых начинается с 1 января 2000 года.
На основе [4] и [9] составлена таблица п.2.1 исходных расчетных данных, где представлены требуемые сопротивления теплопередаче наружных стен жилых домов.
Значение нормативных требований к наружным ограждениям жилых зданий
|
№ п/п |
Название нормативного документа |
Требуемое сопротивление теплопередаче наружных стен Roreq, м2 · °C/Вт |
ГСОП |
Город |
|
1. |
СНиП 23-01-99 [5], СНиП II-3-79* (98 г.), табл. 1б |
3,13 |
4943 |
Москва |
|
2. |
СНиП II-3-79* (98 г.), |
3,92 |
7200 |
Ханты-Мансийск |
6. Методика теплотехнического расчета наружных стен с вентилируемой воздушной прослойкой
6.1. Общие требования
Расчет наружных стен с панелью «Полиалпан» и вентилируемой воздушной прослойкой основан на расчете теплотехнических характеристик стен и расчета влажностного режима.
Теплотехнический расчет наружных стен с вентилируемой прослойкой в соответствии с настоящим разделом включает в себя:
- подбор толщины теплоизоляционного слоя;
- определение влажностного режима в соответствии с действующими теплотехническими нормами;
- определение параметров воздухообмена в прослойке;
- определение тепловлажностного режима прослойки;
- определение условного приведенного сопротивления паропроницанию панелей с учетом щелей между ними.
Таким образом, для стен с вентилируемой воздушной прослойкой производится несколько теплотехнических расчетов: расчет теплового режима стен и прослойки и влажностного режима стены и прослойки.
6.2. Определение толщины теплоизоляционного слоя
Методика теплотехнического расчета разработана в соответствии с рядом документов, подготовленных ЦНИИЭП жилища и НИИСФ как авторами СНиП II-3-79* и полностью удовлетворяет нормативным требованиям [4, 9].
В основу конструктивных решений наружных стен при определении приведенных сопротивлений теплопередаче главных фрагментов принимаются толщины утеплителя, рассчитанные предварительно по формуле
(1)
где Roreq - требуемое приведенное сопротивление теплопередаче стен, м2 · °C/Вт;
r - коэффициент теплотехнической однородности по табл. п.2.2; п.2.3.
Значения r кирпичных утеплённых снаружи стен
|
Толщина, м |
Коэффициент r при λ, Вт/м °С |
|||
|
стены (без дополнительного утепления) |
утеплителя |
0,04 |
0,05 |
0,08 |
|
0,38 |
0,1 |
0,705 |
0,726 |
0,73 |
|
0,15 |
0,693 |
0,713 |
0,73 |
|
|
0,2 |
0,68 |
0,7 |
0,715 |
|
|
0,51 |
0,1 |
0,694 |
0,714 |
0,73 |
|
0,15 |
0,682 |
0,702 |
0,72 |
|
|
0,2 |
0,667 |
0,687 |
0,702 |
|
|
0,64 |
0,1 |
0,685 |
0,7 |
0,715 |
|
0,15 |
0,675 |
0,69 |
0,705 |
|
|
0,2 |
0,665 |
0,68 |
0,695 |
|
Примечания:
1. В таблице даны r для худшего в теплотехническом отношении участка (с оконным проемом).
2. Для получения значений r с учетом глухих участков приведенные в таблице значения умножаются на 1,05.
Значения r бетонных утепленных снаружи стен
|
Толщина, м |
Коэффициент r при λ, Вт/м · °С |
|||
|
стены (без дополнительного утепления) |
утеплителя |
0,04 |
0,05 |
0,08 |
|
0,3 |
0,05 |
0,9 |
0,92 |
0,95 |
|
0,1 |
0,84 |
0,87 |
0,88 |
|
|
0,15 |
0,81 |
0,84 |
0,85 |
|
|
0,35 |
0,05 |
0,87 |
0,94 |
0,93 |
|
0,1 |
0,8 |
0,83 |
0,86 |
|
|
0,15 |
0,78 |
0,81 |
0,83 |
|
|
0,4 |
0,05 |
0,82 |
0,87 |
0,9 |
|
0,1 |
0,77 |
0,8 |
0,83 |
|
|
0,15 |
0,75 |
0,78 |
0,8 |
|
|
0,2 |
0,74 |
0,765 |
0,785 |
|
Для проверки правильности принятых толщин утепляющих слоев определяются приведенные сопротивления теплопередаче наружных стен для основных «фрагментов». Каждый рассчитываемый фрагмент делится на отдельные участки, характеризуемые одним или несколькими видами теплопроводных включений.
Средневзвешенное значение приведенного сопротивления теплопередаче слоистых наружных стен определяется (на секцию) по формуле
(2)
где
- сумма площадей
фрагментов наружных стен (k - количество фрагментов стен), м2;
Fi, Roiпр - соответственно площадь и приведенное сопротивление теплопередаче i-го фрагмента стен, м2 · °С/Вт.
*) Rorcp то же, что Roпрср и Ror, то же, что Roпр.
Если Rorcp > Roreq*) по табл. 1б СНиП II-3-79* [4], конструкция стены удовлетворяет требованиям теплотехнических норм. Если Rorcp < Roreq пр, то следует либо увеличить толщину утепляющего слоя, либо рассмотреть возможность включения в проект энергосберегающих мероприятий (утепление узлов и т.п.).
*) Rorcp то же, что Roпрср и Ror, то же, что Roпр.
Для практических расчетов допускается при определении Roпр и его коэффициента теплотехнической однородности наружных стен с вентилируемой прослойкой применять табл. п.2.3.
Для расчета средневзвешенного значения многослойных наружных стен при наличии в стенах глухих (без проемов) участков может быть также использована формула
Rorcp = Roпр · n (3)
где n = 1,05 - коэффициент, учитывающий наличие глухих участков в наружных стенах.
6.3. Определение влажностного режима наружных стен
Влажностный режим наружных стен может определяться двумя методами. По СНиП II-3-79* (98 г.) и исходя из баланса влаги в годовом цикле.
Определение влажностного режима наружных стен в годовом цикле производится в нижеприведенной последовательности:
1. Определяются исходные данные для расчета;
2. Определяются сопротивления паропроницанию слоев конструкции наружной стены, параметры внутреннего и наружного воздуха;
3. Определяется приток и отток влаги (пара) к рассматриваемому сечению по формулам
и
мг/м2 · ч, (4)
где ев, ен - упругость водяного пара внутреннего и наружного воздуха;
еτ - то же, в рассматриваемом сечении;
Rо п.вн.сл. - сопротивление паропроницанию от внутренней поверхности до границы зоны возможной конденсации (с учетом пограничного слоя);
еτ - определяется по формуле
Па, (5)
ΣRп.сл - сумма сопротивлений паропроницанию слоев до рассматриваемого сечения.
Rп - сопротивления паропроницанию всей стены.
По указанным формулам определяется упругость водяного пара еi в характерных сечениях конструкции в годовом цикле.
Если еτ окажется больше максимальной упругости водяного пара Е, то в данном сечении может образовываться конденсат.
6.4. Определение параметров воздухообмена в прослойке
Движение воздуха в воздушной прослойке осуществляется за счет гравитационного (теплового) и ветрового напора. В случае расположения приточных и вытяжных отверстий на разных стенах скорость движения воздуха в прослойках Vпр может определяться по следующим формулам
где кн, кз - аэродинамические коэффициенты на разных стенах здания по СНиП 2.01.07-85 [2];
Vн - скорость движения наружного воздуха;
к - коэффициент учета изменения скорости потока по высоте по СНиП 2.01.07-85;
Н - разности высот от входа воздуха в прослойку до ее выхода из нее;
tср, tн - средняя температура воздуха в прослойке и температура наружного воздуха;
Σξ - сумма коэффициентов местных сопротивлений.
Другим вариантом определения Vпр служит формула
где γн, γпр - плотности наружного воздуха и в прослойке.
Другой вариант определения Vпр по разности давлений воздуха на входе и выходе:
ΔРΔ = ΔРвх - ΔРвых,
ΔPвх и ΔPвых = H (γн - γпр) + 0,5 γн · Vн2 (кн - кз) к, Па (мм вод. ст.) (8)
Vпр по формуле
м/с. (9)
При расположении воздушной прослойки на одной стороне здания, можно принять кн = кз. В этом случае, если пренебречь изменением скорости ветра по высоте формула (6) примет вид:
Формула (7) примет вид:
где γпр - плотность воздуха в прослойке.
Указанные формулы применены в технической системе. При этом γ имеет размерность кг/м3.
В системе СИ в числителе «γ» будет отсутствовать, а «γ» имеет размерность Н/м3.
Из полученных по указанным формулам скорость движения воздуха корректируется с учетом потерь давления на трение по известным из курса «Вентиляция» методам.
Расход воздуха в прослойке определяется по формуле
W = Vпр · 3600 · δпр · γпр кг/м · ч, (12)
где δпр - толщина воздушной прослойки шириной 1 м, м.
6.5. Определение параметров тепловлажностного режима прослойки
Температура входящего в прослойку воздуха τо определяется по формуле
°С, (13)
где tв, tн - расчетные температуры внутреннего и наружного воздуха;
m - коэффициент, равный 0,26 в системе СИ и 0,3 - в технической.
Бw - безразмерный критерий, характеризующий изменение теплозащитных качеств стыка при фильтрации воздуха и равный
(n · Cw · Rocт) / ln
где n - коэффициент, равный 0,28 в системе СИ и 1 - в технической;
ln - расстояние от входа в воздухозаборную щель до искомой точки, м;
Roy - приведенное сопротивление теплопередаче конструкции в сечении по воздухозаборной щели;
Бо - критерий, характеризующий теплозащитные качества части стыка от внутренней термической границы конструкции до искомой точки и равной
(h · Rву) / lm;
где ln - расстояние от входа в воздухозаборную щель до искомой точки, м;
h - приведенная высота воздухозаборной щели, м;
Roy - приведенное сопротивление теплопередаче конструкции в сечении по воздухозаборной щели;
Rву - приведенное сопротивление теплопередаче конструкции в сечении по воздухозаборной щели, считая от искомой точки до внутренней термической границы конструкции.
Допускается определять температуру воздуха, входящего в воздушную прослойку, по формуле
τo = n · tн °C, (14)
где n = 0,95.
Температура воздуха по длине прослойки определяется по формуле:
где кв и кн - коэффициенты теплопередачи внутреннего и наружного частей стены до середины прослойки;
hу - расстояние между щелями, служащими для поступления (или вытяжки) воздуха.
W - расход воздуха в прослойке, кг/м · ч;
С - удельная теплоемкость воздуха.
При определении термического сопротивления прослойки Rпр следует пользоваться формулами:
м2 · °С/Вт (м2 ·
ч · °С/ккал), (16)
где αпр = 5,5 + 5,7Vпр + αл, Вт/м2 · °С (ккал/м2 · ч · °С), (17)
где αл - коэффициент лучистого теплообмена;
Св - переводной коэффициент: в технической системе равен 1, а в СИ В = 3,6.
Действительная упругость водяного пара на выходе из прослойки определяется по формуле
Полученная по данной формуле величина упругости водяного пара на выходе из прослойки еу должна быть меньше максимальной упругости водяного пара Еу.
В формуле (18) Мв и Мн равны соответственно:
(19)
где Rвп и Rпн - сумма сопротивлений паропроницанию от внутренней поверхности до воздушной прослойки и от воздушной прослойки до наружной поверхности;
ев и ен - действительная упругость водяного пара с внутренней стороны стены и снаружи;
еo - упругость водяного пара воздуха, входящего в прослойку;
(20)
где n - переводной коэффициент.
Полученная по формуле (18) величина упругости водяного пара на выходе из прослойки еу должна быть меньше максимальной упругости водяного пара Еy.
Для расчета используются либо коэффициенты паропроницаемости материалов панели по СНиП II-3-79* (98 г.), либо полученные экспериментально.
Расчет приведенного сопротивления паропроницаемости панелей с учетом щелей производится в такой последовательности:
1) Определяется условное сопротивление паропроницанию в стыковых щелях по формуле:
м2 · ч · Па/мг
(м2 · ч · мчм рт. ст.)/г, (21)
где Вш - коэффициент перевода из системы СИ в техническую, равен 7,5; в технической Вш = 1;
ηш = 6,5 [мг/м2 · ч · Па (г/м2 · ч · мм рт. ст.)];
Σξш - местные сопротивления проходу воздуха (по таблицам курса «Вентиляция»);
δэ - толщина экрана, м.
2) Определяется сопротивление паропроницанию панелей по глади по формуле:
, (22)
где μэ - коэффициент паропроницаемости панели по СНиП II-3-79* [4].
3) Определяется приведенное условное сопротивление паропроницанию панелей с учетом щелей Rппр по формуле
где ΣF - суммарная расчетная площадь панели (как правило принимается 1 м2);
Fгл - площадь панели без щелей, м2;
F′ - площадь щелей, через которые поступает воздух. Как правило площадь выходных щелей в верхней части панели не учитывается;
Rп и R′п - см. выше.
7. Теплотехнический расчет фасадной системы «Полиалпан»
Расчет производится сначала для г. Москвы, а затем для г. Ханты-Мансийска.
7.1. Расчет толщины теплоизоляции
Толщина теплоизоляции из минваты типа «Венти-Баттс» для кирпичной стены для г. Москвы равна:
м
где 3,13 - требуемое сопротивление теплопередаче стен для г. Москвы;
0,74 - коэффициент теплотехнической однородности, см. табл. п.2.2;
0,1 - термическое сопротивление вентилируемой воздушной прослойки.
* Над чертой толщины слоев, под чертой - коэффициенты теплопроводности [4].
В действительности термическое сопротивление прослойки будет несколько выше - Rвп = 0,11 м2 · °С/Вт за счет меньшего коэффициента излучения покрытия с внутренней стороны панели «Полиалпан», что идет в запас теплозащиты:
м2 · °C ·ч/ккал (0,11 м2 · °С/Вт),
где αвп - коэффициент теплообмена по формуле (17);
αвп = 5,5 + 5,7Vпр + αл = 5,5 + 5,7 · 0,4 + 0,13 = 7,9 ккал/м2 · ч · °С (9,17 Вт/м2 · °С);
;
где 0,22 - коэффициент излучения теплоотражающего покрытия, ккал/м2 · ч · °К4;
0,61 - температурный коэффициент.
Сопротивление теплопередаче по глади кирпичной наружной стены при толщине утеплителя из минваты типа «Венти-Баттс»:
м2 · °C/Вт.
где 0,045 и 0,033 - коэффициенты теплопроводности минваты «Венти-Баттс» и пенополиуретана «Полиалпан» в соответствии с сертификатами [10].
Приведенное сопротивление теплопередаче:
Roпp = 4,34 · 0,74 = 3,21 м2 · °С/Вт.
Эта величина больше требуемого сопротивления теплопередаче для г. Москвы.
Толщина теплоизоляции из базальтовой минваты для бетонной стены для г. Москвы:
м,
где r = 0,83 в соответствии с табл. п.2.3.
Сопротивление теплопередаче по глади наружной бетонной стены условное:
м2 · °C/Вт.
Приведенное сопротивление теплопередаче бетонной стены:
Roпр = 3,86 · 0,83 = 3,2 м2 · °С/Вт.
Эта величина больше требуемого сопротивления теплопередаче для г. Москвы.
Толщина теплоизоляции для г. Ханты-Мансийска для кирпичной стены:
м;
где r = 0,73 в соответствии с табл. п.2.2;
3,92 - требуемое сопротивление теплопередачи стены для Ханты-Мансийска.
Условное сопротивление теплопередаче по глади наружной кирпичной стены:
м2 · °C/Вт.
Приведенное сопротивление теплопередаче кирпичной стены:
Rопр = 5,49 · 0,73 = 3,976 м2 · °С/Вт.
Эта величина больше требуемого сопротивления теплопередаче.
Толщина теплоизоляции для бетонной стены:
м;
Сопротивление теплопередаче условное для бетонной стены:
м2 · °C/Вт.
Приведенное сопротивление теплопередаче для бетонной стены:
Roпр = 4,86 · 0,83 = 4,034 м2 · °С/Вт.
Эта величина больше требуемого сопротивления теплопередаче.
Полученные толщины утеплителя обеспечивают требуемые теплозащитные качества стен для Москвы и Ханты-Мансийска.
Толщина утеплителя может быть скорректирована в соответствии с номенклатурой выпускаемых изделий, что не повлияет на правомочность полученных расчетов и выводов.
7.2. Расчет влажностного режима бетонных стен
Выполняется расчет влажностного режима бетонных наружных стен с облицовочными панелями «Полиалпан» по СНиП II-3-79* (98) по глухой части сначала без учета щелей для г. Москвы, а затем с учетом щелей.
Влажностный режим наружных стен характеризуется процессами влагонакопления, зависящими от ряда внешних факторов и физических характеристик, от сопротивления паропроницанию конструкции. Расчетное сопротивление паропроницанию Rп, м2 · ч · Па/мг (до плоскости возможной конденсации) должно быть не менее большего из требуемых сопротивлений паропроницанию Rп1тр, из условия недопустимости накопления влаги за год эксплуатации и Rп2тp из условия ограничения влаги в конструкции за период с отрицательным среднемесячными температурами.
Расчет ведется с учетом того, что зона возможной конденсации располагается на внешней границе утеплителя и наружного слоя.
В период эксплуатации в зимних условиях температура внутреннего воздуха tв = 20 °С, а относительная влажность φ = 55 %.
Расчетное сопротивление паропроницанию наружной стены до зоны возможной конденсации Rп, м2 · ч · Па/мг:
м2 · ч · Па/мг
(В технической системе Rп = 48,25 м2 · ч · мм рт. ст./мг).
Расчетное сопротивление паропроницанию части ограждающей конструкции, Rпн, м2 · ч · Па/мг, расположенной между наружной поверхностью и плоскостью возможной конденсации равно:
м2 · ч · Па/мг
На экране с внутренней стороны конструкции стены по глухой части панели будет образовываться конденсат (рис. п.2.1). Количественно это можно проиллюстрировать табл. п.2.4, где показано влагонакопление стены с панелью, имеющей коэффициент паропроницаемости по глади μ = 0,008 мг/м · ч · Па.
Как видно из табл. п.2.4 при маловлагопроницаемой облицовочной панелью в годовом цикле во всех месяцах упругость водяного пара е больше максимальной упругости водяного пара Е и, следовательно, происходит постоянное влагонакопление в прослойке у панели, в отдалении от горизонтальных швов и нет движения воздуха в прослойке. Поскольку в районе горизонтальных швов распределение влаги иное, как и при движении воздуха далее в расчетах учитываются эти обстоятельства.
Распределение влажности в кирпичной стене толщиной δ = 0,51 м, с утеплением минватой и панелью «Полиалпан», воздушной прослойкой (по глади μ = 0,008 мг/м · ч · Па, 0,001 г/м · ч · мм рт. ст.)
|
Размерность |
Индексы |
МЕСЯЦЫ |
|||||||||||
|
I |
II |
III |
IV |
V |
VI |
VII |
VIII |
IX |
X |
XI |
XII |
||
|
°С |
tн |
-10,2 |
-9,6 |
-4,7 |
4 |
11,6 |
15,8 |
18,1 |
16,2 |
10,6 |
4,2 |
-2,2 |
-7,6 |
|
°С |
tв |
20 |
20 |
20 |
20 |
11,6 |
15,8 |
18,1 |
16,2 |
10,6 |
20 |
20 |
20 |
|
°С |
Δt |
30,2 |
29,6 |
24,7 |
16 |
0 |
0 |
0 |
0 |
0 |
15,8 |
22,2 |
27,6 |
|
°С |
τп |
-9,9 |
-9,3 |
-4,4 |
4,2 |
|
|
|
|
|
4,4 |
-2,0 |
-7,3 |
|
мм рт. ст. |
Еτ |
1,96 |
2,07 |
3,17 |
6,19 |
10,24 |
13,46 |
15,58 |
13,81 |
9,59 |
6,27 |
3,88 |
2,47 |
|
мм рт. ст. |
ен |
1,604 |
1,62 |
2,41 |
4,026 |
5,939 |
7,941 |
9,615 |
9,391 |
7,001 |
4,828 |
3,132 |
2,0485 |
|
мм рт. ст. |
eв55 |
9,647 |
9,647 |
9,647 |
9,647 |
5,939 |
7,941 |
9,615 |
9,391 |
7,001 |
9,647 |
9,647 |
9,647 |
|
мм рт. ст. |
Δе |
8,043 |
8,027 |
7,237 |
5,671 |
- |
- |
- |
- |
- |
4,819 |
6,545 |
7,598 |
|
мм рт. ст. |
eτ |
4,54 |
4,56 |
5,06 |
6,06 |
|
|
|
|
|
6,59 |
5,53 |
4,83 |
|
Часы |
|
744 |
672 |
744 |
720 |
744 |
720 |
744 |
744 |
720 |
744 |
720 |
744 |
|
г/м2 |
Qвн.сл. |
1311,8 |
1167,9 |
1105,4 |
570,7 |
-836,4 |
|
|
|
|
576,3 |
952,4 |
1224,8 |
|
г/м2 |
Qнар.сл. |
105,4 |
120,3 |
225 |
619,9 |
1450,8 |
|
|
|
|
426,9 |
214,3 |
124,8 |
|
г/м2 |
ΔQ |
1206,5 |
1047,6 |
880,4 |
-49,0 |
-2287,2 |
|
|
|
|
149,4 |
738,2 |
1100,0 |
|
г/м2 |
ΣΔQ |
3194,0 |
4241,7 |
5122,9 |
5073,1 |
2285,8 |
|
|
|
|
149,4 |
887,6 |
1987,6 |
|
|
Конденсат |
|
|||||||||||

1 - раствор,
2 - кирпичная кладка,
3 - минеральная вата,
4 - панель экрана,
5 - воздушная прослойка,
6 - зона возможной конденсации
Рис. П.2.1. Схема наружной стены для расчета влажностного режима.
Следующим этапом расчета является учет щелей в соответствии со специально разработанной методикой влажностного расчета для вентилируемых фасадов [8].
Условное сопротивление паропроницанию щелей в соединениях панелей по формуле (21):
м2 · ч · мм рт. ст/г (0,0016 м2 · ч · Па/мг),
где 0,025 м - толщина панели;
ξ = 3,1 - сопротивление прохождению воздуха только через одну горизонтальную щель*).
*) В расчете принимается, что влага из конструкции выходит только с попутным движением воздуха.
Сопротивление паропроницанию по глади считается бесконечно большой величиной; тогда формула (23) примет вид:
м2 · ч · мм рт. ст/г (0,592 м2 · ч · Па/мг),
где 0,0027 м2 - площадь щелей на м2 панели, принимая высоту щели 25 мм, высоту панели hп = 9000 мм.
Расчетное сопротивление паропроницанию части ограждающей конструкции Rпн, расположенной между наружной поверхностью и плоскостью возможной конденсации: Rппр = Rпн = 0,592 м2 · ч · Па/мг (4,44 м2 · ч · мм рт. ст./г).
Требуемое сопротивление паропроницанию Rп, из условия недопустимости накопления влаги за год эксплуатации:
м2 · ч · Па/мг.
Требуемое сопротивление паропроницанию из условия ограничения влаги в наружной стене за период с отрицательными температурами наружного воздуха:
м2 · ч · Па/мг.
м2 · ч · Па/мг.
Поскольку Rп1тр и Rп2тр < Rn = 6,43 м2 · ч · Па/мг, можно сделать вывод о том, что влажностный режим системы «Полиалпан» для г. Москвы удовлетворяет требованиям норм строительной теплотехники при расчете по СНиП II-3-79* (98) для бетонной стены при высоте горизонтальных щелей 25 мм.
При расстоянии между горизонтальными щелями 12 м Rп1 = 0,18 и Rп2 = 1,73 м2 · ч · Па/мг при площади щелей на м2 панели 0,0021 м2, что указывает на то, что при длине экранов 12 м влажностный режим системы «Полиалпан» также удовлетворяет требованиям норм при указанных параметрах горизонтальных щелей.
При учете вертикальных щелей при длине (высоте) панелей hп = 9000 мм приведенное сопротивление паропроницанию равно Rппр = Rпн = 3,4 м2 · ч · мм рт. ст./г (0,45 м2 · ч · Па/мг), а требуемое сопротивление паропроницанию Rп2тp = 1,12 м2 · ч · Па/мг; при hп = 12000 мм Rппр = Rпн = 4,88 м2 · ч · мм рт.ст./г (0,65 м2 · ч · Па/мг).
При учете вертикальных щелей суммарная площадь щелей составит при hп = 9000 мм Fщ = 0,0032 м2 на м2 панели, при hп = 12 м Fщ = 0,0026 м2 на м2 панели.
Из анализа вышеприведенных данных следует, что при учете вертикальных щелей требуемое сопротивление паропроницанию Rп2тр меньше, чем при учете только горизонтальных на 20 %, что идет в запас надежности работы фасадной системы «Полиалпан».
7.3. Определение скорости движения воздуха и упругости водяного пара на выходе из прослойки
Определяется скорость движения воздуха в прослойке при температуре наружного воздуха минус 28 °С. Расчет делается по формулам (10 ÷ 11).
Температура входящего в прослойку воздуха по формуле (14)
tx = -28 · 0,95 = -26,6 °С.
Определяем расход воздуха в прослойке по формуле (12) при толщине прослойки 0,06 м в соответствии с МГНС 9201-99 [9]:
W = 0,37 · 3600 · 1,403 · 0,06 = 112,3 кг/м · ч,
где V = 0,37 м/с - скорость движения воздуха в прослойке с учетом сопротивлений прохождению воздуха ξ = 6,2 и трению по формуле (10)
м/с;
V = 0,4 - 0,4 · 0,07 = 0,37 м/с.
где 0,07 - коэффициент, учитывающий трение;
ξ = 6,2 - суммарное сопротивление через две горизонтальные щели (условно вход и выход воздуха).
Примечание:
В действительности средняя температура воздуха в прослойке будет выше, а скорость и расход воздуха больше, что идет в запас. Данная скорость и расход воздуха характерны вблизи щелей, если их рассматривать как приточные.
Упругость водяного пара на выходе из прослойки еу при начальной упругости ео = 0,34 мм рт. ст. (в технической системе) по формуле (18)
мм рт. ст.,
что меньше максимальной упругости водяного пара Е, равной 0,39, где
;
Мв + Мн = 0,246
![]()
Мв · ев + Мп · еп = 0,021 · 9,64 + 0,225 · 0,29 = 0,265
Упругость водяного пара на выходе из прослойки по глухой части экрана:
мм рт. ст.,
что меньше максимальной упругости водяного пара Е = 0,39 мм рт. ст., следовательно, принятые параметры конструкции удовлетворительные.
Далее выполнен расчет влажностного режима наружной кирпичной стены с панелью «Полиалпан», имеющей несколько худшие влажностные характеристики с точки зрения влагонакопления у панели за счет большей паропроницаемости, кирпичной стены по сравнению с бетонной.
Расчет влажностного режима кирпичной стены, утепленной снаружи минеральной ватой при учете горизонтальных щелей, показывает следующее.
Расчетное сопротивление паропроницанию стены до зоны возможной конденсации:
м2 · ч · Па/мг (28 м2 · ч · мм рт.
ст./г)
Расчетное сопротивление паропроницанию части наружной стены, расположенной между наружной поверхностью ее и плоскостью возможной конденсации при учете горизонтальных щелей равно:
Rппp = 0,592 м2 · ч · Па/мг (см. выше) (4,4 м2 · ч · мм рт. ст./г)
Требуемое сопротивление паропроницанию, Rп1, м2 · ч · Па/мг из условия недопустимости накопления влаги за год эксплуатации:
м2 · ч · Па/мг
Требуемое сопротивление паропроницанию из условия ограничения влаги в стене за период с отрицательными температурами воздуха Rп2тр:
м2 · ч · Па/мг
.
Поскольку Rп2тр < Rп недопустимого влагонакопления в стене не будет, влажностный режим стены удовлетворяет требованиям норм строительной теплотехники*).
*) при длине экрана 12 м Rп2пр = 2,2 м2 · ч · Па/мг, т.е. Rп2пр < RпI, что соответствует также данному выводу.
Определяем упругость водяного пара на выходе из прослойки для кирпичной стены по формуле (18)
,
что меньше максимальной упругости водяного пара наружного воздуха,
где
; ![]()
Мв · ев + Мп · еп = 0,036 · 9,64 + 0,225 · 0,29 = 0,412
7.4. Расчет влажностного режима наружных стен для условий г. Ханты-Мансийска
Учитывая результаты расчета влажностного режима наружных стен с панелью «Полиалпан», можно сделать вывод о том, что кирпичные стены имеют менее благоприятный влажностный режим, чем бетонные, поэтому ниже выполняется расчет влажностного режима кирпичной стены по конструкции, аналогичной данной в расчете для г. Москвы, но с толщиной утеплителя 0,16 м.
Расчет проводится для панели «Полиалпан» при сопротивлении паропроницанию ее с учетом горизонтальных щелей панели высотой 0,025 м, поскольку, как следовало из расчета для г. Москвы, без учета щелей по глухой части панели может быть влагонакопление, превышающее допустимое, особенно в случае отсутствия или малого расхода воздуха в прослойке (в подветренной части здания в верхних этажах).
Расчетное сопротивление паропроницанию стены до зоны возможной конденсации Rп, м2 · ч · Па/мг:
м2 · ч · Па/мг
(В технической системе Rп = 28 м2 · ч · мм рт. ст./г).
Расчетное сопротивление паропроницанию части ограждающей конструкции, Rпн, м2 · ч · Па/мг стены, расположенной между наружной поверхностью и плоскостью возможной конденсации равно
Rпн = 0,592 м2 · ч · Па/мг (см. выше).
Требуемое сопротивление паропроницанию Rп1, м2 · ч · Па/мг из условия недопустимости накопления влаги за год эксплуатации, формула (34) [4]
м2 · ч · Па/мг
Требуемое сопротивление паропроницанию из условия ограничения влаги в наружной стеновой панели за период с отрицательными температурами наружного воздуха Rп2, м2 · ч · Па/мг, формула (35) СНиП II-3-79* [4]
м2 · ч · Па/мг
.
Поскольку Rп2тp = 3,77 < Rп = 3,93 требования [4] СНиП II-3-79* соблюдены. Однако при меньшей плотности минваты γо >> 60 кг/м3 Rп2тp = 4,06 > Rп = 3,93 в прослойке может образовываться конденсат, при отсутствии движения воздуха. Расчет при учете движения воздуха, см. ниже.
При длине экрана 12 м Rп2пр = 4,5 < Rп = 3,93, поэтому следует увеличить высоту горизонтальных щелей, что и будет сделано, см. ниже.
Приводим расчет теплового, воздушного и влажностного режима кирпичных стен с экраном «Полиалпан» для Ханты-Мансийска с учетом горизонтальных щелей и с учетом движения воздуха в прослойке.
Определяем температуру входящего в прослойку воздуха по формуле (14)
tо = -41 · 0,95 = -39 °С.
Определяем скорость движения воздуха в прослойке по формуле (10)
м/сек,
с учетом трения: V = 0,48 - 0,07 · 0,48 = 0,45 м/сек,
где 0,07 - см. стр. 80.
Расход воздуха в прослойке при ее толщине 0,06 м:
W = 3600 · 0,45 · 0,06 · 1,5 = 146 кг/м · ч.
Температура на выходе из прослойки по формуле (18, в системе СИ)
°С,
где А = 20 · 0,217 - 41 · 1,2 = -44,86;
Кв + Кн = 0,217 + 1,25 = 1,417.
В расчетах τу принято: коэффициенты теплопередачи внутреннего и наружного слоев Кв и Кн:
Вт/м2 · °С (0,25 ккал/м2 · ч · °С);
Вт/м2 · °С (1,39 ккал/м2 · ч · °С);
Делаем расчет изменения упругости водяного пара по высоте прослойки кирпичной стены с экраном «Полиалпан» для Ханты-Мансийска с учетом щелей по формуле (18) при упругости водяного пара, входящего в прослойку воздуха ео = 0,086 мм рт. ст. (ео = 0,105 · 0,82 = 0,086);
Мв · ев + Мн · ен = 0,036 · 9,64 + 0,225 · 0,067 = 0,362
Мв + Мн = 0,036 + 0,225 = 0,261
При толщине прослойки 0,06 м, при W = 146 кг/м · ч
мм рт. ст.,
что превышает максимальную упругость водяного пара наружного воздуха Ен = 0,082, но меньше максимальной упругости водяного пара на выходе из прослойки Е = 0,45 при τу = -25,3 °С (см. выше).
Поскольку еу > Ен, принимаем высоту горизонтальных щелей 0,035 м, а толщину прослойки 0,1 м.
При этом расход воздуха:
W = 3600 · 0,45 · 0,1 · 1,5 = 243 кг/м · ч
Упругость водяного пара на выходе из прослойки:
мм рт. ст.,
При учете вертикальных щелей
мм рт. ст.,
где Мв · ев + Мн · ен = 0,036 · 9,64 + 0,294 · 0,067 = 0,366
Мв + Мн = 0,036 + 0,294 = 0,333
Учет вертикальных щелей уменьшает еу на 2 %.
В обоих случаях е близка к упругости водяного пара на выходе из прослойки.
При высоте воздушной прослойки 12 м, т.е. при высоте (длине) панели 12 м упругость водяного пара на выходе из прослойки составляет:
мм рт. ст.,
где расход воздуха:
W = 3600 · 0,52 · 0,1 · 1,5 = 280 кг/м · ч,
где V = 0,52 м/с - скорость воздуха в прослойке.
Полученная величина еу = 0,099 мало отличается от еу = 0,096 при высоте прослойки 9 м.
Из анализа приведенных результатов оптимальным вариантом общей толщины прослойки является 0,1 м, а высота горизонтальных швов 0,035 м. При такой толщине прослойки возможность влагонакопления в прослойке у экрана минимальна.
8. Выводы и рекомендации
1. На основании теплотехнического расчета наружных стен фасадной системы «Полиалпан» можно сделать вывод, что толщина теплоизоляции из минераловатных плит с λ = 0,045 Вт/м · °С составит для Москвы 0,11 ÷ 0,125 м и 0,16 ÷ 0,17 м для Ханты-Мансийска. При этом приведенное сопротивление теплопередаче утепленных наружных кирпичных и бетонных стен с вентилируемой воздушной прослойкой составит 3,2 м2 · °С/Вт для Москвы и 3,97 ÷ 4,03 м2 · °С/Вт для Ханты-Мансийска, что соответствует требованиям теплотехнических норм.
2. Расход воздуха через прослойку составляет при tн = -28 °C W = 112 кг/м · ч (Москва) и при tн = -41 °С W = 146 ÷ 280 кг/м · ч (Ханты-Мансийск).
3. Для обеспечения требуемого влажностного режима наружных стен рассматриваемой фасадной системы «Полиалпан» следует выполнять высоту (ширину) горизонтальных щелей 0,025 м для Москвы и 0,035 м для Ханты-Мансийска.
При закрытии воздухозаборных и воздуховыводящих щелей защитными сетками высота щели увеличивается с учетом площади сечения, перекрываемого сеткой.
4. Общая толщина воздушной прослойки от внутренней поверхности панели «Полиалпан» до утеплителя рекомендуется для стен этой системы 0,06 м - 0,07 м для Москвы и 0,1 м для Ханты-Мансийска.
5. Указанные выше параметры конструкции обеспечат требуемый температурный и влажностный режим наружных стен фасадной системы «Полиалпан».
6. Данные выше выводы действительны при длине (высоте) панели «Полиалпан» как 9 м, так и 12 м.
9. Перечень нормативных документов и литературы
1. СНиП 2.08.01-89* и МГСН 3.01-01 Жилые здания.
2. СНиП 2.01.07-85 Нагрузки и воздействия.
3. СП 23-101-2000 Проектирование тепловой защиты зданий
4. СНиП II-3-79* (изд. 1998 г.) Строительная теплотехника.
5. СНиП 23-01-99 Строительная климатология.
6. СНиП 2.01.01-82 Строительная климатология и геофизика.
7. Рекомендации по проверке и учету воздухопроницаемости наружных ограждающих конструкций жилых зданий. ЦНИИЭП жилища, Москва, 1983 г.
8. Рекомендации по проверке и применению для строительства и реконструкции зданий в г. Москве системы с вентилируемым воздушным зазором «Краспан». Правительство Москвы. Москомархитектура, Москва, 2001 г.
9. МГСН 2.01.99 Нормативы по теплозащите и тепловодоэлектроснабжению.
10. Заключение и протокол сертификационных испытаний НИИСФ № 51 от 22.06.2000 г. М.
Таблица п.3.1
Профили фасадной теплосберегающей системы «Полиалпан» для панелей толщиной 25 мм
|
№ 1 Вентиляционный профиль |
|
№ 8 Отлив |
|
|
№ 2 У-образный профиль |
|
№ 9 Оконный отделочный профиль |
|
|
№ 3 Н-образный профиль |
|
№ 8* Упрощенный отлив |
|
|
№ 4 Z-образный профиль |
|
№ 9* Оконный отделочный профиль для отлива |
|
|
№ 5 Оконцовочный профиль Стыковой |
|
№ 10 Упрощенный оконный профиль |
|
|
№ 6 Оконцовочный профиль с углом |
|
№ 11 Внешний отделочный угловой профиль |
|
|
№ 7 Оконный профиль |
|
№ 12 Внутренний отделочный угловой профиль |
|
Таблица п.3.2
Профили фасадной теплосберегающей системы «Полиалпан» для панелей толщиной 40 мм
|
№ 1 Вентиляционный профиль |
|
№ 8 Отлив |
|
|
№ 2 У-образный профиль |
|
№ 9 Оконный отделочный профиль |
|
|
№ 3 Н-образный профиль |
|
№ 8* Упрощенный отлив |
|
|
№ 4 Z-образный профиль |
|
№ 9* Оконный отделочный профиль для отлива |
|
|
№ 5 Оконцовочный профиль Стыковой |
|
№ 10 Упрощенный оконный профиль |
|
|
№ 6 Оконцовочный профиль с углом |
|
№ 11 Внешний отделочный угловой профиль |
|
|
№ 7 Оконный профиль |
|
№ 12 Внутренний отделочный угловой профиль |
|
Примерный расход материалов
Количество материала идущего на оформление фасада здания зависит в первую очередь от архитектурного решения фасада и толщины используемого утепляющего слоя. Оценивая ориентировочную потребность материалов на отделку фасада можно руководствоваться данными приведенной таблицы.
Таблица п.3.3.
Ориентировочная потребность материалов на 1 м2 фасада
|
№№ п/п |
Наименование материала, изделия |
Размер |
Единица измерения |
Количество на 1 м2 фасада |
|
1. |
Профиль ПН-2: |
50×40×L |
м |
3,6 |
|
|
- кронштейн (0,4 м) |
150×200(300) |
шт./м |
4/1,6 |
|
|
- горизонтальный профиль |
50×40×L |
м |
2 |
|
2. |
Дюбель фасадный с оцинкованным шурупом |
Ø 8×100-140 |
шт. |
8 |
|
3. |
Шайба паронитовая |
|
шт. |
8 |
|
4. |
Саморез с прессшайбой для сборки каркаса и крепления панелей к каркасу |
Ø 4,2×16 |
шт. |
30-35 |
|
5. |
Дюбель с металлическим сердечником для крепления изоляционных материалов |
Ø 55 Ø 10×150-200 |
шт. |
10 |
|
6. |
Плиты утеплителя |
|
|
|
|
|
«Лайт-Баттс» |
600×1000 |
м3 |
0,07-0,15 |
|
|
«Венти-Баттс» |
600×1000 |
м3 |
0,05 |
|
7. |
Панель «Полиалпан» |
ширина 500, 440 |
м2 |
1 |
|
8. |
Силиконовый герметик под спецпрофили |
330 г |
тюб. |
0,2 |
|
|
Дополнительно: |
|
|
|
|
9. |
Спецпрофиль для отделки внешних и внутренних углов, сопряжений, оконных и дверных проемов |
Прилож. 3 |
м |
Расчет |
|
10. |
Саморез для крепления резаных краев |
Ø 3,2×51 |
шт |
5 |
|
11. |
Заклепка для крепления спецпрофиля на каждое окно и дверь |
Ø 3,2×10 |
шт |
4-5 |
Характеристики стального профиля ПН-2
|
Эскиз |
Марка |
Размеры, мм |
Вес кг/п.м |
Поставка |
|||
|
А |
В |
δ |
Стандартная длина, м |
Стандартная упаковка, шт |
|||
|
|
ПН-2 |
50 |
40 |
0,6 |
0,598 |
3,0 |
В пачке 18 В пачке 360 |
Для изготовления профилей применяется сталь тонколистовая оцинкованная с непрерывных линий по ГОСТ 14918-80 или прокат тонколистовой холоднокатанный электротехнический оцинкованный по ТУ 14-1-4766-90.
Панели системы «ПОЛИАЛПАН», применяемые в фасадной системе «ПОЛИАЛПАН» прошли проверки и испытания.
Результаты проведенных проверок и испытаний подтвердили, что панели системы «ПОЛИАЛПАН» соответствуют:
- санитарно-эпидемиологическим правилам и нормативам (санитарно-эпидемиологические заключения № 77.01.12.229.П.23063.08.2 от 25.08.02; № 76.01.07.229.П.000286.03.01 от 30.03.01);
- требованиям пожарной безопасности (сертификаты пожарной безопасности № ССПБ.RU.ОП.014.Н.0045 от 18.12.00; № ССПБ.RU.ОП.014.Н.0080 от 26.04.01) и отнесены к материалам слабогорючим (группа Г1), трудновоспламеняемым (группа В1), с умеренной дымообразующей способностью (группа Д2).
Панели системы «ПОЛИАЛПАН» прошли сертификационные испытания на соответствие требованиям ТУ 2292-001-51941968-00, ТУ2292-001-52937696-00 в испытательной лаборатории Научно-исследовательского института пластических материалов им. Г. С. Петрова (протоколы № 1092 от 27.08.02; № 1094 от 27.08.02) и в испытательной лаборатории Научно-исследовательского института строительной физики (протоколы № 297 от 12.09.02; № 297-1 от 12.09.02) и рекомендованы для устройства дополнительной теплоизоляции в наружных ограждающих конструкциях зданий с учетом требований СНиП II-3-79.
Директору ООО «Полиалпан»
Бровкину В. А.
105037, г. Москва,
Измайловская пл., д. 5, корп. 2
На № 9 от 14.09.2001 г.
Главное Управление государственной противопожарной службы МВД России и Управление стандартизации, технического нормирования и сертификации Госстроя России, совместно рассмотрев «Альбом технических решений для массового применения. Система «Полиалпан» наружной теплоизоляции фасадов зданий (Шифр: ПЛН-25/40/2001)», разработанный ООО «Полиалпан», а также «Отчетную справку по результатам огневых испытаний навесного фасада «Полиалпан» с панелями облицовки толщиной 40 мм», составленную ГУП «ЦНИИСК им. В. А. Кучеренко» Госстроя России совместно с ВНИИПО МВД России, считают, что согласно полученным результатам испытаний и в соответствии с разделом 9 «Программы натурных огневых испытаний фрагментов фасадов зданий с дополнительной наружной теплоизоляцией», согласованной ГУГПС МВД России письмом № 20/2.2/1612 от 28.07.97 г. и Управлением стандартизации технического нормирования и сертификации Госстроя России 28.07.97 г., вышеназванная система может применяться для наружной теплоизоляции фасадов зданий с учетом следующих условий и ограничений:
1. Система теплоизоляции «Полиалпан» должна выполняться:
- строго в соответствии с «Альбомом технических решений для массового применения. Система «Полиалпан» наружной теплоизоляции фасадов зданий (Шифр: ПЛН-25/40/2001)»;
- в системе должны использоваться панели фасадные декоративные теплоизолирующие по ТУ 2292-001-51941968-00 производства ООО «Полиалпан» (Россия, Московская обл., г. Лыткарино) или панели производства «Polyalpan Fassadensysteme GmbH» (Германия, г. Пфорцхайм), отвечающие требованиям строительного допуска Z-23.1.2-290 (Германия), или панели теплоизолирующие системы «Полиалпан» из пенополиуретана по ТУ 2292-001-529376-96-00 производства ООО «Славтеко» (Россия, Ярославская обл., г. Переславль-Залесский);
- все указанные типы панелей должны соответствовать требованиям, предъявляемым к материалам (изделиям) группы горючести Г1 по ГОСТ 30244-94 и группы воспламеняемости В1 по ГОСТ 30402-96;
- толщина внутреннего полимерного заполнения панелей производства ООО «Полиалпан» и «Polyalpan Fassadensysteme GmbH» пенополиуретаном не должна превышать 25 мм, панелей производства ООО «Славтеко» не должна превышать 40 мм;
- в качестве внутреннего заполнения панелей производства ООО «Полиалпан» должен использоваться пенополиуретан марки «Изолан 200» по ТУ 2254-220-10480596, со средней объемной (кажущейся) плотностью в готовом изделии 40...50 кг/м3, из сырьевых материалов (полупродуктов) производства НПП «Изолан» (Россия, Владимир);
- в качестве внутреннего заполнения панелей производства «Polyalpan Fassadensysteme GmbH» и панелей производства ООО «Славтеко» должен использоваться пенополиуретан марки РН 545/03, отвечающий требованиям строительного допуска Z-23.1.2-290 (Германия), со средней объемной плотностью в готовом изделии 34...36 кг/м3, из компонентов фирмы «DOW» и «Deutche ICI GmbH» (Германия);
- для рассечек (окантовок) должны применяться негорючие минераловатные плиты «ROCKWOOL» серии «SLAB» (фасадные) со средней плотностью 140...150 кг/м3, производства фирмы «Rockwool A/S» (Дания) или негорючие плиты фасадные теплоизоляционные из минеральной ваты «Фасад-баттс» аналогичной средней плотности, производства ЗАО «Минеральная вата» (Россия, Московская обл., г. Железнодорожный) по ТУ 5762-002-45757203-99; допускается использование для рассечек (окантовок) других сертификационных негорючих минераловатных плит со средней плотностью не менее 140 кг/м3 и с температурой плавления волокна не менее 1000 °С;
- горизонтальные рассечки из минераловатных плит следует устанавливать по всей длине фасада здания, в уровне верхних горизонтальных откосов оконных (дверных) проемов, начиная с первого этажа здания, через один этаж, но не реже, чем через 7,2 м по высоте; по всем другим сторонам проемов, вдоль всей их длины, следует устанавливать окантовки из минераловатных плит, высота поперечного сечения рассечек и окантовок должна составлять не менее 200 мм;
- сквозные зазоры между рассечками (окантовками) из негорючих минераловатных плит и строительным основанием между указанными рассечками (окантовками) и наружной облицовкой фасадных панелей не допускаются; сквозные зазоры в стыках смежных плит рассечек (окантовок) друг с другом также не допускаются;
- несущий каркас для крепления панелей облицовки должен выполняться из стальных оцинкованных профилей;
- здания, утепляемые системой «Полиалпан», должны соответствовать противопожарным требованиям действующих СНиП в части обеспечения безопасности людей при пожаре, а их наружные стены, на которых монтируется данная система, должны быть выполнены без применения материалов группы горючести Г4 (кроме окон, дверей и карнизов);
- работы по утеплению стен зданий с применением технологии системы «Полиалпан» должны выполняться строительными организациями, имеющими лицензию на данный вид строительной деятельности, специалисты которых прошли обучение в ООО «Полиалпан» (Россия) или в уполномоченных данной фирмой организациях и имеют соответствующее подтверждение.
2. При выполнении требований, изложенных в п. 1, и с учетом п. 4.4 СНиП 21-01-97* допускается применение системы «Полиалпан» для зданий класса функциональной пожарной опасности (по СНиП 21-01-97*):
Ф1.3 - в крупных и крупнейших городах России высотой до 12 этажей включительно при использовании в системе фасадных панелей производства ООО «Полиалпан» или «Polyalpan Fassadensysteme GmbH», на остальной территории России - высотой до 9-10 этажей включительно, при этом разность отметок поверхности проезда для пожарных машин и нижней границы открывающегося проема (окна) в наружной стене верхнего этажа здания, не считая верхнего технического этажа, не должна превышать соответственно 28 м. При использовании в системе фасадных панелей производства ООО «Славтеко» - до 5-6 этажей включительно на всей территории России, при этом разность отметок поверхности проезда для пожарных машин и нижней границы открывающегося проема (окна) в наружной стене верхнего этажа здания, не считая верхнего технического этажа, не должна превышать соответственно 18 м.
Ф1.4 - без ограничения высоты для панелей всех указанных типов.
3. Отступление от требований изложенных в п.п. 1 и 2, а также условия применения системы «Полиалпан» для зданий другой функциональной пожарной опасности должны быть согласованы в соответствии с п. 1.6 СНиП 21-01-97* при представлении проекта привязки системы к конкретному объекту, прошедшего экспертизу в ГУП «ЦНИИСК им. В. А. Кучеренко» Госстроя России.
4. Требования, изложенные в п.п. 1...3, не распространяются на здания V степени огнестойкости (по СНиП 2.01.02-85*) и на здания класса конструктивной пожарной опасности С2 и С3 (по СНиП 21-01-97*).
Настоящее письмо устанавливает требования и определяет область применения системы «Полиалпан» с позиций обеспечения пожарной безопасности утепляемых зданий. Обеспечение надежной и безопасной эксплуатации этой системы в обычных (не аварийных) условиях предметом настоящего письма не является и должно быть подтверждено «Сертификатом соответствия» или «Техническим свидетельством» Госстроя России о пригодности системы для применения в строительстве.
Заместитель начальника Первый заместитель начальника
Управления стандартизации, Главного управления
Технического нормирования и Государственной противопожарной
сертификации Госстроя России службы МВД России
Н. Н. Поляков В. Д. Мулишкин
УТВЕРЖДАЮ:
Зам. директора НИИЖБ
Мухамедиев Т.Д.
23 сентября 2002 г.
Заключение
о долговечности оцинкованных стальных элементов вентилируемой фасадной системы
«Полиалпан»
Заключение выполнено по договору № 660 от 12.09.2002 г. с ЗАО НП «Интеко». Заказчиком предоставлена техническая документация - «Фасадная система «Полиалпан». Технические решения», разработанная ЗАО «Интеко» и ОАО ЦНИИЭП жилища.
В вентилируемую фасадную систему «Полиалпан» входят:
- облицовочные панели из пенополиуретана толщиной 25 мм или 40 мм (включенного с трех сторон в тонколистовой окрашенный гнутый алюминиевый лист, а с внутренней стороны покрытого слоем фольги), длиной до 12 м,
- система поддерживающих панели гнутых профилей из оцинкованного стального листа толщиной 0,6 мм,
- крепежные детали в виде шурупов саморезов и дюбелей для крепления панелей к гнутым профилям и гнутых профилей к поверхностям наружной стены из кирпича, железобетона и др. материалов.
Панели устанавливаются на относе с организацией вентилируемой прослойки между панелью и утеплителем из минераловатных плит Венти Баттс (компании Rockwool), крепящихся непосредственно к наружным стенам.
Согласно «Техническим решениям» толщина цинкового покрытия гнутых профилей должна составлять 40-60 мкм (тип П), но не менее 18-40 мкм (1 класс); распорные шурупы и саморезы из стали также защищаются оцинковкой, при этом толщина цинкового покрытия и способ нанесения не указываются.
Согласно ГОСТ 149180* стальные гнутые профили из листа толщиной 0,5-2,5 мм защищаются от коррозии методом горячего цинкования с толщиной покрытия для повышенного класса от 40 до 60 мкм, для первого класса от 18 до 40 мкм, для второго класса от 10 до 18 мкм. В «Технических решениях» не оговаривается в каких случаях принимается рекомендованная ими защита - по повышенному или первому классу.
Выбор защиты от коррозии стальных гнутых профилей, дюбелей и шурупов в рассматриваемой системе облицовки стен зависит от условий воздействия среды эксплуатации: режима по температуре и влажности и воздействия агрессивных сред.
Для назначения необходимой толщины цинкового защитного покрытия или оценки его срока службы необходимы: расчетные данные по местоположению зоны конденсации в толще стены и длительности пребывания металла в контакте с увлажнением или в зоне повышенной влажности; сведения об агрессивности воздействия среды органического утеплителя к стали.
В соответствии с разделом 7.2 «Расчет влажностного режима бетонных стен» (Приложение 2 Технических решений) при отсутствии вентиляции воздушной прослойки на внутренней поверхности облицовочной панели будет образовываться конденсат. Однако организация вентиляции путем устройства горизонтальных и вертикальных «щелей» в зоне сопряжений облицовочных панелей для забора и удаления воздуха, может полностью исключить образование конденсата.
Тем не менее, в начальный период эксплуатации стены до высыхания материалов стены (кирпича, бетона и т.п. и утеплителя), стальные закладные детали будут находиться под воздействием увлажнения и высокой влажности, близкой к 100 %.
Кроме того, среда некоторых органических утеплителей, главным образом их связующего, является агрессивной к стали и цинку.
Выполненные ранее исследования показали, что среди наиболее распространенных видов отечественных плитных утеплителей, наиболее агрессивными являются цементный фибролит и минераловатные плиты на синтетической основе.
Согласно дополнительным сведениям, полученным от заказчика, применяемый утеплитель Венти Баттс (компании Rockwool) представляет собою базальтовую минераловатную плиту на синтетическом связующем (фенолформальдегидная смола) и является химически инертным.
В условиях отсутствия прямых экспериментальных данных по влиянию среды органического утеплителя, срок службы защитного цинкового покрытия стальных гнутых профилей в фасадной системе «Полиалпан» устанавливался на основе оценок, предоставленных заказчиком, а также данных результатов имеющихся исследований1, рекомендаций2 и практических наработок.
Ориентировочный расчетный срок службы защитного покрытия стальных гнутых профилей горячим цинкованием толщиной 18-40 мкм (минимальное значение обозначенное в «Технических решениях») вычислялся с использованием данных Рекомендаций2, при значениях следующих параметров:
- продолжительность этапа начального высыхания материала стены и слоя теплоизоляции в условиях климата Москвы, Тф - 2 года,
- расчетная скорость коррозионных потерь цинкового покрытия на этапе начального высыхания, Ккп = 7 мкм/год (при химически инертном утеплителе),
- скорость коррозионных потерь цинкового покрытия при влажности теплоизоляции менее 100 %, Кап = 0,3 мкм/год.
Срок службы защитного покрытия, толщиной 18 мкм при стабильной работе вентиляции прослойки составит:
Тп = Тф + (18 - Тф × Ккп) / Кап = 2 + (18 - 2 × 7) / 0,3 = 15,3 года
Учитывая, что продолжительность этапа высыхания связана с климатическим районом строительства и сезоном возведения здания, что забираемый из атмосферы города воздух для вентиляции прослойки может быть загрязнен и, что стабильность работы вентиляции может быть хотя бы временно нарушена (в результате скопления пыли на поверхности утеплителя и т.п.), считаем целесообразным принимать толщину защитного цинкового покрытия при отделке зданий г. Москвы не менее 40 мкм.
Для более точного определения сроков службы цинковых защитных покрытий стальных элементов вентилируемой фасадной системы «Полиалпан» для различных районов строительства или назначения требуемой толщины покрытия, в дополнение к ранее высказанному необходимо:
- выполнить ускоренные испытания по установлению скорости коррозии цинкового покрытия, находящегося в контакте с минеральной ватой плит Венти Баттс;
- располагать данными, связанными с климатическим районом строительства и временем года (сезоном) возведения здания;
- располагать данными по степени и характеру загрязненности окружающего воздуха (так, в атмосфере Москвы содержатся диоксиды углерода и серы, оксиды азота, аммиак).
Обращаем также внимание на то, что гнутые профили, шурупы, саморезы и прессшайбы из оцинкованной стали находятся в контакте с алюминиевым листом и алюминиевой фольгой облицовочных панелей. На контакте двух металлов в присутствии влаги или растворов электролитов развиваются коррозионные процессы с растворением цинка. В конструктивное решение рассматриваемой облицовочной системы целесообразно включить устройство неметаллической прокладки между оцинкованной сталью и неокрашенным алюминием.
Литература:
Зав. лаборатории коррозии Степанова В. Ф.
Ведущий научн. сотрудник Булгакова М. Г.