Скачать Серия 1.479.2-2 Шкафы металлические для хранения одежды рабочих. Рабочие чертежиДата актуализации: 01.01.2021
|
| Обозначение: | Серия 1.479.2-2 |
| Обозначение англ: | Series 1.479.2-2 |
| Статус: | не определен законодательством |
| Название рус.: | Шкафы металлические для хранения одежды рабочих. Рабочие чертежи |
| Дата добавления в базу: | 01.09.2013 |
| Дата актуализации: | 01.01.2021 |
| Дата введения: | 01.03.1986 |
| Дата окончания срока действия: | 30.06.2003 |
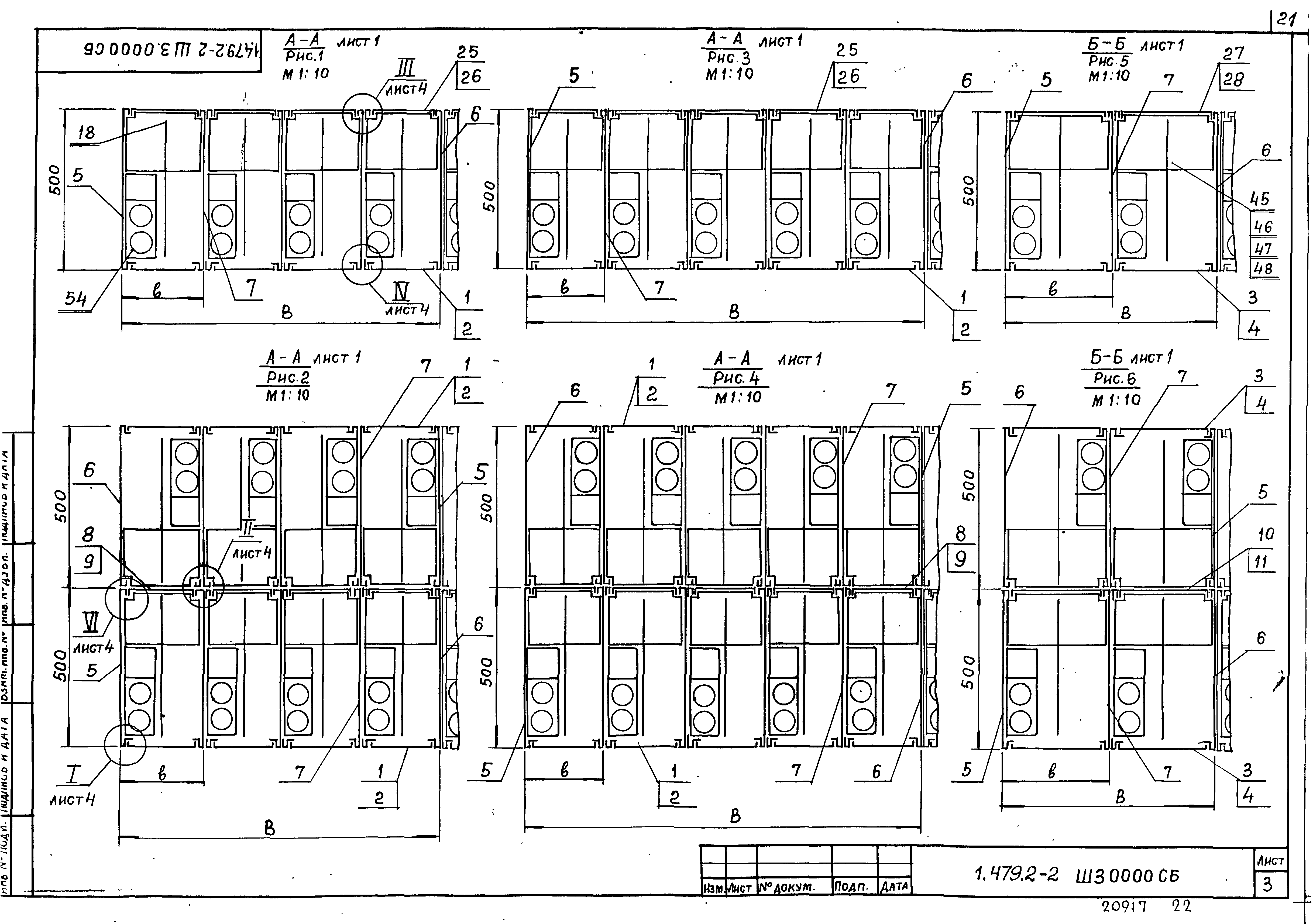
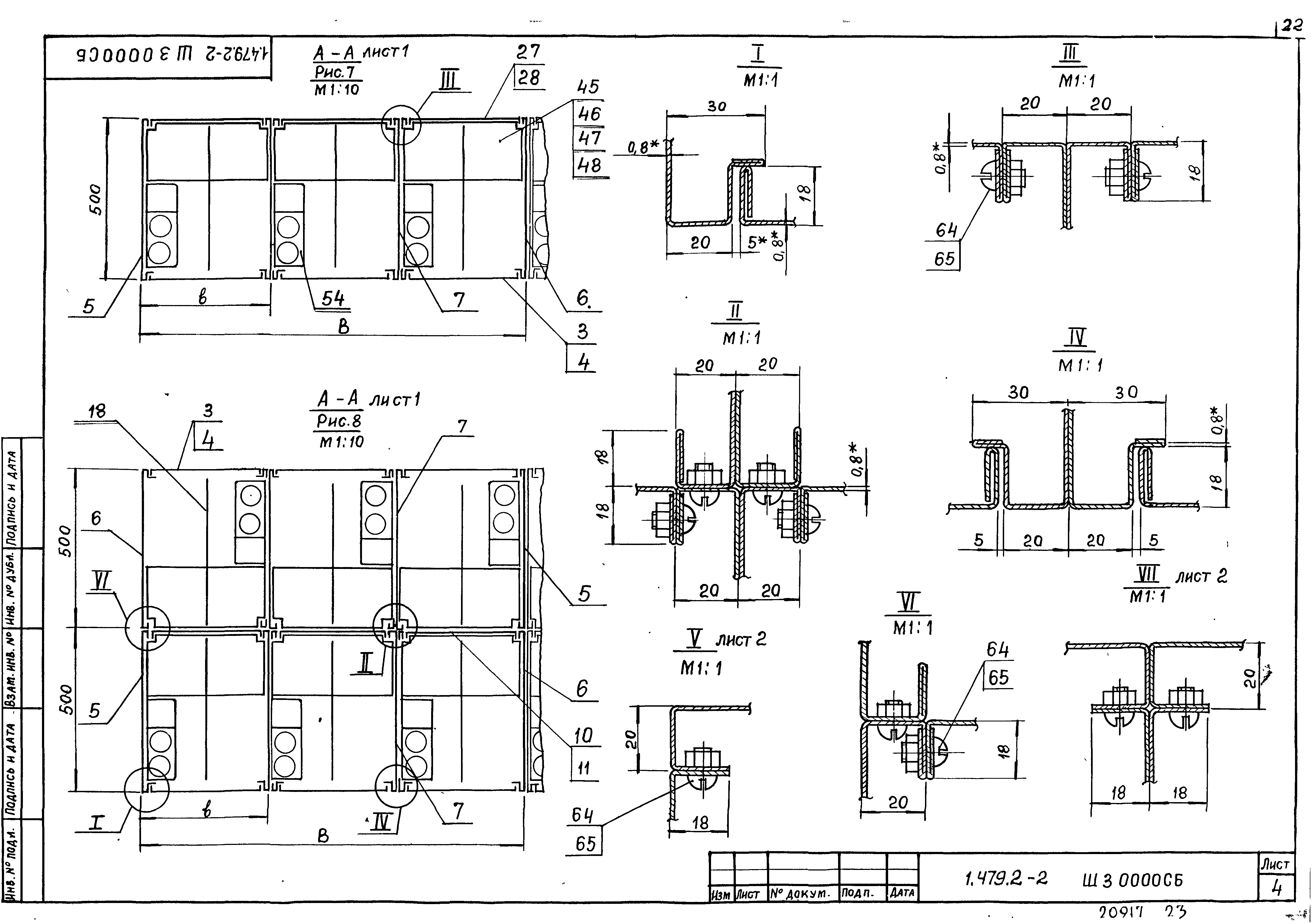
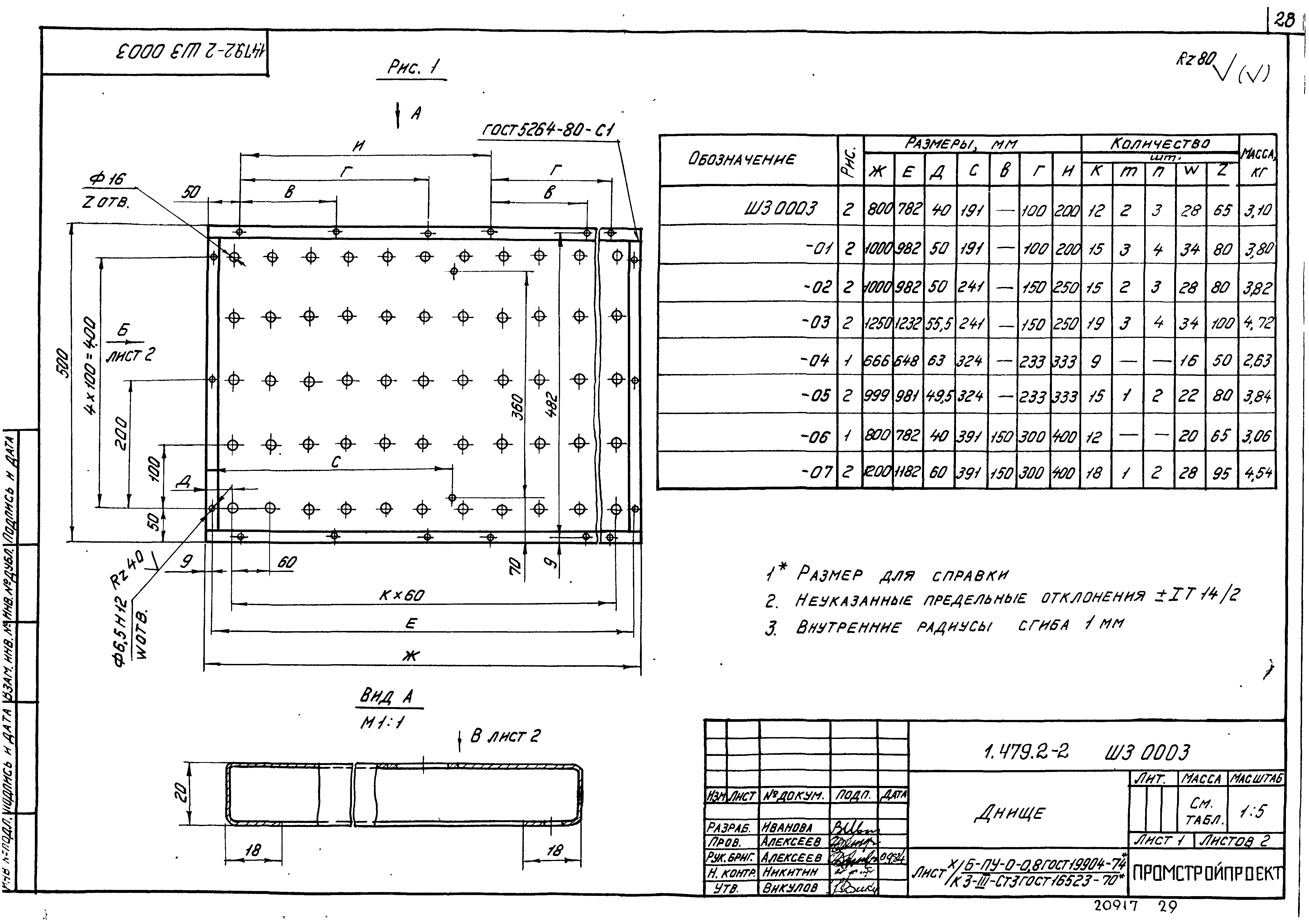
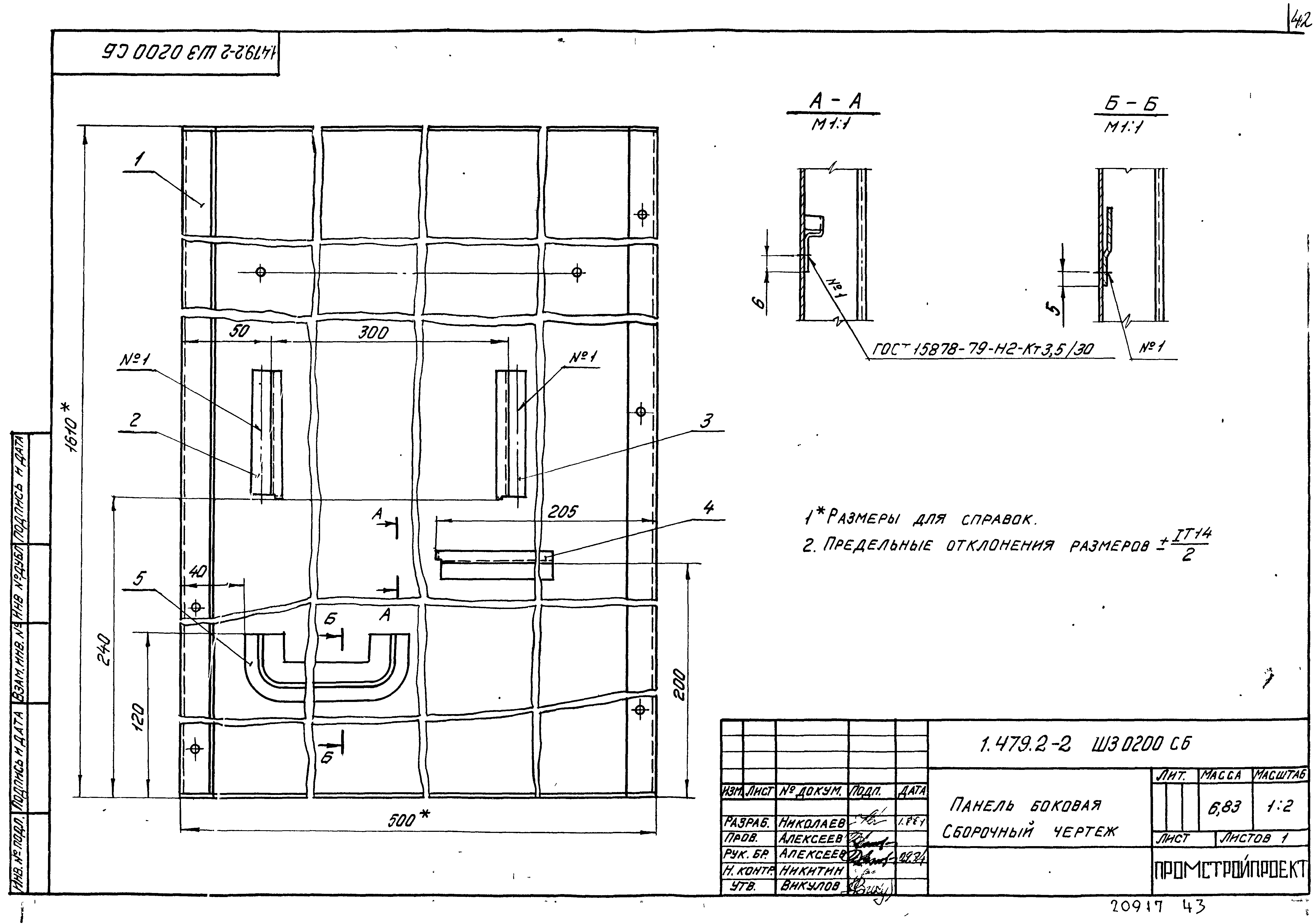
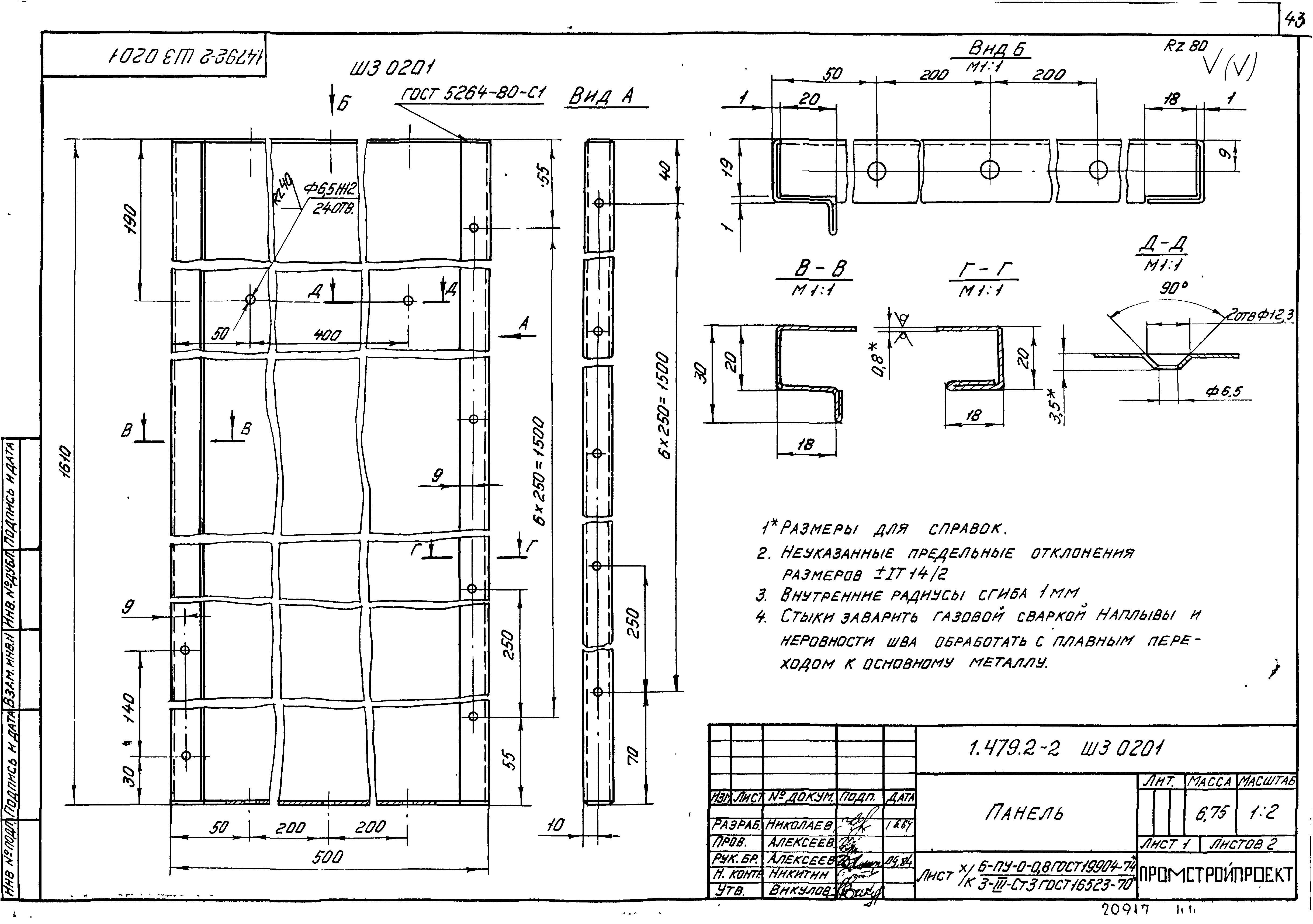
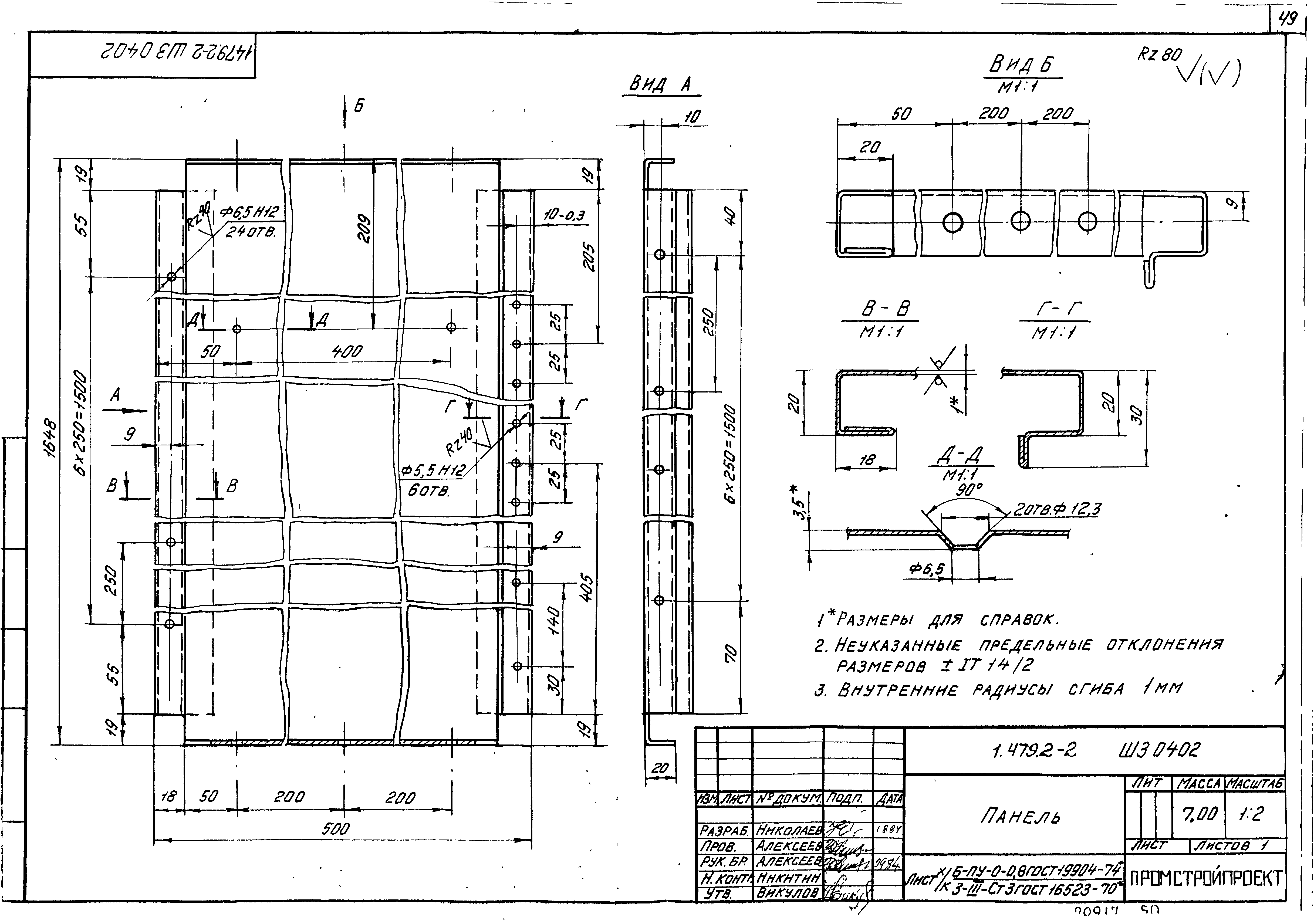
| Оглавление: | 1.479.2-2 ДО Шкаф для одежды. Опись документов 1.479.2-2 ПЗ Пояснительная записка 1.479.2-2 ШЗ 0000 ТУ Шкаф запираемый. Технические условия 1.479.2-2 ШЗ 0000 Шкаф запираемый 1.479.2-2 ШЗ 0000 СБ Шкаф запираемый. Сборочный чертеж 1.479.2-2 ШЗ 0001 Панель задняя 1.479.2-2 ШЗ 0002 Крышка 1.479.2-2 ШЗ 0003 Днище 1.479.2-2 ШЗ 0004 Полка нижняя 1.479.2-2 ШЗ 0005 Крышка передняя 1.479.2-2 ШЗ 0006 Зеркало 1.479.2-2 ШЗ 0007 Полка 1.479.2-2 ШЗ 0008 Ложемент 1.479.2-2 ШЗ 0009 Мыльница 1.479.2-2 ШЗ 0011 Полка 1.479.2-2 ШЗ 0012 Скоба 1.479.2-2 ШЗ 0013 Упор 1.479.2-2 ШЗ 0100 Дверь 1.479.2-2 ШЗ 0100 СБ Дверь. Сборочный чертеж 1.479.2-2 ШЗ 0101 Створка 1.479.2-2 ШЗ 0102 Направляющая 1.479.2-2 ШЗ 0103 Перекладина 1.479.2-2 ШЗ 0104 Уголок 1.479.2-2 ШЗ 0200 Панель боковая 1.479.2-2 ШЗ 0200 СБ Панель боковая. Сборочный чертеж 1.479.2-2 ШЗ 0201 Панель 1.479.2-2 ШЗ 0202 Направляющая 1.479.2-2 ШЗ 0203 Скоба 1.479.2-2 ШЗ 0300 Панель боковая 1.479.2-2 ШЗ 0300 СБ Панель боковая. Сборочный чертеж 1.479.2-2 ШЗ 0400 Панель средняя 1.479.2-2 ШЗ 0400 СБ Панель средняя. Сборочный чертеж 1.479.2-2 ШЗ 0401 Профиль 1.479.2-2 ШЗ 0402 Панель 1.479.2-2 ШЗ 0403 Профиль 1.479.2-2 ШЗ 0500 Панель задняя 1.479.2-2 ШЗ 0500 СБ Панель задняя. Сборочный чертеж 1.479.2-2 ШЗ 0501 Профиль 1.479.2-2 ШЗ 0600 Полка верхняя 1.479.2-2 ШЗ 0600 СБ Полка верхняя. Сборочный чертеж 1.479.2-2 ШЗ 0601 Крючок 1.479.2-2 ШЗ 0602 Крючок 1.479.2-2 ШЗ 0603 Полка 1.479.2-2 ШЗ 0604 Стержень 1.479.2-2 ШЗ 0700 Ножка 1.479.2-2 ШЗ 0700 СБ Ножка. Сборочный чертеж 1.479.2-2 ШЗ 0800 Петля 1.479.2-2 ШЗ 0801 Карта петли 1.479.2-2 ШЗ 0802 Ось 1.479.2-2 ШЗ 0803 Головка 1.479.2-2 ШЗ 0804 Шайба 1.479.2-2 ШЗ 0900 Штора 1.479.2-2 ШЗ 0900 СБ Штора. Сборочный чертеж 1.479.2-2 ШЗ 0901 Перегородка 1.479.2-2 ШЗ 0902 Планка 1.479.2-2 ШЗ 1000 Скамья 1.479.2-2 ШЗ 1000 СБ Скамья. Сборочный чертеж 1.479.2-2 ШЗ 1010 Сидение 1.479.2-2 ШЗ 1010 СБ Сидение. Сборочный чертеж 1.479.2-2 ШЗ 1011 Плита 1.479.2-2 ШЗ 1020 Рама 1.479.2-2 ШЗ 1020 СБ Рама. Сборочный чертеж 1.479.2-2 ШЗ 1021 Распорка 1.479.2-2 ШЗ 1022 Опора 1.479.2-2 ШЗ 1023 Платик 1.479.2-2 ШЗ 1024 Распорка 1.479.2-2 ШВ 0000 Шкаф вентилируемый 1.479.2-2 ШВ 0000 СБ Шкаф вентилируемый. Сборочный чертеж 1.479.2-2 ШВ 0100 Крышка 1.479.2-2 ШВ 0100 СБ Крышка. Сборочный чертеж 1.479.2-2 ШВ 0101 Панель крышки 1.479.2-2 ШВ 0102 Патрубок 1.479.2-2 ШВ 0103 Фланец 1.479.2-2 ШВ 0104 Прокладка 1.479.2-2 ШО 0000 Шкаф открытый 1.479.2-2 ШО 0000 СБ Шкаф открытый. Сборочный чертеж |
| Разработан: | Промстройпроект Госстроя СССР АО ЦНИИпромзданий |
| Утверждён: | 11.12.1985 Госстрой СССР (Государственный комитет Совета Министров СССР по делам строительства) (USSR Gosstroy 216) |

































































































