Скачать Типовой проект 111-125-1 Часть 9. Раздел 9-1. Узлы и детали. Типовые секции. Архитектурные решения. ДеталиДата актуализации: 01.01.2021
|
| Обозначение: | Типовой проект 111-125-1 |
| Обозначение англ: | 111-125-1 |
| Статус: | действует |
| Название рус.: | Часть 9. Раздел 9-1. Узлы и детали. Типовые секции. Архитектурные решения. Детали |
| Дата добавления в базу: | 01.09.2013 |
| Дата актуализации: | 01.01.2021 |
| Дата введения: | 28.08.1970 |
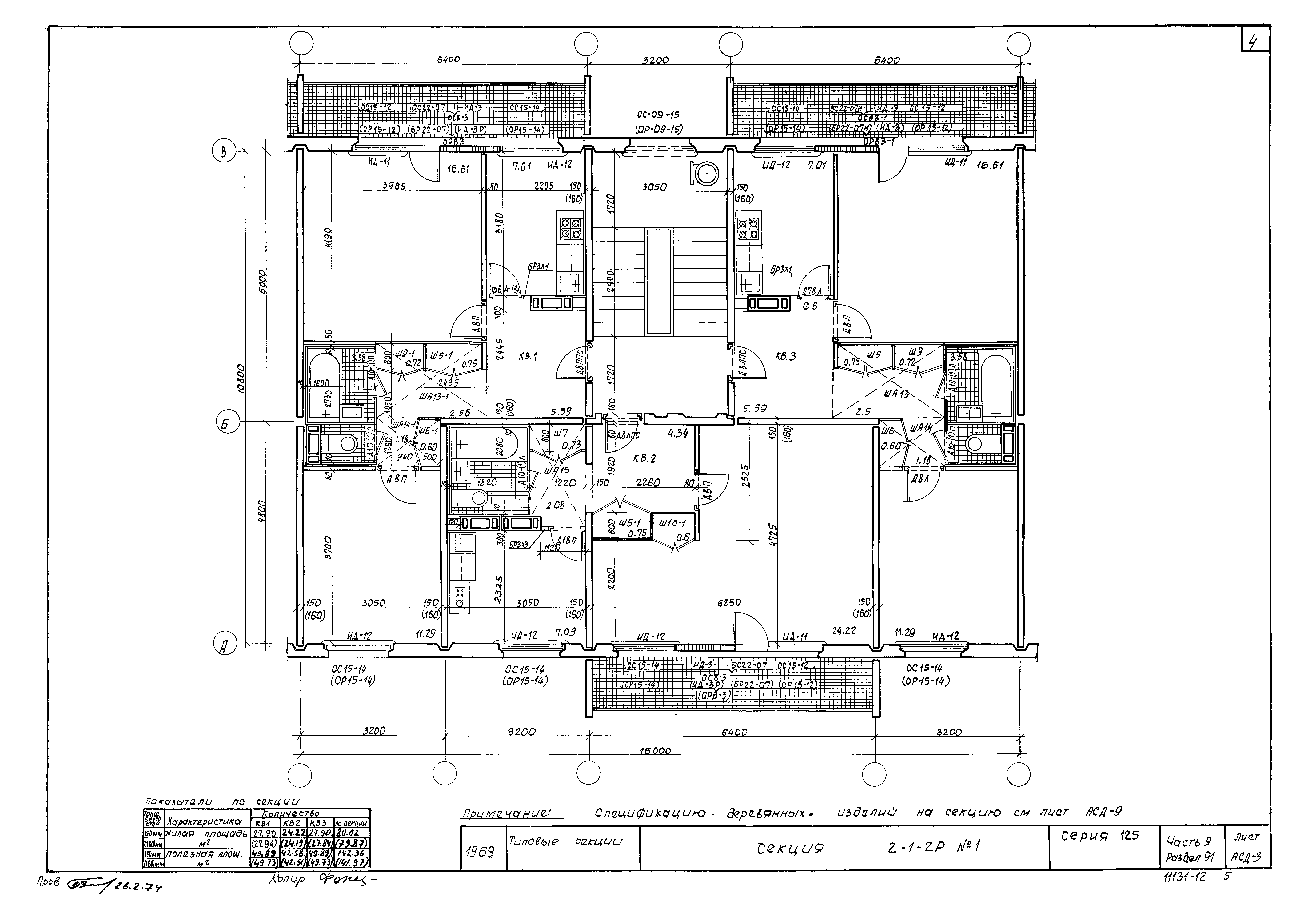
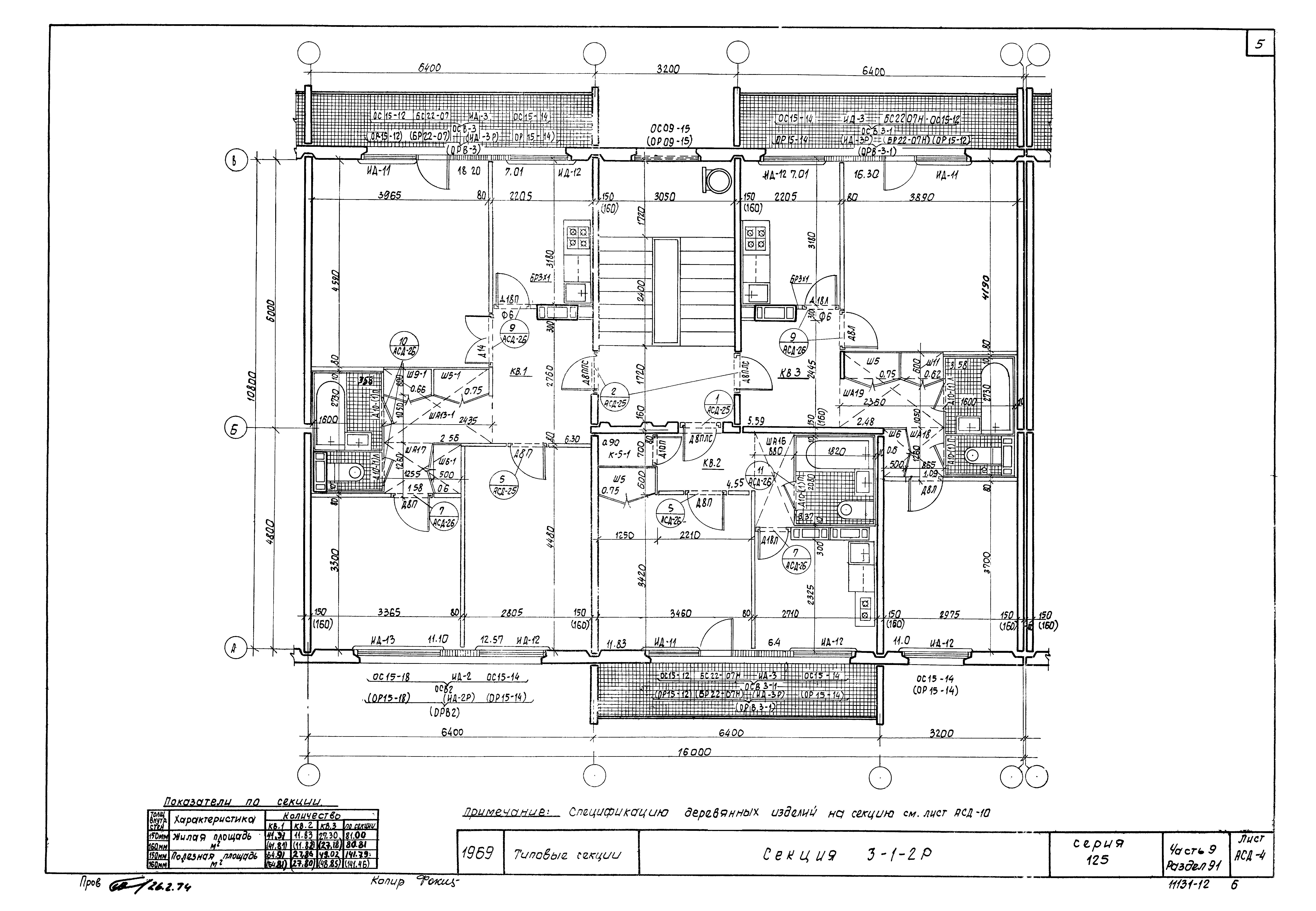
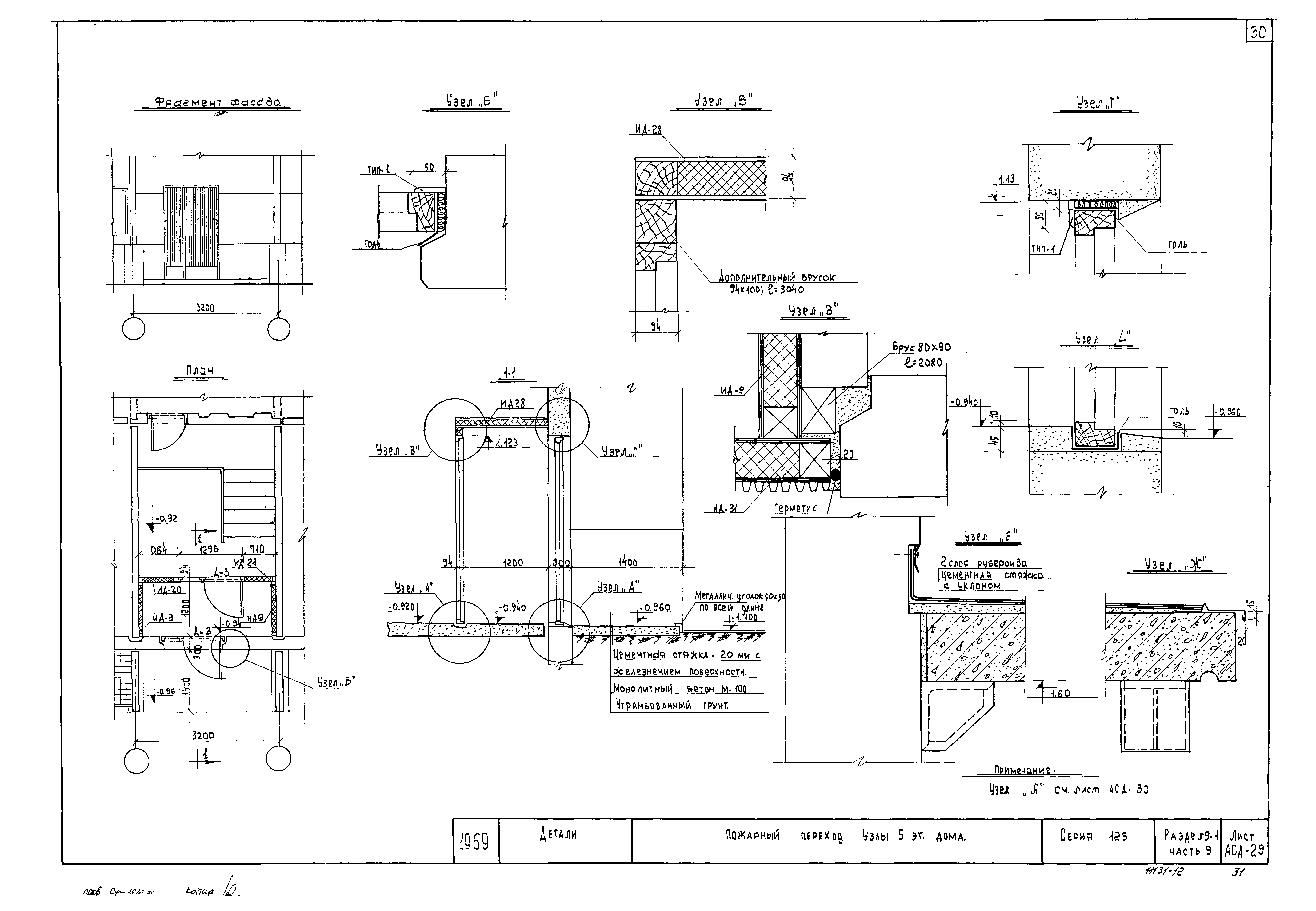
| Оглавление: | Содержание Секции Спецификация деревянных изделий на секции Секции Спецификация деревянных изделий на секции Установка оконных блоков и оконных вставок со спаренными переплетами в наружных стенах толщиной 250, 300 мм (вертикальный разрез) Установка оконных блоков и оконных вставок с раздельными переплетами в наружных стенах толщиной 350, 400 мм (вертикальный разрез) Узлы установки оконных и балконных блоков со спаренными и раздельными переплетами в наружных стенах толщиной 250 - 400 мм (разрез по горизонтали и вертикали) Установка столярных блоков во внутренних стенах и перегородках Вход Тамбур входа 5-ти этажного дома Пожарный переход 5-ти этажного дома. Узлы Вход Тамбур входа 9-ти этажного дома Пожарный переход 9-ти этажного дома. Узлы Детали полов Приставная лоджия Западающая лоджия Размещение кухонного оборудования Размещение оборудования в санузле и ванной Узлы крепления слива западающей лоджии и межквартирной перегородки приставной лоджии Встроенные шкафы, шкафы антресольные Кладовые Встроенные шкафы, антресоли и кладовые. Узлы с 1 по 24 |
| Разработан: | КБ по железобетону Госстроя РСФСР |
| Утверждён: | 28.08.1970 КБ по железобетону Госстроя РСФСР (69) |




















































